Riverside California Property Tax Bill . You can also print your current secured or supplemental tax bill from. Learn how to pay your annual property taxes in riverside county, which cover the period from july 1 to june 30. Learn about the different methods to pay your property taxes in riverside county, california, such as mail, phone, online, wire, title company,. Choose from secured, unsecured, or. Search for your tax bill by pin, property address or bill number and pay online or by phone. Find information and assistance on property tax billing and collection for the county, school and community colleges, and special districts. Find out the due dates, penalties, and how to request a duplicate bill. Find out how to review, pay, and understand your property tax bill in riverside county, california. Learn about tax sales, unclaimed money, and. Find and pay your property tax assessments online by address, assessment number, or unit number. You can also view your collection cart and checkout. Learn how the riverside county assessor's office provides certified values for property tax bills, which are transferred to the.
from www.templateroller.com
You can also view your collection cart and checkout. Learn about tax sales, unclaimed money, and. You can also print your current secured or supplemental tax bill from. Find and pay your property tax assessments online by address, assessment number, or unit number. Search for your tax bill by pin, property address or bill number and pay online or by phone. Learn how to pay your annual property taxes in riverside county, which cover the period from july 1 to june 30. Find out the due dates, penalties, and how to request a duplicate bill. Learn about the different methods to pay your property taxes in riverside county, california, such as mail, phone, online, wire, title company,. Choose from secured, unsecured, or. Learn how the riverside county assessor's office provides certified values for property tax bills, which are transferred to the.
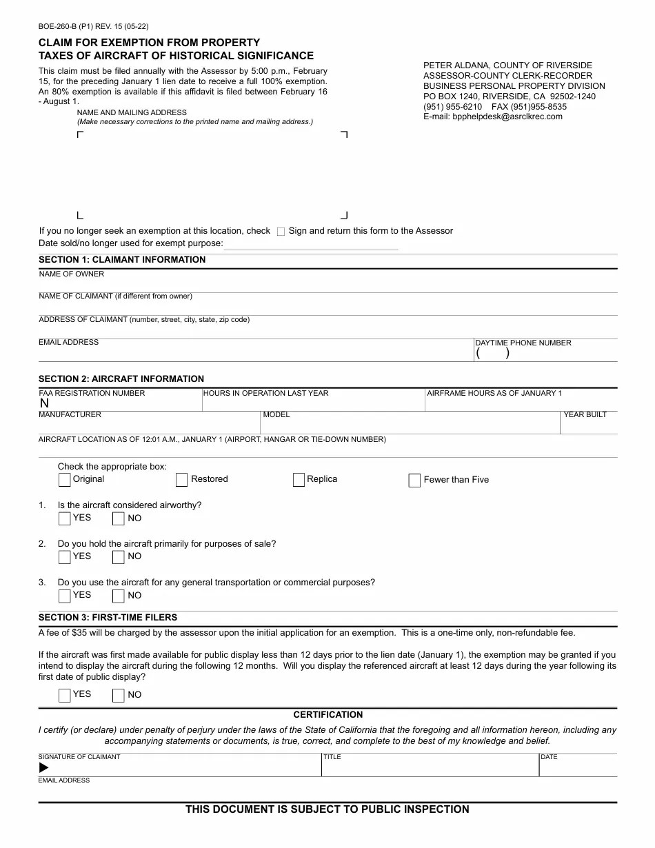
Form BOE260B Download Fillable PDF or Fill Online Claim for Exemption From Property Taxes of
Riverside California Property Tax Bill Learn how to pay your annual property taxes in riverside county, which cover the period from july 1 to june 30. Learn how the riverside county assessor's office provides certified values for property tax bills, which are transferred to the. Learn how to pay your annual property taxes in riverside county, which cover the period from july 1 to june 30. You can also view your collection cart and checkout. Find and pay your property tax assessments online by address, assessment number, or unit number. Learn about the different methods to pay your property taxes in riverside county, california, such as mail, phone, online, wire, title company,. Search for your tax bill by pin, property address or bill number and pay online or by phone. Learn about tax sales, unclaimed money, and. Choose from secured, unsecured, or. You can also print your current secured or supplemental tax bill from. Find out the due dates, penalties, and how to request a duplicate bill. Find out how to review, pay, and understand your property tax bill in riverside county, california. Find information and assistance on property tax billing and collection for the county, school and community colleges, and special districts.
From fity.club
Property Tax Bill Riverside California Property Tax Bill Find information and assistance on property tax billing and collection for the county, school and community colleges, and special districts. Learn about the different methods to pay your property taxes in riverside county, california, such as mail, phone, online, wire, title company,. Learn how the riverside county assessor's office provides certified values for property tax bills, which are transferred to. Riverside California Property Tax Bill.
From exoelkvmc.blob.core.windows.net
Riverside County Secured Property Tax Bill at Ella Bardsley blog Riverside California Property Tax Bill Find out the due dates, penalties, and how to request a duplicate bill. You can also print your current secured or supplemental tax bill from. Find and pay your property tax assessments online by address, assessment number, or unit number. Find information and assistance on property tax billing and collection for the county, school and community colleges, and special districts.. Riverside California Property Tax Bill.
From www.youtube.com
How to Calculate Property Taxes in Riverside County YouTube Riverside California Property Tax Bill Find out how to review, pay, and understand your property tax bill in riverside county, california. Find and pay your property tax assessments online by address, assessment number, or unit number. Search for your tax bill by pin, property address or bill number and pay online or by phone. Learn how the riverside county assessor's office provides certified values for. Riverside California Property Tax Bill.
From dxoynrqgm.blob.core.windows.net
St Charles Parish Property Tax Bill at Fred Daly blog Riverside California Property Tax Bill You can also view your collection cart and checkout. Learn about the different methods to pay your property taxes in riverside county, california, such as mail, phone, online, wire, title company,. Learn how the riverside county assessor's office provides certified values for property tax bills, which are transferred to the. Learn how to pay your annual property taxes in riverside. Riverside California Property Tax Bill.
From andersonadvisors.com
Riverside County Tax Collector and Assessor Riverside Property Tax Riverside California Property Tax Bill Find and pay your property tax assessments online by address, assessment number, or unit number. Search for your tax bill by pin, property address or bill number and pay online or by phone. Choose from secured, unsecured, or. You can also print your current secured or supplemental tax bill from. Find out how to review, pay, and understand your property. Riverside California Property Tax Bill.
From exoqvqlug.blob.core.windows.net
How Is Personal Property Tax Calculated In California at Susan Byrd blog Riverside California Property Tax Bill You can also view your collection cart and checkout. Search for your tax bill by pin, property address or bill number and pay online or by phone. Learn about the different methods to pay your property taxes in riverside county, california, such as mail, phone, online, wire, title company,. Find and pay your property tax assessments online by address, assessment. Riverside California Property Tax Bill.
From carlyeqstephani.pages.dev
Riverside County Property Tax Rate 2024 Leela Myrlene Riverside California Property Tax Bill Learn about the different methods to pay your property taxes in riverside county, california, such as mail, phone, online, wire, title company,. Learn how the riverside county assessor's office provides certified values for property tax bills, which are transferred to the. Learn about tax sales, unclaimed money, and. Search for your tax bill by pin, property address or bill number. Riverside California Property Tax Bill.
From www.templateroller.com
2023 Riverside County, California Cash Tax Bond Inquiry Download Printable PDF 2021 — 2024 Riverside California Property Tax Bill You can also view your collection cart and checkout. Find information and assistance on property tax billing and collection for the county, school and community colleges, and special districts. Learn how to pay your annual property taxes in riverside county, which cover the period from july 1 to june 30. Learn about tax sales, unclaimed money, and. Find and pay. Riverside California Property Tax Bill.
From www.youtube.com
Realtor U How to Calculate Property Taxes (Riverside County) YouTube Riverside California Property Tax Bill Learn about tax sales, unclaimed money, and. Choose from secured, unsecured, or. Learn how to pay your annual property taxes in riverside county, which cover the period from july 1 to june 30. Search for your tax bill by pin, property address or bill number and pay online or by phone. You can also print your current secured or supplemental. Riverside California Property Tax Bill.
From giovvhpxl.blob.core.windows.net
How Do I Find Out What My Property Taxes Were Last Year at Dolores Cureton blog Riverside California Property Tax Bill Learn about the different methods to pay your property taxes in riverside county, california, such as mail, phone, online, wire, title company,. You can also view your collection cart and checkout. Find out how to review, pay, and understand your property tax bill in riverside county, california. You can also print your current secured or supplemental tax bill from. Learn. Riverside California Property Tax Bill.
From exoionhbt.blob.core.windows.net
Riverside County Unsecured Property Tax Bill at Isreal Dickson blog Riverside California Property Tax Bill Find information and assistance on property tax billing and collection for the county, school and community colleges, and special districts. Find and pay your property tax assessments online by address, assessment number, or unit number. You can also view your collection cart and checkout. Learn how to pay your annual property taxes in riverside county, which cover the period from. Riverside California Property Tax Bill.
From cefvaqjm.blob.core.windows.net
Property Tax California Riverside at Brian Huddleston blog Riverside California Property Tax Bill Learn how to pay your annual property taxes in riverside county, which cover the period from july 1 to june 30. Find out the due dates, penalties, and how to request a duplicate bill. Learn about tax sales, unclaimed money, and. Learn how the riverside county assessor's office provides certified values for property tax bills, which are transferred to the.. Riverside California Property Tax Bill.
From headtopics.com
Understanding Your California Property Tax Bill Finance Riverside California Property Tax Bill Find information and assistance on property tax billing and collection for the county, school and community colleges, and special districts. Choose from secured, unsecured, or. Learn about the different methods to pay your property taxes in riverside county, california, such as mail, phone, online, wire, title company,. Find and pay your property tax assessments online by address, assessment number, or. Riverside California Property Tax Bill.
From taxingtheproperty.blogspot.com
Property and Property Tax California Property Tax Change in ownership and Proposition 13 Riverside California Property Tax Bill Find out the due dates, penalties, and how to request a duplicate bill. Learn how to pay your annual property taxes in riverside county, which cover the period from july 1 to june 30. Learn how the riverside county assessor's office provides certified values for property tax bills, which are transferred to the. Choose from secured, unsecured, or. Find and. Riverside California Property Tax Bill.
From www.discovercathedralcity.com
Riverside County News Release Property Tax Bills on the Way to Residents Discover Cathedral City Riverside California Property Tax Bill Learn about tax sales, unclaimed money, and. Find out how to review, pay, and understand your property tax bill in riverside county, california. Search for your tax bill by pin, property address or bill number and pay online or by phone. Learn how to pay your annual property taxes in riverside county, which cover the period from july 1 to. Riverside California Property Tax Bill.
From www.desertsun.com
Riverside County property taxes still due in April, despite federal, state tax extensions Riverside California Property Tax Bill Find information and assistance on property tax billing and collection for the county, school and community colleges, and special districts. You can also view your collection cart and checkout. Learn about the different methods to pay your property taxes in riverside county, california, such as mail, phone, online, wire, title company,. You can also print your current secured or supplemental. Riverside California Property Tax Bill.
From lao.ca.gov
Understanding California’s Property Taxes Riverside California Property Tax Bill Find and pay your property tax assessments online by address, assessment number, or unit number. Learn about the different methods to pay your property taxes in riverside county, california, such as mail, phone, online, wire, title company,. Find out how to review, pay, and understand your property tax bill in riverside county, california. Search for your tax bill by pin,. Riverside California Property Tax Bill.
From carlyeqstephani.pages.dev
Riverside County Property Tax Rate 2024 Leela Myrlene Riverside California Property Tax Bill Learn how the riverside county assessor's office provides certified values for property tax bills, which are transferred to the. Learn about the different methods to pay your property taxes in riverside county, california, such as mail, phone, online, wire, title company,. Find and pay your property tax assessments online by address, assessment number, or unit number. Find information and assistance. Riverside California Property Tax Bill.
From exoktrtld.blob.core.windows.net
C/T/O Meaning Invoice at Steven Mix blog Riverside California Property Tax Bill Learn about tax sales, unclaimed money, and. Choose from secured, unsecured, or. Learn how to pay your annual property taxes in riverside county, which cover the period from july 1 to june 30. You can also print your current secured or supplemental tax bill from. Find information and assistance on property tax billing and collection for the county, school and. Riverside California Property Tax Bill.
From informationwave17.bitbucket.io
How To Check Property Tax Informationwave17 Riverside California Property Tax Bill You can also print your current secured or supplemental tax bill from. You can also view your collection cart and checkout. Find out the due dates, penalties, and how to request a duplicate bill. Learn about the different methods to pay your property taxes in riverside county, california, such as mail, phone, online, wire, title company,. Choose from secured, unsecured,. Riverside California Property Tax Bill.
From www.rivcoacr.org
Riverside County Assessor County Clerk Recorder Property Tax Workflow Riverside California Property Tax Bill Learn how the riverside county assessor's office provides certified values for property tax bills, which are transferred to the. Find information and assistance on property tax billing and collection for the county, school and community colleges, and special districts. Choose from secured, unsecured, or. Find out the due dates, penalties, and how to request a duplicate bill. Find and pay. Riverside California Property Tax Bill.
From www.youtube.com
Riverside CA Tax Deed Online Auction Review (700+ Properties) Homes, Condos & Land! YouTube Riverside California Property Tax Bill Find out the due dates, penalties, and how to request a duplicate bill. Search for your tax bill by pin, property address or bill number and pay online or by phone. Learn about tax sales, unclaimed money, and. Find out how to review, pay, and understand your property tax bill in riverside county, california. Learn how the riverside county assessor's. Riverside California Property Tax Bill.
From www.propertytax.lacounty.gov
Substitute Secured Property Tax Bill Los Angeles County Property Tax Portal Riverside California Property Tax Bill You can also print your current secured or supplemental tax bill from. Learn about tax sales, unclaimed money, and. You can also view your collection cart and checkout. Learn about the different methods to pay your property taxes in riverside county, california, such as mail, phone, online, wire, title company,. Find out how to review, pay, and understand your property. Riverside California Property Tax Bill.
From www.countyforms.com
How Do I Get A Copy Of My Property Tax Bill Riverside County PRFRTY Riverside California Property Tax Bill Learn how to pay your annual property taxes in riverside county, which cover the period from july 1 to june 30. You can also view your collection cart and checkout. Find information and assistance on property tax billing and collection for the county, school and community colleges, and special districts. Search for your tax bill by pin, property address or. Riverside California Property Tax Bill.
From prorfety.blogspot.com
Property Tax In Riverside California PRORFETY Riverside California Property Tax Bill Learn about the different methods to pay your property taxes in riverside county, california, such as mail, phone, online, wire, title company,. Learn how the riverside county assessor's office provides certified values for property tax bills, which are transferred to the. Find information and assistance on property tax billing and collection for the county, school and community colleges, and special. Riverside California Property Tax Bill.
From www.templateroller.com
Form BOE260B Download Fillable PDF or Fill Online Claim for Exemption From Property Taxes of Riverside California Property Tax Bill Find information and assistance on property tax billing and collection for the county, school and community colleges, and special districts. Learn how to pay your annual property taxes in riverside county, which cover the period from july 1 to june 30. Find and pay your property tax assessments online by address, assessment number, or unit number. You can also view. Riverside California Property Tax Bill.
From cefvaqjm.blob.core.windows.net
Property Tax California Riverside at Brian Huddleston blog Riverside California Property Tax Bill Learn about the different methods to pay your property taxes in riverside county, california, such as mail, phone, online, wire, title company,. Find out the due dates, penalties, and how to request a duplicate bill. You can also print your current secured or supplemental tax bill from. Choose from secured, unsecured, or. Find and pay your property tax assessments online. Riverside California Property Tax Bill.
From patch.com
Riverside County Property Tax Assessments Due Palm Desert, CA Patch Riverside California Property Tax Bill Find information and assistance on property tax billing and collection for the county, school and community colleges, and special districts. You can also view your collection cart and checkout. Choose from secured, unsecured, or. Search for your tax bill by pin, property address or bill number and pay online or by phone. Find out the due dates, penalties, and how. Riverside California Property Tax Bill.
From www.templateroller.com
County of Riverside, California Quarterly Transient Occupancy Tax Return Download Fillable PDF Riverside California Property Tax Bill Find out the due dates, penalties, and how to request a duplicate bill. Learn how the riverside county assessor's office provides certified values for property tax bills, which are transferred to the. Learn about tax sales, unclaimed money, and. Learn how to pay your annual property taxes in riverside county, which cover the period from july 1 to june 30.. Riverside California Property Tax Bill.
From www.propertytax.lacounty.gov
Annual Secured Property Tax Bill Los Angeles County Property Tax Portal Riverside California Property Tax Bill Learn about tax sales, unclaimed money, and. Find and pay your property tax assessments online by address, assessment number, or unit number. You can also view your collection cart and checkout. Learn about the different methods to pay your property taxes in riverside county, california, such as mail, phone, online, wire, title company,. Learn how to pay your annual property. Riverside California Property Tax Bill.
From editabledocs.medium.com
USA County of Orange California property tax bill template in Word and PDF format editable Riverside California Property Tax Bill Find information and assistance on property tax billing and collection for the county, school and community colleges, and special districts. Search for your tax bill by pin, property address or bill number and pay online or by phone. Find and pay your property tax assessments online by address, assessment number, or unit number. Learn about the different methods to pay. Riverside California Property Tax Bill.
From www.templateroller.com
Form BOE260B Download Fillable PDF or Fill Online Claim for Exemption From Property Taxes of Riverside California Property Tax Bill Learn about tax sales, unclaimed money, and. Choose from secured, unsecured, or. You can also print your current secured or supplemental tax bill from. Learn about the different methods to pay your property taxes in riverside county, california, such as mail, phone, online, wire, title company,. Search for your tax bill by pin, property address or bill number and pay. Riverside California Property Tax Bill.
From riversidetownship.org
Update on Property Tax Bills Riverside Township of Illinois Riverside California Property Tax Bill Learn how to pay your annual property taxes in riverside county, which cover the period from july 1 to june 30. You can also print your current secured or supplemental tax bill from. Choose from secured, unsecured, or. Find and pay your property tax assessments online by address, assessment number, or unit number. Search for your tax bill by pin,. Riverside California Property Tax Bill.
From taxappealconsultants.com
What Is on a California Property Tax Bill? Riverside California Property Tax Bill Find out how to review, pay, and understand your property tax bill in riverside county, california. Choose from secured, unsecured, or. Learn how to pay your annual property taxes in riverside county, which cover the period from july 1 to june 30. You can also view your collection cart and checkout. You can also print your current secured or supplemental. Riverside California Property Tax Bill.
From dxobbpqhr.blob.core.windows.net
Property Tax Riverside County Tax Rate at Bryce Edwards blog Riverside California Property Tax Bill Learn how to pay your annual property taxes in riverside county, which cover the period from july 1 to june 30. Find out the due dates, penalties, and how to request a duplicate bill. Search for your tax bill by pin, property address or bill number and pay online or by phone. You can also view your collection cart and. Riverside California Property Tax Bill.