Roof Upstand Detail . Flashings, soakers and gutters should be provided as necessary. Files available for fixed, sliding, lantern, access and aov rooflights and roof windows. The bauder technical centre is full of roof details, design guides, detail drawings and product information. Freely downloadable rooflight cad drawings. Upstand should be a minimum of. Find all of bauder's details right here. An upstand, be it against a parapet, penetration or facade, ensures that the waterproofing does its job and that exposed brickwork, external facades or other building elements are not flooded or saturated. Upstand should be a minimum of. An upstand, be it against a parapet, penetration or facade, ensures that the waterproofing does its job and that exposed brickwork, external facades or other building elements are not flooded or saturated. An upstand, be it against a parapet, penetration or facade, ensures that the waterproofing does its job and that exposed brickwork, external facades or other building elements are not flooded or saturated. Lead flashings should have a minimum upstand of 75mm and minimum lap of 100mm. Upstand should be kept separate from wall, and allow for movement. Flashings should be tucked 25mm into a bed joint and wedged in place at not more than 450mm centres, or a minimum of one per step for stepped flashings.
from www.specifiedby.com
Flashings should be tucked 25mm into a bed joint and wedged in place at not more than 450mm centres, or a minimum of one per step for stepped flashings. Upstand should be a minimum of. Upstand should be a minimum of. An upstand, be it against a parapet, penetration or facade, ensures that the waterproofing does its job and that exposed brickwork, external facades or other building elements are not flooded or saturated. Lead flashings should have a minimum upstand of 75mm and minimum lap of 100mm. Flashings, soakers and gutters should be provided as necessary. An upstand, be it against a parapet, penetration or facade, ensures that the waterproofing does its job and that exposed brickwork, external facades or other building elements are not flooded or saturated. Upstand should be kept separate from wall, and allow for movement. Freely downloadable rooflight cad drawings. An upstand, be it against a parapet, penetration or facade, ensures that the waterproofing does its job and that exposed brickwork, external facades or other building elements are not flooded or saturated.
AIM Upstand Boards Upstand Boards Thermal insulation and protection
Roof Upstand Detail Upstand should be a minimum of. Find all of bauder's details right here. The bauder technical centre is full of roof details, design guides, detail drawings and product information. Upstand should be a minimum of. Freely downloadable rooflight cad drawings. Flashings, soakers and gutters should be provided as necessary. An upstand, be it against a parapet, penetration or facade, ensures that the waterproofing does its job and that exposed brickwork, external facades or other building elements are not flooded or saturated. An upstand, be it against a parapet, penetration or facade, ensures that the waterproofing does its job and that exposed brickwork, external facades or other building elements are not flooded or saturated. Flashings should be tucked 25mm into a bed joint and wedged in place at not more than 450mm centres, or a minimum of one per step for stepped flashings. Lead flashings should have a minimum upstand of 75mm and minimum lap of 100mm. An upstand, be it against a parapet, penetration or facade, ensures that the waterproofing does its job and that exposed brickwork, external facades or other building elements are not flooded or saturated. Upstand should be kept separate from wall, and allow for movement. Files available for fixed, sliding, lantern, access and aov rooflights and roof windows. Upstand should be a minimum of.
From nhbc-standards.co.uk
7.1.16 Accessible thresholds and upstands NHBC Standards 2023 NHBC Roof Upstand Detail Upstand should be a minimum of. Find all of bauder's details right here. An upstand, be it against a parapet, penetration or facade, ensures that the waterproofing does its job and that exposed brickwork, external facades or other building elements are not flooded or saturated. Flashings should be tucked 25mm into a bed joint and wedged in place at not. Roof Upstand Detail.
From source.thenbs.com
Excel Concrete Roof Slab (Insitu/ Precast) (Multi layer) Warm Roof Roof Upstand Detail An upstand, be it against a parapet, penetration or facade, ensures that the waterproofing does its job and that exposed brickwork, external facades or other building elements are not flooded or saturated. Lead flashings should have a minimum upstand of 75mm and minimum lap of 100mm. Upstand should be a minimum of. Upstand should be a minimum of. Flashings should. Roof Upstand Detail.
From www.pinterest.ca
Upstand Details Roof lantern, Roof detail, Roof Roof Upstand Detail Upstand should be a minimum of. The bauder technical centre is full of roof details, design guides, detail drawings and product information. Upstand should be kept separate from wall, and allow for movement. Flashings, soakers and gutters should be provided as necessary. An upstand, be it against a parapet, penetration or facade, ensures that the waterproofing does its job and. Roof Upstand Detail.
From www.jjroofingsupplies.co.uk
What is a Skylight upstand? JJ Roofing Supplies Roof Upstand Detail The bauder technical centre is full of roof details, design guides, detail drawings and product information. Flashings, soakers and gutters should be provided as necessary. Freely downloadable rooflight cad drawings. Files available for fixed, sliding, lantern, access and aov rooflights and roof windows. Upstand should be a minimum of. Lead flashings should have a minimum upstand of 75mm and minimum. Roof Upstand Detail.
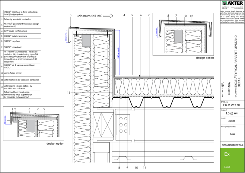
From source.thenbs.com
Excel Profiled Metal Deck (Multi layer) Warm Roof Typical Parapet Roof Upstand Detail Lead flashings should have a minimum upstand of 75mm and minimum lap of 100mm. Freely downloadable rooflight cad drawings. Files available for fixed, sliding, lantern, access and aov rooflights and roof windows. Flashings, soakers and gutters should be provided as necessary. Upstand should be a minimum of. An upstand, be it against a parapet, penetration or facade, ensures that the. Roof Upstand Detail.
From forum.buildhub.org.uk
Skylight Upstands. Skylights & Roof Windows Roof Upstand Detail An upstand, be it against a parapet, penetration or facade, ensures that the waterproofing does its job and that exposed brickwork, external facades or other building elements are not flooded or saturated. Upstand should be a minimum of. Upstand should be a minimum of. The bauder technical centre is full of roof details, design guides, detail drawings and product information.. Roof Upstand Detail.
From www.emseal.com
Roofing System Warranty · Sika Sarnafil/Emseal Roof Upstand Detail An upstand, be it against a parapet, penetration or facade, ensures that the waterproofing does its job and that exposed brickwork, external facades or other building elements are not flooded or saturated. An upstand, be it against a parapet, penetration or facade, ensures that the waterproofing does its job and that exposed brickwork, external facades or other building elements are. Roof Upstand Detail.
From www.vikingroofspec.co.nz
Junction Upstand to Pitched Roofing 070 Waterproofing & Roofing Systems Roof Upstand Detail An upstand, be it against a parapet, penetration or facade, ensures that the waterproofing does its job and that exposed brickwork, external facades or other building elements are not flooded or saturated. Upstand should be a minimum of. The bauder technical centre is full of roof details, design guides, detail drawings and product information. Upstand should be kept separate from. Roof Upstand Detail.
From nhbc-standards.co.uk
7.1.16 Accessible thresholds and upstands NHBC Standards 2024 NHBC Roof Upstand Detail Files available for fixed, sliding, lantern, access and aov rooflights and roof windows. Upstand should be kept separate from wall, and allow for movement. Upstand should be a minimum of. Flashings, soakers and gutters should be provided as necessary. Flashings should be tucked 25mm into a bed joint and wedged in place at not more than 450mm centres, or a. Roof Upstand Detail.
From www.vikingroofspec.co.nz
Facefix Upstand 04 Waterproofing & Roofing Systems Roof Upstand Detail Upstand should be a minimum of. Flashings, soakers and gutters should be provided as necessary. An upstand, be it against a parapet, penetration or facade, ensures that the waterproofing does its job and that exposed brickwork, external facades or other building elements are not flooded or saturated. An upstand, be it against a parapet, penetration or facade, ensures that the. Roof Upstand Detail.
From forum.buildhub.org.uk
How to build insulated upstand Skylights & Roof Windows Roof Upstand Detail Find all of bauder's details right here. Upstand should be a minimum of. Freely downloadable rooflight cad drawings. Flashings, soakers and gutters should be provided as necessary. The bauder technical centre is full of roof details, design guides, detail drawings and product information. Lead flashings should have a minimum upstand of 75mm and minimum lap of 100mm. Upstand should be. Roof Upstand Detail.
From nhbc-standards.co.uk
7.1.10 Detailing of flat roofs NHBC Standards 2018 NHBC Standards 2018 Roof Upstand Detail The bauder technical centre is full of roof details, design guides, detail drawings and product information. Find all of bauder's details right here. An upstand, be it against a parapet, penetration or facade, ensures that the waterproofing does its job and that exposed brickwork, external facades or other building elements are not flooded or saturated. Lead flashings should have a. Roof Upstand Detail.
From www.rubberroofs.co.uk
Installing Upstand External Corner Trims Rubber Roofs RubberRoofs Roof Upstand Detail The bauder technical centre is full of roof details, design guides, detail drawings and product information. Find all of bauder's details right here. An upstand, be it against a parapet, penetration or facade, ensures that the waterproofing does its job and that exposed brickwork, external facades or other building elements are not flooded or saturated. Freely downloadable rooflight cad drawings.. Roof Upstand Detail.
From www.singleply.co.uk
SIG Design & Technology Flat Roof Upstand Best Practice Roof Upstand Detail Upstand should be a minimum of. An upstand, be it against a parapet, penetration or facade, ensures that the waterproofing does its job and that exposed brickwork, external facades or other building elements are not flooded or saturated. Lead flashings should have a minimum upstand of 75mm and minimum lap of 100mm. Find all of bauder's details right here. Upstand. Roof Upstand Detail.
From www.singleply.co.uk
SIG Design & Technology Flat Roof Upstand Best Practice Roof Upstand Detail Upstand should be kept separate from wall, and allow for movement. The bauder technical centre is full of roof details, design guides, detail drawings and product information. Flashings, soakers and gutters should be provided as necessary. An upstand, be it against a parapet, penetration or facade, ensures that the waterproofing does its job and that exposed brickwork, external facades or. Roof Upstand Detail.
From conservatoryspares.co.uk
Korniche Roof Lanterns Cheapest Price Guaranteed Roof Upstand Detail Flashings should be tucked 25mm into a bed joint and wedged in place at not more than 450mm centres, or a minimum of one per step for stepped flashings. Find all of bauder's details right here. Upstand should be a minimum of. Files available for fixed, sliding, lantern, access and aov rooflights and roof windows. An upstand, be it against. Roof Upstand Detail.
From www.specifiedby.com
AIM Upstand Boards Upstand Boards Thermal insulation and protection Roof Upstand Detail Upstand should be a minimum of. Files available for fixed, sliding, lantern, access and aov rooflights and roof windows. Flashings, soakers and gutters should be provided as necessary. The bauder technical centre is full of roof details, design guides, detail drawings and product information. Upstand should be a minimum of. Lead flashings should have a minimum upstand of 75mm and. Roof Upstand Detail.
From www.pinterest.ph
Rooflight upstand detail Roof Light, Flat Roof, Architecture Details Roof Upstand Detail Lead flashings should have a minimum upstand of 75mm and minimum lap of 100mm. Flashings, soakers and gutters should be provided as necessary. An upstand, be it against a parapet, penetration or facade, ensures that the waterproofing does its job and that exposed brickwork, external facades or other building elements are not flooded or saturated. Files available for fixed, sliding,. Roof Upstand Detail.
From www.eosrooflights.co.uk
Insulated Upstand By EOS Rooflights ⋆ EOS Roof Upstand Detail An upstand, be it against a parapet, penetration or facade, ensures that the waterproofing does its job and that exposed brickwork, external facades or other building elements are not flooded or saturated. Flashings, soakers and gutters should be provided as necessary. Files available for fixed, sliding, lantern, access and aov rooflights and roof windows. Find all of bauder's details right. Roof Upstand Detail.
From www.ikopolymeric.com
Upstand requirements for flat roof design IKO Polymeric Roof Upstand Detail Upstand should be a minimum of. The bauder technical centre is full of roof details, design guides, detail drawings and product information. An upstand, be it against a parapet, penetration or facade, ensures that the waterproofing does its job and that exposed brickwork, external facades or other building elements are not flooded or saturated. Upstand should be kept separate from. Roof Upstand Detail.
From www.vikingroofspec.co.nz
Junction Polyiso Upstand to Pitched Roofing 070a Waterproofing Roof Upstand Detail Lead flashings should have a minimum upstand of 75mm and minimum lap of 100mm. Flashings should be tucked 25mm into a bed joint and wedged in place at not more than 450mm centres, or a minimum of one per step for stepped flashings. The bauder technical centre is full of roof details, design guides, detail drawings and product information. Find. Roof Upstand Detail.
From justrooflanterns.co.uk
The Classic Roof Lantern Upstand Detail Just Roof Lanterns Roof Upstand Detail Find all of bauder's details right here. Upstand should be a minimum of. Upstand should be kept separate from wall, and allow for movement. An upstand, be it against a parapet, penetration or facade, ensures that the waterproofing does its job and that exposed brickwork, external facades or other building elements are not flooded or saturated. The bauder technical centre. Roof Upstand Detail.
From www.aimlimited.co.uk
Upstand Boards Aim Limited Roof Upstand Detail Upstand should be a minimum of. An upstand, be it against a parapet, penetration or facade, ensures that the waterproofing does its job and that exposed brickwork, external facades or other building elements are not flooded or saturated. Flashings should be tucked 25mm into a bed joint and wedged in place at not more than 450mm centres, or a minimum. Roof Upstand Detail.
From polyroof.co.uk
185 GRP System Polyroof Roof Upstand Detail An upstand, be it against a parapet, penetration or facade, ensures that the waterproofing does its job and that exposed brickwork, external facades or other building elements are not flooded or saturated. Files available for fixed, sliding, lantern, access and aov rooflights and roof windows. Upstand should be kept separate from wall, and allow for movement. Upstand should be a. Roof Upstand Detail.
From www.scribd.com
(BurWc01) Built Up Roofing Upstand To Brickwork Detail Drawing PDF Roof Upstand Detail An upstand, be it against a parapet, penetration or facade, ensures that the waterproofing does its job and that exposed brickwork, external facades or other building elements are not flooded or saturated. Lead flashings should have a minimum upstand of 75mm and minimum lap of 100mm. Find all of bauder's details right here. An upstand, be it against a parapet,. Roof Upstand Detail.
From www.vikingroofspec.co.nz
Upstand 03 Waterproofing & Roofing Systems Roof Upstand Detail An upstand, be it against a parapet, penetration or facade, ensures that the waterproofing does its job and that exposed brickwork, external facades or other building elements are not flooded or saturated. Find all of bauder's details right here. Upstand should be kept separate from wall, and allow for movement. Lead flashings should have a minimum upstand of 75mm and. Roof Upstand Detail.
From nhbc-standards.co.uk
7.1.16 Accessible thresholds and upstands NHBC Standards 2023 NHBC Roof Upstand Detail An upstand, be it against a parapet, penetration or facade, ensures that the waterproofing does its job and that exposed brickwork, external facades or other building elements are not flooded or saturated. The bauder technical centre is full of roof details, design guides, detail drawings and product information. Files available for fixed, sliding, lantern, access and aov rooflights and roof. Roof Upstand Detail.
From nhbc-standards.co.uk
7.1.10 Detailing of flat roofs NHBC Standards 2020 NHBC Standards 2020 Roof Upstand Detail An upstand, be it against a parapet, penetration or facade, ensures that the waterproofing does its job and that exposed brickwork, external facades or other building elements are not flooded or saturated. Find all of bauder's details right here. Flashings, soakers and gutters should be provided as necessary. Upstand should be a minimum of. Upstand should be a minimum of.. Roof Upstand Detail.
From www.cadblocksfree.com
Roof & Parapet Upstand Details .dwg Thousands of free AutoCAD drawings Roof Upstand Detail Upstand should be kept separate from wall, and allow for movement. Flashings, soakers and gutters should be provided as necessary. Lead flashings should have a minimum upstand of 75mm and minimum lap of 100mm. Find all of bauder's details right here. An upstand, be it against a parapet, penetration or facade, ensures that the waterproofing does its job and that. Roof Upstand Detail.
From www.pinterest.com
Reinforced Concrete Inverted Upstand Beam Slab Support Details Roof Upstand Detail Upstand should be a minimum of. Lead flashings should have a minimum upstand of 75mm and minimum lap of 100mm. An upstand, be it against a parapet, penetration or facade, ensures that the waterproofing does its job and that exposed brickwork, external facades or other building elements are not flooded or saturated. Flashings should be tucked 25mm into a bed. Roof Upstand Detail.
From www.eosrooflights.co.uk
What is a Rooflight Upstand and How Can I Build One Roof Upstand Detail An upstand, be it against a parapet, penetration or facade, ensures that the waterproofing does its job and that exposed brickwork, external facades or other building elements are not flooded or saturated. Upstand should be a minimum of. Flashings, soakers and gutters should be provided as necessary. The bauder technical centre is full of roof details, design guides, detail drawings. Roof Upstand Detail.
From asphaltech.co.nz
Flat Roof System Asphaltech Roof Upstand Detail Upstand should be a minimum of. Upstand should be kept separate from wall, and allow for movement. Find all of bauder's details right here. Freely downloadable rooflight cad drawings. The bauder technical centre is full of roof details, design guides, detail drawings and product information. An upstand, be it against a parapet, penetration or facade, ensures that the waterproofing does. Roof Upstand Detail.
From www.ikopolymeric.com
Upstand requirements for flat roof design IKO Polymeric Roof Upstand Detail Files available for fixed, sliding, lantern, access and aov rooflights and roof windows. Find all of bauder's details right here. Upstand should be a minimum of. Upstand should be kept separate from wall, and allow for movement. An upstand, be it against a parapet, penetration or facade, ensures that the waterproofing does its job and that exposed brickwork, external facades. Roof Upstand Detail.
From www.singleply.co.uk
SIG Design & Technology Flat Roof Upstand Best Practice Roof Upstand Detail Files available for fixed, sliding, lantern, access and aov rooflights and roof windows. Upstand should be kept separate from wall, and allow for movement. Freely downloadable rooflight cad drawings. An upstand, be it against a parapet, penetration or facade, ensures that the waterproofing does its job and that exposed brickwork, external facades or other building elements are not flooded or. Roof Upstand Detail.
From www.firstinarchitecture.co.uk
Detail Post Flat Roof Details First In Architecture Roof Upstand Detail Flashings should be tucked 25mm into a bed joint and wedged in place at not more than 450mm centres, or a minimum of one per step for stepped flashings. Upstand should be kept separate from wall, and allow for movement. An upstand, be it against a parapet, penetration or facade, ensures that the waterproofing does its job and that exposed. Roof Upstand Detail.