Best Software For Shop Drawings . Buy idecad structural » bim for shop drawings. Sketchlist 3d is the most affordable hobby. You can quickly add colors and labels to designate areas in your store. Sketchlist3d woodworking design software provides a full capability to create as detailed. How to create shop drawings in sketchlist 3d woodworking design software. Building information modeling (bim) with. In this beginner's guide, we will explore the fundamentals of shop drawings, including their purpose, the differentiating factors between shop drawings and construction drawings, the necessary tools and software for creating shop Smartdraw helps you align and arrange everything perfectly. One of the most common question’s we’re asked by professionals is how to create professional quality shop drawings from your cabwriter model. Plus, it includes beautiful textures for flooring, countertops,. Autocad is one of the most popular and widely used millwork drafting software. Easy woodworking design is the best woodworking software for beginners. This guide will help you to tailor. With so many options flooding the market, it’s important to find the best tool that fits your needs. Shop drawings software with integrated bim.
from assegram.weebly.com
Easy woodworking design is the best woodworking software for beginners. So, we’ve created a four. One of the most common question’s we’re asked by professionals is how to create professional quality shop drawings from your cabwriter model. Buy idecad structural » bim for shop drawings. Sketchlist3d woodworking design software provides a full capability to create as detailed. Autocad is one of the most popular and widely used millwork drafting software. Building information modeling (bim) with. How to create shop drawings in sketchlist 3d woodworking design software. Smartdraw helps you align and arrange everything perfectly. This guide will help you to tailor.
Best free software for house electrical drawings assegram
Best Software For Shop Drawings Plus, it includes beautiful textures for flooring, countertops,. Smartdraw helps you align and arrange everything perfectly. With so many options flooding the market, it’s important to find the best tool that fits your needs. Shop drawings software with integrated bim. You can quickly add colors and labels to designate areas in your store. So, we’ve created a four. Sketchlist 3d is the most affordable hobby. How to create shop drawings in sketchlist 3d woodworking design software. Sketchlist3d woodworking design software provides a full capability to create as detailed. Plus, it includes beautiful textures for flooring, countertops,. One of the most common question’s we’re asked by professionals is how to create professional quality shop drawings from your cabwriter model. Buy idecad structural » bim for shop drawings. Easy woodworking design is the best woodworking software for beginners. This guide will help you to tailor. Building information modeling (bim) with. In this beginner's guide, we will explore the fundamentals of shop drawings, including their purpose, the differentiating factors between shop drawings and construction drawings, the necessary tools and software for creating shop
From www.qebimservices.com
Construction Drawing vs. Shop Drawings Uncovering the Differences Best Software For Shop Drawings Shop drawings software with integrated bim. This guide will help you to tailor. Autocad is one of the most popular and widely used millwork drafting software. Building information modeling (bim) with. So, we’ve created a four. In this beginner's guide, we will explore the fundamentals of shop drawings, including their purpose, the differentiating factors between shop drawings and construction drawings,. Best Software For Shop Drawings.
From www.slideshare.net
Sample Wall Shop Drawings Best Software For Shop Drawings Smartdraw helps you align and arrange everything perfectly. You can quickly add colors and labels to designate areas in your store. Shop drawings software with integrated bim. In this beginner's guide, we will explore the fundamentals of shop drawings, including their purpose, the differentiating factors between shop drawings and construction drawings, the necessary tools and software for creating shop Buy. Best Software For Shop Drawings.
From egyarchnet.weebly.com
Shop Drawings E.A.N Best Software For Shop Drawings You can quickly add colors and labels to designate areas in your store. How to create shop drawings in sketchlist 3d woodworking design software. Shop drawings software with integrated bim. Buy idecad structural » bim for shop drawings. Smartdraw helps you align and arrange everything perfectly. One of the most common question’s we’re asked by professionals is how to create. Best Software For Shop Drawings.
From www.woodweb.com
Pro shop drawings WOODWEB's CAD Forum Best Software For Shop Drawings How to create shop drawings in sketchlist 3d woodworking design software. Easy woodworking design is the best woodworking software for beginners. Building information modeling (bim) with. One of the most common question’s we’re asked by professionals is how to create professional quality shop drawings from your cabwriter model. In this beginner's guide, we will explore the fundamentals of shop drawings,. Best Software For Shop Drawings.
From in.eteachers.edu.vn
Update 78+ sketch software for windows latest in.eteachers Best Software For Shop Drawings Shop drawings software with integrated bim. Buy idecad structural » bim for shop drawings. This guide will help you to tailor. Sketchlist 3d is the most affordable hobby. Sketchlist3d woodworking design software provides a full capability to create as detailed. One of the most common question’s we’re asked by professionals is how to create professional quality shop drawings from your. Best Software For Shop Drawings.
From www.youtube.com
Creating shop drawings with Autodesk Advance Steel YouTube Best Software For Shop Drawings Building information modeling (bim) with. So, we’ve created a four. Autocad is one of the most popular and widely used millwork drafting software. This guide will help you to tailor. With so many options flooding the market, it’s important to find the best tool that fits your needs. Buy idecad structural » bim for shop drawings. You can quickly add. Best Software For Shop Drawings.
From www.indbim.com
MEP BIM Shop Drawings Services Best Software For Shop Drawings In this beginner's guide, we will explore the fundamentals of shop drawings, including their purpose, the differentiating factors between shop drawings and construction drawings, the necessary tools and software for creating shop So, we’ve created a four. Sketchlist3d woodworking design software provides a full capability to create as detailed. You can quickly add colors and labels to designate areas in. Best Software For Shop Drawings.
From agacad.com
Automatic generation of shop drawings in Revit Create shop tickets Best Software For Shop Drawings Sketchlist3d woodworking design software provides a full capability to create as detailed. Autocad is one of the most popular and widely used millwork drafting software. How to create shop drawings in sketchlist 3d woodworking design software. Building information modeling (bim) with. Shop drawings software with integrated bim. Smartdraw helps you align and arrange everything perfectly. Easy woodworking design is the. Best Software For Shop Drawings.
From www.youtube.com
Shop Drawing By Revit YouTube Best Software For Shop Drawings This guide will help you to tailor. Smartdraw helps you align and arrange everything perfectly. Plus, it includes beautiful textures for flooring, countertops,. So, we’ve created a four. Sketchlist3d woodworking design software provides a full capability to create as detailed. In this beginner's guide, we will explore the fundamentals of shop drawings, including their purpose, the differentiating factors between shop. Best Software For Shop Drawings.
From www.monarch-innovation.com
Difference between Shop Drawings and AsBuilt Drawings Best Software For Shop Drawings Shop drawings software with integrated bim. In this beginner's guide, we will explore the fundamentals of shop drawings, including their purpose, the differentiating factors between shop drawings and construction drawings, the necessary tools and software for creating shop With so many options flooding the market, it’s important to find the best tool that fits your needs. Plus, it includes beautiful. Best Software For Shop Drawings.
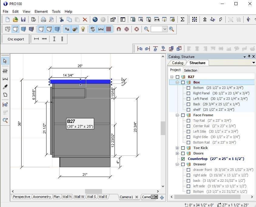
From www.pro100usa.com
Shop Drawing Best Software For Shop Drawings Building information modeling (bim) with. This guide will help you to tailor. Shop drawings software with integrated bim. Plus, it includes beautiful textures for flooring, countertops,. Autocad is one of the most popular and widely used millwork drafting software. Smartdraw helps you align and arrange everything perfectly. With so many options flooding the market, it’s important to find the best. Best Software For Shop Drawings.
From telefoninux.org
Shop Drawing Software The Ultimate Guide to Accuracy and Efficiency Best Software For Shop Drawings Sketchlist3d woodworking design software provides a full capability to create as detailed. How to create shop drawings in sketchlist 3d woodworking design software. Smartdraw helps you align and arrange everything perfectly. So, we’ve created a four. In this beginner's guide, we will explore the fundamentals of shop drawings, including their purpose, the differentiating factors between shop drawings and construction drawings,. Best Software For Shop Drawings.
From www.youtube.com
Online Shop Drawing Software YouTube Best Software For Shop Drawings Easy woodworking design is the best woodworking software for beginners. Smartdraw helps you align and arrange everything perfectly. In this beginner's guide, we will explore the fundamentals of shop drawings, including their purpose, the differentiating factors between shop drawings and construction drawings, the necessary tools and software for creating shop Plus, it includes beautiful textures for flooring, countertops,. Building information. Best Software For Shop Drawings.
From www.conceptdraw.com
Technical Drawing Software Technical Drawing Software ConceptDraw Best Software For Shop Drawings Building information modeling (bim) with. Sketchlist3d woodworking design software provides a full capability to create as detailed. Easy woodworking design is the best woodworking software for beginners. Shop drawings software with integrated bim. With so many options flooding the market, it’s important to find the best tool that fits your needs. One of the most common question’s we’re asked by. Best Software For Shop Drawings.
From www.topbimcompany.com
BIM Shop Drawings Accurate, Efficient, and ClashFree Best Software For Shop Drawings Shop drawings software with integrated bim. Sketchlist 3d is the most affordable hobby. Sketchlist3d woodworking design software provides a full capability to create as detailed. One of the most common question’s we’re asked by professionals is how to create professional quality shop drawings from your cabwriter model. With so many options flooding the market, it’s important to find the best. Best Software For Shop Drawings.
From www.cabwritersoftware.com
Creating Professional Shop Drawings Using SketchUp LayOut CabWriter Best Software For Shop Drawings So, we’ve created a four. Buy idecad structural » bim for shop drawings. How to create shop drawings in sketchlist 3d woodworking design software. This guide will help you to tailor. Shop drawings software with integrated bim. Building information modeling (bim) with. You can quickly add colors and labels to designate areas in your store. Easy woodworking design is the. Best Software For Shop Drawings.
From www.united-bim.com
4 Tips & Techniques to Create Shop Drawings with Revit Best Software For Shop Drawings How to create shop drawings in sketchlist 3d woodworking design software. Sketchlist3d woodworking design software provides a full capability to create as detailed. Shop drawings software with integrated bim. This guide will help you to tailor. You can quickly add colors and labels to designate areas in your store. Buy idecad structural » bim for shop drawings. So, we’ve created. Best Software For Shop Drawings.
From sketchlist.com
Create Shop Drawings in SketchList 3D Woodworking Design Software Best Software For Shop Drawings Sketchlist 3d is the most affordable hobby. In this beginner's guide, we will explore the fundamentals of shop drawings, including their purpose, the differentiating factors between shop drawings and construction drawings, the necessary tools and software for creating shop Autocad is one of the most popular and widely used millwork drafting software. Sketchlist3d woodworking design software provides a full capability. Best Software For Shop Drawings.
From www.united-bim.com
4 Tips & Techniques to Create Shop Drawings with Revit Best Software For Shop Drawings Sketchlist3d woodworking design software provides a full capability to create as detailed. So, we’ve created a four. Easy woodworking design is the best woodworking software for beginners. Building information modeling (bim) with. How to create shop drawings in sketchlist 3d woodworking design software. Autocad is one of the most popular and widely used millwork drafting software. Shop drawings software with. Best Software For Shop Drawings.
From www.craftsmenunited.com
Shop Drawings CraftsmenUnited Best Software For Shop Drawings Plus, it includes beautiful textures for flooring, countertops,. Sketchlist3d woodworking design software provides a full capability to create as detailed. This guide will help you to tailor. Smartdraw helps you align and arrange everything perfectly. Sketchlist 3d is the most affordable hobby. In this beginner's guide, we will explore the fundamentals of shop drawings, including their purpose, the differentiating factors. Best Software For Shop Drawings.
From bimexeng.com
Shop Drawings Services BIMEX Engineers Best Software For Shop Drawings Sketchlist 3d is the most affordable hobby. In this beginner's guide, we will explore the fundamentals of shop drawings, including their purpose, the differentiating factors between shop drawings and construction drawings, the necessary tools and software for creating shop One of the most common question’s we’re asked by professionals is how to create professional quality shop drawings from your cabwriter. Best Software For Shop Drawings.
From www.youtube.com
How to Efficiently Create Accurate Shop Drawings in Revit® YouTube Best Software For Shop Drawings Buy idecad structural » bim for shop drawings. This guide will help you to tailor. One of the most common question’s we’re asked by professionals is how to create professional quality shop drawings from your cabwriter model. Shop drawings software with integrated bim. Building information modeling (bim) with. In this beginner's guide, we will explore the fundamentals of shop drawings,. Best Software For Shop Drawings.
From paintingvalley.com
Shop Drawing at Explore collection of Shop Drawing Best Software For Shop Drawings Buy idecad structural » bim for shop drawings. Easy woodworking design is the best woodworking software for beginners. One of the most common question’s we’re asked by professionals is how to create professional quality shop drawings from your cabwriter model. Sketchlist3d woodworking design software provides a full capability to create as detailed. This guide will help you to tailor. Building. Best Software For Shop Drawings.
From www.youtube.com
Automatic dimensions for shop drawings in Revit plugin YouTube Best Software For Shop Drawings This guide will help you to tailor. Easy woodworking design is the best woodworking software for beginners. Buy idecad structural » bim for shop drawings. With so many options flooding the market, it’s important to find the best tool that fits your needs. Autocad is one of the most popular and widely used millwork drafting software. One of the most. Best Software For Shop Drawings.
From designandcad.blogspot.com
As Built Drawings Shop Drawings Best Software For Shop Drawings Buy idecad structural » bim for shop drawings. Sketchlist 3d is the most affordable hobby. Autocad is one of the most popular and widely used millwork drafting software. Shop drawings software with integrated bim. Sketchlist3d woodworking design software provides a full capability to create as detailed. Plus, it includes beautiful textures for flooring, countertops,. You can quickly add colors and. Best Software For Shop Drawings.
From issuu.com
How to Use BIM 360 to Review and Approve Shop Drawings with Confidence Best Software For Shop Drawings Autocad is one of the most popular and widely used millwork drafting software. In this beginner's guide, we will explore the fundamentals of shop drawings, including their purpose, the differentiating factors between shop drawings and construction drawings, the necessary tools and software for creating shop Building information modeling (bim) with. Sketchlist3d woodworking design software provides a full capability to create. Best Software For Shop Drawings.
From agacad.com
Shop Drawings for Precast Concrete in Revit [WEBINAR] ARKANCE LITHUANIA Best Software For Shop Drawings You can quickly add colors and labels to designate areas in your store. Autocad is one of the most popular and widely used millwork drafting software. With so many options flooding the market, it’s important to find the best tool that fits your needs. Buy idecad structural » bim for shop drawings. Easy woodworking design is the best woodworking software. Best Software For Shop Drawings.
From cosmeretech.com
Shop Drawings vs AsBuilt Drawings! Best Software For Shop Drawings This guide will help you to tailor. Buy idecad structural » bim for shop drawings. Building information modeling (bim) with. In this beginner's guide, we will explore the fundamentals of shop drawings, including their purpose, the differentiating factors between shop drawings and construction drawings, the necessary tools and software for creating shop Sketchlist 3d is the most affordable hobby. Easy. Best Software For Shop Drawings.
From www.21-draw.com
11 Best Digital Art Software to Use in 2023 Best Software For Shop Drawings In this beginner's guide, we will explore the fundamentals of shop drawings, including their purpose, the differentiating factors between shop drawings and construction drawings, the necessary tools and software for creating shop Plus, it includes beautiful textures for flooring, countertops,. One of the most common question’s we’re asked by professionals is how to create professional quality shop drawings from your. Best Software For Shop Drawings.
From assegram.weebly.com
Best free software for house electrical drawings assegram Best Software For Shop Drawings How to create shop drawings in sketchlist 3d woodworking design software. Autocad is one of the most popular and widely used millwork drafting software. With so many options flooding the market, it’s important to find the best tool that fits your needs. Sketchlist3d woodworking design software provides a full capability to create as detailed. Easy woodworking design is the best. Best Software For Shop Drawings.
From cabwritersoftware.com
Creating Professional Shop Drawings Using SketchUp LayOut CabWriter Best Software For Shop Drawings Smartdraw helps you align and arrange everything perfectly. Buy idecad structural » bim for shop drawings. You can quickly add colors and labels to designate areas in your store. In this beginner's guide, we will explore the fundamentals of shop drawings, including their purpose, the differentiating factors between shop drawings and construction drawings, the necessary tools and software for creating. Best Software For Shop Drawings.
From financesonline.com
20 Best Drawing Software for 2024 Best Software For Shop Drawings In this beginner's guide, we will explore the fundamentals of shop drawings, including their purpose, the differentiating factors between shop drawings and construction drawings, the necessary tools and software for creating shop Easy woodworking design is the best woodworking software for beginners. With so many options flooding the market, it’s important to find the best tool that fits your needs.. Best Software For Shop Drawings.
From www.woodweb.com
Software to Produce Shop Drawings Best Software For Shop Drawings With so many options flooding the market, it’s important to find the best tool that fits your needs. Building information modeling (bim) with. This guide will help you to tailor. Sketchlist3d woodworking design software provides a full capability to create as detailed. Autocad is one of the most popular and widely used millwork drafting software. In this beginner's guide, we. Best Software For Shop Drawings.
From superiorshopdrawings.com
Creating Quality Shop Drawings Superior Shop Drawings Best Software For Shop Drawings Autocad is one of the most popular and widely used millwork drafting software. Easy woodworking design is the best woodworking software for beginners. Buy idecad structural » bim for shop drawings. Sketchlist 3d is the most affordable hobby. Plus, it includes beautiful textures for flooring, countertops,. How to create shop drawings in sketchlist 3d woodworking design software. One of the. Best Software For Shop Drawings.
From www.youtube.com
Shop Drawings and Rebar Schedules in Autodesk Revit 2015 YouTube Best Software For Shop Drawings Easy woodworking design is the best woodworking software for beginners. Smartdraw helps you align and arrange everything perfectly. Autocad is one of the most popular and widely used millwork drafting software. Shop drawings software with integrated bim. Sketchlist3d woodworking design software provides a full capability to create as detailed. With so many options flooding the market, it’s important to find. Best Software For Shop Drawings.