American Iron Steel Requirements . The guidance addresses the types of projects that must comply with the ais requirement, the types of products covered by the ais. The american iron and steel (ais) provision requires assistance recipients to use iron and steel products that are produced in the united states for the. Unlike past programs, mechanical and electrical items are primarily exempt from this. ́ buy american act ́ buy america. There are three primary ”buy america” requirements pertaining to iron and steel products in federal statute. The american iron and steel (ais) provision requires clean water state revolving fund (cwsrf) and drinking water state revolving fund. All iron and steel products (rebar, castings, pipe, etc.) in your project must be manufactured in the united states.
from www.steel.org
The american iron and steel (ais) provision requires assistance recipients to use iron and steel products that are produced in the united states for the. The guidance addresses the types of projects that must comply with the ais requirement, the types of products covered by the ais. There are three primary ”buy america” requirements pertaining to iron and steel products in federal statute. All iron and steel products (rebar, castings, pipe, etc.) in your project must be manufactured in the united states. Unlike past programs, mechanical and electrical items are primarily exempt from this. ́ buy american act ́ buy america. The american iron and steel (ais) provision requires clean water state revolving fund (cwsrf) and drinking water state revolving fund.
About AISI American Iron and Steel Institute
American Iron Steel Requirements All iron and steel products (rebar, castings, pipe, etc.) in your project must be manufactured in the united states. The american iron and steel (ais) provision requires clean water state revolving fund (cwsrf) and drinking water state revolving fund. The guidance addresses the types of projects that must comply with the ais requirement, the types of products covered by the ais. ́ buy american act ́ buy america. The american iron and steel (ais) provision requires assistance recipients to use iron and steel products that are produced in the united states for the. There are three primary ”buy america” requirements pertaining to iron and steel products in federal statute. All iron and steel products (rebar, castings, pipe, etc.) in your project must be manufactured in the united states. Unlike past programs, mechanical and electrical items are primarily exempt from this.
From www.goodreads.com
The Picture Story of Steel by American Iron & Steel Institute Goodreads American Iron Steel Requirements All iron and steel products (rebar, castings, pipe, etc.) in your project must be manufactured in the united states. ́ buy american act ́ buy america. Unlike past programs, mechanical and electrical items are primarily exempt from this. The guidance addresses the types of projects that must comply with the ais requirement, the types of products covered by the ais.. American Iron Steel Requirements.
From www.steel.org
About AISI American Iron and Steel Institute American Iron Steel Requirements Unlike past programs, mechanical and electrical items are primarily exempt from this. The american iron and steel (ais) provision requires assistance recipients to use iron and steel products that are produced in the united states for the. There are three primary ”buy america” requirements pertaining to iron and steel products in federal statute. The american iron and steel (ais) provision. American Iron Steel Requirements.
From www.yidecasting.com
ASTM A352 Standard Specification for Carbon Steel Castings Yide American Iron Steel Requirements The guidance addresses the types of projects that must comply with the ais requirement, the types of products covered by the ais. Unlike past programs, mechanical and electrical items are primarily exempt from this. The american iron and steel (ais) provision requires clean water state revolving fund (cwsrf) and drinking water state revolving fund. The american iron and steel (ais). American Iron Steel Requirements.
From www.templateroller.com
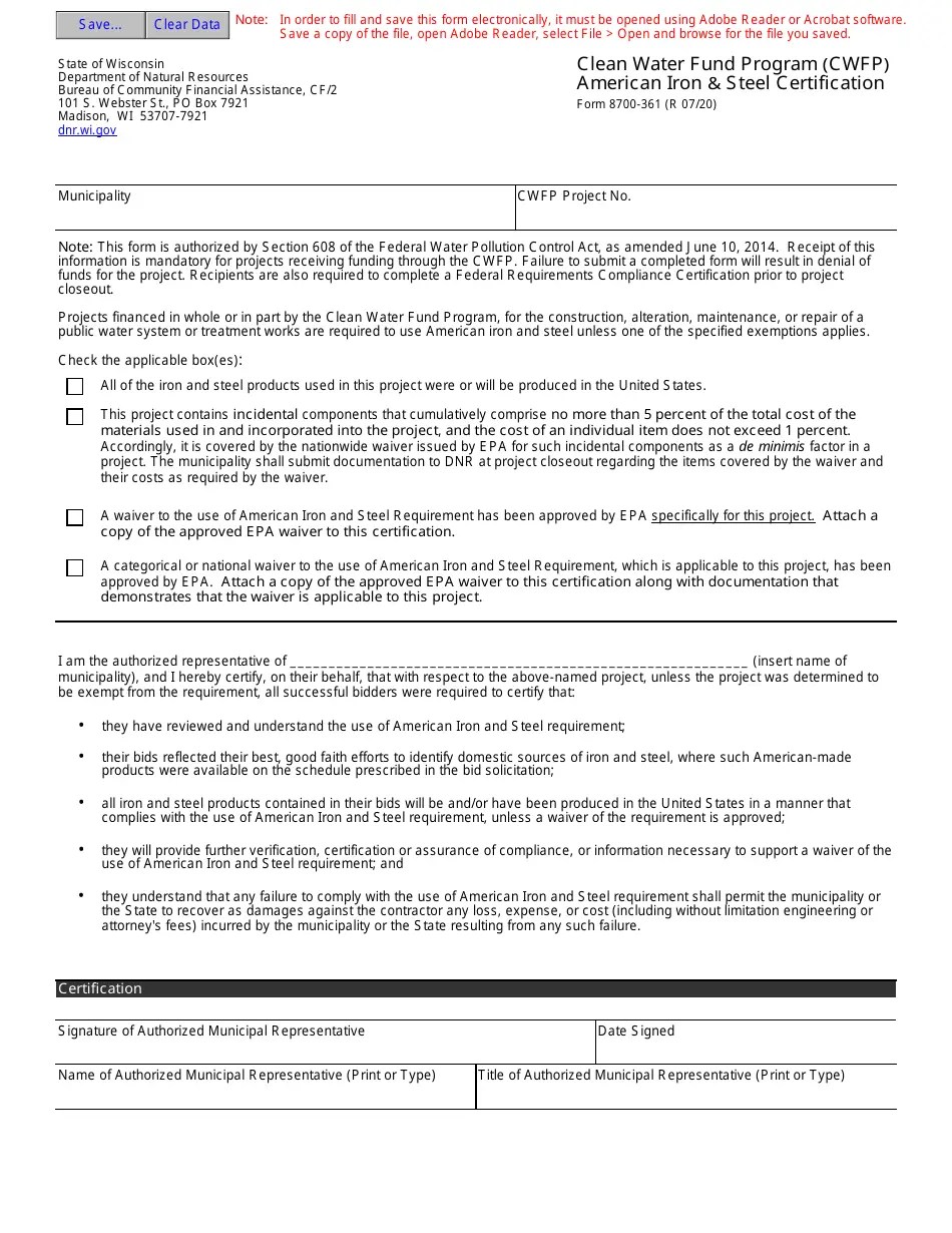
Form 8700361 Fill Out, Sign Online and Download Fillable PDF American Iron Steel Requirements All iron and steel products (rebar, castings, pipe, etc.) in your project must be manufactured in the united states. The american iron and steel (ais) provision requires assistance recipients to use iron and steel products that are produced in the united states for the. The guidance addresses the types of projects that must comply with the ais requirement, the types. American Iron Steel Requirements.
From www.metalsupermarkets.co.uk
What Are The Different Types of Steel & Steel Grades? Metal American Iron Steel Requirements ́ buy american act ́ buy america. All iron and steel products (rebar, castings, pipe, etc.) in your project must be manufactured in the united states. The american iron and steel (ais) provision requires clean water state revolving fund (cwsrf) and drinking water state revolving fund. The guidance addresses the types of projects that must comply with the ais requirement,. American Iron Steel Requirements.
From betweenthelicks.com
American Iron and Steel Institute home blog American Iron Steel Requirements ́ buy american act ́ buy america. The guidance addresses the types of projects that must comply with the ais requirement, the types of products covered by the ais. There are three primary ”buy america” requirements pertaining to iron and steel products in federal statute. The american iron and steel (ais) provision requires clean water state revolving fund (cwsrf) and. American Iron Steel Requirements.
From www.allamericanironworks.com
ALL AMERICAN IRON WORKS Home American Iron Steel Requirements The guidance addresses the types of projects that must comply with the ais requirement, the types of products covered by the ais. ́ buy american act ́ buy america. There are three primary ”buy america” requirements pertaining to iron and steel products in federal statute. The american iron and steel (ais) provision requires assistance recipients to use iron and steel. American Iron Steel Requirements.
From www.walmart.com
Standard Steel Construction A Manual for Architects, Engineers and American Iron Steel Requirements The american iron and steel (ais) provision requires clean water state revolving fund (cwsrf) and drinking water state revolving fund. ́ buy american act ́ buy america. All iron and steel products (rebar, castings, pipe, etc.) in your project must be manufactured in the united states. There are three primary ”buy america” requirements pertaining to iron and steel products in. American Iron Steel Requirements.
From buildsteel.org
New AISI GHG Emission Guidelines Provide Consistent Steel Production American Iron Steel Requirements The guidance addresses the types of projects that must comply with the ais requirement, the types of products covered by the ais. All iron and steel products (rebar, castings, pipe, etc.) in your project must be manufactured in the united states. Unlike past programs, mechanical and electrical items are primarily exempt from this. There are three primary ”buy america” requirements. American Iron Steel Requirements.
From support.boshart.com
Does this product meet AIS (American Iron and Steel) requirements? American Iron Steel Requirements Unlike past programs, mechanical and electrical items are primarily exempt from this. The american iron and steel (ais) provision requires clean water state revolving fund (cwsrf) and drinking water state revolving fund. The american iron and steel (ais) provision requires assistance recipients to use iron and steel products that are produced in the united states for the. ́ buy american. American Iron Steel Requirements.
From www.thefabricator.com
Metallurgy Matters Carbon content, steel classifications, and alloy American Iron Steel Requirements The guidance addresses the types of projects that must comply with the ais requirement, the types of products covered by the ais. All iron and steel products (rebar, castings, pipe, etc.) in your project must be manufactured in the united states. Unlike past programs, mechanical and electrical items are primarily exempt from this. There are three primary ”buy america” requirements. American Iron Steel Requirements.
From lawtonstandard.com
The Lawton Standard Co. announces that American Iron & Alloys joins the American Iron Steel Requirements The guidance addresses the types of projects that must comply with the ais requirement, the types of products covered by the ais. There are three primary ”buy america” requirements pertaining to iron and steel products in federal statute. The american iron and steel (ais) provision requires clean water state revolving fund (cwsrf) and drinking water state revolving fund. Unlike past. American Iron Steel Requirements.
From www.bol.com
American Iron and Steel Manufacturing Company, Lebanon American Iron American Iron Steel Requirements The guidance addresses the types of projects that must comply with the ais requirement, the types of products covered by the ais. ́ buy american act ́ buy america. All iron and steel products (rebar, castings, pipe, etc.) in your project must be manufactured in the united states. The american iron and steel (ais) provision requires assistance recipients to use. American Iron Steel Requirements.
From www.maxsteelthai.com
Steel Industrial Standards Max Steel l References And Resources American Iron Steel Requirements The american iron and steel (ais) provision requires assistance recipients to use iron and steel products that are produced in the united states for the. The american iron and steel (ais) provision requires clean water state revolving fund (cwsrf) and drinking water state revolving fund. All iron and steel products (rebar, castings, pipe, etc.) in your project must be manufactured. American Iron Steel Requirements.
From support.boshart.com
Does this product meet AIS (American Iron and Steel) requirements? American Iron Steel Requirements All iron and steel products (rebar, castings, pipe, etc.) in your project must be manufactured in the united states. The american iron and steel (ais) provision requires clean water state revolving fund (cwsrf) and drinking water state revolving fund. ́ buy american act ́ buy america. The american iron and steel (ais) provision requires assistance recipients to use iron and. American Iron Steel Requirements.
From owlcation.com
Cable Bracing for Steel Buildings Owlcation American Iron Steel Requirements ́ buy american act ́ buy america. Unlike past programs, mechanical and electrical items are primarily exempt from this. There are three primary ”buy america” requirements pertaining to iron and steel products in federal statute. The american iron and steel (ais) provision requires assistance recipients to use iron and steel products that are produced in the united states for the.. American Iron Steel Requirements.
From www.templateroller.com
Form 8700356 Fill Out, Sign Online and Download Fillable PDF American Iron Steel Requirements The american iron and steel (ais) provision requires assistance recipients to use iron and steel products that are produced in the united states for the. The guidance addresses the types of projects that must comply with the ais requirement, the types of products covered by the ais. The american iron and steel (ais) provision requires clean water state revolving fund. American Iron Steel Requirements.
From support.boshart.com
Does this product meet AIS (American Iron and Steel) requirements? American Iron Steel Requirements ́ buy american act ́ buy america. Unlike past programs, mechanical and electrical items are primarily exempt from this. All iron and steel products (rebar, castings, pipe, etc.) in your project must be manufactured in the united states. The guidance addresses the types of projects that must comply with the ais requirement, the types of products covered by the ais.. American Iron Steel Requirements.
From www.steel.org
SteelBriefs American Iron and Steel Institute American Iron Steel Requirements The guidance addresses the types of projects that must comply with the ais requirement, the types of products covered by the ais. ́ buy american act ́ buy america. The american iron and steel (ais) provision requires clean water state revolving fund (cwsrf) and drinking water state revolving fund. There are three primary ”buy america” requirements pertaining to iron and. American Iron Steel Requirements.
From www.academia.edu
(PDF) General technical delivery requirements for steel and iron American Iron Steel Requirements There are three primary ”buy america” requirements pertaining to iron and steel products in federal statute. The american iron and steel (ais) provision requires clean water state revolving fund (cwsrf) and drinking water state revolving fund. The american iron and steel (ais) provision requires assistance recipients to use iron and steel products that are produced in the united states for. American Iron Steel Requirements.
From www.chegg.com
Solved There are 500kg of steel with code A1 of the American American Iron Steel Requirements All iron and steel products (rebar, castings, pipe, etc.) in your project must be manufactured in the united states. The guidance addresses the types of projects that must comply with the ais requirement, the types of products covered by the ais. The american iron and steel (ais) provision requires assistance recipients to use iron and steel products that are produced. American Iron Steel Requirements.
From www.iron-foundry.com
ASTM A48 Standard for Gray Iron Castings American Iron Steel Requirements There are three primary ”buy america” requirements pertaining to iron and steel products in federal statute. The american iron and steel (ais) provision requires assistance recipients to use iron and steel products that are produced in the united states for the. The guidance addresses the types of projects that must comply with the ais requirement, the types of products covered. American Iron Steel Requirements.
From www.arkinetics.com
American Iron and Metal American Iron Steel Requirements The american iron and steel (ais) provision requires assistance recipients to use iron and steel products that are produced in the united states for the. There are three primary ”buy america” requirements pertaining to iron and steel products in federal statute. The guidance addresses the types of projects that must comply with the ais requirement, the types of products covered. American Iron Steel Requirements.
From whatispiping.com
Types of Steel Grades of Steel What Is Piping American Iron Steel Requirements The american iron and steel (ais) provision requires assistance recipients to use iron and steel products that are produced in the united states for the. The guidance addresses the types of projects that must comply with the ais requirement, the types of products covered by the ais. The american iron and steel (ais) provision requires clean water state revolving fund. American Iron Steel Requirements.
From www.youtube.com
American Iron & Steel and the Strike of 1902 by Jim Polczynski YouTube American Iron Steel Requirements The american iron and steel (ais) provision requires assistance recipients to use iron and steel products that are produced in the united states for the. Unlike past programs, mechanical and electrical items are primarily exempt from this. There are three primary ”buy america” requirements pertaining to iron and steel products in federal statute. The american iron and steel (ais) provision. American Iron Steel Requirements.
From commonwealthengineers.com
New American Iron and Steel (AIS) Requirements & How They Affect Your American Iron Steel Requirements Unlike past programs, mechanical and electrical items are primarily exempt from this. The american iron and steel (ais) provision requires assistance recipients to use iron and steel products that are produced in the united states for the. The american iron and steel (ais) provision requires clean water state revolving fund (cwsrf) and drinking water state revolving fund. All iron and. American Iron Steel Requirements.
From www.steel-alloy.com
Steel & Alloy Specialties, Wichita Falls, TX Metal Special Order American Iron Steel Requirements The guidance addresses the types of projects that must comply with the ais requirement, the types of products covered by the ais. Unlike past programs, mechanical and electrical items are primarily exempt from this. The american iron and steel (ais) provision requires assistance recipients to use iron and steel products that are produced in the united states for the. ́. American Iron Steel Requirements.
From www.steel.org
Steel Production American Iron and Steel Institute American Iron Steel Requirements All iron and steel products (rebar, castings, pipe, etc.) in your project must be manufactured in the united states. The guidance addresses the types of projects that must comply with the ais requirement, the types of products covered by the ais. There are three primary ”buy america” requirements pertaining to iron and steel products in federal statute. The american iron. American Iron Steel Requirements.
From brokeasshome.com
aisc steel tables American Iron Steel Requirements ́ buy american act ́ buy america. The guidance addresses the types of projects that must comply with the ais requirement, the types of products covered by the ais. Unlike past programs, mechanical and electrical items are primarily exempt from this. There are three primary ”buy america” requirements pertaining to iron and steel products in federal statute. All iron and. American Iron Steel Requirements.
From www.steel.org
The Economic Impact of the American Iron and Steel Industry American American Iron Steel Requirements There are three primary ”buy america” requirements pertaining to iron and steel products in federal statute. Unlike past programs, mechanical and electrical items are primarily exempt from this. The guidance addresses the types of projects that must comply with the ais requirement, the types of products covered by the ais. ́ buy american act ́ buy america. The american iron. American Iron Steel Requirements.
From www.industrytransition.org
To decarbonize U.S. industry, look to federal and statelevel American Iron Steel Requirements ́ buy american act ́ buy america. The american iron and steel (ais) provision requires clean water state revolving fund (cwsrf) and drinking water state revolving fund. Unlike past programs, mechanical and electrical items are primarily exempt from this. The american iron and steel (ais) provision requires assistance recipients to use iron and steel products that are produced in the. American Iron Steel Requirements.
From www.bolerium.com
America's Steel Capacity What It Is, What It Does American Iron Steel Requirements The american iron and steel (ais) provision requires assistance recipients to use iron and steel products that are produced in the united states for the. ́ buy american act ́ buy america. All iron and steel products (rebar, castings, pipe, etc.) in your project must be manufactured in the united states. The guidance addresses the types of projects that must. American Iron Steel Requirements.
From dokumen.tips
(PDF) SURVEY OF IRON AND STEEL PRODUCTION AND REQUIREMENTS DOKUMEN.TIPS American Iron Steel Requirements Unlike past programs, mechanical and electrical items are primarily exempt from this. The american iron and steel (ais) provision requires clean water state revolving fund (cwsrf) and drinking water state revolving fund. The american iron and steel (ais) provision requires assistance recipients to use iron and steel products that are produced in the united states for the. All iron and. American Iron Steel Requirements.
From yardandgardenguru.com
Angle Steel Sizes Chart American Iron Steel Requirements There are three primary ”buy america” requirements pertaining to iron and steel products in federal statute. Unlike past programs, mechanical and electrical items are primarily exempt from this. ́ buy american act ́ buy america. All iron and steel products (rebar, castings, pipe, etc.) in your project must be manufactured in the united states. The american iron and steel (ais). American Iron Steel Requirements.