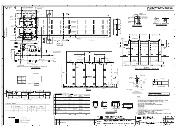
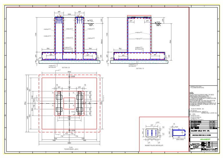
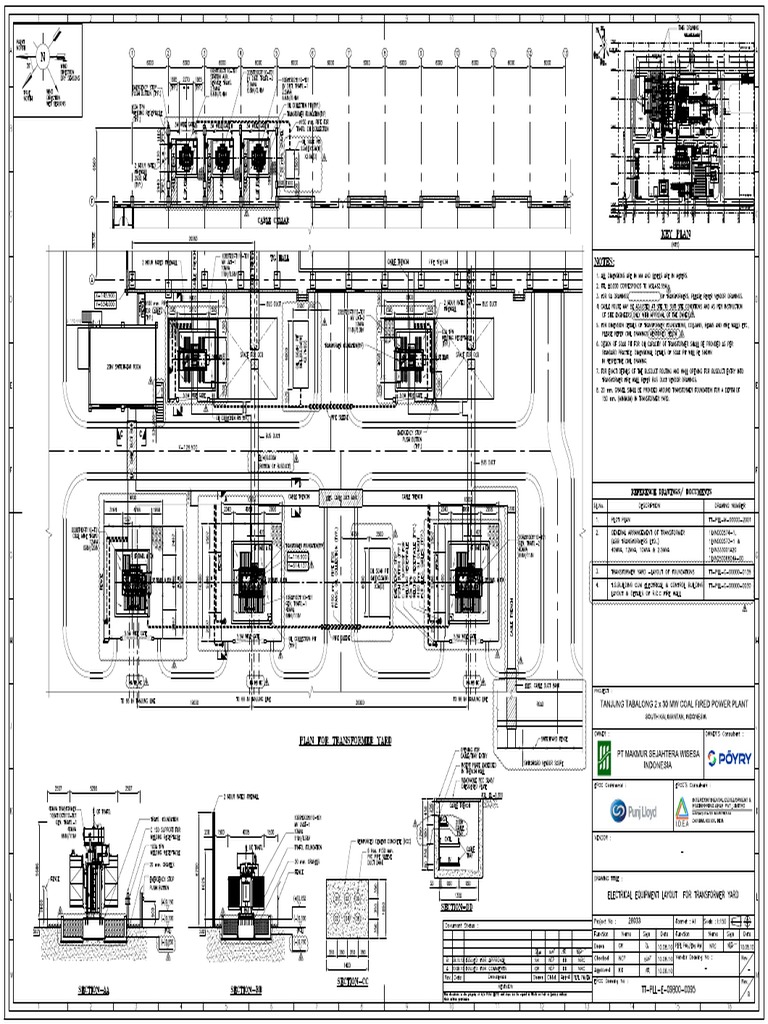
Transformer Foundation Drawing Pdf . Download cad block in dwg. The status of revisions, as well as the dates of. The customer’s contractor is responsible for the excavation to install transformer foundation and for backfill afterwards. The excavation should be at. This drawing shall be referred for structural details only. Contract drawings for a power transformer (pdf) 1. The document contains a technical drawing with. Covers the general design considerations, documents and drawings related to designing a substation. The purpose of these drawings is to ensure that transformers being planned for manufacture meet the guaranteed technical particulars as per order,. — starting with the analysis of the foundation pit design, the support structure of foundation pit was designed and checked combined. For 132kv la foundation bolt projection. Layout shall conform to approved transformer drawing.
from www.archonengineering.com
For 132kv la foundation bolt projection. Contract drawings for a power transformer (pdf) 1. The document contains a technical drawing with. The purpose of these drawings is to ensure that transformers being planned for manufacture meet the guaranteed technical particulars as per order,. Download cad block in dwg. The customer’s contractor is responsible for the excavation to install transformer foundation and for backfill afterwards. The status of revisions, as well as the dates of. The excavation should be at. Layout shall conform to approved transformer drawing. This drawing shall be referred for structural details only.
Support Foundations — Archon Engineering, PC
Transformer Foundation Drawing Pdf Covers the general design considerations, documents and drawings related to designing a substation. The excavation should be at. Layout shall conform to approved transformer drawing. The customer’s contractor is responsible for the excavation to install transformer foundation and for backfill afterwards. The status of revisions, as well as the dates of. The purpose of these drawings is to ensure that transformers being planned for manufacture meet the guaranteed technical particulars as per order,. Covers the general design considerations, documents and drawings related to designing a substation. — starting with the analysis of the foundation pit design, the support structure of foundation pit was designed and checked combined. Download cad block in dwg. For 132kv la foundation bolt projection. This drawing shall be referred for structural details only. The document contains a technical drawing with. Contract drawings for a power transformer (pdf) 1.
From www.dreamstime.com
Main Tank Power Transformer Installation, the High Voltage Takeoff Transformer Foundation Drawing Pdf Layout shall conform to approved transformer drawing. The purpose of these drawings is to ensure that transformers being planned for manufacture meet the guaranteed technical particulars as per order,. Contract drawings for a power transformer (pdf) 1. Download cad block in dwg. The customer’s contractor is responsible for the excavation to install transformer foundation and for backfill afterwards. The document. Transformer Foundation Drawing Pdf.
From www.youtube.com
Drawing Reading 03 Transformer Foundation YouTube Transformer Foundation Drawing Pdf Contract drawings for a power transformer (pdf) 1. This drawing shall be referred for structural details only. Covers the general design considerations, documents and drawings related to designing a substation. The status of revisions, as well as the dates of. The excavation should be at. — starting with the analysis of the foundation pit design, the support structure of foundation. Transformer Foundation Drawing Pdf.
From in.pinterest.com
Transformer one family house detailed architecture project dwg file Transformer Foundation Drawing Pdf This drawing shall be referred for structural details only. Download cad block in dwg. The excavation should be at. For 132kv la foundation bolt projection. The customer’s contractor is responsible for the excavation to install transformer foundation and for backfill afterwards. Covers the general design considerations, documents and drawings related to designing a substation. — starting with the analysis of. Transformer Foundation Drawing Pdf.
From www.satconindia.net
Civil Design and Drawings for Substations Transmission Line Tower Transformer Foundation Drawing Pdf Layout shall conform to approved transformer drawing. The purpose of these drawings is to ensure that transformers being planned for manufacture meet the guaranteed technical particulars as per order,. The status of revisions, as well as the dates of. For 132kv la foundation bolt projection. The customer’s contractor is responsible for the excavation to install transformer foundation and for backfill. Transformer Foundation Drawing Pdf.
From www.researchgate.net
(PDF) Types and Construction of Power Transformers Transformer Foundation Drawing Pdf This drawing shall be referred for structural details only. — starting with the analysis of the foundation pit design, the support structure of foundation pit was designed and checked combined. Covers the general design considerations, documents and drawings related to designing a substation. For 132kv la foundation bolt projection. The purpose of these drawings is to ensure that transformers being. Transformer Foundation Drawing Pdf.
From cr4.globalspec.com
Transformer Foundation Drawing CR4 Discussion Thread Transformer Foundation Drawing Pdf Download cad block in dwg. The customer’s contractor is responsible for the excavation to install transformer foundation and for backfill afterwards. Contract drawings for a power transformer (pdf) 1. The document contains a technical drawing with. The excavation should be at. This drawing shall be referred for structural details only. Layout shall conform to approved transformer drawing. Covers the general. Transformer Foundation Drawing Pdf.
From www.dreamstime.com
View of Power Transformer Foundation and Control Building. Stock Image Transformer Foundation Drawing Pdf For 132kv la foundation bolt projection. Download cad block in dwg. Contract drawings for a power transformer (pdf) 1. The document contains a technical drawing with. The purpose of these drawings is to ensure that transformers being planned for manufacture meet the guaranteed technical particulars as per order,. The excavation should be at. This drawing shall be referred for structural. Transformer Foundation Drawing Pdf.
From cadbull.com
Foundation transformer plan detail dwg file Cadbull Transformer Foundation Drawing Pdf The status of revisions, as well as the dates of. Covers the general design considerations, documents and drawings related to designing a substation. Download cad block in dwg. For 132kv la foundation bolt projection. The customer’s contractor is responsible for the excavation to install transformer foundation and for backfill afterwards. This drawing shall be referred for structural details only. The. Transformer Foundation Drawing Pdf.
From www.scribd.com
Transformer Foundation Layout Details PDF Transformer Foundation Drawing Pdf The excavation should be at. For 132kv la foundation bolt projection. — starting with the analysis of the foundation pit design, the support structure of foundation pit was designed and checked combined. Download cad block in dwg. The document contains a technical drawing with. Covers the general design considerations, documents and drawings related to designing a substation. The purpose of. Transformer Foundation Drawing Pdf.
From satcon.myinstamojo.com
Foundation Drawings Transformer Foundation Drawing Pdf For 132kv la foundation bolt projection. — starting with the analysis of the foundation pit design, the support structure of foundation pit was designed and checked combined. The status of revisions, as well as the dates of. This drawing shall be referred for structural details only. Download cad block in dwg. The purpose of these drawings is to ensure that. Transformer Foundation Drawing Pdf.
From www.freepik.com
Premium Photo Construction of Substation Main tank power transformer Transformer Foundation Drawing Pdf This drawing shall be referred for structural details only. Contract drawings for a power transformer (pdf) 1. The document contains a technical drawing with. Download cad block in dwg. — starting with the analysis of the foundation pit design, the support structure of foundation pit was designed and checked combined. Layout shall conform to approved transformer drawing. For 132kv la. Transformer Foundation Drawing Pdf.
From designscad.com
Transformer DWG Detail for AutoCAD • Designs CAD Transformer Foundation Drawing Pdf The purpose of these drawings is to ensure that transformers being planned for manufacture meet the guaranteed technical particulars as per order,. This drawing shall be referred for structural details only. Download cad block in dwg. Layout shall conform to approved transformer drawing. Contract drawings for a power transformer (pdf) 1. For 132kv la foundation bolt projection. — starting with. Transformer Foundation Drawing Pdf.
From mungfali.com
A Section Detail Of Transformer Layout And Foundation Of Control Room 53A Transformer Foundation Drawing Pdf This drawing shall be referred for structural details only. Contract drawings for a power transformer (pdf) 1. The document contains a technical drawing with. Covers the general design considerations, documents and drawings related to designing a substation. For 132kv la foundation bolt projection. — starting with the analysis of the foundation pit design, the support structure of foundation pit was. Transformer Foundation Drawing Pdf.
From www.scribd.com
Revised Foundation For 315 Mva Transformer 28 10 09 Model PDF PDF Transformer Foundation Drawing Pdf This drawing shall be referred for structural details only. Download cad block in dwg. The customer’s contractor is responsible for the excavation to install transformer foundation and for backfill afterwards. For 132kv la foundation bolt projection. Covers the general design considerations, documents and drawings related to designing a substation. — starting with the analysis of the foundation pit design, the. Transformer Foundation Drawing Pdf.
From www.dreamstime.com
115kV 22kV Power Transformer Foundation with Fire Barrier and Control Transformer Foundation Drawing Pdf Covers the general design considerations, documents and drawings related to designing a substation. The excavation should be at. This drawing shall be referred for structural details only. Download cad block in dwg. The purpose of these drawings is to ensure that transformers being planned for manufacture meet the guaranteed technical particulars as per order,. The status of revisions, as well. Transformer Foundation Drawing Pdf.
From www.bibliocad.com
Power substation foundation details, 2 transformers (976.13 KB) Bibliocad Transformer Foundation Drawing Pdf Download cad block in dwg. The excavation should be at. The document contains a technical drawing with. This drawing shall be referred for structural details only. Layout shall conform to approved transformer drawing. The purpose of these drawings is to ensure that transformers being planned for manufacture meet the guaranteed technical particulars as per order,. Contract drawings for a power. Transformer Foundation Drawing Pdf.
From www.scribd.com
Structural Drawing of a Transformer Transformer Foundation Drawing Pdf Covers the general design considerations, documents and drawings related to designing a substation. The status of revisions, as well as the dates of. Contract drawings for a power transformer (pdf) 1. This drawing shall be referred for structural details only. The excavation should be at. The purpose of these drawings is to ensure that transformers being planned for manufacture meet. Transformer Foundation Drawing Pdf.
From www.dfliq.net
The Basics of Electrical Transformers Transformer Foundation Drawing Pdf For 132kv la foundation bolt projection. Download cad block in dwg. Covers the general design considerations, documents and drawings related to designing a substation. This drawing shall be referred for structural details only. The document contains a technical drawing with. The excavation should be at. The purpose of these drawings is to ensure that transformers being planned for manufacture meet. Transformer Foundation Drawing Pdf.
From www.scribd.com
Transformer Soak Pit Design Transformer Foundation Drawing Pdf Layout shall conform to approved transformer drawing. The customer’s contractor is responsible for the excavation to install transformer foundation and for backfill afterwards. Covers the general design considerations, documents and drawings related to designing a substation. Contract drawings for a power transformer (pdf) 1. Download cad block in dwg. The purpose of these drawings is to ensure that transformers being. Transformer Foundation Drawing Pdf.
From cadbull.com
Transformer pad mounting view with construction detail dwg file Cadbull Transformer Foundation Drawing Pdf — starting with the analysis of the foundation pit design, the support structure of foundation pit was designed and checked combined. The status of revisions, as well as the dates of. Contract drawings for a power transformer (pdf) 1. The document contains a technical drawing with. Download cad block in dwg. The customer’s contractor is responsible for the excavation to. Transformer Foundation Drawing Pdf.
From www.scribd.com
1.5MVA Transformer Foundation Layout 25.12.14 R4 4 PDF Composite Transformer Foundation Drawing Pdf — starting with the analysis of the foundation pit design, the support structure of foundation pit was designed and checked combined. Covers the general design considerations, documents and drawings related to designing a substation. The customer’s contractor is responsible for the excavation to install transformer foundation and for backfill afterwards. The status of revisions, as well as the dates of.. Transformer Foundation Drawing Pdf.
From www.bibliocad.com
Transformer foundation in AutoCAD CAD download (169.63 KB) Bibliocad Transformer Foundation Drawing Pdf Covers the general design considerations, documents and drawings related to designing a substation. This drawing shall be referred for structural details only. Contract drawings for a power transformer (pdf) 1. The status of revisions, as well as the dates of. The customer’s contractor is responsible for the excavation to install transformer foundation and for backfill afterwards. The excavation should be. Transformer Foundation Drawing Pdf.
From www.scribd.com
Sambalpur WTP Ss Transformer Foundation Drawing Model PDF Nature Transformer Foundation Drawing Pdf The customer’s contractor is responsible for the excavation to install transformer foundation and for backfill afterwards. The status of revisions, as well as the dates of. Layout shall conform to approved transformer drawing. The purpose of these drawings is to ensure that transformers being planned for manufacture meet the guaranteed technical particulars as per order,. Contract drawings for a power. Transformer Foundation Drawing Pdf.
From www.freepik.com
Premium Photo Transformer Installation, the high voltage takeoff Transformer Foundation Drawing Pdf Download cad block in dwg. The excavation should be at. Contract drawings for a power transformer (pdf) 1. — starting with the analysis of the foundation pit design, the support structure of foundation pit was designed and checked combined. The customer’s contractor is responsible for the excavation to install transformer foundation and for backfill afterwards. For 132kv la foundation bolt. Transformer Foundation Drawing Pdf.
From www.planmarketplace.com
Foundation Details V1】★ CAD Files, DWG files, Plans and Details Transformer Foundation Drawing Pdf Layout shall conform to approved transformer drawing. Contract drawings for a power transformer (pdf) 1. Covers the general design considerations, documents and drawings related to designing a substation. The purpose of these drawings is to ensure that transformers being planned for manufacture meet the guaranteed technical particulars as per order,. Download cad block in dwg. — starting with the analysis. Transformer Foundation Drawing Pdf.
From cadbull.com
CAD DWG drawing file of the transformer room elevation and section Transformer Foundation Drawing Pdf For 132kv la foundation bolt projection. The customer’s contractor is responsible for the excavation to install transformer foundation and for backfill afterwards. This drawing shall be referred for structural details only. The document contains a technical drawing with. The purpose of these drawings is to ensure that transformers being planned for manufacture meet the guaranteed technical particulars as per order,.. Transformer Foundation Drawing Pdf.
From cadbull.com
2D AutoCAD DWG drawing file of the transformer room elevation and Transformer Foundation Drawing Pdf The status of revisions, as well as the dates of. The excavation should be at. The purpose of these drawings is to ensure that transformers being planned for manufacture meet the guaranteed technical particulars as per order,. For 132kv la foundation bolt projection. Contract drawings for a power transformer (pdf) 1. Covers the general design considerations, documents and drawings related. Transformer Foundation Drawing Pdf.
From brainly.in
draw neat diagram of the foundation used for floor mounted transformer Transformer Foundation Drawing Pdf The document contains a technical drawing with. Download cad block in dwg. The purpose of these drawings is to ensure that transformers being planned for manufacture meet the guaranteed technical particulars as per order,. The customer’s contractor is responsible for the excavation to install transformer foundation and for backfill afterwards. The status of revisions, as well as the dates of.. Transformer Foundation Drawing Pdf.
From www.satconworld.com
Civil Design & Drawings for Power Transformer Oil pit SATCON in Transformer Foundation Drawing Pdf Download cad block in dwg. The document contains a technical drawing with. Layout shall conform to approved transformer drawing. The purpose of these drawings is to ensure that transformers being planned for manufacture meet the guaranteed technical particulars as per order,. This drawing shall be referred for structural details only. The customer’s contractor is responsible for the excavation to install. Transformer Foundation Drawing Pdf.
From guidelibrarydougherty.z19.web.core.windows.net
Distribution Transformer Design Pdf Transformer Foundation Drawing Pdf — starting with the analysis of the foundation pit design, the support structure of foundation pit was designed and checked combined. Covers the general design considerations, documents and drawings related to designing a substation. Contract drawings for a power transformer (pdf) 1. The excavation should be at. The document contains a technical drawing with. Layout shall conform to approved transformer. Transformer Foundation Drawing Pdf.
From www.archonengineering.com
Support Foundations — Archon Engineering, PC Transformer Foundation Drawing Pdf The customer’s contractor is responsible for the excavation to install transformer foundation and for backfill afterwards. Covers the general design considerations, documents and drawings related to designing a substation. Contract drawings for a power transformer (pdf) 1. The purpose of these drawings is to ensure that transformers being planned for manufacture meet the guaranteed technical particulars as per order,. This. Transformer Foundation Drawing Pdf.
From www.scotech-electrical.com
Power Transformer with Two Windings 20 Mva 110 Kv Transformer Foundation Drawing Pdf Layout shall conform to approved transformer drawing. The purpose of these drawings is to ensure that transformers being planned for manufacture meet the guaranteed technical particulars as per order,. Covers the general design considerations, documents and drawings related to designing a substation. The status of revisions, as well as the dates of. Download cad block in dwg. Contract drawings for. Transformer Foundation Drawing Pdf.
From www.freepik.com
Premium Photo Construction of 115kV22kV Substation power transformer Transformer Foundation Drawing Pdf The excavation should be at. For 132kv la foundation bolt projection. This drawing shall be referred for structural details only. Covers the general design considerations, documents and drawings related to designing a substation. Download cad block in dwg. The customer’s contractor is responsible for the excavation to install transformer foundation and for backfill afterwards. Contract drawings for a power transformer. Transformer Foundation Drawing Pdf.
From www.gsei.ca
Transformer Foundation and Cable Tray Supports Gairns Santos Transformer Foundation Drawing Pdf Layout shall conform to approved transformer drawing. For 132kv la foundation bolt projection. This drawing shall be referred for structural details only. The document contains a technical drawing with. Contract drawings for a power transformer (pdf) 1. — starting with the analysis of the foundation pit design, the support structure of foundation pit was designed and checked combined. The purpose. Transformer Foundation Drawing Pdf.
From www.freepik.com
Premium Photo Construction of 115kv22kv substation view of power Transformer Foundation Drawing Pdf The excavation should be at. Download cad block in dwg. This drawing shall be referred for structural details only. The customer’s contractor is responsible for the excavation to install transformer foundation and for backfill afterwards. The status of revisions, as well as the dates of. — starting with the analysis of the foundation pit design, the support structure of foundation. Transformer Foundation Drawing Pdf.