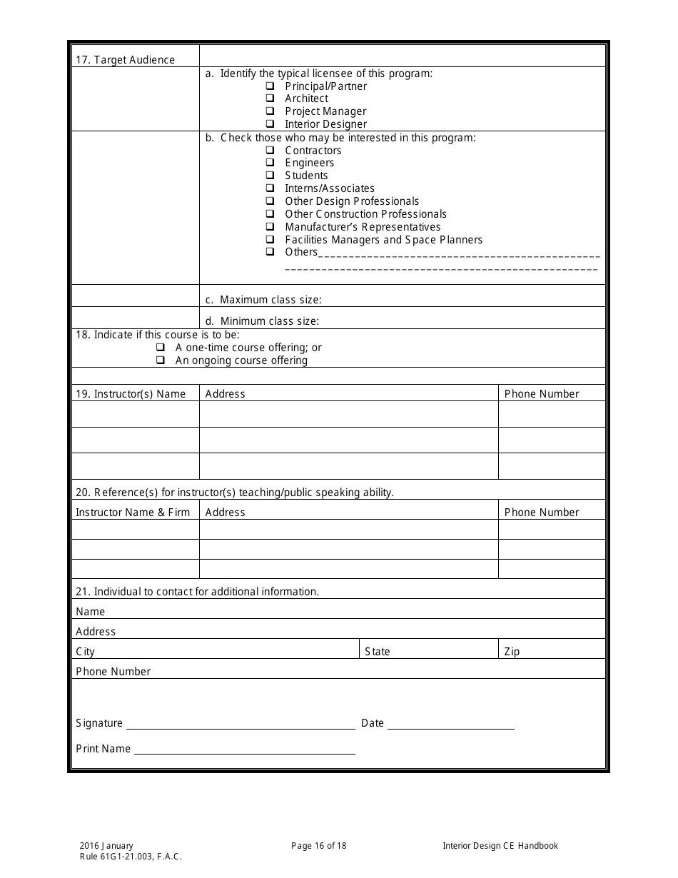
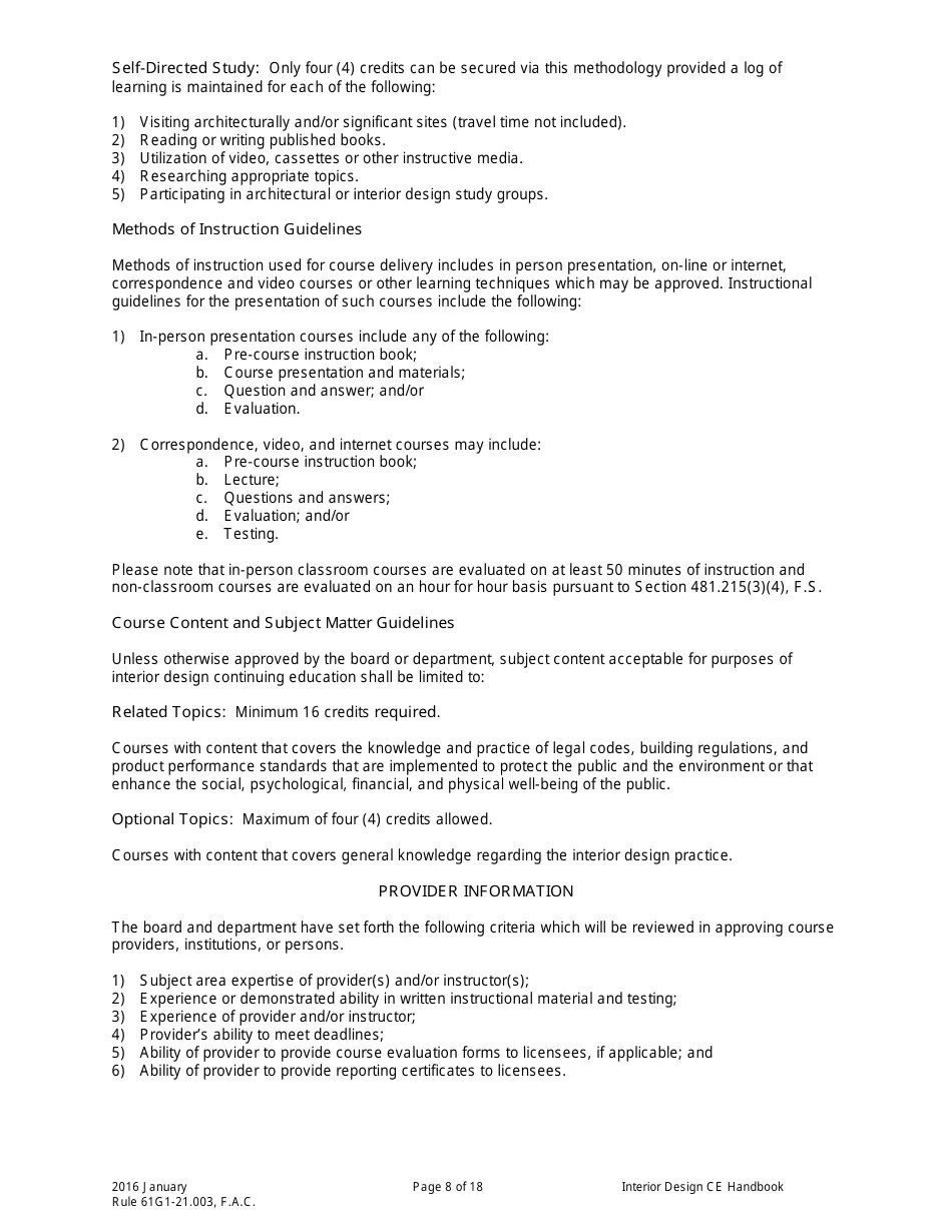
Florida Interior Design Continuing Education . Earn the continuing education credits you need for the renewal of your florida interior design or architecture license with our ceu bundles. Florida interior designers are required to complete 20 hours of continuing education every 2 years. We have online interior designer ce courses. The continuing education is due on february 28th of. Pass the residential interior designer exam (ride) on course completion to become a certified residential interior designer; Interior designers are required to complete 20 hours of continuing education (14 hours in health, safety, and welfare related courses, 2 hours in the florida. 4.5/5 (1,484) aia florida offers a variety of options to help fulfill continuing education requirements sanctioned by the state of florida as well as required for aia. 4.5/5 (1,484) Redvector is an approved provider of florida interior designer continuing education through the idcec and aia. Iida accepts all interior design continuing education council (idcec) approved courses.
from cabinet.matttroy.net
4.5/5 (1,484) The continuing education is due on february 28th of. Florida interior designers are required to complete 20 hours of continuing education every 2 years. aia florida offers a variety of options to help fulfill continuing education requirements sanctioned by the state of florida as well as required for aia. Iida accepts all interior design continuing education council (idcec) approved courses. Pass the residential interior designer exam (ride) on course completion to become a certified residential interior designer; Interior designers are required to complete 20 hours of continuing education (14 hours in health, safety, and welfare related courses, 2 hours in the florida. We have online interior designer ce courses. 4.5/5 (1,484) Redvector is an approved provider of florida interior designer continuing education through the idcec and aia.
Florida Interior Design Ceu Requirements Matttroy
Florida Interior Design Continuing Education Pass the residential interior designer exam (ride) on course completion to become a certified residential interior designer; 4.5/5 (1,484) Iida accepts all interior design continuing education council (idcec) approved courses. Redvector is an approved provider of florida interior designer continuing education through the idcec and aia. Pass the residential interior designer exam (ride) on course completion to become a certified residential interior designer; We have online interior designer ce courses. 4.5/5 (1,484) aia florida offers a variety of options to help fulfill continuing education requirements sanctioned by the state of florida as well as required for aia. The continuing education is due on february 28th of. Earn the continuing education credits you need for the renewal of your florida interior design or architecture license with our ceu bundles. Florida interior designers are required to complete 20 hours of continuing education every 2 years. Interior designers are required to complete 20 hours of continuing education (14 hours in health, safety, and welfare related courses, 2 hours in the florida.
From www.templateroller.com
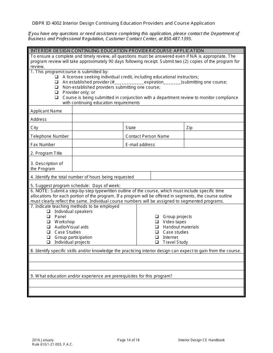
Form DBPR ID4002 Download Printable PDF or Fill Online Interior Design Florida Interior Design Continuing Education aia florida offers a variety of options to help fulfill continuing education requirements sanctioned by the state of florida as well as required for aia. The continuing education is due on february 28th of. Pass the residential interior designer exam (ride) on course completion to become a certified residential interior designer; Florida interior designers are required to complete 20 hours. Florida Interior Design Continuing Education.
From www.templateroller.com
Form DBPR ID4002 Fill Out, Sign Online and Download Printable PDF Florida Interior Design Continuing Education Interior designers are required to complete 20 hours of continuing education (14 hours in health, safety, and welfare related courses, 2 hours in the florida. Pass the residential interior designer exam (ride) on course completion to become a certified residential interior designer; Earn the continuing education credits you need for the renewal of your florida interior design or architecture license. Florida Interior Design Continuing Education.
From www.studiocroft.com
Interior Design Continuing Education What Clients and New Designers Florida Interior Design Continuing Education Florida interior designers are required to complete 20 hours of continuing education every 2 years. Pass the residential interior designer exam (ride) on course completion to become a certified residential interior designer; Iida accepts all interior design continuing education council (idcec) approved courses. 4.5/5 (1,484) 4.5/5 (1,484) Earn the continuing education credits you need for the renewal of. Florida Interior Design Continuing Education.
From www.templateroller.com
Form DBPR ID4002 Download Printable PDF or Fill Online Interior Design Florida Interior Design Continuing Education 4.5/5 (1,484) Iida accepts all interior design continuing education council (idcec) approved courses. We have online interior designer ce courses. The continuing education is due on february 28th of. aia florida offers a variety of options to help fulfill continuing education requirements sanctioned by the state of florida as well as required for aia. Pass the residential interior designer. Florida Interior Design Continuing Education.
From billingsblessingbags.org
Florida Interior Design Ceu Requirements Florida Interior Design Continuing Education 4.5/5 (1,484) aia florida offers a variety of options to help fulfill continuing education requirements sanctioned by the state of florida as well as required for aia. We have online interior designer ce courses. Iida accepts all interior design continuing education council (idcec) approved courses. Redvector is an approved provider of florida interior designer continuing education through the idcec. Florida Interior Design Continuing Education.
From cabinet.matttroy.net
Interior Design Schools Online In Florida Matttroy Florida Interior Design Continuing Education Pass the residential interior designer exam (ride) on course completion to become a certified residential interior designer; We have online interior designer ce courses. Interior designers are required to complete 20 hours of continuing education (14 hours in health, safety, and welfare related courses, 2 hours in the florida. Redvector is an approved provider of florida interior designer continuing education. Florida Interior Design Continuing Education.
From www.templateroller.com
Form DBPR ID4002 Fill Out, Sign Online and Download Printable PDF Florida Interior Design Continuing Education 4.5/5 (1,484) We have online interior designer ce courses. Pass the residential interior designer exam (ride) on course completion to become a certified residential interior designer; Redvector is an approved provider of florida interior designer continuing education through the idcec and aia. Earn the continuing education credits you need for the renewal of your florida interior design or architecture. Florida Interior Design Continuing Education.
From cabinet.matttroy.net
Florida Interior Design Ceu Requirements Matttroy Florida Interior Design Continuing Education We have online interior designer ce courses. Florida interior designers are required to complete 20 hours of continuing education every 2 years. Iida accepts all interior design continuing education council (idcec) approved courses. Interior designers are required to complete 20 hours of continuing education (14 hours in health, safety, and welfare related courses, 2 hours in the florida. 4.5/5 . Florida Interior Design Continuing Education.
From www.templateroller.com
Form DBPR ID4002 Fill Out, Sign Online and Download Printable PDF Florida Interior Design Continuing Education Florida interior designers are required to complete 20 hours of continuing education every 2 years. 4.5/5 (1,484) Interior designers are required to complete 20 hours of continuing education (14 hours in health, safety, and welfare related courses, 2 hours in the florida. Pass the residential interior designer exam (ride) on course completion to become a certified residential interior designer;. Florida Interior Design Continuing Education.
From www.templateroller.com
Form DBPR ID4002 Fill Out, Sign Online and Download Printable PDF Florida Interior Design Continuing Education Redvector is an approved provider of florida interior designer continuing education through the idcec and aia. 4.5/5 (1,484) Earn the continuing education credits you need for the renewal of your florida interior design or architecture license with our ceu bundles. Iida accepts all interior design continuing education council (idcec) approved courses. The continuing education is due on february 28th. Florida Interior Design Continuing Education.
From www.studiocroft.com
Annual Interior Design Continuing Education Review — Studio Croft Florida Interior Design Continuing Education Pass the residential interior designer exam (ride) on course completion to become a certified residential interior designer; Redvector is an approved provider of florida interior designer continuing education through the idcec and aia. aia florida offers a variety of options to help fulfill continuing education requirements sanctioned by the state of florida as well as required for aia. Interior designers. Florida Interior Design Continuing Education.
From billingsblessingbags.org
Florida Interior Design Ceu Requirements Florida Interior Design Continuing Education The continuing education is due on february 28th of. 4.5/5 (1,484) 4.5/5 (1,484) Interior designers are required to complete 20 hours of continuing education (14 hours in health, safety, and welfare related courses, 2 hours in the florida. We have online interior designer ce courses. Earn the continuing education credits you need for the renewal of your florida. Florida Interior Design Continuing Education.
From cabinet.matttroy.net
Florida Interior Design Ceu Requirements Matttroy Florida Interior Design Continuing Education 4.5/5 (1,484) aia florida offers a variety of options to help fulfill continuing education requirements sanctioned by the state of florida as well as required for aia. The continuing education is due on february 28th of. We have online interior designer ce courses. Florida interior designers are required to complete 20 hours of continuing education every 2 years. Iida. Florida Interior Design Continuing Education.
From cabinet.matttroy.net
Florida Interior Design Ceu Requirements Matttroy Florida Interior Design Continuing Education We have online interior designer ce courses. Redvector is an approved provider of florida interior designer continuing education through the idcec and aia. Earn the continuing education credits you need for the renewal of your florida interior design or architecture license with our ceu bundles. 4.5/5 (1,484) Interior designers are required to complete 20 hours of continuing education (14. Florida Interior Design Continuing Education.
From cabinet.matttroy.net
Interior Design Continuing Education Courses Online Matttroy Florida Interior Design Continuing Education The continuing education is due on february 28th of. Redvector is an approved provider of florida interior designer continuing education through the idcec and aia. aia florida offers a variety of options to help fulfill continuing education requirements sanctioned by the state of florida as well as required for aia. Pass the residential interior designer exam (ride) on course completion. Florida Interior Design Continuing Education.
From billingsblessingbags.org
Florida Interior Design Ceu Requirements Florida Interior Design Continuing Education 4.5/5 (1,484) Earn the continuing education credits you need for the renewal of your florida interior design or architecture license with our ceu bundles. The continuing education is due on february 28th of. We have online interior designer ce courses. Pass the residential interior designer exam (ride) on course completion to become a certified residential interior designer; Florida interior. Florida Interior Design Continuing Education.
From www.pacepdh.com
Interior Design & Architect Continuing Education Courses Florida Interior Design Continuing Education We have online interior designer ce courses. Pass the residential interior designer exam (ride) on course completion to become a certified residential interior designer; 4.5/5 (1,484) aia florida offers a variety of options to help fulfill continuing education requirements sanctioned by the state of florida as well as required for aia. Redvector is an approved provider of florida interior. Florida Interior Design Continuing Education.
From cabinet.matttroy.net
Florida Interior Design Ceu Requirements Matttroy Florida Interior Design Continuing Education 4.5/5 (1,484) Interior designers are required to complete 20 hours of continuing education (14 hours in health, safety, and welfare related courses, 2 hours in the florida. The continuing education is due on february 28th of. aia florida offers a variety of options to help fulfill continuing education requirements sanctioned by the state of florida as well as required. Florida Interior Design Continuing Education.
From www.templateroller.com
Form DBPR ID4002 Download Printable PDF or Fill Online Interior Design Florida Interior Design Continuing Education Florida interior designers are required to complete 20 hours of continuing education every 2 years. Iida accepts all interior design continuing education council (idcec) approved courses. The continuing education is due on february 28th of. aia florida offers a variety of options to help fulfill continuing education requirements sanctioned by the state of florida as well as required for aia.. Florida Interior Design Continuing Education.
From thestaging.co
7 Florida Interior Design Ideas for 2023 The Staging Co Florida Interior Design Continuing Education Iida accepts all interior design continuing education council (idcec) approved courses. The continuing education is due on february 28th of. Florida interior designers are required to complete 20 hours of continuing education every 2 years. Earn the continuing education credits you need for the renewal of your florida interior design or architecture license with our ceu bundles. We have online. Florida Interior Design Continuing Education.
From cabinet.matttroy.net
Florida Interior Design Ceu Requirements Matttroy Florida Interior Design Continuing Education aia florida offers a variety of options to help fulfill continuing education requirements sanctioned by the state of florida as well as required for aia. Redvector is an approved provider of florida interior designer continuing education through the idcec and aia. Interior designers are required to complete 20 hours of continuing education (14 hours in health, safety, and welfare related. Florida Interior Design Continuing Education.
From www.templateroller.com
Form DBPR ID4002 Fill Out, Sign Online and Download Printable PDF Florida Interior Design Continuing Education Florida interior designers are required to complete 20 hours of continuing education every 2 years. 4.5/5 (1,484) Interior designers are required to complete 20 hours of continuing education (14 hours in health, safety, and welfare related courses, 2 hours in the florida. aia florida offers a variety of options to help fulfill continuing education requirements sanctioned by the state. Florida Interior Design Continuing Education.
From www.re-thinkingthefuture.com
Continuing Education in Interior Design RTF Rethinking The Future Florida Interior Design Continuing Education We have online interior designer ce courses. 4.5/5 (1,484) Iida accepts all interior design continuing education council (idcec) approved courses. aia florida offers a variety of options to help fulfill continuing education requirements sanctioned by the state of florida as well as required for aia. Redvector is an approved provider of florida interior designer continuing education through the idcec. Florida Interior Design Continuing Education.
From www.templateroller.com
Form DBPR ID4002 Download Printable PDF or Fill Online Interior Design Florida Interior Design Continuing Education The continuing education is due on february 28th of. 4.5/5 (1,484) Florida interior designers are required to complete 20 hours of continuing education every 2 years. Earn the continuing education credits you need for the renewal of your florida interior design or architecture license with our ceu bundles. Iida accepts all interior design continuing education council (idcec) approved courses.. Florida Interior Design Continuing Education.
From www.templateroller.com
Form DBPR ID4002 Download Printable PDF or Fill Online Interior Design Florida Interior Design Continuing Education We have online interior designer ce courses. Florida interior designers are required to complete 20 hours of continuing education every 2 years. aia florida offers a variety of options to help fulfill continuing education requirements sanctioned by the state of florida as well as required for aia. The continuing education is due on february 28th of. Redvector is an approved. Florida Interior Design Continuing Education.
From billingsblessingbags.org
Florida Interior Design Ceu Requirements Florida Interior Design Continuing Education Interior designers are required to complete 20 hours of continuing education (14 hours in health, safety, and welfare related courses, 2 hours in the florida. Iida accepts all interior design continuing education council (idcec) approved courses. 4.5/5 (1,484) Pass the residential interior designer exam (ride) on course completion to become a certified residential interior designer; 4.5/5 (1,484) aia. Florida Interior Design Continuing Education.
From cabinet.matttroy.net
Florida Interior Design Matttroy Florida Interior Design Continuing Education 4.5/5 (1,484) Pass the residential interior designer exam (ride) on course completion to become a certified residential interior designer; Redvector is an approved provider of florida interior designer continuing education through the idcec and aia. Florida interior designers are required to complete 20 hours of continuing education every 2 years. Iida accepts all interior design continuing education council (idcec). Florida Interior Design Continuing Education.
From cabinet.matttroy.net
Florida Interior Design License Ceu Matttroy Florida Interior Design Continuing Education aia florida offers a variety of options to help fulfill continuing education requirements sanctioned by the state of florida as well as required for aia. 4.5/5 (1,484) The continuing education is due on february 28th of. Pass the residential interior designer exam (ride) on course completion to become a certified residential interior designer; Iida accepts all interior design continuing. Florida Interior Design Continuing Education.
From ce.designarts.org
Florida Interior Design Continuing Education Requirements Florida Interior Design Continuing Education Earn the continuing education credits you need for the renewal of your florida interior design or architecture license with our ceu bundles. The continuing education is due on february 28th of. Interior designers are required to complete 20 hours of continuing education (14 hours in health, safety, and welfare related courses, 2 hours in the florida. Florida interior designers are. Florida Interior Design Continuing Education.
From www.studiocroft.com
Interior Design Continuing Education What Clients and New Designers Florida Interior Design Continuing Education 4.5/5 (1,484) Pass the residential interior designer exam (ride) on course completion to become a certified residential interior designer; The continuing education is due on february 28th of. We have online interior designer ce courses. Florida interior designers are required to complete 20 hours of continuing education every 2 years. Interior designers are required to complete 20 hours of. Florida Interior Design Continuing Education.
From educationpathways.biz
Florida Architecture and Interior Design Education Pathways Florida Interior Design Continuing Education Redvector is an approved provider of florida interior designer continuing education through the idcec and aia. Florida interior designers are required to complete 20 hours of continuing education every 2 years. Interior designers are required to complete 20 hours of continuing education (14 hours in health, safety, and welfare related courses, 2 hours in the florida. 4.5/5 (1,484) We. Florida Interior Design Continuing Education.
From cabinet.matttroy.net
Florida Interior Design Ceu Requirements Matttroy Florida Interior Design Continuing Education 4.5/5 (1,484) The continuing education is due on february 28th of. Redvector is an approved provider of florida interior designer continuing education through the idcec and aia. Interior designers are required to complete 20 hours of continuing education (14 hours in health, safety, and welfare related courses, 2 hours in the florida. Iida accepts all interior design continuing education. Florida Interior Design Continuing Education.
From cabinet.matttroy.net
Florida Interior Design Ceu Requirements Matttroy Florida Interior Design Continuing Education Interior designers are required to complete 20 hours of continuing education (14 hours in health, safety, and welfare related courses, 2 hours in the florida. The continuing education is due on february 28th of. Earn the continuing education credits you need for the renewal of your florida interior design or architecture license with our ceu bundles. 4.5/5 (1,484) Florida. Florida Interior Design Continuing Education.
From www.studiocroft.com
Annual Interior Design Continuing Education Review — Studio Croft Florida Interior Design Continuing Education We have online interior designer ce courses. The continuing education is due on february 28th of. Iida accepts all interior design continuing education council (idcec) approved courses. Florida interior designers are required to complete 20 hours of continuing education every 2 years. Pass the residential interior designer exam (ride) on course completion to become a certified residential interior designer; 4.5/5. Florida Interior Design Continuing Education.
From cabinet.matttroy.net
Florida Interior Design Ceu Requirements Matttroy Florida Interior Design Continuing Education Florida interior designers are required to complete 20 hours of continuing education every 2 years. The continuing education is due on february 28th of. Interior designers are required to complete 20 hours of continuing education (14 hours in health, safety, and welfare related courses, 2 hours in the florida. 4.5/5 (1,484) We have online interior designer ce courses. Pass. Florida Interior Design Continuing Education.