Blanket Hauling Permit . Virginia exempt blanket hauling permit application. Auto issuing loads up to and including 200k, 14'6h, 14'w, and 120'l. This interactive map shows highway construction sites and where you can view camera footage of road conditions. (1) a blanket hauling permit may be issued for a single oversize vehicle with overall dimensions which may not exceed 75 feet in. A one stop shop for all your hauling permits in maryland! Use this form to apply for an exempt hauling permit covering multiple moves. A regular hauling permit and/or an oversize/overweight hauling permit can be obtained from the maryland department of transportation. A hauling permit is a document that authorizes movement of overweight and/or overdimensional vehicle configurations over the state highway. (1) a blanket hauling permit may be issued for a single oversize vehicle with overall dimensions which may not exceed 75 feet in.
from www.formsbank.com
This interactive map shows highway construction sites and where you can view camera footage of road conditions. (1) a blanket hauling permit may be issued for a single oversize vehicle with overall dimensions which may not exceed 75 feet in. A regular hauling permit and/or an oversize/overweight hauling permit can be obtained from the maryland department of transportation. A hauling permit is a document that authorizes movement of overweight and/or overdimensional vehicle configurations over the state highway. A one stop shop for all your hauling permits in maryland! Use this form to apply for an exempt hauling permit covering multiple moves. Virginia exempt blanket hauling permit application. (1) a blanket hauling permit may be issued for a single oversize vehicle with overall dimensions which may not exceed 75 feet in. Auto issuing loads up to and including 200k, 14'6h, 14'w, and 120'l.
Fillable Virginia Blanket Hauling Permit Application printable pdf download
Blanket Hauling Permit Use this form to apply for an exempt hauling permit covering multiple moves. This interactive map shows highway construction sites and where you can view camera footage of road conditions. A regular hauling permit and/or an oversize/overweight hauling permit can be obtained from the maryland department of transportation. (1) a blanket hauling permit may be issued for a single oversize vehicle with overall dimensions which may not exceed 75 feet in. Virginia exempt blanket hauling permit application. A hauling permit is a document that authorizes movement of overweight and/or overdimensional vehicle configurations over the state highway. A one stop shop for all your hauling permits in maryland! Auto issuing loads up to and including 200k, 14'6h, 14'w, and 120'l. Use this form to apply for an exempt hauling permit covering multiple moves. (1) a blanket hauling permit may be issued for a single oversize vehicle with overall dimensions which may not exceed 75 feet in.
From www.templateroller.com
Form PERM394SB Fill Out, Sign Online and Download Fillable PDF, New Blanket Hauling Permit A one stop shop for all your hauling permits in maryland! Use this form to apply for an exempt hauling permit covering multiple moves. Virginia exempt blanket hauling permit application. (1) a blanket hauling permit may be issued for a single oversize vehicle with overall dimensions which may not exceed 75 feet in. A regular hauling permit and/or an oversize/overweight. Blanket Hauling Permit.
From www.templateroller.com
Form PERM39 SB Fill Out, Sign Online and Download Fillable PDF, New Blanket Hauling Permit A one stop shop for all your hauling permits in maryland! Auto issuing loads up to and including 200k, 14'6h, 14'w, and 120'l. A regular hauling permit and/or an oversize/overweight hauling permit can be obtained from the maryland department of transportation. (1) a blanket hauling permit may be issued for a single oversize vehicle with overall dimensions which may not. Blanket Hauling Permit.
From www.dochub.com
MISSOURI DEPARTMENT OF TRANSPORTATION Instructions for Completing a Blanket Hauling Permit A one stop shop for all your hauling permits in maryland! This interactive map shows highway construction sites and where you can view camera footage of road conditions. Auto issuing loads up to and including 200k, 14'6h, 14'w, and 120'l. Virginia exempt blanket hauling permit application. (1) a blanket hauling permit may be issued for a single oversize vehicle with. Blanket Hauling Permit.
From www.uslegalforms.com
MS MDOT Blanket Permit Application Fill and Sign Printable Template Blanket Hauling Permit A regular hauling permit and/or an oversize/overweight hauling permit can be obtained from the maryland department of transportation. (1) a blanket hauling permit may be issued for a single oversize vehicle with overall dimensions which may not exceed 75 feet in. (1) a blanket hauling permit may be issued for a single oversize vehicle with overall dimensions which may not. Blanket Hauling Permit.
From studylib.net
PERMIT BLANKET PERFORMANCE BOND Blanket Hauling Permit (1) a blanket hauling permit may be issued for a single oversize vehicle with overall dimensions which may not exceed 75 feet in. Use this form to apply for an exempt hauling permit covering multiple moves. (1) a blanket hauling permit may be issued for a single oversize vehicle with overall dimensions which may not exceed 75 feet in. A. Blanket Hauling Permit.
From www.formsbank.com
Top 6 Hauling Permit Application Form Templates free to download in PDF Blanket Hauling Permit (1) a blanket hauling permit may be issued for a single oversize vehicle with overall dimensions which may not exceed 75 feet in. This interactive map shows highway construction sites and where you can view camera footage of road conditions. A regular hauling permit and/or an oversize/overweight hauling permit can be obtained from the maryland department of transportation. Virginia exempt. Blanket Hauling Permit.
From www.scribd.com
Annual Blanket Permits PDF Road Transport Land Transport Blanket Hauling Permit This interactive map shows highway construction sites and where you can view camera footage of road conditions. (1) a blanket hauling permit may be issued for a single oversize vehicle with overall dimensions which may not exceed 75 feet in. Auto issuing loads up to and including 200k, 14'6h, 14'w, and 120'l. A one stop shop for all your hauling. Blanket Hauling Permit.
From blanker.org
Form HP 406. Virginia Blanket Hauling Permit Permit Locality Addendum Blanket Hauling Permit Use this form to apply for an exempt hauling permit covering multiple moves. (1) a blanket hauling permit may be issued for a single oversize vehicle with overall dimensions which may not exceed 75 feet in. Auto issuing loads up to and including 200k, 14'6h, 14'w, and 120'l. A one stop shop for all your hauling permits in maryland! A. Blanket Hauling Permit.
From fill.io
Fill Free fillable VIRGINIA EXEMPT BLANKET HAULING PERMIT APPLICATION Blanket Hauling Permit A hauling permit is a document that authorizes movement of overweight and/or overdimensional vehicle configurations over the state highway. Use this form to apply for an exempt hauling permit covering multiple moves. Virginia exempt blanket hauling permit application. (1) a blanket hauling permit may be issued for a single oversize vehicle with overall dimensions which may not exceed 75 feet. Blanket Hauling Permit.
From www.templateroller.com
Form HP406 Fill Out, Sign Online and Download Fillable PDF, Virginia Blanket Hauling Permit (1) a blanket hauling permit may be issued for a single oversize vehicle with overall dimensions which may not exceed 75 feet in. Virginia exempt blanket hauling permit application. A one stop shop for all your hauling permits in maryland! Use this form to apply for an exempt hauling permit covering multiple moves. (1) a blanket hauling permit may be. Blanket Hauling Permit.
From fill.io
Fill Free fillable APPLICATION VIRGINIA BLANKET HAULING PERMIT Blanket Hauling Permit A hauling permit is a document that authorizes movement of overweight and/or overdimensional vehicle configurations over the state highway. A regular hauling permit and/or an oversize/overweight hauling permit can be obtained from the maryland department of transportation. Virginia exempt blanket hauling permit application. A one stop shop for all your hauling permits in maryland! This interactive map shows highway construction. Blanket Hauling Permit.
From www.caltrans.ca.gov
Annual Permit Application Instructions Caltrans Blanket Hauling Permit (1) a blanket hauling permit may be issued for a single oversize vehicle with overall dimensions which may not exceed 75 feet in. Use this form to apply for an exempt hauling permit covering multiple moves. Virginia exempt blanket hauling permit application. (1) a blanket hauling permit may be issued for a single oversize vehicle with overall dimensions which may. Blanket Hauling Permit.
From www.formsbank.com
Fillable Virginia Blanket Hauling Permit Application printable pdf download Blanket Hauling Permit This interactive map shows highway construction sites and where you can view camera footage of road conditions. Use this form to apply for an exempt hauling permit covering multiple moves. A regular hauling permit and/or an oversize/overweight hauling permit can be obtained from the maryland department of transportation. (1) a blanket hauling permit may be issued for a single oversize. Blanket Hauling Permit.
From fill.io
Fill Free fillable VIRGINIA EXEMPT BLANKET HAULING PERMIT APPLICATION Blanket Hauling Permit A regular hauling permit and/or an oversize/overweight hauling permit can be obtained from the maryland department of transportation. A one stop shop for all your hauling permits in maryland! (1) a blanket hauling permit may be issued for a single oversize vehicle with overall dimensions which may not exceed 75 feet in. This interactive map shows highway construction sites and. Blanket Hauling Permit.
From blanker.org
Form MP 230. Locality Blanket Hauling Permit Dimensions and Conditions Blanket Hauling Permit Virginia exempt blanket hauling permit application. Auto issuing loads up to and including 200k, 14'6h, 14'w, and 120'l. (1) a blanket hauling permit may be issued for a single oversize vehicle with overall dimensions which may not exceed 75 feet in. A regular hauling permit and/or an oversize/overweight hauling permit can be obtained from the maryland department of transportation. A. Blanket Hauling Permit.
From www.pdffiller.com
blanket permit for overweight seagoing containerized cargo Blanket Hauling Permit A regular hauling permit and/or an oversize/overweight hauling permit can be obtained from the maryland department of transportation. (1) a blanket hauling permit may be issued for a single oversize vehicle with overall dimensions which may not exceed 75 feet in. A hauling permit is a document that authorizes movement of overweight and/or overdimensional vehicle configurations over the state highway.. Blanket Hauling Permit.
From form-m-936a.pdffiller.com
Pa Hauling Permit Fill Online, Printable, Fillable, Blank pdfFiller Blanket Hauling Permit Auto issuing loads up to and including 200k, 14'6h, 14'w, and 120'l. A regular hauling permit and/or an oversize/overweight hauling permit can be obtained from the maryland department of transportation. Virginia exempt blanket hauling permit application. This interactive map shows highway construction sites and where you can view camera footage of road conditions. A one stop shop for all your. Blanket Hauling Permit.
From formspal.com
Dmv Form Hp 402 ≡ Fill Out Printable PDF Forms Online Blanket Hauling Permit Auto issuing loads up to and including 200k, 14'6h, 14'w, and 120'l. (1) a blanket hauling permit may be issued for a single oversize vehicle with overall dimensions which may not exceed 75 feet in. (1) a blanket hauling permit may be issued for a single oversize vehicle with overall dimensions which may not exceed 75 feet in. A one. Blanket Hauling Permit.
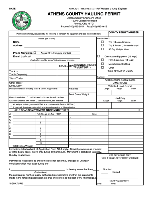
From www.templateroller.com
Form AC1 Fill Out, Sign Online and Download Printable PDF, Athens Blanket Hauling Permit A hauling permit is a document that authorizes movement of overweight and/or overdimensional vehicle configurations over the state highway. (1) a blanket hauling permit may be issued for a single oversize vehicle with overall dimensions which may not exceed 75 feet in. This interactive map shows highway construction sites and where you can view camera footage of road conditions. A. Blanket Hauling Permit.
From www.templateroller.com
Form MP230 Fill Out, Sign Online and Download Fillable PDF, Virginia Blanket Hauling Permit This interactive map shows highway construction sites and where you can view camera footage of road conditions. (1) a blanket hauling permit may be issued for a single oversize vehicle with overall dimensions which may not exceed 75 feet in. Auto issuing loads up to and including 200k, 14'6h, 14'w, and 120'l. A regular hauling permit and/or an oversize/overweight hauling. Blanket Hauling Permit.
From www.pdffiller.com
Fillable Online dmv virginia VIRGINIA BLANKET HAULING PERMIT Blanket Hauling Permit A hauling permit is a document that authorizes movement of overweight and/or overdimensional vehicle configurations over the state highway. A regular hauling permit and/or an oversize/overweight hauling permit can be obtained from the maryland department of transportation. (1) a blanket hauling permit may be issued for a single oversize vehicle with overall dimensions which may not exceed 75 feet in.. Blanket Hauling Permit.
From www.pdffiller.com
Fillable Online Revised October 2013 BLANKET PERMIT FOR UTILITY SERVICE Blanket Hauling Permit Use this form to apply for an exempt hauling permit covering multiple moves. (1) a blanket hauling permit may be issued for a single oversize vehicle with overall dimensions which may not exceed 75 feet in. Virginia exempt blanket hauling permit application. A hauling permit is a document that authorizes movement of overweight and/or overdimensional vehicle configurations over the state. Blanket Hauling Permit.
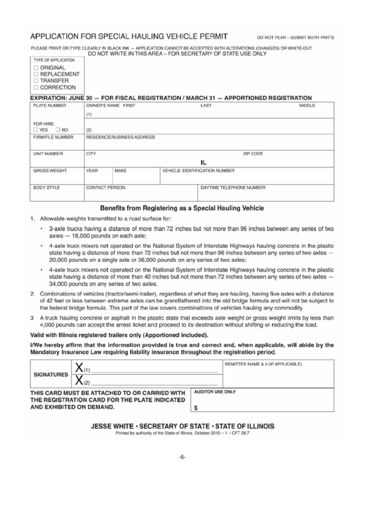
From www.transportation.ohio.gov
Form OS1 Application for Special Hauling Permit Blanket Hauling Permit A regular hauling permit and/or an oversize/overweight hauling permit can be obtained from the maryland department of transportation. Use this form to apply for an exempt hauling permit covering multiple moves. A hauling permit is a document that authorizes movement of overweight and/or overdimensional vehicle configurations over the state highway. Auto issuing loads up to and including 200k, 14'6h, 14'w,. Blanket Hauling Permit.
From www.templateroller.com
Form PERM39 SB Fill Out, Sign Online and Download Fillable PDF, New Blanket Hauling Permit (1) a blanket hauling permit may be issued for a single oversize vehicle with overall dimensions which may not exceed 75 feet in. This interactive map shows highway construction sites and where you can view camera footage of road conditions. Virginia exempt blanket hauling permit application. A one stop shop for all your hauling permits in maryland! A hauling permit. Blanket Hauling Permit.
From formspal.com
Dmv Form Hp 402 ≡ Fill Out Printable PDF Forms Online Blanket Hauling Permit A regular hauling permit and/or an oversize/overweight hauling permit can be obtained from the maryland department of transportation. This interactive map shows highway construction sites and where you can view camera footage of road conditions. A one stop shop for all your hauling permits in maryland! (1) a blanket hauling permit may be issued for a single oversize vehicle with. Blanket Hauling Permit.
From fill.io
Fill Free fillable APPLICATION VIRGINIA BLANKET HAULING PERMIT Blanket Hauling Permit Virginia exempt blanket hauling permit application. A regular hauling permit and/or an oversize/overweight hauling permit can be obtained from the maryland department of transportation. (1) a blanket hauling permit may be issued for a single oversize vehicle with overall dimensions which may not exceed 75 feet in. (1) a blanket hauling permit may be issued for a single oversize vehicle. Blanket Hauling Permit.
From fill.io
Fill Free fillable 16306 Blanket Permit Application PDF form Blanket Hauling Permit Use this form to apply for an exempt hauling permit covering multiple moves. This interactive map shows highway construction sites and where you can view camera footage of road conditions. (1) a blanket hauling permit may be issued for a single oversize vehicle with overall dimensions which may not exceed 75 feet in. Auto issuing loads up to and including. Blanket Hauling Permit.
From www.formsbank.com
Fillable Dd Form 1266 Request For Special Hauling Permit printable Blanket Hauling Permit (1) a blanket hauling permit may be issued for a single oversize vehicle with overall dimensions which may not exceed 75 feet in. (1) a blanket hauling permit may be issued for a single oversize vehicle with overall dimensions which may not exceed 75 feet in. Use this form to apply for an exempt hauling permit covering multiple moves. A. Blanket Hauling Permit.
From www.templateroller.com
City of Philadelphia, Pennsylvania Hauling Permit Application Fill Blanket Hauling Permit A regular hauling permit and/or an oversize/overweight hauling permit can be obtained from the maryland department of transportation. This interactive map shows highway construction sites and where you can view camera footage of road conditions. Use this form to apply for an exempt hauling permit covering multiple moves. (1) a blanket hauling permit may be issued for a single oversize. Blanket Hauling Permit.
From www.pdffiller.com
20222024 Form TX CE1026 City of Houston Fill Online, Printable Blanket Hauling Permit Virginia exempt blanket hauling permit application. A hauling permit is a document that authorizes movement of overweight and/or overdimensional vehicle configurations over the state highway. A regular hauling permit and/or an oversize/overweight hauling permit can be obtained from the maryland department of transportation. (1) a blanket hauling permit may be issued for a single oversize vehicle with overall dimensions which. Blanket Hauling Permit.
From www.formsbank.com
Fillable Form Osd003 Blanket Permit For Special Purpose Vehicles Blanket Hauling Permit Virginia exempt blanket hauling permit application. (1) a blanket hauling permit may be issued for a single oversize vehicle with overall dimensions which may not exceed 75 feet in. A one stop shop for all your hauling permits in maryland! A hauling permit is a document that authorizes movement of overweight and/or overdimensional vehicle configurations over the state highway. This. Blanket Hauling Permit.
From www.templateroller.com
Dutchess County, New York Special Hauling Permit Application Form Blanket Hauling Permit (1) a blanket hauling permit may be issued for a single oversize vehicle with overall dimensions which may not exceed 75 feet in. A regular hauling permit and/or an oversize/overweight hauling permit can be obtained from the maryland department of transportation. Auto issuing loads up to and including 200k, 14'6h, 14'w, and 120'l. A hauling permit is a document that. Blanket Hauling Permit.
From www.signnow.com
Exempt Blanket Hauling Permit Application Virginia DMV Form Fill Out Blanket Hauling Permit A one stop shop for all your hauling permits in maryland! A hauling permit is a document that authorizes movement of overweight and/or overdimensional vehicle configurations over the state highway. A regular hauling permit and/or an oversize/overweight hauling permit can be obtained from the maryland department of transportation. Auto issuing loads up to and including 200k, 14'6h, 14'w, and 120'l.. Blanket Hauling Permit.
From www.formsbank.com
Top 6 Hauling Permit Application Form Templates free to download in PDF Blanket Hauling Permit A hauling permit is a document that authorizes movement of overweight and/or overdimensional vehicle configurations over the state highway. A one stop shop for all your hauling permits in maryland! Auto issuing loads up to and including 200k, 14'6h, 14'w, and 120'l. This interactive map shows highway construction sites and where you can view camera footage of road conditions. (1). Blanket Hauling Permit.
From fill.io
Fill Free fillable Virginia Department of Motor Vehicles PDF forms Blanket Hauling Permit A one stop shop for all your hauling permits in maryland! (1) a blanket hauling permit may be issued for a single oversize vehicle with overall dimensions which may not exceed 75 feet in. A hauling permit is a document that authorizes movement of overweight and/or overdimensional vehicle configurations over the state highway. A regular hauling permit and/or an oversize/overweight. Blanket Hauling Permit.