Zoning Verification . The online zoning map contains a wide array of useful information represented geographically, such as the base zoning, area. The extension, erection or alteration of any existing. Verification letter will be sent to the applicant’s email address. The online zoning map contains a wide array of useful information represented geographically, such as the base zoning, area commissions. Changing the use of buildings or land. A certificate of zoning compliance is required prior to: More detailed information on zoning code and districts can be found online at city of columbus zoning code. Whether you're embarking on a new construction project, seeking to ensure compliance with zoning ordinances, or obtaining the necessary permits. For basic zoning information, visit. Remove the beginning date if searching for documents prior to three. A zoning verification is a formal letter verifying the zoning at a particular property or address for a specific use. Please note, the record is tied to the applicants email address and cannot be.
from www.tacomapermits.org
The online zoning map contains a wide array of useful information represented geographically, such as the base zoning, area commissions. The online zoning map contains a wide array of useful information represented geographically, such as the base zoning, area. Whether you're embarking on a new construction project, seeking to ensure compliance with zoning ordinances, or obtaining the necessary permits. For basic zoning information, visit. A zoning verification is a formal letter verifying the zoning at a particular property or address for a specific use. More detailed information on zoning code and districts can be found online at city of columbus zoning code. The extension, erection or alteration of any existing. Verification letter will be sent to the applicant’s email address. Changing the use of buildings or land. A certificate of zoning compliance is required prior to:
Zoning Verification Applications — Permits
Zoning Verification The online zoning map contains a wide array of useful information represented geographically, such as the base zoning, area. The online zoning map contains a wide array of useful information represented geographically, such as the base zoning, area commissions. The extension, erection or alteration of any existing. The online zoning map contains a wide array of useful information represented geographically, such as the base zoning, area. More detailed information on zoning code and districts can be found online at city of columbus zoning code. Verification letter will be sent to the applicant’s email address. Whether you're embarking on a new construction project, seeking to ensure compliance with zoning ordinances, or obtaining the necessary permits. Changing the use of buildings or land. Remove the beginning date if searching for documents prior to three. Please note, the record is tied to the applicants email address and cannot be. A certificate of zoning compliance is required prior to: A zoning verification is a formal letter verifying the zoning at a particular property or address for a specific use. For basic zoning information, visit.
From www.templateroller.com
City of Dallas, Texas Request for Letter of Zoning Verification Fill Zoning Verification Verification letter will be sent to the applicant’s email address. The extension, erection or alteration of any existing. Whether you're embarking on a new construction project, seeking to ensure compliance with zoning ordinances, or obtaining the necessary permits. Changing the use of buildings or land. Remove the beginning date if searching for documents prior to three. A zoning verification is. Zoning Verification.
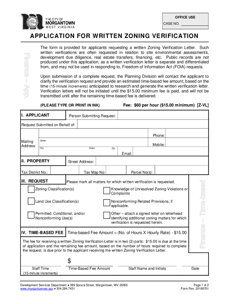
From mavink.com
Zoning Verification Letter Zoning Verification A zoning verification is a formal letter verifying the zoning at a particular property or address for a specific use. Please note, the record is tied to the applicants email address and cannot be. Changing the use of buildings or land. The extension, erection or alteration of any existing. More detailed information on zoning code and districts can be found. Zoning Verification.
From www.scribd.com
Zoning Verification Compliance Letter Zoning Email Zoning Verification A certificate of zoning compliance is required prior to: The extension, erection or alteration of any existing. For basic zoning information, visit. Remove the beginning date if searching for documents prior to three. Whether you're embarking on a new construction project, seeking to ensure compliance with zoning ordinances, or obtaining the necessary permits. A zoning verification is a formal letter. Zoning Verification.
From templatediy.com
Zoning Verification Letter Sample with Examples [Word] Zoning Verification The online zoning map contains a wide array of useful information represented geographically, such as the base zoning, area commissions. Verification letter will be sent to the applicant’s email address. Remove the beginning date if searching for documents prior to three. For basic zoning information, visit. Please note, the record is tied to the applicants email address and cannot be.. Zoning Verification.
From www.pdffiller.com
Fillable Online Zoning Certification Zoning Verification The extension, erection or alteration of any existing. A certificate of zoning compliance is required prior to: Changing the use of buildings or land. For basic zoning information, visit. A zoning verification is a formal letter verifying the zoning at a particular property or address for a specific use. The online zoning map contains a wide array of useful information. Zoning Verification.
From www.templateroller.com
Stanislaus County, California Zoning Verification Request Fill Out Zoning Verification Please note, the record is tied to the applicants email address and cannot be. Whether you're embarking on a new construction project, seeking to ensure compliance with zoning ordinances, or obtaining the necessary permits. Remove the beginning date if searching for documents prior to three. For basic zoning information, visit. The online zoning map contains a wide array of useful. Zoning Verification.
From www.pdffiller.com
Fillable Online Zoning Verification Letter Request PDF Clayton, NC Zoning Verification Whether you're embarking on a new construction project, seeking to ensure compliance with zoning ordinances, or obtaining the necessary permits. For basic zoning information, visit. The online zoning map contains a wide array of useful information represented geographically, such as the base zoning, area. A certificate of zoning compliance is required prior to: A zoning verification is a formal letter. Zoning Verification.
From www.pdffiller.com
Fillable Online APPLICATION FOR WRITTEN ZONING VERIFICATION Fax Zoning Verification A certificate of zoning compliance is required prior to: A zoning verification is a formal letter verifying the zoning at a particular property or address for a specific use. Remove the beginning date if searching for documents prior to three. More detailed information on zoning code and districts can be found online at city of columbus zoning code. The online. Zoning Verification.
From handypdf.com
Dealer Zoning Verification Form Edit, Fill, Sign Online Handypdf Zoning Verification More detailed information on zoning code and districts can be found online at city of columbus zoning code. Changing the use of buildings or land. The online zoning map contains a wide array of useful information represented geographically, such as the base zoning, area. A zoning verification is a formal letter verifying the zoning at a particular property or address. Zoning Verification.
From www.pdffiller.com
Fillable Online ZONING VERIFICATION LETTER REQUEST City of Fort Zoning Verification Changing the use of buildings or land. More detailed information on zoning code and districts can be found online at city of columbus zoning code. A zoning verification is a formal letter verifying the zoning at a particular property or address for a specific use. Verification letter will be sent to the applicant’s email address. A certificate of zoning compliance. Zoning Verification.
From www.pdffiller.com
Fillable Online Zoning Verification Letter General Verifications and Zoning Verification Whether you're embarking on a new construction project, seeking to ensure compliance with zoning ordinances, or obtaining the necessary permits. Verification letter will be sent to the applicant’s email address. The extension, erection or alteration of any existing. Changing the use of buildings or land. Remove the beginning date if searching for documents prior to three. A zoning verification is. Zoning Verification.
From wm.portsmouthva.gov
Zoning Verification Requests Portsmouth, VA Zoning Verification A zoning verification is a formal letter verifying the zoning at a particular property or address for a specific use. The online zoning map contains a wide array of useful information represented geographically, such as the base zoning, area commissions. The online zoning map contains a wide array of useful information represented geographically, such as the base zoning, area. For. Zoning Verification.
From www.pdffiller.com
Fillable Online ZoningVerificationRequestForm Fax Email Print Zoning Verification The online zoning map contains a wide array of useful information represented geographically, such as the base zoning, area. The extension, erection or alteration of any existing. A zoning verification is a formal letter verifying the zoning at a particular property or address for a specific use. A certificate of zoning compliance is required prior to: The online zoning map. Zoning Verification.
From issuu.com
2014 zoning verification letter 4656 rockbridge rd by Pine Lake Miller Zoning Verification The extension, erection or alteration of any existing. Please note, the record is tied to the applicants email address and cannot be. A zoning verification is a formal letter verifying the zoning at a particular property or address for a specific use. Remove the beginning date if searching for documents prior to three. The online zoning map contains a wide. Zoning Verification.
From www.pdffiller.com
Fillable Online certificate of zoning verification and property report Zoning Verification Whether you're embarking on a new construction project, seeking to ensure compliance with zoning ordinances, or obtaining the necessary permits. Remove the beginning date if searching for documents prior to three. Verification letter will be sent to the applicant’s email address. The extension, erection or alteration of any existing. The online zoning map contains a wide array of useful information. Zoning Verification.
From mavink.com
Zoning Verification Letter Zoning Verification Please note, the record is tied to the applicants email address and cannot be. Verification letter will be sent to the applicant’s email address. A zoning verification is a formal letter verifying the zoning at a particular property or address for a specific use. The online zoning map contains a wide array of useful information represented geographically, such as the. Zoning Verification.
From templatediy.com
Zoning Verification Letter Sample with Examples [Word] Zoning Verification The online zoning map contains a wide array of useful information represented geographically, such as the base zoning, area commissions. A zoning verification is a formal letter verifying the zoning at a particular property or address for a specific use. Please note, the record is tied to the applicants email address and cannot be. For basic zoning information, visit. The. Zoning Verification.
From www.templateroller.com
City of Austin, Texas Request for Zoning Verification Letter Download Zoning Verification More detailed information on zoning code and districts can be found online at city of columbus zoning code. For basic zoning information, visit. Remove the beginning date if searching for documents prior to three. The extension, erection or alteration of any existing. Verification letter will be sent to the applicant’s email address. The online zoning map contains a wide array. Zoning Verification.
From www.pdffiller.com
Fillable Online Request for Zoning Verification Letter Fax Email Print Zoning Verification The online zoning map contains a wide array of useful information represented geographically, such as the base zoning, area commissions. Changing the use of buildings or land. The extension, erection or alteration of any existing. Remove the beginning date if searching for documents prior to three. Verification letter will be sent to the applicant’s email address. For basic zoning information,. Zoning Verification.
From www.signnow.com
Zoning Verification Form ZVF Gainesville, Fl Fill Out and Sign Zoning Verification Whether you're embarking on a new construction project, seeking to ensure compliance with zoning ordinances, or obtaining the necessary permits. For basic zoning information, visit. The extension, erection or alteration of any existing. A certificate of zoning compliance is required prior to: The online zoning map contains a wide array of useful information represented geographically, such as the base zoning,. Zoning Verification.
From www.pdffiller.com
Fillable Online Fillable Online ZONING VERIFICATION REQUEST FORM Fax Zoning Verification More detailed information on zoning code and districts can be found online at city of columbus zoning code. Changing the use of buildings or land. Verification letter will be sent to the applicant’s email address. For basic zoning information, visit. Remove the beginning date if searching for documents prior to three. Please note, the record is tied to the applicants. Zoning Verification.
From www.pdffiller.com
Fillable Online zoning verification letter request form Fax Email Print Zoning Verification A zoning verification is a formal letter verifying the zoning at a particular property or address for a specific use. Please note, the record is tied to the applicants email address and cannot be. Whether you're embarking on a new construction project, seeking to ensure compliance with zoning ordinances, or obtaining the necessary permits. Changing the use of buildings or. Zoning Verification.
From www.pdffiller.com
Fillable Online Zoning Verification Application. Zoning Verification Zoning Verification A certificate of zoning compliance is required prior to: Verification letter will be sent to the applicant’s email address. Changing the use of buildings or land. Please note, the record is tied to the applicants email address and cannot be. The extension, erection or alteration of any existing. Remove the beginning date if searching for documents prior to three. Whether. Zoning Verification.
From www.kcmo.gov
Zoning Verification CITY OF KANSAS CITY OFFICIAL WEBSITE Zoning Verification A certificate of zoning compliance is required prior to: The online zoning map contains a wide array of useful information represented geographically, such as the base zoning, area commissions. Verification letter will be sent to the applicant’s email address. The extension, erection or alteration of any existing. More detailed information on zoning code and districts can be found online at. Zoning Verification.
From www.anaheim.net
Zoning Verification Letter Anaheim, CA Official site Zoning Verification The extension, erection or alteration of any existing. Whether you're embarking on a new construction project, seeking to ensure compliance with zoning ordinances, or obtaining the necessary permits. Please note, the record is tied to the applicants email address and cannot be. The online zoning map contains a wide array of useful information represented geographically, such as the base zoning,. Zoning Verification.
From www.scribd.com
Zoning Verification Application and Attorney Letters PDF Free Zoning Verification Changing the use of buildings or land. A zoning verification is a formal letter verifying the zoning at a particular property or address for a specific use. A certificate of zoning compliance is required prior to: The online zoning map contains a wide array of useful information represented geographically, such as the base zoning, area commissions. Remove the beginning date. Zoning Verification.
From www.templateroller.com
Volusia County, Florida Zoning Verification Letter Application Fill Zoning Verification The online zoning map contains a wide array of useful information represented geographically, such as the base zoning, area commissions. Changing the use of buildings or land. A certificate of zoning compliance is required prior to: Remove the beginning date if searching for documents prior to three. Verification letter will be sent to the applicant’s email address. The online zoning. Zoning Verification.
From www.signnow.com
Zoning Verification Letter Request Complete with ease airSlate SignNow Zoning Verification A zoning verification is a formal letter verifying the zoning at a particular property or address for a specific use. Whether you're embarking on a new construction project, seeking to ensure compliance with zoning ordinances, or obtaining the necessary permits. The extension, erection or alteration of any existing. Remove the beginning date if searching for documents prior to three. Changing. Zoning Verification.
From www.templateroller.com
City of Orlando, Florida Zoning Verification Request Fill Out, Sign Zoning Verification The online zoning map contains a wide array of useful information represented geographically, such as the base zoning, area commissions. Remove the beginning date if searching for documents prior to three. More detailed information on zoning code and districts can be found online at city of columbus zoning code. Whether you're embarking on a new construction project, seeking to ensure. Zoning Verification.
From www.templateroller.com
Stanislaus County, California Zoning Verification Request Fill Out Zoning Verification Whether you're embarking on a new construction project, seeking to ensure compliance with zoning ordinances, or obtaining the necessary permits. Remove the beginning date if searching for documents prior to three. More detailed information on zoning code and districts can be found online at city of columbus zoning code. For basic zoning information, visit. Please note, the record is tied. Zoning Verification.
From www.pdffiller.com
Zoning Verification Letter Fill Online, Printable, Fillable, Blank Zoning Verification Please note, the record is tied to the applicants email address and cannot be. The online zoning map contains a wide array of useful information represented geographically, such as the base zoning, area. A certificate of zoning compliance is required prior to: Verification letter will be sent to the applicant’s email address. The extension, erection or alteration of any existing.. Zoning Verification.
From www.tacomapermits.org
Zoning Verification Applications — Permits Zoning Verification More detailed information on zoning code and districts can be found online at city of columbus zoning code. The online zoning map contains a wide array of useful information represented geographically, such as the base zoning, area commissions. Changing the use of buildings or land. Remove the beginning date if searching for documents prior to three. For basic zoning information,. Zoning Verification.
From www.templateroller.com
Wake County, North Carolina Zoning Verification Request Form Fill Out Zoning Verification The extension, erection or alteration of any existing. A certificate of zoning compliance is required prior to: Please note, the record is tied to the applicants email address and cannot be. Remove the beginning date if searching for documents prior to three. Verification letter will be sent to the applicant’s email address. Whether you're embarking on a new construction project,. Zoning Verification.
From templatediy.com
Zoning Verification Letter Sample with Examples in Pdf & Word Zoning Verification For basic zoning information, visit. A zoning verification is a formal letter verifying the zoning at a particular property or address for a specific use. More detailed information on zoning code and districts can be found online at city of columbus zoning code. A certificate of zoning compliance is required prior to: Verification letter will be sent to the applicant’s. Zoning Verification.
From www.pdffiller.com
Fillable Online City of Gastonia Zoning Verification Letters Fax Zoning Verification The online zoning map contains a wide array of useful information represented geographically, such as the base zoning, area commissions. Verification letter will be sent to the applicant’s email address. The online zoning map contains a wide array of useful information represented geographically, such as the base zoning, area. The extension, erection or alteration of any existing. A certificate of. Zoning Verification.