Georgia Brownfield Tax Credit . Finally, analyzing data near 48 brownfields, epa found an estimated $29 million to $97 million in additional tax revenue for local. Some of the major federal, state and local tax credit programs funded by the epa for brownfield redevelopment are: A total of 7 communities in georgia will receive brownfield assessment and cleanup or high performing revolving loan fund support to. Federal and state tax credits and grants are available for land owners and purchasers to promote the cleanup of brownfields. The 2023 brownfields federal programs guide provides information on 22 federal programs and five federal tax incentives that. A georgia law passed in 2003 provides tax relief for properties where costs were incurred to obtain a brownfields limitation of liability. This guide provides an overview of the key federal tax incentives and credits that can be leveraged for brownfields cleanup, redevelopment. Brownfield tax credits — an overview.
from slideplayer.com
Some of the major federal, state and local tax credit programs funded by the epa for brownfield redevelopment are: Federal and state tax credits and grants are available for land owners and purchasers to promote the cleanup of brownfields. A georgia law passed in 2003 provides tax relief for properties where costs were incurred to obtain a brownfields limitation of liability. Brownfield tax credits — an overview. This guide provides an overview of the key federal tax incentives and credits that can be leveraged for brownfields cleanup, redevelopment. The 2023 brownfields federal programs guide provides information on 22 federal programs and five federal tax incentives that. Finally, analyzing data near 48 brownfields, epa found an estimated $29 million to $97 million in additional tax revenue for local. A total of 7 communities in georgia will receive brownfield assessment and cleanup or high performing revolving loan fund support to.
Brownfield Program Update ppt download
Georgia Brownfield Tax Credit Finally, analyzing data near 48 brownfields, epa found an estimated $29 million to $97 million in additional tax revenue for local. Brownfield tax credits — an overview. A georgia law passed in 2003 provides tax relief for properties where costs were incurred to obtain a brownfields limitation of liability. A total of 7 communities in georgia will receive brownfield assessment and cleanup or high performing revolving loan fund support to. Finally, analyzing data near 48 brownfields, epa found an estimated $29 million to $97 million in additional tax revenue for local. This guide provides an overview of the key federal tax incentives and credits that can be leveraged for brownfields cleanup, redevelopment. Federal and state tax credits and grants are available for land owners and purchasers to promote the cleanup of brownfields. Some of the major federal, state and local tax credit programs funded by the epa for brownfield redevelopment are: The 2023 brownfields federal programs guide provides information on 22 federal programs and five federal tax incentives that.
From www.templateroller.com
Download Instructions for Form IT611 Claim for Brownfield Georgia Brownfield Tax Credit A georgia law passed in 2003 provides tax relief for properties where costs were incurred to obtain a brownfields limitation of liability. A total of 7 communities in georgia will receive brownfield assessment and cleanup or high performing revolving loan fund support to. Brownfield tax credits — an overview. Some of the major federal, state and local tax credit programs. Georgia Brownfield Tax Credit.
From www.templateroller.com
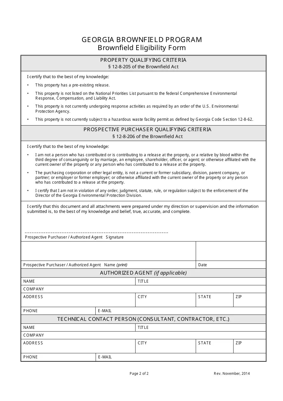
(United States) Brownfield Eligibility Form Download Printable Georgia Brownfield Tax Credit A total of 7 communities in georgia will receive brownfield assessment and cleanup or high performing revolving loan fund support to. Federal and state tax credits and grants are available for land owners and purchasers to promote the cleanup of brownfields. Some of the major federal, state and local tax credit programs funded by the epa for brownfield redevelopment are:. Georgia Brownfield Tax Credit.
From www.heraldmailmedia.com
Proposed tax credit could help Brownfield developers Georgia Brownfield Tax Credit The 2023 brownfields federal programs guide provides information on 22 federal programs and five federal tax incentives that. Some of the major federal, state and local tax credit programs funded by the epa for brownfield redevelopment are: A total of 7 communities in georgia will receive brownfield assessment and cleanup or high performing revolving loan fund support to. Federal and. Georgia Brownfield Tax Credit.
From www.researchgate.net
(PDF) New York State Brownfield Cleanup Program and Tax Credits Georgia Brownfield Tax Credit Some of the major federal, state and local tax credit programs funded by the epa for brownfield redevelopment are: The 2023 brownfields federal programs guide provides information on 22 federal programs and five federal tax incentives that. A georgia law passed in 2003 provides tax relief for properties where costs were incurred to obtain a brownfields limitation of liability. Federal. Georgia Brownfield Tax Credit.
From slideplayer.com
Brownfield Program Update ppt download Georgia Brownfield Tax Credit This guide provides an overview of the key federal tax incentives and credits that can be leveraged for brownfields cleanup, redevelopment. The 2023 brownfields federal programs guide provides information on 22 federal programs and five federal tax incentives that. A total of 7 communities in georgia will receive brownfield assessment and cleanup or high performing revolving loan fund support to.. Georgia Brownfield Tax Credit.
From www.pinterest.com
Column Brownfield tax credits divert needed funds Tax credits, Fund Georgia Brownfield Tax Credit This guide provides an overview of the key federal tax incentives and credits that can be leveraged for brownfields cleanup, redevelopment. Federal and state tax credits and grants are available for land owners and purchasers to promote the cleanup of brownfields. A total of 7 communities in georgia will receive brownfield assessment and cleanup or high performing revolving loan fund. Georgia Brownfield Tax Credit.
From www.fehrgraham.com
How do brownfield tax credits work? Blog Georgia Brownfield Tax Credit A total of 7 communities in georgia will receive brownfield assessment and cleanup or high performing revolving loan fund support to. This guide provides an overview of the key federal tax incentives and credits that can be leveraged for brownfields cleanup, redevelopment. Brownfield tax credits — an overview. A georgia law passed in 2003 provides tax relief for properties where. Georgia Brownfield Tax Credit.
From www.researchgate.net
(PDF) Brownfield tax credits An incentive for siting CHP Georgia Brownfield Tax Credit This guide provides an overview of the key federal tax incentives and credits that can be leveraged for brownfields cleanup, redevelopment. A total of 7 communities in georgia will receive brownfield assessment and cleanup or high performing revolving loan fund support to. Some of the major federal, state and local tax credit programs funded by the epa for brownfield redevelopment. Georgia Brownfield Tax Credit.
From www.templateroller.com
Form IT611.1 Download Fillable PDF or Fill Online Claim for Brownfield Georgia Brownfield Tax Credit Brownfield tax credits — an overview. Some of the major federal, state and local tax credit programs funded by the epa for brownfield redevelopment are: Federal and state tax credits and grants are available for land owners and purchasers to promote the cleanup of brownfields. This guide provides an overview of the key federal tax incentives and credits that can. Georgia Brownfield Tax Credit.
From www.templateroller.com
Download Instructions for Form IT611.1 Claim for Brownfield Georgia Brownfield Tax Credit Some of the major federal, state and local tax credit programs funded by the epa for brownfield redevelopment are: The 2023 brownfields federal programs guide provides information on 22 federal programs and five federal tax incentives that. Finally, analyzing data near 48 brownfields, epa found an estimated $29 million to $97 million in additional tax revenue for local. Federal and. Georgia Brownfield Tax Credit.
From www.andersonadkins.com
Tax Credits Anderson & Adkins, C.P.A.'s Georgia Brownfield Tax Credit A georgia law passed in 2003 provides tax relief for properties where costs were incurred to obtain a brownfields limitation of liability. Finally, analyzing data near 48 brownfields, epa found an estimated $29 million to $97 million in additional tax revenue for local. Brownfield tax credits — an overview. Some of the major federal, state and local tax credit programs. Georgia Brownfield Tax Credit.
From slideplayer.com
Brownfield Program Update ppt download Georgia Brownfield Tax Credit Federal and state tax credits and grants are available for land owners and purchasers to promote the cleanup of brownfields. The 2023 brownfields federal programs guide provides information on 22 federal programs and five federal tax incentives that. This guide provides an overview of the key federal tax incentives and credits that can be leveraged for brownfields cleanup, redevelopment. Brownfield. Georgia Brownfield Tax Credit.
From www.templateroller.com
Download Instructions for Form CT611.2 Claim for Brownfield Georgia Brownfield Tax Credit A total of 7 communities in georgia will receive brownfield assessment and cleanup or high performing revolving loan fund support to. Brownfield tax credits — an overview. This guide provides an overview of the key federal tax incentives and credits that can be leveraged for brownfields cleanup, redevelopment. Finally, analyzing data near 48 brownfields, epa found an estimated $29 million. Georgia Brownfield Tax Credit.
From www.templateroller.com
Download Instructions for Form IT612 Claim for Remediated Brownfield Georgia Brownfield Tax Credit A georgia law passed in 2003 provides tax relief for properties where costs were incurred to obtain a brownfields limitation of liability. Federal and state tax credits and grants are available for land owners and purchasers to promote the cleanup of brownfields. Some of the major federal, state and local tax credit programs funded by the epa for brownfield redevelopment. Georgia Brownfield Tax Credit.
From slideplayer.com
Brownfield Program Update ppt download Georgia Brownfield Tax Credit The 2023 brownfields federal programs guide provides information on 22 federal programs and five federal tax incentives that. Brownfield tax credits — an overview. A total of 7 communities in georgia will receive brownfield assessment and cleanup or high performing revolving loan fund support to. This guide provides an overview of the key federal tax incentives and credits that can. Georgia Brownfield Tax Credit.
From www.templateroller.com
Download Instructions for Form IT611.2 Claim for Brownfield Georgia Brownfield Tax Credit Brownfield tax credits — an overview. A georgia law passed in 2003 provides tax relief for properties where costs were incurred to obtain a brownfields limitation of liability. A total of 7 communities in georgia will receive brownfield assessment and cleanup or high performing revolving loan fund support to. Federal and state tax credits and grants are available for land. Georgia Brownfield Tax Credit.
From www.slideserve.com
PPT LA Voluntary Remediation Program and Brownfields Initiatives Georgia Brownfield Tax Credit This guide provides an overview of the key federal tax incentives and credits that can be leveraged for brownfields cleanup, redevelopment. Brownfield tax credits — an overview. Some of the major federal, state and local tax credit programs funded by the epa for brownfield redevelopment are: The 2023 brownfields federal programs guide provides information on 22 federal programs and five. Georgia Brownfield Tax Credit.
From www.formsbank.com
Fillable Form It611 Claim For Brownfield Redevelopment Tax Credit Georgia Brownfield Tax Credit Brownfield tax credits — an overview. A total of 7 communities in georgia will receive brownfield assessment and cleanup or high performing revolving loan fund support to. Some of the major federal, state and local tax credit programs funded by the epa for brownfield redevelopment are: The 2023 brownfields federal programs guide provides information on 22 federal programs and five. Georgia Brownfield Tax Credit.
From www.pdffiller.com
Fillable Online Brownfield tax credits Department of Taxation and Georgia Brownfield Tax Credit Brownfield tax credits — an overview. Federal and state tax credits and grants are available for land owners and purchasers to promote the cleanup of brownfields. This guide provides an overview of the key federal tax incentives and credits that can be leveraged for brownfields cleanup, redevelopment. Some of the major federal, state and local tax credit programs funded by. Georgia Brownfield Tax Credit.
From www.templateroller.com
(United States) Brownfield Eligibility Form Download Printable Georgia Brownfield Tax Credit Some of the major federal, state and local tax credit programs funded by the epa for brownfield redevelopment are: A georgia law passed in 2003 provides tax relief for properties where costs were incurred to obtain a brownfields limitation of liability. This guide provides an overview of the key federal tax incentives and credits that can be leveraged for brownfields. Georgia Brownfield Tax Credit.
From slideplayer.com
Brownfield Program Update ppt download Georgia Brownfield Tax Credit Finally, analyzing data near 48 brownfields, epa found an estimated $29 million to $97 million in additional tax revenue for local. Some of the major federal, state and local tax credit programs funded by the epa for brownfield redevelopment are: A georgia law passed in 2003 provides tax relief for properties where costs were incurred to obtain a brownfields limitation. Georgia Brownfield Tax Credit.
From www.detroitnews.com
letterbrownfieldtaxcreditsrevitalizeareas Georgia Brownfield Tax Credit Federal and state tax credits and grants are available for land owners and purchasers to promote the cleanup of brownfields. This guide provides an overview of the key federal tax incentives and credits that can be leveraged for brownfields cleanup, redevelopment. A total of 7 communities in georgia will receive brownfield assessment and cleanup or high performing revolving loan fund. Georgia Brownfield Tax Credit.
From www.templateroller.com
Form CT611 Download Printable PDF or Fill Online Claim for Brownfield Georgia Brownfield Tax Credit A georgia law passed in 2003 provides tax relief for properties where costs were incurred to obtain a brownfields limitation of liability. Finally, analyzing data near 48 brownfields, epa found an estimated $29 million to $97 million in additional tax revenue for local. Some of the major federal, state and local tax credit programs funded by the epa for brownfield. Georgia Brownfield Tax Credit.
From corridorbusiness.com
Corridor projects awarded grayfield and brownfield tax credits Georgia Brownfield Tax Credit Federal and state tax credits and grants are available for land owners and purchasers to promote the cleanup of brownfields. A georgia law passed in 2003 provides tax relief for properties where costs were incurred to obtain a brownfields limitation of liability. A total of 7 communities in georgia will receive brownfield assessment and cleanup or high performing revolving loan. Georgia Brownfield Tax Credit.
From www.pdffiller.com
Fillable Online Brownfield tax credits Government of New Georgia Brownfield Tax Credit Finally, analyzing data near 48 brownfields, epa found an estimated $29 million to $97 million in additional tax revenue for local. This guide provides an overview of the key federal tax incentives and credits that can be leveraged for brownfields cleanup, redevelopment. Some of the major federal, state and local tax credit programs funded by the epa for brownfield redevelopment. Georgia Brownfield Tax Credit.
From slideplayer.com
Brownfield Program Update ppt download Georgia Brownfield Tax Credit Brownfield tax credits — an overview. Finally, analyzing data near 48 brownfields, epa found an estimated $29 million to $97 million in additional tax revenue for local. A georgia law passed in 2003 provides tax relief for properties where costs were incurred to obtain a brownfields limitation of liability. The 2023 brownfields federal programs guide provides information on 22 federal. Georgia Brownfield Tax Credit.
From slideplayer.com
Brownfield Program Update ppt download Georgia Brownfield Tax Credit Finally, analyzing data near 48 brownfields, epa found an estimated $29 million to $97 million in additional tax revenue for local. The 2023 brownfields federal programs guide provides information on 22 federal programs and five federal tax incentives that. Brownfield tax credits — an overview. Some of the major federal, state and local tax credit programs funded by the epa. Georgia Brownfield Tax Credit.
From www.dochub.com
Form IT611 Claim for Brownfield Redevelopment Tax Credit Tax Year 2023 Georgia Brownfield Tax Credit Federal and state tax credits and grants are available for land owners and purchasers to promote the cleanup of brownfields. This guide provides an overview of the key federal tax incentives and credits that can be leveraged for brownfields cleanup, redevelopment. Finally, analyzing data near 48 brownfields, epa found an estimated $29 million to $97 million in additional tax revenue. Georgia Brownfield Tax Credit.
From www.signnow.com
It 611 New York State Department of Taxation and Finance Claim for Georgia Brownfield Tax Credit A total of 7 communities in georgia will receive brownfield assessment and cleanup or high performing revolving loan fund support to. Federal and state tax credits and grants are available for land owners and purchasers to promote the cleanup of brownfields. A georgia law passed in 2003 provides tax relief for properties where costs were incurred to obtain a brownfields. Georgia Brownfield Tax Credit.
From www.signnow.com
Form it 612 Claim for Remediated Brownfield Credit for Real Property Georgia Brownfield Tax Credit The 2023 brownfields federal programs guide provides information on 22 federal programs and five federal tax incentives that. Some of the major federal, state and local tax credit programs funded by the epa for brownfield redevelopment are: A total of 7 communities in georgia will receive brownfield assessment and cleanup or high performing revolving loan fund support to. Brownfield tax. Georgia Brownfield Tax Credit.
From www.troutman.com
Case Study Largest Ever Site Completes Brownfield Program Georgia Brownfield Tax Credit A georgia law passed in 2003 provides tax relief for properties where costs were incurred to obtain a brownfields limitation of liability. Federal and state tax credits and grants are available for land owners and purchasers to promote the cleanup of brownfields. A total of 7 communities in georgia will receive brownfield assessment and cleanup or high performing revolving loan. Georgia Brownfield Tax Credit.
From www.pdffiller.com
Fillable Online Fillable Online (PDF) Brownfield tax credits An Georgia Brownfield Tax Credit A total of 7 communities in georgia will receive brownfield assessment and cleanup or high performing revolving loan fund support to. This guide provides an overview of the key federal tax incentives and credits that can be leveraged for brownfields cleanup, redevelopment. A georgia law passed in 2003 provides tax relief for properties where costs were incurred to obtain a. Georgia Brownfield Tax Credit.
From slideplayer.com
Brownfield Program Update ppt download Georgia Brownfield Tax Credit Some of the major federal, state and local tax credit programs funded by the epa for brownfield redevelopment are: Finally, analyzing data near 48 brownfields, epa found an estimated $29 million to $97 million in additional tax revenue for local. Brownfield tax credits — an overview. The 2023 brownfields federal programs guide provides information on 22 federal programs and five. Georgia Brownfield Tax Credit.
From www.cci-env.com
Sponsorships and Affiliations CCI The Leader In Industrial Services Georgia Brownfield Tax Credit The 2023 brownfields federal programs guide provides information on 22 federal programs and five federal tax incentives that. Some of the major federal, state and local tax credit programs funded by the epa for brownfield redevelopment are: Finally, analyzing data near 48 brownfields, epa found an estimated $29 million to $97 million in additional tax revenue for local. Federal and. Georgia Brownfield Tax Credit.
From cooperstownenv.com
Lawrence Company Redeems 30k from Brownfield Tax Credit Program Georgia Brownfield Tax Credit A total of 7 communities in georgia will receive brownfield assessment and cleanup or high performing revolving loan fund support to. Brownfield tax credits — an overview. A georgia law passed in 2003 provides tax relief for properties where costs were incurred to obtain a brownfields limitation of liability. Some of the major federal, state and local tax credit programs. Georgia Brownfield Tax Credit.