What Is A Commercial Building Permit . Explanations on the various french building permits needed when planning a new build, renovating or altering property. What you need to know when preparing to build or renovate a property in france: The building permit allows to build any new construction which is not exempted from formality, or which is not subject to a prior. What building permits are required for commercial construction projects? A commercial building permit is an official document issued by a local government agency that allows you to commence. The answer probably sounds all too familiar: Our comprehensive guide to obtaining a commercial building permit will help you avoid any setbacks along the way. Each municipality, county, and state will have its own combination of commercial building approvals that need to be met. Building plans and permits, builders' insurance, architects, engineers and more.
from www.templateroller.com
Our comprehensive guide to obtaining a commercial building permit will help you avoid any setbacks along the way. What you need to know when preparing to build or renovate a property in france: Building plans and permits, builders' insurance, architects, engineers and more. A commercial building permit is an official document issued by a local government agency that allows you to commence. The answer probably sounds all too familiar: Each municipality, county, and state will have its own combination of commercial building approvals that need to be met. What building permits are required for commercial construction projects? The building permit allows to build any new construction which is not exempted from formality, or which is not subject to a prior. Explanations on the various french building permits needed when planning a new build, renovating or altering property.
City of Johns Creek, (United States) Commercial Building Permit
What Is A Commercial Building Permit Each municipality, county, and state will have its own combination of commercial building approvals that need to be met. Building plans and permits, builders' insurance, architects, engineers and more. A commercial building permit is an official document issued by a local government agency that allows you to commence. Each municipality, county, and state will have its own combination of commercial building approvals that need to be met. What building permits are required for commercial construction projects? The answer probably sounds all too familiar: Our comprehensive guide to obtaining a commercial building permit will help you avoid any setbacks along the way. Explanations on the various french building permits needed when planning a new build, renovating or altering property. What you need to know when preparing to build or renovate a property in france: The building permit allows to build any new construction which is not exempted from formality, or which is not subject to a prior.
From masterplantexas.com
Commercial and Residential Building Permits Dallas Masterplan What Is A Commercial Building Permit A commercial building permit is an official document issued by a local government agency that allows you to commence. What building permits are required for commercial construction projects? The building permit allows to build any new construction which is not exempted from formality, or which is not subject to a prior. Explanations on the various french building permits needed when. What Is A Commercial Building Permit.
From www.slideserve.com
PPT Commercial Building Permit What is it and Why You Need One What Is A Commercial Building Permit Our comprehensive guide to obtaining a commercial building permit will help you avoid any setbacks along the way. Explanations on the various french building permits needed when planning a new build, renovating or altering property. The answer probably sounds all too familiar: What building permits are required for commercial construction projects? Each municipality, county, and state will have its own. What Is A Commercial Building Permit.
From www.templateroller.com
Lee County, Florida Commercial Building Permit Application Fill Out What Is A Commercial Building Permit What you need to know when preparing to build or renovate a property in france: Each municipality, county, and state will have its own combination of commercial building approvals that need to be met. The answer probably sounds all too familiar: Our comprehensive guide to obtaining a commercial building permit will help you avoid any setbacks along the way. A. What Is A Commercial Building Permit.
From www.templateroller.com
City of Troy, Michigan Commercial Building Permit Application Fill What Is A Commercial Building Permit What you need to know when preparing to build or renovate a property in france: Explanations on the various french building permits needed when planning a new build, renovating or altering property. The answer probably sounds all too familiar: Each municipality, county, and state will have its own combination of commercial building approvals that need to be met. A commercial. What Is A Commercial Building Permit.
From www.slideserve.com
PPT Commercial Building Permit What is it and Why You Need One What Is A Commercial Building Permit Each municipality, county, and state will have its own combination of commercial building approvals that need to be met. What you need to know when preparing to build or renovate a property in france: What building permits are required for commercial construction projects? Our comprehensive guide to obtaining a commercial building permit will help you avoid any setbacks along the. What Is A Commercial Building Permit.
From studylib.net
Commercial Building Permit Application What Is A Commercial Building Permit What building permits are required for commercial construction projects? Our comprehensive guide to obtaining a commercial building permit will help you avoid any setbacks along the way. The answer probably sounds all too familiar: Building plans and permits, builders' insurance, architects, engineers and more. What you need to know when preparing to build or renovate a property in france: A. What Is A Commercial Building Permit.
From www.templateroller.com
City of Williston, North Dakota Commercial Building Permit Application What Is A Commercial Building Permit A commercial building permit is an official document issued by a local government agency that allows you to commence. What you need to know when preparing to build or renovate a property in france: The answer probably sounds all too familiar: Each municipality, county, and state will have its own combination of commercial building approvals that need to be met.. What Is A Commercial Building Permit.
From www.youtube.com
Understanding A Building Permit Application The Building Permit What Is A Commercial Building Permit Each municipality, county, and state will have its own combination of commercial building approvals that need to be met. What you need to know when preparing to build or renovate a property in france: Building plans and permits, builders' insurance, architects, engineers and more. Explanations on the various french building permits needed when planning a new build, renovating or altering. What Is A Commercial Building Permit.
From www.signnow.com
Commercial Building Permit Application City of Sandy Springs Form What Is A Commercial Building Permit What you need to know when preparing to build or renovate a property in france: Each municipality, county, and state will have its own combination of commercial building approvals that need to be met. Building plans and permits, builders' insurance, architects, engineers and more. What building permits are required for commercial construction projects? The building permit allows to build any. What Is A Commercial Building Permit.
From www.cityofalexandriala.com
Building Permits and Other Licenses City of Alexandria, LA What Is A Commercial Building Permit The building permit allows to build any new construction which is not exempted from formality, or which is not subject to a prior. Our comprehensive guide to obtaining a commercial building permit will help you avoid any setbacks along the way. What building permits are required for commercial construction projects? What you need to know when preparing to build or. What Is A Commercial Building Permit.
From www.pdffiller.com
Fillable Online COMMERCIAL BUILDING PERMIT INFORMATION SHEET Fax Email What Is A Commercial Building Permit Our comprehensive guide to obtaining a commercial building permit will help you avoid any setbacks along the way. Each municipality, county, and state will have its own combination of commercial building approvals that need to be met. What building permits are required for commercial construction projects? The building permit allows to build any new construction which is not exempted from. What Is A Commercial Building Permit.
From www.slideserve.com
PPT Commercial Building Permit What is it and Why You Need One What Is A Commercial Building Permit Building plans and permits, builders' insurance, architects, engineers and more. What you need to know when preparing to build or renovate a property in france: The answer probably sounds all too familiar: The building permit allows to build any new construction which is not exempted from formality, or which is not subject to a prior. A commercial building permit is. What Is A Commercial Building Permit.
From www.c3buildingsolutions.com
City of Houston Commercial Building Permits Houston Permit Management What Is A Commercial Building Permit What you need to know when preparing to build or renovate a property in france: Building plans and permits, builders' insurance, architects, engineers and more. The answer probably sounds all too familiar: Each municipality, county, and state will have its own combination of commercial building approvals that need to be met. A commercial building permit is an official document issued. What Is A Commercial Building Permit.
From www.templateroller.com
City of Johns Creek, (United States) Commercial Building Permit What Is A Commercial Building Permit What you need to know when preparing to build or renovate a property in france: The building permit allows to build any new construction which is not exempted from formality, or which is not subject to a prior. Building plans and permits, builders' insurance, architects, engineers and more. A commercial building permit is an official document issued by a local. What Is A Commercial Building Permit.
From kaothu.com
buildingpermitform Kaothu Builders Engineering & Construction What Is A Commercial Building Permit Explanations on the various french building permits needed when planning a new build, renovating or altering property. Our comprehensive guide to obtaining a commercial building permit will help you avoid any setbacks along the way. What you need to know when preparing to build or renovate a property in france: What building permits are required for commercial construction projects? The. What Is A Commercial Building Permit.
From www.pequeatwp.org
2018 Commercial Building Code Pequea Township What Is A Commercial Building Permit Each municipality, county, and state will have its own combination of commercial building approvals that need to be met. The building permit allows to build any new construction which is not exempted from formality, or which is not subject to a prior. Explanations on the various french building permits needed when planning a new build, renovating or altering property. Building. What Is A Commercial Building Permit.
From studylib.net
Steps to Successfully Complete a Commercial Building Permit What Is A Commercial Building Permit Explanations on the various french building permits needed when planning a new build, renovating or altering property. The answer probably sounds all too familiar: A commercial building permit is an official document issued by a local government agency that allows you to commence. What you need to know when preparing to build or renovate a property in france: What building. What Is A Commercial Building Permit.
From www.ambarchitects.com
COH Commercial Building Permit AMB Architects What Is A Commercial Building Permit The answer probably sounds all too familiar: What building permits are required for commercial construction projects? What you need to know when preparing to build or renovate a property in france: The building permit allows to build any new construction which is not exempted from formality, or which is not subject to a prior. A commercial building permit is an. What Is A Commercial Building Permit.
From www.slideserve.com
PPT Commercial Building Permit What is it and Why You Need One What Is A Commercial Building Permit The building permit allows to build any new construction which is not exempted from formality, or which is not subject to a prior. Building plans and permits, builders' insurance, architects, engineers and more. Each municipality, county, and state will have its own combination of commercial building approvals that need to be met. What building permits are required for commercial construction. What Is A Commercial Building Permit.
From www.templateroller.com
City of Johns Creek, (United States) Commercial Building Permit What Is A Commercial Building Permit The answer probably sounds all too familiar: Building plans and permits, builders' insurance, architects, engineers and more. What you need to know when preparing to build or renovate a property in france: Explanations on the various french building permits needed when planning a new build, renovating or altering property. Our comprehensive guide to obtaining a commercial building permit will help. What Is A Commercial Building Permit.
From www.slideserve.com
PPT Commercial Building Permit What is it and Why You Need One What Is A Commercial Building Permit Our comprehensive guide to obtaining a commercial building permit will help you avoid any setbacks along the way. A commercial building permit is an official document issued by a local government agency that allows you to commence. What you need to know when preparing to build or renovate a property in france: Each municipality, county, and state will have its. What Is A Commercial Building Permit.
From solvepmproblems.com
Understanding Building Permits Basic Information & The Process Of Filing What Is A Commercial Building Permit The building permit allows to build any new construction which is not exempted from formality, or which is not subject to a prior. Our comprehensive guide to obtaining a commercial building permit will help you avoid any setbacks along the way. Explanations on the various french building permits needed when planning a new build, renovating or altering property. The answer. What Is A Commercial Building Permit.
From www.formsbank.com
Top 39 Building Permit Application Form Templates free to download in What Is A Commercial Building Permit The building permit allows to build any new construction which is not exempted from formality, or which is not subject to a prior. A commercial building permit is an official document issued by a local government agency that allows you to commence. Explanations on the various french building permits needed when planning a new build, renovating or altering property. What. What Is A Commercial Building Permit.
From studylib.net
Commercial Building Permit Application What Is A Commercial Building Permit The answer probably sounds all too familiar: Our comprehensive guide to obtaining a commercial building permit will help you avoid any setbacks along the way. What building permits are required for commercial construction projects? The building permit allows to build any new construction which is not exempted from formality, or which is not subject to a prior. Building plans and. What Is A Commercial Building Permit.
From www.templateroller.com
City of Fort Worth, Texas Building Permit Application Commercial What Is A Commercial Building Permit Explanations on the various french building permits needed when planning a new build, renovating or altering property. Our comprehensive guide to obtaining a commercial building permit will help you avoid any setbacks along the way. What building permits are required for commercial construction projects? Building plans and permits, builders' insurance, architects, engineers and more. A commercial building permit is an. What Is A Commercial Building Permit.
From www.uslegalforms.com
MA Commercial Building Permit Application City Of Northampton 2018 What Is A Commercial Building Permit Building plans and permits, builders' insurance, architects, engineers and more. The answer probably sounds all too familiar: Our comprehensive guide to obtaining a commercial building permit will help you avoid any setbacks along the way. The building permit allows to build any new construction which is not exempted from formality, or which is not subject to a prior. What building. What Is A Commercial Building Permit.
From www.slideserve.com
PPT Commercial Building Permit What is it and Why You Need One What Is A Commercial Building Permit The building permit allows to build any new construction which is not exempted from formality, or which is not subject to a prior. Each municipality, county, and state will have its own combination of commercial building approvals that need to be met. What building permits are required for commercial construction projects? Our comprehensive guide to obtaining a commercial building permit. What Is A Commercial Building Permit.
From www.templateroller.com
City of Austin, Texas Intake Checklist for Commercial Building Permit What Is A Commercial Building Permit Explanations on the various french building permits needed when planning a new build, renovating or altering property. What you need to know when preparing to build or renovate a property in france: The building permit allows to build any new construction which is not exempted from formality, or which is not subject to a prior. Building plans and permits, builders'. What Is A Commercial Building Permit.
From www.pdffiller.com
Fillable Online City of Bryan Commercial Building Permit Application What Is A Commercial Building Permit Each municipality, county, and state will have its own combination of commercial building approvals that need to be met. Building plans and permits, builders' insurance, architects, engineers and more. A commercial building permit is an official document issued by a local government agency that allows you to commence. The building permit allows to build any new construction which is not. What Is A Commercial Building Permit.
From www.pdffiller.com
Fillable Online New Construction Commercial Building Permit Checklist What Is A Commercial Building Permit Building plans and permits, builders' insurance, architects, engineers and more. The building permit allows to build any new construction which is not exempted from formality, or which is not subject to a prior. Each municipality, county, and state will have its own combination of commercial building approvals that need to be met. The answer probably sounds all too familiar: Our. What Is A Commercial Building Permit.
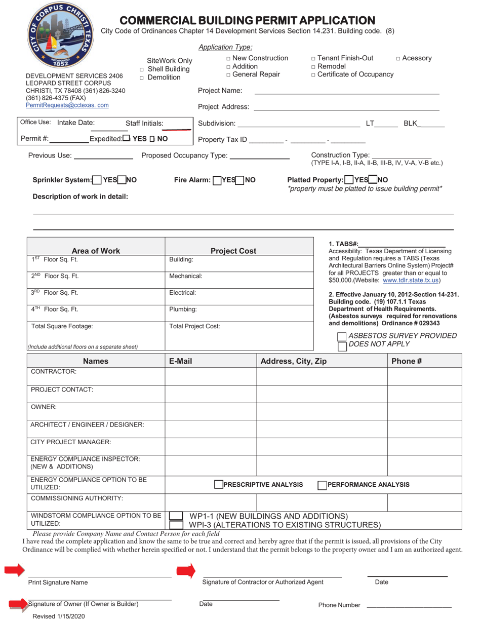
From www.templateroller.com
City of Corpus Christi, Texas Commercial Building Permit Application What Is A Commercial Building Permit Our comprehensive guide to obtaining a commercial building permit will help you avoid any setbacks along the way. Each municipality, county, and state will have its own combination of commercial building approvals that need to be met. Building plans and permits, builders' insurance, architects, engineers and more. What building permits are required for commercial construction projects? The building permit allows. What Is A Commercial Building Permit.
From fontanarchitecture.com
NYC Building Permits · Fontan Architecture What Is A Commercial Building Permit Each municipality, county, and state will have its own combination of commercial building approvals that need to be met. What building permits are required for commercial construction projects? The building permit allows to build any new construction which is not exempted from formality, or which is not subject to a prior. Our comprehensive guide to obtaining a commercial building permit. What Is A Commercial Building Permit.
From issuu.com
Commercial Building Permit What is it and Why You Need One by RAI What Is A Commercial Building Permit A commercial building permit is an official document issued by a local government agency that allows you to commence. The building permit allows to build any new construction which is not exempted from formality, or which is not subject to a prior. Explanations on the various french building permits needed when planning a new build, renovating or altering property. What. What Is A Commercial Building Permit.
From www.pdffiller.com
Fillable Online COMMERCIAL BUILDING PERMIT APPLICATION Please Print What Is A Commercial Building Permit The answer probably sounds all too familiar: Our comprehensive guide to obtaining a commercial building permit will help you avoid any setbacks along the way. Explanations on the various french building permits needed when planning a new build, renovating or altering property. What building permits are required for commercial construction projects? The building permit allows to build any new construction. What Is A Commercial Building Permit.
From www.cityofiona.org
Building Permits & Applications What Is A Commercial Building Permit Building plans and permits, builders' insurance, architects, engineers and more. The building permit allows to build any new construction which is not exempted from formality, or which is not subject to a prior. What you need to know when preparing to build or renovate a property in france: A commercial building permit is an official document issued by a local. What Is A Commercial Building Permit.