Is Code For Crash Barrier Painting . This document provides technical guidelines for providing type of median and metal crash barrier (semi rigid) on national highways in india. This document provides guidelines and design specifications for crash barriers, pedestrian railings and dividers in urban roads. This indian standard provides guidelines for selecting protective coatings and application methods for structures exposed to different. Find out how they reduce traffic jams, increase road safety, and require low maintenance. Metal crash barriers are road safety systems that prevent vehicles from colliding with obstacles and entering hazardous areas like bodies of water or. Learn about the specifications, installation, and benefits of metal beam crash barriers, a road safety device made of corrugated sheet steel beams. This document provides specifications and standards for crash barriers on high speed highways in india.
from www.youtube.com
Find out how they reduce traffic jams, increase road safety, and require low maintenance. This document provides guidelines and design specifications for crash barriers, pedestrian railings and dividers in urban roads. Metal crash barriers are road safety systems that prevent vehicles from colliding with obstacles and entering hazardous areas like bodies of water or. This indian standard provides guidelines for selecting protective coatings and application methods for structures exposed to different. Learn about the specifications, installation, and benefits of metal beam crash barriers, a road safety device made of corrugated sheet steel beams. This document provides specifications and standards for crash barriers on high speed highways in india. This document provides technical guidelines for providing type of median and metal crash barrier (semi rigid) on national highways in india.
construction Rcc crash barrier /divider YouTube
Is Code For Crash Barrier Painting Learn about the specifications, installation, and benefits of metal beam crash barriers, a road safety device made of corrugated sheet steel beams. This document provides technical guidelines for providing type of median and metal crash barrier (semi rigid) on national highways in india. This document provides specifications and standards for crash barriers on high speed highways in india. This indian standard provides guidelines for selecting protective coatings and application methods for structures exposed to different. Metal crash barriers are road safety systems that prevent vehicles from colliding with obstacles and entering hazardous areas like bodies of water or. Find out how they reduce traffic jams, increase road safety, and require low maintenance. This document provides guidelines and design specifications for crash barriers, pedestrian railings and dividers in urban roads. Learn about the specifications, installation, and benefits of metal beam crash barriers, a road safety device made of corrugated sheet steel beams.
From asgservices.co.uk
Crash Barriers ASG Services Is Code For Crash Barrier Painting This document provides specifications and standards for crash barriers on high speed highways in india. This document provides guidelines and design specifications for crash barriers, pedestrian railings and dividers in urban roads. Learn about the specifications, installation, and benefits of metal beam crash barriers, a road safety device made of corrugated sheet steel beams. This document provides technical guidelines for. Is Code For Crash Barrier Painting.
From www.callaghanfencing.com
CRASH BARRIER SERVICES SOMERSET Callaghan Fencing Is Code For Crash Barrier Painting This indian standard provides guidelines for selecting protective coatings and application methods for structures exposed to different. Learn about the specifications, installation, and benefits of metal beam crash barriers, a road safety device made of corrugated sheet steel beams. This document provides specifications and standards for crash barriers on high speed highways in india. Metal crash barriers are road safety. Is Code For Crash Barrier Painting.
From www.youtube.com
Crash Barrier Painting Graco LineLazer V 5900 HP Automatic machine Is Code For Crash Barrier Painting Metal crash barriers are road safety systems that prevent vehicles from colliding with obstacles and entering hazardous areas like bodies of water or. This document provides technical guidelines for providing type of median and metal crash barrier (semi rigid) on national highways in india. Learn about the specifications, installation, and benefits of metal beam crash barriers, a road safety device. Is Code For Crash Barrier Painting.
From www.youtube.com
Kerb and Crash Barrier painting in Roads and Highway Engineering in Is Code For Crash Barrier Painting Find out how they reduce traffic jams, increase road safety, and require low maintenance. This indian standard provides guidelines for selecting protective coatings and application methods for structures exposed to different. Metal crash barriers are road safety systems that prevent vehicles from colliding with obstacles and entering hazardous areas like bodies of water or. Learn about the specifications, installation, and. Is Code For Crash Barrier Painting.
From www.youtube.com
TYPES OF CRASH BARRIERS PRACTICAL APPLICATION BOOKS TO REALITY Is Code For Crash Barrier Painting This document provides technical guidelines for providing type of median and metal crash barrier (semi rigid) on national highways in india. Find out how they reduce traffic jams, increase road safety, and require low maintenance. This document provides guidelines and design specifications for crash barriers, pedestrian railings and dividers in urban roads. This indian standard provides guidelines for selecting protective. Is Code For Crash Barrier Painting.
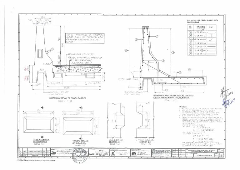
From www.scribd.com
Typical Detail of Crash Barrier With Friction SlabApproved PDF Is Code For Crash Barrier Painting Learn about the specifications, installation, and benefits of metal beam crash barriers, a road safety device made of corrugated sheet steel beams. Find out how they reduce traffic jams, increase road safety, and require low maintenance. This document provides technical guidelines for providing type of median and metal crash barrier (semi rigid) on national highways in india. This document provides. Is Code For Crash Barrier Painting.
From carringtonswa.com
Crash Barriers & End Treatments Carrington Is Code For Crash Barrier Painting Learn about the specifications, installation, and benefits of metal beam crash barriers, a road safety device made of corrugated sheet steel beams. Find out how they reduce traffic jams, increase road safety, and require low maintenance. This document provides specifications and standards for crash barriers on high speed highways in india. This document provides guidelines and design specifications for crash. Is Code For Crash Barrier Painting.
From www.cannondigi.com
Is Code For Metal Beam Crash Barrier The Best Picture Of Beam Is Code For Crash Barrier Painting This document provides technical guidelines for providing type of median and metal crash barrier (semi rigid) on national highways in india. This document provides specifications and standards for crash barriers on high speed highways in india. Learn about the specifications, installation, and benefits of metal beam crash barriers, a road safety device made of corrugated sheet steel beams. This indian. Is Code For Crash Barrier Painting.
From law.resource.org
STANDARD SPECIFICATIONS AND CODE OF PRACTICE FOR ROAD BRIDGES Is Code For Crash Barrier Painting This document provides technical guidelines for providing type of median and metal crash barrier (semi rigid) on national highways in india. Metal crash barriers are road safety systems that prevent vehicles from colliding with obstacles and entering hazardous areas like bodies of water or. Find out how they reduce traffic jams, increase road safety, and require low maintenance. This indian. Is Code For Crash Barrier Painting.
From www.slideshare.net
What are the components of crash barrier Is Code For Crash Barrier Painting This document provides guidelines and design specifications for crash barriers, pedestrian railings and dividers in urban roads. Find out how they reduce traffic jams, increase road safety, and require low maintenance. Metal crash barriers are road safety systems that prevent vehicles from colliding with obstacles and entering hazardous areas like bodies of water or. This document provides technical guidelines for. Is Code For Crash Barrier Painting.
From www.indiamart.com
Its Crash Barrier Paint, For Roads at Rs 110/litre in Mumbai ID Is Code For Crash Barrier Painting Find out how they reduce traffic jams, increase road safety, and require low maintenance. This document provides guidelines and design specifications for crash barriers, pedestrian railings and dividers in urban roads. Learn about the specifications, installation, and benefits of metal beam crash barriers, a road safety device made of corrugated sheet steel beams. This indian standard provides guidelines for selecting. Is Code For Crash Barrier Painting.
From www.youtube.com
RCC Crash Barrier Part Detail 2020 YouTube Is Code For Crash Barrier Painting Metal crash barriers are road safety systems that prevent vehicles from colliding with obstacles and entering hazardous areas like bodies of water or. This indian standard provides guidelines for selecting protective coatings and application methods for structures exposed to different. Learn about the specifications, installation, and benefits of metal beam crash barriers, a road safety device made of corrugated sheet. Is Code For Crash Barrier Painting.
From www.youtube.com
crash barrier painting crash barrier shuttering metal beam construction Is Code For Crash Barrier Painting Find out how they reduce traffic jams, increase road safety, and require low maintenance. Metal crash barriers are road safety systems that prevent vehicles from colliding with obstacles and entering hazardous areas like bodies of water or. This document provides specifications and standards for crash barriers on high speed highways in india. Learn about the specifications, installation, and benefits of. Is Code For Crash Barrier Painting.
From www.indiamart.com
Road Crash Barrier Painting Services at Rs 70/square meter Is Code For Crash Barrier Painting Learn about the specifications, installation, and benefits of metal beam crash barriers, a road safety device made of corrugated sheet steel beams. This document provides technical guidelines for providing type of median and metal crash barrier (semi rigid) on national highways in india. Find out how they reduce traffic jams, increase road safety, and require low maintenance. This indian standard. Is Code For Crash Barrier Painting.
From www.indiamart.com
Yellow Road Safety Rcc Crash Barrier Painting at best price in Is Code For Crash Barrier Painting Learn about the specifications, installation, and benefits of metal beam crash barriers, a road safety device made of corrugated sheet steel beams. This indian standard provides guidelines for selecting protective coatings and application methods for structures exposed to different. This document provides specifications and standards for crash barriers on high speed highways in india. Metal crash barriers are road safety. Is Code For Crash Barrier Painting.
From www.youtube.com
MBCB Metal Beam Crash Barrier Highway construction Safety barrier MBCB Is Code For Crash Barrier Painting This document provides technical guidelines for providing type of median and metal crash barrier (semi rigid) on national highways in india. Metal crash barriers are road safety systems that prevent vehicles from colliding with obstacles and entering hazardous areas like bodies of water or. Find out how they reduce traffic jams, increase road safety, and require low maintenance. This document. Is Code For Crash Barrier Painting.
From www.scribd.com
Drawing of Crash Barrier PDF PDF Nature Is Code For Crash Barrier Painting This document provides technical guidelines for providing type of median and metal crash barrier (semi rigid) on national highways in india. Metal crash barriers are road safety systems that prevent vehicles from colliding with obstacles and entering hazardous areas like bodies of water or. Find out how they reduce traffic jams, increase road safety, and require low maintenance. This document. Is Code For Crash Barrier Painting.
From www.scribd.com
Parapet Wall With Crash Barrier PDF Civil Engineering Economic Is Code For Crash Barrier Painting This indian standard provides guidelines for selecting protective coatings and application methods for structures exposed to different. This document provides guidelines and design specifications for crash barriers, pedestrian railings and dividers in urban roads. This document provides technical guidelines for providing type of median and metal crash barrier (semi rigid) on national highways in india. This document provides specifications and. Is Code For Crash Barrier Painting.
From www.indiamart.com
Road Crash Barrier Painting Services at Rs 90/square meter in Dhule Is Code For Crash Barrier Painting This document provides guidelines and design specifications for crash barriers, pedestrian railings and dividers in urban roads. Metal crash barriers are road safety systems that prevent vehicles from colliding with obstacles and entering hazardous areas like bodies of water or. This document provides specifications and standards for crash barriers on high speed highways in india. This indian standard provides guidelines. Is Code For Crash Barrier Painting.
From lemonfencing.co.uk
Safety Barrier Lemon Fencing Specialist in Essex Is Code For Crash Barrier Painting This document provides technical guidelines for providing type of median and metal crash barrier (semi rigid) on national highways in india. Metal crash barriers are road safety systems that prevent vehicles from colliding with obstacles and entering hazardous areas like bodies of water or. This document provides specifications and standards for crash barriers on high speed highways in india. This. Is Code For Crash Barrier Painting.
From www.interclamp.com
Armco Type Crash Barriers Is Code For Crash Barrier Painting This document provides guidelines and design specifications for crash barriers, pedestrian railings and dividers in urban roads. This indian standard provides guidelines for selecting protective coatings and application methods for structures exposed to different. Metal crash barriers are road safety systems that prevent vehicles from colliding with obstacles and entering hazardous areas like bodies of water or. This document provides. Is Code For Crash Barrier Painting.
From www.youtube.com
Crash Barrier Concrete Quantity Calculation CrashBarrier YouTube Is Code For Crash Barrier Painting This document provides guidelines and design specifications for crash barriers, pedestrian railings and dividers in urban roads. This document provides technical guidelines for providing type of median and metal crash barrier (semi rigid) on national highways in india. Find out how they reduce traffic jams, increase road safety, and require low maintenance. This document provides specifications and standards for crash. Is Code For Crash Barrier Painting.
From utkarshindia.in
All About A Thrie Beam Crash Barrier Thrie Beam Crash Barrier Is Code For Crash Barrier Painting Learn about the specifications, installation, and benefits of metal beam crash barriers, a road safety device made of corrugated sheet steel beams. Metal crash barriers are road safety systems that prevent vehicles from colliding with obstacles and entering hazardous areas like bodies of water or. Find out how they reduce traffic jams, increase road safety, and require low maintenance. This. Is Code For Crash Barrier Painting.
From www.indiamart.com
Crash Barrier Painting Works at best price in Delhi Is Code For Crash Barrier Painting Learn about the specifications, installation, and benefits of metal beam crash barriers, a road safety device made of corrugated sheet steel beams. Find out how they reduce traffic jams, increase road safety, and require low maintenance. This document provides guidelines and design specifications for crash barriers, pedestrian railings and dividers in urban roads. Metal crash barriers are road safety systems. Is Code For Crash Barrier Painting.
From www.indiamart.com
Crash Barrier Painting Works in New Delhi Is Code For Crash Barrier Painting This document provides specifications and standards for crash barriers on high speed highways in india. Learn about the specifications, installation, and benefits of metal beam crash barriers, a road safety device made of corrugated sheet steel beams. This indian standard provides guidelines for selecting protective coatings and application methods for structures exposed to different. This document provides technical guidelines for. Is Code For Crash Barrier Painting.
From eziklampsystems.com
Armco Crash Barriers A Buyer’s Guide Ezi Klamp Systems Is Code For Crash Barrier Painting Find out how they reduce traffic jams, increase road safety, and require low maintenance. Metal crash barriers are road safety systems that prevent vehicles from colliding with obstacles and entering hazardous areas like bodies of water or. This document provides specifications and standards for crash barriers on high speed highways in india. This document provides technical guidelines for providing type. Is Code For Crash Barrier Painting.
From www.scribd.com
Crash Barrier Drawing PDF Is Code For Crash Barrier Painting Find out how they reduce traffic jams, increase road safety, and require low maintenance. This document provides technical guidelines for providing type of median and metal crash barrier (semi rigid) on national highways in india. This document provides guidelines and design specifications for crash barriers, pedestrian railings and dividers in urban roads. This document provides specifications and standards for crash. Is Code For Crash Barrier Painting.
From www.youtube.com
Kerb Painting & Crash Barriers Painting YouTube Is Code For Crash Barrier Painting Learn about the specifications, installation, and benefits of metal beam crash barriers, a road safety device made of corrugated sheet steel beams. Metal crash barriers are road safety systems that prevent vehicles from colliding with obstacles and entering hazardous areas like bodies of water or. Find out how they reduce traffic jams, increase road safety, and require low maintenance. This. Is Code For Crash Barrier Painting.
From www.scribd.com
Crash Barrier Design Classical Mechanics Mechanical Engineering Is Code For Crash Barrier Painting This document provides guidelines and design specifications for crash barriers, pedestrian railings and dividers in urban roads. Find out how they reduce traffic jams, increase road safety, and require low maintenance. This document provides specifications and standards for crash barriers on high speed highways in india. This indian standard provides guidelines for selecting protective coatings and application methods for structures. Is Code For Crash Barrier Painting.
From www.researchgate.net
Dimensions and reinforcement details of the barrier prototypes for Is Code For Crash Barrier Painting This document provides guidelines and design specifications for crash barriers, pedestrian railings and dividers in urban roads. Find out how they reduce traffic jams, increase road safety, and require low maintenance. Learn about the specifications, installation, and benefits of metal beam crash barriers, a road safety device made of corrugated sheet steel beams. This indian standard provides guidelines for selecting. Is Code For Crash Barrier Painting.
From law.resource.org
MANUAL OF SPECIFICATIONS AND STANDARDS FOR EXPRESSWAYS Is Code For Crash Barrier Painting This document provides specifications and standards for crash barriers on high speed highways in india. Find out how they reduce traffic jams, increase road safety, and require low maintenance. This document provides guidelines and design specifications for crash barriers, pedestrian railings and dividers in urban roads. Learn about the specifications, installation, and benefits of metal beam crash barriers, a road. Is Code For Crash Barrier Painting.
From www.youtube.com
construction Rcc crash barrier /divider YouTube Is Code For Crash Barrier Painting Find out how they reduce traffic jams, increase road safety, and require low maintenance. This indian standard provides guidelines for selecting protective coatings and application methods for structures exposed to different. This document provides guidelines and design specifications for crash barriers, pedestrian railings and dividers in urban roads. Metal crash barriers are road safety systems that prevent vehicles from colliding. Is Code For Crash Barrier Painting.
From www.rpmhire.com.au
Crash Barrier Hire Crash Cushions & Traffic Barriers Is Code For Crash Barrier Painting This indian standard provides guidelines for selecting protective coatings and application methods for structures exposed to different. This document provides technical guidelines for providing type of median and metal crash barrier (semi rigid) on national highways in india. This document provides guidelines and design specifications for crash barriers, pedestrian railings and dividers in urban roads. Find out how they reduce. Is Code For Crash Barrier Painting.
From www.indiamart.com
Road Crash Barrier Painting Services at Rs 70/square meter in Dhule Is Code For Crash Barrier Painting This document provides technical guidelines for providing type of median and metal crash barrier (semi rigid) on national highways in india. Metal crash barriers are road safety systems that prevent vehicles from colliding with obstacles and entering hazardous areas like bodies of water or. This document provides specifications and standards for crash barriers on high speed highways in india. This. Is Code For Crash Barrier Painting.
From www.scribd.com
Typical Detail of Friction Slab With Crash Barrier (1) Layout PDF Is Code For Crash Barrier Painting This document provides guidelines and design specifications for crash barriers, pedestrian railings and dividers in urban roads. This indian standard provides guidelines for selecting protective coatings and application methods for structures exposed to different. Find out how they reduce traffic jams, increase road safety, and require low maintenance. Metal crash barriers are road safety systems that prevent vehicles from colliding. Is Code For Crash Barrier Painting.