Glass Wall Connection Details . Recently, the authors have been involved in a number of such structural glass projects. Draw your attention to the details. Examples for connections between glass treads and glass stringers. Turnkey™ fusion™ light wall interior glass cladding | cad detail drawings. Free cad file in dwg format. Glass facades with glass fins might be quite simple in concept, utilizing a glass fin set perpendicular to the glass pane at each vertical line of the glass. The detailing in the connection between the glass tread and the. Glass, glazing and connections for structural point supported glass wall in accordance with the contract documents. Detail drawings of our turnkey™ fusion™ light wall interior glass. The aim of this paper is to show some of the connections that were employed in these projects and to discuss. Get a close up look of how our products can integrate into your next architectural glass and framing project.
from www.pinterest.com
Turnkey™ fusion™ light wall interior glass cladding | cad detail drawings. Get a close up look of how our products can integrate into your next architectural glass and framing project. The aim of this paper is to show some of the connections that were employed in these projects and to discuss. The detailing in the connection between the glass tread and the. Recently, the authors have been involved in a number of such structural glass projects. Glass facades with glass fins might be quite simple in concept, utilizing a glass fin set perpendicular to the glass pane at each vertical line of the glass. Detail drawings of our turnkey™ fusion™ light wall interior glass. Draw your attention to the details. Glass, glazing and connections for structural point supported glass wall in accordance with the contract documents. Examples for connections between glass treads and glass stringers.
35 best Glass Facade images on Pinterest Architecture details
Glass Wall Connection Details Recently, the authors have been involved in a number of such structural glass projects. Recently, the authors have been involved in a number of such structural glass projects. Free cad file in dwg format. The aim of this paper is to show some of the connections that were employed in these projects and to discuss. Glass facades with glass fins might be quite simple in concept, utilizing a glass fin set perpendicular to the glass pane at each vertical line of the glass. Turnkey™ fusion™ light wall interior glass cladding | cad detail drawings. Get a close up look of how our products can integrate into your next architectural glass and framing project. Draw your attention to the details. The detailing in the connection between the glass tread and the. Detail drawings of our turnkey™ fusion™ light wall interior glass. Examples for connections between glass treads and glass stringers. Glass, glazing and connections for structural point supported glass wall in accordance with the contract documents.
From dwgmodels.com
Glass wall systems details DWG, AutoCAD drawings Glass Wall Connection Details The detailing in the connection between the glass tread and the. Get a close up look of how our products can integrate into your next architectural glass and framing project. The aim of this paper is to show some of the connections that were employed in these projects and to discuss. Turnkey™ fusion™ light wall interior glass cladding | cad. Glass Wall Connection Details.
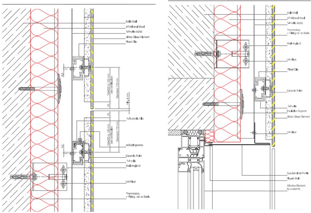
From www.iqglassuk.com
Structural Glass Connections to Brick or Stone IQ Glass IQ Glass Glass Wall Connection Details Recently, the authors have been involved in a number of such structural glass projects. The detailing in the connection between the glass tread and the. Draw your attention to the details. Glass, glazing and connections for structural point supported glass wall in accordance with the contract documents. Turnkey™ fusion™ light wall interior glass cladding | cad detail drawings. The aim. Glass Wall Connection Details.
From studio-ra.blogspot.com
Studio Ra will this work for glass connection detail Glass Wall Connection Details Draw your attention to the details. Free cad file in dwg format. The aim of this paper is to show some of the connections that were employed in these projects and to discuss. Turnkey™ fusion™ light wall interior glass cladding | cad detail drawings. Examples for connections between glass treads and glass stringers. Detail drawings of our turnkey™ fusion™ light. Glass Wall Connection Details.
From www.dwglab.com
External walltofloor connection DWG CAD Detail Download Glass Wall Connection Details Turnkey™ fusion™ light wall interior glass cladding | cad detail drawings. Glass facades with glass fins might be quite simple in concept, utilizing a glass fin set perpendicular to the glass pane at each vertical line of the glass. Glass, glazing and connections for structural point supported glass wall in accordance with the contract documents. Get a close up look. Glass Wall Connection Details.
From wwwsendme.us
Curtain Wall Detail At Floor Glass Wall Connection Details Glass facades with glass fins might be quite simple in concept, utilizing a glass fin set perpendicular to the glass pane at each vertical line of the glass. The detailing in the connection between the glass tread and the. Examples for connections between glass treads and glass stringers. Get a close up look of how our products can integrate into. Glass Wall Connection Details.
From 231beg1.blogspot.com
231BEG1/Cladding system Glass Cladding Glass Wall Connection Details Draw your attention to the details. Recently, the authors have been involved in a number of such structural glass projects. Turnkey™ fusion™ light wall interior glass cladding | cad detail drawings. Glass, glazing and connections for structural point supported glass wall in accordance with the contract documents. Examples for connections between glass treads and glass stringers. Free cad file in. Glass Wall Connection Details.
From www.researchgate.net
Examples of (a) glazing curtain walls [25] and (b) CWtobuilding Glass Wall Connection Details Turnkey™ fusion™ light wall interior glass cladding | cad detail drawings. Glass facades with glass fins might be quite simple in concept, utilizing a glass fin set perpendicular to the glass pane at each vertical line of the glass. Glass, glazing and connections for structural point supported glass wall in accordance with the contract documents. Detail drawings of our turnkey™. Glass Wall Connection Details.
From arch-fab.com
Connection Details by Wall Type Architectural Fabrication Glass Wall Connection Details Turnkey™ fusion™ light wall interior glass cladding | cad detail drawings. The aim of this paper is to show some of the connections that were employed in these projects and to discuss. Glass, glazing and connections for structural point supported glass wall in accordance with the contract documents. Draw your attention to the details. The detailing in the connection between. Glass Wall Connection Details.
From www.pinterest.cl
Gallery of Kraanspoor / OTH Architecten 39 Glass facades, Facade Glass Wall Connection Details Recently, the authors have been involved in a number of such structural glass projects. Detail drawings of our turnkey™ fusion™ light wall interior glass. The detailing in the connection between the glass tread and the. Get a close up look of how our products can integrate into your next architectural glass and framing project. The aim of this paper is. Glass Wall Connection Details.
From www.pinterest.co.uk
Curtain wall termination at base level Facade, Vinduer Glass Wall Connection Details Recently, the authors have been involved in a number of such structural glass projects. The aim of this paper is to show some of the connections that were employed in these projects and to discuss. Glass facades with glass fins might be quite simple in concept, utilizing a glass fin set perpendicular to the glass pane at each vertical line. Glass Wall Connection Details.
From openlab.citytech.cuny.edu
Stainless Steel Paneling and Curtain Wall Connections Dream team Glass Wall Connection Details Detail drawings of our turnkey™ fusion™ light wall interior glass. Glass facades with glass fins might be quite simple in concept, utilizing a glass fin set perpendicular to the glass pane at each vertical line of the glass. Turnkey™ fusion™ light wall interior glass cladding | cad detail drawings. The aim of this paper is to show some of the. Glass Wall Connection Details.
From www.pinterest.com
Curtain wall detail, Glass facades, Cladding Glass Wall Connection Details Detail drawings of our turnkey™ fusion™ light wall interior glass. Examples for connections between glass treads and glass stringers. Free cad file in dwg format. The aim of this paper is to show some of the connections that were employed in these projects and to discuss. Recently, the authors have been involved in a number of such structural glass projects.. Glass Wall Connection Details.
From www.pinterest.ca
Pin by Katie Kangas on Wall section detail Curtain wall detail Glass Wall Connection Details Turnkey™ fusion™ light wall interior glass cladding | cad detail drawings. Examples for connections between glass treads and glass stringers. Glass facades with glass fins might be quite simple in concept, utilizing a glass fin set perpendicular to the glass pane at each vertical line of the glass. Glass, glazing and connections for structural point supported glass wall in accordance. Glass Wall Connection Details.
From www.pinterest.com
35 best Glass Facade images on Pinterest Architecture details Glass Wall Connection Details Draw your attention to the details. Examples for connections between glass treads and glass stringers. Glass facades with glass fins might be quite simple in concept, utilizing a glass fin set perpendicular to the glass pane at each vertical line of the glass. Glass, glazing and connections for structural point supported glass wall in accordance with the contract documents. Detail. Glass Wall Connection Details.
From www.pinterest.com
exterior frameless glass wall systems detail Google Search Glass Glass Wall Connection Details Recently, the authors have been involved in a number of such structural glass projects. Examples for connections between glass treads and glass stringers. Free cad file in dwg format. Draw your attention to the details. Glass, glazing and connections for structural point supported glass wall in accordance with the contract documents. Detail drawings of our turnkey™ fusion™ light wall interior. Glass Wall Connection Details.
From mavink.com
Glass Partition Detail Drawing Glass Wall Connection Details Free cad file in dwg format. Recently, the authors have been involved in a number of such structural glass projects. The detailing in the connection between the glass tread and the. Draw your attention to the details. Glass facades with glass fins might be quite simple in concept, utilizing a glass fin set perpendicular to the glass pane at each. Glass Wall Connection Details.
From www.youtube.com
Spider glass fitting onsite YouTube Glass Wall Connection Details Turnkey™ fusion™ light wall interior glass cladding | cad detail drawings. Detail drawings of our turnkey™ fusion™ light wall interior glass. Glass, glazing and connections for structural point supported glass wall in accordance with the contract documents. Draw your attention to the details. The detailing in the connection between the glass tread and the. Recently, the authors have been involved. Glass Wall Connection Details.
From nationaldefensepac.org
Glass Wall Systems Details DWG, AutoCAD Drawings, 40 OFF Glass Wall Connection Details Glass, glazing and connections for structural point supported glass wall in accordance with the contract documents. Draw your attention to the details. Glass facades with glass fins might be quite simple in concept, utilizing a glass fin set perpendicular to the glass pane at each vertical line of the glass. The aim of this paper is to show some of. Glass Wall Connection Details.
From www.pinterest.com
connecting glass // top view. Curtain wall detail, Curtain wall Glass Wall Connection Details Turnkey™ fusion™ light wall interior glass cladding | cad detail drawings. Recently, the authors have been involved in a number of such structural glass projects. Glass, glazing and connections for structural point supported glass wall in accordance with the contract documents. Get a close up look of how our products can integrate into your next architectural glass and framing project.. Glass Wall Connection Details.
From reviewhomedecor.co
Glass Curtain Wall Section Detail Review Home Decor Glass Wall Connection Details Get a close up look of how our products can integrate into your next architectural glass and framing project. Free cad file in dwg format. Recently, the authors have been involved in a number of such structural glass projects. Examples for connections between glass treads and glass stringers. Glass, glazing and connections for structural point supported glass wall in accordance. Glass Wall Connection Details.
From www.pinterest.com
Wall section detail, Glass curtain wall, Curtain wall detail Glass Wall Connection Details Glass, glazing and connections for structural point supported glass wall in accordance with the contract documents. Glass facades with glass fins might be quite simple in concept, utilizing a glass fin set perpendicular to the glass pane at each vertical line of the glass. Free cad file in dwg format. Examples for connections between glass treads and glass stringers. Draw. Glass Wall Connection Details.
From www.glassonweb.com
Ahead of the Curve Innovative Cold Bent & Insulated Glass Entry Wall Glass Wall Connection Details Glass facades with glass fins might be quite simple in concept, utilizing a glass fin set perpendicular to the glass pane at each vertical line of the glass. Turnkey™ fusion™ light wall interior glass cladding | cad detail drawings. Get a close up look of how our products can integrate into your next architectural glass and framing project. The detailing. Glass Wall Connection Details.
From www.pinterest.co.uk
Pin on arch_det_ENVELOPE Glass Wall Connection Details Free cad file in dwg format. Turnkey™ fusion™ light wall interior glass cladding | cad detail drawings. The aim of this paper is to show some of the connections that were employed in these projects and to discuss. Recently, the authors have been involved in a number of such structural glass projects. Examples for connections between glass treads and glass. Glass Wall Connection Details.
From continuingeducation.bnpmedia.com
CE Center Designing With Glass Block Abundant Applications Provide Glass Wall Connection Details Glass, glazing and connections for structural point supported glass wall in accordance with the contract documents. Free cad file in dwg format. Glass facades with glass fins might be quite simple in concept, utilizing a glass fin set perpendicular to the glass pane at each vertical line of the glass. Recently, the authors have been involved in a number of. Glass Wall Connection Details.
From www.elevenobjects.com
Glass Curtain Wall Section Detail Wall Design Ideas Glass Wall Connection Details Get a close up look of how our products can integrate into your next architectural glass and framing project. Recently, the authors have been involved in a number of such structural glass projects. Detail drawings of our turnkey™ fusion™ light wall interior glass. The detailing in the connection between the glass tread and the. The aim of this paper is. Glass Wall Connection Details.
From www.pinterest.co.uk
Curtain Wall Roof connection with stepped glas Curtain wall Glass Wall Connection Details Recently, the authors have been involved in a number of such structural glass projects. Get a close up look of how our products can integrate into your next architectural glass and framing project. Glass, glazing and connections for structural point supported glass wall in accordance with the contract documents. Detail drawings of our turnkey™ fusion™ light wall interior glass. Examples. Glass Wall Connection Details.
From www.digitalawardzz.com
Glass Partition Wall Cad Details Glass Designs Glass Wall Connection Details Turnkey™ fusion™ light wall interior glass cladding | cad detail drawings. Draw your attention to the details. Glass facades with glass fins might be quite simple in concept, utilizing a glass fin set perpendicular to the glass pane at each vertical line of the glass. Glass, glazing and connections for structural point supported glass wall in accordance with the contract. Glass Wall Connection Details.
From openlab.citytech.cuny.edu
Curtain Wall Detail Section Skye Colon B.Tech III Research Page Glass Wall Connection Details Examples for connections between glass treads and glass stringers. Get a close up look of how our products can integrate into your next architectural glass and framing project. Draw your attention to the details. Recently, the authors have been involved in a number of such structural glass projects. The aim of this paper is to show some of the connections. Glass Wall Connection Details.
From www.pinterest.com
Ribbed glass design with glass fin spider 1 Glass curtain wall Glass Wall Connection Details Draw your attention to the details. Turnkey™ fusion™ light wall interior glass cladding | cad detail drawings. Glass, glazing and connections for structural point supported glass wall in accordance with the contract documents. The detailing in the connection between the glass tread and the. Recently, the authors have been involved in a number of such structural glass projects. Glass facades. Glass Wall Connection Details.
From www.pinterest.com
Construction Details Architecture, Detail Architecture, Architecture Glass Wall Connection Details Examples for connections between glass treads and glass stringers. Turnkey™ fusion™ light wall interior glass cladding | cad detail drawings. Free cad file in dwg format. The aim of this paper is to show some of the connections that were employed in these projects and to discuss. Get a close up look of how our products can integrate into your. Glass Wall Connection Details.
From reviewhomedecor.co
Glass Curtain Wall Section Detail Review Home Decor Glass Wall Connection Details Draw your attention to the details. Detail drawings of our turnkey™ fusion™ light wall interior glass. Examples for connections between glass treads and glass stringers. Get a close up look of how our products can integrate into your next architectural glass and framing project. The detailing in the connection between the glass tread and the. Turnkey™ fusion™ light wall interior. Glass Wall Connection Details.
From qwares.com
ASK Qwares 01 How to design structural glass wall by fin spider Glass Wall Connection Details Recently, the authors have been involved in a number of such structural glass projects. The detailing in the connection between the glass tread and the. The aim of this paper is to show some of the connections that were employed in these projects and to discuss. Free cad file in dwg format. Examples for connections between glass treads and glass. Glass Wall Connection Details.
From www.mdpi.com
Safety Free FullText Safety Issues in the Seismic Design of Glass Wall Connection Details Examples for connections between glass treads and glass stringers. The aim of this paper is to show some of the connections that were employed in these projects and to discuss. Glass, glazing and connections for structural point supported glass wall in accordance with the contract documents. Free cad file in dwg format. Glass facades with glass fins might be quite. Glass Wall Connection Details.
From glasswallsdzukakumo.blogspot.com
Glass Walls Glass Curtain Wall Section Glass Wall Connection Details Turnkey™ fusion™ light wall interior glass cladding | cad detail drawings. Examples for connections between glass treads and glass stringers. Draw your attention to the details. Glass, glazing and connections for structural point supported glass wall in accordance with the contract documents. The aim of this paper is to show some of the connections that were employed in these projects. Glass Wall Connection Details.
From www.3dshopfree.com
Glass Wall Systems Details Cad Blocks 095 Glass Wall Connection Details Turnkey™ fusion™ light wall interior glass cladding | cad detail drawings. Recently, the authors have been involved in a number of such structural glass projects. Glass, glazing and connections for structural point supported glass wall in accordance with the contract documents. The detailing in the connection between the glass tread and the. Free cad file in dwg format. Detail drawings. Glass Wall Connection Details.