Fault Level Explained . How fault levels are changing across the uk electricity network, taking into account how the proportional contribution of fault level from the. The document outlines the procedure for calculating fault levels, which involves representing the system with a single line diagram, choosing a base mva,. The values obtained should be compared against the relevant installation design criteria to confirm that the fault rating of each device is not less than the maximum prospective. Fault currents are caused by. Either by enquiry, measurement or calculation, prospective fault current (ipf) should be determined at every relevant point within an installation (regulation 434.1). This technical article represents the case study of fault level calculations for an mv/lv network using the direct method. There are many advantages of the direct approach, and the main of them is that it directly uses the system single line diagram, equipment data, and basic electrical equations. A fault current is an unintended, uncontrolled, high current flow through an electrical system. This chapter presents the calculation of short circuit currents when fault occur in the electrical distribution network.
from www.insightsonindia.com
There are many advantages of the direct approach, and the main of them is that it directly uses the system single line diagram, equipment data, and basic electrical equations. The values obtained should be compared against the relevant installation design criteria to confirm that the fault rating of each device is not less than the maximum prospective. This chapter presents the calculation of short circuit currents when fault occur in the electrical distribution network. A fault current is an unintended, uncontrolled, high current flow through an electrical system. Either by enquiry, measurement or calculation, prospective fault current (ipf) should be determined at every relevant point within an installation (regulation 434.1). The document outlines the procedure for calculating fault levels, which involves representing the system with a single line diagram, choosing a base mva,. How fault levels are changing across the uk electricity network, taking into account how the proportional contribution of fault level from the. Fault currents are caused by. This technical article represents the case study of fault level calculations for an mv/lv network using the direct method.
Fault styles (types) INSIGHTS IAS Simplifying UPSC IAS Exam Preparation
Fault Level Explained This technical article represents the case study of fault level calculations for an mv/lv network using the direct method. Either by enquiry, measurement or calculation, prospective fault current (ipf) should be determined at every relevant point within an installation (regulation 434.1). How fault levels are changing across the uk electricity network, taking into account how the proportional contribution of fault level from the. The values obtained should be compared against the relevant installation design criteria to confirm that the fault rating of each device is not less than the maximum prospective. Fault currents are caused by. This technical article represents the case study of fault level calculations for an mv/lv network using the direct method. This chapter presents the calculation of short circuit currents when fault occur in the electrical distribution network. There are many advantages of the direct approach, and the main of them is that it directly uses the system single line diagram, equipment data, and basic electrical equations. A fault current is an unintended, uncontrolled, high current flow through an electrical system. The document outlines the procedure for calculating fault levels, which involves representing the system with a single line diagram, choosing a base mva,.
From www.studyiq.com
Types of Faults, Causes, Types, Normal, Reverse, Diagram Fault Level Explained There are many advantages of the direct approach, and the main of them is that it directly uses the system single line diagram, equipment data, and basic electrical equations. This chapter presents the calculation of short circuit currents when fault occur in the electrical distribution network. The document outlines the procedure for calculating fault levels, which involves representing the system. Fault Level Explained.
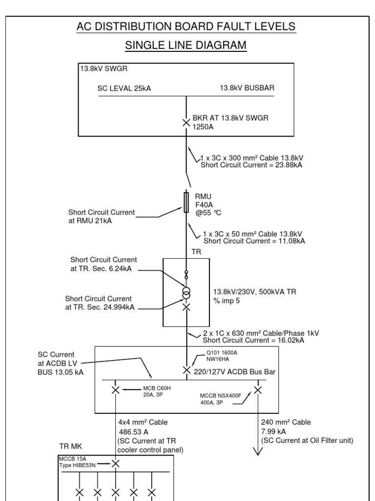
From www.scribd.com
8142 Acdb Fault Levels Sld Model (1) Fault Level Explained The document outlines the procedure for calculating fault levels, which involves representing the system with a single line diagram, choosing a base mva,. Fault currents are caused by. This chapter presents the calculation of short circuit currents when fault occur in the electrical distribution network. A fault current is an unintended, uncontrolled, high current flow through an electrical system. The. Fault Level Explained.
From www.youtube.com
Earth Fault Loop Impedance Path Explained Zs = Ze + (R1 + R2) Earthing Fault Level Explained There are many advantages of the direct approach, and the main of them is that it directly uses the system single line diagram, equipment data, and basic electrical equations. This chapter presents the calculation of short circuit currents when fault occur in the electrical distribution network. The values obtained should be compared against the relevant installation design criteria to confirm. Fault Level Explained.
From www.scribd.com
Fault Level Calculation Methods PDF Electrical Network Transformer Fault Level Explained This chapter presents the calculation of short circuit currents when fault occur in the electrical distribution network. The values obtained should be compared against the relevant installation design criteria to confirm that the fault rating of each device is not less than the maximum prospective. This technical article represents the case study of fault level calculations for an mv/lv network. Fault Level Explained.
From geologylearn.blogspot.com
Learning Geology What Causes Earthquakes? Fault Level Explained The values obtained should be compared against the relevant installation design criteria to confirm that the fault rating of each device is not less than the maximum prospective. How fault levels are changing across the uk electricity network, taking into account how the proportional contribution of fault level from the. This technical article represents the case study of fault level. Fault Level Explained.
From enginediagramhanson.z13.web.core.windows.net
Open Circuit Fault Diagram Fault Level Explained A fault current is an unintended, uncontrolled, high current flow through an electrical system. Fault currents are caused by. This technical article represents the case study of fault level calculations for an mv/lv network using the direct method. The document outlines the procedure for calculating fault levels, which involves representing the system with a single line diagram, choosing a base. Fault Level Explained.
From www.slideserve.com
PPT Active Fault Level Management PowerPoint Presentation, free Fault Level Explained The document outlines the procedure for calculating fault levels, which involves representing the system with a single line diagram, choosing a base mva,. A fault current is an unintended, uncontrolled, high current flow through an electrical system. The values obtained should be compared against the relevant installation design criteria to confirm that the fault rating of each device is not. Fault Level Explained.
From www.slideserve.com
PPT Faults and Folds PowerPoint Presentation, free download ID2085072 Fault Level Explained The document outlines the procedure for calculating fault levels, which involves representing the system with a single line diagram, choosing a base mva,. There are many advantages of the direct approach, and the main of them is that it directly uses the system single line diagram, equipment data, and basic electrical equations. A fault current is an unintended, uncontrolled, high. Fault Level Explained.
From worldinmaps.com
Earthquakes World in maps Fault Level Explained There are many advantages of the direct approach, and the main of them is that it directly uses the system single line diagram, equipment data, and basic electrical equations. Either by enquiry, measurement or calculation, prospective fault current (ipf) should be determined at every relevant point within an installation (regulation 434.1). The document outlines the procedure for calculating fault levels,. Fault Level Explained.
From electrical-engineering-portal.com
A case study of fault level calculations for a MV/LV network using Fault Level Explained This technical article represents the case study of fault level calculations for an mv/lv network using the direct method. How fault levels are changing across the uk electricity network, taking into account how the proportional contribution of fault level from the. There are many advantages of the direct approach, and the main of them is that it directly uses the. Fault Level Explained.
From pressbooks.bccampus.ca
13.3 Fractures, Joints, and Faults Physical Geology H5P Edition Fault Level Explained Either by enquiry, measurement or calculation, prospective fault current (ipf) should be determined at every relevant point within an installation (regulation 434.1). This technical article represents the case study of fault level calculations for an mv/lv network using the direct method. There are many advantages of the direct approach, and the main of them is that it directly uses the. Fault Level Explained.
From www.slideshare.net
Fault level calculations Fault Level Explained A fault current is an unintended, uncontrolled, high current flow through an electrical system. This chapter presents the calculation of short circuit currents when fault occur in the electrical distribution network. This technical article represents the case study of fault level calculations for an mv/lv network using the direct method. Either by enquiry, measurement or calculation, prospective fault current (ipf). Fault Level Explained.
From www.scribd.com
Fault Level Calculation PDF Transformer Power (Physics) Fault Level Explained This chapter presents the calculation of short circuit currents when fault occur in the electrical distribution network. How fault levels are changing across the uk electricity network, taking into account how the proportional contribution of fault level from the. Fault currents are caused by. A fault current is an unintended, uncontrolled, high current flow through an electrical system. Either by. Fault Level Explained.
From www.snexplores.org
Scientists Say Fault Fault Level Explained The document outlines the procedure for calculating fault levels, which involves representing the system with a single line diagram, choosing a base mva,. A fault current is an unintended, uncontrolled, high current flow through an electrical system. This chapter presents the calculation of short circuit currents when fault occur in the electrical distribution network. The values obtained should be compared. Fault Level Explained.
From www.geological-digressions.com
fault scarp Archives Geological Digressions Fault Level Explained The document outlines the procedure for calculating fault levels, which involves representing the system with a single line diagram, choosing a base mva,. There are many advantages of the direct approach, and the main of them is that it directly uses the system single line diagram, equipment data, and basic electrical equations. The values obtained should be compared against the. Fault Level Explained.
From www.pinterest.com
Types of FaultsSlipe StrikeNormalReverse Science fair projects Fault Level Explained How fault levels are changing across the uk electricity network, taking into account how the proportional contribution of fault level from the. This technical article represents the case study of fault level calculations for an mv/lv network using the direct method. The document outlines the procedure for calculating fault levels, which involves representing the system with a single line diagram,. Fault Level Explained.
From www.slideserve.com
PPT Earthquakes PowerPoint Presentation, free download ID5364560 Fault Level Explained The values obtained should be compared against the relevant installation design criteria to confirm that the fault rating of each device is not less than the maximum prospective. How fault levels are changing across the uk electricity network, taking into account how the proportional contribution of fault level from the. There are many advantages of the direct approach, and the. Fault Level Explained.
From www.researchgate.net
The slipping curves at the different levels of the fault Download Fault Level Explained This technical article represents the case study of fault level calculations for an mv/lv network using the direct method. Either by enquiry, measurement or calculation, prospective fault current (ipf) should be determined at every relevant point within an installation (regulation 434.1). This chapter presents the calculation of short circuit currents when fault occur in the electrical distribution network. The document. Fault Level Explained.
From www.britannica.com
Fault Definition & Types Britannica Fault Level Explained There are many advantages of the direct approach, and the main of them is that it directly uses the system single line diagram, equipment data, and basic electrical equations. This chapter presents the calculation of short circuit currents when fault occur in the electrical distribution network. Fault currents are caused by. Either by enquiry, measurement or calculation, prospective fault current. Fault Level Explained.
From study.com
Reverse Fault Definition, Locations & Examples Lesson Fault Level Explained A fault current is an unintended, uncontrolled, high current flow through an electrical system. How fault levels are changing across the uk electricity network, taking into account how the proportional contribution of fault level from the. The document outlines the procedure for calculating fault levels, which involves representing the system with a single line diagram, choosing a base mva,. Fault. Fault Level Explained.
From allumiax.com
Fault analysis in power systems Fault Level Explained Either by enquiry, measurement or calculation, prospective fault current (ipf) should be determined at every relevant point within an installation (regulation 434.1). How fault levels are changing across the uk electricity network, taking into account how the proportional contribution of fault level from the. The document outlines the procedure for calculating fault levels, which involves representing the system with a. Fault Level Explained.
From study.com
What is a Fault? Definition & Types Lesson Fault Level Explained This chapter presents the calculation of short circuit currents when fault occur in the electrical distribution network. A fault current is an unintended, uncontrolled, high current flow through an electrical system. Fault currents are caused by. Either by enquiry, measurement or calculation, prospective fault current (ipf) should be determined at every relevant point within an installation (regulation 434.1). The values. Fault Level Explained.
From www.slideserve.com
PPT Faults PowerPoint Presentation, free download ID1775767 Fault Level Explained This technical article represents the case study of fault level calculations for an mv/lv network using the direct method. Fault currents are caused by. How fault levels are changing across the uk electricity network, taking into account how the proportional contribution of fault level from the. There are many advantages of the direct approach, and the main of them is. Fault Level Explained.
From www.britannica.com
Plate tectonics Seafloor Spreading, Continental Drift, Subduction Fault Level Explained How fault levels are changing across the uk electricity network, taking into account how the proportional contribution of fault level from the. Fault currents are caused by. There are many advantages of the direct approach, and the main of them is that it directly uses the system single line diagram, equipment data, and basic electrical equations. A fault current is. Fault Level Explained.
From learningschoolsanchez.z21.web.core.windows.net
Faults And Its Types Fault Level Explained This technical article represents the case study of fault level calculations for an mv/lv network using the direct method. A fault current is an unintended, uncontrolled, high current flow through an electrical system. How fault levels are changing across the uk electricity network, taking into account how the proportional contribution of fault level from the. There are many advantages of. Fault Level Explained.
From www.slideshare.net
Faults types Fault Level Explained A fault current is an unintended, uncontrolled, high current flow through an electrical system. How fault levels are changing across the uk electricity network, taking into account how the proportional contribution of fault level from the. The document outlines the procedure for calculating fault levels, which involves representing the system with a single line diagram, choosing a base mva,. The. Fault Level Explained.
From fiixsoftware.com
What Is Fault Tree Analysis (FTA)? Fiix Fault Level Explained A fault current is an unintended, uncontrolled, high current flow through an electrical system. The document outlines the procedure for calculating fault levels, which involves representing the system with a single line diagram, choosing a base mva,. The values obtained should be compared against the relevant installation design criteria to confirm that the fault rating of each device is not. Fault Level Explained.
From www.dnr.wa.gov
Earthquakes and Faults WA DNR Fault Level Explained Either by enquiry, measurement or calculation, prospective fault current (ipf) should be determined at every relevant point within an installation (regulation 434.1). The document outlines the procedure for calculating fault levels, which involves representing the system with a single line diagram, choosing a base mva,. How fault levels are changing across the uk electricity network, taking into account how the. Fault Level Explained.
From www.insightsonindia.com
Fault styles (types) INSIGHTS IAS Simplifying UPSC IAS Exam Preparation Fault Level Explained The values obtained should be compared against the relevant installation design criteria to confirm that the fault rating of each device is not less than the maximum prospective. This technical article represents the case study of fault level calculations for an mv/lv network using the direct method. This chapter presents the calculation of short circuit currents when fault occur in. Fault Level Explained.
From www.youtube.com
Short circuit fault level Fault current calculation. Tutorial 6 YouTube Fault Level Explained The document outlines the procedure for calculating fault levels, which involves representing the system with a single line diagram, choosing a base mva,. Either by enquiry, measurement or calculation, prospective fault current (ipf) should be determined at every relevant point within an installation (regulation 434.1). How fault levels are changing across the uk electricity network, taking into account how the. Fault Level Explained.
From www.slideshare.net
Fault Level Calculation Fault Level Explained Either by enquiry, measurement or calculation, prospective fault current (ipf) should be determined at every relevant point within an installation (regulation 434.1). A fault current is an unintended, uncontrolled, high current flow through an electrical system. The values obtained should be compared against the relevant installation design criteria to confirm that the fault rating of each device is not less. Fault Level Explained.
From www.youtube.com
Interpreting a geological map with faults YouTube Fault Level Explained This technical article represents the case study of fault level calculations for an mv/lv network using the direct method. Either by enquiry, measurement or calculation, prospective fault current (ipf) should be determined at every relevant point within an installation (regulation 434.1). This chapter presents the calculation of short circuit currents when fault occur in the electrical distribution network. There are. Fault Level Explained.
From www.scribd.com
Electrical Fault Level Calculations Using The MVA Method PDF Fault Level Explained The document outlines the procedure for calculating fault levels, which involves representing the system with a single line diagram, choosing a base mva,. How fault levels are changing across the uk electricity network, taking into account how the proportional contribution of fault level from the. A fault current is an unintended, uncontrolled, high current flow through an electrical system. Fault. Fault Level Explained.
From study.com
Transform Fault Definition, Types & Examples Lesson Fault Level Explained There are many advantages of the direct approach, and the main of them is that it directly uses the system single line diagram, equipment data, and basic electrical equations. The document outlines the procedure for calculating fault levels, which involves representing the system with a single line diagram, choosing a base mva,. A fault current is an unintended, uncontrolled, high. Fault Level Explained.
From www.researchgate.net
[PDF] An overview of fault zone permeabilities and groundwater level Fault Level Explained How fault levels are changing across the uk electricity network, taking into account how the proportional contribution of fault level from the. This chapter presents the calculation of short circuit currents when fault occur in the electrical distribution network. There are many advantages of the direct approach, and the main of them is that it directly uses the system single. Fault Level Explained.