Machine Room Less Elevator Advantages . The lack of need for a machine room can be extremely. Plus, there’s always technology on certain elevators like the evolution 100 and 200 by tk elevator which. The advantage of mrl elevator is saving space. By doing this the need for a machine room is eliminated, as. One of which is the invaluable space it saves. You can only make a maintenance platform under the host. This new design is smaller and neater and can easily be used in numerous structures. Since there is no need. The advantages of mrl elevator compared to mr elevator; The machine room less (mrl) elevator is one of the most modern.
from www.indiamart.com
The advantages of mrl elevator compared to mr elevator; The lack of need for a machine room can be extremely. By doing this the need for a machine room is eliminated, as. One of which is the invaluable space it saves. You can only make a maintenance platform under the host. The advantage of mrl elevator is saving space. The machine room less (mrl) elevator is one of the most modern. Plus, there’s always technology on certain elevators like the evolution 100 and 200 by tk elevator which. This new design is smaller and neater and can easily be used in numerous structures. Since there is no need.
Stainless Steel Machine Room Less Elevator at Rs 700000 in Prayagraj
Machine Room Less Elevator Advantages The machine room less (mrl) elevator is one of the most modern. This new design is smaller and neater and can easily be used in numerous structures. The advantage of mrl elevator is saving space. One of which is the invaluable space it saves. Since there is no need. The machine room less (mrl) elevator is one of the most modern. The lack of need for a machine room can be extremely. By doing this the need for a machine room is eliminated, as. Plus, there’s always technology on certain elevators like the evolution 100 and 200 by tk elevator which. The advantages of mrl elevator compared to mr elevator; You can only make a maintenance platform under the host.
From www.dimensions.com
MachineRoomLess Elevators Lifts Dimensions & Drawings Machine Room Less Elevator Advantages The advantage of mrl elevator is saving space. By doing this the need for a machine room is eliminated, as. The machine room less (mrl) elevator is one of the most modern. This new design is smaller and neater and can easily be used in numerous structures. The lack of need for a machine room can be extremely. One of. Machine Room Less Elevator Advantages.
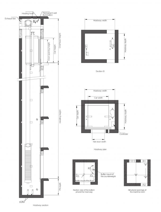
From railsystem.net
HeavyDuty Elevator Machine Room Less Machine Room Less Elevator Advantages This new design is smaller and neater and can easily be used in numerous structures. The advantages of mrl elevator compared to mr elevator; By doing this the need for a machine room is eliminated, as. Plus, there’s always technology on certain elevators like the evolution 100 and 200 by tk elevator which. The lack of need for a machine. Machine Room Less Elevator Advantages.
From elevation.fandom.com
Machine room less elevator Elevator Wiki Fandom Machine Room Less Elevator Advantages The lack of need for a machine room can be extremely. This new design is smaller and neater and can easily be used in numerous structures. You can only make a maintenance platform under the host. Plus, there’s always technology on certain elevators like the evolution 100 and 200 by tk elevator which. The advantages of mrl elevator compared to. Machine Room Less Elevator Advantages.
From vintecelevators.com
Machine Room Less Elevators MRL Elevator Manufacturers in India Machine Room Less Elevator Advantages By doing this the need for a machine room is eliminated, as. The advantages of mrl elevator compared to mr elevator; The lack of need for a machine room can be extremely. One of which is the invaluable space it saves. The advantage of mrl elevator is saving space. Since there is no need. Plus, there’s always technology on certain. Machine Room Less Elevator Advantages.
From haryanalifts.com
Machine Room Less MRL Elevators Manufacturers in Secunderabad Machine Room Less Elevator Advantages The lack of need for a machine room can be extremely. This new design is smaller and neater and can easily be used in numerous structures. By doing this the need for a machine room is eliminated, as. One of which is the invaluable space it saves. Plus, there’s always technology on certain elevators like the evolution 100 and 200. Machine Room Less Elevator Advantages.
From www.slideserve.com
PPT Amazing notable advantages of machine roomless elevators Machine Room Less Elevator Advantages This new design is smaller and neater and can easily be used in numerous structures. Plus, there’s always technology on certain elevators like the evolution 100 and 200 by tk elevator which. The advantage of mrl elevator is saving space. Since there is no need. The advantages of mrl elevator compared to mr elevator; One of which is the invaluable. Machine Room Less Elevator Advantages.
From senwan.com.ly
Difference Between MR VS MRL Machine Room Less Elevator Advantages The lack of need for a machine room can be extremely. Plus, there’s always technology on certain elevators like the evolution 100 and 200 by tk elevator which. The machine room less (mrl) elevator is one of the most modern. One of which is the invaluable space it saves. By doing this the need for a machine room is eliminated,. Machine Room Less Elevator Advantages.
From dazenelevator.com
Machine Room Less (MRL) Elevator Dazen Elevator Machine Room Less Elevator Advantages This new design is smaller and neater and can easily be used in numerous structures. Since there is no need. One of which is the invaluable space it saves. The advantage of mrl elevator is saving space. By doing this the need for a machine room is eliminated, as. The advantages of mrl elevator compared to mr elevator; The lack. Machine Room Less Elevator Advantages.
From uppercut-elevator.com
MRL Elevators, The Advantages For Machine RoomLess Elevators Machine Room Less Elevator Advantages The advantage of mrl elevator is saving space. By doing this the need for a machine room is eliminated, as. One of which is the invaluable space it saves. You can only make a maintenance platform under the host. Since there is no need. The lack of need for a machine room can be extremely. Plus, there’s always technology on. Machine Room Less Elevator Advantages.
From elevatorworld.com
Machine RoomLess Elevators Elevator World Machine Room Less Elevator Advantages Since there is no need. The advantage of mrl elevator is saving space. The lack of need for a machine room can be extremely. This new design is smaller and neater and can easily be used in numerous structures. The machine room less (mrl) elevator is one of the most modern. Plus, there’s always technology on certain elevators like the. Machine Room Less Elevator Advantages.
From www.toshiba-elevator.co.jp
MachineRoomLess Elevators Elevators by Operating Principle Machine Room Less Elevator Advantages The advantage of mrl elevator is saving space. This new design is smaller and neater and can easily be used in numerous structures. You can only make a maintenance platform under the host. The advantages of mrl elevator compared to mr elevator; Plus, there’s always technology on certain elevators like the evolution 100 and 200 by tk elevator which. By. Machine Room Less Elevator Advantages.
From oxfordelevator.ae
Machine Room Less (MRL) Type Oxford Elevators Company Machine Room Less Elevator Advantages This new design is smaller and neater and can easily be used in numerous structures. Plus, there’s always technology on certain elevators like the evolution 100 and 200 by tk elevator which. You can only make a maintenance platform under the host. The advantages of mrl elevator compared to mr elevator; Since there is no need. One of which is. Machine Room Less Elevator Advantages.
From www.elevatorvip.com
Benefits and Drawbacks of Machine RoomLess (MRL) Elevators and Machine Machine Room Less Elevator Advantages Since there is no need. This new design is smaller and neater and can easily be used in numerous structures. The machine room less (mrl) elevator is one of the most modern. One of which is the invaluable space it saves. You can only make a maintenance platform under the host. The advantage of mrl elevator is saving space. The. Machine Room Less Elevator Advantages.
From www.indiamart.com
Machine Room Less Elevator at best price in Ghaziabad by Electra Machine Room Less Elevator Advantages You can only make a maintenance platform under the host. The lack of need for a machine room can be extremely. This new design is smaller and neater and can easily be used in numerous structures. By doing this the need for a machine room is eliminated, as. Plus, there’s always technology on certain elevators like the evolution 100 and. Machine Room Less Elevator Advantages.
From www.indiamart.com
Gearless Machine Room Less Elevator, Model Name/Number Icare at Rs Machine Room Less Elevator Advantages The lack of need for a machine room can be extremely. This new design is smaller and neater and can easily be used in numerous structures. The machine room less (mrl) elevator is one of the most modern. The advantage of mrl elevator is saving space. By doing this the need for a machine room is eliminated, as. Plus, there’s. Machine Room Less Elevator Advantages.
From emperorlifts.com
Key benefits of Machine Room less elevators Emperor Lifts Machine Room Less Elevator Advantages One of which is the invaluable space it saves. The advantage of mrl elevator is saving space. Plus, there’s always technology on certain elevators like the evolution 100 and 200 by tk elevator which. This new design is smaller and neater and can easily be used in numerous structures. Since there is no need. The lack of need for a. Machine Room Less Elevator Advantages.
From sml-elevator.com
Machine Room (MR) & Machine Roomless (MRL) Lift SML ELEVATOR SDN. BHD. Machine Room Less Elevator Advantages The lack of need for a machine room can be extremely. Since there is no need. This new design is smaller and neater and can easily be used in numerous structures. The machine room less (mrl) elevator is one of the most modern. The advantages of mrl elevator compared to mr elevator; The advantage of mrl elevator is saving space.. Machine Room Less Elevator Advantages.
From www.dimensions.com
MachineRoomLess Elevators Lifts Dimensions & Drawings Machine Room Less Elevator Advantages This new design is smaller and neater and can easily be used in numerous structures. The advantage of mrl elevator is saving space. By doing this the need for a machine room is eliminated, as. You can only make a maintenance platform under the host. The advantages of mrl elevator compared to mr elevator; The machine room less (mrl) elevator. Machine Room Less Elevator Advantages.
From www.elevator-component.com
High Speed Elevator Machine Room Less Elevator Load 6301600kg Machine Room Less Elevator Advantages You can only make a maintenance platform under the host. The lack of need for a machine room can be extremely. One of which is the invaluable space it saves. This new design is smaller and neater and can easily be used in numerous structures. The advantage of mrl elevator is saving space. The machine room less (mrl) elevator is. Machine Room Less Elevator Advantages.
From dazenelevator.com
Machine Room Less Elevator Dazen Machine Room Less Elevator Advantages One of which is the invaluable space it saves. The advantages of mrl elevator compared to mr elevator; You can only make a maintenance platform under the host. By doing this the need for a machine room is eliminated, as. The machine room less (mrl) elevator is one of the most modern. The advantage of mrl elevator is saving space.. Machine Room Less Elevator Advantages.
From www.slideserve.com
PPT Amazing notable advantages of machine roomless elevators Machine Room Less Elevator Advantages Since there is no need. You can only make a maintenance platform under the host. This new design is smaller and neater and can easily be used in numerous structures. By doing this the need for a machine room is eliminated, as. One of which is the invaluable space it saves. The advantages of mrl elevator compared to mr elevator;. Machine Room Less Elevator Advantages.
From www.ceoelevator.com
Machine RoomLess Elevators CEO MRL Systems Machine Room Less Elevator Advantages You can only make a maintenance platform under the host. Plus, there’s always technology on certain elevators like the evolution 100 and 200 by tk elevator which. This new design is smaller and neater and can easily be used in numerous structures. The advantage of mrl elevator is saving space. The advantages of mrl elevator compared to mr elevator; The. Machine Room Less Elevator Advantages.
From www.gaultelevator.com
Machine Roomless (MRL) Elevators — Gault Reliance Elevator Machine Room Less Elevator Advantages This new design is smaller and neater and can easily be used in numerous structures. Since there is no need. The advantage of mrl elevator is saving space. One of which is the invaluable space it saves. By doing this the need for a machine room is eliminated, as. The lack of need for a machine room can be extremely.. Machine Room Less Elevator Advantages.
From fujijapan-elevator.jp
Machine Roomless Elevator Machine Room Less Elevator Advantages This new design is smaller and neater and can easily be used in numerous structures. Plus, there’s always technology on certain elevators like the evolution 100 and 200 by tk elevator which. The advantage of mrl elevator is saving space. You can only make a maintenance platform under the host. By doing this the need for a machine room is. Machine Room Less Elevator Advantages.
From www.bmaxelevator.com
MRL (Machine Roomless Elevators) Lifts B MAX Elevator Machine Room Less Elevator Advantages This new design is smaller and neater and can easily be used in numerous structures. One of which is the invaluable space it saves. The lack of need for a machine room can be extremely. The machine room less (mrl) elevator is one of the most modern. The advantage of mrl elevator is saving space. The advantages of mrl elevator. Machine Room Less Elevator Advantages.
From www.toshiba-elevator.co.jp
MachineRoomLess Elevators Elevator Basics TOSHIBA ELEVATOR AND Machine Room Less Elevator Advantages The advantages of mrl elevator compared to mr elevator; You can only make a maintenance platform under the host. By doing this the need for a machine room is eliminated, as. Since there is no need. The machine room less (mrl) elevator is one of the most modern. Plus, there’s always technology on certain elevators like the evolution 100 and. Machine Room Less Elevator Advantages.
From komisi125.blogspot.com
machine room less elevator specifications Strains zine Diaporama Machine Room Less Elevator Advantages The advantage of mrl elevator is saving space. The lack of need for a machine room can be extremely. This new design is smaller and neater and can easily be used in numerous structures. The machine room less (mrl) elevator is one of the most modern. The advantages of mrl elevator compared to mr elevator; You can only make a. Machine Room Less Elevator Advantages.
From www.luielevators.com
MRL lift and Benefits for industries and residential buildings Machine Room Less Elevator Advantages The lack of need for a machine room can be extremely. You can only make a maintenance platform under the host. Since there is no need. One of which is the invaluable space it saves. This new design is smaller and neater and can easily be used in numerous structures. By doing this the need for a machine room is. Machine Room Less Elevator Advantages.
From emperorlifts.com
Key benefits of Machine Room less elevators Emperor Lifts Machine Room Less Elevator Advantages The advantages of mrl elevator compared to mr elevator; Since there is no need. This new design is smaller and neater and can easily be used in numerous structures. Plus, there’s always technology on certain elevators like the evolution 100 and 200 by tk elevator which. By doing this the need for a machine room is eliminated, as. You can. Machine Room Less Elevator Advantages.
From www.indiamart.com
Stainless Steel Machine Room Less Elevator at Rs 700000 in Prayagraj Machine Room Less Elevator Advantages The lack of need for a machine room can be extremely. The machine room less (mrl) elevator is one of the most modern. This new design is smaller and neater and can easily be used in numerous structures. You can only make a maintenance platform under the host. One of which is the invaluable space it saves. The advantages of. Machine Room Less Elevator Advantages.
From www.pinterest.com
Pin on Elevators Machine Room Less Elevator Advantages This new design is smaller and neater and can easily be used in numerous structures. The advantages of mrl elevator compared to mr elevator; One of which is the invaluable space it saves. Plus, there’s always technology on certain elevators like the evolution 100 and 200 by tk elevator which. The lack of need for a machine room can be. Machine Room Less Elevator Advantages.
From www.slideserve.com
PPT Amazing notable advantages of machine roomless elevators Machine Room Less Elevator Advantages The advantages of mrl elevator compared to mr elevator; This new design is smaller and neater and can easily be used in numerous structures. Plus, there’s always technology on certain elevators like the evolution 100 and 200 by tk elevator which. You can only make a maintenance platform under the host. One of which is the invaluable space it saves.. Machine Room Less Elevator Advantages.
From www.pinterest.com
Advantages of Machine Room Less Elevators Hybon Elevators Escalators Machine Room Less Elevator Advantages This new design is smaller and neater and can easily be used in numerous structures. The advantages of mrl elevator compared to mr elevator; Plus, there’s always technology on certain elevators like the evolution 100 and 200 by tk elevator which. You can only make a maintenance platform under the host. Since there is no need. The advantage of mrl. Machine Room Less Elevator Advantages.
From rraedl.blogspot.com
machine room less elevator specifications Staci New Machine Room Less Elevator Advantages This new design is smaller and neater and can easily be used in numerous structures. One of which is the invaluable space it saves. The advantage of mrl elevator is saving space. Since there is no need. You can only make a maintenance platform under the host. By doing this the need for a machine room is eliminated, as. The. Machine Room Less Elevator Advantages.
From vintecelevators.com
Machine Room Less Elevators MRL Elevator Manufacturers in India Machine Room Less Elevator Advantages The machine room less (mrl) elevator is one of the most modern. This new design is smaller and neater and can easily be used in numerous structures. The advantage of mrl elevator is saving space. The lack of need for a machine room can be extremely. The advantages of mrl elevator compared to mr elevator; Since there is no need.. Machine Room Less Elevator Advantages.