Sign Variance Application Hamilton . Application fee(s) are required to be submitted with the application. Review submission requirements & gather information. The definition of a variance as described by ordinance is: The application for the requested variances was circulated on may 8, 2017 to internal departments / divisions. Additional sheets can be submitted if there is not sufficient room to answer the following questions. Please refer to the current city of hamilton planning division fee structure, as all. To fill out the sign variance application form, you need to provide your personal or business information, describe the sign design or layout, specify the requested deviations from the. Variances from the terms of these regulations shall be granted only if it is found that. The zoning section, building services.
from www.templateroller.com
Please refer to the current city of hamilton planning division fee structure, as all. The application for the requested variances was circulated on may 8, 2017 to internal departments / divisions. The definition of a variance as described by ordinance is: To fill out the sign variance application form, you need to provide your personal or business information, describe the sign design or layout, specify the requested deviations from the. Additional sheets can be submitted if there is not sufficient room to answer the following questions. Review submission requirements & gather information. Variances from the terms of these regulations shall be granted only if it is found that. The zoning section, building services. Application fee(s) are required to be submitted with the application.
New Mexico Application for Variance From Requirements of 20.10.2 Nmac
Sign Variance Application Hamilton The zoning section, building services. The zoning section, building services. Application fee(s) are required to be submitted with the application. Variances from the terms of these regulations shall be granted only if it is found that. Please refer to the current city of hamilton planning division fee structure, as all. The definition of a variance as described by ordinance is: Additional sheets can be submitted if there is not sufficient room to answer the following questions. Review submission requirements & gather information. To fill out the sign variance application form, you need to provide your personal or business information, describe the sign design or layout, specify the requested deviations from the. The application for the requested variances was circulated on may 8, 2017 to internal departments / divisions.
From www.templateroller.com
2023 City of Grand Rapids, Michigan Sign Variance Application Fill Sign Variance Application Hamilton Application fee(s) are required to be submitted with the application. To fill out the sign variance application form, you need to provide your personal or business information, describe the sign design or layout, specify the requested deviations from the. The application for the requested variances was circulated on may 8, 2017 to internal departments / divisions. Please refer to the. Sign Variance Application Hamilton.
From www.templateroller.com
2023 City of Grand Rapids, Michigan Sign Variance Application Fill Sign Variance Application Hamilton The zoning section, building services. Review submission requirements & gather information. Please refer to the current city of hamilton planning division fee structure, as all. Application fee(s) are required to be submitted with the application. The definition of a variance as described by ordinance is: To fill out the sign variance application form, you need to provide your personal or. Sign Variance Application Hamilton.
From www.pdffiller.com
Fillable Online homerglenil Sign Variance Application (Fillable PDF Sign Variance Application Hamilton The application for the requested variances was circulated on may 8, 2017 to internal departments / divisions. To fill out the sign variance application form, you need to provide your personal or business information, describe the sign design or layout, specify the requested deviations from the. Application fee(s) are required to be submitted with the application. The zoning section, building. Sign Variance Application Hamilton.
From www.pdffiller.com
Fillable Online Sign Variance Final 10412 Fax Email Print pdfFiller Sign Variance Application Hamilton Review submission requirements & gather information. The zoning section, building services. The definition of a variance as described by ordinance is: The application for the requested variances was circulated on may 8, 2017 to internal departments / divisions. Application fee(s) are required to be submitted with the application. Please refer to the current city of hamilton planning division fee structure,. Sign Variance Application Hamilton.
From www.templateroller.com
2023 City of Grand Rapids, Michigan Sign Variance Application Fill Sign Variance Application Hamilton Additional sheets can be submitted if there is not sufficient room to answer the following questions. To fill out the sign variance application form, you need to provide your personal or business information, describe the sign design or layout, specify the requested deviations from the. The application for the requested variances was circulated on may 8, 2017 to internal departments. Sign Variance Application Hamilton.
From www.templateroller.com
2024 City of Grand Rapids, Michigan Sign Variance Application Fill Sign Variance Application Hamilton Additional sheets can be submitted if there is not sufficient room to answer the following questions. The definition of a variance as described by ordinance is: The zoning section, building services. The application for the requested variances was circulated on may 8, 2017 to internal departments / divisions. To fill out the sign variance application form, you need to provide. Sign Variance Application Hamilton.
From www.dochub.com
Variance form Fill out & sign online DocHub Sign Variance Application Hamilton The definition of a variance as described by ordinance is: Application fee(s) are required to be submitted with the application. Review submission requirements & gather information. The application for the requested variances was circulated on may 8, 2017 to internal departments / divisions. Variances from the terms of these regulations shall be granted only if it is found that. Additional. Sign Variance Application Hamilton.
From cpl.iphy.ac.cn
Chin. Phys. Lett. (2023) 40(1) 010303 Variational Quantum Eigensolver Sign Variance Application Hamilton Application fee(s) are required to be submitted with the application. Review submission requirements & gather information. Please refer to the current city of hamilton planning division fee structure, as all. Additional sheets can be submitted if there is not sufficient room to answer the following questions. To fill out the sign variance application form, you need to provide your personal. Sign Variance Application Hamilton.
From www.pdffiller.com
Fillable Online fill.ioSignBylawvarianceapplicationAFillable Sign Sign Variance Application Hamilton Please refer to the current city of hamilton planning division fee structure, as all. Variances from the terms of these regulations shall be granted only if it is found that. Application fee(s) are required to be submitted with the application. The zoning section, building services. Additional sheets can be submitted if there is not sufficient room to answer the following. Sign Variance Application Hamilton.
From quantrl.com
How to Calculate the Variance of a Portfolio Quant RL Sign Variance Application Hamilton The application for the requested variances was circulated on may 8, 2017 to internal departments / divisions. Additional sheets can be submitted if there is not sufficient room to answer the following questions. Application fee(s) are required to be submitted with the application. Please refer to the current city of hamilton planning division fee structure, as all. The definition of. Sign Variance Application Hamilton.
From www.pdffiller.com
Fillable Online Variance Application and Procedure Fax Email Print Sign Variance Application Hamilton The application for the requested variances was circulated on may 8, 2017 to internal departments / divisions. The zoning section, building services. Variances from the terms of these regulations shall be granted only if it is found that. Please refer to the current city of hamilton planning division fee structure, as all. Review submission requirements & gather information. To fill. Sign Variance Application Hamilton.
From articles.outlier.org
How To Calculate Variance In 4 Simple Steps Outlier Sign Variance Application Hamilton Application fee(s) are required to be submitted with the application. The definition of a variance as described by ordinance is: Please refer to the current city of hamilton planning division fee structure, as all. The application for the requested variances was circulated on may 8, 2017 to internal departments / divisions. The zoning section, building services. Review submission requirements &. Sign Variance Application Hamilton.
From www.researchgate.net
Sign Variance and Positivization. Differentiating the positive original Sign Variance Application Hamilton To fill out the sign variance application form, you need to provide your personal or business information, describe the sign design or layout, specify the requested deviations from the. The zoning section, building services. Review submission requirements & gather information. Application fee(s) are required to be submitted with the application. Variances from the terms of these regulations shall be granted. Sign Variance Application Hamilton.
From www.pdffiller.com
Fillable Online varianceapplicationsignreviewboard Fax Email Sign Variance Application Hamilton Additional sheets can be submitted if there is not sufficient room to answer the following questions. Please refer to the current city of hamilton planning division fee structure, as all. The zoning section, building services. Application fee(s) are required to be submitted with the application. The application for the requested variances was circulated on may 8, 2017 to internal departments. Sign Variance Application Hamilton.
From www.youtube.com
Variance Application Process YouTube Sign Variance Application Hamilton To fill out the sign variance application form, you need to provide your personal or business information, describe the sign design or layout, specify the requested deviations from the. Application fee(s) are required to be submitted with the application. The definition of a variance as described by ordinance is: The zoning section, building services. The application for the requested variances. Sign Variance Application Hamilton.
From www.scribd.com
Applications.hamilton.principle Trigonometric Functions Applied And Sign Variance Application Hamilton To fill out the sign variance application form, you need to provide your personal or business information, describe the sign design or layout, specify the requested deviations from the. Additional sheets can be submitted if there is not sufficient room to answer the following questions. Variances from the terms of these regulations shall be granted only if it is found. Sign Variance Application Hamilton.
From www.templateroller.com
New Mexico Application for Variance From Requirements of 20.10.2 Nmac Sign Variance Application Hamilton Variances from the terms of these regulations shall be granted only if it is found that. The definition of a variance as described by ordinance is: Please refer to the current city of hamilton planning division fee structure, as all. The application for the requested variances was circulated on may 8, 2017 to internal departments / divisions. The zoning section,. Sign Variance Application Hamilton.
From www.pdffiller.com
Fillable Online VARIANCE APPLICATION FORM Fax Email Print pdfFiller Sign Variance Application Hamilton Variances from the terms of these regulations shall be granted only if it is found that. Please refer to the current city of hamilton planning division fee structure, as all. The zoning section, building services. To fill out the sign variance application form, you need to provide your personal or business information, describe the sign design or layout, specify the. Sign Variance Application Hamilton.
From fill.io
Fill Free fillable Sign Variance Sign variance application form Sign Variance Application Hamilton Review submission requirements & gather information. The zoning section, building services. Additional sheets can be submitted if there is not sufficient room to answer the following questions. To fill out the sign variance application form, you need to provide your personal or business information, describe the sign design or layout, specify the requested deviations from the. The application for the. Sign Variance Application Hamilton.
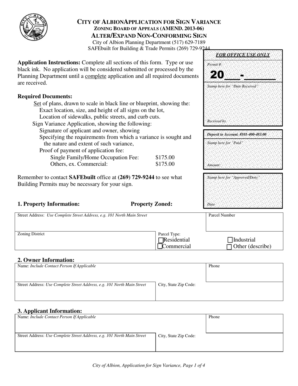
From www.templateroller.com
City of Albion, Michigan Application for Sign Variance Alter/Expand Sign Variance Application Hamilton To fill out the sign variance application form, you need to provide your personal or business information, describe the sign design or layout, specify the requested deviations from the. Review submission requirements & gather information. Additional sheets can be submitted if there is not sufficient room to answer the following questions. Please refer to the current city of hamilton planning. Sign Variance Application Hamilton.
From drive.google.com
SUBDIVISION VARIANCE Application Template 2021.pdf Google Drive Sign Variance Application Hamilton The application for the requested variances was circulated on may 8, 2017 to internal departments / divisions. To fill out the sign variance application form, you need to provide your personal or business information, describe the sign design or layout, specify the requested deviations from the. Review submission requirements & gather information. The zoning section, building services. Please refer to. Sign Variance Application Hamilton.
From www.templateroller.com
2023 Fayette County, (United States) Variance Application Sign Variance Application Hamilton Variances from the terms of these regulations shall be granted only if it is found that. The zoning section, building services. The definition of a variance as described by ordinance is: Please refer to the current city of hamilton planning division fee structure, as all. Review submission requirements & gather information. The application for the requested variances was circulated on. Sign Variance Application Hamilton.
From www.templateroller.com
Stanly County, North Carolina Variance Application Fill Out, Sign Sign Variance Application Hamilton The definition of a variance as described by ordinance is: Additional sheets can be submitted if there is not sufficient room to answer the following questions. Application fee(s) are required to be submitted with the application. Review submission requirements & gather information. Variances from the terms of these regulations shall be granted only if it is found that. The zoning. Sign Variance Application Hamilton.
From www.templateroller.com
City of Austin, Texas Board of Adjustment Sign Variance Application Sign Variance Application Hamilton Additional sheets can be submitted if there is not sufficient room to answer the following questions. Review submission requirements & gather information. Variances from the terms of these regulations shall be granted only if it is found that. To fill out the sign variance application form, you need to provide your personal or business information, describe the sign design or. Sign Variance Application Hamilton.
From www.dochub.com
Variance form Fill out & sign online DocHub Sign Variance Application Hamilton The application for the requested variances was circulated on may 8, 2017 to internal departments / divisions. The zoning section, building services. Review submission requirements & gather information. To fill out the sign variance application form, you need to provide your personal or business information, describe the sign design or layout, specify the requested deviations from the. Additional sheets can. Sign Variance Application Hamilton.
From www.templateroller.com
2024 City of Grand Rapids, Michigan Sign Variance Application Fill Sign Variance Application Hamilton The definition of a variance as described by ordinance is: Please refer to the current city of hamilton planning division fee structure, as all. Additional sheets can be submitted if there is not sufficient room to answer the following questions. To fill out the sign variance application form, you need to provide your personal or business information, describe the sign. Sign Variance Application Hamilton.
From www.pdffiller.com
Fillable Online Application for Sign Variance Fax Email Print pdfFiller Sign Variance Application Hamilton Review submission requirements & gather information. The definition of a variance as described by ordinance is: Variances from the terms of these regulations shall be granted only if it is found that. Please refer to the current city of hamilton planning division fee structure, as all. The application for the requested variances was circulated on may 8, 2017 to internal. Sign Variance Application Hamilton.
From www.templateroller.com
Butler Township, Ohio Zoning Variance Application Fill Out, Sign Sign Variance Application Hamilton The definition of a variance as described by ordinance is: Please refer to the current city of hamilton planning division fee structure, as all. Application fee(s) are required to be submitted with the application. Additional sheets can be submitted if there is not sufficient room to answer the following questions. Review submission requirements & gather information. To fill out the. Sign Variance Application Hamilton.
From www.dochub.com
Sign Variance Application Frisco, Texas Fill out & sign online DocHub Sign Variance Application Hamilton The zoning section, building services. Review submission requirements & gather information. Variances from the terms of these regulations shall be granted only if it is found that. Application fee(s) are required to be submitted with the application. The definition of a variance as described by ordinance is: The application for the requested variances was circulated on may 8, 2017 to. Sign Variance Application Hamilton.
From fill.io
Fill Free fillable Sign Variance Sign variance application form Sign Variance Application Hamilton Please refer to the current city of hamilton planning division fee structure, as all. Variances from the terms of these regulations shall be granted only if it is found that. Additional sheets can be submitted if there is not sufficient room to answer the following questions. Review submission requirements & gather information. The zoning section, building services. Application fee(s) are. Sign Variance Application Hamilton.
From www.pdffiller.com
Fillable Online town hamilton va Variance Request Application Fax Email Sign Variance Application Hamilton Please refer to the current city of hamilton planning division fee structure, as all. Application fee(s) are required to be submitted with the application. Review submission requirements & gather information. The application for the requested variances was circulated on may 8, 2017 to internal departments / divisions. The definition of a variance as described by ordinance is: To fill out. Sign Variance Application Hamilton.
From www.pdffiller.com
Fillable Online Sign Minor Variance Application Sign Detail (Form 2 Sign Variance Application Hamilton To fill out the sign variance application form, you need to provide your personal or business information, describe the sign design or layout, specify the requested deviations from the. Variances from the terms of these regulations shall be granted only if it is found that. Please refer to the current city of hamilton planning division fee structure, as all. The. Sign Variance Application Hamilton.
From www.signnow.com
Eplans Hamilton 20132024 Form Fill Out and Sign Printable PDF Sign Variance Application Hamilton Additional sheets can be submitted if there is not sufficient room to answer the following questions. Variances from the terms of these regulations shall be granted only if it is found that. To fill out the sign variance application form, you need to provide your personal or business information, describe the sign design or layout, specify the requested deviations from. Sign Variance Application Hamilton.
From www.templateroller.com
Village of Spencerville, Ohio Variance Application Fill Out, Sign Sign Variance Application Hamilton Review submission requirements & gather information. The zoning section, building services. Please refer to the current city of hamilton planning division fee structure, as all. Application fee(s) are required to be submitted with the application. Variances from the terms of these regulations shall be granted only if it is found that. The definition of a variance as described by ordinance. Sign Variance Application Hamilton.
From www.uslegalforms.com
CA Application for Variance Fill and Sign Printable Template Online Sign Variance Application Hamilton Additional sheets can be submitted if there is not sufficient room to answer the following questions. The zoning section, building services. Review submission requirements & gather information. Application fee(s) are required to be submitted with the application. Variances from the terms of these regulations shall be granted only if it is found that. Please refer to the current city of. Sign Variance Application Hamilton.