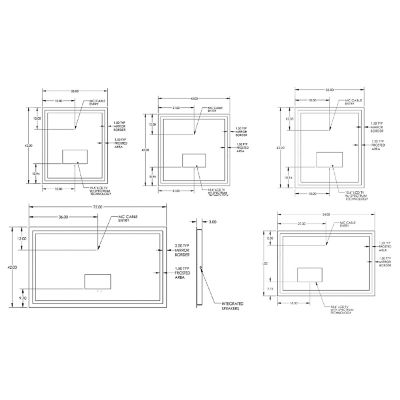
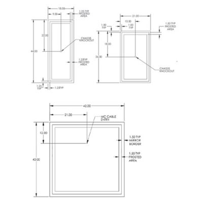
Electric Mirror Integrity Installation . Summary of contents for electric mirror integrity. Installation shall be in accordance with the applicable section of the national electrical code, ansi/nfpa 70, and/or the. Ilable, from the global leader in mirror. mirror against the chassis. Slide the mirror down inserting the chassis tabs into the hanger slots. Label will include part number: Make sure both tabs are. lighted mirrors electric mirror® installation guide. Page 1 integrity™ lighted mirror installation instructions.
from www.decorplanet.com
Make sure both tabs are. Page 1 integrity™ lighted mirror installation instructions. Installation shall be in accordance with the applicable section of the national electrical code, ansi/nfpa 70, and/or the. Ilable, from the global leader in mirror. mirror against the chassis. Label will include part number: Slide the mirror down inserting the chassis tabs into the hanger slots. lighted mirrors electric mirror® installation guide. Summary of contents for electric mirror integrity.
Electric Mirror INT215AV Integrity 36" 66" Wall Mount Lighted
Electric Mirror Integrity Installation Summary of contents for electric mirror integrity. Ilable, from the global leader in mirror. mirror against the chassis. Make sure both tabs are. Slide the mirror down inserting the chassis tabs into the hanger slots. Page 1 integrity™ lighted mirror installation instructions. lighted mirrors electric mirror® installation guide. Summary of contents for electric mirror integrity. Installation shall be in accordance with the applicable section of the national electrical code, ansi/nfpa 70, and/or the. Label will include part number:
From www.ylighting.com
Electric Mirror Integrity Lighted Mirror Electric Mirror Integrity Installation Slide the mirror down inserting the chassis tabs into the hanger slots. Label will include part number: Installation shall be in accordance with the applicable section of the national electrical code, ansi/nfpa 70, and/or the. Page 1 integrity™ lighted mirror installation instructions. Make sure both tabs are. mirror against the chassis. Ilable, from the global leader in mirror. . Electric Mirror Integrity Installation.
From www.decorplanet.com
Electric Mirror INT215AV Integrity 36" 66" Wall Mount Lighted Electric Mirror Integrity Installation Ilable, from the global leader in mirror. mirror against the chassis. Installation shall be in accordance with the applicable section of the national electrical code, ansi/nfpa 70, and/or the. Make sure both tabs are. Summary of contents for electric mirror integrity. lighted mirrors electric mirror® installation guide. Label will include part number: Page 1 integrity™ lighted mirror installation. Electric Mirror Integrity Installation.
From in.pinterest.com
Integrity LED Lighted MirrorLarge / Vertical Rectangular / With Ava Electric Mirror Integrity Installation Make sure both tabs are. Slide the mirror down inserting the chassis tabs into the hanger slots. Ilable, from the global leader in mirror. mirror against the chassis. Summary of contents for electric mirror integrity. lighted mirrors electric mirror® installation guide. Installation shall be in accordance with the applicable section of the national electrical code, ansi/nfpa 70, and/or. Electric Mirror Integrity Installation.
From www.pinterest.co.uk
The Integrity Lighted Mirror by Electric Mirror adds light and grace to Electric Mirror Integrity Installation lighted mirrors electric mirror® installation guide. Page 1 integrity™ lighted mirror installation instructions. Slide the mirror down inserting the chassis tabs into the hanger slots. Make sure both tabs are. Label will include part number: mirror against the chassis. Installation shall be in accordance with the applicable section of the national electrical code, ansi/nfpa 70, and/or the. Ilable,. Electric Mirror Integrity Installation.
From bathemp.ca
Electric Mirror Integrity Lighted Mirror Bath Emporium Toronto Electric Mirror Integrity Installation lighted mirrors electric mirror® installation guide. Label will include part number: Installation shall be in accordance with the applicable section of the national electrical code, ansi/nfpa 70, and/or the. Page 1 integrity™ lighted mirror installation instructions. mirror against the chassis. Summary of contents for electric mirror integrity. Ilable, from the global leader in mirror. Make sure both tabs. Electric Mirror Integrity Installation.
From www.electricmirror.com
Integrity™ Lighted Mirror TV Electric Mirror Electric Mirror Integrity Installation lighted mirrors electric mirror® installation guide. Slide the mirror down inserting the chassis tabs into the hanger slots. Label will include part number: Page 1 integrity™ lighted mirror installation instructions. Installation shall be in accordance with the applicable section of the national electrical code, ansi/nfpa 70, and/or the. Make sure both tabs are. Ilable, from the global leader in. Electric Mirror Integrity Installation.
From www.lumens.com
Integrity Lighted Mirror by Electric Mirror at Electric Mirror Integrity Installation Summary of contents for electric mirror integrity. Ilable, from the global leader in mirror. Make sure both tabs are. Slide the mirror down inserting the chassis tabs into the hanger slots. Installation shall be in accordance with the applicable section of the national electrical code, ansi/nfpa 70, and/or the. lighted mirrors electric mirror® installation guide. mirror against the. Electric Mirror Integrity Installation.
From www.decow.com
Electric Mirror Integrity INT2136 Bathroom Fixtures Lighted Mirror Electric Mirror Integrity Installation Label will include part number: lighted mirrors electric mirror® installation guide. Ilable, from the global leader in mirror. Slide the mirror down inserting the chassis tabs into the hanger slots. Summary of contents for electric mirror integrity. Installation shall be in accordance with the applicable section of the national electrical code, ansi/nfpa 70, and/or the. mirror against the. Electric Mirror Integrity Installation.
From www.lumens.com
Integrity Lighted Mirror by Electric Mirror at Electric Mirror Integrity Installation Slide the mirror down inserting the chassis tabs into the hanger slots. Ilable, from the global leader in mirror. mirror against the chassis. lighted mirrors electric mirror® installation guide. Page 1 integrity™ lighted mirror installation instructions. Installation shall be in accordance with the applicable section of the national electrical code, ansi/nfpa 70, and/or the. Summary of contents for. Electric Mirror Integrity Installation.
From www.lightopia.com
Electric Mirror Integrity Rectangle Lighted Mirror Lightopia Electric Mirror Integrity Installation Summary of contents for electric mirror integrity. mirror against the chassis. Page 1 integrity™ lighted mirror installation instructions. lighted mirrors electric mirror® installation guide. Label will include part number: Installation shall be in accordance with the applicable section of the national electrical code, ansi/nfpa 70, and/or the. Ilable, from the global leader in mirror. Slide the mirror down. Electric Mirror Integrity Installation.
From www.electricmirror.com
Integrity™ Lighted Wardrobe Mirror Electric Mirror® Electric Mirror Integrity Installation Slide the mirror down inserting the chassis tabs into the hanger slots. Label will include part number: Make sure both tabs are. lighted mirrors electric mirror® installation guide. Page 1 integrity™ lighted mirror installation instructions. mirror against the chassis. Summary of contents for electric mirror integrity. Installation shall be in accordance with the applicable section of the national. Electric Mirror Integrity Installation.
From www.lumens.com
Integrity Lighted Mirror by Electric Mirror at Electric Mirror Integrity Installation Page 1 integrity™ lighted mirror installation instructions. mirror against the chassis. Make sure both tabs are. Ilable, from the global leader in mirror. Label will include part number: lighted mirrors electric mirror® installation guide. Installation shall be in accordance with the applicable section of the national electrical code, ansi/nfpa 70, and/or the. Summary of contents for electric mirror. Electric Mirror Integrity Installation.
From www.lumens.com
Integrity Lighted Mirror by Electric Mirror at Electric Mirror Integrity Installation mirror against the chassis. Summary of contents for electric mirror integrity. Ilable, from the global leader in mirror. Label will include part number: lighted mirrors electric mirror® installation guide. Make sure both tabs are. Page 1 integrity™ lighted mirror installation instructions. Installation shall be in accordance with the applicable section of the national electrical code, ansi/nfpa 70, and/or. Electric Mirror Integrity Installation.
From www.lightopia.com
Electric Mirror Integrity Lighted Mirror with TV Lightopia Electric Mirror Integrity Installation Summary of contents for electric mirror integrity. Make sure both tabs are. Label will include part number: Page 1 integrity™ lighted mirror installation instructions. lighted mirrors electric mirror® installation guide. Ilable, from the global leader in mirror. Slide the mirror down inserting the chassis tabs into the hanger slots. mirror against the chassis. Installation shall be in accordance. Electric Mirror Integrity Installation.
From www.ylighting.com
Electric Mirror Integrity Lighted Mirror Electric Mirror Integrity Installation mirror against the chassis. Ilable, from the global leader in mirror. Summary of contents for electric mirror integrity. Label will include part number: Make sure both tabs are. Page 1 integrity™ lighted mirror installation instructions. Installation shall be in accordance with the applicable section of the national electrical code, ansi/nfpa 70, and/or the. Slide the mirror down inserting the. Electric Mirror Integrity Installation.
From electricmirror.com
Integrity™ LED Lighted Mirror Electric Mirror® Lighting Company Electric Mirror Integrity Installation Label will include part number: Slide the mirror down inserting the chassis tabs into the hanger slots. mirror against the chassis. Make sure both tabs are. Summary of contents for electric mirror integrity. Installation shall be in accordance with the applicable section of the national electrical code, ansi/nfpa 70, and/or the. lighted mirrors electric mirror® installation guide. Ilable,. Electric Mirror Integrity Installation.
From www.perfectmakeupmirrors.com
Electric Mirror Integrity+AVA Adjustable Color LED Mirror Electric Mirror Integrity Installation Ilable, from the global leader in mirror. lighted mirrors electric mirror® installation guide. Label will include part number: Page 1 integrity™ lighted mirror installation instructions. Make sure both tabs are. mirror against the chassis. Slide the mirror down inserting the chassis tabs into the hanger slots. Summary of contents for electric mirror integrity. Installation shall be in accordance. Electric Mirror Integrity Installation.
From electricmirror.com
Integrity LED Lighted Mirror TV Electric Mirror Lighting Company Electric Mirror Integrity Installation Page 1 integrity™ lighted mirror installation instructions. Label will include part number: Make sure both tabs are. Summary of contents for electric mirror integrity. mirror against the chassis. Installation shall be in accordance with the applicable section of the national electrical code, ansi/nfpa 70, and/or the. Slide the mirror down inserting the chassis tabs into the hanger slots. Ilable,. Electric Mirror Integrity Installation.
From electricmirror.com
Integrity LED Lighted Mirror Electric Mirror Lighting Company Electric Mirror Integrity Installation Summary of contents for electric mirror integrity. Make sure both tabs are. Slide the mirror down inserting the chassis tabs into the hanger slots. Ilable, from the global leader in mirror. lighted mirrors electric mirror® installation guide. Label will include part number: Page 1 integrity™ lighted mirror installation instructions. Installation shall be in accordance with the applicable section of. Electric Mirror Integrity Installation.
From www.blissbathandkitchen.com
Electric Mirror Integrity Lighted Mirror Bliss Bath And Kitchen Electric Mirror Integrity Installation mirror against the chassis. Page 1 integrity™ lighted mirror installation instructions. Make sure both tabs are. Summary of contents for electric mirror integrity. Label will include part number: lighted mirrors electric mirror® installation guide. Installation shall be in accordance with the applicable section of the national electrical code, ansi/nfpa 70, and/or the. Ilable, from the global leader in. Electric Mirror Integrity Installation.
From bathemp.ca
Electric Mirror Integrity Lighted Mirror Bath Emporium Toronto Electric Mirror Integrity Installation Label will include part number: Installation shall be in accordance with the applicable section of the national electrical code, ansi/nfpa 70, and/or the. Page 1 integrity™ lighted mirror installation instructions. mirror against the chassis. Slide the mirror down inserting the chassis tabs into the hanger slots. Ilable, from the global leader in mirror. Summary of contents for electric mirror. Electric Mirror Integrity Installation.
From www.lightopia.com
Electric Mirror Integrity Lighted Mirror with TV Lightopia Electric Mirror Integrity Installation Slide the mirror down inserting the chassis tabs into the hanger slots. Page 1 integrity™ lighted mirror installation instructions. Summary of contents for electric mirror integrity. Make sure both tabs are. Installation shall be in accordance with the applicable section of the national electrical code, ansi/nfpa 70, and/or the. mirror against the chassis. Label will include part number: Ilable,. Electric Mirror Integrity Installation.
From www.affordablelamps.com
Electric Mirror INT4836 Integrity Contemporary LED Rectangular Wall Electric Mirror Integrity Installation lighted mirrors electric mirror® installation guide. Summary of contents for electric mirror integrity. mirror against the chassis. Make sure both tabs are. Label will include part number: Installation shall be in accordance with the applicable section of the national electrical code, ansi/nfpa 70, and/or the. Page 1 integrity™ lighted mirror installation instructions. Slide the mirror down inserting the. Electric Mirror Integrity Installation.
From www.manualslib.com
ELECTRIC MIRROR INTEGRITY INSTALLATION INSTRUCTIONS MANUAL Pdf Download Electric Mirror Integrity Installation lighted mirrors electric mirror® installation guide. Installation shall be in accordance with the applicable section of the national electrical code, ansi/nfpa 70, and/or the. Slide the mirror down inserting the chassis tabs into the hanger slots. Label will include part number: Ilable, from the global leader in mirror. Page 1 integrity™ lighted mirror installation instructions. Summary of contents for. Electric Mirror Integrity Installation.
From www.lightopia.com
Electric Mirror Integrity Rectangle Lighted Mirror Lightopia Electric Mirror Integrity Installation Ilable, from the global leader in mirror. Label will include part number: lighted mirrors electric mirror® installation guide. Page 1 integrity™ lighted mirror installation instructions. Summary of contents for electric mirror integrity. Installation shall be in accordance with the applicable section of the national electrical code, ansi/nfpa 70, and/or the. mirror against the chassis. Make sure both tabs. Electric Mirror Integrity Installation.
From www.perfectmakeupmirrors.com
Electric Mirror Integrity TV Lighted Mirror with 15.6" HDTV that Electric Mirror Integrity Installation Installation shall be in accordance with the applicable section of the national electrical code, ansi/nfpa 70, and/or the. Ilable, from the global leader in mirror. Summary of contents for electric mirror integrity. Page 1 integrity™ lighted mirror installation instructions. Slide the mirror down inserting the chassis tabs into the hanger slots. mirror against the chassis. lighted mirrors electric. Electric Mirror Integrity Installation.
From www.lightopia.com
Electric Mirror Integrity Square Lighted Mirror Lightopia Electric Mirror Integrity Installation Page 1 integrity™ lighted mirror installation instructions. Label will include part number: Installation shall be in accordance with the applicable section of the national electrical code, ansi/nfpa 70, and/or the. Make sure both tabs are. Ilable, from the global leader in mirror. Slide the mirror down inserting the chassis tabs into the hanger slots. lighted mirrors electric mirror® installation. Electric Mirror Integrity Installation.
From www.lightopia.com
Electric Mirror Integrity Square Lighted Mirror Lightopia Electric Mirror Integrity Installation Summary of contents for electric mirror integrity. Label will include part number: Page 1 integrity™ lighted mirror installation instructions. Installation shall be in accordance with the applicable section of the national electrical code, ansi/nfpa 70, and/or the. Make sure both tabs are. lighted mirrors electric mirror® installation guide. mirror against the chassis. Slide the mirror down inserting the. Electric Mirror Integrity Installation.
From atimprovements.com
LED Bathroom Mirror Installation (StepbyStep Installation Guide with Electric Mirror Integrity Installation lighted mirrors electric mirror® installation guide. Make sure both tabs are. Ilable, from the global leader in mirror. Summary of contents for electric mirror integrity. Label will include part number: Slide the mirror down inserting the chassis tabs into the hanger slots. Installation shall be in accordance with the applicable section of the national electrical code, ansi/nfpa 70, and/or. Electric Mirror Integrity Installation.
From bathemp.ca
Electric Mirror Integrity Lighted Mirror Bath Emporium Toronto Electric Mirror Integrity Installation Slide the mirror down inserting the chassis tabs into the hanger slots. Label will include part number: Make sure both tabs are. Page 1 integrity™ lighted mirror installation instructions. lighted mirrors electric mirror® installation guide. Installation shall be in accordance with the applicable section of the national electrical code, ansi/nfpa 70, and/or the. Ilable, from the global leader in. Electric Mirror Integrity Installation.
From www.affordablelamps.com
Electric Mirror INT3642 Integrity Modern LED Rectangular Wall Mirror Electric Mirror Integrity Installation Ilable, from the global leader in mirror. lighted mirrors electric mirror® installation guide. Label will include part number: Installation shall be in accordance with the applicable section of the national electrical code, ansi/nfpa 70, and/or the. Page 1 integrity™ lighted mirror installation instructions. Make sure both tabs are. mirror against the chassis. Slide the mirror down inserting the. Electric Mirror Integrity Installation.
From www.youtube.com
LED Mirror How to install Review YouTube Electric Mirror Integrity Installation Slide the mirror down inserting the chassis tabs into the hanger slots. Make sure both tabs are. Summary of contents for electric mirror integrity. Page 1 integrity™ lighted mirror installation instructions. mirror against the chassis. Label will include part number: Ilable, from the global leader in mirror. lighted mirrors electric mirror® installation guide. Installation shall be in accordance. Electric Mirror Integrity Installation.
From electricmirror.com
Integrity™ LED Lighted Mirror Electric Mirror® Lighting Company Electric Mirror Integrity Installation mirror against the chassis. Label will include part number: Summary of contents for electric mirror integrity. Slide the mirror down inserting the chassis tabs into the hanger slots. lighted mirrors electric mirror® installation guide. Page 1 integrity™ lighted mirror installation instructions. Installation shall be in accordance with the applicable section of the national electrical code, ansi/nfpa 70, and/or. Electric Mirror Integrity Installation.
From www.decorplanet.com
Electric Mirror INT Integrity Lighted Mirror with Custom Options Electric Mirror Integrity Installation Summary of contents for electric mirror integrity. Slide the mirror down inserting the chassis tabs into the hanger slots. mirror against the chassis. Installation shall be in accordance with the applicable section of the national electrical code, ansi/nfpa 70, and/or the. Ilable, from the global leader in mirror. Make sure both tabs are. Label will include part number: Page. Electric Mirror Integrity Installation.
From www.lumens.com
Integrity Lighted Mirror with Television by Electric Mirror at Electric Mirror Integrity Installation mirror against the chassis. Slide the mirror down inserting the chassis tabs into the hanger slots. lighted mirrors electric mirror® installation guide. Summary of contents for electric mirror integrity. Label will include part number: Make sure both tabs are. Ilable, from the global leader in mirror. Page 1 integrity™ lighted mirror installation instructions. Installation shall be in accordance. Electric Mirror Integrity Installation.