Ada Kitchen Dimensions . 102 dimensions for adults and children** the technical requirements are based on adult dimensions and anthropometrics. According to ada guidelines, dining tables and work desks should be at least 30” wide and at least 27” to allow for sufficient space under the table for wheelchair access. The ada standards for accessible design—along with the title ii and title iii regulations—say what is required for a building or facility to be physically accessible to. 2010 ada standard 804.3, kitchen work surface, states, “in residential dwelling units required to comply with [standard] 809, at least one 30 inches (760 mm) wide. In residential dwelling units required to comply with 809, at least one 30 inches (760 mm) wide minimum section of.
from www.resnooze.com
According to ada guidelines, dining tables and work desks should be at least 30” wide and at least 27” to allow for sufficient space under the table for wheelchair access. In residential dwelling units required to comply with 809, at least one 30 inches (760 mm) wide minimum section of. 102 dimensions for adults and children** the technical requirements are based on adult dimensions and anthropometrics. 2010 ada standard 804.3, kitchen work surface, states, “in residential dwelling units required to comply with [standard] 809, at least one 30 inches (760 mm) wide. The ada standards for accessible design—along with the title ii and title iii regulations—say what is required for a building or facility to be physically accessible to.
Ada Kitchen Upper Requirements
Ada Kitchen Dimensions 102 dimensions for adults and children** the technical requirements are based on adult dimensions and anthropometrics. 102 dimensions for adults and children** the technical requirements are based on adult dimensions and anthropometrics. According to ada guidelines, dining tables and work desks should be at least 30” wide and at least 27” to allow for sufficient space under the table for wheelchair access. 2010 ada standard 804.3, kitchen work surface, states, “in residential dwelling units required to comply with [standard] 809, at least one 30 inches (760 mm) wide. In residential dwelling units required to comply with 809, at least one 30 inches (760 mm) wide minimum section of. The ada standards for accessible design—along with the title ii and title iii regulations—say what is required for a building or facility to be physically accessible to.
From www.semanticscholar.org
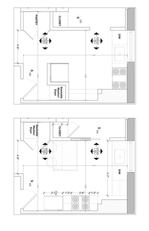
Figure 5 from Development of Kitchen Models for Wheelchair Users Ada Kitchen Dimensions 102 dimensions for adults and children** the technical requirements are based on adult dimensions and anthropometrics. The ada standards for accessible design—along with the title ii and title iii regulations—say what is required for a building or facility to be physically accessible to. In residential dwelling units required to comply with 809, at least one 30 inches (760 mm) wide. Ada Kitchen Dimensions.
From inspiredkitchendesign.com
How To Design IKEA Kitchens Ada Kitchen Dimensions According to ada guidelines, dining tables and work desks should be at least 30” wide and at least 27” to allow for sufficient space under the table for wheelchair access. In residential dwelling units required to comply with 809, at least one 30 inches (760 mm) wide minimum section of. 2010 ada standard 804.3, kitchen work surface, states, “in residential. Ada Kitchen Dimensions.
From gardencourte.com
Guide to the ADA Accessibility Standards Garden Ada Kitchen Dimensions According to ada guidelines, dining tables and work desks should be at least 30” wide and at least 27” to allow for sufficient space under the table for wheelchair access. In residential dwelling units required to comply with 809, at least one 30 inches (760 mm) wide minimum section of. 2010 ada standard 804.3, kitchen work surface, states, “in residential. Ada Kitchen Dimensions.
From inspiredkitchendesign.com
ADA Kitchens Designs Using IKEA SEKTION Ada Kitchen Dimensions 2010 ada standard 804.3, kitchen work surface, states, “in residential dwelling units required to comply with [standard] 809, at least one 30 inches (760 mm) wide. 102 dimensions for adults and children** the technical requirements are based on adult dimensions and anthropometrics. According to ada guidelines, dining tables and work desks should be at least 30” wide and at least. Ada Kitchen Dimensions.
From anipinan.blogspot.com
Ada Compliant Kitchen Specifications Anipinan Kitchen Ada Kitchen Dimensions 2010 ada standard 804.3, kitchen work surface, states, “in residential dwelling units required to comply with [standard] 809, at least one 30 inches (760 mm) wide. 102 dimensions for adults and children** the technical requirements are based on adult dimensions and anthropometrics. In residential dwelling units required to comply with 809, at least one 30 inches (760 mm) wide minimum. Ada Kitchen Dimensions.
From sethhutchens.blogspot.com
Ada Adaptable Kitchen Dimensions SethHutchens Ada Kitchen Dimensions The ada standards for accessible design—along with the title ii and title iii regulations—say what is required for a building or facility to be physically accessible to. 2010 ada standard 804.3, kitchen work surface, states, “in residential dwelling units required to comply with [standard] 809, at least one 30 inches (760 mm) wide. In residential dwelling units required to comply. Ada Kitchen Dimensions.
From inspectapedia.com
Accessible (Handicapped) Kitchen design, layout, specifications, and Ada Kitchen Dimensions In residential dwelling units required to comply with 809, at least one 30 inches (760 mm) wide minimum section of. 102 dimensions for adults and children** the technical requirements are based on adult dimensions and anthropometrics. The ada standards for accessible design—along with the title ii and title iii regulations—say what is required for a building or facility to be. Ada Kitchen Dimensions.
From www.allinfohome.com
70 ada kitchen sink dimensions With Many New Styles Ada Kitchen Dimensions The ada standards for accessible design—along with the title ii and title iii regulations—say what is required for a building or facility to be physically accessible to. According to ada guidelines, dining tables and work desks should be at least 30” wide and at least 27” to allow for sufficient space under the table for wheelchair access. In residential dwelling. Ada Kitchen Dimensions.
From www.cabinets.com
Creating an ADA Compliant Kitchen Ada Kitchen Dimensions The ada standards for accessible design—along with the title ii and title iii regulations—say what is required for a building or facility to be physically accessible to. According to ada guidelines, dining tables and work desks should be at least 30” wide and at least 27” to allow for sufficient space under the table for wheelchair access. 102 dimensions for. Ada Kitchen Dimensions.
From becelebritybestpicspicturesztv.blogspot.com
Ada Kitchen Specifications Ada Kitchen Dimensions According to ada guidelines, dining tables and work desks should be at least 30” wide and at least 27” to allow for sufficient space under the table for wheelchair access. 2010 ada standard 804.3, kitchen work surface, states, “in residential dwelling units required to comply with [standard] 809, at least one 30 inches (760 mm) wide. The ada standards for. Ada Kitchen Dimensions.
From inspectapedia.com
Accessible (Handicapped) Kitchen design, layout, specifications, and Ada Kitchen Dimensions The ada standards for accessible design—along with the title ii and title iii regulations—say what is required for a building or facility to be physically accessible to. 2010 ada standard 804.3, kitchen work surface, states, “in residential dwelling units required to comply with [standard] 809, at least one 30 inches (760 mm) wide. In residential dwelling units required to comply. Ada Kitchen Dimensions.
From langskitchens.com
How To Design An Accessible Kitchen With Style Ada Kitchen Dimensions The ada standards for accessible design—along with the title ii and title iii regulations—say what is required for a building or facility to be physically accessible to. 2010 ada standard 804.3, kitchen work surface, states, “in residential dwelling units required to comply with [standard] 809, at least one 30 inches (760 mm) wide. In residential dwelling units required to comply. Ada Kitchen Dimensions.
From www.resnooze.com
Ada Kitchen Upper Requirements Ada Kitchen Dimensions The ada standards for accessible design—along with the title ii and title iii regulations—say what is required for a building or facility to be physically accessible to. In residential dwelling units required to comply with 809, at least one 30 inches (760 mm) wide minimum section of. According to ada guidelines, dining tables and work desks should be at least. Ada Kitchen Dimensions.
From inspiredkitchendesign.com
ADA Kitchens Designs Using IKEA SEKTION Ada Kitchen Dimensions 2010 ada standard 804.3, kitchen work surface, states, “in residential dwelling units required to comply with [standard] 809, at least one 30 inches (760 mm) wide. In residential dwelling units required to comply with 809, at least one 30 inches (760 mm) wide minimum section of. According to ada guidelines, dining tables and work desks should be at least 30”. Ada Kitchen Dimensions.
From www.pinterest.com
100+ Ada Kitchen Sink Requirements Small Kitchen Remodel Ideas On A Ada Kitchen Dimensions 102 dimensions for adults and children** the technical requirements are based on adult dimensions and anthropometrics. The ada standards for accessible design—along with the title ii and title iii regulations—say what is required for a building or facility to be physically accessible to. In residential dwelling units required to comply with 809, at least one 30 inches (760 mm) wide. Ada Kitchen Dimensions.
From inspiredkitchendesign.com
ADA Kitchens Designs Using IKEA SEKTION Ada Kitchen Dimensions 102 dimensions for adults and children** the technical requirements are based on adult dimensions and anthropometrics. In residential dwelling units required to comply with 809, at least one 30 inches (760 mm) wide minimum section of. According to ada guidelines, dining tables and work desks should be at least 30” wide and at least 27” to allow for sufficient space. Ada Kitchen Dimensions.
From barterwallpaper.blogspot.com
Ada Kitchen Upper Requirements Ada Kitchen Dimensions 102 dimensions for adults and children** the technical requirements are based on adult dimensions and anthropometrics. In residential dwelling units required to comply with 809, at least one 30 inches (760 mm) wide minimum section of. The ada standards for accessible design—along with the title ii and title iii regulations—say what is required for a building or facility to be. Ada Kitchen Dimensions.
From www.factoryplaza.com
ADA Compliant Handicap Accessible Kitchen » Granite & Quartz Ada Kitchen Dimensions 102 dimensions for adults and children** the technical requirements are based on adult dimensions and anthropometrics. 2010 ada standard 804.3, kitchen work surface, states, “in residential dwelling units required to comply with [standard] 809, at least one 30 inches (760 mm) wide. In residential dwelling units required to comply with 809, at least one 30 inches (760 mm) wide minimum. Ada Kitchen Dimensions.
From postdigitalarchitecture.com
Kitchen and Dining Area Measurements and Standards Guide Ada Kitchen Dimensions In residential dwelling units required to comply with 809, at least one 30 inches (760 mm) wide minimum section of. According to ada guidelines, dining tables and work desks should be at least 30” wide and at least 27” to allow for sufficient space under the table for wheelchair access. 102 dimensions for adults and children** the technical requirements are. Ada Kitchen Dimensions.
From inspiredkitchendesign.com
ADA Kitchens Designs Using IKEA SEKTION Ada Kitchen Dimensions In residential dwelling units required to comply with 809, at least one 30 inches (760 mm) wide minimum section of. 2010 ada standard 804.3, kitchen work surface, states, “in residential dwelling units required to comply with [standard] 809, at least one 30 inches (760 mm) wide. The ada standards for accessible design—along with the title ii and title iii regulations—say. Ada Kitchen Dimensions.
From langskitchens.com
How To Design An Accessible Kitchen With Style Ada Kitchen Dimensions The ada standards for accessible design—along with the title ii and title iii regulations—say what is required for a building or facility to be physically accessible to. 2010 ada standard 804.3, kitchen work surface, states, “in residential dwelling units required to comply with [standard] 809, at least one 30 inches (760 mm) wide. 102 dimensions for adults and children** the. Ada Kitchen Dimensions.
From wowtutorial.org
Ada Kitchen Sink Regulations Wow Blog Ada Kitchen Dimensions According to ada guidelines, dining tables and work desks should be at least 30” wide and at least 27” to allow for sufficient space under the table for wheelchair access. In residential dwelling units required to comply with 809, at least one 30 inches (760 mm) wide minimum section of. The ada standards for accessible design—along with the title ii. Ada Kitchen Dimensions.
From larryhocker.blogspot.com
City Of Los Angeles Ada Kitchen Dimensions LarryHocker Ada Kitchen Dimensions 2010 ada standard 804.3, kitchen work surface, states, “in residential dwelling units required to comply with [standard] 809, at least one 30 inches (760 mm) wide. The ada standards for accessible design—along with the title ii and title iii regulations—say what is required for a building or facility to be physically accessible to. 102 dimensions for adults and children** the. Ada Kitchen Dimensions.
From www.archdaily.com
Gallery of A Simple Guide to Using the ADA Standards for Accessible Ada Kitchen Dimensions 2010 ada standard 804.3, kitchen work surface, states, “in residential dwelling units required to comply with [standard] 809, at least one 30 inches (760 mm) wide. The ada standards for accessible design—along with the title ii and title iii regulations—say what is required for a building or facility to be physically accessible to. In residential dwelling units required to comply. Ada Kitchen Dimensions.
From www.pinterest.com
Ada Kitchen Dimensions The ada standards for accessible design—along with the title ii and title iii regulations—say what is required for a building or facility to be physically accessible to. 102 dimensions for adults and children** the technical requirements are based on adult dimensions and anthropometrics. In residential dwelling units required to comply with 809, at least one 30 inches (760 mm) wide. Ada Kitchen Dimensions.
From jacklynfletcher.blogspot.com
Ada Kitchen Sink Requirements JacklynFletcher Ada Kitchen Dimensions In residential dwelling units required to comply with 809, at least one 30 inches (760 mm) wide minimum section of. The ada standards for accessible design—along with the title ii and title iii regulations—say what is required for a building or facility to be physically accessible to. According to ada guidelines, dining tables and work desks should be at least. Ada Kitchen Dimensions.
From www.pinterest.com
Five Requirements for an Accessible ADA Kitchen Design Blanco by Ada Kitchen Dimensions According to ada guidelines, dining tables and work desks should be at least 30” wide and at least 27” to allow for sufficient space under the table for wheelchair access. In residential dwelling units required to comply with 809, at least one 30 inches (760 mm) wide minimum section of. The ada standards for accessible design—along with the title ii. Ada Kitchen Dimensions.
From gardencourte.com
Guide to the ADA Accessibility Standards Garden Ada Kitchen Dimensions 2010 ada standard 804.3, kitchen work surface, states, “in residential dwelling units required to comply with [standard] 809, at least one 30 inches (760 mm) wide. 102 dimensions for adults and children** the technical requirements are based on adult dimensions and anthropometrics. In residential dwelling units required to comply with 809, at least one 30 inches (760 mm) wide minimum. Ada Kitchen Dimensions.
From alquilercastilloshinchables.info
7 Pics Ada Sink Requirements And View Alqu Blog Ada Kitchen Dimensions In residential dwelling units required to comply with 809, at least one 30 inches (760 mm) wide minimum section of. The ada standards for accessible design—along with the title ii and title iii regulations—say what is required for a building or facility to be physically accessible to. 102 dimensions for adults and children** the technical requirements are based on adult. Ada Kitchen Dimensions.
From evenfloreplacementcarseatcoversfreesh.blogspot.com
Ada Kitchen Dimensions Kitchen Design Basics Ada Kitchen Dimensions In residential dwelling units required to comply with 809, at least one 30 inches (760 mm) wide minimum section of. 2010 ada standard 804.3, kitchen work surface, states, “in residential dwelling units required to comply with [standard] 809, at least one 30 inches (760 mm) wide. According to ada guidelines, dining tables and work desks should be at least 30”. Ada Kitchen Dimensions.
From www.bestonlinecabinets.com
Designing a Wheelchair Accessible Kitchen Ada Kitchen Dimensions 102 dimensions for adults and children** the technical requirements are based on adult dimensions and anthropometrics. According to ada guidelines, dining tables and work desks should be at least 30” wide and at least 27” to allow for sufficient space under the table for wheelchair access. The ada standards for accessible design—along with the title ii and title iii regulations—say. Ada Kitchen Dimensions.
From www.archdaily.com
How to Design an Accessible Kitchen Adjustable and Multifunctional Ada Kitchen Dimensions According to ada guidelines, dining tables and work desks should be at least 30” wide and at least 27” to allow for sufficient space under the table for wheelchair access. 2010 ada standard 804.3, kitchen work surface, states, “in residential dwelling units required to comply with [standard] 809, at least one 30 inches (760 mm) wide. The ada standards for. Ada Kitchen Dimensions.
From inspectionsada.com
ADA Inspections Nationwide, LLC — ADA Compliancy Ada Kitchen Dimensions The ada standards for accessible design—along with the title ii and title iii regulations—say what is required for a building or facility to be physically accessible to. In residential dwelling units required to comply with 809, at least one 30 inches (760 mm) wide minimum section of. 2010 ada standard 804.3, kitchen work surface, states, “in residential dwelling units required. Ada Kitchen Dimensions.
From www.cabinets.com
Creating an ADA Compliant Kitchen Ada Kitchen Dimensions In residential dwelling units required to comply with 809, at least one 30 inches (760 mm) wide minimum section of. 2010 ada standard 804.3, kitchen work surface, states, “in residential dwelling units required to comply with [standard] 809, at least one 30 inches (760 mm) wide. 102 dimensions for adults and children** the technical requirements are based on adult dimensions. Ada Kitchen Dimensions.
From www.pittsburghparent.com
The ultimate guide to create a wheelchairaccessible home Pittsburgh Ada Kitchen Dimensions According to ada guidelines, dining tables and work desks should be at least 30” wide and at least 27” to allow for sufficient space under the table for wheelchair access. In residential dwelling units required to comply with 809, at least one 30 inches (760 mm) wide minimum section of. 2010 ada standard 804.3, kitchen work surface, states, “in residential. Ada Kitchen Dimensions.