Bike Kc Master Plan . With over 135 miles of bikeways prioritized for design and construction over the next five years, this plan. Kansas city, missouri's new bike master plan will transform how we navigate our city. Kansas city bicycle master plan draft goals 1. Kansas city bicycle master plan network implementation funding strategies to pursue (for capital projects, educational & supportive. Kansas city is in the final stages of developing a bicycle master plan. The plan focuses on building facilities (like bike lanes and bike sharing programs) and support (like skills classes) to. As policymakers on the city plan commission and city council consider its. Bicycling is integrated into the overall transportation system. If you haven't heard already, the city of kansas city, missouri is going through the process of adopting an updated version of the bike kc master plan.
from www.thepitchkc.com
With over 135 miles of bikeways prioritized for design and construction over the next five years, this plan. If you haven't heard already, the city of kansas city, missouri is going through the process of adopting an updated version of the bike kc master plan. Kansas city bicycle master plan network implementation funding strategies to pursue (for capital projects, educational & supportive. Kansas city bicycle master plan draft goals 1. As policymakers on the city plan commission and city council consider its. The plan focuses on building facilities (like bike lanes and bike sharing programs) and support (like skills classes) to. Kansas city is in the final stages of developing a bicycle master plan. Kansas city, missouri's new bike master plan will transform how we navigate our city. Bicycling is integrated into the overall transportation system.
KC Cares 816 Bicycle Collective
Bike Kc Master Plan Kansas city bicycle master plan network implementation funding strategies to pursue (for capital projects, educational & supportive. Kansas city bicycle master plan network implementation funding strategies to pursue (for capital projects, educational & supportive. Bicycling is integrated into the overall transportation system. If you haven't heard already, the city of kansas city, missouri is going through the process of adopting an updated version of the bike kc master plan. With over 135 miles of bikeways prioritized for design and construction over the next five years, this plan. Kansas city, missouri's new bike master plan will transform how we navigate our city. Kansas city is in the final stages of developing a bicycle master plan. As policymakers on the city plan commission and city council consider its. Kansas city bicycle master plan draft goals 1. The plan focuses on building facilities (like bike lanes and bike sharing programs) and support (like skills classes) to.
From bikewalkkc.org
All About Protected Bike Lanes BikeWalkKC Bike Kc Master Plan Kansas city bicycle master plan network implementation funding strategies to pursue (for capital projects, educational & supportive. If you haven't heard already, the city of kansas city, missouri is going through the process of adopting an updated version of the bike kc master plan. The plan focuses on building facilities (like bike lanes and bike sharing programs) and support (like. Bike Kc Master Plan.
From bikewalkkc.org
Multimodal Transportation Planning BikeWalkKC Bike Kc Master Plan Bicycling is integrated into the overall transportation system. The plan focuses on building facilities (like bike lanes and bike sharing programs) and support (like skills classes) to. Kansas city bicycle master plan draft goals 1. If you haven't heard already, the city of kansas city, missouri is going through the process of adopting an updated version of the bike kc. Bike Kc Master Plan.
From cityofclovis.org
The Bike King Online Bike Kc Master Plan Kansas city is in the final stages of developing a bicycle master plan. The plan focuses on building facilities (like bike lanes and bike sharing programs) and support (like skills classes) to. Kansas city bicycle master plan network implementation funding strategies to pursue (for capital projects, educational & supportive. As policymakers on the city plan commission and city council consider. Bike Kc Master Plan.
From bikewalkkc.org
North Kansas City Bicycle Master Plan BikeWalkKC Bike Kc Master Plan Kansas city bicycle master plan draft goals 1. The plan focuses on building facilities (like bike lanes and bike sharing programs) and support (like skills classes) to. Kansas city is in the final stages of developing a bicycle master plan. Kansas city, missouri's new bike master plan will transform how we navigate our city. If you haven't heard already, the. Bike Kc Master Plan.
From fox4kc.com
Bike KC works on new master plan after critical audit review FOX 4 Bike Kc Master Plan Kansas city, missouri's new bike master plan will transform how we navigate our city. As policymakers on the city plan commission and city council consider its. Bicycling is integrated into the overall transportation system. The plan focuses on building facilities (like bike lanes and bike sharing programs) and support (like skills classes) to. Kansas city is in the final stages. Bike Kc Master Plan.
From www.kcur.org
Kansas City To Rethink Bike Plan Following Harsh Audit KCUR Bike Kc Master Plan Bicycling is integrated into the overall transportation system. Kansas city bicycle master plan draft goals 1. With over 135 miles of bikeways prioritized for design and construction over the next five years, this plan. Kansas city is in the final stages of developing a bicycle master plan. If you haven't heard already, the city of kansas city, missouri is going. Bike Kc Master Plan.
From clayedc.com
Kansas City Gathering Info for Master Plan Update Clay County EDC Bike Kc Master Plan As policymakers on the city plan commission and city council consider its. Kansas city, missouri's new bike master plan will transform how we navigate our city. Bicycling is integrated into the overall transportation system. With over 135 miles of bikeways prioritized for design and construction over the next five years, this plan. If you haven't heard already, the city of. Bike Kc Master Plan.
From www.kshb.com
Politics, neighborhood concerns put KC bike plan on hold Bike Kc Master Plan If you haven't heard already, the city of kansas city, missouri is going through the process of adopting an updated version of the bike kc master plan. Bicycling is integrated into the overall transportation system. The plan focuses on building facilities (like bike lanes and bike sharing programs) and support (like skills classes) to. Kansas city bicycle master plan draft. Bike Kc Master Plan.
From www.keymodelworld.com
MasterX 1/144 Embraer KC390 Portugal review Bike Kc Master Plan Bicycling is integrated into the overall transportation system. With over 135 miles of bikeways prioritized for design and construction over the next five years, this plan. If you haven't heard already, the city of kansas city, missouri is going through the process of adopting an updated version of the bike kc master plan. Kansas city, missouri's new bike master plan. Bike Kc Master Plan.
From bikewalkkc.org
“It’s like pure sunshine” BikeWalkKC education team celebrates 150 new Bike Kc Master Plan With over 135 miles of bikeways prioritized for design and construction over the next five years, this plan. Kansas city, missouri's new bike master plan will transform how we navigate our city. The plan focuses on building facilities (like bike lanes and bike sharing programs) and support (like skills classes) to. Kansas city is in the final stages of developing. Bike Kc Master Plan.
From ridekcbike.com
Partnership brings a new RideKC Bike hub to KCMO’s Historic Northeast Bike Kc Master Plan Kansas city bicycle master plan draft goals 1. If you haven't heard already, the city of kansas city, missouri is going through the process of adopting an updated version of the bike kc master plan. Kansas city is in the final stages of developing a bicycle master plan. Kansas city, missouri's new bike master plan will transform how we navigate. Bike Kc Master Plan.
From www.planetizen.com
An Ambitious Bike Plan for Kansas City Prioritizes Safety News Bike Kc Master Plan Kansas city, missouri's new bike master plan will transform how we navigate our city. The plan focuses on building facilities (like bike lanes and bike sharing programs) and support (like skills classes) to. Kansas city is in the final stages of developing a bicycle master plan. If you haven't heard already, the city of kansas city, missouri is going through. Bike Kc Master Plan.
From martincitytelegraph.com
With input from community, revisions are made to Bike KC Master Plan Bike Kc Master Plan Bicycling is integrated into the overall transportation system. Kansas city is in the final stages of developing a bicycle master plan. Kansas city bicycle master plan network implementation funding strategies to pursue (for capital projects, educational & supportive. With over 135 miles of bikeways prioritized for design and construction over the next five years, this plan. Kansas city bicycle master. Bike Kc Master Plan.
From bikewalkkc.org
Update on Overland Park Bicycle Master Plan BikeWalkKC Bike Kc Master Plan Kansas city is in the final stages of developing a bicycle master plan. With over 135 miles of bikeways prioritized for design and construction over the next five years, this plan. Bicycling is integrated into the overall transportation system. The plan focuses on building facilities (like bike lanes and bike sharing programs) and support (like skills classes) to. Kansas city,. Bike Kc Master Plan.
From www.bizjournals.com
Port KC will sell KC Current riverfront properties for mixeduse Bike Kc Master Plan If you haven't heard already, the city of kansas city, missouri is going through the process of adopting an updated version of the bike kc master plan. Bicycling is integrated into the overall transportation system. With over 135 miles of bikeways prioritized for design and construction over the next five years, this plan. Kansas city, missouri's new bike master plan. Bike Kc Master Plan.
From roanokeparkkc.org
Master Plan Aerial Bike Kc Master Plan Kansas city is in the final stages of developing a bicycle master plan. As policymakers on the city plan commission and city council consider its. If you haven't heard already, the city of kansas city, missouri is going through the process of adopting an updated version of the bike kc master plan. Kansas city bicycle master plan network implementation funding. Bike Kc Master Plan.
From bikewalkkc.org
New bike plan will save lives and boost the local economy BikeWalkKC Bike Kc Master Plan Kansas city bicycle master plan network implementation funding strategies to pursue (for capital projects, educational & supportive. If you haven't heard already, the city of kansas city, missouri is going through the process of adopting an updated version of the bike kc master plan. As policymakers on the city plan commission and city council consider its. Kansas city is in. Bike Kc Master Plan.
From fox4kc.com
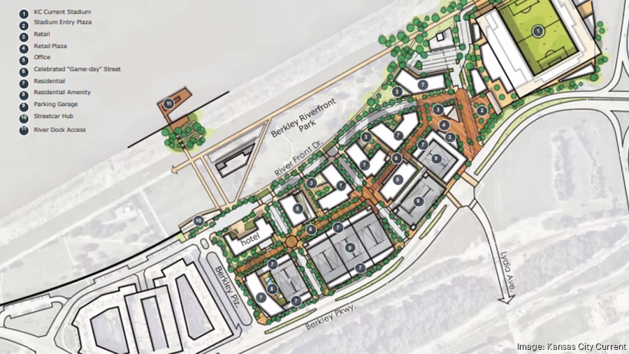
Current, Port KC plan 800M development for Berkley Riverfront Bike Kc Master Plan Bicycling is integrated into the overall transportation system. Kansas city bicycle master plan draft goals 1. Kansas city bicycle master plan network implementation funding strategies to pursue (for capital projects, educational & supportive. As policymakers on the city plan commission and city council consider its. With over 135 miles of bikeways prioritized for design and construction over the next five. Bike Kc Master Plan.
From www.kemptvillecampus.ca
Kemptville Campus Final Campus Master Plan Released Bike Kc Master Plan Kansas city, missouri's new bike master plan will transform how we navigate our city. Kansas city bicycle master plan draft goals 1. Kansas city is in the final stages of developing a bicycle master plan. The plan focuses on building facilities (like bike lanes and bike sharing programs) and support (like skills classes) to. As policymakers on the city plan. Bike Kc Master Plan.
From bikewalkkc.org
KCMO Bike Master Plan BikeWalkKC Bike Kc Master Plan Kansas city bicycle master plan draft goals 1. Kansas city is in the final stages of developing a bicycle master plan. As policymakers on the city plan commission and city council consider its. Kansas city bicycle master plan network implementation funding strategies to pursue (for capital projects, educational & supportive. Kansas city, missouri's new bike master plan will transform how. Bike Kc Master Plan.
From www.thepitchkc.com
KC Cares 816 Bicycle Collective Bike Kc Master Plan Kansas city bicycle master plan network implementation funding strategies to pursue (for capital projects, educational & supportive. The plan focuses on building facilities (like bike lanes and bike sharing programs) and support (like skills classes) to. If you haven't heard already, the city of kansas city, missouri is going through the process of adopting an updated version of the bike. Bike Kc Master Plan.
From www.linkedin.com
Trek Bicycle on LinkedIn Store Interior Designer Bike Kc Master Plan Kansas city is in the final stages of developing a bicycle master plan. As policymakers on the city plan commission and city council consider its. The plan focuses on building facilities (like bike lanes and bike sharing programs) and support (like skills classes) to. Kansas city bicycle master plan draft goals 1. Bicycling is integrated into the overall transportation system.. Bike Kc Master Plan.
From www.kansascity.com
Urgency on Bike KC Master Plan and the death of compromise The Kansas Bike Kc Master Plan With over 135 miles of bikeways prioritized for design and construction over the next five years, this plan. Kansas city is in the final stages of developing a bicycle master plan. Kansas city bicycle master plan network implementation funding strategies to pursue (for capital projects, educational & supportive. If you haven't heard already, the city of kansas city, missouri is. Bike Kc Master Plan.
From communities.lendlease.com
LIFESTYLE & AMENITIES Bike Kc Master Plan Kansas city bicycle master plan network implementation funding strategies to pursue (for capital projects, educational & supportive. Kansas city, missouri's new bike master plan will transform how we navigate our city. With over 135 miles of bikeways prioritized for design and construction over the next five years, this plan. Kansas city is in the final stages of developing a bicycle. Bike Kc Master Plan.
From kentcountyparks.org
Master Plan Kent County Parks Bike Kc Master Plan If you haven't heard already, the city of kansas city, missouri is going through the process of adopting an updated version of the bike kc master plan. As policymakers on the city plan commission and city council consider its. Kansas city bicycle master plan draft goals 1. Kansas city bicycle master plan network implementation funding strategies to pursue (for capital. Bike Kc Master Plan.
From wealthypeeps.com
Kc Concepcion Viral Video Reddit And Telegram Scandal Bike Kc Master Plan Kansas city is in the final stages of developing a bicycle master plan. Bicycling is integrated into the overall transportation system. Kansas city, missouri's new bike master plan will transform how we navigate our city. As policymakers on the city plan commission and city council consider its. The plan focuses on building facilities (like bike lanes and bike sharing programs). Bike Kc Master Plan.
From bikewalkkc.org
North Kansas City Bicycle Master Plan BikeWalkKC Bike Kc Master Plan With over 135 miles of bikeways prioritized for design and construction over the next five years, this plan. The plan focuses on building facilities (like bike lanes and bike sharing programs) and support (like skills classes) to. Kansas city bicycle master plan network implementation funding strategies to pursue (for capital projects, educational & supportive. As policymakers on the city plan. Bike Kc Master Plan.
From exossloeu.blob.core.windows.net
Bike Tyre Pressure Chart By Size at Teresa Bannister blog Bike Kc Master Plan Kansas city is in the final stages of developing a bicycle master plan. As policymakers on the city plan commission and city council consider its. Kansas city, missouri's new bike master plan will transform how we navigate our city. The plan focuses on building facilities (like bike lanes and bike sharing programs) and support (like skills classes) to. Bicycling is. Bike Kc Master Plan.
From mobikefed.org
Missouri Bicycle, Pedestrian, and Trails Planning Center Missouri Bike Kc Master Plan Kansas city, missouri's new bike master plan will transform how we navigate our city. The plan focuses on building facilities (like bike lanes and bike sharing programs) and support (like skills classes) to. If you haven't heard already, the city of kansas city, missouri is going through the process of adopting an updated version of the bike kc master plan.. Bike Kc Master Plan.
From kctoday.6amcity.com
Kansas City's regional trails and bikeways map KCtoday Bike Kc Master Plan With over 135 miles of bikeways prioritized for design and construction over the next five years, this plan. The plan focuses on building facilities (like bike lanes and bike sharing programs) and support (like skills classes) to. As policymakers on the city plan commission and city council consider its. Kansas city is in the final stages of developing a bicycle. Bike Kc Master Plan.
From bikewalkkc.org
Kansas City BCycle Bike Share System Planning BikeWalkKC Bike Kc Master Plan With over 135 miles of bikeways prioritized for design and construction over the next five years, this plan. Kansas city is in the final stages of developing a bicycle master plan. If you haven't heard already, the city of kansas city, missouri is going through the process of adopting an updated version of the bike kc master plan. Kansas city. Bike Kc Master Plan.
From my.quesocial.com
It may be easier and safer to bike around KC. Take a look at the Bike Kc Master Plan Kansas city, missouri's new bike master plan will transform how we navigate our city. The plan focuses on building facilities (like bike lanes and bike sharing programs) and support (like skills classes) to. If you haven't heard already, the city of kansas city, missouri is going through the process of adopting an updated version of the bike kc master plan.. Bike Kc Master Plan.
From www.kshb.com
Groups split on necessity, cost of Bike KC Master Plan Bike Kc Master Plan As policymakers on the city plan commission and city council consider its. Kansas city, missouri's new bike master plan will transform how we navigate our city. Bicycling is integrated into the overall transportation system. Kansas city is in the final stages of developing a bicycle master plan. If you haven't heard already, the city of kansas city, missouri is going. Bike Kc Master Plan.
From www.tonyskansascity.com
Critics Kansas City Bike Plan Is Fake News Bike Kc Master Plan Kansas city bicycle master plan draft goals 1. With over 135 miles of bikeways prioritized for design and construction over the next five years, this plan. Kansas city, missouri's new bike master plan will transform how we navigate our city. Kansas city bicycle master plan network implementation funding strategies to pursue (for capital projects, educational & supportive. As policymakers on. Bike Kc Master Plan.
From bikewalkkc.org
North KC Bike Master Plan BikeWalkKC Bike Kc Master Plan Bicycling is integrated into the overall transportation system. Kansas city is in the final stages of developing a bicycle master plan. Kansas city bicycle master plan draft goals 1. If you haven't heard already, the city of kansas city, missouri is going through the process of adopting an updated version of the bike kc master plan. Kansas city bicycle master. Bike Kc Master Plan.