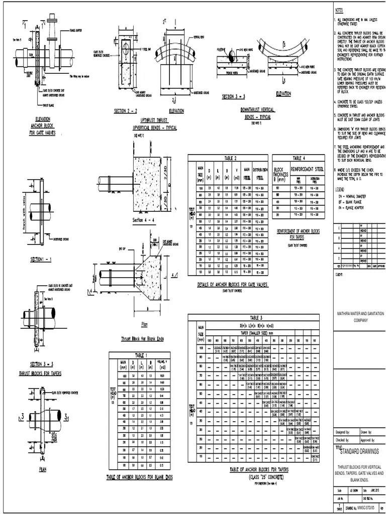
Thrust Block For Vertical Bend . Thrust blocks or anchor blocks are required on all unrestrained pressure pipelines at locations where thrust forces caused by internal pressures act. Gravity thrust blocks may be used to resist thrust at vertical down bends. Concrete shall be placed to within 50 mm of the face of the bell. The pressure range and pipe diameters and, more importantly, the thrust block sizes. Usually, thrust blocks are provided for buried pipelines at fittings requiring branching or direction change. The guidance given in this report is principally for thrusts up to 1000 kn, limiting both. In a gravity block, the weight of the block is the force providing equilibrium with. Thrust block sizes shall be based on the maximum line pressure, pipe size and the safe bearing load of the soil. While the theory used is. The distinction between the bearing and gravity thrust blocks is.
from www.eng-tips.com
Usually, thrust blocks are provided for buried pipelines at fittings requiring branching or direction change. The pressure range and pipe diameters and, more importantly, the thrust block sizes. Gravity thrust blocks may be used to resist thrust at vertical down bends. Concrete shall be placed to within 50 mm of the face of the bell. In a gravity block, the weight of the block is the force providing equilibrium with. Thrust blocks or anchor blocks are required on all unrestrained pressure pipelines at locations where thrust forces caused by internal pressures act. Thrust block sizes shall be based on the maximum line pressure, pipe size and the safe bearing load of the soil. The guidance given in this report is principally for thrusts up to 1000 kn, limiting both. While the theory used is. The distinction between the bearing and gravity thrust blocks is.
BURIED PIPE STRESS ANALYSIS Pipelines, Piping and Fluid Mechanics
Thrust Block For Vertical Bend Thrust blocks or anchor blocks are required on all unrestrained pressure pipelines at locations where thrust forces caused by internal pressures act. Gravity thrust blocks may be used to resist thrust at vertical down bends. In a gravity block, the weight of the block is the force providing equilibrium with. Concrete shall be placed to within 50 mm of the face of the bell. The pressure range and pipe diameters and, more importantly, the thrust block sizes. Thrust block sizes shall be based on the maximum line pressure, pipe size and the safe bearing load of the soil. While the theory used is. Usually, thrust blocks are provided for buried pipelines at fittings requiring branching or direction change. The distinction between the bearing and gravity thrust blocks is. The guidance given in this report is principally for thrusts up to 1000 kn, limiting both. Thrust blocks or anchor blocks are required on all unrestrained pressure pipelines at locations where thrust forces caused by internal pressures act.
From www.scribd.com
Design and Analysis of a 600mm Diameter Vertical Thrust Block for a 45 Thrust Block For Vertical Bend While the theory used is. In a gravity block, the weight of the block is the force providing equilibrium with. The guidance given in this report is principally for thrusts up to 1000 kn, limiting both. The distinction between the bearing and gravity thrust blocks is. Usually, thrust blocks are provided for buried pipelines at fittings requiring branching or direction. Thrust Block For Vertical Bend.
From www.scribd.com
Concrete Blocking For Convex Vertical Bends Concrete Thrust Blocking Thrust Block For Vertical Bend The distinction between the bearing and gravity thrust blocks is. The guidance given in this report is principally for thrusts up to 1000 kn, limiting both. Thrust block sizes shall be based on the maximum line pressure, pipe size and the safe bearing load of the soil. Gravity thrust blocks may be used to resist thrust at vertical down bends.. Thrust Block For Vertical Bend.
From www.eng-tips.com
BURIED PIPE STRESS ANALYSIS Pipelines, Piping and Fluid Mechanics Thrust Block For Vertical Bend Concrete shall be placed to within 50 mm of the face of the bell. Usually, thrust blocks are provided for buried pipelines at fittings requiring branching or direction change. Thrust blocks or anchor blocks are required on all unrestrained pressure pipelines at locations where thrust forces caused by internal pressures act. The guidance given in this report is principally for. Thrust Block For Vertical Bend.
From youssef1981461.blogspot.com
تصميم كتل الدفع Design Thrust Blocks Thrust Block For Vertical Bend Thrust block sizes shall be based on the maximum line pressure, pipe size and the safe bearing load of the soil. The distinction between the bearing and gravity thrust blocks is. Thrust blocks or anchor blocks are required on all unrestrained pressure pipelines at locations where thrust forces caused by internal pressures act. The pressure range and pipe diameters and,. Thrust Block For Vertical Bend.
From design.udlvirtual.edu.pe
Thrust Block Standard Details Design Talk Thrust Block For Vertical Bend Usually, thrust blocks are provided for buried pipelines at fittings requiring branching or direction change. The distinction between the bearing and gravity thrust blocks is. Gravity thrust blocks may be used to resist thrust at vertical down bends. Concrete shall be placed to within 50 mm of the face of the bell. The guidance given in this report is principally. Thrust Block For Vertical Bend.
From www.prof-eng.net
شرح كتل الدفع Thrust Blocks وتصميمها بالصور الخرسانة الساندة للقطع الخاصة Thrust Block For Vertical Bend In a gravity block, the weight of the block is the force providing equilibrium with. Thrust blocks or anchor blocks are required on all unrestrained pressure pipelines at locations where thrust forces caused by internal pressures act. Usually, thrust blocks are provided for buried pipelines at fittings requiring branching or direction change. The pressure range and pipe diameters and, more. Thrust Block For Vertical Bend.
From www.mcwaneductile.com
Why Is Using the Right Design Criteria Important in Calculating Thrust Block For Vertical Bend The pressure range and pipe diameters and, more importantly, the thrust block sizes. The guidance given in this report is principally for thrusts up to 1000 kn, limiting both. Gravity thrust blocks may be used to resist thrust at vertical down bends. Thrust block sizes shall be based on the maximum line pressure, pipe size and the safe bearing load. Thrust Block For Vertical Bend.
From www.youtube.com
CP4 4 Pipeline Apputenances YouTube Thrust Block For Vertical Bend Thrust blocks or anchor blocks are required on all unrestrained pressure pipelines at locations where thrust forces caused by internal pressures act. In a gravity block, the weight of the block is the force providing equilibrium with. The pressure range and pipe diameters and, more importantly, the thrust block sizes. The distinction between the bearing and gravity thrust blocks is.. Thrust Block For Vertical Bend.
From whatispiping.com
What is a Thrust Block? It’s Design, Construction, Types, Working Thrust Block For Vertical Bend Concrete shall be placed to within 50 mm of the face of the bell. Thrust block sizes shall be based on the maximum line pressure, pipe size and the safe bearing load of the soil. The pressure range and pipe diameters and, more importantly, the thrust block sizes. The distinction between the bearing and gravity thrust blocks is. The guidance. Thrust Block For Vertical Bend.
From cadbull.com
Thrust block detail in AutoCAD 2D drawing, dwg file, CAD file Cadbull Thrust Block For Vertical Bend The pressure range and pipe diameters and, more importantly, the thrust block sizes. In a gravity block, the weight of the block is the force providing equilibrium with. Concrete shall be placed to within 50 mm of the face of the bell. Thrust block sizes shall be based on the maximum line pressure, pipe size and the safe bearing load. Thrust Block For Vertical Bend.
From www.pmmag.com
Codes Corner The benefits of the UPC and Installation Standards 2020 Thrust Block For Vertical Bend Gravity thrust blocks may be used to resist thrust at vertical down bends. Usually, thrust blocks are provided for buried pipelines at fittings requiring branching or direction change. In a gravity block, the weight of the block is the force providing equilibrium with. Thrust block sizes shall be based on the maximum line pressure, pipe size and the safe bearing. Thrust Block For Vertical Bend.
From pipingtechs.com
What Is A Thrust Block? How Does It Work? Piping Technology System Thrust Block For Vertical Bend In a gravity block, the weight of the block is the force providing equilibrium with. Thrust blocks or anchor blocks are required on all unrestrained pressure pipelines at locations where thrust forces caused by internal pressures act. The pressure range and pipe diameters and, more importantly, the thrust block sizes. Usually, thrust blocks are provided for buried pipelines at fittings. Thrust Block For Vertical Bend.
From www.prof-eng.net
شرح كتل الدفع Thrust Blocks وتصميمها بالصور الخرسانة الساندة للقطع الخاصة Thrust Block For Vertical Bend Concrete shall be placed to within 50 mm of the face of the bell. Thrust block sizes shall be based on the maximum line pressure, pipe size and the safe bearing load of the soil. Thrust blocks or anchor blocks are required on all unrestrained pressure pipelines at locations where thrust forces caused by internal pressures act. Usually, thrust blocks. Thrust Block For Vertical Bend.
From www.ausflowsydney.com.au
Concrete thrust blocks and bends Sydney Water Accredited WSC Thrust Block For Vertical Bend Thrust blocks or anchor blocks are required on all unrestrained pressure pipelines at locations where thrust forces caused by internal pressures act. The pressure range and pipe diameters and, more importantly, the thrust block sizes. While the theory used is. The guidance given in this report is principally for thrusts up to 1000 kn, limiting both. Thrust block sizes shall. Thrust Block For Vertical Bend.
From www.scribd.com
ACADThrust Blocks For Vertical Bends, Tapers, GaLayout1Model PDF Thrust Block For Vertical Bend While the theory used is. Concrete shall be placed to within 50 mm of the face of the bell. The distinction between the bearing and gravity thrust blocks is. The guidance given in this report is principally for thrusts up to 1000 kn, limiting both. Thrust blocks or anchor blocks are required on all unrestrained pressure pipelines at locations where. Thrust Block For Vertical Bend.
From www.structuralguide.com
Thrust Block Design [Theory and Worked Example] Structural Guide Thrust Block For Vertical Bend Thrust block sizes shall be based on the maximum line pressure, pipe size and the safe bearing load of the soil. Thrust blocks or anchor blocks are required on all unrestrained pressure pipelines at locations where thrust forces caused by internal pressures act. Usually, thrust blocks are provided for buried pipelines at fittings requiring branching or direction change. The pressure. Thrust Block For Vertical Bend.
From www.watertraining.ca
Instructions Thrust Block For Vertical Bend The distinction between the bearing and gravity thrust blocks is. While the theory used is. The pressure range and pipe diameters and, more importantly, the thrust block sizes. Thrust block sizes shall be based on the maximum line pressure, pipe size and the safe bearing load of the soil. Usually, thrust blocks are provided for buried pipelines at fittings requiring. Thrust Block For Vertical Bend.
From mungfali.com
Thrust Block Sizing Chart Thrust Block For Vertical Bend Concrete shall be placed to within 50 mm of the face of the bell. Thrust block sizes shall be based on the maximum line pressure, pipe size and the safe bearing load of the soil. Usually, thrust blocks are provided for buried pipelines at fittings requiring branching or direction change. Thrust blocks or anchor blocks are required on all unrestrained. Thrust Block For Vertical Bend.
From whatispiping.com
What is a Thrust Block? It’s Design, Construction, Types, Working Thrust Block For Vertical Bend While the theory used is. Usually, thrust blocks are provided for buried pipelines at fittings requiring branching or direction change. The distinction between the bearing and gravity thrust blocks is. Concrete shall be placed to within 50 mm of the face of the bell. Gravity thrust blocks may be used to resist thrust at vertical down bends. Thrust block sizes. Thrust Block For Vertical Bend.
From www.yumpu.com
Thrust Block Details Boston Water and Sewer Commission Thrust Block For Vertical Bend Thrust blocks or anchor blocks are required on all unrestrained pressure pipelines at locations where thrust forces caused by internal pressures act. While the theory used is. Thrust block sizes shall be based on the maximum line pressure, pipe size and the safe bearing load of the soil. Usually, thrust blocks are provided for buried pipelines at fittings requiring branching. Thrust Block For Vertical Bend.
From www.slideshare.net
Buried Flexible Pipelines AS2566 Thrust Block For Vertical Bend The pressure range and pipe diameters and, more importantly, the thrust block sizes. In a gravity block, the weight of the block is the force providing equilibrium with. The guidance given in this report is principally for thrusts up to 1000 kn, limiting both. Usually, thrust blocks are provided for buried pipelines at fittings requiring branching or direction change. The. Thrust Block For Vertical Bend.
From www.engr.scu.edu
Chapter 6 Momentum in water flow Hydraulics and Water Resources Thrust Block For Vertical Bend The pressure range and pipe diameters and, more importantly, the thrust block sizes. Thrust blocks or anchor blocks are required on all unrestrained pressure pipelines at locations where thrust forces caused by internal pressures act. Usually, thrust blocks are provided for buried pipelines at fittings requiring branching or direction change. The guidance given in this report is principally for thrusts. Thrust Block For Vertical Bend.
From www.researchgate.net
Layout of right thrust block anchors Download Scientific Diagram Thrust Block For Vertical Bend The guidance given in this report is principally for thrusts up to 1000 kn, limiting both. In a gravity block, the weight of the block is the force providing equilibrium with. Thrust block sizes shall be based on the maximum line pressure, pipe size and the safe bearing load of the soil. The distinction between the bearing and gravity thrust. Thrust Block For Vertical Bend.
From opentextbc.ca
Learning Task 3 Block B Water Services and Distribution Systems Thrust Block For Vertical Bend The guidance given in this report is principally for thrusts up to 1000 kn, limiting both. The pressure range and pipe diameters and, more importantly, the thrust block sizes. While the theory used is. In a gravity block, the weight of the block is the force providing equilibrium with. The distinction between the bearing and gravity thrust blocks is. Thrust. Thrust Block For Vertical Bend.
From www.pinterest.com
Thrust Blocks Pipes and Square feet Thrust Block For Vertical Bend While the theory used is. The guidance given in this report is principally for thrusts up to 1000 kn, limiting both. In a gravity block, the weight of the block is the force providing equilibrium with. The distinction between the bearing and gravity thrust blocks is. Gravity thrust blocks may be used to resist thrust at vertical down bends. The. Thrust Block For Vertical Bend.
From www.slideserve.com
PPT BURIED FLEXIBLE PIPELINES PowerPoint Presentation, free download Thrust Block For Vertical Bend Gravity thrust blocks may be used to resist thrust at vertical down bends. The guidance given in this report is principally for thrusts up to 1000 kn, limiting both. Thrust blocks or anchor blocks are required on all unrestrained pressure pipelines at locations where thrust forces caused by internal pressures act. Usually, thrust blocks are provided for buried pipelines at. Thrust Block For Vertical Bend.
From www.prof-eng.net
شرح كتل الدفع Thrust Blocks وتصميمها بالصور الخرسانة الساندة للقطع الخاصة Thrust Block For Vertical Bend Thrust block sizes shall be based on the maximum line pressure, pipe size and the safe bearing load of the soil. Concrete shall be placed to within 50 mm of the face of the bell. The guidance given in this report is principally for thrusts up to 1000 kn, limiting both. Usually, thrust blocks are provided for buried pipelines at. Thrust Block For Vertical Bend.
From www.researchgate.net
Vertical displacement of thrust block (mm). Download Scientific Diagram Thrust Block For Vertical Bend While the theory used is. The distinction between the bearing and gravity thrust blocks is. Usually, thrust blocks are provided for buried pipelines at fittings requiring branching or direction change. Thrust blocks or anchor blocks are required on all unrestrained pressure pipelines at locations where thrust forces caused by internal pressures act. The pressure range and pipe diameters and, more. Thrust Block For Vertical Bend.
From youssef1981461.blogspot.com
تصميم كتل الدفع Design Thrust Blocks Thrust Block For Vertical Bend Thrust block sizes shall be based on the maximum line pressure, pipe size and the safe bearing load of the soil. In a gravity block, the weight of the block is the force providing equilibrium with. Concrete shall be placed to within 50 mm of the face of the bell. Thrust blocks or anchor blocks are required on all unrestrained. Thrust Block For Vertical Bend.
From www.chegg.com
Solved Design A Thrust Block For A Pipeline With A 90 Deg... Thrust Block For Vertical Bend While the theory used is. The distinction between the bearing and gravity thrust blocks is. Concrete shall be placed to within 50 mm of the face of the bell. In a gravity block, the weight of the block is the force providing equilibrium with. Usually, thrust blocks are provided for buried pipelines at fittings requiring branching or direction change. Thrust. Thrust Block For Vertical Bend.
From www.scribd.com
D04ConcreteThrustBlocking.pdf PDF Thrust Block For Vertical Bend In a gravity block, the weight of the block is the force providing equilibrium with. Thrust blocks or anchor blocks are required on all unrestrained pressure pipelines at locations where thrust forces caused by internal pressures act. While the theory used is. The pressure range and pipe diameters and, more importantly, the thrust block sizes. Concrete shall be placed to. Thrust Block For Vertical Bend.
From stressman.no
Thrust Blocks Stressman Engineering AS Thrust Block For Vertical Bend In a gravity block, the weight of the block is the force providing equilibrium with. Concrete shall be placed to within 50 mm of the face of the bell. Thrust block sizes shall be based on the maximum line pressure, pipe size and the safe bearing load of the soil. The guidance given in this report is principally for thrusts. Thrust Block For Vertical Bend.
From www.townofsilt.org
Town of Silt, Colorado Public Works Thrust Block For Vertical Bend The guidance given in this report is principally for thrusts up to 1000 kn, limiting both. Concrete shall be placed to within 50 mm of the face of the bell. Gravity thrust blocks may be used to resist thrust at vertical down bends. Thrust blocks or anchor blocks are required on all unrestrained pressure pipelines at locations where thrust forces. Thrust Block For Vertical Bend.
From pdfslide.net
CONCRETE THRUST BLOCK MAIN STOP OPTIONAL ??2017110790 bend dead end Thrust Block For Vertical Bend The distinction between the bearing and gravity thrust blocks is. The guidance given in this report is principally for thrusts up to 1000 kn, limiting both. Thrust block sizes shall be based on the maximum line pressure, pipe size and the safe bearing load of the soil. Concrete shall be placed to within 50 mm of the face of the. Thrust Block For Vertical Bend.
From up.codes
Thrust Block Bearing Area UpCodes Thrust Block For Vertical Bend The distinction between the bearing and gravity thrust blocks is. Thrust blocks or anchor blocks are required on all unrestrained pressure pipelines at locations where thrust forces caused by internal pressures act. In a gravity block, the weight of the block is the force providing equilibrium with. Concrete shall be placed to within 50 mm of the face of the. Thrust Block For Vertical Bend.