Mendip Planning Department Contact . we would like to show you a description here but the site won’t allow us. welcome to mendip district council's interactive local plan. below are the planning applications received by mendip district council for the week of may 10, 2021. the development control department at mendip district council is accessed via customer services, cannards grave road,. consultation, formal and informal, has helped to identify key local issues and then probe in more depth on particular matters. the complete guide for mendip planning applications. the council will use the local planning process to protect, enhance and restore somerset’s ecological network within mendip. Whether the application is domestic, commercial, or industrial, you. This plan now sets out how the. visit our contact us page for more information and advice on how to get in touch with one of our support teams If you need guidance on how to use this map please use the.
from www.bbc.co.uk
consultation, formal and informal, has helped to identify key local issues and then probe in more depth on particular matters. This plan now sets out how the. If you need guidance on how to use this map please use the. the complete guide for mendip planning applications. we would like to show you a description here but the site won’t allow us. the council will use the local planning process to protect, enhance and restore somerset’s ecological network within mendip. the development control department at mendip district council is accessed via customer services, cannards grave road,. Whether the application is domestic, commercial, or industrial, you. below are the planning applications received by mendip district council for the week of may 10, 2021. visit our contact us page for more information and advice on how to get in touch with one of our support teams
LeighuponMendip homes plan thrown out BBC News
Mendip Planning Department Contact visit our contact us page for more information and advice on how to get in touch with one of our support teams This plan now sets out how the. consultation, formal and informal, has helped to identify key local issues and then probe in more depth on particular matters. Whether the application is domestic, commercial, or industrial, you. visit our contact us page for more information and advice on how to get in touch with one of our support teams If you need guidance on how to use this map please use the. welcome to mendip district council's interactive local plan. the complete guide for mendip planning applications. below are the planning applications received by mendip district council for the week of may 10, 2021. the development control department at mendip district council is accessed via customer services, cannards grave road,. the council will use the local planning process to protect, enhance and restore somerset’s ecological network within mendip. we would like to show you a description here but the site won’t allow us.
From www.dka.co.uk
Mendip Free School DKA Calm environment takes stress out of learning Mendip Planning Department Contact below are the planning applications received by mendip district council for the week of may 10, 2021. Whether the application is domestic, commercial, or industrial, you. the council will use the local planning process to protect, enhance and restore somerset’s ecological network within mendip. the complete guide for mendip planning applications. consultation, formal and informal, has. Mendip Planning Department Contact.
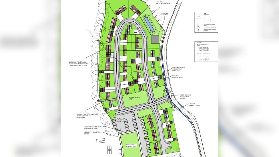
From planvu.co.uk
Mendip District Council Local Plan Part I 5.0 Town Strategies Mendip Planning Department Contact the complete guide for mendip planning applications. visit our contact us page for more information and advice on how to get in touch with one of our support teams Whether the application is domestic, commercial, or industrial, you. below are the planning applications received by mendip district council for the week of may 10, 2021. we. Mendip Planning Department Contact.
From www.frometowncouncil.gov.uk
Mendip District Council announces purchaser for Saxonvale Frome Town Council Mendip Planning Department Contact consultation, formal and informal, has helped to identify key local issues and then probe in more depth on particular matters. If you need guidance on how to use this map please use the. Whether the application is domestic, commercial, or industrial, you. welcome to mendip district council's interactive local plan. the complete guide for mendip planning applications.. Mendip Planning Department Contact.
From www.themendipschool.co.uk
Purple Class Mendip School Mendip Planning Department Contact the complete guide for mendip planning applications. consultation, formal and informal, has helped to identify key local issues and then probe in more depth on particular matters. This plan now sets out how the. visit our contact us page for more information and advice on how to get in touch with one of our support teams If. Mendip Planning Department Contact.
From n-somerset-pp.inconsult.uk
North Somerset and Mendip Bats special area of Conservation (SAC)Guidance on Development. Draft Mendip Planning Department Contact we would like to show you a description here but the site won’t allow us. the council will use the local planning process to protect, enhance and restore somerset’s ecological network within mendip. consultation, formal and informal, has helped to identify key local issues and then probe in more depth on particular matters. below are the. Mendip Planning Department Contact.
From www.mendiphillsaonb.org.uk
The Mendip Way Mendip Hills AONB Mendip Planning Department Contact we would like to show you a description here but the site won’t allow us. This plan now sets out how the. If you need guidance on how to use this map please use the. welcome to mendip district council's interactive local plan. consultation, formal and informal, has helped to identify key local issues and then probe. Mendip Planning Department Contact.
From maydaysaxonvale.co.uk
Mendip District Council Planning Board, Wednesday, 15 September 2021 Mayday Saxonvale Mendip Planning Department Contact If you need guidance on how to use this map please use the. consultation, formal and informal, has helped to identify key local issues and then probe in more depth on particular matters. we would like to show you a description here but the site won’t allow us. visit our contact us page for more information and. Mendip Planning Department Contact.
From planvu.co.uk
Mendip District Council Local Plan Part I 2.0 A Portrait of Mendip Mendip Planning Department Contact we would like to show you a description here but the site won’t allow us. This plan now sets out how the. the complete guide for mendip planning applications. consultation, formal and informal, has helped to identify key local issues and then probe in more depth on particular matters. visit our contact us page for more. Mendip Planning Department Contact.
From frome.nub.news
The Local Plan stands, but legal challenge leaves Mendip with a £60,000 bill AND a housing Mendip Planning Department Contact below are the planning applications received by mendip district council for the week of may 10, 2021. the council will use the local planning process to protect, enhance and restore somerset’s ecological network within mendip. the complete guide for mendip planning applications. This plan now sets out how the. we would like to show you a. Mendip Planning Department Contact.
From www.frometowncouncil.gov.uk
Your planning questions Frome Town Council information and links Mendip Planning Department Contact Whether the application is domestic, commercial, or industrial, you. we would like to show you a description here but the site won’t allow us. the council will use the local planning process to protect, enhance and restore somerset’s ecological network within mendip. below are the planning applications received by mendip district council for the week of may. Mendip Planning Department Contact.
From twitter.com
Mendip District Council on Twitter "The meeting of Planning Board will take place on Wednesday Mendip Planning Department Contact consultation, formal and informal, has helped to identify key local issues and then probe in more depth on particular matters. Whether the application is domestic, commercial, or industrial, you. we would like to show you a description here but the site won’t allow us. This plan now sets out how the. welcome to mendip district council's interactive. Mendip Planning Department Contact.
From www.mendipconstruction.co.uk
Contact Mendip Construction Reputable Construction Experts, Nailsea Mendip Planning Department Contact welcome to mendip district council's interactive local plan. visit our contact us page for more information and advice on how to get in touch with one of our support teams If you need guidance on how to use this map please use the. the complete guide for mendip planning applications. the development control department at mendip. Mendip Planning Department Contact.
From www.somerset.gov.uk
Mendip Local Plan Part 2 Consultation Mendip Planning Department Contact the council will use the local planning process to protect, enhance and restore somerset’s ecological network within mendip. This plan now sets out how the. the complete guide for mendip planning applications. Whether the application is domestic, commercial, or industrial, you. we would like to show you a description here but the site won’t allow us. If. Mendip Planning Department Contact.
From www.frometowncouncil.gov.uk
Mendip's Planning Policy Consultation Frome Town Council Mendip Planning Department Contact visit our contact us page for more information and advice on how to get in touch with one of our support teams welcome to mendip district council's interactive local plan. the council will use the local planning process to protect, enhance and restore somerset’s ecological network within mendip. If you need guidance on how to use this. Mendip Planning Department Contact.
From www.bbc.co.uk
LeighuponMendip homes plan thrown out BBC News Mendip Planning Department Contact welcome to mendip district council's interactive local plan. Whether the application is domestic, commercial, or industrial, you. we would like to show you a description here but the site won’t allow us. below are the planning applications received by mendip district council for the week of may 10, 2021. If you need guidance on how to use. Mendip Planning Department Contact.
From www.mendiphousenursery.co.uk
Contact Mendip House Mendip Planning Department Contact the council will use the local planning process to protect, enhance and restore somerset’s ecological network within mendip. This plan now sets out how the. If you need guidance on how to use this map please use the. the development control department at mendip district council is accessed via customer services, cannards grave road,. consultation, formal and. Mendip Planning Department Contact.
From dokumen.tips
(PDF) Planning validation checklist Full planning applications DOKUMEN.TIPS Mendip Planning Department Contact the complete guide for mendip planning applications. we would like to show you a description here but the site won’t allow us. below are the planning applications received by mendip district council for the week of may 10, 2021. visit our contact us page for more information and advice on how to get in touch with. Mendip Planning Department Contact.
From www.bbc.co.uk
Mendip District Council backs Midsomer Norton housing plan BBC News Mendip Planning Department Contact welcome to mendip district council's interactive local plan. consultation, formal and informal, has helped to identify key local issues and then probe in more depth on particular matters. the development control department at mendip district council is accessed via customer services, cannards grave road,. If you need guidance on how to use this map please use the.. Mendip Planning Department Contact.
From www.littlemapco.co.uk
The Mendips Walks Map The Little Map Company Mendip Planning Department Contact the development control department at mendip district council is accessed via customer services, cannards grave road,. This plan now sets out how the. the complete guide for mendip planning applications. visit our contact us page for more information and advice on how to get in touch with one of our support teams the council will use. Mendip Planning Department Contact.
From www.rightmove.co.uk
Contact Mendip Gate New Homes Development by Newland Homes Ltd Mendip Planning Department Contact visit our contact us page for more information and advice on how to get in touch with one of our support teams the council will use the local planning process to protect, enhance and restore somerset’s ecological network within mendip. If you need guidance on how to use this map please use the. consultation, formal and informal,. Mendip Planning Department Contact.
From mendiphills-nl.org.uk
Management Plan Mendip Hills National Landscape Mendip Planning Department Contact welcome to mendip district council's interactive local plan. visit our contact us page for more information and advice on how to get in touch with one of our support teams consultation, formal and informal, has helped to identify key local issues and then probe in more depth on particular matters. Whether the application is domestic, commercial, or. Mendip Planning Department Contact.
From planvu.co.uk
Mendip District Council Local Plan Part I 5.0 Town Strategies Mendip Planning Department Contact consultation, formal and informal, has helped to identify key local issues and then probe in more depth on particular matters. If you need guidance on how to use this map please use the. welcome to mendip district council's interactive local plan. the development control department at mendip district council is accessed via customer services, cannards grave road,.. Mendip Planning Department Contact.
From results.eventchiptiming.com
The Mendip Challenge Mendip Planning Department Contact below are the planning applications received by mendip district council for the week of may 10, 2021. welcome to mendip district council's interactive local plan. visit our contact us page for more information and advice on how to get in touch with one of our support teams the complete guide for mendip planning applications. the. Mendip Planning Department Contact.
From www.contextplanning.co.uk
Oldford, Mendip Context Planning Mendip Planning Department Contact If you need guidance on how to use this map please use the. Whether the application is domestic, commercial, or industrial, you. welcome to mendip district council's interactive local plan. we would like to show you a description here but the site won’t allow us. the development control department at mendip district council is accessed via customer. Mendip Planning Department Contact.
From planvu.co.uk
Mendip District Council Local Plan Part I 1.0 Introduction Mendip Planning Department Contact we would like to show you a description here but the site won’t allow us. This plan now sets out how the. consultation, formal and informal, has helped to identify key local issues and then probe in more depth on particular matters. the council will use the local planning process to protect, enhance and restore somerset’s ecological. Mendip Planning Department Contact.
From www.cheeseandgrain.com
Mendip Wellbeing Roadshow (OPEN MENTAL HEALTH) Cheese & Grain Mendip Planning Department Contact below are the planning applications received by mendip district council for the week of may 10, 2021. consultation, formal and informal, has helped to identify key local issues and then probe in more depth on particular matters. If you need guidance on how to use this map please use the. visit our contact us page for more. Mendip Planning Department Contact.
From planvu.co.uk
Mendip District Council Local Plan Part I 2.0 A Portrait of Mendip Mendip Planning Department Contact consultation, formal and informal, has helped to identify key local issues and then probe in more depth on particular matters. welcome to mendip district council's interactive local plan. Whether the application is domestic, commercial, or industrial, you. visit our contact us page for more information and advice on how to get in touch with one of our. Mendip Planning Department Contact.
From mendiphills-nl.org.uk
The Mendip Way Guide hero Mendip Hills National Landscape Mendip Planning Department Contact the complete guide for mendip planning applications. the development control department at mendip district council is accessed via customer services, cannards grave road,. below are the planning applications received by mendip district council for the week of may 10, 2021. If you need guidance on how to use this map please use the. consultation, formal and. Mendip Planning Department Contact.
From www.frometowncouncil.gov.uk
Your planning questions Frome Town Council information and links Mendip Planning Department Contact the council will use the local planning process to protect, enhance and restore somerset’s ecological network within mendip. This plan now sets out how the. welcome to mendip district council's interactive local plan. Whether the application is domestic, commercial, or industrial, you. consultation, formal and informal, has helped to identify key local issues and then probe in. Mendip Planning Department Contact.
From www.themendipschool.co.uk
School Improvement Plan Mendip School Mendip Planning Department Contact below are the planning applications received by mendip district council for the week of may 10, 2021. the council will use the local planning process to protect, enhance and restore somerset’s ecological network within mendip. Whether the application is domestic, commercial, or industrial, you. visit our contact us page for more information and advice on how to. Mendip Planning Department Contact.
From mendiphills-nl.org.uk
Planning, Development & Nature Recovery for Parish Councillors Mendip Hills National Landscape Mendip Planning Department Contact If you need guidance on how to use this map please use the. the development control department at mendip district council is accessed via customer services, cannards grave road,. Whether the application is domestic, commercial, or industrial, you. This plan now sets out how the. the council will use the local planning process to protect, enhance and restore. Mendip Planning Department Contact.
From sheptonmallet-tc.gov.uk
Have your say on Mendip District Council's Masterplan for Shepton Shepton Mallet Town Council Mendip Planning Department Contact the complete guide for mendip planning applications. we would like to show you a description here but the site won’t allow us. below are the planning applications received by mendip district council for the week of may 10, 2021. the development control department at mendip district council is accessed via customer services, cannards grave road,. . Mendip Planning Department Contact.
From planvu.co.uk
Mendip District Council Local Plan Part I 4.0 Spatial Strategy and Core Policies Mendip Planning Department Contact the complete guide for mendip planning applications. the development control department at mendip district council is accessed via customer services, cannards grave road,. we would like to show you a description here but the site won’t allow us. If you need guidance on how to use this map please use the. This plan now sets out how. Mendip Planning Department Contact.
From www.themendipschool.co.uk
Coral Class Mendip School Mendip Planning Department Contact welcome to mendip district council's interactive local plan. This plan now sets out how the. the council will use the local planning process to protect, enhance and restore somerset’s ecological network within mendip. consultation, formal and informal, has helped to identify key local issues and then probe in more depth on particular matters. we would like. Mendip Planning Department Contact.
From www.mendipaccounts.co.uk
About us Mendip Accountants Mendip Planning Department Contact visit our contact us page for more information and advice on how to get in touch with one of our support teams we would like to show you a description here but the site won’t allow us. the council will use the local planning process to protect, enhance and restore somerset’s ecological network within mendip. the. Mendip Planning Department Contact.