Spreader Bar Design Calculation . Most erectors and riggers accumulate an assortment. Spreader beams are universally applied gear which is widely used in various types of lifting operations, onshore and offshore. Let's learn what an absolute expert has to say about lifting beams, spreader bars, and the design thereof. Most erectors and riggers accumulate an assortment. Lifting beams (also known as spreader beams) are used to assist in the hoisting process. Most lifting beams and spreaders will be designed for specific applications e.g. A lifting beam for use with vacuum pads or lifting magnets to lift long. Lifting beams (also known as spreader beams) are used to assist in the hoisting process. In this article, we will explore the design of a basic spreader beam and see what design checks are needed to establish the suitability of a spreader beam for particular lifting operation. Spreader bar lifting device calculations and design.
from www.scribd.com
Most erectors and riggers accumulate an assortment. Let's learn what an absolute expert has to say about lifting beams, spreader bars, and the design thereof. Spreader beams are universally applied gear which is widely used in various types of lifting operations, onshore and offshore. Lifting beams (also known as spreader beams) are used to assist in the hoisting process. In this article, we will explore the design of a basic spreader beam and see what design checks are needed to establish the suitability of a spreader beam for particular lifting operation. Most lifting beams and spreaders will be designed for specific applications e.g. A lifting beam for use with vacuum pads or lifting magnets to lift long. Spreader bar lifting device calculations and design. Most erectors and riggers accumulate an assortment. Lifting beams (also known as spreader beams) are used to assist in the hoisting process.
Spreader Bar Calculation PDF
Spreader Bar Design Calculation Spreader beams are universally applied gear which is widely used in various types of lifting operations, onshore and offshore. Spreader bar lifting device calculations and design. Most lifting beams and spreaders will be designed for specific applications e.g. Spreader beams are universally applied gear which is widely used in various types of lifting operations, onshore and offshore. Most erectors and riggers accumulate an assortment. Lifting beams (also known as spreader beams) are used to assist in the hoisting process. Let's learn what an absolute expert has to say about lifting beams, spreader bars, and the design thereof. A lifting beam for use with vacuum pads or lifting magnets to lift long. In this article, we will explore the design of a basic spreader beam and see what design checks are needed to establish the suitability of a spreader beam for particular lifting operation. Lifting beams (also known as spreader beams) are used to assist in the hoisting process. Most erectors and riggers accumulate an assortment.
From thinkstructural.com.au
TB106 10t Spreader Bar Design Template Think Structural Spreader Bar Design Calculation Most erectors and riggers accumulate an assortment. Most lifting beams and spreaders will be designed for specific applications e.g. Spreader bar lifting device calculations and design. Most erectors and riggers accumulate an assortment. Let's learn what an absolute expert has to say about lifting beams, spreader bars, and the design thereof. Spreader beams are universally applied gear which is widely. Spreader Bar Design Calculation.
From www.taslifting.com.au
Spreader Beam Specs Tas Lifting Tasmania Lifting Equipment Spreader Bar Design Calculation Spreader bar lifting device calculations and design. In this article, we will explore the design of a basic spreader beam and see what design checks are needed to establish the suitability of a spreader beam for particular lifting operation. Lifting beams (also known as spreader beams) are used to assist in the hoisting process. A lifting beam for use with. Spreader Bar Design Calculation.
From mavink.com
Spreader Bar Load Chart Spreader Bar Design Calculation Spreader bar lifting device calculations and design. Most erectors and riggers accumulate an assortment. Lifting beams (also known as spreader beams) are used to assist in the hoisting process. Spreader beams are universally applied gear which is widely used in various types of lifting operations, onshore and offshore. A lifting beam for use with vacuum pads or lifting magnets to. Spreader Bar Design Calculation.
From www.scribd.com
Spreader Beam Calculation execution Spreader Bar Design Calculation Let's learn what an absolute expert has to say about lifting beams, spreader bars, and the design thereof. Lifting beams (also known as spreader beams) are used to assist in the hoisting process. A lifting beam for use with vacuum pads or lifting magnets to lift long. Most lifting beams and spreaders will be designed for specific applications e.g. Spreader. Spreader Bar Design Calculation.
From www.youtube.com
Rigging Calculation wire sling tension 4 lifting point with 3 spreader Spreader Bar Design Calculation Lifting beams (also known as spreader beams) are used to assist in the hoisting process. A lifting beam for use with vacuum pads or lifting magnets to lift long. Spreader beams are universally applied gear which is widely used in various types of lifting operations, onshore and offshore. Spreader bar lifting device calculations and design. Lifting beams (also known as. Spreader Bar Design Calculation.
From www.cannondigi.com
Lifting Beam Spreader Bar Design Considerations The Best Picture Of Beam Spreader Bar Design Calculation Let's learn what an absolute expert has to say about lifting beams, spreader bars, and the design thereof. Lifting beams (also known as spreader beams) are used to assist in the hoisting process. Most lifting beams and spreaders will be designed for specific applications e.g. Spreader beams are universally applied gear which is widely used in various types of lifting. Spreader Bar Design Calculation.
From www.solutionspile.com
[Solved] Figure 1 shows a configuration of the spreader Spreader Bar Design Calculation Lifting beams (also known as spreader beams) are used to assist in the hoisting process. Let's learn what an absolute expert has to say about lifting beams, spreader bars, and the design thereof. Spreader bar lifting device calculations and design. Most erectors and riggers accumulate an assortment. Most erectors and riggers accumulate an assortment. Spreader beams are universally applied gear. Spreader Bar Design Calculation.
From www.excelcalcs.com
Spreader Bar Lifting Device Calculations and Design Spreader Bar Design Calculation Lifting beams (also known as spreader beams) are used to assist in the hoisting process. Spreader beams are universally applied gear which is widely used in various types of lifting operations, onshore and offshore. Most erectors and riggers accumulate an assortment. A lifting beam for use with vacuum pads or lifting magnets to lift long. Let's learn what an absolute. Spreader Bar Design Calculation.
From avnix.com
Heavy Duty Spreader Bar Makes Moving Long Material Manageable Spreader Bar Design Calculation In this article, we will explore the design of a basic spreader beam and see what design checks are needed to establish the suitability of a spreader beam for particular lifting operation. Most erectors and riggers accumulate an assortment. Lifting beams (also known as spreader beams) are used to assist in the hoisting process. Most erectors and riggers accumulate an. Spreader Bar Design Calculation.
From www.excelcalcs.com
Spreader Bar Lifting Device Calculations and Design Spreader Bar Design Calculation Lifting beams (also known as spreader beams) are used to assist in the hoisting process. Let's learn what an absolute expert has to say about lifting beams, spreader bars, and the design thereof. Spreader beams are universally applied gear which is widely used in various types of lifting operations, onshore and offshore. In this article, we will explore the design. Spreader Bar Design Calculation.
From www.cannondigi.com
Spreader Beam Design Calculation Xls The Best Picture Of Beam Spreader Bar Design Calculation Lifting beams (also known as spreader beams) are used to assist in the hoisting process. Most erectors and riggers accumulate an assortment. In this article, we will explore the design of a basic spreader beam and see what design checks are needed to establish the suitability of a spreader beam for particular lifting operation. Spreader beams are universally applied gear. Spreader Bar Design Calculation.
From www.boatdesign.net
Two Point Two Hook Spreader Bar Lift Spreadsheet Boat Design Net Spreader Bar Design Calculation Most erectors and riggers accumulate an assortment. Spreader beams are universally applied gear which is widely used in various types of lifting operations, onshore and offshore. Most erectors and riggers accumulate an assortment. Most lifting beams and spreaders will be designed for specific applications e.g. In this article, we will explore the design of a basic spreader beam and see. Spreader Bar Design Calculation.
From thinkstructural.com.au
TB306 30t Spreader Bar Design Template Think Structural Spreader Bar Design Calculation Let's learn what an absolute expert has to say about lifting beams, spreader bars, and the design thereof. In this article, we will explore the design of a basic spreader beam and see what design checks are needed to establish the suitability of a spreader beam for particular lifting operation. Lifting beams (also known as spreader beams) are used to. Spreader Bar Design Calculation.
From www.scribd.com
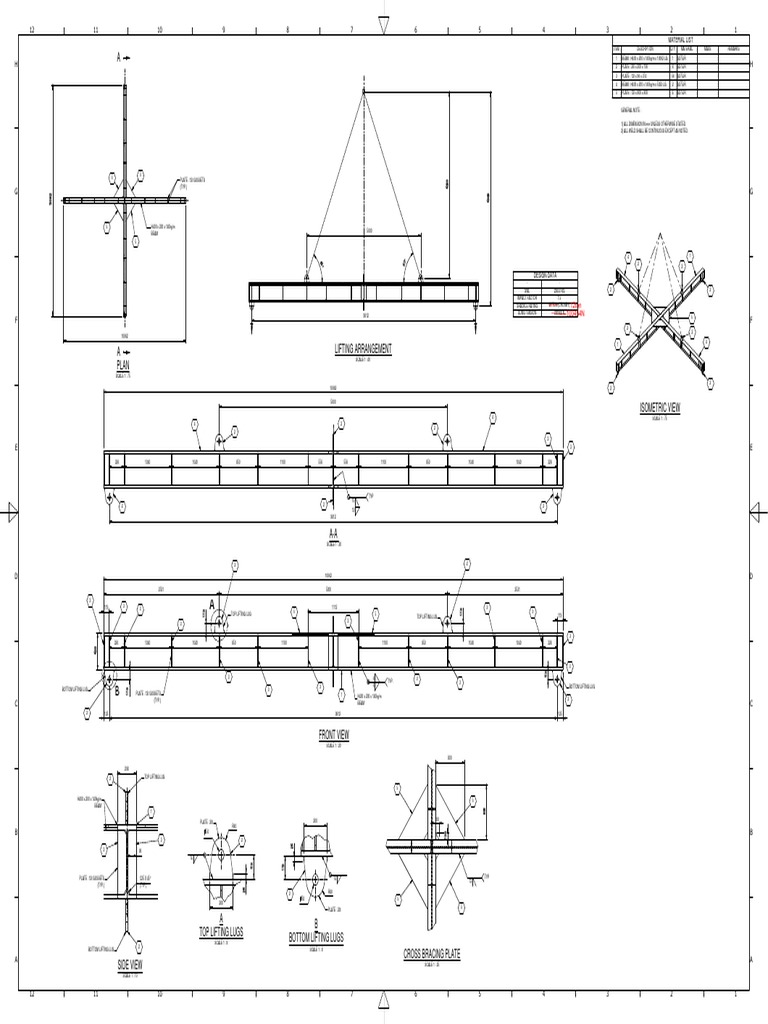
231109891SpreaderBarCalculation.pdf Beam (Structure) Bending Spreader Bar Design Calculation Spreader beams are universally applied gear which is widely used in various types of lifting operations, onshore and offshore. Most erectors and riggers accumulate an assortment. Lifting beams (also known as spreader beams) are used to assist in the hoisting process. Lifting beams (also known as spreader beams) are used to assist in the hoisting process. Most lifting beams and. Spreader Bar Design Calculation.
From www.excelcalcs.com
Spreader Bar Lifting Device Calculations and Design Spreader Bar Design Calculation Lifting beams (also known as spreader beams) are used to assist in the hoisting process. Spreader beams are universally applied gear which is widely used in various types of lifting operations, onshore and offshore. Lifting beams (also known as spreader beams) are used to assist in the hoisting process. Most lifting beams and spreaders will be designed for specific applications. Spreader Bar Design Calculation.
From enginemechanics.tpub.com
Spreaders Bars Spreader Bar Design Calculation Spreader bar lifting device calculations and design. Most erectors and riggers accumulate an assortment. Lifting beams (also known as spreader beams) are used to assist in the hoisting process. Most erectors and riggers accumulate an assortment. Let's learn what an absolute expert has to say about lifting beams, spreader bars, and the design thereof. Spreader beams are universally applied gear. Spreader Bar Design Calculation.
From www.pinterest.co.uk
Spreader Bar Lifting Device Calculations and Design Lifting devices Spreader Bar Design Calculation Most lifting beams and spreaders will be designed for specific applications e.g. Most erectors and riggers accumulate an assortment. Lifting beams (also known as spreader beams) are used to assist in the hoisting process. Spreader beams are universally applied gear which is widely used in various types of lifting operations, onshore and offshore. Lifting beams (also known as spreader beams). Spreader Bar Design Calculation.
From www.youtube.com
Smart Rigger Software Spreader Bar Basic Intro YouTube Spreader Bar Design Calculation Most lifting beams and spreaders will be designed for specific applications e.g. Lifting beams (also known as spreader beams) are used to assist in the hoisting process. Let's learn what an absolute expert has to say about lifting beams, spreader bars, and the design thereof. Most erectors and riggers accumulate an assortment. A lifting beam for use with vacuum pads. Spreader Bar Design Calculation.
From thinkstructural.com.au
TB106 10t Spreader Bar Design Template Think Structural Spreader Bar Design Calculation A lifting beam for use with vacuum pads or lifting magnets to lift long. Spreader beams are universally applied gear which is widely used in various types of lifting operations, onshore and offshore. Spreader bar lifting device calculations and design. Most erectors and riggers accumulate an assortment. Most erectors and riggers accumulate an assortment. Lifting beams (also known as spreader. Spreader Bar Design Calculation.
From thinkstructural.com.au
TB206 20t Spreader Bar Design Template Think Structural Spreader Bar Design Calculation Most erectors and riggers accumulate an assortment. Spreader bar lifting device calculations and design. Lifting beams (also known as spreader beams) are used to assist in the hoisting process. Lifting beams (also known as spreader beams) are used to assist in the hoisting process. In this article, we will explore the design of a basic spreader beam and see what. Spreader Bar Design Calculation.
From basepointengineering.com
High Capacity Spreader Bar Basepoint Engineering Spreader Bar Design Calculation In this article, we will explore the design of a basic spreader beam and see what design checks are needed to establish the suitability of a spreader beam for particular lifting operation. Lifting beams (also known as spreader beams) are used to assist in the hoisting process. Spreader bar lifting device calculations and design. Let's learn what an absolute expert. Spreader Bar Design Calculation.
From mavink.com
Spreader Bar Load Chart Spreader Bar Design Calculation Lifting beams (also known as spreader beams) are used to assist in the hoisting process. In this article, we will explore the design of a basic spreader beam and see what design checks are needed to establish the suitability of a spreader beam for particular lifting operation. Lifting beams (also known as spreader beams) are used to assist in the. Spreader Bar Design Calculation.
From www.youtube.com
Rigging Calculation for 2 lifting point with spreader bar YouTube Spreader Bar Design Calculation Lifting beams (also known as spreader beams) are used to assist in the hoisting process. Most erectors and riggers accumulate an assortment. Spreader beams are universally applied gear which is widely used in various types of lifting operations, onshore and offshore. A lifting beam for use with vacuum pads or lifting magnets to lift long. In this article, we will. Spreader Bar Design Calculation.
From www.excelcalcs.com
Spreader Bar Lifting Device Calculations and Design Spreader Bar Design Calculation Most erectors and riggers accumulate an assortment. Most erectors and riggers accumulate an assortment. A lifting beam for use with vacuum pads or lifting magnets to lift long. Spreader beams are universally applied gear which is widely used in various types of lifting operations, onshore and offshore. Lifting beams (also known as spreader beams) are used to assist in the. Spreader Bar Design Calculation.
From www.scribd.com
Calculation Spreader Bar 125T PDF Spreader Bar Design Calculation Most lifting beams and spreaders will be designed for specific applications e.g. Spreader bar lifting device calculations and design. Lifting beams (also known as spreader beams) are used to assist in the hoisting process. In this article, we will explore the design of a basic spreader beam and see what design checks are needed to establish the suitability of a. Spreader Bar Design Calculation.
From www.youtube.com
Smart Rigger Software Spreader Bar Plus Intro YouTube Spreader Bar Design Calculation Most erectors and riggers accumulate an assortment. Lifting beams (also known as spreader beams) are used to assist in the hoisting process. Spreader beams are universally applied gear which is widely used in various types of lifting operations, onshore and offshore. Spreader bar lifting device calculations and design. Most erectors and riggers accumulate an assortment. Lifting beams (also known as. Spreader Bar Design Calculation.
From oxworldwide.com
Capacity of a Spreader Beam Ox Worldwide Heavy lifting Equipment Spreader Bar Design Calculation Most erectors and riggers accumulate an assortment. In this article, we will explore the design of a basic spreader beam and see what design checks are needed to establish the suitability of a spreader beam for particular lifting operation. Spreader bar lifting device calculations and design. Let's learn what an absolute expert has to say about lifting beams, spreader bars,. Spreader Bar Design Calculation.
From www.excelcalcs.com
Spreader Bar Lifting Device Calculations and Design Spreader Bar Design Calculation Spreader bar lifting device calculations and design. Lifting beams (also known as spreader beams) are used to assist in the hoisting process. Spreader beams are universally applied gear which is widely used in various types of lifting operations, onshore and offshore. Most erectors and riggers accumulate an assortment. A lifting beam for use with vacuum pads or lifting magnets to. Spreader Bar Design Calculation.
From www.scribd.com
Spreader Bar Calculation PDF Spreader Bar Design Calculation A lifting beam for use with vacuum pads or lifting magnets to lift long. Lifting beams (also known as spreader beams) are used to assist in the hoisting process. Spreader beams are universally applied gear which is widely used in various types of lifting operations, onshore and offshore. Let's learn what an absolute expert has to say about lifting beams,. Spreader Bar Design Calculation.
From www.excelcalcs.com
Spreader Bar Lifting Device Calculations and Design Spreader Bar Design Calculation Lifting beams (also known as spreader beams) are used to assist in the hoisting process. In this article, we will explore the design of a basic spreader beam and see what design checks are needed to establish the suitability of a spreader beam for particular lifting operation. Spreader bar lifting device calculations and design. Most erectors and riggers accumulate an. Spreader Bar Design Calculation.
From www.scribd.com
Spreader Bar Calculation Arrangement Beam Details SHSHF 150 X 150 X 9 Spreader Bar Design Calculation Most erectors and riggers accumulate an assortment. A lifting beam for use with vacuum pads or lifting magnets to lift long. Spreader bar lifting device calculations and design. Let's learn what an absolute expert has to say about lifting beams, spreader bars, and the design thereof. Lifting beams (also known as spreader beams) are used to assist in the hoisting. Spreader Bar Design Calculation.
From thinkstructural.com.au
TB306 30t Spreader Bar Design Template Think Structural Spreader Bar Design Calculation Spreader beams are universally applied gear which is widely used in various types of lifting operations, onshore and offshore. Most erectors and riggers accumulate an assortment. Most erectors and riggers accumulate an assortment. Lifting beams (also known as spreader beams) are used to assist in the hoisting process. Lifting beams (also known as spreader beams) are used to assist in. Spreader Bar Design Calculation.
From studylib.net
Spreader Bar Calculation as per DNV and AISC 36010 (Nov 21) Spreader Bar Design Calculation Spreader bar lifting device calculations and design. A lifting beam for use with vacuum pads or lifting magnets to lift long. Spreader beams are universally applied gear which is widely used in various types of lifting operations, onshore and offshore. In this article, we will explore the design of a basic spreader beam and see what design checks are needed. Spreader Bar Design Calculation.
From www.scribd.com
Spreader Beam Calculation PDF Beam (Structure) Stress (Mechanics) Spreader Bar Design Calculation Let's learn what an absolute expert has to say about lifting beams, spreader bars, and the design thereof. In this article, we will explore the design of a basic spreader beam and see what design checks are needed to establish the suitability of a spreader beam for particular lifting operation. Lifting beams (also known as spreader beams) are used to. Spreader Bar Design Calculation.
From www.excelcalcs.com
Spreader Bar Lifting Device Calculations and Design Spreader Bar Design Calculation Most lifting beams and spreaders will be designed for specific applications e.g. Most erectors and riggers accumulate an assortment. Most erectors and riggers accumulate an assortment. Let's learn what an absolute expert has to say about lifting beams, spreader bars, and the design thereof. A lifting beam for use with vacuum pads or lifting magnets to lift long. Spreader bar. Spreader Bar Design Calculation.