Calais Post Office . Browse this location's operating and mail collection hours along with address and contact. French post office and french postal service, a guide to using the postal service in france with all the information needed to post a letter or parcel. The calais post office is located in 76 north st, me. Address:76 north st, calais me 04619 large map & directions. Live in calais and need to apply for a passport and get your mail? Calais post office is a post office located in calais. 76 north st, calais, me 04619. Learn about how the post office in calais, maine, can help you.
from www.gooood.cn
Calais post office is a post office located in calais. The calais post office is located in 76 north st, me. Live in calais and need to apply for a passport and get your mail? French post office and french postal service, a guide to using the postal service in france with all the information needed to post a letter or parcel. 76 north st, calais, me 04619. Browse this location's operating and mail collection hours along with address and contact. Address:76 north st, calais me 04619 large map & directions. Learn about how the post office in calais, maine, can help you.
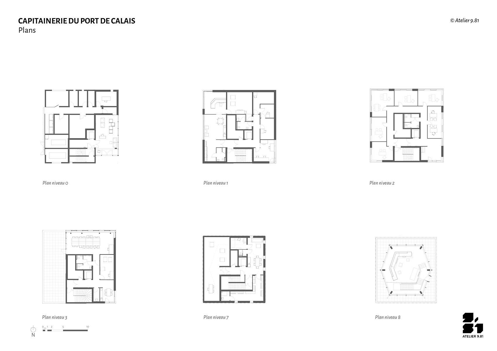
New harbor master’s office of Calais by Atelier 9.81 谷德设计网
Calais Post Office Address:76 north st, calais me 04619 large map & directions. French post office and french postal service, a guide to using the postal service in france with all the information needed to post a letter or parcel. Live in calais and need to apply for a passport and get your mail? 76 north st, calais, me 04619. Browse this location's operating and mail collection hours along with address and contact. Learn about how the post office in calais, maine, can help you. The calais post office is located in 76 north st, me. Calais post office is a post office located in calais. Address:76 north st, calais me 04619 large map & directions.
From www.alamy.com
French post office logo hires stock photography and images Alamy Calais Post Office Browse this location's operating and mail collection hours along with address and contact. Live in calais and need to apply for a passport and get your mail? 76 north st, calais, me 04619. French post office and french postal service, a guide to using the postal service in france with all the information needed to post a letter or parcel.. Calais Post Office.
From postcardsblogatdustin.blogspot.com
My postcard and stamp week France Calais Calais Post Office Address:76 north st, calais me 04619 large map & directions. Calais post office is a post office located in calais. The calais post office is located in 76 north st, me. French post office and french postal service, a guide to using the postal service in france with all the information needed to post a letter or parcel. Browse this. Calais Post Office.
From www.sevendaysvt.com
Pandemic AllStar Cassie Molleur, Rural Mail Carrier, East Calais Post Calais Post Office Calais post office is a post office located in calais. Live in calais and need to apply for a passport and get your mail? 76 north st, calais, me 04619. Address:76 north st, calais me 04619 large map & directions. French post office and french postal service, a guide to using the postal service in france with all the information. Calais Post Office.
From www.dailymaverick.co.za
SA Post Office in sight of its final resting place after being placed Calais Post Office The calais post office is located in 76 north st, me. Calais post office is a post office located in calais. Learn about how the post office in calais, maine, can help you. 76 north st, calais, me 04619. French post office and french postal service, a guide to using the postal service in france with all the information needed. Calais Post Office.
From www.facebook.com
Two Arrested... Tangipahoa Parish Sheriff's Office Calais Post Office Address:76 north st, calais me 04619 large map & directions. Browse this location's operating and mail collection hours along with address and contact. 76 north st, calais, me 04619. Learn about how the post office in calais, maine, can help you. The calais post office is located in 76 north st, me. French post office and french postal service, a. Calais Post Office.
From www.alamy.com
Post office that features in the film Bienvenue chez les ch'tis in Calais Post Office The calais post office is located in 76 north st, me. 76 north st, calais, me 04619. Address:76 north st, calais me 04619 large map & directions. Browse this location's operating and mail collection hours along with address and contact. Calais post office is a post office located in calais. Live in calais and need to apply for a passport. Calais Post Office.
From www.publicdomainpictures.net
Town Hall Of Calais Free Stock Photo Public Domain Pictures Calais Post Office French post office and french postal service, a guide to using the postal service in france with all the information needed to post a letter or parcel. The calais post office is located in 76 north st, me. Browse this location's operating and mail collection hours along with address and contact. Learn about how the post office in calais, maine,. Calais Post Office.
From www.gooood.cn
New harbor master’s office of Calais by Atelier 9.81 谷德设计网 Calais Post Office Browse this location's operating and mail collection hours along with address and contact. 76 north st, calais, me 04619. Live in calais and need to apply for a passport and get your mail? The calais post office is located in 76 north st, me. Calais post office is a post office located in calais. Address:76 north st, calais me 04619. Calais Post Office.
From www.gooood.cn
New harbor master’s office of Calais by Atelier 9.81 谷德设计网 Calais Post Office Live in calais and need to apply for a passport and get your mail? 76 north st, calais, me 04619. Learn about how the post office in calais, maine, can help you. The calais post office is located in 76 north st, me. Calais post office is a post office located in calais. Address:76 north st, calais me 04619 large. Calais Post Office.
From www.woola.io
Modernising post offices Woola Calais Post Office Address:76 north st, calais me 04619 large map & directions. Calais post office is a post office located in calais. French post office and french postal service, a guide to using the postal service in france with all the information needed to post a letter or parcel. The calais post office is located in 76 north st, me. Browse this. Calais Post Office.
From www.alamy.com
Cross of Sacrifice and headstones in the CWGC Post Office Rifles Calais Post Office 76 north st, calais, me 04619. Calais post office is a post office located in calais. Learn about how the post office in calais, maine, can help you. French post office and french postal service, a guide to using the postal service in france with all the information needed to post a letter or parcel. The calais post office is. Calais Post Office.
From www.eastcalaiscommunitytrust.org
ECCT About Us — East Calais Community Trust Calais Post Office The calais post office is located in 76 north st, me. 76 north st, calais, me 04619. Browse this location's operating and mail collection hours along with address and contact. Learn about how the post office in calais, maine, can help you. Live in calais and need to apply for a passport and get your mail? Address:76 north st, calais. Calais Post Office.
From www.tidesinstitute.org
Quality of Place View Art Calais, Maine Post Office, Main and Calais Post Office The calais post office is located in 76 north st, me. 76 north st, calais, me 04619. Address:76 north st, calais me 04619 large map & directions. Browse this location's operating and mail collection hours along with address and contact. Calais post office is a post office located in calais. French post office and french postal service, a guide to. Calais Post Office.
From www.cparama.com
Calais Autres cartes Calais Post Office Live in calais and need to apply for a passport and get your mail? Address:76 north st, calais me 04619 large map & directions. 76 north st, calais, me 04619. Browse this location's operating and mail collection hours along with address and contact. The calais post office is located in 76 north st, me. Learn about how the post office. Calais Post Office.
From www.facebook.com
🍂 Le Top des activités en... Calais XXL Office de Tourisme Calais Post Office Learn about how the post office in calais, maine, can help you. French post office and french postal service, a guide to using the postal service in france with all the information needed to post a letter or parcel. Live in calais and need to apply for a passport and get your mail? Address:76 north st, calais me 04619 large. Calais Post Office.
From www.gooood.cn
New harbor master’s office of Calais by Atelier 9.81 谷德设计网 Calais Post Office French post office and french postal service, a guide to using the postal service in france with all the information needed to post a letter or parcel. Address:76 north st, calais me 04619 large map & directions. The calais post office is located in 76 north st, me. Learn about how the post office in calais, maine, can help you.. Calais Post Office.
From www.facebook.com
🍂 Le Top des activités en... Calais XXL Office de Tourisme Calais Post Office The calais post office is located in 76 north st, me. Calais post office is a post office located in calais. Live in calais and need to apply for a passport and get your mail? 76 north st, calais, me 04619. French post office and french postal service, a guide to using the postal service in france with all the. Calais Post Office.
From www.alamy.com
Vintage map of calais Black and White Stock Photos & Images Alamy Calais Post Office Live in calais and need to apply for a passport and get your mail? Address:76 north st, calais me 04619 large map & directions. 76 north st, calais, me 04619. Browse this location's operating and mail collection hours along with address and contact. French post office and french postal service, a guide to using the postal service in france with. Calais Post Office.
From www.gooood.cn
New harbor master’s office of Calais by Atelier 9.81 谷德设计网 Calais Post Office French post office and french postal service, a guide to using the postal service in france with all the information needed to post a letter or parcel. Live in calais and need to apply for a passport and get your mail? 76 north st, calais, me 04619. The calais post office is located in 76 north st, me. Learn about. Calais Post Office.
From www.cparama.com
Calais Calais Cartes Postales Anciennes sur CPArama Calais Post Office The calais post office is located in 76 north st, me. French post office and french postal service, a guide to using the postal service in france with all the information needed to post a letter or parcel. Learn about how the post office in calais, maine, can help you. Address:76 north st, calais me 04619 large map & directions.. Calais Post Office.
From www.gooood.cn
New harbor master’s office of Calais by Atelier 9.81 谷德设计网 Calais Post Office Learn about how the post office in calais, maine, can help you. The calais post office is located in 76 north st, me. Live in calais and need to apply for a passport and get your mail? Address:76 north st, calais me 04619 large map & directions. French post office and french postal service, a guide to using the postal. Calais Post Office.
From www.alamy.com
Historical calais france Black and White Stock Photos & Images Alamy Calais Post Office Browse this location's operating and mail collection hours along with address and contact. The calais post office is located in 76 north st, me. Learn about how the post office in calais, maine, can help you. Live in calais and need to apply for a passport and get your mail? Calais post office is a post office located in calais.. Calais Post Office.
From www.calais.news
Your Package Might Be Late! The Calais Advertiser Calais Post Office The calais post office is located in 76 north st, me. Address:76 north st, calais me 04619 large map & directions. Live in calais and need to apply for a passport and get your mail? French post office and french postal service, a guide to using the postal service in france with all the information needed to post a letter. Calais Post Office.
From www.cparama.com
Calais Autres cartes Calais Post Office Live in calais and need to apply for a passport and get your mail? Address:76 north st, calais me 04619 large map & directions. Calais post office is a post office located in calais. French post office and french postal service, a guide to using the postal service in france with all the information needed to post a letter or. Calais Post Office.
From www.cparama.com
Calais Autres cartes Calais Post Office Address:76 north st, calais me 04619 large map & directions. The calais post office is located in 76 north st, me. 76 north st, calais, me 04619. Live in calais and need to apply for a passport and get your mail? French post office and french postal service, a guide to using the postal service in france with all the. Calais Post Office.
From www.alamy.com
Bienvenue chez les ch'tis hires stock photography and images Alamy Calais Post Office Live in calais and need to apply for a passport and get your mail? Learn about how the post office in calais, maine, can help you. Address:76 north st, calais me 04619 large map & directions. Browse this location's operating and mail collection hours along with address and contact. Calais post office is a post office located in calais. The. Calais Post Office.
From www.flickr.com
Post Office, circa 1940s Valparaiso, Indiana POST OFFICE… Flickr Calais Post Office The calais post office is located in 76 north st, me. 76 north st, calais, me 04619. Live in calais and need to apply for a passport and get your mail? Calais post office is a post office located in calais. Browse this location's operating and mail collection hours along with address and contact. Address:76 north st, calais me 04619. Calais Post Office.
From www.flickr.com
Calais Road, BURTONONTRENT, Staffs. Chris Downer Flickr Calais Post Office Calais post office is a post office located in calais. 76 north st, calais, me 04619. Live in calais and need to apply for a passport and get your mail? Address:76 north st, calais me 04619 large map & directions. The calais post office is located in 76 north st, me. French post office and french postal service, a guide. Calais Post Office.
From www.gooood.cn
New harbor master’s office of Calais by Atelier 9.81 谷德设计网 Calais Post Office French post office and french postal service, a guide to using the postal service in france with all the information needed to post a letter or parcel. Address:76 north st, calais me 04619 large map & directions. Learn about how the post office in calais, maine, can help you. Browse this location's operating and mail collection hours along with address. Calais Post Office.
From www.facebook.com
🍂 Le Top des activités en... Calais XXL Office de Tourisme Calais Post Office Learn about how the post office in calais, maine, can help you. Browse this location's operating and mail collection hours along with address and contact. 76 north st, calais, me 04619. Live in calais and need to apply for a passport and get your mail? Address:76 north st, calais me 04619 large map & directions. The calais post office is. Calais Post Office.
From www.bansard.com
New office in Calais Bansard International Calais Post Office Calais post office is a post office located in calais. Learn about how the post office in calais, maine, can help you. 76 north st, calais, me 04619. Address:76 north st, calais me 04619 large map & directions. French post office and french postal service, a guide to using the postal service in france with all the information needed to. Calais Post Office.
From www.alamy.com
Calais france notice board outside hires stock photography and images Calais Post Office Live in calais and need to apply for a passport and get your mail? Learn about how the post office in calais, maine, can help you. Address:76 north st, calais me 04619 large map & directions. Calais post office is a post office located in calais. French post office and french postal service, a guide to using the postal service. Calais Post Office.
From www.pagesjaunes.fr
Office Tourisme Calais Cote D'opale Calais (adresse) Calais Post Office Browse this location's operating and mail collection hours along with address and contact. The calais post office is located in 76 north st, me. 76 north st, calais, me 04619. Live in calais and need to apply for a passport and get your mail? Address:76 north st, calais me 04619 large map & directions. Calais post office is a post. Calais Post Office.
From www.alamy.com
Entrance gate to the CWGC Post Office Rifles Cemetery, Festubert, Pas Calais Post Office French post office and french postal service, a guide to using the postal service in france with all the information needed to post a letter or parcel. Address:76 north st, calais me 04619 large map & directions. Live in calais and need to apply for a passport and get your mail? Learn about how the post office in calais, maine,. Calais Post Office.
From www.publicdomainpictures.net
Town Hall Of Calais Free Stock Photo Public Domain Pictures Calais Post Office Browse this location's operating and mail collection hours along with address and contact. Address:76 north st, calais me 04619 large map & directions. The calais post office is located in 76 north st, me. Learn about how the post office in calais, maine, can help you. Calais post office is a post office located in calais. 76 north st, calais,. Calais Post Office.