Def Pump Test . Graduated cylinder or way of measuring ml of liquid. You can test for def issues in field and submit samples to the lab for review. Diesel exhaust fluid (def) is a blended aqueous urea solution of 32.5% high purity urea and 67.5% deionized water used to reduce pollution in newer tier 4 final diesel engines. Test the def pump pressure: Prevention and proactive monitoring of your diesel exhaust fluid can help prevent issues. In this article, i am going to show. Is the def pump functioning appropriately? The first thing you’ll want to do is. How often should i test the quality. Check the pump pressure and voltage using a multimeter to. We understand the theory of how the pump is supposed to work, but how do we diagnose a def pump problem? What is def and why is it important? Many diesel vehicle owners face def system challenges, but understanding and troubleshooting these issues doesn't have to be daunting. Diagnostics scan tool with tests functionality. In this tutorial video, we'll show you how to perform a def (diesel exhaust fluid) system flow.
from www.jmesales.com
In this article, i am going to show. Graduated cylinder or way of measuring ml of liquid. Many diesel vehicle owners face def system challenges, but understanding and troubleshooting these issues doesn't have to be daunting. Is the def pump functioning appropriately? Test the def pump pressure: Here's everything you'll need to perform the test: The first thing you’ll want to do is. What is def and why is it important? We understand the theory of how the pump is supposed to work, but how do we diagnose a def pump problem? Diesel exhaust fluid (def) is a blended aqueous urea solution of 32.5% high purity urea and 67.5% deionized water used to reduce pollution in newer tier 4 final diesel engines.
FillRite DF Series 12V DC DEF Dispensing Pump 8 GPM John M
Def Pump Test Check the pump pressure and voltage using a multimeter to. Is the def pump functioning appropriately? Prevention and proactive monitoring of your diesel exhaust fluid can help prevent issues. Check the pump pressure and voltage using a multimeter to. In this tutorial video, we'll show you how to perform a def (diesel exhaust fluid) system flow. In this article, i am going to show. The first thing you’ll want to do is. You can test for def issues in field and submit samples to the lab for review. Many diesel vehicle owners face def system challenges, but understanding and troubleshooting these issues doesn't have to be daunting. Graduated cylinder or way of measuring ml of liquid. Diagnostics scan tool with tests functionality. Here's everything you'll need to perform the test: Test the def pump pressure: We understand the theory of how the pump is supposed to work, but how do we diagnose a def pump problem? How often should i test the quality. Diesel exhaust fluid (def) is a blended aqueous urea solution of 32.5% high purity urea and 67.5% deionized water used to reduce pollution in newer tier 4 final diesel engines.
From allcartuning.freshdesk.com
Kubota SVL95 DEF pump plug location same on other kubotas Def Pump Test We understand the theory of how the pump is supposed to work, but how do we diagnose a def pump problem? Here's everything you'll need to perform the test: Graduated cylinder or way of measuring ml of liquid. In this tutorial video, we'll show you how to perform a def (diesel exhaust fluid) system flow. How often should i test. Def Pump Test.
From kus-usa.com
DEF Tanks & DEF Senders What You Need to Know KUS Americas, Inc. Def Pump Test How often should i test the quality. We understand the theory of how the pump is supposed to work, but how do we diagnose a def pump problem? In this article, i am going to show. Graduated cylinder or way of measuring ml of liquid. What is def and why is it important? Test the def pump pressure: Here's everything. Def Pump Test.
From www.americanlube.com
Bare 12V DEF Pump American Lubrication Equipment American Def Pump Test You can test for def issues in field and submit samples to the lab for review. How often should i test the quality. Diagnostics scan tool with tests functionality. Here's everything you'll need to perform the test: We understand the theory of how the pump is supposed to work, but how do we diagnose a def pump problem? Is the. Def Pump Test.
From www.fluidlife.com
Common DEF Problems & How to Test for Them Fluid Life Def Pump Test In this article, i am going to show. How often should i test the quality. We understand the theory of how the pump is supposed to work, but how do we diagnose a def pump problem? Diesel exhaust fluid (def) is a blended aqueous urea solution of 32.5% high purity urea and 67.5% deionized water used to reduce pollution in. Def Pump Test.
From www.walmart.com
DEF Urea Reductant Injector for 20172019 Ford F250 F350 F450 F550 Def Pump Test The first thing you’ll want to do is. We understand the theory of how the pump is supposed to work, but how do we diagnose a def pump problem? You can test for def issues in field and submit samples to the lab for review. Is the def pump functioning appropriately? Here's everything you'll need to perform the test: Diesel. Def Pump Test.
From www.justanswer.com
There is oil in the inlet, outlet and backflow tube of the DEF pump on Def Pump Test We understand the theory of how the pump is supposed to work, but how do we diagnose a def pump problem? The first thing you’ll want to do is. Prevention and proactive monitoring of your diesel exhaust fluid can help prevent issues. Diesel exhaust fluid (def) is a blended aqueous urea solution of 32.5% high purity urea and 67.5% deionized. Def Pump Test.
From www.jmesales.com
FillRite DF Series 12V DC DEF Dispensing Pump 8 GPM John M Def Pump Test Here's everything you'll need to perform the test: Prevention and proactive monitoring of your diesel exhaust fluid can help prevent issues. In this tutorial video, we'll show you how to perform a def (diesel exhaust fluid) system flow. Graduated cylinder or way of measuring ml of liquid. What is def and why is it important? In this article, i am. Def Pump Test.
From www.scribd.com
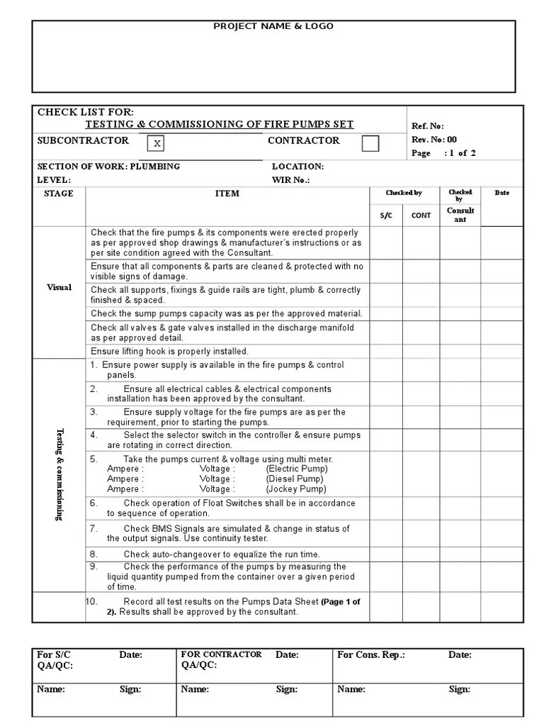
Check List For Testing & Commissioning of Fire Pumps Set Def Pump Test How often should i test the quality. Here's everything you'll need to perform the test: In this article, i am going to show. The first thing you’ll want to do is. You can test for def issues in field and submit samples to the lab for review. Many diesel vehicle owners face def system challenges, but understanding and troubleshooting these. Def Pump Test.
From www.fluidall.com
Graco's DEF Fluid Pumps Fit Every Application, by Fluidall Def Pump Test The first thing you’ll want to do is. How often should i test the quality. Test the def pump pressure: Here's everything you'll need to perform the test: Diagnostics scan tool with tests functionality. Diesel exhaust fluid (def) is a blended aqueous urea solution of 32.5% high purity urea and 67.5% deionized water used to reduce pollution in newer tier. Def Pump Test.
From defdeletekits.com
BEST DEF PUMP Review 2021 Is it for YOU? Def Pump Test Here's everything you'll need to perform the test: Test the def pump pressure: You can test for def issues in field and submit samples to the lab for review. Check the pump pressure and voltage using a multimeter to. Diagnostics scan tool with tests functionality. Prevention and proactive monitoring of your diesel exhaust fluid can help prevent issues. The first. Def Pump Test.
From camlockcouplings.blogspot.com
Cam Lock Couplings and Camlock Fittings for Industrial Uses Diesel Def Pump Test In this article, i am going to show. In this tutorial video, we'll show you how to perform a def (diesel exhaust fluid) system flow. Graduated cylinder or way of measuring ml of liquid. The first thing you’ll want to do is. Test the def pump pressure: Here's everything you'll need to perform the test: Many diesel vehicle owners face. Def Pump Test.
From www.youtube.com
RAM 2500 Cummins DEF Pump Test YouTube Def Pump Test Is the def pump functioning appropriately? Diesel exhaust fluid (def) is a blended aqueous urea solution of 32.5% high purity urea and 67.5% deionized water used to reduce pollution in newer tier 4 final diesel engines. You can test for def issues in field and submit samples to the lab for review. How often should i test the quality. Many. Def Pump Test.
From theweekendmechanic.com
Cummins ISX DEF Doser The Weekend Mechanic Def Pump Test Diesel exhaust fluid (def) is a blended aqueous urea solution of 32.5% high purity urea and 67.5% deionized water used to reduce pollution in newer tier 4 final diesel engines. How often should i test the quality. You can test for def issues in field and submit samples to the lab for review. In this tutorial video, we'll show you. Def Pump Test.
From www.eurolube.com
24V Electric pump for AdBlue® 32 l/min Eurolube Equipment Def Pump Test How often should i test the quality. Diesel exhaust fluid (def) is a blended aqueous urea solution of 32.5% high purity urea and 67.5% deionized water used to reduce pollution in newer tier 4 final diesel engines. Prevention and proactive monitoring of your diesel exhaust fluid can help prevent issues. We understand the theory of how the pump is supposed. Def Pump Test.
From www.youtube.com
Ram DEF Pump Installation YouTube Def Pump Test Prevention and proactive monitoring of your diesel exhaust fluid can help prevent issues. You can test for def issues in field and submit samples to the lab for review. Diagnostics scan tool with tests functionality. Here's everything you'll need to perform the test: How often should i test the quality. The first thing you’ll want to do is. Test the. Def Pump Test.
From www.easydefpump.com
DEF Pumps, EasyDEFpump, DEF tanks, DEF transfer tanks Def Pump Test In this tutorial video, we'll show you how to perform a def (diesel exhaust fluid) system flow. The first thing you’ll want to do is. In this article, i am going to show. We understand the theory of how the pump is supposed to work, but how do we diagnose a def pump problem? Diesel exhaust fluid (def) is a. Def Pump Test.
From diag.net
DEF pump circuit Diagnostic Network Def Pump Test Check the pump pressure and voltage using a multimeter to. We understand the theory of how the pump is supposed to work, but how do we diagnose a def pump problem? In this article, i am going to show. You can test for def issues in field and submit samples to the lab for review. How often should i test. Def Pump Test.
From www.justanswer.com
Here's my problem, my coolant lines connected to def doser valve keep Def Pump Test Diesel exhaust fluid (def) is a blended aqueous urea solution of 32.5% high purity urea and 67.5% deionized water used to reduce pollution in newer tier 4 final diesel engines. Graduated cylinder or way of measuring ml of liquid. What is def and why is it important? In this tutorial video, we'll show you how to perform a def (diesel. Def Pump Test.
From www.youtube.com
2014 Dodge Ram 6.7 Cummins DEF pump replacement! P208A Code Fix YouTube Def Pump Test Prevention and proactive monitoring of your diesel exhaust fluid can help prevent issues. We understand the theory of how the pump is supposed to work, but how do we diagnose a def pump problem? What is def and why is it important? Test the def pump pressure: The first thing you’ll want to do is. In this tutorial video, we'll. Def Pump Test.
From senergyequipment.com
PREMIUM GRADE APX DEF Tote Pump and Bracket Kit 110 Volt Senergy Def Pump Test Graduated cylinder or way of measuring ml of liquid. We understand the theory of how the pump is supposed to work, but how do we diagnose a def pump problem? Many diesel vehicle owners face def system challenges, but understanding and troubleshooting these issues doesn't have to be daunting. In this tutorial video, we'll show you how to perform a. Def Pump Test.
From www.ebay.com
Dodge/Ram DEF Control Module 68085913AE eBay Def Pump Test The first thing you’ll want to do is. Prevention and proactive monitoring of your diesel exhaust fluid can help prevent issues. Diesel exhaust fluid (def) is a blended aqueous urea solution of 32.5% high purity urea and 67.5% deionized water used to reduce pollution in newer tier 4 final diesel engines. Is the def pump functioning appropriately? Here's everything you'll. Def Pump Test.
From www.youtube.com
DD15 DEF Metering Valve restriction YouTube Def Pump Test The first thing you’ll want to do is. Many diesel vehicle owners face def system challenges, but understanding and troubleshooting these issues doesn't have to be daunting. We understand the theory of how the pump is supposed to work, but how do we diagnose a def pump problem? Here's everything you'll need to perform the test: Prevention and proactive monitoring. Def Pump Test.
From blog.duramaxtuner.com
How to Perform a DEF Injector Test Def Pump Test The first thing you’ll want to do is. What is def and why is it important? Many diesel vehicle owners face def system challenges, but understanding and troubleshooting these issues doesn't have to be daunting. In this tutorial video, we'll show you how to perform a def (diesel exhaust fluid) system flow. You can test for def issues in field. Def Pump Test.
From www.autozone.com
PEAK Diaphragm Pump With Automatic Shut Off Nozzle Pump System Def Pump Test In this article, i am going to show. Graduated cylinder or way of measuring ml of liquid. Prevention and proactive monitoring of your diesel exhaust fluid can help prevent issues. How often should i test the quality. The first thing you’ll want to do is. In this tutorial video, we'll show you how to perform a def (diesel exhaust fluid). Def Pump Test.
From senergyequipment.com
12 Volt APX DEF Cubetainer Premium Pump DEFCTAPK12V Def Pump Test The first thing you’ll want to do is. Many diesel vehicle owners face def system challenges, but understanding and troubleshooting these issues doesn't have to be daunting. In this article, i am going to show. In this tutorial video, we'll show you how to perform a def (diesel exhaust fluid) system flow. How often should i test the quality. We. Def Pump Test.
From www.ebay.com
OEM DETROIT DD13/DD15 EA0011400078 DEF PUMP eBay Def Pump Test The first thing you’ll want to do is. Prevention and proactive monitoring of your diesel exhaust fluid can help prevent issues. Here's everything you'll need to perform the test: Check the pump pressure and voltage using a multimeter to. Graduated cylinder or way of measuring ml of liquid. In this tutorial video, we'll show you how to perform a def. Def Pump Test.
From henrichinc.com
Piusi F00201A1F Suzzara Blue Pro DEF Tote Dispenser Kit Global Fueling Def Pump Test Diagnostics scan tool with tests functionality. We understand the theory of how the pump is supposed to work, but how do we diagnose a def pump problem? Diesel exhaust fluid (def) is a blended aqueous urea solution of 32.5% high purity urea and 67.5% deionized water used to reduce pollution in newer tier 4 final diesel engines. You can test. Def Pump Test.
From www.amazon.com
Lamerto 2.2 12V DEF Pump Urea Pump 4387304RX Replacement Def Pump Test How often should i test the quality. Many diesel vehicle owners face def system challenges, but understanding and troubleshooting these issues doesn't have to be daunting. We understand the theory of how the pump is supposed to work, but how do we diagnose a def pump problem? Check the pump pressure and voltage using a multimeter to. The first thing. Def Pump Test.
From www.egmcartech.com
NEW OEM Ford DEF Diesel Exhaust Fluid Pump BC4Z5J250M F650 F750 Def Pump Test Test the def pump pressure: We understand the theory of how the pump is supposed to work, but how do we diagnose a def pump problem? Diagnostics scan tool with tests functionality. Diesel exhaust fluid (def) is a blended aqueous urea solution of 32.5% high purity urea and 67.5% deionized water used to reduce pollution in newer tier 4 final. Def Pump Test.
From trucktotrailer.com
Cmi2520171C2 Genuine International Def Doser Pump Truck To Trailer Def Pump Test Diesel exhaust fluid (def) is a blended aqueous urea solution of 32.5% high purity urea and 67.5% deionized water used to reduce pollution in newer tier 4 final diesel engines. In this article, i am going to show. The first thing you’ll want to do is. Is the def pump functioning appropriately? You can test for def issues in field. Def Pump Test.
From www.youtube.com
ATD System Episode 4 Diesel Exhaust Fluid Pump. (DEF Pump). YouTube Def Pump Test How often should i test the quality. We understand the theory of how the pump is supposed to work, but how do we diagnose a def pump problem? Check the pump pressure and voltage using a multimeter to. The first thing you’ll want to do is. Prevention and proactive monitoring of your diesel exhaust fluid can help prevent issues. Graduated. Def Pump Test.
From www.youtube.com
DEF pump replacement (P20E8) 2011+ FORD SUPER DUTY YouTube Def Pump Test The first thing you’ll want to do is. Diesel exhaust fluid (def) is a blended aqueous urea solution of 32.5% high purity urea and 67.5% deionized water used to reduce pollution in newer tier 4 final diesel engines. Here's everything you'll need to perform the test: Check the pump pressure and voltage using a multimeter to. Diagnostics scan tool with. Def Pump Test.
From www.popscreen.com
LiquiDynamics 11 DEF Pump System with RSV Adapter — Automatic Stainless Def Pump Test You can test for def issues in field and submit samples to the lab for review. The first thing you’ll want to do is. Prevention and proactive monitoring of your diesel exhaust fluid can help prevent issues. In this tutorial video, we'll show you how to perform a def (diesel exhaust fluid) system flow. We understand the theory of how. Def Pump Test.
From www.grainger.com
BLUE DEF, 1/2 hp Motor HP, 55 gal For Container Size, Electric Operated Def Pump Test Graduated cylinder or way of measuring ml of liquid. Many diesel vehicle owners face def system challenges, but understanding and troubleshooting these issues doesn't have to be daunting. Is the def pump functioning appropriately? Check the pump pressure and voltage using a multimeter to. Diagnostics scan tool with tests functionality. Prevention and proactive monitoring of your diesel exhaust fluid can. Def Pump Test.
From www.autozone.com
Lumax 12 Volt Diaphragm Pump for DEF, Urea, and AdBlue Def Pump Test In this article, i am going to show. Diesel exhaust fluid (def) is a blended aqueous urea solution of 32.5% high purity urea and 67.5% deionized water used to reduce pollution in newer tier 4 final diesel engines. The first thing you’ll want to do is. Many diesel vehicle owners face def system challenges, but understanding and troubleshooting these issues. Def Pump Test.