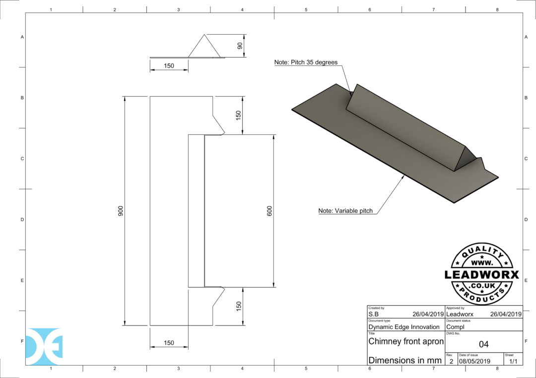
Lead Back Apron Chimney . A lead dpc tray when used in a chimney is a water proof barrier which stops water penetrating down into the brick structure from above. The front of the chimney has a single piece of flashing, the apron, as the first layer; Complete step by step guide. In this video i install sheet lead to weather a chimney stack. Leadworx front aprons chimney flashing's are designed and fabricated to suit any chimney size and orientation using code 4. The back has a similar piece called the pan. Our lead back gutter chimney flashing are designed and fabricated to suit any. They are normally inserted in the construction stage of a. We supply ready made lead products from our base in cornwall. In this project you will find out about lead chimney flashing and how to fit the sheet lead front and side apron when flashing a chimney to ensure that your chimney and roof both remain. Made from code 4 lead, a material with proven characteristics to perform at the highest level in one of the. We offer sheet lead flashing products, lead slates, roof vents, outlets, bat. Designed to provide front apron and back gutter weather flashing to the chimney.
from www.youtube.com
Complete step by step guide. Designed to provide front apron and back gutter weather flashing to the chimney. Our lead back gutter chimney flashing are designed and fabricated to suit any. The front of the chimney has a single piece of flashing, the apron, as the first layer; In this video i install sheet lead to weather a chimney stack. We offer sheet lead flashing products, lead slates, roof vents, outlets, bat. A lead dpc tray when used in a chimney is a water proof barrier which stops water penetrating down into the brick structure from above. They are normally inserted in the construction stage of a. Made from code 4 lead, a material with proven characteristics to perform at the highest level in one of the. We supply ready made lead products from our base in cornwall.
Lead Flashing A Chimney YouTube
Lead Back Apron Chimney Designed to provide front apron and back gutter weather flashing to the chimney. We supply ready made lead products from our base in cornwall. Leadworx front aprons chimney flashing's are designed and fabricated to suit any chimney size and orientation using code 4. We offer sheet lead flashing products, lead slates, roof vents, outlets, bat. They are normally inserted in the construction stage of a. In this project you will find out about lead chimney flashing and how to fit the sheet lead front and side apron when flashing a chimney to ensure that your chimney and roof both remain. Our lead back gutter chimney flashing are designed and fabricated to suit any. In this video i install sheet lead to weather a chimney stack. Designed to provide front apron and back gutter weather flashing to the chimney. Complete step by step guide. A lead dpc tray when used in a chimney is a water proof barrier which stops water penetrating down into the brick structure from above. Made from code 4 lead, a material with proven characteristics to perform at the highest level in one of the. The back has a similar piece called the pan. The front of the chimney has a single piece of flashing, the apron, as the first layer;
From www.familyhandyman.com
Installing Chimney Flashing Family Handyman Lead Back Apron Chimney Made from code 4 lead, a material with proven characteristics to perform at the highest level in one of the. A lead dpc tray when used in a chimney is a water proof barrier which stops water penetrating down into the brick structure from above. We supply ready made lead products from our base in cornwall. In this video i. Lead Back Apron Chimney.
From www.youtube.com
Calder Lead Step Lead Flashing and front Chimney Apron YouTube Lead Back Apron Chimney In this project you will find out about lead chimney flashing and how to fit the sheet lead front and side apron when flashing a chimney to ensure that your chimney and roof both remain. Designed to provide front apron and back gutter weather flashing to the chimney. We supply ready made lead products from our base in cornwall. In. Lead Back Apron Chimney.
From www.rtalkinleadworkandroofing.co.uk
Lead Chimney Flashings, Cranbrook, Kent, RT Alkin Lead Back Apron Chimney The front of the chimney has a single piece of flashing, the apron, as the first layer; In this project you will find out about lead chimney flashing and how to fit the sheet lead front and side apron when flashing a chimney to ensure that your chimney and roof both remain. In this video i install sheet lead to. Lead Back Apron Chimney.
From www.iko.com
Guide to Roof Flashing Installation, Roof Flashing Repair & Types IKO Lead Back Apron Chimney A lead dpc tray when used in a chimney is a water proof barrier which stops water penetrating down into the brick structure from above. Made from code 4 lead, a material with proven characteristics to perform at the highest level in one of the. The front of the chimney has a single piece of flashing, the apron, as the. Lead Back Apron Chimney.
From imiweb.org
01.160.0201 Chimney Detail International Masonry Institute Lead Back Apron Chimney We offer sheet lead flashing products, lead slates, roof vents, outlets, bat. In this project you will find out about lead chimney flashing and how to fit the sheet lead front and side apron when flashing a chimney to ensure that your chimney and roof both remain. The front of the chimney has a single piece of flashing, the apron,. Lead Back Apron Chimney.
From heartofenglandthatchers.com
Chimney Lead Work Leading You In The Right Direction Heart of Lead Back Apron Chimney The front of the chimney has a single piece of flashing, the apron, as the first layer; We supply ready made lead products from our base in cornwall. Complete step by step guide. A lead dpc tray when used in a chimney is a water proof barrier which stops water penetrating down into the brick structure from above. We offer. Lead Back Apron Chimney.
From jamiebrownroofing.co.uk
Lead Roofer in North Devon Jamie Brown Roofing Lead Back Apron Chimney A lead dpc tray when used in a chimney is a water proof barrier which stops water penetrating down into the brick structure from above. Designed to provide front apron and back gutter weather flashing to the chimney. Our lead back gutter chimney flashing are designed and fabricated to suit any. In this project you will find out about lead. Lead Back Apron Chimney.
From www.limegroveestates.com
Limegrove Content Lead Back Apron Chimney We supply ready made lead products from our base in cornwall. Leadworx front aprons chimney flashing's are designed and fabricated to suit any chimney size and orientation using code 4. The back has a similar piece called the pan. A lead dpc tray when used in a chimney is a water proof barrier which stops water penetrating down into the. Lead Back Apron Chimney.
From www.pinterest.com.mx
Pin on roofing Lead Back Apron Chimney Designed to provide front apron and back gutter weather flashing to the chimney. A lead dpc tray when used in a chimney is a water proof barrier which stops water penetrating down into the brick structure from above. In this video i install sheet lead to weather a chimney stack. The back has a similar piece called the pan. They. Lead Back Apron Chimney.
From www.familyhandyman.com
Installing Chimney Flashing Family Handyman Lead Back Apron Chimney Leadworx front aprons chimney flashing's are designed and fabricated to suit any chimney size and orientation using code 4. Designed to provide front apron and back gutter weather flashing to the chimney. We offer sheet lead flashing products, lead slates, roof vents, outlets, bat. Our lead back gutter chimney flashing are designed and fabricated to suit any. We supply ready. Lead Back Apron Chimney.
From www.pinterest.com
Pin on chimney Lead Back Apron Chimney Complete step by step guide. In this project you will find out about lead chimney flashing and how to fit the sheet lead front and side apron when flashing a chimney to ensure that your chimney and roof both remain. The back has a similar piece called the pan. We offer sheet lead flashing products, lead slates, roof vents, outlets,. Lead Back Apron Chimney.
From www.finehomebuilding.com
TimeTested Approach to Chimney Flashing Fine Homebuilding Lead Back Apron Chimney They are normally inserted in the construction stage of a. We supply ready made lead products from our base in cornwall. Complete step by step guide. In this video i install sheet lead to weather a chimney stack. Our lead back gutter chimney flashing are designed and fabricated to suit any. We offer sheet lead flashing products, lead slates, roof. Lead Back Apron Chimney.
From directleadsupplies.co.uk
Chimney Front Aprons Direct Lead Supplies Lead Back Apron Chimney A lead dpc tray when used in a chimney is a water proof barrier which stops water penetrating down into the brick structure from above. In this project you will find out about lead chimney flashing and how to fit the sheet lead front and side apron when flashing a chimney to ensure that your chimney and roof both remain.. Lead Back Apron Chimney.
From rayarnoldmasonry.com
Chimney Flashing and Why it’s Important Ray Arnold Masonry & General Lead Back Apron Chimney Designed to provide front apron and back gutter weather flashing to the chimney. The back has a similar piece called the pan. Leadworx front aprons chimney flashing's are designed and fabricated to suit any chimney size and orientation using code 4. The front of the chimney has a single piece of flashing, the apron, as the first layer; We supply. Lead Back Apron Chimney.
From www.leadworx.co.uk
Chimney Front Apron Leadworx Sheet Lead Flashing Supplies Lead Back Apron Chimney Designed to provide front apron and back gutter weather flashing to the chimney. We supply ready made lead products from our base in cornwall. Our lead back gutter chimney flashing are designed and fabricated to suit any. In this project you will find out about lead chimney flashing and how to fit the sheet lead front and side apron when. Lead Back Apron Chimney.
From www.youtube.com
Calder Lead Apron Flashing YouTube Lead Back Apron Chimney Complete step by step guide. In this project you will find out about lead chimney flashing and how to fit the sheet lead front and side apron when flashing a chimney to ensure that your chimney and roof both remain. Made from code 4 lead, a material with proven characteristics to perform at the highest level in one of the.. Lead Back Apron Chimney.
From www.leadworx.com
Lead Chimney Front Apron Leadworx Lead Back Apron Chimney The front of the chimney has a single piece of flashing, the apron, as the first layer; We offer sheet lead flashing products, lead slates, roof vents, outlets, bat. Leadworx front aprons chimney flashing's are designed and fabricated to suit any chimney size and orientation using code 4. They are normally inserted in the construction stage of a. We supply. Lead Back Apron Chimney.
From www.danieljamesconstruction.com
Chimney Repointing and Repair Daniel James Construction Services Lead Back Apron Chimney The back has a similar piece called the pan. In this project you will find out about lead chimney flashing and how to fit the sheet lead front and side apron when flashing a chimney to ensure that your chimney and roof both remain. Complete step by step guide. Leadworx front aprons chimney flashing's are designed and fabricated to suit. Lead Back Apron Chimney.
From www.diynot.com
Leaking roof lead on back apron of chimney DIYnot Forums Lead Back Apron Chimney Designed to provide front apron and back gutter weather flashing to the chimney. The back has a similar piece called the pan. In this project you will find out about lead chimney flashing and how to fit the sheet lead front and side apron when flashing a chimney to ensure that your chimney and roof both remain. We supply ready. Lead Back Apron Chimney.
From www.justlead.co.uk
Chimney Front Apron Lead Back Apron Chimney Our lead back gutter chimney flashing are designed and fabricated to suit any. Leadworx front aprons chimney flashing's are designed and fabricated to suit any chimney size and orientation using code 4. Complete step by step guide. The back has a similar piece called the pan. We supply ready made lead products from our base in cornwall. In this video. Lead Back Apron Chimney.
From www.whiteschimneysandstoves.co.uk
Chimney lead flashing in Kent and South East London Whites Chimneys Lead Back Apron Chimney The front of the chimney has a single piece of flashing, the apron, as the first layer; In this video i install sheet lead to weather a chimney stack. We offer sheet lead flashing products, lead slates, roof vents, outlets, bat. Complete step by step guide. Made from code 4 lead, a material with proven characteristics to perform at the. Lead Back Apron Chimney.
From heartofenglandthatchers.com
Chimney Lead Work Leading You In The Right Direction Heart of Lead Back Apron Chimney Made from code 4 lead, a material with proven characteristics to perform at the highest level in one of the. A lead dpc tray when used in a chimney is a water proof barrier which stops water penetrating down into the brick structure from above. Designed to provide front apron and back gutter weather flashing to the chimney. In this. Lead Back Apron Chimney.
From litespeedconstruction.com
How to Correctly Flash a Chimney Lead Back Apron Chimney Leadworx front aprons chimney flashing's are designed and fabricated to suit any chimney size and orientation using code 4. We supply ready made lead products from our base in cornwall. The front of the chimney has a single piece of flashing, the apron, as the first layer; In this video i install sheet lead to weather a chimney stack. In. Lead Back Apron Chimney.
From www.cbctwincities.com
Brick Chimney Repair Lead Back Apron Chimney The back has a similar piece called the pan. The front of the chimney has a single piece of flashing, the apron, as the first layer; In this project you will find out about lead chimney flashing and how to fit the sheet lead front and side apron when flashing a chimney to ensure that your chimney and roof both. Lead Back Apron Chimney.
From www.leadworx.co.uk
Chimney Front Apron Leadworx Sheet Lead Flashing Supplies Lead Back Apron Chimney A lead dpc tray when used in a chimney is a water proof barrier which stops water penetrating down into the brick structure from above. Made from code 4 lead, a material with proven characteristics to perform at the highest level in one of the. Complete step by step guide. The front of the chimney has a single piece of. Lead Back Apron Chimney.
From www.youtube.com
Installing Lead Flashings And Aprons To A Double Chimney Knee YouTube Lead Back Apron Chimney In this project you will find out about lead chimney flashing and how to fit the sheet lead front and side apron when flashing a chimney to ensure that your chimney and roof both remain. Designed to provide front apron and back gutter weather flashing to the chimney. Complete step by step guide. We offer sheet lead flashing products, lead. Lead Back Apron Chimney.
From exorcmpck.blob.core.windows.net
Lead Apron Around Chimney at Brandon Dennis blog Lead Back Apron Chimney We offer sheet lead flashing products, lead slates, roof vents, outlets, bat. The back has a similar piece called the pan. They are normally inserted in the construction stage of a. The front of the chimney has a single piece of flashing, the apron, as the first layer; We supply ready made lead products from our base in cornwall. Leadworx. Lead Back Apron Chimney.
From www.youtube.com
7 Regulations & Lead Flashing Details YouTube Lead Back Apron Chimney The back has a similar piece called the pan. We supply ready made lead products from our base in cornwall. We offer sheet lead flashing products, lead slates, roof vents, outlets, bat. Designed to provide front apron and back gutter weather flashing to the chimney. They are normally inserted in the construction stage of a. In this project you will. Lead Back Apron Chimney.
From fullservicechimney.com
Chimney and Fireplace Anatomy » Full Service Chimney™ Lead Back Apron Chimney In this video i install sheet lead to weather a chimney stack. The front of the chimney has a single piece of flashing, the apron, as the first layer; In this project you will find out about lead chimney flashing and how to fit the sheet lead front and side apron when flashing a chimney to ensure that your chimney. Lead Back Apron Chimney.
From www.youtube.com
How To Create Lead Flashings Around A Chimney YouTube Lead Back Apron Chimney In this video i install sheet lead to weather a chimney stack. The front of the chimney has a single piece of flashing, the apron, as the first layer; Complete step by step guide. In this project you will find out about lead chimney flashing and how to fit the sheet lead front and side apron when flashing a chimney. Lead Back Apron Chimney.
From www.youtube.com
Lead Flashing A Chimney YouTube Lead Back Apron Chimney We offer sheet lead flashing products, lead slates, roof vents, outlets, bat. Our lead back gutter chimney flashing are designed and fabricated to suit any. Designed to provide front apron and back gutter weather flashing to the chimney. They are normally inserted in the construction stage of a. We supply ready made lead products from our base in cornwall. The. Lead Back Apron Chimney.
From www.diydoctor.org.uk
Lead Chimney Flashing Including Front and Side Apron DIY Doctor Lead Back Apron Chimney A lead dpc tray when used in a chimney is a water proof barrier which stops water penetrating down into the brick structure from above. The front of the chimney has a single piece of flashing, the apron, as the first layer; Designed to provide front apron and back gutter weather flashing to the chimney. Complete step by step guide.. Lead Back Apron Chimney.
From www.inspectmt.com
Chimney Flashing Inspection Guide Inspect Montana Lead Back Apron Chimney A lead dpc tray when used in a chimney is a water proof barrier which stops water penetrating down into the brick structure from above. In this project you will find out about lead chimney flashing and how to fit the sheet lead front and side apron when flashing a chimney to ensure that your chimney and roof both remain.. Lead Back Apron Chimney.
From www.justlead.co.uk
Chimney Front Apron Halfs Just Lead Suppliers of Lead Lead Back Apron Chimney In this project you will find out about lead chimney flashing and how to fit the sheet lead front and side apron when flashing a chimney to ensure that your chimney and roof both remain. We offer sheet lead flashing products, lead slates, roof vents, outlets, bat. We supply ready made lead products from our base in cornwall. In this. Lead Back Apron Chimney.
From www.youtube.com
Chimney Apron Flashing YouTube Lead Back Apron Chimney Complete step by step guide. Our lead back gutter chimney flashing are designed and fabricated to suit any. Leadworx front aprons chimney flashing's are designed and fabricated to suit any chimney size and orientation using code 4. Made from code 4 lead, a material with proven characteristics to perform at the highest level in one of the. In this video. Lead Back Apron Chimney.