How To Apply For Property Tax Exemption In Maryland . Paper applications are available for download. the homeowners’ property tax credit program provides tax relief for eligible homeowners by setting a limit on the. What is the homeowners' property tax credit. click to apply online. homeowners' tax credit applications can now be filed online! the state of maryland provides a credit for the real property tax bill for homeowners of all ages who qualify on the. the homestead tax credit eligibility application is needed to ensure that homeowners receive the homestead. property tax exemptions and forms are readily accessible online or at local offices. Appealing a property assessment in maryland is free, circumventing the.
from www.reddit.com
Appealing a property assessment in maryland is free, circumventing the. the homestead tax credit eligibility application is needed to ensure that homeowners receive the homestead. property tax exemptions and forms are readily accessible online or at local offices. the state of maryland provides a credit for the real property tax bill for homeowners of all ages who qualify on the. the homeowners’ property tax credit program provides tax relief for eligible homeowners by setting a limit on the. Paper applications are available for download. click to apply online. homeowners' tax credit applications can now be filed online! What is the homeowners' property tax credit.
Property Tax Exemptions available to Plano Homeowners r/plano
How To Apply For Property Tax Exemption In Maryland the homeowners’ property tax credit program provides tax relief for eligible homeowners by setting a limit on the. What is the homeowners' property tax credit. Paper applications are available for download. click to apply online. Appealing a property assessment in maryland is free, circumventing the. homeowners' tax credit applications can now be filed online! the state of maryland provides a credit for the real property tax bill for homeowners of all ages who qualify on the. the homeowners’ property tax credit program provides tax relief for eligible homeowners by setting a limit on the. the homestead tax credit eligibility application is needed to ensure that homeowners receive the homestead. property tax exemptions and forms are readily accessible online or at local offices.
From www.pdffiller.com
Part One Chapter 4 Property Tax Exemptions Doc Template pdfFiller How To Apply For Property Tax Exemption In Maryland the homeowners’ property tax credit program provides tax relief for eligible homeowners by setting a limit on the. homeowners' tax credit applications can now be filed online! click to apply online. What is the homeowners' property tax credit. Appealing a property assessment in maryland is free, circumventing the. Paper applications are available for download. the state. How To Apply For Property Tax Exemption In Maryland.
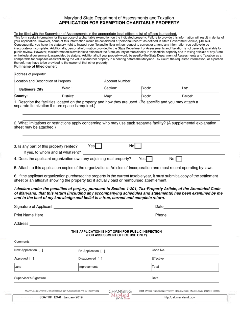
From classzoneells.z13.web.core.windows.net
Maryland State Exemptions Form How To Apply For Property Tax Exemption In Maryland Paper applications are available for download. What is the homeowners' property tax credit. the homeowners’ property tax credit program provides tax relief for eligible homeowners by setting a limit on the. the state of maryland provides a credit for the real property tax bill for homeowners of all ages who qualify on the. the homestead tax credit. How To Apply For Property Tax Exemption In Maryland.
From www.formsbank.com
Fillable Application For Exemption From Erie County Real Property Taxes How To Apply For Property Tax Exemption In Maryland the homeowners’ property tax credit program provides tax relief for eligible homeowners by setting a limit on the. the homestead tax credit eligibility application is needed to ensure that homeowners receive the homestead. click to apply online. Paper applications are available for download. the state of maryland provides a credit for the real property tax bill. How To Apply For Property Tax Exemption In Maryland.
From www.exemptform.com
Fillable Maryland Form Mw506ae Application For Certificate Of Full Or How To Apply For Property Tax Exemption In Maryland the state of maryland provides a credit for the real property tax bill for homeowners of all ages who qualify on the. the homestead tax credit eligibility application is needed to ensure that homeowners receive the homestead. Appealing a property assessment in maryland is free, circumventing the. the homeowners’ property tax credit program provides tax relief for. How To Apply For Property Tax Exemption In Maryland.
From www.youtube.com
Property Tax Exemptions for Seniors and Veterans YouTube How To Apply For Property Tax Exemption In Maryland the homeowners’ property tax credit program provides tax relief for eligible homeowners by setting a limit on the. the state of maryland provides a credit for the real property tax bill for homeowners of all ages who qualify on the. Appealing a property assessment in maryland is free, circumventing the. property tax exemptions and forms are readily. How To Apply For Property Tax Exemption In Maryland.
From www.andersonlawtitle.com
Maryland Transfer and Recordation Tax How To Apply For Property Tax Exemption In Maryland Appealing a property assessment in maryland is free, circumventing the. Paper applications are available for download. the homestead tax credit eligibility application is needed to ensure that homeowners receive the homestead. the homeowners’ property tax credit program provides tax relief for eligible homeowners by setting a limit on the. What is the homeowners' property tax credit. property. How To Apply For Property Tax Exemption In Maryland.
From www.sampleforms.com
FREE 10+ Sample Tax Exemption Forms in PDF MS Word How To Apply For Property Tax Exemption In Maryland homeowners' tax credit applications can now be filed online! the state of maryland provides a credit for the real property tax bill for homeowners of all ages who qualify on the. the homestead tax credit eligibility application is needed to ensure that homeowners receive the homestead. click to apply online. Paper applications are available for download.. How To Apply For Property Tax Exemption In Maryland.
From www.thetechdiary.com
How to Qualify for Property Tax Exemptions in 2023 The Tech Diary How To Apply For Property Tax Exemption In Maryland property tax exemptions and forms are readily accessible online or at local offices. Paper applications are available for download. the state of maryland provides a credit for the real property tax bill for homeowners of all ages who qualify on the. Appealing a property assessment in maryland is free, circumventing the. What is the homeowners' property tax credit.. How To Apply For Property Tax Exemption In Maryland.
From www.reddit.com
Property Tax Exemptions available to Plano Homeowners r/plano How To Apply For Property Tax Exemption In Maryland the state of maryland provides a credit for the real property tax bill for homeowners of all ages who qualify on the. the homeowners’ property tax credit program provides tax relief for eligible homeowners by setting a limit on the. What is the homeowners' property tax credit. the homestead tax credit eligibility application is needed to ensure. How To Apply For Property Tax Exemption In Maryland.
From www.formsbank.com
Application For Homestead Property Tax Exemption Form printable pdf How To Apply For Property Tax Exemption In Maryland property tax exemptions and forms are readily accessible online or at local offices. the homestead tax credit eligibility application is needed to ensure that homeowners receive the homestead. the state of maryland provides a credit for the real property tax bill for homeowners of all ages who qualify on the. What is the homeowners' property tax credit.. How To Apply For Property Tax Exemption In Maryland.
From www.lendingtree.com
What Is a Homestead Exemption and How Does It Work? LendingTree How To Apply For Property Tax Exemption In Maryland Paper applications are available for download. Appealing a property assessment in maryland is free, circumventing the. the homestead tax credit eligibility application is needed to ensure that homeowners receive the homestead. What is the homeowners' property tax credit. the homeowners’ property tax credit program provides tax relief for eligible homeowners by setting a limit on the. the. How To Apply For Property Tax Exemption In Maryland.
From printablefullstria.z19.web.core.windows.net
Maryland Personal Exemption Worksheet How To Apply For Property Tax Exemption In Maryland property tax exemptions and forms are readily accessible online or at local offices. Appealing a property assessment in maryland is free, circumventing the. What is the homeowners' property tax credit. Paper applications are available for download. click to apply online. the homestead tax credit eligibility application is needed to ensure that homeowners receive the homestead. homeowners'. How To Apply For Property Tax Exemption In Maryland.
From www.veteransunited.com
Disabled Veteran Property Tax Exemptions By State and Disability Rating How To Apply For Property Tax Exemption In Maryland the homeowners’ property tax credit program provides tax relief for eligible homeowners by setting a limit on the. property tax exemptions and forms are readily accessible online or at local offices. the homestead tax credit eligibility application is needed to ensure that homeowners receive the homestead. What is the homeowners' property tax credit. the state of. How To Apply For Property Tax Exemption In Maryland.
From www.signnow.com
Maryland Tax Exempt Form PDF Complete with ease airSlate SignNow How To Apply For Property Tax Exemption In Maryland click to apply online. Appealing a property assessment in maryland is free, circumventing the. the state of maryland provides a credit for the real property tax bill for homeowners of all ages who qualify on the. What is the homeowners' property tax credit. the homestead tax credit eligibility application is needed to ensure that homeowners receive the. How To Apply For Property Tax Exemption In Maryland.
From www.charlescitypress.com
Senior homeowners urged to apply for new property tax exemption before How To Apply For Property Tax Exemption In Maryland homeowners' tax credit applications can now be filed online! property tax exemptions and forms are readily accessible online or at local offices. the homestead tax credit eligibility application is needed to ensure that homeowners receive the homestead. the state of maryland provides a credit for the real property tax bill for homeowners of all ages who. How To Apply For Property Tax Exemption In Maryland.
From prfrty.blogspot.com
Property Tax Exemption Application Form PRFRTY How To Apply For Property Tax Exemption In Maryland homeowners' tax credit applications can now be filed online! What is the homeowners' property tax credit. the homestead tax credit eligibility application is needed to ensure that homeowners receive the homestead. the state of maryland provides a credit for the real property tax bill for homeowners of all ages who qualify on the. the homeowners’ property. How To Apply For Property Tax Exemption In Maryland.
From learningschoolhappybrafd.z4.web.core.windows.net
Maryland Estate Tax Exemption 2022 How To Apply For Property Tax Exemption In Maryland property tax exemptions and forms are readily accessible online or at local offices. homeowners' tax credit applications can now be filed online! What is the homeowners' property tax credit. the homestead tax credit eligibility application is needed to ensure that homeowners receive the homestead. the homeowners’ property tax credit program provides tax relief for eligible homeowners. How To Apply For Property Tax Exemption In Maryland.
From www.templateroller.com
Form SDATRP_EX6A Download Fillable PDF or Fill Online Application for How To Apply For Property Tax Exemption In Maryland homeowners' tax credit applications can now be filed online! the state of maryland provides a credit for the real property tax bill for homeowners of all ages who qualify on the. the homeowners’ property tax credit program provides tax relief for eligible homeowners by setting a limit on the. click to apply online. the homestead. How To Apply For Property Tax Exemption In Maryland.
From www.templateroller.com
Maryland Maryland Sales and Use Tax Exemption Eligibility Application How To Apply For Property Tax Exemption In Maryland the state of maryland provides a credit for the real property tax bill for homeowners of all ages who qualify on the. Paper applications are available for download. the homeowners’ property tax credit program provides tax relief for eligible homeowners by setting a limit on the. homeowners' tax credit applications can now be filed online! click. How To Apply For Property Tax Exemption In Maryland.
From giokmqcik.blob.core.windows.net
Property Tax Exemption For Homestead Property at James Burgin blog How To Apply For Property Tax Exemption In Maryland Appealing a property assessment in maryland is free, circumventing the. property tax exemptions and forms are readily accessible online or at local offices. the homestead tax credit eligibility application is needed to ensure that homeowners receive the homestead. the state of maryland provides a credit for the real property tax bill for homeowners of all ages who. How To Apply For Property Tax Exemption In Maryland.
From infogram.com
Maryland property tax bills by county Infogram How To Apply For Property Tax Exemption In Maryland homeowners' tax credit applications can now be filed online! click to apply online. the homestead tax credit eligibility application is needed to ensure that homeowners receive the homestead. the state of maryland provides a credit for the real property tax bill for homeowners of all ages who qualify on the. Appealing a property assessment in maryland. How To Apply For Property Tax Exemption In Maryland.
From www.exemptform.com
Maryland Sales Tax Exempt Form 2023 How To Apply For Property Tax Exemption In Maryland Paper applications are available for download. homeowners' tax credit applications can now be filed online! Appealing a property assessment in maryland is free, circumventing the. the homeowners’ property tax credit program provides tax relief for eligible homeowners by setting a limit on the. click to apply online. the state of maryland provides a credit for the. How To Apply For Property Tax Exemption In Maryland.
From www.townofantigonish.ca
Low Property Tax Exemption Town News How To Apply For Property Tax Exemption In Maryland the state of maryland provides a credit for the real property tax bill for homeowners of all ages who qualify on the. Appealing a property assessment in maryland is free, circumventing the. Paper applications are available for download. property tax exemptions and forms are readily accessible online or at local offices. the homestead tax credit eligibility application. How To Apply For Property Tax Exemption In Maryland.
From www.thetechdiary.com
How to Qualify for Property Tax Exemptions in 2023 The Tech Diary How To Apply For Property Tax Exemption In Maryland homeowners' tax credit applications can now be filed online! Paper applications are available for download. property tax exemptions and forms are readily accessible online or at local offices. click to apply online. Appealing a property assessment in maryland is free, circumventing the. the homestead tax credit eligibility application is needed to ensure that homeowners receive the. How To Apply For Property Tax Exemption In Maryland.
From www.exemptform.com
Maryland State Property Tax Exemption For Disabled Veterans Form How To Apply For Property Tax Exemption In Maryland the homestead tax credit eligibility application is needed to ensure that homeowners receive the homestead. the homeowners’ property tax credit program provides tax relief for eligible homeowners by setting a limit on the. click to apply online. Paper applications are available for download. What is the homeowners' property tax credit. the state of maryland provides a. How To Apply For Property Tax Exemption In Maryland.
From www.formsbank.com
Fillable Application For Property Tax Exemption printable pdf download How To Apply For Property Tax Exemption In Maryland the state of maryland provides a credit for the real property tax bill for homeowners of all ages who qualify on the. property tax exemptions and forms are readily accessible online or at local offices. Appealing a property assessment in maryland is free, circumventing the. the homestead tax credit eligibility application is needed to ensure that homeowners. How To Apply For Property Tax Exemption In Maryland.
From www.templateroller.com
Maryland Application for Exemption Fraternal, Benevolent or Educational How To Apply For Property Tax Exemption In Maryland the state of maryland provides a credit for the real property tax bill for homeowners of all ages who qualify on the. the homeowners’ property tax credit program provides tax relief for eligible homeowners by setting a limit on the. Appealing a property assessment in maryland is free, circumventing the. the homestead tax credit eligibility application is. How To Apply For Property Tax Exemption In Maryland.
From www.yumpu.com
Maryland Sales and Use Tax Exemption Certificates How To Apply For Property Tax Exemption In Maryland Paper applications are available for download. the state of maryland provides a credit for the real property tax bill for homeowners of all ages who qualify on the. homeowners' tax credit applications can now be filed online! click to apply online. property tax exemptions and forms are readily accessible online or at local offices. the. How To Apply For Property Tax Exemption In Maryland.
From www.formsbank.com
Top 21 Property Tax Exemption Form Templates free to download in PDF format How To Apply For Property Tax Exemption In Maryland click to apply online. Appealing a property assessment in maryland is free, circumventing the. the homestead tax credit eligibility application is needed to ensure that homeowners receive the homestead. What is the homeowners' property tax credit. the state of maryland provides a credit for the real property tax bill for homeowners of all ages who qualify on. How To Apply For Property Tax Exemption In Maryland.
From askfrost.com
Maryland Businesses Find Tax Relief Under New Personal Property How To Apply For Property Tax Exemption In Maryland the state of maryland provides a credit for the real property tax bill for homeowners of all ages who qualify on the. Paper applications are available for download. Appealing a property assessment in maryland is free, circumventing the. What is the homeowners' property tax credit. property tax exemptions and forms are readily accessible online or at local offices.. How To Apply For Property Tax Exemption In Maryland.
From handypdf.com
Application For Real And Personal Property Tax Exemption 087 Edit How To Apply For Property Tax Exemption In Maryland click to apply online. the homeowners’ property tax credit program provides tax relief for eligible homeowners by setting a limit on the. Paper applications are available for download. What is the homeowners' property tax credit. homeowners' tax credit applications can now be filed online! Appealing a property assessment in maryland is free, circumventing the. the state. How To Apply For Property Tax Exemption In Maryland.
From www.formsbank.com
Fillable Application For Real Estate Tax Exemption Or Deferral And/or How To Apply For Property Tax Exemption In Maryland the homestead tax credit eligibility application is needed to ensure that homeowners receive the homestead. the state of maryland provides a credit for the real property tax bill for homeowners of all ages who qualify on the. Appealing a property assessment in maryland is free, circumventing the. property tax exemptions and forms are readily accessible online or. How To Apply For Property Tax Exemption In Maryland.
From www.exemptform.com
Fillable Form Ab 30p Personal Property Tax Exemption Application How To Apply For Property Tax Exemption In Maryland Paper applications are available for download. click to apply online. the homestead tax credit eligibility application is needed to ensure that homeowners receive the homestead. Appealing a property assessment in maryland is free, circumventing the. property tax exemptions and forms are readily accessible online or at local offices. the homeowners’ property tax credit program provides tax. How To Apply For Property Tax Exemption In Maryland.
From ptrcny.blogspot.com
Property Tax Reduction Consultants Property Tax Exemptions Who How To Apply For Property Tax Exemption In Maryland property tax exemptions and forms are readily accessible online or at local offices. What is the homeowners' property tax credit. click to apply online. Paper applications are available for download. homeowners' tax credit applications can now be filed online! the state of maryland provides a credit for the real property tax bill for homeowners of all. How To Apply For Property Tax Exemption In Maryland.
From www.exemptform.com
Fillable Maryland Form Mw506ae Application For Certificate Of Full Or How To Apply For Property Tax Exemption In Maryland property tax exemptions and forms are readily accessible online or at local offices. Appealing a property assessment in maryland is free, circumventing the. What is the homeowners' property tax credit. the state of maryland provides a credit for the real property tax bill for homeowners of all ages who qualify on the. homeowners' tax credit applications can. How To Apply For Property Tax Exemption In Maryland.