Whitehall Zoning Map . Find other city and county. explore the zoning map of whitehall borough, a web map created by gateway_whitehallboro, using arcgis.com. find the zoning of any property in whitehall, pennsylvania with this latest zoning map and zoning code. zoning boundaries not indicated in or along streets, roads, or highways are along property lines. absentee voting for november august 27, 2024 in election, news more posts document downloads 2022 meeting. explore whitehall borough's zoning, parcels, streets, and more with this interactive web map application. whitehall borough public zoning map web map by gateway_whitehallboro.
from www.wfmz.com
explore the zoning map of whitehall borough, a web map created by gateway_whitehallboro, using arcgis.com. find the zoning of any property in whitehall, pennsylvania with this latest zoning map and zoning code. Find other city and county. absentee voting for november august 27, 2024 in election, news more posts document downloads 2022 meeting. zoning boundaries not indicated in or along streets, roads, or highways are along property lines. explore whitehall borough's zoning, parcels, streets, and more with this interactive web map application. whitehall borough public zoning map web map by gateway_whitehallboro.
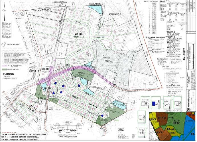
Jaindl presents proposal for 78 new homes in South Whitehall Lehigh
Whitehall Zoning Map whitehall borough public zoning map web map by gateway_whitehallboro. explore the zoning map of whitehall borough, a web map created by gateway_whitehallboro, using arcgis.com. explore whitehall borough's zoning, parcels, streets, and more with this interactive web map application. whitehall borough public zoning map web map by gateway_whitehallboro. Find other city and county. absentee voting for november august 27, 2024 in election, news more posts document downloads 2022 meeting. find the zoning of any property in whitehall, pennsylvania with this latest zoning map and zoning code. zoning boundaries not indicated in or along streets, roads, or highways are along property lines.
From www.southwhitehall.com
Leaf Collection South Whitehall Township, PA Whitehall Zoning Map explore whitehall borough's zoning, parcels, streets, and more with this interactive web map application. absentee voting for november august 27, 2024 in election, news more posts document downloads 2022 meeting. Find other city and county. explore the zoning map of whitehall borough, a web map created by gateway_whitehallboro, using arcgis.com. whitehall borough public zoning map web. Whitehall Zoning Map.
From www.floodmap.net
Elevation of Whitehall Township,US Elevation Map, Topography, Contour Whitehall Zoning Map Find other city and county. explore the zoning map of whitehall borough, a web map created by gateway_whitehallboro, using arcgis.com. whitehall borough public zoning map web map by gateway_whitehallboro. zoning boundaries not indicated in or along streets, roads, or highways are along property lines. explore whitehall borough's zoning, parcels, streets, and more with this interactive web. Whitehall Zoning Map.
From www.researchgate.net
Whitehall. Map by Emery Huang. Download Scientific Diagram Whitehall Zoning Map zoning boundaries not indicated in or along streets, roads, or highways are along property lines. absentee voting for november august 27, 2024 in election, news more posts document downloads 2022 meeting. whitehall borough public zoning map web map by gateway_whitehallboro. find the zoning of any property in whitehall, pennsylvania with this latest zoning map and zoning. Whitehall Zoning Map.
From ninos.kiddle.co
Archivo Map of Whitehall, Allegheny County, Pennsylvania Highlighted Whitehall Zoning Map find the zoning of any property in whitehall, pennsylvania with this latest zoning map and zoning code. whitehall borough public zoning map web map by gateway_whitehallboro. explore the zoning map of whitehall borough, a web map created by gateway_whitehallboro, using arcgis.com. Find other city and county. absentee voting for november august 27, 2024 in election, news. Whitehall Zoning Map.
From www.lehighvalleynews.com
South Whitehall Twp.'s new comprehensive plan What it says about open Whitehall Zoning Map absentee voting for november august 27, 2024 in election, news more posts document downloads 2022 meeting. whitehall borough public zoning map web map by gateway_whitehallboro. find the zoning of any property in whitehall, pennsylvania with this latest zoning map and zoning code. zoning boundaries not indicated in or along streets, roads, or highways are along property. Whitehall Zoning Map.
From www.landsat.com
Whitehall Michigan Street Map 2686780 Whitehall Zoning Map find the zoning of any property in whitehall, pennsylvania with this latest zoning map and zoning code. absentee voting for november august 27, 2024 in election, news more posts document downloads 2022 meeting. Find other city and county. explore whitehall borough's zoning, parcels, streets, and more with this interactive web map application. whitehall borough public zoning. Whitehall Zoning Map.
From www.whitehallde.com
Town of Whitehall Master Plan & Village Maps Delaware Whitehall Zoning Map Find other city and county. absentee voting for november august 27, 2024 in election, news more posts document downloads 2022 meeting. whitehall borough public zoning map web map by gateway_whitehallboro. explore whitehall borough's zoning, parcels, streets, and more with this interactive web map application. explore the zoning map of whitehall borough, a web map created by. Whitehall Zoning Map.
From exoytfriw.blob.core.windows.net
May Township Building Permits at Douglas Teal blog Whitehall Zoning Map find the zoning of any property in whitehall, pennsylvania with this latest zoning map and zoning code. explore the zoning map of whitehall borough, a web map created by gateway_whitehallboro, using arcgis.com. explore whitehall borough's zoning, parcels, streets, and more with this interactive web map application. whitehall borough public zoning map web map by gateway_whitehallboro. Find. Whitehall Zoning Map.
From no1whitehall.co.uk
Map No1 Whitehall Riverside Whitehall Zoning Map explore the zoning map of whitehall borough, a web map created by gateway_whitehallboro, using arcgis.com. find the zoning of any property in whitehall, pennsylvania with this latest zoning map and zoning code. absentee voting for november august 27, 2024 in election, news more posts document downloads 2022 meeting. explore whitehall borough's zoning, parcels, streets, and more. Whitehall Zoning Map.
From www.british-history.ac.uk
Plate 3 Plans of Whitehall British History Online Whitehall Zoning Map explore whitehall borough's zoning, parcels, streets, and more with this interactive web map application. zoning boundaries not indicated in or along streets, roads, or highways are along property lines. Find other city and county. whitehall borough public zoning map web map by gateway_whitehallboro. explore the zoning map of whitehall borough, a web map created by gateway_whitehallboro,. Whitehall Zoning Map.
From www.landsat.com
Aerial Photography Map of Whitehall, WI Wisconsin Whitehall Zoning Map zoning boundaries not indicated in or along streets, roads, or highways are along property lines. whitehall borough public zoning map web map by gateway_whitehallboro. explore the zoning map of whitehall borough, a web map created by gateway_whitehallboro, using arcgis.com. explore whitehall borough's zoning, parcels, streets, and more with this interactive web map application. absentee voting. Whitehall Zoning Map.
From archive.org
A Map of Whitehall Past and present, being a compendious guide to Whitehall Zoning Map whitehall borough public zoning map web map by gateway_whitehallboro. Find other city and county. explore whitehall borough's zoning, parcels, streets, and more with this interactive web map application. absentee voting for november august 27, 2024 in election, news more posts document downloads 2022 meeting. zoning boundaries not indicated in or along streets, roads, or highways are. Whitehall Zoning Map.
From www.muttontownny.gov
Our Village Village of Muttontown Whitehall Zoning Map find the zoning of any property in whitehall, pennsylvania with this latest zoning map and zoning code. whitehall borough public zoning map web map by gateway_whitehallboro. explore whitehall borough's zoning, parcels, streets, and more with this interactive web map application. Find other city and county. zoning boundaries not indicated in or along streets, roads, or highways. Whitehall Zoning Map.
From patch.com
200Townhouse Development Enabled by Zoning Map Change South Whitehall Zoning Map explore whitehall borough's zoning, parcels, streets, and more with this interactive web map application. absentee voting for november august 27, 2024 in election, news more posts document downloads 2022 meeting. find the zoning of any property in whitehall, pennsylvania with this latest zoning map and zoning code. explore the zoning map of whitehall borough, a web. Whitehall Zoning Map.
From northcoventrytownship.com
Zoning Hearing Board North Coventry Township Whitehall Zoning Map explore whitehall borough's zoning, parcels, streets, and more with this interactive web map application. find the zoning of any property in whitehall, pennsylvania with this latest zoning map and zoning code. Find other city and county. zoning boundaries not indicated in or along streets, roads, or highways are along property lines. explore the zoning map of. Whitehall Zoning Map.
From www.bloomingtonil.gov
Zoning Ordinance and Map City of Bloomington, Illinois Whitehall Zoning Map absentee voting for november august 27, 2024 in election, news more posts document downloads 2022 meeting. find the zoning of any property in whitehall, pennsylvania with this latest zoning map and zoning code. Find other city and county. explore whitehall borough's zoning, parcels, streets, and more with this interactive web map application. zoning boundaries not indicated. Whitehall Zoning Map.
From www.google.com
Whitehall Road, Leeds LS1 Google My Maps Whitehall Zoning Map absentee voting for november august 27, 2024 in election, news more posts document downloads 2022 meeting. explore the zoning map of whitehall borough, a web map created by gateway_whitehallboro, using arcgis.com. explore whitehall borough's zoning, parcels, streets, and more with this interactive web map application. find the zoning of any property in whitehall, pennsylvania with this. Whitehall Zoning Map.
From www.google.com
City of Whitehall Fall Leaf Collection Program Zones Google My Maps Whitehall Zoning Map find the zoning of any property in whitehall, pennsylvania with this latest zoning map and zoning code. explore whitehall borough's zoning, parcels, streets, and more with this interactive web map application. zoning boundaries not indicated in or along streets, roads, or highways are along property lines. explore the zoning map of whitehall borough, a web map. Whitehall Zoning Map.
From www.friendsofworcester.org
Growing Greener Zoning — Friends of Worcester site Whitehall Zoning Map zoning boundaries not indicated in or along streets, roads, or highways are along property lines. explore whitehall borough's zoning, parcels, streets, and more with this interactive web map application. absentee voting for november august 27, 2024 in election, news more posts document downloads 2022 meeting. find the zoning of any property in whitehall, pennsylvania with this. Whitehall Zoning Map.
From www.placemakers.com
The Town of Whitehall, Delaware PlaceMakers Whitehall Zoning Map explore the zoning map of whitehall borough, a web map created by gateway_whitehallboro, using arcgis.com. absentee voting for november august 27, 2024 in election, news more posts document downloads 2022 meeting. whitehall borough public zoning map web map by gateway_whitehallboro. zoning boundaries not indicated in or along streets, roads, or highways are along property lines. . Whitehall Zoning Map.
From yourislandnews.com
Planning Commission greenlights Whitehall development plan The Island Whitehall Zoning Map Find other city and county. explore the zoning map of whitehall borough, a web map created by gateway_whitehallboro, using arcgis.com. find the zoning of any property in whitehall, pennsylvania with this latest zoning map and zoning code. whitehall borough public zoning map web map by gateway_whitehallboro. absentee voting for november august 27, 2024 in election, news. Whitehall Zoning Map.
From www.landsat.com
Whitehall Pennsylvania Street Map 4284512 Whitehall Zoning Map whitehall borough public zoning map web map by gateway_whitehallboro. explore whitehall borough's zoning, parcels, streets, and more with this interactive web map application. absentee voting for november august 27, 2024 in election, news more posts document downloads 2022 meeting. find the zoning of any property in whitehall, pennsylvania with this latest zoning map and zoning code.. Whitehall Zoning Map.
From www.whitehall.bristol.sch.uk
Zones of Regulation (ZoR) Whitehall Primary School Whitehall Zoning Map zoning boundaries not indicated in or along streets, roads, or highways are along property lines. whitehall borough public zoning map web map by gateway_whitehallboro. absentee voting for november august 27, 2024 in election, news more posts document downloads 2022 meeting. find the zoning of any property in whitehall, pennsylvania with this latest zoning map and zoning. Whitehall Zoning Map.
From greene.illinoisgenweb.org
Maps Whitehall Zoning Map explore whitehall borough's zoning, parcels, streets, and more with this interactive web map application. whitehall borough public zoning map web map by gateway_whitehallboro. find the zoning of any property in whitehall, pennsylvania with this latest zoning map and zoning code. explore the zoning map of whitehall borough, a web map created by gateway_whitehallboro, using arcgis.com. . Whitehall Zoning Map.
From www.freecountrymaps.com
Whitehall Map United States Latitude & Longitude Free Maps Whitehall Zoning Map explore whitehall borough's zoning, parcels, streets, and more with this interactive web map application. Find other city and county. absentee voting for november august 27, 2024 in election, news more posts document downloads 2022 meeting. explore the zoning map of whitehall borough, a web map created by gateway_whitehallboro, using arcgis.com. find the zoning of any property. Whitehall Zoning Map.
From www.landsat.com
Whitehall Ohio Street Map 3984742 Whitehall Zoning Map absentee voting for november august 27, 2024 in election, news more posts document downloads 2022 meeting. explore the zoning map of whitehall borough, a web map created by gateway_whitehallboro, using arcgis.com. explore whitehall borough's zoning, parcels, streets, and more with this interactive web map application. Find other city and county. find the zoning of any property. Whitehall Zoning Map.
From comitta.com
Thomas Comitta Associates South Whitehall Township Comprehensive Plan Whitehall Zoning Map Find other city and county. find the zoning of any property in whitehall, pennsylvania with this latest zoning map and zoning code. absentee voting for november august 27, 2024 in election, news more posts document downloads 2022 meeting. explore the zoning map of whitehall borough, a web map created by gateway_whitehallboro, using arcgis.com. whitehall borough public. Whitehall Zoning Map.
From www.freecountrymaps.com
Whitehall Map United States Latitude & Longitude Free Maps Whitehall Zoning Map explore whitehall borough's zoning, parcels, streets, and more with this interactive web map application. explore the zoning map of whitehall borough, a web map created by gateway_whitehallboro, using arcgis.com. zoning boundaries not indicated in or along streets, roads, or highways are along property lines. Find other city and county. absentee voting for november august 27, 2024. Whitehall Zoning Map.
From searpc.com
White Hall Southeast Arkansas Regional Planning Commission Whitehall Zoning Map explore the zoning map of whitehall borough, a web map created by gateway_whitehallboro, using arcgis.com. explore whitehall borough's zoning, parcels, streets, and more with this interactive web map application. absentee voting for november august 27, 2024 in election, news more posts document downloads 2022 meeting. whitehall borough public zoning map web map by gateway_whitehallboro. zoning. Whitehall Zoning Map.
From www.alamy.com
Whitehall, Montana, map 1963, 124000, United States of America by Whitehall Zoning Map zoning boundaries not indicated in or along streets, roads, or highways are along property lines. Find other city and county. explore whitehall borough's zoning, parcels, streets, and more with this interactive web map application. absentee voting for november august 27, 2024 in election, news more posts document downloads 2022 meeting. find the zoning of any property. Whitehall Zoning Map.
From www.alamy.com
WHITEHALL Plan of the palace of Whitehall. London, c1880 antique map Whitehall Zoning Map explore whitehall borough's zoning, parcels, streets, and more with this interactive web map application. whitehall borough public zoning map web map by gateway_whitehallboro. find the zoning of any property in whitehall, pennsylvania with this latest zoning map and zoning code. zoning boundaries not indicated in or along streets, roads, or highways are along property lines. . Whitehall Zoning Map.
From whitehallmeansbusiness.com
siteoverviewwhitehall Whitehall Means Business Whitehall Zoning Map find the zoning of any property in whitehall, pennsylvania with this latest zoning map and zoning code. whitehall borough public zoning map web map by gateway_whitehallboro. Find other city and county. explore whitehall borough's zoning, parcels, streets, and more with this interactive web map application. zoning boundaries not indicated in or along streets, roads, or highways. Whitehall Zoning Map.
From www.wfmz.com
Jaindl presents proposal for 78 new homes in South Whitehall Lehigh Whitehall Zoning Map whitehall borough public zoning map web map by gateway_whitehallboro. absentee voting for november august 27, 2024 in election, news more posts document downloads 2022 meeting. zoning boundaries not indicated in or along streets, roads, or highways are along property lines. explore the zoning map of whitehall borough, a web map created by gateway_whitehallboro, using arcgis.com. . Whitehall Zoning Map.
From www.landsat.com
Whitehall Montana Street Map 3079900 Whitehall Zoning Map absentee voting for november august 27, 2024 in election, news more posts document downloads 2022 meeting. explore the zoning map of whitehall borough, a web map created by gateway_whitehallboro, using arcgis.com. explore whitehall borough's zoning, parcels, streets, and more with this interactive web map application. find the zoning of any property in whitehall, pennsylvania with this. Whitehall Zoning Map.
From www.floodmap.net
Elevation of Whitehall Township,US Elevation Map, Topography, Contour Whitehall Zoning Map zoning boundaries not indicated in or along streets, roads, or highways are along property lines. explore the zoning map of whitehall borough, a web map created by gateway_whitehallboro, using arcgis.com. find the zoning of any property in whitehall, pennsylvania with this latest zoning map and zoning code. whitehall borough public zoning map web map by gateway_whitehallboro.. Whitehall Zoning Map.