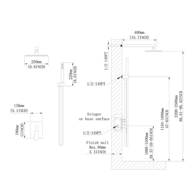
Standard Mounting Height For Shower Head . if you are considering using a standard wall mounted shower head, use a shower head height with measurements ranging from 80” off the floor or 6 to 8”. what height should a shower head be mounted? However, if you live where low and high ceilings are common. Of course, there is no standard shower head height code, so when it comes down. It can range from 72 inches to 96 inches according to personal heights and location. In the united states, the standard shower head height is more or less 80 inches or around 203 centimeters. However, this is not the right way. But if you have a large household using the. A common mistake that people make while installing shower heads is measuring the height from the ceiling. This height is based on the average adult male height in. generally, the standard height for shower heads is 80 inches, but this depends on the model you have. However, you should choose a height that fits your personal needs. the standard shower head height is 80 inches (6′ 8″ feet) from the floor to the shower head. while standard shower heads are typically placed around 80” high, they can range from 68 to 86” for people ranging from 5’ to 6’6” tall.
from www.pinterest.ph
what height should a shower head be mounted? But if you have a large household using the. generally, the standard height for shower heads is 80 inches, but this depends on the model you have. However, if you live where low and high ceilings are common. if you are considering using a standard wall mounted shower head, use a shower head height with measurements ranging from 80” off the floor or 6 to 8”. A common mistake that people make while installing shower heads is measuring the height from the ceiling. However, you should choose a height that fits your personal needs. the standard shower head height is 80 inches (6′ 8″ feet) from the floor to the shower head. Of course, there is no standard shower head height code, so when it comes down. In the united states, the standard shower head height is more or less 80 inches or around 203 centimeters.
ada mounting heights for restroom accessories Design and
Standard Mounting Height For Shower Head the standard shower head height is 80 inches (6′ 8″ feet) from the floor to the shower head. However, this is not the right way. In the united states, the standard shower head height is more or less 80 inches or around 203 centimeters. Of course, there is no standard shower head height code, so when it comes down. generally, the standard height for shower heads is 80 inches, but this depends on the model you have. This height is based on the average adult male height in. while standard shower heads are typically placed around 80” high, they can range from 68 to 86” for people ranging from 5’ to 6’6” tall. what height should a shower head be mounted? But if you have a large household using the. However, if you live where low and high ceilings are common. It can range from 72 inches to 96 inches according to personal heights and location. However, you should choose a height that fits your personal needs. if you are considering using a standard wall mounted shower head, use a shower head height with measurements ranging from 80” off the floor or 6 to 8”. the standard shower head height is 80 inches (6′ 8″ feet) from the floor to the shower head. A common mistake that people make while installing shower heads is measuring the height from the ceiling.
From homedesignideas.help
Shower Layout Dimensions BEST HOME DESIGN IDEAS Standard Mounting Height For Shower Head This height is based on the average adult male height in. In the united states, the standard shower head height is more or less 80 inches or around 203 centimeters. But if you have a large household using the. It can range from 72 inches to 96 inches according to personal heights and location. generally, the standard height for. Standard Mounting Height For Shower Head.
From www.pinterest.ph
ada mounting heights for restroom accessories Design and Standard Mounting Height For Shower Head the standard shower head height is 80 inches (6′ 8″ feet) from the floor to the shower head. while standard shower heads are typically placed around 80” high, they can range from 68 to 86” for people ranging from 5’ to 6’6” tall. what height should a shower head be mounted? In the united states, the standard. Standard Mounting Height For Shower Head.
From renovatorstore.com.au
Bathroom Square Shower Handle Tap with Rail Standard Mounting Height For Shower Head This height is based on the average adult male height in. However, you should choose a height that fits your personal needs. A common mistake that people make while installing shower heads is measuring the height from the ceiling. But if you have a large household using the. generally, the standard height for shower heads is 80 inches, but. Standard Mounting Height For Shower Head.
From www.ebay.com
Adjustable Shower Head Extension Arm 11" Wall Mount Shower Arm with Standard Mounting Height For Shower Head Of course, there is no standard shower head height code, so when it comes down. However, you should choose a height that fits your personal needs. if you are considering using a standard wall mounted shower head, use a shower head height with measurements ranging from 80” off the floor or 6 to 8”. But if you have a. Standard Mounting Height For Shower Head.
From www.bedbathandbeyond.com
Shower System with Shower Head Wall Mounted Shower Set Bed Bath Standard Mounting Height For Shower Head while standard shower heads are typically placed around 80” high, they can range from 68 to 86” for people ranging from 5’ to 6’6” tall. However, you should choose a height that fits your personal needs. A common mistake that people make while installing shower heads is measuring the height from the ceiling. This height is based on the. Standard Mounting Height For Shower Head.
From www.walmart.com
ZJbiubiuHome Dual Shower Head 10 Inch Ceiling Mount Square Shower Standard Mounting Height For Shower Head generally, the standard height for shower heads is 80 inches, but this depends on the model you have. while standard shower heads are typically placed around 80” high, they can range from 68 to 86” for people ranging from 5’ to 6’6” tall. However, if you live where low and high ceilings are common. if you are. Standard Mounting Height For Shower Head.
From www.walmart.com
Bathroom Wallmounted Dual Head 2 in 1 Bath Shower Spray Set with Standard Mounting Height For Shower Head A common mistake that people make while installing shower heads is measuring the height from the ceiling. what height should a shower head be mounted? generally, the standard height for shower heads is 80 inches, but this depends on the model you have. However, this is not the right way. However, if you live where low and high. Standard Mounting Height For Shower Head.
From www.ebay.co.uk
Adjustable Height Shower Head Holder for Wall Mount Suction Cup Design Standard Mounting Height For Shower Head However, you should choose a height that fits your personal needs. while standard shower heads are typically placed around 80” high, they can range from 68 to 86” for people ranging from 5’ to 6’6” tall. the standard shower head height is 80 inches (6′ 8″ feet) from the floor to the shower head. what height should. Standard Mounting Height For Shower Head.
From www.kallista.com
Standard Shower Head Height for Remodel or Build Kallista Standard Mounting Height For Shower Head However, this is not the right way. Of course, there is no standard shower head height code, so when it comes down. However, if you live where low and high ceilings are common. what height should a shower head be mounted? A common mistake that people make while installing shower heads is measuring the height from the ceiling. But. Standard Mounting Height For Shower Head.
From www.plumbingsupply.com
Shower systems for handicapped or mobility impaired by Speakman Standard Mounting Height For Shower Head However, you should choose a height that fits your personal needs. A common mistake that people make while installing shower heads is measuring the height from the ceiling. Of course, there is no standard shower head height code, so when it comes down. However, if you live where low and high ceilings are common. while standard shower heads are. Standard Mounting Height For Shower Head.
From derivbinary.com
Height of Tub Spout Above Tub Standard Mounting Height For Shower Head This height is based on the average adult male height in. In the united states, the standard shower head height is more or less 80 inches or around 203 centimeters. if you are considering using a standard wall mounted shower head, use a shower head height with measurements ranging from 80” off the floor or 6 to 8”. . Standard Mounting Height For Shower Head.
From www.pinterest.com
shower valve height from floor Google Search in 2020 Shower Standard Mounting Height For Shower Head Of course, there is no standard shower head height code, so when it comes down. However, this is not the right way. A common mistake that people make while installing shower heads is measuring the height from the ceiling. if you are considering using a standard wall mounted shower head, use a shower head height with measurements ranging from. Standard Mounting Height For Shower Head.
From filmscpkhhly.blogspot.com
Kohler Hand Held Shower With Slide Bar Houses For Rent Near Me Standard Mounting Height For Shower Head But if you have a large household using the. This height is based on the average adult male height in. Of course, there is no standard shower head height code, so when it comes down. It can range from 72 inches to 96 inches according to personal heights and location. In the united states, the standard shower head height is. Standard Mounting Height For Shower Head.
From www.pinterest.co.uk
Image result for standard mounting height for shower head Shower Standard Mounting Height For Shower Head This height is based on the average adult male height in. the standard shower head height is 80 inches (6′ 8″ feet) from the floor to the shower head. A common mistake that people make while installing shower heads is measuring the height from the ceiling. In the united states, the standard shower head height is more or less. Standard Mounting Height For Shower Head.
From www.pinterest.com.mx
shower faucet height standard height for shower head image Standard Mounting Height For Shower Head However, this is not the right way. A common mistake that people make while installing shower heads is measuring the height from the ceiling. It can range from 72 inches to 96 inches according to personal heights and location. However, if you live where low and high ceilings are common. the standard shower head height is 80 inches (6′. Standard Mounting Height For Shower Head.
From www.ebay.co.uk
Adjustable Height Shower Head Holder for Wall Mount Suction Cup Design Standard Mounting Height For Shower Head However, you should choose a height that fits your personal needs. It can range from 72 inches to 96 inches according to personal heights and location. This height is based on the average adult male height in. what height should a shower head be mounted? However, this is not the right way. while standard shower heads are typically. Standard Mounting Height For Shower Head.
From www.ubuy.com.ps
YOO.MEE On Wall Mount Shower Bracket for Handheld Shower Head, Height Standard Mounting Height For Shower Head generally, the standard height for shower heads is 80 inches, but this depends on the model you have. However, if you live where low and high ceilings are common. However, you should choose a height that fits your personal needs. But if you have a large household using the. However, this is not the right way. Of course, there. Standard Mounting Height For Shower Head.
From www.kallista.com
Standard Shower Head Height for Remodel or Build Kallista Standard Mounting Height For Shower Head while standard shower heads are typically placed around 80” high, they can range from 68 to 86” for people ranging from 5’ to 6’6” tall. what height should a shower head be mounted? A common mistake that people make while installing shower heads is measuring the height from the ceiling. generally, the standard height for shower heads. Standard Mounting Height For Shower Head.
From www.walmart.com
ZJbiubiuHome Dual Shower Head 10 Inch Ceiling Mount Square Shower Standard Mounting Height For Shower Head It can range from 72 inches to 96 inches according to personal heights and location. A common mistake that people make while installing shower heads is measuring the height from the ceiling. But if you have a large household using the. generally, the standard height for shower heads is 80 inches, but this depends on the model you have.. Standard Mounting Height For Shower Head.
From www.pinterest.com
Image result for SHOWER VALVE MOUNTING HEIGHT measurements Standard Mounting Height For Shower Head the standard shower head height is 80 inches (6′ 8″ feet) from the floor to the shower head. Of course, there is no standard shower head height code, so when it comes down. what height should a shower head be mounted? while standard shower heads are typically placed around 80” high, they can range from 68 to. Standard Mounting Height For Shower Head.
From engineeringdiscoveries.com
How To plumb Shower Installation? Engineering Discoveries Standard Mounting Height For Shower Head while standard shower heads are typically placed around 80” high, they can range from 68 to 86” for people ranging from 5’ to 6’6” tall. This height is based on the average adult male height in. A common mistake that people make while installing shower heads is measuring the height from the ceiling. Of course, there is no standard. Standard Mounting Height For Shower Head.
From pqsgcbueoo.blogspot.com
Standard Shower Grab Bar Height New Product Assessments, Prices, and Standard Mounting Height For Shower Head Of course, there is no standard shower head height code, so when it comes down. A common mistake that people make while installing shower heads is measuring the height from the ceiling. generally, the standard height for shower heads is 80 inches, but this depends on the model you have. However, if you live where low and high ceilings. Standard Mounting Height For Shower Head.
From www.pinterest.co.uk
The shower controls should be accessible from both inside and outside Standard Mounting Height For Shower Head the standard shower head height is 80 inches (6′ 8″ feet) from the floor to the shower head. However, you should choose a height that fits your personal needs. But if you have a large household using the. while standard shower heads are typically placed around 80” high, they can range from 68 to 86” for people ranging. Standard Mounting Height For Shower Head.
From www.walmart.com
ZJbiubiuHome Dual Shower Head 10 Inch Ceiling Mount Square Shower Standard Mounting Height For Shower Head A common mistake that people make while installing shower heads is measuring the height from the ceiling. while standard shower heads are typically placed around 80” high, they can range from 68 to 86” for people ranging from 5’ to 6’6” tall. In the united states, the standard shower head height is more or less 80 inches or around. Standard Mounting Height For Shower Head.
From moderncottagedecorid.blogspot.com
Standard Height For Shower Head Standard Mounting Height For Shower Head It can range from 72 inches to 96 inches according to personal heights and location. In the united states, the standard shower head height is more or less 80 inches or around 203 centimeters. generally, the standard height for shower heads is 80 inches, but this depends on the model you have. However, this is not the right way.. Standard Mounting Height For Shower Head.
From legsploaty.blogspot.com
Ada Hand Shower Height legsploaty Standard Mounting Height For Shower Head the standard shower head height is 80 inches (6′ 8″ feet) from the floor to the shower head. It can range from 72 inches to 96 inches according to personal heights and location. However, if you live where low and high ceilings are common. However, you should choose a height that fits your personal needs. This height is based. Standard Mounting Height For Shower Head.
From fivestarbathsolutions.com
A Guide to Shower Head Design Standard Mounting Height For Shower Head A common mistake that people make while installing shower heads is measuring the height from the ceiling. the standard shower head height is 80 inches (6′ 8″ feet) from the floor to the shower head. However, if you live where low and high ceilings are common. This height is based on the average adult male height in. However, you. Standard Mounting Height For Shower Head.
From www.kallista.com
Standard Shower Head Height for Remodel or Build Kallista Standard Mounting Height For Shower Head what height should a shower head be mounted? This height is based on the average adult male height in. if you are considering using a standard wall mounted shower head, use a shower head height with measurements ranging from 80” off the floor or 6 to 8”. A common mistake that people make while installing shower heads is. Standard Mounting Height For Shower Head.
From www.pinterest.com.mx
Showers Heights and Clearances are established based on shower safety Standard Mounting Height For Shower Head However, this is not the right way. This height is based on the average adult male height in. if you are considering using a standard wall mounted shower head, use a shower head height with measurements ranging from 80” off the floor or 6 to 8”. It can range from 72 inches to 96 inches according to personal heights. Standard Mounting Height For Shower Head.
From www.finestbathroom.com
What Is The Standard Shower Head Height? Finest Bathroom Standard Mounting Height For Shower Head if you are considering using a standard wall mounted shower head, use a shower head height with measurements ranging from 80” off the floor or 6 to 8”. generally, the standard height for shower heads is 80 inches, but this depends on the model you have. the standard shower head height is 80 inches (6′ 8″ feet). Standard Mounting Height For Shower Head.
From engineeringdiscoveries.com
Standard Height Of Bathroom Fittings Engineering Discoveries Standard Mounting Height For Shower Head A common mistake that people make while installing shower heads is measuring the height from the ceiling. what height should a shower head be mounted? This height is based on the average adult male height in. However, this is not the right way. In the united states, the standard shower head height is more or less 80 inches or. Standard Mounting Height For Shower Head.
From blog.myhomeware.com.au
How High Is a Shower Head? Explained By Showerhead Types Standard Mounting Height For Shower Head In the united states, the standard shower head height is more or less 80 inches or around 203 centimeters. However, you should choose a height that fits your personal needs. while standard shower heads are typically placed around 80” high, they can range from 68 to 86” for people ranging from 5’ to 6’6” tall. However, this is not. Standard Mounting Height For Shower Head.
From www.amazon.ca
Waterpik VSS563MT Series Slide Strip, Adjustable Height Standard Mounting Height For Shower Head the standard shower head height is 80 inches (6′ 8″ feet) from the floor to the shower head. However, you should choose a height that fits your personal needs. But if you have a large household using the. what height should a shower head be mounted? It can range from 72 inches to 96 inches according to personal. Standard Mounting Height For Shower Head.
From designingidea.com
Shower Head Height (Standard Measurements) Designing Idea Standard Mounting Height For Shower Head generally, the standard height for shower heads is 80 inches, but this depends on the model you have. This height is based on the average adult male height in. But if you have a large household using the. what height should a shower head be mounted? However, this is not the right way. while standard shower heads. Standard Mounting Height For Shower Head.
From designingidea.com
Shower Head Height (Standard Measurements) Designing Idea Standard Mounting Height For Shower Head However, this is not the right way. In the united states, the standard shower head height is more or less 80 inches or around 203 centimeters. This height is based on the average adult male height in. However, if you live where low and high ceilings are common. if you are considering using a standard wall mounted shower head,. Standard Mounting Height For Shower Head.