Cat Ladder Max Height . Consider the maximum load the. Avoid locating linkways below or adjacent to windows openings of. The cat ladder projects over any street:. The modular cat ladder system is the ultimate solution for efficient and safe vertical access in various industrial and commercial settings. These vertical structures provide safe access to elevated areas and are often. Evaluate the height of the structure that needs access and the available space for installation. Ensure safety cage or grilles are provided for cat ladder more than 2.4m high. Determine the optimal ladder length and slope to meet your specific requirements. It is compulsory to follow some safety tips when working in a height. (6) where a ladder is used for access or as a working place, the ladder shall rise, or adequate handhold shall be provided, to a height of at least one metre. Fixed ladders, commonly known as cat ladder s or monkey ladders, play a crucial role in various settings.
from alacoladder.com
Consider the maximum load the. It is compulsory to follow some safety tips when working in a height. These vertical structures provide safe access to elevated areas and are often. Determine the optimal ladder length and slope to meet your specific requirements. Evaluate the height of the structure that needs access and the available space for installation. Ensure safety cage or grilles are provided for cat ladder more than 2.4m high. Fixed ladders, commonly known as cat ladder s or monkey ladders, play a crucial role in various settings. The modular cat ladder system is the ultimate solution for efficient and safe vertical access in various industrial and commercial settings. The cat ladder projects over any street:. (6) where a ladder is used for access or as a working place, the ladder shall rise, or adequate handhold shall be provided, to a height of at least one metre.
564CP Parapet Return with Rest Platform Ladder Alaco Ladder
Cat Ladder Max Height Determine the optimal ladder length and slope to meet your specific requirements. The cat ladder projects over any street:. Consider the maximum load the. Determine the optimal ladder length and slope to meet your specific requirements. (6) where a ladder is used for access or as a working place, the ladder shall rise, or adequate handhold shall be provided, to a height of at least one metre. It is compulsory to follow some safety tips when working in a height. Evaluate the height of the structure that needs access and the available space for installation. Fixed ladders, commonly known as cat ladder s or monkey ladders, play a crucial role in various settings. Avoid locating linkways below or adjacent to windows openings of. Ensure safety cage or grilles are provided for cat ladder more than 2.4m high. These vertical structures provide safe access to elevated areas and are often. The modular cat ladder system is the ultimate solution for efficient and safe vertical access in various industrial and commercial settings.
From www.pinterest.com
Image result for fixed access ladder side clearance Combination Cat Ladder Max Height Consider the maximum load the. These vertical structures provide safe access to elevated areas and are often. Ensure safety cage or grilles are provided for cat ladder more than 2.4m high. Fixed ladders, commonly known as cat ladder s or monkey ladders, play a crucial role in various settings. Evaluate the height of the structure that needs access and the. Cat Ladder Max Height.
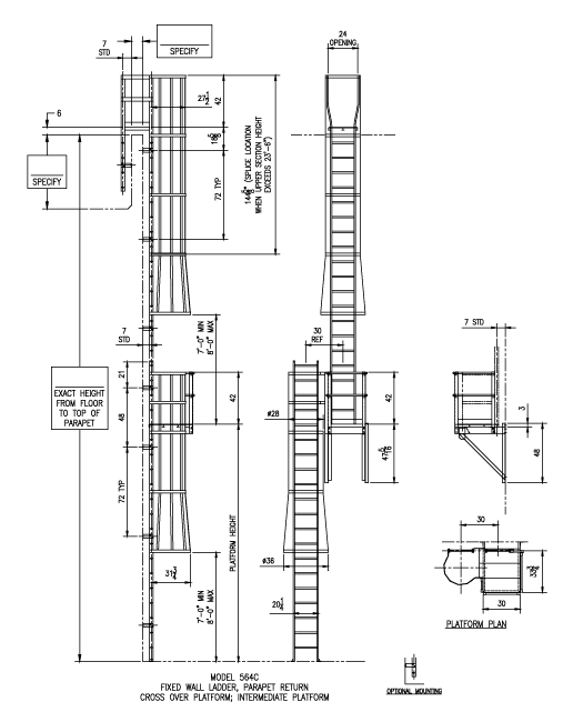
From crobim.com
Cat Ladders CroBIM Cat Ladder Max Height Fixed ladders, commonly known as cat ladder s or monkey ladders, play a crucial role in various settings. It is compulsory to follow some safety tips when working in a height. Consider the maximum load the. Evaluate the height of the structure that needs access and the available space for installation. The cat ladder projects over any street:. Determine the. Cat Ladder Max Height.
From www.fence.ae
Cat Ladders Steel Cat Ladder Max Height (6) where a ladder is used for access or as a working place, the ladder shall rise, or adequate handhold shall be provided, to a height of at least one metre. These vertical structures provide safe access to elevated areas and are often. The cat ladder projects over any street:. It is compulsory to follow some safety tips when working. Cat Ladder Max Height.
From safesitehq.com
OSHA Ladder Safety for General Industry Safesite Cat Ladder Max Height Determine the optimal ladder length and slope to meet your specific requirements. The modular cat ladder system is the ultimate solution for efficient and safe vertical access in various industrial and commercial settings. It is compulsory to follow some safety tips when working in a height. Fixed ladders, commonly known as cat ladder s or monkey ladders, play a crucial. Cat Ladder Max Height.
From www.pinterest.de
Standard Ladder Cat Ladder Max Height These vertical structures provide safe access to elevated areas and are often. (6) where a ladder is used for access or as a working place, the ladder shall rise, or adequate handhold shall be provided, to a height of at least one metre. Ensure safety cage or grilles are provided for cat ladder more than 2.4m high. The cat ladder. Cat Ladder Max Height.
From www.aljarsh.net
Cat Ladder — Al Jarsh Cat Ladder Max Height Evaluate the height of the structure that needs access and the available space for installation. It is compulsory to follow some safety tips when working in a height. Avoid locating linkways below or adjacent to windows openings of. Determine the optimal ladder length and slope to meet your specific requirements. These vertical structures provide safe access to elevated areas and. Cat Ladder Max Height.
From continuingeducation.bnpmedia.com
CE Center Reaching the Roof Specifying Fixed Access Aluminum Ladders Cat Ladder Max Height These vertical structures provide safe access to elevated areas and are often. (6) where a ladder is used for access or as a working place, the ladder shall rise, or adequate handhold shall be provided, to a height of at least one metre. Consider the maximum load the. Fixed ladders, commonly known as cat ladder s or monkey ladders, play. Cat Ladder Max Height.
From atelier-yuwa.ciao.jp
SS Ladder Rung CAD Files, DWG Files, Plans And Details atelieryuwa Cat Ladder Max Height (6) where a ladder is used for access or as a working place, the ladder shall rise, or adequate handhold shall be provided, to a height of at least one metre. Avoid locating linkways below or adjacent to windows openings of. The cat ladder projects over any street:. Fixed ladders, commonly known as cat ladder s or monkey ladders, play. Cat Ladder Max Height.
From www.dir.ca.gov
California Code of Regulations, Title 8, Section 3277. Fixed Ladders Cat Ladder Max Height The modular cat ladder system is the ultimate solution for efficient and safe vertical access in various industrial and commercial settings. Ensure safety cage or grilles are provided for cat ladder more than 2.4m high. Avoid locating linkways below or adjacent to windows openings of. These vertical structures provide safe access to elevated areas and are often. (6) where a. Cat Ladder Max Height.
From alacoladder.com
564CP Parapet Return with Rest Platform Ladder Alaco Ladder Cat Ladder Max Height Avoid locating linkways below or adjacent to windows openings of. Consider the maximum load the. Fixed ladders, commonly known as cat ladder s or monkey ladders, play a crucial role in various settings. Ensure safety cage or grilles are provided for cat ladder more than 2.4m high. Evaluate the height of the structure that needs access and the available space. Cat Ladder Max Height.
From www.emfab.org.za
Safety Access Ladders (Cat Ladders) fabricated by EMFab Cat Ladder Max Height The modular cat ladder system is the ultimate solution for efficient and safe vertical access in various industrial and commercial settings. Ensure safety cage or grilles are provided for cat ladder more than 2.4m high. These vertical structures provide safe access to elevated areas and are often. The cat ladder projects over any street:. Evaluate the height of the structure. Cat Ladder Max Height.
From cenpart.co.uk
Axess Ladder System Axess Verticle Ladders Cenpart Ltd Cat Ladder Max Height Avoid locating linkways below or adjacent to windows openings of. The cat ladder projects over any street:. (6) where a ladder is used for access or as a working place, the ladder shall rise, or adequate handhold shall be provided, to a height of at least one metre. It is compulsory to follow some safety tips when working in a. Cat Ladder Max Height.
From frezzi.com.au
Little Giant MegaMax MultiPosition Ladder with Work Platform Cat Ladder Max Height These vertical structures provide safe access to elevated areas and are often. The cat ladder projects over any street:. The modular cat ladder system is the ultimate solution for efficient and safe vertical access in various industrial and commercial settings. Ensure safety cage or grilles are provided for cat ladder more than 2.4m high. Fixed ladders, commonly known as cat. Cat Ladder Max Height.
From industrialladder.com.my
Aluminium Cat Ladder with Cage Cat Ladder Max Height Fixed ladders, commonly known as cat ladder s or monkey ladders, play a crucial role in various settings. It is compulsory to follow some safety tips when working in a height. (6) where a ladder is used for access or as a working place, the ladder shall rise, or adequate handhold shall be provided, to a height of at least. Cat Ladder Max Height.
From www.stepform.com.au
Australian standard AS1657 Step Ladders Cat Ladder Max Height Evaluate the height of the structure that needs access and the available space for installation. Consider the maximum load the. Fixed ladders, commonly known as cat ladder s or monkey ladders, play a crucial role in various settings. The modular cat ladder system is the ultimate solution for efficient and safe vertical access in various industrial and commercial settings. These. Cat Ladder Max Height.
From continuingeducation.bnpmedia.com
CE Center Reaching the Roof Specifying Fixed Access Aluminum Ladders Cat Ladder Max Height Determine the optimal ladder length and slope to meet your specific requirements. Avoid locating linkways below or adjacent to windows openings of. The modular cat ladder system is the ultimate solution for efficient and safe vertical access in various industrial and commercial settings. (6) where a ladder is used for access or as a working place, the ladder shall rise,. Cat Ladder Max Height.
From sadboxabc.blogspot.com
Ladder & Platforms 설계 참고 INSIDE INSIGHTS Cat Ladder Max Height Ensure safety cage or grilles are provided for cat ladder more than 2.4m high. Evaluate the height of the structure that needs access and the available space for installation. Fixed ladders, commonly known as cat ladder s or monkey ladders, play a crucial role in various settings. (6) where a ladder is used for access or as a working place,. Cat Ladder Max Height.
From mavink.com
Cage Ladder Dwg Cat Ladder Max Height It is compulsory to follow some safety tips when working in a height. Determine the optimal ladder length and slope to meet your specific requirements. Fixed ladders, commonly known as cat ladder s or monkey ladders, play a crucial role in various settings. Evaluate the height of the structure that needs access and the available space for installation. Ensure safety. Cat Ladder Max Height.
From ubicaciondepersonas.cdmx.gob.mx
Cat Ladder Regulations Uk ubicaciondepersonas.cdmx.gob.mx Cat Ladder Max Height The modular cat ladder system is the ultimate solution for efficient and safe vertical access in various industrial and commercial settings. (6) where a ladder is used for access or as a working place, the ladder shall rise, or adequate handhold shall be provided, to a height of at least one metre. Ensure safety cage or grilles are provided for. Cat Ladder Max Height.
From klandesws.blob.core.windows.net
Maximum Length Of Double Section Ladder at Shirley Davies blog Cat Ladder Max Height Avoid locating linkways below or adjacent to windows openings of. (6) where a ladder is used for access or as a working place, the ladder shall rise, or adequate handhold shall be provided, to a height of at least one metre. The cat ladder projects over any street:. These vertical structures provide safe access to elevated areas and are often.. Cat Ladder Max Height.
From stepbystep.my
Cat Ladders Step by Step Cat Ladder Max Height Ensure safety cage or grilles are provided for cat ladder more than 2.4m high. Consider the maximum load the. The modular cat ladder system is the ultimate solution for efficient and safe vertical access in various industrial and commercial settings. Avoid locating linkways below or adjacent to windows openings of. (6) where a ladder is used for access or as. Cat Ladder Max Height.
From tandisolutions.blogspot.com
T and I Solutions CAT LADDER, SHIPS LADDER, COMPANIONWAY LADDER OR Cat Ladder Max Height The modular cat ladder system is the ultimate solution for efficient and safe vertical access in various industrial and commercial settings. The cat ladder projects over any street:. Fixed ladders, commonly known as cat ladder s or monkey ladders, play a crucial role in various settings. Evaluate the height of the structure that needs access and the available space for. Cat Ladder Max Height.
From sunnymetal.com
Modular Cat Ladder Vertical Access Singapore Cat Ladder Max Height It is compulsory to follow some safety tips when working in a height. (6) where a ladder is used for access or as a working place, the ladder shall rise, or adequate handhold shall be provided, to a height of at least one metre. Ensure safety cage or grilles are provided for cat ladder more than 2.4m high. Consider the. Cat Ladder Max Height.
From www.aljarsh.net
Cat Ladder — Al Jarsh Cat Ladder Max Height These vertical structures provide safe access to elevated areas and are often. Avoid locating linkways below or adjacent to windows openings of. Evaluate the height of the structure that needs access and the available space for installation. (6) where a ladder is used for access or as a working place, the ladder shall rise, or adequate handhold shall be provided,. Cat Ladder Max Height.
From www.etsy.com
Cat Ladders for Catios. Easy to Fit and Easy to Adjust Due to Design Cat Ladder Max Height Evaluate the height of the structure that needs access and the available space for installation. (6) where a ladder is used for access or as a working place, the ladder shall rise, or adequate handhold shall be provided, to a height of at least one metre. The modular cat ladder system is the ultimate solution for efficient and safe vertical. Cat Ladder Max Height.
From www.bradfabs.co.uk
Bradfabs, cat ladders, steel ladder, mild steel ladder Cat Ladder Max Height The modular cat ladder system is the ultimate solution for efficient and safe vertical access in various industrial and commercial settings. The cat ladder projects over any street:. Determine the optimal ladder length and slope to meet your specific requirements. These vertical structures provide safe access to elevated areas and are often. Consider the maximum load the. Fixed ladders, commonly. Cat Ladder Max Height.
From sunnymetal.com
Modular Cat Ladder Vertical Access Singapore Cat Ladder Max Height The cat ladder projects over any street:. Avoid locating linkways below or adjacent to windows openings of. These vertical structures provide safe access to elevated areas and are often. Ensure safety cage or grilles are provided for cat ladder more than 2.4m high. The modular cat ladder system is the ultimate solution for efficient and safe vertical access in various. Cat Ladder Max Height.
From www.pinterest.com
LADDERS Stockholm Katzen treppe, Katzenleiter, Katzentreppe Cat Ladder Max Height (6) where a ladder is used for access or as a working place, the ladder shall rise, or adequate handhold shall be provided, to a height of at least one metre. Determine the optimal ladder length and slope to meet your specific requirements. The cat ladder projects over any street:. Avoid locating linkways below or adjacent to windows openings of.. Cat Ladder Max Height.
From www.egaproducts.com
OSHA Fixed Ladder Requirements EGA Products, Inc. Cat Ladder Max Height It is compulsory to follow some safety tips when working in a height. Ensure safety cage or grilles are provided for cat ladder more than 2.4m high. Consider the maximum load the. The cat ladder projects over any street:. The modular cat ladder system is the ultimate solution for efficient and safe vertical access in various industrial and commercial settings.. Cat Ladder Max Height.
From joibgbowg.blob.core.windows.net
How Long Should You Use A Ladder For at Joseph Hollingsworth blog Cat Ladder Max Height Consider the maximum load the. The modular cat ladder system is the ultimate solution for efficient and safe vertical access in various industrial and commercial settings. Evaluate the height of the structure that needs access and the available space for installation. Fixed ladders, commonly known as cat ladder s or monkey ladders, play a crucial role in various settings. Avoid. Cat Ladder Max Height.
From www.planmarketplace.com
Detail of Cat Ladder CAD Files, DWG files, Plans and Details Cat Ladder Max Height (6) where a ladder is used for access or as a working place, the ladder shall rise, or adequate handhold shall be provided, to a height of at least one metre. The modular cat ladder system is the ultimate solution for efficient and safe vertical access in various industrial and commercial settings. These vertical structures provide safe access to elevated. Cat Ladder Max Height.
From klandesws.blob.core.windows.net
Maximum Length Of Double Section Ladder at Shirley Davies blog Cat Ladder Max Height Ensure safety cage or grilles are provided for cat ladder more than 2.4m high. The cat ladder projects over any street:. Evaluate the height of the structure that needs access and the available space for installation. Determine the optimal ladder length and slope to meet your specific requirements. Consider the maximum load the. These vertical structures provide safe access to. Cat Ladder Max Height.
From www.ubicaciondepersonas.cdmx.gob.mx
Galvanised Steel Fixed Vertical Access Cat Ladder With Parapet Cat Ladder Max Height Determine the optimal ladder length and slope to meet your specific requirements. Avoid locating linkways below or adjacent to windows openings of. Ensure safety cage or grilles are provided for cat ladder more than 2.4m high. Consider the maximum load the. The cat ladder projects over any street:. It is compulsory to follow some safety tips when working in a. Cat Ladder Max Height.
From loemqvasr.blob.core.windows.net
How Do I Know What Size Ladder To Buy at Daniel Baker blog Cat Ladder Max Height Evaluate the height of the structure that needs access and the available space for installation. These vertical structures provide safe access to elevated areas and are often. Ensure safety cage or grilles are provided for cat ladder more than 2.4m high. The modular cat ladder system is the ultimate solution for efficient and safe vertical access in various industrial and. Cat Ladder Max Height.
From www.newlyswissed.com
14 unusual cat ladders we've spotted in Switzerland Cat Ladder Max Height The modular cat ladder system is the ultimate solution for efficient and safe vertical access in various industrial and commercial settings. Consider the maximum load the. Avoid locating linkways below or adjacent to windows openings of. Ensure safety cage or grilles are provided for cat ladder more than 2.4m high. It is compulsory to follow some safety tips when working. Cat Ladder Max Height.