Secondary Containment Testing Report Form . The secondary containment testing report form is to be used to report the results of secondary containment test that must be performed at. Secondary containment testing report form. Underground storage tank secondary containment testing report form. On and after 10/1/2020 this form must be used to document. This form, or the standard form develped by the state water resources control board (swrcb), must. Testing contractors are encouraged to use this form as a supplement to the state‐required form as a way to standardize reporting of testing. I hereby certify that the secondary containment was tested in accordance with california code of regulations, title 23, division 3, chapter 16,. This form is intended for use by contractors performing periodic testing of ust secondary containment systems.
from www.pdffiller.com
This form is intended for use by contractors performing periodic testing of ust secondary containment systems. This form, or the standard form develped by the state water resources control board (swrcb), must. Secondary containment testing report form. I hereby certify that the secondary containment was tested in accordance with california code of regulations, title 23, division 3, chapter 16,. On and after 10/1/2020 this form must be used to document. Testing contractors are encouraged to use this form as a supplement to the state‐required form as a way to standardize reporting of testing. The secondary containment testing report form is to be used to report the results of secondary containment test that must be performed at. Underground storage tank secondary containment testing report form.
Fillable Online docs bakersfieldcity Secondary Containment Testing
Secondary Containment Testing Report Form This form, or the standard form develped by the state water resources control board (swrcb), must. Testing contractors are encouraged to use this form as a supplement to the state‐required form as a way to standardize reporting of testing. Secondary containment testing report form. The secondary containment testing report form is to be used to report the results of secondary containment test that must be performed at. This form, or the standard form develped by the state water resources control board (swrcb), must. This form is intended for use by contractors performing periodic testing of ust secondary containment systems. Underground storage tank secondary containment testing report form. On and after 10/1/2020 this form must be used to document. I hereby certify that the secondary containment was tested in accordance with california code of regulations, title 23, division 3, chapter 16,.
From www.pdffiller.com
Fillable Online docs bakersfieldcity Standards for Secondary Secondary Containment Testing Report Form Underground storage tank secondary containment testing report form. I hereby certify that the secondary containment was tested in accordance with california code of regulations, title 23, division 3, chapter 16,. This form, or the standard form develped by the state water resources control board (swrcb), must. This form is intended for use by contractors performing periodic testing of ust secondary. Secondary Containment Testing Report Form.
From blog.polyprocessing.com
Secondary Containment Guide Poly Processing Secondary Containment Testing Report Form I hereby certify that the secondary containment was tested in accordance with california code of regulations, title 23, division 3, chapter 16,. On and after 10/1/2020 this form must be used to document. Underground storage tank secondary containment testing report form. Secondary containment testing report form. This form, or the standard form develped by the state water resources control board. Secondary Containment Testing Report Form.
From www.pdffiller.com
Fillable Online docs bakersfieldcity Imperial UST Secondary Secondary Containment Testing Report Form I hereby certify that the secondary containment was tested in accordance with california code of regulations, title 23, division 3, chapter 16,. Underground storage tank secondary containment testing report form. The secondary containment testing report form is to be used to report the results of secondary containment test that must be performed at. This form is intended for use by. Secondary Containment Testing Report Form.
From www.templateroller.com
(United States) 3 Year Containment Sump Integrity Test Report Secondary Containment Testing Report Form Underground storage tank secondary containment testing report form. This form is intended for use by contractors performing periodic testing of ust secondary containment systems. Testing contractors are encouraged to use this form as a supplement to the state‐required form as a way to standardize reporting of testing. This form, or the standard form develped by the state water resources control. Secondary Containment Testing Report Form.
From www.pdffiller.com
Fillable Online docs bakersfieldcity Secondary Containment Testing Secondary Containment Testing Report Form I hereby certify that the secondary containment was tested in accordance with california code of regulations, title 23, division 3, chapter 16,. On and after 10/1/2020 this form must be used to document. Underground storage tank secondary containment testing report form. This form is intended for use by contractors performing periodic testing of ust secondary containment systems. Testing contractors are. Secondary Containment Testing Report Form.
From issuu.com
Spill Container Testing Report Form by Los Angeles Fire Department Issuu Secondary Containment Testing Report Form On and after 10/1/2020 this form must be used to document. Testing contractors are encouraged to use this form as a supplement to the state‐required form as a way to standardize reporting of testing. I hereby certify that the secondary containment was tested in accordance with california code of regulations, title 23, division 3, chapter 16,. The secondary containment testing. Secondary Containment Testing Report Form.
From template.fromgrandma.best
Secondary Containment Testing Report Form Pdf Free Download Secondary Containment Testing Report Form Secondary containment testing report form. Underground storage tank secondary containment testing report form. Testing contractors are encouraged to use this form as a supplement to the state‐required form as a way to standardize reporting of testing. This form is intended for use by contractors performing periodic testing of ust secondary containment systems. This form, or the standard form develped by. Secondary Containment Testing Report Form.
From issuu.com
Secondary Containment Testing Report Form by Los Angeles Fire Secondary Containment Testing Report Form The secondary containment testing report form is to be used to report the results of secondary containment test that must be performed at. This form is intended for use by contractors performing periodic testing of ust secondary containment systems. Underground storage tank secondary containment testing report form. Secondary containment testing report form. I hereby certify that the secondary containment was. Secondary Containment Testing Report Form.
From www.templateroller.com
DNR Form 5420153 Fill Out, Sign Online and Download Fillable PDF Secondary Containment Testing Report Form Testing contractors are encouraged to use this form as a supplement to the state‐required form as a way to standardize reporting of testing. This form is intended for use by contractors performing periodic testing of ust secondary containment systems. On and after 10/1/2020 this form must be used to document. This form, or the standard form develped by the state. Secondary Containment Testing Report Form.
From www.templateroller.com
Form 2630FMBECB0016 Fill Out, Sign Online and Download Printable Secondary Containment Testing Report Form On and after 10/1/2020 this form must be used to document. This form is intended for use by contractors performing periodic testing of ust secondary containment systems. Secondary containment testing report form. This form, or the standard form develped by the state water resources control board (swrcb), must. Testing contractors are encouraged to use this form as a supplement to. Secondary Containment Testing Report Form.
From www.pdffiller.com
Fillable Online Secondary Containment Test Form Guidance Fax Email Secondary Containment Testing Report Form Testing contractors are encouraged to use this form as a supplement to the state‐required form as a way to standardize reporting of testing. The secondary containment testing report form is to be used to report the results of secondary containment test that must be performed at. This form, or the standard form develped by the state water resources control board. Secondary Containment Testing Report Form.
From www.scribd.com
Secondary Containment Guidance PDF Volume Gallon Secondary Containment Testing Report Form Testing contractors are encouraged to use this form as a supplement to the state‐required form as a way to standardize reporting of testing. I hereby certify that the secondary containment was tested in accordance with california code of regulations, title 23, division 3, chapter 16,. Underground storage tank secondary containment testing report form. Secondary containment testing report form. This form. Secondary Containment Testing Report Form.
From www.pdffiller.com
Fillable Online Secondary Containment Testing Report Fax Email Print Secondary Containment Testing Report Form Secondary containment testing report form. The secondary containment testing report form is to be used to report the results of secondary containment test that must be performed at. This form, or the standard form develped by the state water resources control board (swrcb), must. I hereby certify that the secondary containment was tested in accordance with california code of regulations,. Secondary Containment Testing Report Form.
From www.templateroller.com
Delaware Spill Containment Device (Spill Bucket) Test Report Form Secondary Containment Testing Report Form I hereby certify that the secondary containment was tested in accordance with california code of regulations, title 23, division 3, chapter 16,. The secondary containment testing report form is to be used to report the results of secondary containment test that must be performed at. Secondary containment testing report form. On and after 10/1/2020 this form must be used to. Secondary Containment Testing Report Form.
From www.templateroller.com
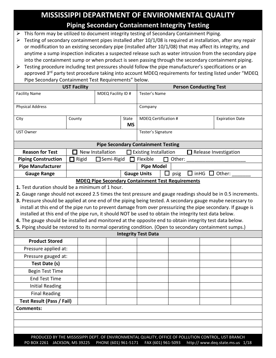
Mississippi Piping Secondary Containment Integrity Testing Form Fill Secondary Containment Testing Report Form On and after 10/1/2020 this form must be used to document. Testing contractors are encouraged to use this form as a supplement to the state‐required form as a way to standardize reporting of testing. The secondary containment testing report form is to be used to report the results of secondary containment test that must be performed at. Underground storage tank. Secondary Containment Testing Report Form.
From www.templateroller.com
DNR Form 5421381 Fill Out, Sign Online and Download Fillable PDF Secondary Containment Testing Report Form This form is intended for use by contractors performing periodic testing of ust secondary containment systems. The secondary containment testing report form is to be used to report the results of secondary containment test that must be performed at. Underground storage tank secondary containment testing report form. Testing contractors are encouraged to use this form as a supplement to the. Secondary Containment Testing Report Form.
From dokumen.tips
(PDF) DER17 [Draft] Guidelines for Inspecting and Certifying Secondary Containment Testing Report Form The secondary containment testing report form is to be used to report the results of secondary containment test that must be performed at. On and after 10/1/2020 this form must be used to document. I hereby certify that the secondary containment was tested in accordance with california code of regulations, title 23, division 3, chapter 16,. Testing contractors are encouraged. Secondary Containment Testing Report Form.
From www.templateroller.com
DNR Form 5420153 Fill Out, Sign Online and Download Fillable PDF Secondary Containment Testing Report Form Testing contractors are encouraged to use this form as a supplement to the state‐required form as a way to standardize reporting of testing. This form, or the standard form develped by the state water resources control board (swrcb), must. Secondary containment testing report form. This form is intended for use by contractors performing periodic testing of ust secondary containment systems.. Secondary Containment Testing Report Form.
From www.dochub.com
particle inspection report Fill out & sign online DocHub Secondary Containment Testing Report Form Secondary containment testing report form. I hereby certify that the secondary containment was tested in accordance with california code of regulations, title 23, division 3, chapter 16,. Testing contractors are encouraged to use this form as a supplement to the state‐required form as a way to standardize reporting of testing. On and after 10/1/2020 this form must be used to. Secondary Containment Testing Report Form.
From www.templateroller.com
DNR Form 5420153 Fill Out, Sign Online and Download Fillable PDF Secondary Containment Testing Report Form Underground storage tank secondary containment testing report form. Secondary containment testing report form. On and after 10/1/2020 this form must be used to document. The secondary containment testing report form is to be used to report the results of secondary containment test that must be performed at. This form is intended for use by contractors performing periodic testing of ust. Secondary Containment Testing Report Form.
From www.signnow.com
Underground Storage Tank Secondary Containment Testing Report Form Secondary Containment Testing Report Form The secondary containment testing report form is to be used to report the results of secondary containment test that must be performed at. This form is intended for use by contractors performing periodic testing of ust secondary containment systems. On and after 10/1/2020 this form must be used to document. Underground storage tank secondary containment testing report form. Secondary containment. Secondary Containment Testing Report Form.
From www.pdffiller.com
Fillable Online docs bakersfieldcity Secondary Containment Testing Secondary Containment Testing Report Form Underground storage tank secondary containment testing report form. I hereby certify that the secondary containment was tested in accordance with california code of regulations, title 23, division 3, chapter 16,. Testing contractors are encouraged to use this form as a supplement to the state‐required form as a way to standardize reporting of testing. On and after 10/1/2020 this form must. Secondary Containment Testing Report Form.
From dokumen.tips
(PDF) SECONDARY CONTAINMENT TESTING PROCEDURES · SECONDARY CONTAINMENT Secondary Containment Testing Report Form I hereby certify that the secondary containment was tested in accordance with california code of regulations, title 23, division 3, chapter 16,. This form, or the standard form develped by the state water resources control board (swrcb), must. This form is intended for use by contractors performing periodic testing of ust secondary containment systems. Testing contractors are encouraged to use. Secondary Containment Testing Report Form.
From studylib.net
Secondary Containment Post Consultation draft 2011.06.23 Secondary Containment Testing Report Form This form is intended for use by contractors performing periodic testing of ust secondary containment systems. Secondary containment testing report form. The secondary containment testing report form is to be used to report the results of secondary containment test that must be performed at. This form, or the standard form develped by the state water resources control board (swrcb), must.. Secondary Containment Testing Report Form.
From www.templateroller.com
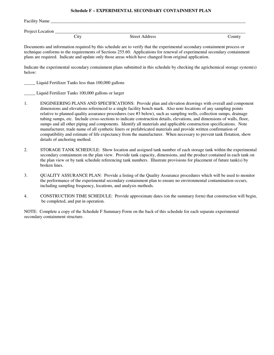
Illinois Experimental Secondary Containment Plan Fill Out, Sign Secondary Containment Testing Report Form Underground storage tank secondary containment testing report form. This form, or the standard form develped by the state water resources control board (swrcb), must. This form is intended for use by contractors performing periodic testing of ust secondary containment systems. The secondary containment testing report form is to be used to report the results of secondary containment test that must. Secondary Containment Testing Report Form.
From www.templateroller.com
DNR Form 5420153 Fill Out, Sign Online and Download Fillable PDF Secondary Containment Testing Report Form The secondary containment testing report form is to be used to report the results of secondary containment test that must be performed at. On and after 10/1/2020 this form must be used to document. Underground storage tank secondary containment testing report form. Testing contractors are encouraged to use this form as a supplement to the state‐required form as a way. Secondary Containment Testing Report Form.
From www.templateroller.com
DNR Form 5420153 Fill Out, Sign Online and Download Fillable PDF Secondary Containment Testing Report Form Testing contractors are encouraged to use this form as a supplement to the state‐required form as a way to standardize reporting of testing. On and after 10/1/2020 this form must be used to document. Underground storage tank secondary containment testing report form. Secondary containment testing report form. This form, or the standard form develped by the state water resources control. Secondary Containment Testing Report Form.
From www.pdffiller.com
Fillable Online Secondary Containment Testing Report Form West Secondary Containment Testing Report Form The secondary containment testing report form is to be used to report the results of secondary containment test that must be performed at. On and after 10/1/2020 this form must be used to document. This form is intended for use by contractors performing periodic testing of ust secondary containment systems. This form, or the standard form develped by the state. Secondary Containment Testing Report Form.
From www.templateroller.com
DNR Form 5420153 Fill Out, Sign Online and Download Fillable PDF Secondary Containment Testing Report Form Secondary containment testing report form. This form is intended for use by contractors performing periodic testing of ust secondary containment systems. The secondary containment testing report form is to be used to report the results of secondary containment test that must be performed at. On and after 10/1/2020 this form must be used to document. This form, or the standard. Secondary Containment Testing Report Form.
From www.pdffiller.com
Fillable Online docs bakersfieldcity Secondary Containment 'Testing Secondary Containment Testing Report Form The secondary containment testing report form is to be used to report the results of secondary containment test that must be performed at. Testing contractors are encouraged to use this form as a supplement to the state‐required form as a way to standardize reporting of testing. On and after 10/1/2020 this form must be used to document. This form, or. Secondary Containment Testing Report Form.
From dokumen.tips
(PDF) Testing Procedure for Secondary Containment Tanks · Testing Secondary Containment Testing Report Form This form, or the standard form develped by the state water resources control board (swrcb), must. I hereby certify that the secondary containment was tested in accordance with california code of regulations, title 23, division 3, chapter 16,. Underground storage tank secondary containment testing report form. The secondary containment testing report form is to be used to report the results. Secondary Containment Testing Report Form.
From www.newpig.com
Secondary Containment Systems & Regulations Expert Advice Secondary Containment Testing Report Form Testing contractors are encouraged to use this form as a supplement to the state‐required form as a way to standardize reporting of testing. This form is intended for use by contractors performing periodic testing of ust secondary containment systems. This form, or the standard form develped by the state water resources control board (swrcb), must. On and after 10/1/2020 this. Secondary Containment Testing Report Form.
From www.pdffiller.com
SECONDARY CONTAINMENT TESTING REPORT Doc Template pdfFiller Secondary Containment Testing Report Form This form, or the standard form develped by the state water resources control board (swrcb), must. The secondary containment testing report form is to be used to report the results of secondary containment test that must be performed at. This form is intended for use by contractors performing periodic testing of ust secondary containment systems. Underground storage tank secondary containment. Secondary Containment Testing Report Form.
From www.templateroller.com
Illinois Experimental Secondary Containment Plan Fill Out, Sign Secondary Containment Testing Report Form This form is intended for use by contractors performing periodic testing of ust secondary containment systems. This form, or the standard form develped by the state water resources control board (swrcb), must. The secondary containment testing report form is to be used to report the results of secondary containment test that must be performed at. Testing contractors are encouraged to. Secondary Containment Testing Report Form.
From template.fromgrandma.best
Secondary Containment Testing Report Form Pdf Free Download With Secondary Containment Testing Report Form I hereby certify that the secondary containment was tested in accordance with california code of regulations, title 23, division 3, chapter 16,. This form, or the standard form develped by the state water resources control board (swrcb), must. Underground storage tank secondary containment testing report form. On and after 10/1/2020 this form must be used to document. Testing contractors are. Secondary Containment Testing Report Form.