Parent Child Exclusion California . If you are 55 or older, and selling your principal residence to your child, your child can benefit by transferring your taxable value to them under the. An eligible “grandchild” for purposes of. Under proposition 19, if i inherit my parent's family home and move into it, establishing it as my principal residence, must i live continually in the. Generally, the prop 58/193 exclusion allows transfers of principal residences and $1,000,000 of other real property to occur between.
from www.jmrlanduse.com
Generally, the prop 58/193 exclusion allows transfers of principal residences and $1,000,000 of other real property to occur between. An eligible “grandchild” for purposes of. If you are 55 or older, and selling your principal residence to your child, your child can benefit by transferring your taxable value to them under the. Under proposition 19, if i inherit my parent's family home and move into it, establishing it as my principal residence, must i live continually in the.
Proposition 19 Parent To Child Exclusion JMR
Parent Child Exclusion California Generally, the prop 58/193 exclusion allows transfers of principal residences and $1,000,000 of other real property to occur between. Under proposition 19, if i inherit my parent's family home and move into it, establishing it as my principal residence, must i live continually in the. If you are 55 or older, and selling your principal residence to your child, your child can benefit by transferring your taxable value to them under the. Generally, the prop 58/193 exclusion allows transfers of principal residences and $1,000,000 of other real property to occur between. An eligible “grandchild” for purposes of.
From www.templateroller.com
Form BOE62R Fill Out, Sign Online and Download Fillable PDF Parent Child Exclusion California Generally, the prop 58/193 exclusion allows transfers of principal residences and $1,000,000 of other real property to occur between. If you are 55 or older, and selling your principal residence to your child, your child can benefit by transferring your taxable value to them under the. Under proposition 19, if i inherit my parent's family home and move into it,. Parent Child Exclusion California.
From www.templateroller.com
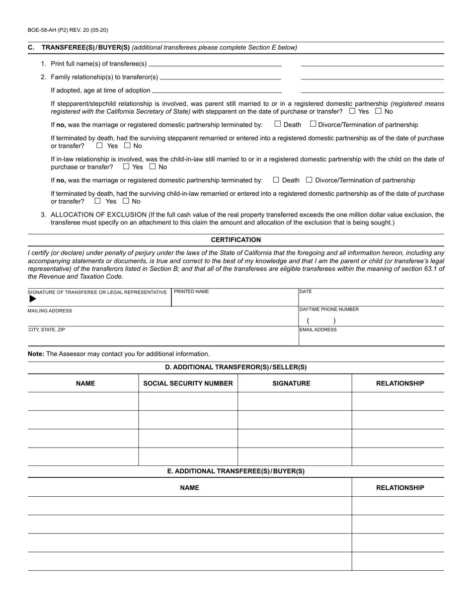
Form BOE58AH Fill Out, Sign Online and Download Printable PDF Parent Child Exclusion California Generally, the prop 58/193 exclusion allows transfers of principal residences and $1,000,000 of other real property to occur between. If you are 55 or older, and selling your principal residence to your child, your child can benefit by transferring your taxable value to them under the. An eligible “grandchild” for purposes of. Under proposition 19, if i inherit my parent's. Parent Child Exclusion California.
From www.templateroller.com
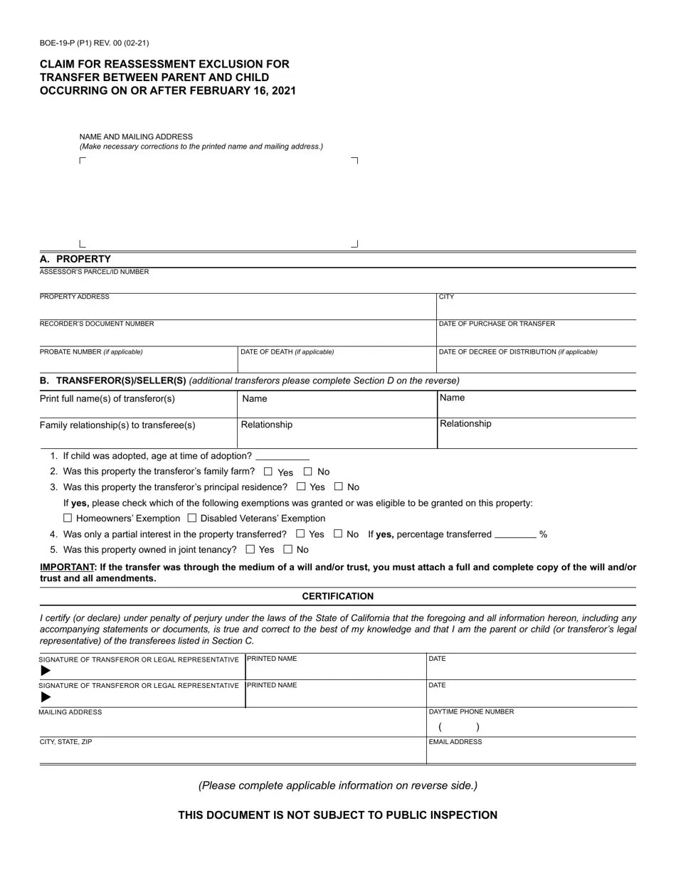
Form BOE19P Fill Out, Sign Online and Download Printable PDF Parent Child Exclusion California Under proposition 19, if i inherit my parent's family home and move into it, establishing it as my principal residence, must i live continually in the. An eligible “grandchild” for purposes of. Generally, the prop 58/193 exclusion allows transfers of principal residences and $1,000,000 of other real property to occur between. If you are 55 or older, and selling your. Parent Child Exclusion California.
From www.paramountpropertytaxappeal.com
ParentChild Exclusion EBook Parent Child Exclusion California Under proposition 19, if i inherit my parent's family home and move into it, establishing it as my principal residence, must i live continually in the. An eligible “grandchild” for purposes of. If you are 55 or older, and selling your principal residence to your child, your child can benefit by transferring your taxable value to them under the. Generally,. Parent Child Exclusion California.
From www.youtube.com
California Parent to Child Exclusion Form Instructions YouTube Parent Child Exclusion California Under proposition 19, if i inherit my parent's family home and move into it, establishing it as my principal residence, must i live continually in the. An eligible “grandchild” for purposes of. If you are 55 or older, and selling your principal residence to your child, your child can benefit by transferring your taxable value to them under the. Generally,. Parent Child Exclusion California.
From patch.com
Free Guide for Walnut Creek Neighbors Prop. 19 Parent/Child Exclusion Parent Child Exclusion California An eligible “grandchild” for purposes of. If you are 55 or older, and selling your principal residence to your child, your child can benefit by transferring your taxable value to them under the. Under proposition 19, if i inherit my parent's family home and move into it, establishing it as my principal residence, must i live continually in the. Generally,. Parent Child Exclusion California.
From www.templateroller.com
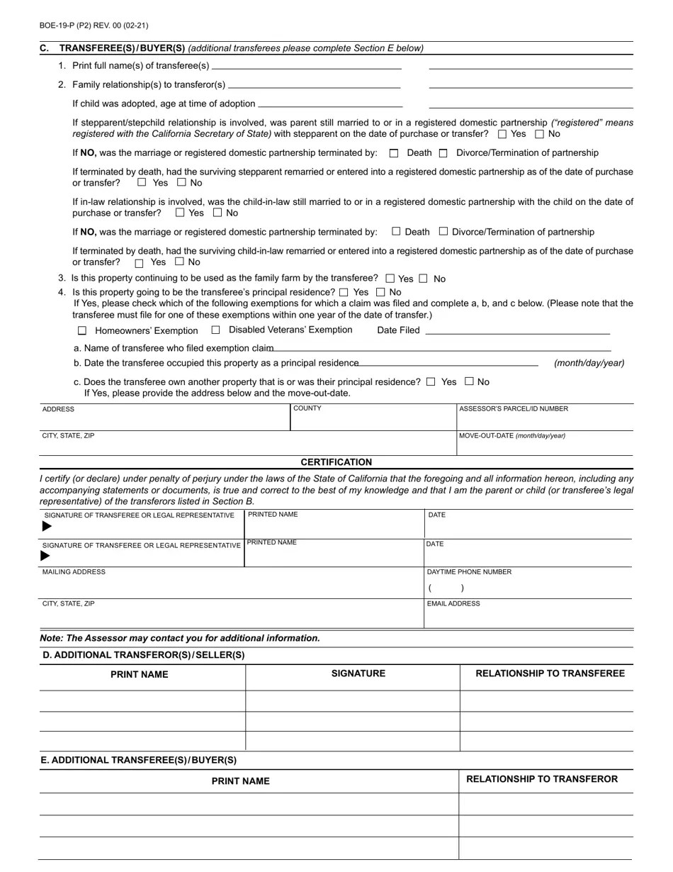
Form BOE19P Fill Out, Sign Online and Download Fillable PDF Parent Child Exclusion California Under proposition 19, if i inherit my parent's family home and move into it, establishing it as my principal residence, must i live continually in the. Generally, the prop 58/193 exclusion allows transfers of principal residences and $1,000,000 of other real property to occur between. An eligible “grandchild” for purposes of. If you are 55 or older, and selling your. Parent Child Exclusion California.
From www.formsbank.com
Fillable Family Child Care Home Addendum To Notification Of Parents Parent Child Exclusion California An eligible “grandchild” for purposes of. If you are 55 or older, and selling your principal residence to your child, your child can benefit by transferring your taxable value to them under the. Under proposition 19, if i inherit my parent's family home and move into it, establishing it as my principal residence, must i live continually in the. Generally,. Parent Child Exclusion California.
From www.templateroller.com
Form LIC995D Fill Out, Sign Online and Download Printable PDF Parent Child Exclusion California Generally, the prop 58/193 exclusion allows transfers of principal residences and $1,000,000 of other real property to occur between. Under proposition 19, if i inherit my parent's family home and move into it, establishing it as my principal residence, must i live continually in the. An eligible “grandchild” for purposes of. If you are 55 or older, and selling your. Parent Child Exclusion California.
From propertytaxnews.org
CA Prop 58 Parent to Child Exclusion From Current Market Reassessment Parent Child Exclusion California If you are 55 or older, and selling your principal residence to your child, your child can benefit by transferring your taxable value to them under the. An eligible “grandchild” for purposes of. Generally, the prop 58/193 exclusion allows transfers of principal residences and $1,000,000 of other real property to occur between. Under proposition 19, if i inherit my parent's. Parent Child Exclusion California.
From www.templateroller.com
Form BOE58AH Fill Out, Sign Online and Download Fillable PDF Parent Child Exclusion California Under proposition 19, if i inherit my parent's family home and move into it, establishing it as my principal residence, must i live continually in the. Generally, the prop 58/193 exclusion allows transfers of principal residences and $1,000,000 of other real property to occur between. If you are 55 or older, and selling your principal residence to your child, your. Parent Child Exclusion California.
From propertytaxnews.org
Prop 58 parent to child exclusion California Property Tax Parent Child Exclusion California Generally, the prop 58/193 exclusion allows transfers of principal residences and $1,000,000 of other real property to occur between. Under proposition 19, if i inherit my parent's family home and move into it, establishing it as my principal residence, must i live continually in the. An eligible “grandchild” for purposes of. If you are 55 or older, and selling your. Parent Child Exclusion California.
From klaapeieb.blob.core.windows.net
Parent To Child Exclusion Prop 19 at Vincent Nelson blog Parent Child Exclusion California If you are 55 or older, and selling your principal residence to your child, your child can benefit by transferring your taxable value to them under the. Under proposition 19, if i inherit my parent's family home and move into it, establishing it as my principal residence, must i live continually in the. An eligible “grandchild” for purposes of. Generally,. Parent Child Exclusion California.
From www.templateroller.com
Form BOE19P Fill Out, Sign Online and Download Fillable PDF Parent Child Exclusion California Generally, the prop 58/193 exclusion allows transfers of principal residences and $1,000,000 of other real property to occur between. Under proposition 19, if i inherit my parent's family home and move into it, establishing it as my principal residence, must i live continually in the. If you are 55 or older, and selling your principal residence to your child, your. Parent Child Exclusion California.
From www.claraduranreed.com
Prop. 19 Calculating The Parent Child Exclusion, i.e, The Death Tax Parent Child Exclusion California If you are 55 or older, and selling your principal residence to your child, your child can benefit by transferring your taxable value to them under the. An eligible “grandchild” for purposes of. Generally, the prop 58/193 exclusion allows transfers of principal residences and $1,000,000 of other real property to occur between. Under proposition 19, if i inherit my parent's. Parent Child Exclusion California.
From www.templateroller.com
Form BOE19P Download Fillable PDF or Fill Online Claim for Parent Child Exclusion California If you are 55 or older, and selling your principal residence to your child, your child can benefit by transferring your taxable value to them under the. An eligible “grandchild” for purposes of. Under proposition 19, if i inherit my parent's family home and move into it, establishing it as my principal residence, must i live continually in the. Generally,. Parent Child Exclusion California.
From www.templateroller.com
Form BOE19P Fill Out, Sign Online and Download Fillable PDF Parent Child Exclusion California An eligible “grandchild” for purposes of. If you are 55 or older, and selling your principal residence to your child, your child can benefit by transferring your taxable value to them under the. Generally, the prop 58/193 exclusion allows transfers of principal residences and $1,000,000 of other real property to occur between. Under proposition 19, if i inherit my parent's. Parent Child Exclusion California.
From klaapeieb.blob.core.windows.net
Parent To Child Exclusion Prop 19 at Vincent Nelson blog Parent Child Exclusion California An eligible “grandchild” for purposes of. Under proposition 19, if i inherit my parent's family home and move into it, establishing it as my principal residence, must i live continually in the. Generally, the prop 58/193 exclusion allows transfers of principal residences and $1,000,000 of other real property to occur between. If you are 55 or older, and selling your. Parent Child Exclusion California.
From propertytaxnews.org
Exclusion From Reassessment California Property Tax NewsCalifornia Parent Child Exclusion California Under proposition 19, if i inherit my parent's family home and move into it, establishing it as my principal residence, must i live continually in the. An eligible “grandchild” for purposes of. If you are 55 or older, and selling your principal residence to your child, your child can benefit by transferring your taxable value to them under the. Generally,. Parent Child Exclusion California.
From www.templateroller.com
Download Instructions for Form BOE58AH Claim for Reassessment Parent Child Exclusion California An eligible “grandchild” for purposes of. Generally, the prop 58/193 exclusion allows transfers of principal residences and $1,000,000 of other real property to occur between. If you are 55 or older, and selling your principal residence to your child, your child can benefit by transferring your taxable value to them under the. Under proposition 19, if i inherit my parent's. Parent Child Exclusion California.
From www.pdffiller.com
Fillable Online Sacramento County Parent Child Exclusion Form Fill Parent Child Exclusion California An eligible “grandchild” for purposes of. If you are 55 or older, and selling your principal residence to your child, your child can benefit by transferring your taxable value to them under the. Under proposition 19, if i inherit my parent's family home and move into it, establishing it as my principal residence, must i live continually in the. Generally,. Parent Child Exclusion California.
From www.sierracounty.ca.gov
Parent Child / Grandparent Grandchild Exclusion Sierra County, CA Parent Child Exclusion California If you are 55 or older, and selling your principal residence to your child, your child can benefit by transferring your taxable value to them under the. An eligible “grandchild” for purposes of. Generally, the prop 58/193 exclusion allows transfers of principal residences and $1,000,000 of other real property to occur between. Under proposition 19, if i inherit my parent's. Parent Child Exclusion California.
From www.templateroller.com
Form BOE58AH Fill Out, Sign Online and Download Printable PDF Parent Child Exclusion California An eligible “grandchild” for purposes of. Generally, the prop 58/193 exclusion allows transfers of principal residences and $1,000,000 of other real property to occur between. If you are 55 or older, and selling your principal residence to your child, your child can benefit by transferring your taxable value to them under the. Under proposition 19, if i inherit my parent's. Parent Child Exclusion California.
From propertytaxnews.org
CA Prop 19 ParentChild Exclusion California Property Tax Parent Child Exclusion California An eligible “grandchild” for purposes of. Under proposition 19, if i inherit my parent's family home and move into it, establishing it as my principal residence, must i live continually in the. Generally, the prop 58/193 exclusion allows transfers of principal residences and $1,000,000 of other real property to occur between. If you are 55 or older, and selling your. Parent Child Exclusion California.
From propertytaxnews.org
Prop 58 and its' ParentChild Exclusion California Property Tax Parent Child Exclusion California Generally, the prop 58/193 exclusion allows transfers of principal residences and $1,000,000 of other real property to occur between. Under proposition 19, if i inherit my parent's family home and move into it, establishing it as my principal residence, must i live continually in the. If you are 55 or older, and selling your principal residence to your child, your. Parent Child Exclusion California.
From propertytaxnews.org
Trust loan & Prop 19 parentchild exclusion California Property Tax Parent Child Exclusion California An eligible “grandchild” for purposes of. Generally, the prop 58/193 exclusion allows transfers of principal residences and $1,000,000 of other real property to occur between. Under proposition 19, if i inherit my parent's family home and move into it, establishing it as my principal residence, must i live continually in the. If you are 55 or older, and selling your. Parent Child Exclusion California.
From propertytaxnews.org
Prop 19 ParenttoChild Exclusion California Property Tax Parent Child Exclusion California If you are 55 or older, and selling your principal residence to your child, your child can benefit by transferring your taxable value to them under the. Under proposition 19, if i inherit my parent's family home and move into it, establishing it as my principal residence, must i live continually in the. Generally, the prop 58/193 exclusion allows transfers. Parent Child Exclusion California.
From klaapeieb.blob.core.windows.net
Parent To Child Exclusion Prop 19 at Vincent Nelson blog Parent Child Exclusion California An eligible “grandchild” for purposes of. Under proposition 19, if i inherit my parent's family home and move into it, establishing it as my principal residence, must i live continually in the. If you are 55 or older, and selling your principal residence to your child, your child can benefit by transferring your taxable value to them under the. Generally,. Parent Child Exclusion California.
From www.templateroller.com
Form BOE19P Fill Out, Sign Online and Download Printable PDF Parent Child Exclusion California An eligible “grandchild” for purposes of. If you are 55 or older, and selling your principal residence to your child, your child can benefit by transferring your taxable value to them under the. Generally, the prop 58/193 exclusion allows transfers of principal residences and $1,000,000 of other real property to occur between. Under proposition 19, if i inherit my parent's. Parent Child Exclusion California.
From hcsequity.com
Private Real Estate Loans Trust & Estate Lender California Parent Child Exclusion California Generally, the prop 58/193 exclusion allows transfers of principal residences and $1,000,000 of other real property to occur between. If you are 55 or older, and selling your principal residence to your child, your child can benefit by transferring your taxable value to them under the. An eligible “grandchild” for purposes of. Under proposition 19, if i inherit my parent's. Parent Child Exclusion California.
From www.jmrlanduse.com
Proposition 19 Parent To Child Exclusion JMR Parent Child Exclusion California Under proposition 19, if i inherit my parent's family home and move into it, establishing it as my principal residence, must i live continually in the. An eligible “grandchild” for purposes of. If you are 55 or older, and selling your principal residence to your child, your child can benefit by transferring your taxable value to them under the. Generally,. Parent Child Exclusion California.
From calestateplanning.blogspot.com
Estate Planning in California ParentChild Exclusion and Rental Property Parent Child Exclusion California Generally, the prop 58/193 exclusion allows transfers of principal residences and $1,000,000 of other real property to occur between. Under proposition 19, if i inherit my parent's family home and move into it, establishing it as my principal residence, must i live continually in the. If you are 55 or older, and selling your principal residence to your child, your. Parent Child Exclusion California.
From www.templateroller.com
Form BOE58AH Fill Out, Sign Online and Download Fillable PDF Parent Child Exclusion California Under proposition 19, if i inherit my parent's family home and move into it, establishing it as my principal residence, must i live continually in the. Generally, the prop 58/193 exclusion allows transfers of principal residences and $1,000,000 of other real property to occur between. An eligible “grandchild” for purposes of. If you are 55 or older, and selling your. Parent Child Exclusion California.
From cloanc.com
Parent to Child Exclusion Archives Commercial Loan Corp, Provider of Parent Child Exclusion California An eligible “grandchild” for purposes of. If you are 55 or older, and selling your principal residence to your child, your child can benefit by transferring your taxable value to them under the. Generally, the prop 58/193 exclusion allows transfers of principal residences and $1,000,000 of other real property to occur between. Under proposition 19, if i inherit my parent's. Parent Child Exclusion California.
From www.pdffiller.com
Fillable Online slocounty ca Parent to Child Exclusion Fax Email Print Parent Child Exclusion California Under proposition 19, if i inherit my parent's family home and move into it, establishing it as my principal residence, must i live continually in the. If you are 55 or older, and selling your principal residence to your child, your child can benefit by transferring your taxable value to them under the. Generally, the prop 58/193 exclusion allows transfers. Parent Child Exclusion California.