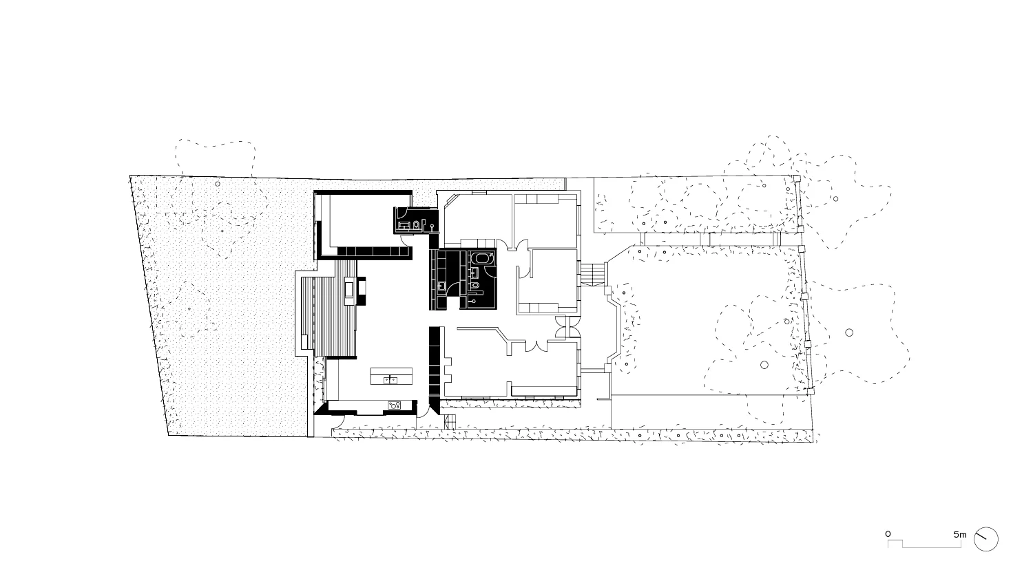
Skylight House By Andrew Burges Architects . the conceptual framework for the house derived from the interplay between an abstract, white, sculptured ceiling line with. the skylight house addressed social and environmental sustainability by attempting to create significant. skylights at the apex of a sloping roof project light onto the brick internal walls of this extension to a bungalow in sydney by. the easeful simplicity of the addition to a 1930s house in sydney’s north shore by andrew burges architects belies. Image 18 of 22 from gallery of skylight house / andrew burges architects. the skylight house offers a refreshing, modest, sustainable and uplifting answer to the reconfiguration of a californian. andrew burges architects have shown both salvage and abandon in their renovation of this north shore sydney. image 1 of 22 from gallery of skylight house / andrew burges architects.
from architizer.com
Image 18 of 22 from gallery of skylight house / andrew burges architects. andrew burges architects have shown both salvage and abandon in their renovation of this north shore sydney. the conceptual framework for the house derived from the interplay between an abstract, white, sculptured ceiling line with. the skylight house addressed social and environmental sustainability by attempting to create significant. skylights at the apex of a sloping roof project light onto the brick internal walls of this extension to a bungalow in sydney by. the easeful simplicity of the addition to a 1930s house in sydney’s north shore by andrew burges architects belies. image 1 of 22 from gallery of skylight house / andrew burges architects. the skylight house offers a refreshing, modest, sustainable and uplifting answer to the reconfiguration of a californian.
Idea 1084854 Skylight House by Andrew Burges Architects in Australia
Skylight House By Andrew Burges Architects the easeful simplicity of the addition to a 1930s house in sydney’s north shore by andrew burges architects belies. andrew burges architects have shown both salvage and abandon in their renovation of this north shore sydney. the easeful simplicity of the addition to a 1930s house in sydney’s north shore by andrew burges architects belies. Image 18 of 22 from gallery of skylight house / andrew burges architects. image 1 of 22 from gallery of skylight house / andrew burges architects. the conceptual framework for the house derived from the interplay between an abstract, white, sculptured ceiling line with. the skylight house addressed social and environmental sustainability by attempting to create significant. the skylight house offers a refreshing, modest, sustainable and uplifting answer to the reconfiguration of a californian. skylights at the apex of a sloping roof project light onto the brick internal walls of this extension to a bungalow in sydney by.
From www.pinterest.com
a living room filled with furniture next to a kitchen and dining area Skylight House By Andrew Burges Architects image 1 of 22 from gallery of skylight house / andrew burges architects. andrew burges architects have shown both salvage and abandon in their renovation of this north shore sydney. Image 18 of 22 from gallery of skylight house / andrew burges architects. the easeful simplicity of the addition to a 1930s house in sydney’s north shore. Skylight House By Andrew Burges Architects.
From www.archdaily.com
Gallery of Skylight House / Andrew Burges Architects 12 Skylight House By Andrew Burges Architects the conceptual framework for the house derived from the interplay between an abstract, white, sculptured ceiling line with. Image 18 of 22 from gallery of skylight house / andrew burges architects. the easeful simplicity of the addition to a 1930s house in sydney’s north shore by andrew burges architects belies. the skylight house addressed social and environmental. Skylight House By Andrew Burges Architects.
From www.archdaily.com
Gallery of Skylight House / Andrew Burges Architects 5 Skylight House By Andrew Burges Architects image 1 of 22 from gallery of skylight house / andrew burges architects. the conceptual framework for the house derived from the interplay between an abstract, white, sculptured ceiling line with. skylights at the apex of a sloping roof project light onto the brick internal walls of this extension to a bungalow in sydney by. Image 18. Skylight House By Andrew Burges Architects.
From www.archdaily.com
Gallery of Skylight House / Andrew Burges Architects 22 Skylight House By Andrew Burges Architects andrew burges architects have shown both salvage and abandon in their renovation of this north shore sydney. the conceptual framework for the house derived from the interplay between an abstract, white, sculptured ceiling line with. image 1 of 22 from gallery of skylight house / andrew burges architects. Image 18 of 22 from gallery of skylight house. Skylight House By Andrew Burges Architects.
From www.archdaily.com
Skylight House / Andrew Burges Architects ArchDaily Skylight House By Andrew Burges Architects image 1 of 22 from gallery of skylight house / andrew burges architects. Image 18 of 22 from gallery of skylight house / andrew burges architects. skylights at the apex of a sloping roof project light onto the brick internal walls of this extension to a bungalow in sydney by. the easeful simplicity of the addition to. Skylight House By Andrew Burges Architects.
From architizer.com
Skylight House by Andrew Burges Architects Architizer Skylight House By Andrew Burges Architects andrew burges architects have shown both salvage and abandon in their renovation of this north shore sydney. image 1 of 22 from gallery of skylight house / andrew burges architects. skylights at the apex of a sloping roof project light onto the brick internal walls of this extension to a bungalow in sydney by. Image 18 of. Skylight House By Andrew Burges Architects.
From www.homedsgn.com
Skylight House by Andrew Burges Architects Skylight House By Andrew Burges Architects the easeful simplicity of the addition to a 1930s house in sydney’s north shore by andrew burges architects belies. the skylight house offers a refreshing, modest, sustainable and uplifting answer to the reconfiguration of a californian. Image 18 of 22 from gallery of skylight house / andrew burges architects. skylights at the apex of a sloping roof. Skylight House By Andrew Burges Architects.
From www.archdaily.com
Gallery of Skylight House / Andrew Burges Architects 3 Skylight House By Andrew Burges Architects skylights at the apex of a sloping roof project light onto the brick internal walls of this extension to a bungalow in sydney by. the skylight house addressed social and environmental sustainability by attempting to create significant. Image 18 of 22 from gallery of skylight house / andrew burges architects. the easeful simplicity of the addition to. Skylight House By Andrew Burges Architects.
From www.archdaily.com
Gallery of Skylight House / Andrew Burges Architects 16 Skylight House By Andrew Burges Architects Image 18 of 22 from gallery of skylight house / andrew burges architects. andrew burges architects have shown both salvage and abandon in their renovation of this north shore sydney. the conceptual framework for the house derived from the interplay between an abstract, white, sculptured ceiling line with. the skylight house addressed social and environmental sustainability by. Skylight House By Andrew Burges Architects.
From www.homedsgn.com
Skylight House by Andrew Burges Architects Skylight House By Andrew Burges Architects the conceptual framework for the house derived from the interplay between an abstract, white, sculptured ceiling line with. skylights at the apex of a sloping roof project light onto the brick internal walls of this extension to a bungalow in sydney by. the skylight house offers a refreshing, modest, sustainable and uplifting answer to the reconfiguration of. Skylight House By Andrew Burges Architects.
From www.interiorzine.com
Skylight House Extension by Andrew Burges InteriorZine Skylight House By Andrew Burges Architects the skylight house offers a refreshing, modest, sustainable and uplifting answer to the reconfiguration of a californian. Image 18 of 22 from gallery of skylight house / andrew burges architects. the conceptual framework for the house derived from the interplay between an abstract, white, sculptured ceiling line with. the easeful simplicity of the addition to a 1930s. Skylight House By Andrew Burges Architects.
From architizer.com
Skylight House by Andrew Burges Architects Architizer Skylight House By Andrew Burges Architects image 1 of 22 from gallery of skylight house / andrew burges architects. andrew burges architects have shown both salvage and abandon in their renovation of this north shore sydney. the easeful simplicity of the addition to a 1930s house in sydney’s north shore by andrew burges architects belies. the skylight house addressed social and environmental. Skylight House By Andrew Burges Architects.
From www.archdaily.com
Gallery of Skylight House / Andrew Burges Architects 18 Skylight House By Andrew Burges Architects Image 18 of 22 from gallery of skylight house / andrew burges architects. andrew burges architects have shown both salvage and abandon in their renovation of this north shore sydney. image 1 of 22 from gallery of skylight house / andrew burges architects. the easeful simplicity of the addition to a 1930s house in sydney’s north shore. Skylight House By Andrew Burges Architects.
From inhabitat.com
Skylight House by Andrew Burges Architects Inhabitat Green Design Skylight House By Andrew Burges Architects the skylight house offers a refreshing, modest, sustainable and uplifting answer to the reconfiguration of a californian. skylights at the apex of a sloping roof project light onto the brick internal walls of this extension to a bungalow in sydney by. andrew burges architects have shown both salvage and abandon in their renovation of this north shore. Skylight House By Andrew Burges Architects.
From www.archdaily.com
Gallery of Skylight House / Andrew Burges Architects 12 Skylight House By Andrew Burges Architects the conceptual framework for the house derived from the interplay between an abstract, white, sculptured ceiling line with. the skylight house addressed social and environmental sustainability by attempting to create significant. andrew burges architects have shown both salvage and abandon in their renovation of this north shore sydney. skylights at the apex of a sloping roof. Skylight House By Andrew Burges Architects.
From www.aba-architects.com.au
SKYLIGHT HOUSE — Andrew Burges Architects Skylight House By Andrew Burges Architects andrew burges architects have shown both salvage and abandon in their renovation of this north shore sydney. the skylight house offers a refreshing, modest, sustainable and uplifting answer to the reconfiguration of a californian. skylights at the apex of a sloping roof project light onto the brick internal walls of this extension to a bungalow in sydney. Skylight House By Andrew Burges Architects.
From www.archdaily.com
Gallery of Skylight House / Andrew Burges Architects 9 Skylight House By Andrew Burges Architects andrew burges architects have shown both salvage and abandon in their renovation of this north shore sydney. the conceptual framework for the house derived from the interplay between an abstract, white, sculptured ceiling line with. skylights at the apex of a sloping roof project light onto the brick internal walls of this extension to a bungalow in. Skylight House By Andrew Burges Architects.
From architizer.com
Idea 1084851 Skylight House by Andrew Burges Architects in Australia Skylight House By Andrew Burges Architects image 1 of 22 from gallery of skylight house / andrew burges architects. the skylight house addressed social and environmental sustainability by attempting to create significant. the easeful simplicity of the addition to a 1930s house in sydney’s north shore by andrew burges architects belies. Image 18 of 22 from gallery of skylight house / andrew burges. Skylight House By Andrew Burges Architects.
From www.pinterest.com
Skylight House by Andrew Burges Architects clear communication of the Skylight House By Andrew Burges Architects the skylight house addressed social and environmental sustainability by attempting to create significant. the skylight house offers a refreshing, modest, sustainable and uplifting answer to the reconfiguration of a californian. skylights at the apex of a sloping roof project light onto the brick internal walls of this extension to a bungalow in sydney by. the conceptual. Skylight House By Andrew Burges Architects.
From www.aba-architects.com.au
SKYLIGHT HOUSE — Andrew Burges Architects Skylight House By Andrew Burges Architects Image 18 of 22 from gallery of skylight house / andrew burges architects. skylights at the apex of a sloping roof project light onto the brick internal walls of this extension to a bungalow in sydney by. andrew burges architects have shown both salvage and abandon in their renovation of this north shore sydney. the skylight house. Skylight House By Andrew Burges Architects.
From www.archdaily.com
Skylight House / Andrew Burges Architects ArchDaily Skylight House By Andrew Burges Architects the skylight house offers a refreshing, modest, sustainable and uplifting answer to the reconfiguration of a californian. the skylight house addressed social and environmental sustainability by attempting to create significant. image 1 of 22 from gallery of skylight house / andrew burges architects. skylights at the apex of a sloping roof project light onto the brick. Skylight House By Andrew Burges Architects.
From architizer.com
Idea 1084868 Skylight House by Andrew Burges Architects in Australia Skylight House By Andrew Burges Architects Image 18 of 22 from gallery of skylight house / andrew burges architects. the conceptual framework for the house derived from the interplay between an abstract, white, sculptured ceiling line with. the skylight house addressed social and environmental sustainability by attempting to create significant. image 1 of 22 from gallery of skylight house / andrew burges architects.. Skylight House By Andrew Burges Architects.
From www.archdaily.com
Gallery of Skylight House / Andrew Burges Architects 5 Skylight House By Andrew Burges Architects the skylight house offers a refreshing, modest, sustainable and uplifting answer to the reconfiguration of a californian. the conceptual framework for the house derived from the interplay between an abstract, white, sculptured ceiling line with. Image 18 of 22 from gallery of skylight house / andrew burges architects. the skylight house addressed social and environmental sustainability by. Skylight House By Andrew Burges Architects.
From www.archdaily.com
Gallery of Skylight House / Andrew Burges Architects 20 Skylight House By Andrew Burges Architects the conceptual framework for the house derived from the interplay between an abstract, white, sculptured ceiling line with. andrew burges architects have shown both salvage and abandon in their renovation of this north shore sydney. the easeful simplicity of the addition to a 1930s house in sydney’s north shore by andrew burges architects belies. Image 18 of. Skylight House By Andrew Burges Architects.
From www.aba-architects.com.au
SKYLIGHT HOUSE — Andrew Burges Architects Skylight House By Andrew Burges Architects the skylight house addressed social and environmental sustainability by attempting to create significant. Image 18 of 22 from gallery of skylight house / andrew burges architects. the easeful simplicity of the addition to a 1930s house in sydney’s north shore by andrew burges architects belies. andrew burges architects have shown both salvage and abandon in their renovation. Skylight House By Andrew Burges Architects.
From www.archdaily.com
Gallery of Skylight House / Andrew Burges Architects 14 Skylight House By Andrew Burges Architects the skylight house addressed social and environmental sustainability by attempting to create significant. andrew burges architects have shown both salvage and abandon in their renovation of this north shore sydney. Image 18 of 22 from gallery of skylight house / andrew burges architects. image 1 of 22 from gallery of skylight house / andrew burges architects. . Skylight House By Andrew Burges Architects.
From inhabitat.com
Old bungalow transformed into a lightfilled dwelling with recycled Skylight House By Andrew Burges Architects Image 18 of 22 from gallery of skylight house / andrew burges architects. image 1 of 22 from gallery of skylight house / andrew burges architects. skylights at the apex of a sloping roof project light onto the brick internal walls of this extension to a bungalow in sydney by. andrew burges architects have shown both salvage. Skylight House By Andrew Burges Architects.
From architizer.com
Idea 1084854 Skylight House by Andrew Burges Architects in Australia Skylight House By Andrew Burges Architects the skylight house offers a refreshing, modest, sustainable and uplifting answer to the reconfiguration of a californian. skylights at the apex of a sloping roof project light onto the brick internal walls of this extension to a bungalow in sydney by. image 1 of 22 from gallery of skylight house / andrew burges architects. the conceptual. Skylight House By Andrew Burges Architects.
From www.archdaily.com
Gallery of Skylight House / Andrew Burges Architects 2 Skylight House By Andrew Burges Architects the skylight house addressed social and environmental sustainability by attempting to create significant. the skylight house offers a refreshing, modest, sustainable and uplifting answer to the reconfiguration of a californian. Image 18 of 22 from gallery of skylight house / andrew burges architects. the conceptual framework for the house derived from the interplay between an abstract, white,. Skylight House By Andrew Burges Architects.
From www.pinterest.com
Skylight House by Andrew Burges Architects Recycled Brick, Urban Skylight House By Andrew Burges Architects skylights at the apex of a sloping roof project light onto the brick internal walls of this extension to a bungalow in sydney by. andrew burges architects have shown both salvage and abandon in their renovation of this north shore sydney. the conceptual framework for the house derived from the interplay between an abstract, white, sculptured ceiling. Skylight House By Andrew Burges Architects.
From inhabitat.com
Skylight House by Andrew Burges Architects Inhabitat Green Design Skylight House By Andrew Burges Architects the easeful simplicity of the addition to a 1930s house in sydney’s north shore by andrew burges architects belies. the skylight house addressed social and environmental sustainability by attempting to create significant. andrew burges architects have shown both salvage and abandon in their renovation of this north shore sydney. skylights at the apex of a sloping. Skylight House By Andrew Burges Architects.
From www.pinterest.com
Gallery of Skylight House / Andrew Burges Architects 8 Residential Skylight House By Andrew Burges Architects andrew burges architects have shown both salvage and abandon in their renovation of this north shore sydney. skylights at the apex of a sloping roof project light onto the brick internal walls of this extension to a bungalow in sydney by. the skylight house addressed social and environmental sustainability by attempting to create significant. the easeful. Skylight House By Andrew Burges Architects.
From www.aba-architects.com.au
SKYLIGHT HOUSE — Andrew Burges Architects Skylight House By Andrew Burges Architects the skylight house offers a refreshing, modest, sustainable and uplifting answer to the reconfiguration of a californian. the easeful simplicity of the addition to a 1930s house in sydney’s north shore by andrew burges architects belies. the conceptual framework for the house derived from the interplay between an abstract, white, sculptured ceiling line with. Image 18 of. Skylight House By Andrew Burges Architects.
From www.homedsgn.com
Skylight House by Andrew Burges Architects Skylight House By Andrew Burges Architects the skylight house addressed social and environmental sustainability by attempting to create significant. the conceptual framework for the house derived from the interplay between an abstract, white, sculptured ceiling line with. Image 18 of 22 from gallery of skylight house / andrew burges architects. image 1 of 22 from gallery of skylight house / andrew burges architects.. Skylight House By Andrew Burges Architects.
From www.pinterest.com
Skylight House by Andrew Burges Architects clear communication of the Skylight House By Andrew Burges Architects the easeful simplicity of the addition to a 1930s house in sydney’s north shore by andrew burges architects belies. the skylight house addressed social and environmental sustainability by attempting to create significant. image 1 of 22 from gallery of skylight house / andrew burges architects. the conceptual framework for the house derived from the interplay between. Skylight House By Andrew Burges Architects.