How To Fix A Grinder Pump . In our guide, you’ll learn more about grinder pump maintenance: I finally got some time to diagnose it. How a grinder system works, how you know your grinder pump needs maintenance, ways to care for your grinder pump system, the most common grinder pump If the pump doesn’t start, you might need a new pump or a new float switch. Sometimes when i flip the breaker it clicks back on. In today's video, we walk you through some of the steps we take when we are performing a. Hook around the float switch and try to get the pump to start up. If you have a grinder pump at your house, its important to know what you can and cant flush. If your ejector pump has a float switch, try stretching out a coat hanger and lowering the hook side down into the tank. My grinder pump works on and off. A common fix to prevent blockages is to wash the pump periodically using a standard garden hose. If your pump is making a.
from www.pumpproducts.com
My grinder pump works on and off. A common fix to prevent blockages is to wash the pump periodically using a standard garden hose. I finally got some time to diagnose it. In our guide, you’ll learn more about grinder pump maintenance: If your pump is making a. If you have a grinder pump at your house, its important to know what you can and cant flush. Hook around the float switch and try to get the pump to start up. Sometimes when i flip the breaker it clicks back on. In today's video, we walk you through some of the steps we take when we are performing a. If your ejector pump has a float switch, try stretching out a coat hanger and lowering the hook side down into the tank.
Barnes SGVH Series grinder pump Diagram
How To Fix A Grinder Pump How a grinder system works, how you know your grinder pump needs maintenance, ways to care for your grinder pump system, the most common grinder pump If you have a grinder pump at your house, its important to know what you can and cant flush. Hook around the float switch and try to get the pump to start up. If your ejector pump has a float switch, try stretching out a coat hanger and lowering the hook side down into the tank. Sometimes when i flip the breaker it clicks back on. How a grinder system works, how you know your grinder pump needs maintenance, ways to care for your grinder pump system, the most common grinder pump In our guide, you’ll learn more about grinder pump maintenance: I finally got some time to diagnose it. If your pump is making a. A common fix to prevent blockages is to wash the pump periodically using a standard garden hose. In today's video, we walk you through some of the steps we take when we are performing a. My grinder pump works on and off. If the pump doesn’t start, you might need a new pump or a new float switch.
From manualzz.com
Installation Manual 2448Series Simplex Grinder Manualzz How To Fix A Grinder Pump I finally got some time to diagnose it. In today's video, we walk you through some of the steps we take when we are performing a. Sometimes when i flip the breaker it clicks back on. How a grinder system works, how you know your grinder pump needs maintenance, ways to care for your grinder pump system, the most common. How To Fix A Grinder Pump.
From www.youtube.com
Grinder Pumps Defined YouTube How To Fix A Grinder Pump If your pump is making a. If you have a grinder pump at your house, its important to know what you can and cant flush. In today's video, we walk you through some of the steps we take when we are performing a. Hook around the float switch and try to get the pump to start up. My grinder pump. How To Fix A Grinder Pump.
From misbaacaelin.blogspot.com
e/one grinder pump diagram MisbaaCaelin How To Fix A Grinder Pump In today's video, we walk you through some of the steps we take when we are performing a. If your pump is making a. Sometimes when i flip the breaker it clicks back on. I finally got some time to diagnose it. My grinder pump works on and off. Hook around the float switch and try to get the pump. How To Fix A Grinder Pump.
From www.repipeyourhouse.com
Three Common Grinder Pump problems Super Brothers Plumbing Heating & Air How To Fix A Grinder Pump If you have a grinder pump at your house, its important to know what you can and cant flush. If the pump doesn’t start, you might need a new pump or a new float switch. In our guide, you’ll learn more about grinder pump maintenance: A common fix to prevent blockages is to wash the pump periodically using a standard. How To Fix A Grinder Pump.
From www.youtube.com
Selecting a Grinder Pump YouTube How To Fix A Grinder Pump My grinder pump works on and off. In today's video, we walk you through some of the steps we take when we are performing a. In our guide, you’ll learn more about grinder pump maintenance: If you have a grinder pump at your house, its important to know what you can and cant flush. If the pump doesn’t start, you. How To Fix A Grinder Pump.
From usermanual.wiki
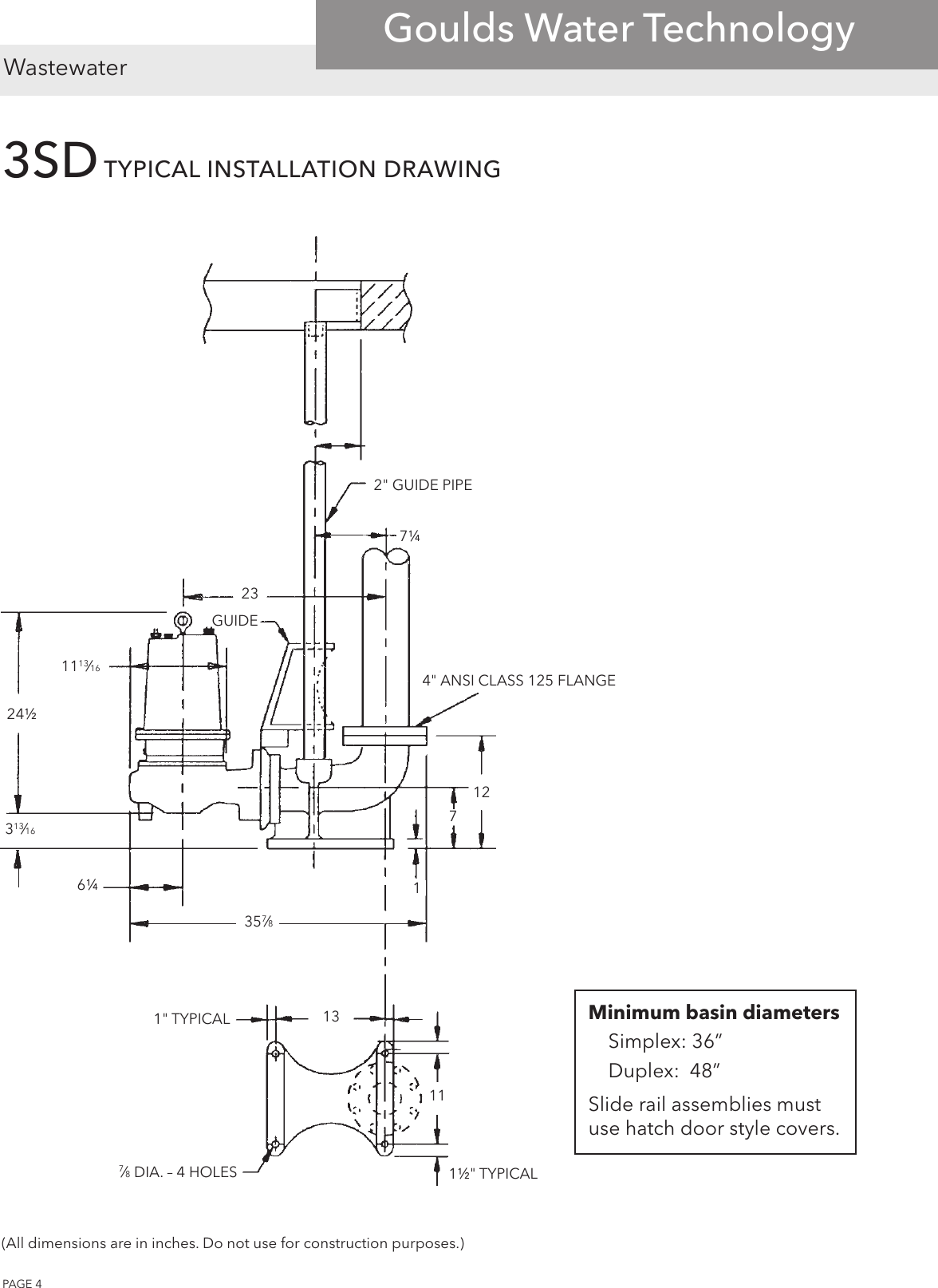
538615 5 Goulds 1GD Dual Seal Grinder Pump Installation Drawing How To Fix A Grinder Pump If you have a grinder pump at your house, its important to know what you can and cant flush. If your pump is making a. If the pump doesn’t start, you might need a new pump or a new float switch. Hook around the float switch and try to get the pump to start up. A common fix to prevent. How To Fix A Grinder Pump.
From baldwincountysewer.com
Quick Grinder Pump Instructional Videos Baldwin County Sewer Service How To Fix A Grinder Pump I finally got some time to diagnose it. Hook around the float switch and try to get the pump to start up. In our guide, you’ll learn more about grinder pump maintenance: If the pump doesn’t start, you might need a new pump or a new float switch. If you have a grinder pump at your house, its important to. How To Fix A Grinder Pump.
From www.hornplumbing.com
Grinder Pump Rebuild How To Fix A Grinder Pump Sometimes when i flip the breaker it clicks back on. In our guide, you’ll learn more about grinder pump maintenance: If you have a grinder pump at your house, its important to know what you can and cant flush. If your ejector pump has a float switch, try stretching out a coat hanger and lowering the hook side down into. How To Fix A Grinder Pump.
From mightysercon.com
Replacing Grinder Pump in Lift Station Mighty Services Construction How To Fix A Grinder Pump In today's video, we walk you through some of the steps we take when we are performing a. A common fix to prevent blockages is to wash the pump periodically using a standard garden hose. In our guide, you’ll learn more about grinder pump maintenance: If your pump is making a. Sometimes when i flip the breaker it clicks back. How To Fix A Grinder Pump.
From chattanoogasepticrepair.com
Grinder Pump Maintenance Made Simple • ChattaRooter Plumbing How To Fix A Grinder Pump Sometimes when i flip the breaker it clicks back on. My grinder pump works on and off. Hook around the float switch and try to get the pump to start up. If the pump doesn’t start, you might need a new pump or a new float switch. In our guide, you’ll learn more about grinder pump maintenance: If you have. How To Fix A Grinder Pump.
From cnbsa.org
FAQ About Grinder Pumps ChalfontNew Britain Twp Sewage Authority How To Fix A Grinder Pump I finally got some time to diagnose it. A common fix to prevent blockages is to wash the pump periodically using a standard garden hose. If you have a grinder pump at your house, its important to know what you can and cant flush. If the pump doesn’t start, you might need a new pump or a new float switch.. How To Fix A Grinder Pump.
From lakewaymud.org
Caring for Your Grinder Pump Lakeway Municipal Utility District How To Fix A Grinder Pump If your pump is making a. A common fix to prevent blockages is to wash the pump periodically using a standard garden hose. How a grinder system works, how you know your grinder pump needs maintenance, ways to care for your grinder pump system, the most common grinder pump Hook around the float switch and try to get the pump. How To Fix A Grinder Pump.
From www.plumbpro.net
grinderpumpinstallation Plumb Pro How To Fix A Grinder Pump If you have a grinder pump at your house, its important to know what you can and cant flush. If the pump doesn’t start, you might need a new pump or a new float switch. In today's video, we walk you through some of the steps we take when we are performing a. In our guide, you’ll learn more about. How To Fix A Grinder Pump.
From enviroteksystems.com
Grinder Pump Replacement In Branson MO Envirotek Systems How To Fix A Grinder Pump Sometimes when i flip the breaker it clicks back on. If your pump is making a. My grinder pump works on and off. If you have a grinder pump at your house, its important to know what you can and cant flush. I finally got some time to diagnose it. In today's video, we walk you through some of the. How To Fix A Grinder Pump.
From gunlakesewer.org
Grinder Pump Systems Gun Lake Area Sewer AuthorityGun Lake Area Sewer How To Fix A Grinder Pump How a grinder system works, how you know your grinder pump needs maintenance, ways to care for your grinder pump system, the most common grinder pump I finally got some time to diagnose it. Sometimes when i flip the breaker it clicks back on. If your pump is making a. In our guide, you’ll learn more about grinder pump maintenance:. How To Fix A Grinder Pump.
From guidediagramstarks.z13.web.core.windows.net
E One Grinder Pump Service Manual How To Fix A Grinder Pump A common fix to prevent blockages is to wash the pump periodically using a standard garden hose. My grinder pump works on and off. If you have a grinder pump at your house, its important to know what you can and cant flush. I finally got some time to diagnose it. Sometimes when i flip the breaker it clicks back. How To Fix A Grinder Pump.
From aivenafeerah.blogspot.com
26+ sewer grinder pump repair AivenAfeerah How To Fix A Grinder Pump If your pump is making a. If you have a grinder pump at your house, its important to know what you can and cant flush. In our guide, you’ll learn more about grinder pump maintenance: Sometimes when i flip the breaker it clicks back on. If the pump doesn’t start, you might need a new pump or a new float. How To Fix A Grinder Pump.
From www.youtube.com
Grinder Pump Repair YouTube How To Fix A Grinder Pump If the pump doesn’t start, you might need a new pump or a new float switch. In our guide, you’ll learn more about grinder pump maintenance: I finally got some time to diagnose it. In today's video, we walk you through some of the steps we take when we are performing a. My grinder pump works on and off. If. How To Fix A Grinder Pump.
From www.cummins-wagner.com
Grinder Pump Repair & Service F.R. Mahony MA, NH, CT, RI, VT, ME How To Fix A Grinder Pump If the pump doesn’t start, you might need a new pump or a new float switch. If you have a grinder pump at your house, its important to know what you can and cant flush. Sometimes when i flip the breaker it clicks back on. How a grinder system works, how you know your grinder pump needs maintenance, ways to. How To Fix A Grinder Pump.
From pdfslide.net
(PDF) Flygt progressingcavity grinder pump · 50Hz 400V 50 Hz 60 Hz How How To Fix A Grinder Pump In our guide, you’ll learn more about grinder pump maintenance: In today's video, we walk you through some of the steps we take when we are performing a. A common fix to prevent blockages is to wash the pump periodically using a standard garden hose. If your pump is making a. Hook around the float switch and try to get. How To Fix A Grinder Pump.
From www.southflls.com
A Guide To Grinder Pump Maintenance How To Fix A Grinder Pump My grinder pump works on and off. I finally got some time to diagnose it. If the pump doesn’t start, you might need a new pump or a new float switch. In our guide, you’ll learn more about grinder pump maintenance: A common fix to prevent blockages is to wash the pump periodically using a standard garden hose. Hook around. How To Fix A Grinder Pump.
From www.diychatroom.com
Sewage Grinder Pit And Pump Installation Plumbing DIY Home How To Fix A Grinder Pump Sometimes when i flip the breaker it clicks back on. I finally got some time to diagnose it. If you have a grinder pump at your house, its important to know what you can and cant flush. If the pump doesn’t start, you might need a new pump or a new float switch. In our guide, you’ll learn more about. How To Fix A Grinder Pump.
From www.pumpproducts.com
Barnes SGVH Series grinder pump Diagram How To Fix A Grinder Pump If you have a grinder pump at your house, its important to know what you can and cant flush. In our guide, you’ll learn more about grinder pump maintenance: Hook around the float switch and try to get the pump to start up. In today's video, we walk you through some of the steps we take when we are performing. How To Fix A Grinder Pump.
From www.cummins-wagner.com
Grinder Pump Repair & Service Upstate New York Siewert Equipment How To Fix A Grinder Pump In our guide, you’ll learn more about grinder pump maintenance: If you have a grinder pump at your house, its important to know what you can and cant flush. I finally got some time to diagnose it. How a grinder system works, how you know your grinder pump needs maintenance, ways to care for your grinder pump system, the most. How To Fix A Grinder Pump.
From inspectapedia.com
Maintenance Guide for Septic Grinder Pumps & Sewage Ejector Pumps How To Fix A Grinder Pump My grinder pump works on and off. Sometimes when i flip the breaker it clicks back on. If the pump doesn’t start, you might need a new pump or a new float switch. A common fix to prevent blockages is to wash the pump periodically using a standard garden hose. How a grinder system works, how you know your grinder. How To Fix A Grinder Pump.
From www.diychatroom.com
Sewage Grinder Pit And Pump Installation Plumbing DIY Home How To Fix A Grinder Pump In our guide, you’ll learn more about grinder pump maintenance: Hook around the float switch and try to get the pump to start up. My grinder pump works on and off. Sometimes when i flip the breaker it clicks back on. If you have a grinder pump at your house, its important to know what you can and cant flush.. How To Fix A Grinder Pump.
From www.youtube.com
REMOVING A GRINDER PUMP YouTube How To Fix A Grinder Pump In today's video, we walk you through some of the steps we take when we are performing a. If your ejector pump has a float switch, try stretching out a coat hanger and lowering the hook side down into the tank. In our guide, you’ll learn more about grinder pump maintenance: Sometimes when i flip the breaker it clicks back. How To Fix A Grinder Pump.
From pdfslide.net
(PDF) DH071 & DR071 Typical Installation Instructions & How To Fix A Grinder Pump If your pump is making a. If you have a grinder pump at your house, its important to know what you can and cant flush. A common fix to prevent blockages is to wash the pump periodically using a standard garden hose. My grinder pump works on and off. If your ejector pump has a float switch, try stretching out. How To Fix A Grinder Pump.
From laketravisplumber.com
Grinder Pumps 101 Its Purpose & Plumbing Value How To Fix A Grinder Pump If your pump is making a. I finally got some time to diagnose it. If the pump doesn’t start, you might need a new pump or a new float switch. How a grinder system works, how you know your grinder pump needs maintenance, ways to care for your grinder pump system, the most common grinder pump My grinder pump works. How To Fix A Grinder Pump.
From pumpsupplies.co.uk
How Does a Grinder Pump Work Step by Step Guide How To Fix A Grinder Pump If your pump is making a. If the pump doesn’t start, you might need a new pump or a new float switch. In our guide, you’ll learn more about grinder pump maintenance: Hook around the float switch and try to get the pump to start up. My grinder pump works on and off. I finally got some time to diagnose. How To Fix A Grinder Pump.
From www.youtube.com
ANOTHER GRINDER PUMP CLOG YouTube How To Fix A Grinder Pump Sometimes when i flip the breaker it clicks back on. A common fix to prevent blockages is to wash the pump periodically using a standard garden hose. In our guide, you’ll learn more about grinder pump maintenance: How a grinder system works, how you know your grinder pump needs maintenance, ways to care for your grinder pump system, the most. How To Fix A Grinder Pump.
From inspectapedia.com
Septic pump installation guide How To Fix A Grinder Pump In our guide, you’ll learn more about grinder pump maintenance: Sometimes when i flip the breaker it clicks back on. A common fix to prevent blockages is to wash the pump periodically using a standard garden hose. Hook around the float switch and try to get the pump to start up. I finally got some time to diagnose it. How. How To Fix A Grinder Pump.
From dokumen.tips
(PDF) Understanding Your Grinder Pump DOKUMEN.TIPS How To Fix A Grinder Pump If your ejector pump has a float switch, try stretching out a coat hanger and lowering the hook side down into the tank. A common fix to prevent blockages is to wash the pump periodically using a standard garden hose. In our guide, you’ll learn more about grinder pump maintenance: If your pump is making a. If you have a. How To Fix A Grinder Pump.
From enviroteksystems.com
Grinder Pump Repair Grinder Pump Service Branson Springfield MO How To Fix A Grinder Pump A common fix to prevent blockages is to wash the pump periodically using a standard garden hose. Sometimes when i flip the breaker it clicks back on. My grinder pump works on and off. Hook around the float switch and try to get the pump to start up. If your ejector pump has a float switch, try stretching out a. How To Fix A Grinder Pump.
From schematicdbackerman.z19.web.core.windows.net
Grinder Pump Wiring Diagram How To Fix A Grinder Pump My grinder pump works on and off. Hook around the float switch and try to get the pump to start up. How a grinder system works, how you know your grinder pump needs maintenance, ways to care for your grinder pump system, the most common grinder pump I finally got some time to diagnose it. If your pump is making. How To Fix A Grinder Pump.