Southampton Property Tax Payment . For assistance with completing an online form call: If you need assistance or have any questions, please contact the collector’s. Owner, tax map number, zoning, and taxes due) may be viewed through the town of southampton property tax payment. According to real property tax law. 116 hampton road, southampton, ny 11968. The annual village taxes are due in full between june 1 and july 1 without penalty. We accept american express, discover, mastercard, and. To view, print, and/or pay your tax bill online, access the online payment portal. Welcome to the town of southampton online payment center. Southampton town receiver of taxes. Scroll down to see all available options:
from www.templateroller.com
To view, print, and/or pay your tax bill online, access the online payment portal. For assistance with completing an online form call: We accept american express, discover, mastercard, and. 116 hampton road, southampton, ny 11968. Welcome to the town of southampton online payment center. Owner, tax map number, zoning, and taxes due) may be viewed through the town of southampton property tax payment. The annual village taxes are due in full between june 1 and july 1 without penalty. Scroll down to see all available options: If you need assistance or have any questions, please contact the collector’s. According to real property tax law.
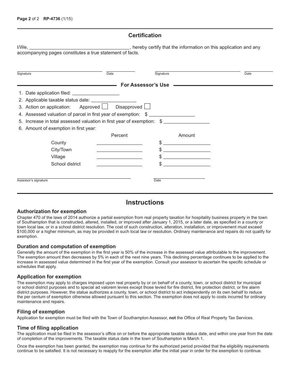
Form RP4736 (SOUTHAMPTON) Fill Out, Sign Online and Download
Southampton Property Tax Payment Scroll down to see all available options: 116 hampton road, southampton, ny 11968. According to real property tax law. For assistance with completing an online form call: The annual village taxes are due in full between june 1 and july 1 without penalty. Owner, tax map number, zoning, and taxes due) may be viewed through the town of southampton property tax payment. Southampton town receiver of taxes. We accept american express, discover, mastercard, and. Welcome to the town of southampton online payment center. If you need assistance or have any questions, please contact the collector’s. Scroll down to see all available options: To view, print, and/or pay your tax bill online, access the online payment portal.
From www.vaauctionco.com
Apr 11 Apr 18, 2023 Isle of Wight & Southampton County Tax Auction Southampton Property Tax Payment 116 hampton road, southampton, ny 11968. According to real property tax law. To view, print, and/or pay your tax bill online, access the online payment portal. The annual village taxes are due in full between june 1 and july 1 without penalty. For assistance with completing an online form call: Owner, tax map number, zoning, and taxes due) may be. Southampton Property Tax Payment.
From www.templateroller.com
Form RP4736 (SOUTHAMPTON) Fill Out, Sign Online and Download Southampton Property Tax Payment We accept american express, discover, mastercard, and. Scroll down to see all available options: Welcome to the town of southampton online payment center. The annual village taxes are due in full between june 1 and july 1 without penalty. If you need assistance or have any questions, please contact the collector’s. 116 hampton road, southampton, ny 11968. Owner, tax map. Southampton Property Tax Payment.
From www.sobha.com
BBMP Property Tax Payment Online Step by Step Guide! SOBHA Ltd. Southampton Property Tax Payment The annual village taxes are due in full between june 1 and july 1 without penalty. Scroll down to see all available options: To view, print, and/or pay your tax bill online, access the online payment portal. Welcome to the town of southampton online payment center. According to real property tax law. For assistance with completing an online form call:. Southampton Property Tax Payment.
From www.zameen.com
CDA extends deadline for payment of property tax bills Zameen News Southampton Property Tax Payment According to real property tax law. For assistance with completing an online form call: To view, print, and/or pay your tax bill online, access the online payment portal. Scroll down to see all available options: Owner, tax map number, zoning, and taxes due) may be viewed through the town of southampton property tax payment. Welcome to the town of southampton. Southampton Property Tax Payment.
From www.homesforsaleteam.com
Moving To Paulding County GA Here Is The Senior Exemption You Need To Southampton Property Tax Payment 116 hampton road, southampton, ny 11968. The annual village taxes are due in full between june 1 and july 1 without penalty. We accept american express, discover, mastercard, and. Southampton town receiver of taxes. Welcome to the town of southampton online payment center. Scroll down to see all available options: To view, print, and/or pay your tax bill online, access. Southampton Property Tax Payment.
From www.romseyconservatives.org.uk
£150 Council Tax Rebate Romsey and Southampton North Southampton Property Tax Payment Welcome to the town of southampton online payment center. Southampton town receiver of taxes. The annual village taxes are due in full between june 1 and july 1 without penalty. For assistance with completing an online form call: If you need assistance or have any questions, please contact the collector’s. To view, print, and/or pay your tax bill online, access. Southampton Property Tax Payment.
From giorraqvn.blob.core.windows.net
Do You Pay Taxes For Condos at Mary Michel blog Southampton Property Tax Payment Welcome to the town of southampton online payment center. Scroll down to see all available options: Owner, tax map number, zoning, and taxes due) may be viewed through the town of southampton property tax payment. The annual village taxes are due in full between june 1 and july 1 without penalty. 116 hampton road, southampton, ny 11968. For assistance with. Southampton Property Tax Payment.
From mhv.dailyecho.co.uk
Southampton City Council issued 13,000 council tax summons last year Southampton Property Tax Payment According to real property tax law. We accept american express, discover, mastercard, and. Welcome to the town of southampton online payment center. Owner, tax map number, zoning, and taxes due) may be viewed through the town of southampton property tax payment. The annual village taxes are due in full between june 1 and july 1 without penalty. For assistance with. Southampton Property Tax Payment.
From pembroke.ca
Property Taxes City of Pembroke Southampton Property Tax Payment If you need assistance or have any questions, please contact the collector’s. Owner, tax map number, zoning, and taxes due) may be viewed through the town of southampton property tax payment. According to real property tax law. The annual village taxes are due in full between june 1 and july 1 without penalty. Welcome to the town of southampton online. Southampton Property Tax Payment.
From www.youtube.com
pcmc property tax online payment how to pay property tax online Southampton Property Tax Payment Owner, tax map number, zoning, and taxes due) may be viewed through the town of southampton property tax payment. To view, print, and/or pay your tax bill online, access the online payment portal. The annual village taxes are due in full between june 1 and july 1 without penalty. Southampton town receiver of taxes. Scroll down to see all available. Southampton Property Tax Payment.
From www.essexjunction.org
Important Information Regarding Your 20232024 Property Tax Bill City Southampton Property Tax Payment Southampton town receiver of taxes. Scroll down to see all available options: 116 hampton road, southampton, ny 11968. For assistance with completing an online form call: To view, print, and/or pay your tax bill online, access the online payment portal. According to real property tax law. If you need assistance or have any questions, please contact the collector’s. Welcome to. Southampton Property Tax Payment.
From navimumbaihouses.com
Property Tax in Maharashtra Payment, Assessment, Exemptions & More Southampton Property Tax Payment 116 hampton road, southampton, ny 11968. The annual village taxes are due in full between june 1 and july 1 without penalty. To view, print, and/or pay your tax bill online, access the online payment portal. According to real property tax law. If you need assistance or have any questions, please contact the collector’s. We accept american express, discover, mastercard,. Southampton Property Tax Payment.
From www.addressofchoice.com
Here's What People Are Saying About How To Pay Property Tax Online Southampton Property Tax Payment Southampton town receiver of taxes. 116 hampton road, southampton, ny 11968. To view, print, and/or pay your tax bill online, access the online payment portal. Welcome to the town of southampton online payment center. We accept american express, discover, mastercard, and. Owner, tax map number, zoning, and taxes due) may be viewed through the town of southampton property tax payment.. Southampton Property Tax Payment.
From www.puravankara.com
A guide to pay BBMP Property Tax Online Puravankara Southampton Property Tax Payment Owner, tax map number, zoning, and taxes due) may be viewed through the town of southampton property tax payment. The annual village taxes are due in full between june 1 and july 1 without penalty. If you need assistance or have any questions, please contact the collector’s. We accept american express, discover, mastercard, and. To view, print, and/or pay your. Southampton Property Tax Payment.
From exyfvxxde.blob.core.windows.net
School Real Estate Tax Bill at Kathy Teran blog Southampton Property Tax Payment To view, print, and/or pay your tax bill online, access the online payment portal. Southampton town receiver of taxes. We accept american express, discover, mastercard, and. According to real property tax law. If you need assistance or have any questions, please contact the collector’s. Owner, tax map number, zoning, and taxes due) may be viewed through the town of southampton. Southampton Property Tax Payment.
From www.lamansiondelasideas.com
Stay on Top of Property Taxes A Guide to Effective Budgeting and Payment Southampton Property Tax Payment Owner, tax map number, zoning, and taxes due) may be viewed through the town of southampton property tax payment. Welcome to the town of southampton online payment center. The annual village taxes are due in full between june 1 and july 1 without penalty. 116 hampton road, southampton, ny 11968. Scroll down to see all available options: To view, print,. Southampton Property Tax Payment.
From teachersbadi.in
Gujarat Property Tax Online Payment 2024 at enagar.gujarat.gov.in Pay Southampton Property Tax Payment To view, print, and/or pay your tax bill online, access the online payment portal. According to real property tax law. Scroll down to see all available options: For assistance with completing an online form call: Owner, tax map number, zoning, and taxes due) may be viewed through the town of southampton property tax payment. Welcome to the town of southampton. Southampton Property Tax Payment.
From www.formsbank.com
Fillable Form Rp4736 Application For Real Property Tax Exemption For Southampton Property Tax Payment 116 hampton road, southampton, ny 11968. Owner, tax map number, zoning, and taxes due) may be viewed through the town of southampton property tax payment. For assistance with completing an online form call: We accept american express, discover, mastercard, and. Scroll down to see all available options: The annual village taxes are due in full between june 1 and july. Southampton Property Tax Payment.
From propertytaxgov.com
Property Tax Ramsey 2023 Southampton Property Tax Payment 116 hampton road, southampton, ny 11968. The annual village taxes are due in full between june 1 and july 1 without penalty. Scroll down to see all available options: Owner, tax map number, zoning, and taxes due) may be viewed through the town of southampton property tax payment. Southampton town receiver of taxes. To view, print, and/or pay your tax. Southampton Property Tax Payment.
From giobsfwut.blob.core.windows.net
County Delinquent Property Taxes at Carolyn Villarreal blog Southampton Property Tax Payment To view, print, and/or pay your tax bill online, access the online payment portal. According to real property tax law. 116 hampton road, southampton, ny 11968. The annual village taxes are due in full between june 1 and july 1 without penalty. Scroll down to see all available options: We accept american express, discover, mastercard, and. Welcome to the town. Southampton Property Tax Payment.
From northforker.com
Probate, Taxes & Asset Protection 101 Northforker Southampton Property Tax Payment We accept american express, discover, mastercard, and. If you need assistance or have any questions, please contact the collector’s. According to real property tax law. The annual village taxes are due in full between june 1 and july 1 without penalty. To view, print, and/or pay your tax bill online, access the online payment portal. Southampton town receiver of taxes.. Southampton Property Tax Payment.
From www.manaycpa.com
Understanding How Property Taxes Work A Complete Guide Manay CPA Southampton Property Tax Payment Scroll down to see all available options: For assistance with completing an online form call: Welcome to the town of southampton online payment center. According to real property tax law. To view, print, and/or pay your tax bill online, access the online payment portal. 116 hampton road, southampton, ny 11968. We accept american express, discover, mastercard, and. If you need. Southampton Property Tax Payment.
From www.bustanimedia.com
Toronto’s Vacant Home Tax is Coming, Forcing Homeowners to Declare Southampton Property Tax Payment Southampton town receiver of taxes. If you need assistance or have any questions, please contact the collector’s. Owner, tax map number, zoning, and taxes due) may be viewed through the town of southampton property tax payment. The annual village taxes are due in full between june 1 and july 1 without penalty. We accept american express, discover, mastercard, and. Welcome. Southampton Property Tax Payment.
From southamptonproperty.blogspot.com
Southampton Property Blog Southampton property price rises set to be Southampton Property Tax Payment Welcome to the town of southampton online payment center. Owner, tax map number, zoning, and taxes due) may be viewed through the town of southampton property tax payment. The annual village taxes are due in full between june 1 and july 1 without penalty. Southampton town receiver of taxes. Scroll down to see all available options: 116 hampton road, southampton,. Southampton Property Tax Payment.
From www.reddit.com
Palmerston Park Attack r/Southampton Southampton Property Tax Payment For assistance with completing an online form call: We accept american express, discover, mastercard, and. According to real property tax law. The annual village taxes are due in full between june 1 and july 1 without penalty. Scroll down to see all available options: To view, print, and/or pay your tax bill online, access the online payment portal. Owner, tax. Southampton Property Tax Payment.
From www.thetidewaternews.com
Personal property tax relief rate set to fall in Southampton County Southampton Property Tax Payment According to real property tax law. If you need assistance or have any questions, please contact the collector’s. For assistance with completing an online form call: To view, print, and/or pay your tax bill online, access the online payment portal. We accept american express, discover, mastercard, and. Southampton town receiver of taxes. The annual village taxes are due in full. Southampton Property Tax Payment.
From sinkforce15.bitbucket.io
How To Avoid Paying Property Tax Sinkforce15 Southampton Property Tax Payment The annual village taxes are due in full between june 1 and july 1 without penalty. If you need assistance or have any questions, please contact the collector’s. According to real property tax law. Welcome to the town of southampton online payment center. For assistance with completing an online form call: To view, print, and/or pay your tax bill online,. Southampton Property Tax Payment.
From www.aisdeindia.com
BBMP Property Tax 202324 Online Payment, Check Status, Bill Receipt Southampton Property Tax Payment Welcome to the town of southampton online payment center. The annual village taxes are due in full between june 1 and july 1 without penalty. To view, print, and/or pay your tax bill online, access the online payment portal. For assistance with completing an online form call: Scroll down to see all available options: Owner, tax map number, zoning, and. Southampton Property Tax Payment.
From old.sermitsiaq.ag
Property Tax Bill Template Southampton Property Tax Payment We accept american express, discover, mastercard, and. Welcome to the town of southampton online payment center. If you need assistance or have any questions, please contact the collector’s. The annual village taxes are due in full between june 1 and july 1 without penalty. Owner, tax map number, zoning, and taxes due) may be viewed through the town of southampton. Southampton Property Tax Payment.
From exokrvfud.blob.core.windows.net
Southampton Sales Tax at Lucinda Balog blog Southampton Property Tax Payment Welcome to the town of southampton online payment center. Owner, tax map number, zoning, and taxes due) may be viewed through the town of southampton property tax payment. If you need assistance or have any questions, please contact the collector’s. Scroll down to see all available options: According to real property tax law. 116 hampton road, southampton, ny 11968. We. Southampton Property Tax Payment.
From www.templateroller.com
Form RP4736 (SOUTHAMPTON) Fill Out, Sign Online and Download Southampton Property Tax Payment To view, print, and/or pay your tax bill online, access the online payment portal. If you need assistance or have any questions, please contact the collector’s. For assistance with completing an online form call: Welcome to the town of southampton online payment center. According to real property tax law. Southampton town receiver of taxes. Owner, tax map number, zoning, and. Southampton Property Tax Payment.
From www.taxreductionservices.com
Southampton Property Tax Bill Tax Reduction Services Southampton Property Tax Payment To view, print, and/or pay your tax bill online, access the online payment portal. According to real property tax law. 116 hampton road, southampton, ny 11968. Owner, tax map number, zoning, and taxes due) may be viewed through the town of southampton property tax payment. The annual village taxes are due in full between june 1 and july 1 without. Southampton Property Tax Payment.
From coe-edmonton.prod.opwebops.dev
Property Taxes City of Edmonton Southampton Property Tax Payment According to real property tax law. Southampton town receiver of taxes. The annual village taxes are due in full between june 1 and july 1 without penalty. Owner, tax map number, zoning, and taxes due) may be viewed through the town of southampton property tax payment. Welcome to the town of southampton online payment center. To view, print, and/or pay. Southampton Property Tax Payment.
From www.cityofeuclid.com
Property Tax Grant Southampton Property Tax Payment For assistance with completing an online form call: Southampton town receiver of taxes. According to real property tax law. Owner, tax map number, zoning, and taxes due) may be viewed through the town of southampton property tax payment. The annual village taxes are due in full between june 1 and july 1 without penalty. If you need assistance or have. Southampton Property Tax Payment.
From www.vaauctionco.com
Southampton County TAX AUCTION!!! Southampton Property Tax Payment 116 hampton road, southampton, ny 11968. The annual village taxes are due in full between june 1 and july 1 without penalty. Welcome to the town of southampton online payment center. If you need assistance or have any questions, please contact the collector’s. Southampton town receiver of taxes. To view, print, and/or pay your tax bill online, access the online. Southampton Property Tax Payment.