Land Disturbance Permit Nc . Land disturbing permit (ldp) requirements. The ncg25 permit went into effect june 1, 2024. An erosion and sedimentation control (e&sc) plan must be submitted at least 30 days before land disturbance begins on any site involving over one. The new erosion and sediment control online system will encompass all aspects of the permitting process, including submitting and tracking. For land disturbance of one acre or more, you will need an approved erosion and sediment control plan (e/s) and an npdes construction stormwater permit from the division of energy, mineral and land. Clearing and grading exceeding 20,000 square feet (roughly 1/2 acre), requires an ecsp and a land. Permittees who have an e&sc plan approved on or after april 1, 2019 are required.
from www.pdffiller.com
The new erosion and sediment control online system will encompass all aspects of the permitting process, including submitting and tracking. Clearing and grading exceeding 20,000 square feet (roughly 1/2 acre), requires an ecsp and a land. The ncg25 permit went into effect june 1, 2024. For land disturbance of one acre or more, you will need an approved erosion and sediment control plan (e/s) and an npdes construction stormwater permit from the division of energy, mineral and land. An erosion and sedimentation control (e&sc) plan must be submitted at least 30 days before land disturbance begins on any site involving over one. Permittees who have an e&sc plan approved on or after april 1, 2019 are required. Land disturbing permit (ldp) requirements.
Fillable Online LAND DISTURBANCE/ STORMWATER MANAGEMENT PERMIT Fax
Land Disturbance Permit Nc Clearing and grading exceeding 20,000 square feet (roughly 1/2 acre), requires an ecsp and a land. For land disturbance of one acre or more, you will need an approved erosion and sediment control plan (e/s) and an npdes construction stormwater permit from the division of energy, mineral and land. The new erosion and sediment control online system will encompass all aspects of the permitting process, including submitting and tracking. The ncg25 permit went into effect june 1, 2024. Permittees who have an e&sc plan approved on or after april 1, 2019 are required. Land disturbing permit (ldp) requirements. An erosion and sedimentation control (e&sc) plan must be submitted at least 30 days before land disturbance begins on any site involving over one. Clearing and grading exceeding 20,000 square feet (roughly 1/2 acre), requires an ecsp and a land.
From www.pdffiller.com
city of belle meade land disturbance permit application Doc Template Land Disturbance Permit Nc An erosion and sedimentation control (e&sc) plan must be submitted at least 30 days before land disturbance begins on any site involving over one. Land disturbing permit (ldp) requirements. Permittees who have an e&sc plan approved on or after april 1, 2019 are required. The ncg25 permit went into effect june 1, 2024. The new erosion and sediment control online. Land Disturbance Permit Nc.
From www.pdffiller.com
Fillable Online application for grading/land disturbance permit Fax Land Disturbance Permit Nc Permittees who have an e&sc plan approved on or after april 1, 2019 are required. Clearing and grading exceeding 20,000 square feet (roughly 1/2 acre), requires an ecsp and a land. For land disturbance of one acre or more, you will need an approved erosion and sediment control plan (e/s) and an npdes construction stormwater permit from the division of. Land Disturbance Permit Nc.
From www.signnow.com
LAND DISTURBANCE PERMIT APPLICATION & CHECKLIST Fill Out and Sign Land Disturbance Permit Nc Clearing and grading exceeding 20,000 square feet (roughly 1/2 acre), requires an ecsp and a land. Land disturbing permit (ldp) requirements. An erosion and sedimentation control (e&sc) plan must be submitted at least 30 days before land disturbance begins on any site involving over one. Permittees who have an e&sc plan approved on or after april 1, 2019 are required.. Land Disturbance Permit Nc.
From www.pdffiller.com
Fillable Online Early Grading/Land Disturbance Permit Application Fax Land Disturbance Permit Nc The ncg25 permit went into effect june 1, 2024. Clearing and grading exceeding 20,000 square feet (roughly 1/2 acre), requires an ecsp and a land. Permittees who have an e&sc plan approved on or after april 1, 2019 are required. For land disturbance of one acre or more, you will need an approved erosion and sediment control plan (e/s) and. Land Disturbance Permit Nc.
From www.pdffiller.com
Fillable Online LAND DISTURBANCE/ STORMWATER MANAGEMENT PERMIT Fax Land Disturbance Permit Nc The new erosion and sediment control online system will encompass all aspects of the permitting process, including submitting and tracking. An erosion and sedimentation control (e&sc) plan must be submitted at least 30 days before land disturbance begins on any site involving over one. The ncg25 permit went into effect june 1, 2024. Permittees who have an e&sc plan approved. Land Disturbance Permit Nc.
From www.formsbank.com
Land Disturbance Permit Application Form Macon County printable pdf Land Disturbance Permit Nc The new erosion and sediment control online system will encompass all aspects of the permitting process, including submitting and tracking. Land disturbing permit (ldp) requirements. An erosion and sedimentation control (e&sc) plan must be submitted at least 30 days before land disturbance begins on any site involving over one. For land disturbance of one acre or more, you will need. Land Disturbance Permit Nc.
From www.pdffiller.com
Fillable Online Land Disturbance Permit Policy Packet and Application Land Disturbance Permit Nc For land disturbance of one acre or more, you will need an approved erosion and sediment control plan (e/s) and an npdes construction stormwater permit from the division of energy, mineral and land. Clearing and grading exceeding 20,000 square feet (roughly 1/2 acre), requires an ecsp and a land. Land disturbing permit (ldp) requirements. The ncg25 permit went into effect. Land Disturbance Permit Nc.
From www.pdffiller.com
Fillable Online LAND DISTURBANCE PERMIT (LDP) PRESCREEN FORM Fax Email Land Disturbance Permit Nc The new erosion and sediment control online system will encompass all aspects of the permitting process, including submitting and tracking. For land disturbance of one acre or more, you will need an approved erosion and sediment control plan (e/s) and an npdes construction stormwater permit from the division of energy, mineral and land. Clearing and grading exceeding 20,000 square feet. Land Disturbance Permit Nc.
From www.pdffiller.com
Fillable Online Land Disturbance Permit Application Fax Email Print Land Disturbance Permit Nc The new erosion and sediment control online system will encompass all aspects of the permitting process, including submitting and tracking. An erosion and sedimentation control (e&sc) plan must be submitted at least 30 days before land disturbance begins on any site involving over one. For land disturbance of one acre or more, you will need an approved erosion and sediment. Land Disturbance Permit Nc.
From www.pdffiller.com
Fillable Online building inspection department land disturbance permit Land Disturbance Permit Nc An erosion and sedimentation control (e&sc) plan must be submitted at least 30 days before land disturbance begins on any site involving over one. Land disturbing permit (ldp) requirements. Clearing and grading exceeding 20,000 square feet (roughly 1/2 acre), requires an ecsp and a land. The new erosion and sediment control online system will encompass all aspects of the permitting. Land Disturbance Permit Nc.
From www.formsbank.com
Fillable Land Disturbance Permit Application Form Greenville County Land Disturbance Permit Nc The new erosion and sediment control online system will encompass all aspects of the permitting process, including submitting and tracking. Land disturbing permit (ldp) requirements. Permittees who have an e&sc plan approved on or after april 1, 2019 are required. Clearing and grading exceeding 20,000 square feet (roughly 1/2 acre), requires an ecsp and a land. An erosion and sedimentation. Land Disturbance Permit Nc.
From studylib.net
Land Disturbance Permit Application Land Disturbance Permit Nc The new erosion and sediment control online system will encompass all aspects of the permitting process, including submitting and tracking. Land disturbing permit (ldp) requirements. For land disturbance of one acre or more, you will need an approved erosion and sediment control plan (e/s) and an npdes construction stormwater permit from the division of energy, mineral and land. An erosion. Land Disturbance Permit Nc.
From www.chathamcountync.gov
NonResidential Land Disturbing Permit Chatham County, NC Land Disturbance Permit Nc Clearing and grading exceeding 20,000 square feet (roughly 1/2 acre), requires an ecsp and a land. For land disturbance of one acre or more, you will need an approved erosion and sediment control plan (e/s) and an npdes construction stormwater permit from the division of energy, mineral and land. The ncg25 permit went into effect june 1, 2024. An erosion. Land Disturbance Permit Nc.
From www.pdffiller.com
Fillable Online Excavation Permit Application Ground Disturbance within Land Disturbance Permit Nc For land disturbance of one acre or more, you will need an approved erosion and sediment control plan (e/s) and an npdes construction stormwater permit from the division of energy, mineral and land. An erosion and sedimentation control (e&sc) plan must be submitted at least 30 days before land disturbance begins on any site involving over one. The ncg25 permit. Land Disturbance Permit Nc.
From www.pdffiller.com
Fillable Online land disturbance permit application Atlantic Beach Land Disturbance Permit Nc For land disturbance of one acre or more, you will need an approved erosion and sediment control plan (e/s) and an npdes construction stormwater permit from the division of energy, mineral and land. The new erosion and sediment control online system will encompass all aspects of the permitting process, including submitting and tracking. The ncg25 permit went into effect june. Land Disturbance Permit Nc.
From www.scribd.com
DeKalb County Land Disturbance Permit Review For Cop City PDF Flood Land Disturbance Permit Nc The ncg25 permit went into effect june 1, 2024. Land disturbing permit (ldp) requirements. Clearing and grading exceeding 20,000 square feet (roughly 1/2 acre), requires an ecsp and a land. For land disturbance of one acre or more, you will need an approved erosion and sediment control plan (e/s) and an npdes construction stormwater permit from the division of energy,. Land Disturbance Permit Nc.
From www.pdffiller.com
Fillable Online This Land Disturbance Permit application packet Land Disturbance Permit Nc An erosion and sedimentation control (e&sc) plan must be submitted at least 30 days before land disturbance begins on any site involving over one. Clearing and grading exceeding 20,000 square feet (roughly 1/2 acre), requires an ecsp and a land. The ncg25 permit went into effect june 1, 2024. The new erosion and sediment control online system will encompass all. Land Disturbance Permit Nc.
From www.formsbank.com
Simplified Land Disturbance Application (One Acre Or Less & Generating Land Disturbance Permit Nc The new erosion and sediment control online system will encompass all aspects of the permitting process, including submitting and tracking. Permittees who have an e&sc plan approved on or after april 1, 2019 are required. The ncg25 permit went into effect june 1, 2024. An erosion and sedimentation control (e&sc) plan must be submitted at least 30 days before land. Land Disturbance Permit Nc.
From www.signnow.com
Land Disturbance Permit 20172024 Form Fill Out and Sign Printable Land Disturbance Permit Nc Land disturbing permit (ldp) requirements. Permittees who have an e&sc plan approved on or after april 1, 2019 are required. For land disturbance of one acre or more, you will need an approved erosion and sediment control plan (e/s) and an npdes construction stormwater permit from the division of energy, mineral and land. An erosion and sedimentation control (e&sc) plan. Land Disturbance Permit Nc.
From www.pdffiller.com
Fillable Online Application Land Disturbance Permit Fax Email Print Land Disturbance Permit Nc An erosion and sedimentation control (e&sc) plan must be submitted at least 30 days before land disturbance begins on any site involving over one. Clearing and grading exceeding 20,000 square feet (roughly 1/2 acre), requires an ecsp and a land. The ncg25 permit went into effect june 1, 2024. For land disturbance of one acre or more, you will need. Land Disturbance Permit Nc.
From www.pdffiller.com
Fillable Online borough of watchung land disturbance permit Land Disturbance Permit Nc The ncg25 permit went into effect june 1, 2024. Clearing and grading exceeding 20,000 square feet (roughly 1/2 acre), requires an ecsp and a land. An erosion and sedimentation control (e&sc) plan must be submitted at least 30 days before land disturbance begins on any site involving over one. Land disturbing permit (ldp) requirements. The new erosion and sediment control. Land Disturbance Permit Nc.
From www.pdffiller.com
civil plan review/land disturbance permit checklist Doc Template Land Disturbance Permit Nc The ncg25 permit went into effect june 1, 2024. The new erosion and sediment control online system will encompass all aspects of the permitting process, including submitting and tracking. For land disturbance of one acre or more, you will need an approved erosion and sediment control plan (e/s) and an npdes construction stormwater permit from the division of energy, mineral. Land Disturbance Permit Nc.
From www.pdffiller.com
Fillable Online claytonmo Land Disturbance Permit and SWPPP Checklist Land Disturbance Permit Nc Permittees who have an e&sc plan approved on or after april 1, 2019 are required. Clearing and grading exceeding 20,000 square feet (roughly 1/2 acre), requires an ecsp and a land. The new erosion and sediment control online system will encompass all aspects of the permitting process, including submitting and tracking. The ncg25 permit went into effect june 1, 2024.. Land Disturbance Permit Nc.
From www.pdffiller.com
Fillable Online Land Disturbance Permit (LDP) Checklist Fax Email Print Land Disturbance Permit Nc For land disturbance of one acre or more, you will need an approved erosion and sediment control plan (e/s) and an npdes construction stormwater permit from the division of energy, mineral and land. The ncg25 permit went into effect june 1, 2024. The new erosion and sediment control online system will encompass all aspects of the permitting process, including submitting. Land Disturbance Permit Nc.
From www.pdffiller.com
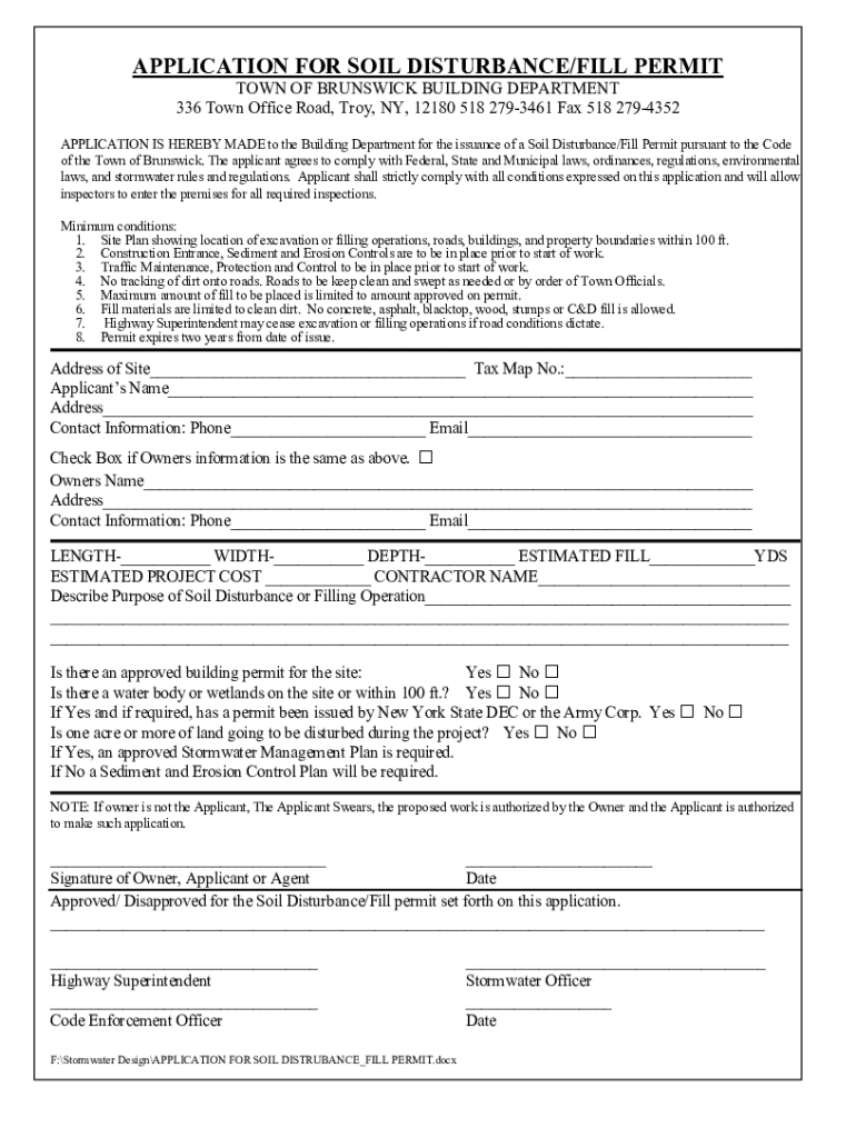
Fillable Online APPLICATION FOR SOIL DISTURBANCE/FILL PERMIT Fax Email Land Disturbance Permit Nc Land disturbing permit (ldp) requirements. The new erosion and sediment control online system will encompass all aspects of the permitting process, including submitting and tracking. The ncg25 permit went into effect june 1, 2024. Clearing and grading exceeding 20,000 square feet (roughly 1/2 acre), requires an ecsp and a land. For land disturbance of one acre or more, you will. Land Disturbance Permit Nc.
From www.pdffiller.com
Fillable Online fill.ioLandDisturbancePermitFill Free fillable Land Land Disturbance Permit Nc An erosion and sedimentation control (e&sc) plan must be submitted at least 30 days before land disturbance begins on any site involving over one. Permittees who have an e&sc plan approved on or after april 1, 2019 are required. The ncg25 permit went into effect june 1, 2024. For land disturbance of one acre or more, you will need an. Land Disturbance Permit Nc.
From www.pdffiller.com
Fillable Online Land Disturbance Permits to Now be Processed by the Land Disturbance Permit Nc Permittees who have an e&sc plan approved on or after april 1, 2019 are required. An erosion and sedimentation control (e&sc) plan must be submitted at least 30 days before land disturbance begins on any site involving over one. For land disturbance of one acre or more, you will need an approved erosion and sediment control plan (e/s) and an. Land Disturbance Permit Nc.
From www.pdffiller.com
Fillable Online Gilmer County Land Disturbance Permit Fill Online Land Disturbance Permit Nc The new erosion and sediment control online system will encompass all aspects of the permitting process, including submitting and tracking. An erosion and sedimentation control (e&sc) plan must be submitted at least 30 days before land disturbance begins on any site involving over one. The ncg25 permit went into effect june 1, 2024. Clearing and grading exceeding 20,000 square feet. Land Disturbance Permit Nc.
From www.pdffiller.com
Fillable Online Land Disturbance Permit Form Fax Email Print pdfFiller Land Disturbance Permit Nc Land disturbing permit (ldp) requirements. An erosion and sedimentation control (e&sc) plan must be submitted at least 30 days before land disturbance begins on any site involving over one. For land disturbance of one acre or more, you will need an approved erosion and sediment control plan (e/s) and an npdes construction stormwater permit from the division of energy, mineral. Land Disturbance Permit Nc.
From studylib.net
Land Disturbance Permit Review Checklist Land Disturbance Permit Nc An erosion and sedimentation control (e&sc) plan must be submitted at least 30 days before land disturbance begins on any site involving over one. Clearing and grading exceeding 20,000 square feet (roughly 1/2 acre), requires an ecsp and a land. Permittees who have an e&sc plan approved on or after april 1, 2019 are required. The ncg25 permit went into. Land Disturbance Permit Nc.
From www.pdffiller.com
Fillable Online Fill Free fillable Land Disturbance Permit PDF form Land Disturbance Permit Nc Clearing and grading exceeding 20,000 square feet (roughly 1/2 acre), requires an ecsp and a land. Land disturbing permit (ldp) requirements. An erosion and sedimentation control (e&sc) plan must be submitted at least 30 days before land disturbance begins on any site involving over one. For land disturbance of one acre or more, you will need an approved erosion and. Land Disturbance Permit Nc.
From www.pdffiller.com
Fillable Online IMPROVEMENT LOCATION/LAND DISTURBANCE PERMIT Fax Email Land Disturbance Permit Nc The new erosion and sediment control online system will encompass all aspects of the permitting process, including submitting and tracking. Clearing and grading exceeding 20,000 square feet (roughly 1/2 acre), requires an ecsp and a land. An erosion and sedimentation control (e&sc) plan must be submitted at least 30 days before land disturbance begins on any site involving over one.. Land Disturbance Permit Nc.
From www.youtube.com
Real Estate Development 101 Land Disturbance Permits YouTube Land Disturbance Permit Nc An erosion and sedimentation control (e&sc) plan must be submitted at least 30 days before land disturbance begins on any site involving over one. Clearing and grading exceeding 20,000 square feet (roughly 1/2 acre), requires an ecsp and a land. The ncg25 permit went into effect june 1, 2024. The new erosion and sediment control online system will encompass all. Land Disturbance Permit Nc.
From www.pdffiller.com
Fillable Online jocogov Land Disturbance Permit Utility Authorization Land Disturbance Permit Nc The new erosion and sediment control online system will encompass all aspects of the permitting process, including submitting and tracking. Clearing and grading exceeding 20,000 square feet (roughly 1/2 acre), requires an ecsp and a land. An erosion and sedimentation control (e&sc) plan must be submitted at least 30 days before land disturbance begins on any site involving over one.. Land Disturbance Permit Nc.
From www.pdffiller.com
Fillable Online LAND DISTURBANCE PERMIT / MAJOR SUBDIVISION REVIEW Land Disturbance Permit Nc Clearing and grading exceeding 20,000 square feet (roughly 1/2 acre), requires an ecsp and a land. Land disturbing permit (ldp) requirements. An erosion and sedimentation control (e&sc) plan must be submitted at least 30 days before land disturbance begins on any site involving over one. The ncg25 permit went into effect june 1, 2024. For land disturbance of one acre. Land Disturbance Permit Nc.