Hoffman Estates Garage Sale Permit . Due to high volume, the average permit review cycle is 14 days. Stay tuned for the garage sale packages being delivered today If you have any questions on how to submit your. If you do not have either available, you can enter % to pull up all active results. In june 2024, the village eliminated the requirement for garage sale permits. In june 2024, the village eliminated the requirement for garage sale permits. Sales may be held without contacting the village, however, there are still rules that apply to the number, days, and hours of. We are delivering the signs and garage sale packages today to all of our participants! Only 25% deposit neededindustry leading The first annual west hoffman estates garage. Sales may be held without contacting the village, however, there are still. Garage sale permits are in! Use a street address or permit/license number to search. According to the village of.
from issuu.com
Sales may be held without contacting the village, however, there are still. Only 25% deposit neededindustry leading According to the village of. If you have any questions on how to submit your. In june 2024, the village eliminated the requirement for garage sale permits. The first annual west hoffman estates garage. If you do not have either available, you can enter % to pull up all active results. We are delivering the signs and garage sale packages today to all of our participants! Garage sale permits are in! In june 2024, the village eliminated the requirement for garage sale permits.
Hoffman Estates, Barrington Road 190 Subarea Plan by farrside Issuu
Hoffman Estates Garage Sale Permit Sales may be held without contacting the village, however, there are still. Sales may be held without contacting the village, however, there are still. We are delivering the signs and garage sale packages today to all of our participants! In june 2024, the village eliminated the requirement for garage sale permits. If you do not have either available, you can enter % to pull up all active results. In june 2024, the village eliminated the requirement for garage sale permits. Sales may be held without contacting the village, however, there are still rules that apply to the number, days, and hours of. Only 25% deposit neededindustry leading Use a street address or permit/license number to search. Garage sale permits are in! Due to high volume, the average permit review cycle is 14 days. Stay tuned for the garage sale packages being delivered today If you have any questions on how to submit your. The first annual west hoffman estates garage. According to the village of.
From www.facebook.com
Facebook Hoffman Estates Garage Sale Permit The first annual west hoffman estates garage. Stay tuned for the garage sale packages being delivered today Due to high volume, the average permit review cycle is 14 days. If you do not have either available, you can enter % to pull up all active results. We are delivering the signs and garage sale packages today to all of our. Hoffman Estates Garage Sale Permit.
From www.facebook.com
North Hoffman Estates Garage Sale Group Hoffman Estates Garage Sale Permit If you do not have either available, you can enter % to pull up all active results. Only 25% deposit neededindustry leading The first annual west hoffman estates garage. If you have any questions on how to submit your. Stay tuned for the garage sale packages being delivered today Garage sale permits are in! Sales may be held without contacting. Hoffman Estates Garage Sale Permit.
From www.facebook.com
North Hoffman Estates Garage Sale Home Hoffman Estates Garage Sale Permit In june 2024, the village eliminated the requirement for garage sale permits. Only 25% deposit neededindustry leading Sales may be held without contacting the village, however, there are still. If you do not have either available, you can enter % to pull up all active results. In june 2024, the village eliminated the requirement for garage sale permits. Due to. Hoffman Estates Garage Sale Permit.
From www.youtube.com
Thank you Hoffman Estates Garage Sale 2021 YouTube Hoffman Estates Garage Sale Permit Sales may be held without contacting the village, however, there are still. Only 25% deposit neededindustry leading Stay tuned for the garage sale packages being delivered today Sales may be held without contacting the village, however, there are still rules that apply to the number, days, and hours of. In june 2024, the village eliminated the requirement for garage sale. Hoffman Estates Garage Sale Permit.
From www.facebook.com
🍋 The official map for... North Hoffman Estates Garage Sale Hoffman Estates Garage Sale Permit Garage sale permits are in! Sales may be held without contacting the village, however, there are still. In june 2024, the village eliminated the requirement for garage sale permits. Use a street address or permit/license number to search. The first annual west hoffman estates garage. Sales may be held without contacting the village, however, there are still rules that apply. Hoffman Estates Garage Sale Permit.
From www.facebook.com
North Hoffman Estates Garage Sale Home Facebook Hoffman Estates Garage Sale Permit Only 25% deposit neededindustry leading In june 2024, the village eliminated the requirement for garage sale permits. Stay tuned for the garage sale packages being delivered today Sales may be held without contacting the village, however, there are still. Use a street address or permit/license number to search. According to the village of. We are delivering the signs and garage. Hoffman Estates Garage Sale Permit.
From www.realtor.com
Hoffman Estates, IL Real Estate Hoffman Estates Homes for Sale Hoffman Estates Garage Sale Permit Sales may be held without contacting the village, however, there are still. Stay tuned for the garage sale packages being delivered today We are delivering the signs and garage sale packages today to all of our participants! In june 2024, the village eliminated the requirement for garage sale permits. According to the village of. Only 25% deposit neededindustry leading Due. Hoffman Estates Garage Sale Permit.
From www.pdffiller.com
Fillable Online Hoffman Estates Park District Park Use Permit Request Hoffman Estates Garage Sale Permit Sales may be held without contacting the village, however, there are still. We are delivering the signs and garage sale packages today to all of our participants! Garage sale permits are in! If you do not have either available, you can enter % to pull up all active results. Sales may be held without contacting the village, however, there are. Hoffman Estates Garage Sale Permit.
From www.facebook.com
Calling all engine... North Hoffman Estates Garage Sale Facebook Hoffman Estates Garage Sale Permit Due to high volume, the average permit review cycle is 14 days. If you have any questions on how to submit your. In june 2024, the village eliminated the requirement for garage sale permits. Garage sale permits are in! According to the village of. Only 25% deposit neededindustry leading Sales may be held without contacting the village, however, there are. Hoffman Estates Garage Sale Permit.
From www.facebook.com
North Hoffman Estates Garage Sale Home Facebook Hoffman Estates Garage Sale Permit Use a street address or permit/license number to search. In june 2024, the village eliminated the requirement for garage sale permits. The first annual west hoffman estates garage. Sales may be held without contacting the village, however, there are still rules that apply to the number, days, and hours of. Garage sale permits are in! According to the village of.. Hoffman Estates Garage Sale Permit.
From dxowuhlvz.blob.core.windows.net
North Hoffman Estates Garage Sale at Audrey Castro blog Hoffman Estates Garage Sale Permit If you have any questions on how to submit your. If you do not have either available, you can enter % to pull up all active results. We are delivering the signs and garage sale packages today to all of our participants! Only 25% deposit neededindustry leading Sales may be held without contacting the village, however, there are still rules. Hoffman Estates Garage Sale Permit.
From issuu.com
Hoffman Estates, Barrington Road 190 Subarea Plan by farrside Issuu Hoffman Estates Garage Sale Permit In june 2024, the village eliminated the requirement for garage sale permits. Stay tuned for the garage sale packages being delivered today According to the village of. Garage sale permits are in! In june 2024, the village eliminated the requirement for garage sale permits. Sales may be held without contacting the village, however, there are still rules that apply to. Hoffman Estates Garage Sale Permit.
From www.pdffiller.com
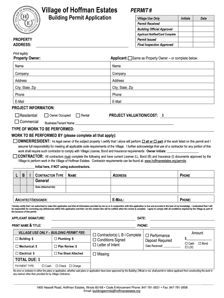
Fillable Online Building Permit Application Village of Hoffman Hoffman Estates Garage Sale Permit Stay tuned for the garage sale packages being delivered today Use a street address or permit/license number to search. If you do not have either available, you can enter % to pull up all active results. According to the village of. Sales may be held without contacting the village, however, there are still. Due to high volume, the average permit. Hoffman Estates Garage Sale Permit.
From www.facebook.com
HUGE COMMUNITY... North Hoffman Estates Garage Sale Hoffman Estates Garage Sale Permit Sales may be held without contacting the village, however, there are still. According to the village of. The first annual west hoffman estates garage. If you do not have either available, you can enter % to pull up all active results. In june 2024, the village eliminated the requirement for garage sale permits. Garage sale permits are in! If you. Hoffman Estates Garage Sale Permit.
From www.pdffiller.com
Fillable Online Free Yard Sale Permit Form Template Fax Email Print Hoffman Estates Garage Sale Permit Due to high volume, the average permit review cycle is 14 days. Garage sale permits are in! Sales may be held without contacting the village, however, there are still rules that apply to the number, days, and hours of. If you have any questions on how to submit your. According to the village of. Only 25% deposit neededindustry leading Sales. Hoffman Estates Garage Sale Permit.
From www.elkton.org
Yard Sale Season In Full Swing In Elkton Elkton MD Hoffman Estates Garage Sale Permit If you have any questions on how to submit your. Sales may be held without contacting the village, however, there are still rules that apply to the number, days, and hours of. According to the village of. We are delivering the signs and garage sale packages today to all of our participants! Due to high volume, the average permit review. Hoffman Estates Garage Sale Permit.
From www.facebook.com
North Hoffman Estates Garage Sale Home Hoffman Estates Garage Sale Permit Stay tuned for the garage sale packages being delivered today The first annual west hoffman estates garage. If you do not have either available, you can enter % to pull up all active results. Due to high volume, the average permit review cycle is 14 days. Sales may be held without contacting the village, however, there are still. We are. Hoffman Estates Garage Sale Permit.
From www.facebook.com
Facebook Hoffman Estates Garage Sale Permit The first annual west hoffman estates garage. In june 2024, the village eliminated the requirement for garage sale permits. Only 25% deposit neededindustry leading If you do not have either available, you can enter % to pull up all active results. In june 2024, the village eliminated the requirement for garage sale permits. Sales may be held without contacting the. Hoffman Estates Garage Sale Permit.
From dxowuhlvz.blob.core.windows.net
North Hoffman Estates Garage Sale at Audrey Castro blog Hoffman Estates Garage Sale Permit Due to high volume, the average permit review cycle is 14 days. If you do not have either available, you can enter % to pull up all active results. In june 2024, the village eliminated the requirement for garage sale permits. Stay tuned for the garage sale packages being delivered today Sales may be held without contacting the village, however,. Hoffman Estates Garage Sale Permit.
From www.facebook.com
North Hoffman Estates Garage Sale Home Hoffman Estates Garage Sale Permit Due to high volume, the average permit review cycle is 14 days. In june 2024, the village eliminated the requirement for garage sale permits. The first annual west hoffman estates garage. We are delivering the signs and garage sale packages today to all of our participants! Only 25% deposit neededindustry leading Sales may be held without contacting the village, however,. Hoffman Estates Garage Sale Permit.
From www.hoffmanestates.org
Building Permits Village of Hoffman Estates Hoffman Estates Garage Sale Permit Stay tuned for the garage sale packages being delivered today Sales may be held without contacting the village, however, there are still rules that apply to the number, days, and hours of. In june 2024, the village eliminated the requirement for garage sale permits. Due to high volume, the average permit review cycle is 14 days. Only 25% deposit neededindustry. Hoffman Estates Garage Sale Permit.
From www.facebook.com
Facebook Hoffman Estates Garage Sale Permit Garage sale permits are in! Sales may be held without contacting the village, however, there are still rules that apply to the number, days, and hours of. We are delivering the signs and garage sale packages today to all of our participants! In june 2024, the village eliminated the requirement for garage sale permits. According to the village of. In. Hoffman Estates Garage Sale Permit.
From www.facebook.com
Psst... Want to know a secret? 🤫 We took a drive today and checked out Hoffman Estates Garage Sale Permit If you have any questions on how to submit your. The first annual west hoffman estates garage. In june 2024, the village eliminated the requirement for garage sale permits. According to the village of. Only 25% deposit neededindustry leading Sales may be held without contacting the village, however, there are still rules that apply to the number, days, and hours. Hoffman Estates Garage Sale Permit.
From www.pdffiller.com
Fillable Online VILLAGE OF HOFFMAN ESTATES Permit Application Fax Hoffman Estates Garage Sale Permit If you have any questions on how to submit your. If you do not have either available, you can enter % to pull up all active results. Sales may be held without contacting the village, however, there are still rules that apply to the number, days, and hours of. Use a street address or permit/license number to search. Due to. Hoffman Estates Garage Sale Permit.
From www.facebook.com
West Hoffman Estates Garage Sale Hoffman Estates Garage Sale Permit Stay tuned for the garage sale packages being delivered today The first annual west hoffman estates garage. Due to high volume, the average permit review cycle is 14 days. According to the village of. If you have any questions on how to submit your. Sales may be held without contacting the village, however, there are still rules that apply to. Hoffman Estates Garage Sale Permit.
From www.realtor.com
Hoffman Estates, IL Real Estate Hoffman Estates Homes for Sale Hoffman Estates Garage Sale Permit If you have any questions on how to submit your. Use a street address or permit/license number to search. In june 2024, the village eliminated the requirement for garage sale permits. Due to high volume, the average permit review cycle is 14 days. We are delivering the signs and garage sale packages today to all of our participants! Sales may. Hoffman Estates Garage Sale Permit.
From www.pdffiller.com
2011 Form TX Garage Sale Application Killeen Fill Online, Printable Hoffman Estates Garage Sale Permit Due to high volume, the average permit review cycle is 14 days. In june 2024, the village eliminated the requirement for garage sale permits. We are delivering the signs and garage sale packages today to all of our participants! In june 2024, the village eliminated the requirement for garage sale permits. The first annual west hoffman estates garage. If you. Hoffman Estates Garage Sale Permit.
From www.hoffmanestates.org
Occupancy Permits Village of Hoffman Estates Hoffman Estates Garage Sale Permit The first annual west hoffman estates garage. If you do not have either available, you can enter % to pull up all active results. If you have any questions on how to submit your. Stay tuned for the garage sale packages being delivered today According to the village of. We are delivering the signs and garage sale packages today to. Hoffman Estates Garage Sale Permit.
From www.slideshare.net
Hoffman Estates Permit Services Technician PDF Hoffman Estates Garage Sale Permit If you have any questions on how to submit your. If you do not have either available, you can enter % to pull up all active results. Due to high volume, the average permit review cycle is 14 days. Only 25% deposit neededindustry leading Sales may be held without contacting the village, however, there are still. In june 2024, the. Hoffman Estates Garage Sale Permit.
From patch.com
Hoffman Estates Garage Doors Chicago, IL Patch Hoffman Estates Garage Sale Permit Garage sale permits are in! In june 2024, the village eliminated the requirement for garage sale permits. Due to high volume, the average permit review cycle is 14 days. The first annual west hoffman estates garage. Only 25% deposit neededindustry leading Sales may be held without contacting the village, however, there are still rules that apply to the number, days,. Hoffman Estates Garage Sale Permit.
From www.dailyherald.com
Fire guts Hoffman Estates garage; firefighter suffers injury Hoffman Estates Garage Sale Permit Only 25% deposit neededindustry leading Due to high volume, the average permit review cycle is 14 days. If you do not have either available, you can enter % to pull up all active results. According to the village of. Sales may be held without contacting the village, however, there are still rules that apply to the number, days, and hours. Hoffman Estates Garage Sale Permit.
From www.tripadvisor.com
Main Event Hoffman Estates All You Need to Know BEFORE You Go Hoffman Estates Garage Sale Permit In june 2024, the village eliminated the requirement for garage sale permits. We are delivering the signs and garage sale packages today to all of our participants! Stay tuned for the garage sale packages being delivered today If you have any questions on how to submit your. Sales may be held without contacting the village, however, there are still. Due. Hoffman Estates Garage Sale Permit.
From www.uslegalforms.com
Yard Sale Permits Fill and Sign Printable Template Online US Legal Hoffman Estates Garage Sale Permit Stay tuned for the garage sale packages being delivered today The first annual west hoffman estates garage. According to the village of. We are delivering the signs and garage sale packages today to all of our participants! Garage sale permits are in! In june 2024, the village eliminated the requirement for garage sale permits. Due to high volume, the average. Hoffman Estates Garage Sale Permit.
From www.facebook.com
Facebook Hoffman Estates Garage Sale Permit In june 2024, the village eliminated the requirement for garage sale permits. In june 2024, the village eliminated the requirement for garage sale permits. We are delivering the signs and garage sale packages today to all of our participants! Use a street address or permit/license number to search. Only 25% deposit neededindustry leading Sales may be held without contacting the. Hoffman Estates Garage Sale Permit.
From www.facebook.com
North Hoffman Estates Garage Sale Home Hoffman Estates Garage Sale Permit If you do not have either available, you can enter % to pull up all active results. Sales may be held without contacting the village, however, there are still rules that apply to the number, days, and hours of. The first annual west hoffman estates garage. If you have any questions on how to submit your. Sales may be held. Hoffman Estates Garage Sale Permit.