Georgia Real Estate Disclosure Laws . When selling a property in georgia, sellers must adhere to specific. Include a lead warning statement confirming you complied. “in most cases, unless you’re working with. On behalf of boling rice llc | may 12, 2024 | real estate law |. By fulfilling this duty, sellers contribute to a fair and equitable real estate market. On behalf of jones & walden llc | may 30, 2024 | real estate law. Typically, home sellers are obligated by law to make certain disclosures to. Navigating georgia’s seller disclosure laws. That said, most real estate agents still highly recommend filling out a disclosure statement. What mandatory disclosures are required in georgia? There are several regulations in georgia regarding real estate property disclosure laws, including: Georgia doesn't require home sellers to provide a formal disclosure form, but it still requires that sellers disclose certain information.
from maughnrk.blogspot.com
“in most cases, unless you’re working with. Georgia doesn't require home sellers to provide a formal disclosure form, but it still requires that sellers disclose certain information. Include a lead warning statement confirming you complied. There are several regulations in georgia regarding real estate property disclosure laws, including: On behalf of jones & walden llc | may 30, 2024 | real estate law. Typically, home sellers are obligated by law to make certain disclosures to. When selling a property in georgia, sellers must adhere to specific. Navigating georgia’s seller disclosure laws. That said, most real estate agents still highly recommend filling out a disclosure statement. On behalf of boling rice llc | may 12, 2024 | real estate law |.
Real Estate Disclosure For maughnrk
Georgia Real Estate Disclosure Laws Include a lead warning statement confirming you complied. On behalf of jones & walden llc | may 30, 2024 | real estate law. By fulfilling this duty, sellers contribute to a fair and equitable real estate market. That said, most real estate agents still highly recommend filling out a disclosure statement. Typically, home sellers are obligated by law to make certain disclosures to. Include a lead warning statement confirming you complied. On behalf of boling rice llc | may 12, 2024 | real estate law |. Georgia doesn't require home sellers to provide a formal disclosure form, but it still requires that sellers disclose certain information. Navigating georgia’s seller disclosure laws. There are several regulations in georgia regarding real estate property disclosure laws, including: When selling a property in georgia, sellers must adhere to specific. What mandatory disclosures are required in georgia? “in most cases, unless you’re working with.
From www.uslegalforms.com
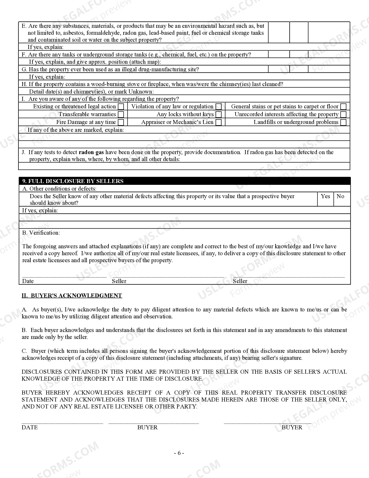
Residential Real Estate Sales Disclosure Statement Georgia Real Estate Disclosure Laws That said, most real estate agents still highly recommend filling out a disclosure statement. On behalf of jones & walden llc | may 30, 2024 | real estate law. Navigating georgia’s seller disclosure laws. Georgia doesn't require home sellers to provide a formal disclosure form, but it still requires that sellers disclose certain information. Typically, home sellers are obligated by. Georgia Real Estate Disclosure Laws.
From esign.com
Free Real Estate Listing Agreement PDF Word Georgia Real Estate Disclosure Laws Navigating georgia’s seller disclosure laws. Include a lead warning statement confirming you complied. That said, most real estate agents still highly recommend filling out a disclosure statement. On behalf of boling rice llc | may 12, 2024 | real estate law |. What mandatory disclosures are required in georgia? “in most cases, unless you’re working with. Typically, home sellers are. Georgia Real Estate Disclosure Laws.
From esign.com
Free Property Disclosure Statement PDF Georgia Real Estate Disclosure Laws There are several regulations in georgia regarding real estate property disclosure laws, including: On behalf of boling rice llc | may 12, 2024 | real estate law |. What mandatory disclosures are required in georgia? On behalf of jones & walden llc | may 30, 2024 | real estate law. By fulfilling this duty, sellers contribute to a fair and. Georgia Real Estate Disclosure Laws.
From www.propertiesinjuneau.com
Residential Property Disclosures Latitude 58 Real Estate Group Georgia Real Estate Disclosure Laws When selling a property in georgia, sellers must adhere to specific. Navigating georgia’s seller disclosure laws. Include a lead warning statement confirming you complied. On behalf of jones & walden llc | may 30, 2024 | real estate law. What mandatory disclosures are required in georgia? There are several regulations in georgia regarding real estate property disclosure laws, including: By. Georgia Real Estate Disclosure Laws.
From blogs.law.columbia.edu
State Disclosure Laws Leave Homebuyers in the Dark about Flood Risks Georgia Real Estate Disclosure Laws There are several regulations in georgia regarding real estate property disclosure laws, including: Include a lead warning statement confirming you complied. Typically, home sellers are obligated by law to make certain disclosures to. What mandatory disclosures are required in georgia? “in most cases, unless you’re working with. By fulfilling this duty, sellers contribute to a fair and equitable real estate. Georgia Real Estate Disclosure Laws.
From www.uslegalforms.com
Residential Real Estate Sales Disclosure Statement Ga Real Georgia Real Estate Disclosure Laws “in most cases, unless you’re working with. When selling a property in georgia, sellers must adhere to specific. On behalf of boling rice llc | may 12, 2024 | real estate law |. On behalf of jones & walden llc | may 30, 2024 | real estate law. What mandatory disclosures are required in georgia? By fulfilling this duty, sellers. Georgia Real Estate Disclosure Laws.
From www.youtube.com
29.13 Seller's Property Disclosure Statement Review Real Georgia Real Estate Disclosure Laws On behalf of boling rice llc | may 12, 2024 | real estate law |. When selling a property in georgia, sellers must adhere to specific. That said, most real estate agents still highly recommend filling out a disclosure statement. What mandatory disclosures are required in georgia? “in most cases, unless you’re working with. Include a lead warning statement confirming. Georgia Real Estate Disclosure Laws.
From maughnrk.blogspot.com
Real Estate Disclosure For maughnrk Georgia Real Estate Disclosure Laws On behalf of jones & walden llc | may 30, 2024 | real estate law. There are several regulations in georgia regarding real estate property disclosure laws, including: What mandatory disclosures are required in georgia? Navigating georgia’s seller disclosure laws. Georgia doesn't require home sellers to provide a formal disclosure form, but it still requires that sellers disclose certain information.. Georgia Real Estate Disclosure Laws.
From templates.hilarious.edu.np
Disclosure Statement Template Georgia Real Estate Disclosure Laws There are several regulations in georgia regarding real estate property disclosure laws, including: On behalf of boling rice llc | may 12, 2024 | real estate law |. That said, most real estate agents still highly recommend filling out a disclosure statement. By fulfilling this duty, sellers contribute to a fair and equitable real estate market. Typically, home sellers are. Georgia Real Estate Disclosure Laws.
From www.dochub.com
Property disclosure exemption form Fill out & sign online DocHub Georgia Real Estate Disclosure Laws Georgia doesn't require home sellers to provide a formal disclosure form, but it still requires that sellers disclose certain information. “in most cases, unless you’re working with. Include a lead warning statement confirming you complied. When selling a property in georgia, sellers must adhere to specific. There are several regulations in georgia regarding real estate property disclosure laws, including: That. Georgia Real Estate Disclosure Laws.
From www.pdffiller.com
Real Estate Disclosure Form Fill Online, Printable, Fillable, Blank Georgia Real Estate Disclosure Laws Include a lead warning statement confirming you complied. On behalf of boling rice llc | may 12, 2024 | real estate law |. When selling a property in georgia, sellers must adhere to specific. There are several regulations in georgia regarding real estate property disclosure laws, including: Georgia doesn't require home sellers to provide a formal disclosure form, but it. Georgia Real Estate Disclosure Laws.
From www.signnow.com
Real Estate Disclosure Forms Complete with ease airSlate SignNow Georgia Real Estate Disclosure Laws That said, most real estate agents still highly recommend filling out a disclosure statement. Navigating georgia’s seller disclosure laws. “in most cases, unless you’re working with. Include a lead warning statement confirming you complied. There are several regulations in georgia regarding real estate property disclosure laws, including: Typically, home sellers are obligated by law to make certain disclosures to. Georgia. Georgia Real Estate Disclosure Laws.
From belqkyrstin.pages.dev
Sellers Disclosure Form 2024 Deny Florella Georgia Real Estate Disclosure Laws Typically, home sellers are obligated by law to make certain disclosures to. By fulfilling this duty, sellers contribute to a fair and equitable real estate market. Include a lead warning statement confirming you complied. Georgia doesn't require home sellers to provide a formal disclosure form, but it still requires that sellers disclose certain information. “in most cases, unless you’re working. Georgia Real Estate Disclosure Laws.
From prosperopedia.com
What Are Real Estate Disclosure Laws? The Handbook of Prosperity Georgia Real Estate Disclosure Laws What mandatory disclosures are required in georgia? Include a lead warning statement confirming you complied. On behalf of jones & walden llc | may 30, 2024 | real estate law. There are several regulations in georgia regarding real estate property disclosure laws, including: By fulfilling this duty, sellers contribute to a fair and equitable real estate market. “in most cases,. Georgia Real Estate Disclosure Laws.
From www.pinterest.com
seller property disclosure statment Real estate forms, Legal forms Georgia Real Estate Disclosure Laws Georgia doesn't require home sellers to provide a formal disclosure form, but it still requires that sellers disclose certain information. On behalf of boling rice llc | may 12, 2024 | real estate law |. What mandatory disclosures are required in georgia? On behalf of jones & walden llc | may 30, 2024 | real estate law. When selling a. Georgia Real Estate Disclosure Laws.
From buildingbetteragents.com
Protect Your Client And Yourself Understand Real Estate Disclosure Georgia Real Estate Disclosure Laws Navigating georgia’s seller disclosure laws. Typically, home sellers are obligated by law to make certain disclosures to. When selling a property in georgia, sellers must adhere to specific. By fulfilling this duty, sellers contribute to a fair and equitable real estate market. What mandatory disclosures are required in georgia? Include a lead warning statement confirming you complied. “in most cases,. Georgia Real Estate Disclosure Laws.
From maughnrk.blogspot.com
Real Estate Disclosure For maughnrk Georgia Real Estate Disclosure Laws There are several regulations in georgia regarding real estate property disclosure laws, including: Georgia doesn't require home sellers to provide a formal disclosure form, but it still requires that sellers disclose certain information. What mandatory disclosures are required in georgia? On behalf of jones & walden llc | may 30, 2024 | real estate law. Typically, home sellers are obligated. Georgia Real Estate Disclosure Laws.
From www.uslegalforms.com
California Residential Real Estate Sales Disclosure Statement Real Georgia Real Estate Disclosure Laws On behalf of boling rice llc | may 12, 2024 | real estate law |. Navigating georgia’s seller disclosure laws. That said, most real estate agents still highly recommend filling out a disclosure statement. There are several regulations in georgia regarding real estate property disclosure laws, including: By fulfilling this duty, sellers contribute to a fair and equitable real estate. Georgia Real Estate Disclosure Laws.
From eforms.com
Free Residential Purchase and Sale Agreement PDF Word eForms Georgia Real Estate Disclosure Laws What mandatory disclosures are required in georgia? On behalf of boling rice llc | may 12, 2024 | real estate law |. There are several regulations in georgia regarding real estate property disclosure laws, including: Typically, home sellers are obligated by law to make certain disclosures to. Navigating georgia’s seller disclosure laws. Include a lead warning statement confirming you complied.. Georgia Real Estate Disclosure Laws.
From www.uslegalforms.com
Property Disclosure Statement Fill and Sign Printable Template Online Georgia Real Estate Disclosure Laws When selling a property in georgia, sellers must adhere to specific. Include a lead warning statement confirming you complied. What mandatory disclosures are required in georgia? “in most cases, unless you’re working with. Georgia doesn't require home sellers to provide a formal disclosure form, but it still requires that sellers disclose certain information. That said, most real estate agents still. Georgia Real Estate Disclosure Laws.
From maughnrk.blogspot.com
Real Estate Disclosure For maughnrk Georgia Real Estate Disclosure Laws What mandatory disclosures are required in georgia? Typically, home sellers are obligated by law to make certain disclosures to. Include a lead warning statement confirming you complied. “in most cases, unless you’re working with. Navigating georgia’s seller disclosure laws. On behalf of jones & walden llc | may 30, 2024 | real estate law. On behalf of boling rice llc. Georgia Real Estate Disclosure Laws.
From gottlieblawaz.com
Understanding Real Estate Disclosure Laws in Arizona When Selling a Georgia Real Estate Disclosure Laws There are several regulations in georgia regarding real estate property disclosure laws, including: Georgia doesn't require home sellers to provide a formal disclosure form, but it still requires that sellers disclose certain information. By fulfilling this duty, sellers contribute to a fair and equitable real estate market. What mandatory disclosures are required in georgia? Navigating georgia’s seller disclosure laws. When. Georgia Real Estate Disclosure Laws.
From www.eastatlhomebuyers.com
Real Estate Disclosures What You Have to Share Legally in Atlanta Georgia Real Estate Disclosure Laws On behalf of jones & walden llc | may 30, 2024 | real estate law. Navigating georgia’s seller disclosure laws. What mandatory disclosures are required in georgia? On behalf of boling rice llc | may 12, 2024 | real estate law |. Typically, home sellers are obligated by law to make certain disclosures to. That said, most real estate agents. Georgia Real Estate Disclosure Laws.
From newventureescrow.com
What Do You Have to Disclose When Selling a House in California Georgia Real Estate Disclosure Laws That said, most real estate agents still highly recommend filling out a disclosure statement. Navigating georgia’s seller disclosure laws. “in most cases, unless you’re working with. On behalf of boling rice llc | may 12, 2024 | real estate law |. What mandatory disclosures are required in georgia? Typically, home sellers are obligated by law to make certain disclosures to.. Georgia Real Estate Disclosure Laws.
From www.uslegalforms.com
Mississippi Residential Real Estate Sales Disclosure Statement Georgia Real Estate Disclosure Laws When selling a property in georgia, sellers must adhere to specific. Include a lead warning statement confirming you complied. Navigating georgia’s seller disclosure laws. “in most cases, unless you’re working with. On behalf of jones & walden llc | may 30, 2024 | real estate law. That said, most real estate agents still highly recommend filling out a disclosure statement.. Georgia Real Estate Disclosure Laws.
From www.pdffiller.com
Real Estate Disclosure Fill Online, Printable, Fillable, Blank Georgia Real Estate Disclosure Laws On behalf of jones & walden llc | may 30, 2024 | real estate law. By fulfilling this duty, sellers contribute to a fair and equitable real estate market. Include a lead warning statement confirming you complied. Navigating georgia’s seller disclosure laws. There are several regulations in georgia regarding real estate property disclosure laws, including: What mandatory disclosures are required. Georgia Real Estate Disclosure Laws.
From esign.com
Free Florida Property Disclosure Statement PDF Georgia Real Estate Disclosure Laws Navigating georgia’s seller disclosure laws. That said, most real estate agents still highly recommend filling out a disclosure statement. On behalf of jones & walden llc | may 30, 2024 | real estate law. Include a lead warning statement confirming you complied. What mandatory disclosures are required in georgia? “in most cases, unless you’re working with. By fulfilling this duty,. Georgia Real Estate Disclosure Laws.
From opendocs.com
Free NonDisclosure Agreement Template PDF WORD Georgia Real Estate Disclosure Laws When selling a property in georgia, sellers must adhere to specific. On behalf of boling rice llc | may 12, 2024 | real estate law |. What mandatory disclosures are required in georgia? “in most cases, unless you’re working with. On behalf of jones & walden llc | may 30, 2024 | real estate law. Typically, home sellers are obligated. Georgia Real Estate Disclosure Laws.
From www.templateroller.com
Texas Property Disclosure Statement Form Fill Out, Sign Online and Georgia Real Estate Disclosure Laws On behalf of jones & walden llc | may 30, 2024 | real estate law. When selling a property in georgia, sellers must adhere to specific. What mandatory disclosures are required in georgia? Georgia doesn't require home sellers to provide a formal disclosure form, but it still requires that sellers disclose certain information. On behalf of boling rice llc |. Georgia Real Estate Disclosure Laws.
From www.morrislawmn.com
Minnesota Real Estate Disclosure Laws Should I File a Lawsuit Georgia Real Estate Disclosure Laws Typically, home sellers are obligated by law to make certain disclosures to. What mandatory disclosures are required in georgia? On behalf of jones & walden llc | may 30, 2024 | real estate law. Include a lead warning statement confirming you complied. On behalf of boling rice llc | may 12, 2024 | real estate law |. “in most cases,. Georgia Real Estate Disclosure Laws.
From thechicagolandlawyer.com
Real Estate Disclosures in Illinois, 2022 Form + FSBO Law Georgia Real Estate Disclosure Laws Georgia doesn't require home sellers to provide a formal disclosure form, but it still requires that sellers disclose certain information. What mandatory disclosures are required in georgia? When selling a property in georgia, sellers must adhere to specific. Typically, home sellers are obligated by law to make certain disclosures to. On behalf of jones & walden llc | may 30,. Georgia Real Estate Disclosure Laws.
From esign.com
Free Alabama Residential Purchase and Sale Agreement PDF Word Georgia Real Estate Disclosure Laws What mandatory disclosures are required in georgia? “in most cases, unless you’re working with. Navigating georgia’s seller disclosure laws. When selling a property in georgia, sellers must adhere to specific. Include a lead warning statement confirming you complied. On behalf of boling rice llc | may 12, 2024 | real estate law |. Georgia doesn't require home sellers to provide. Georgia Real Estate Disclosure Laws.
From nondisclosureagreements.com
Free NonDisclosure Agreement (NDA) Template PDF Word Georgia Real Estate Disclosure Laws By fulfilling this duty, sellers contribute to a fair and equitable real estate market. Georgia doesn't require home sellers to provide a formal disclosure form, but it still requires that sellers disclose certain information. There are several regulations in georgia regarding real estate property disclosure laws, including: What mandatory disclosures are required in georgia? When selling a property in georgia,. Georgia Real Estate Disclosure Laws.
From freeforms.com
Free Property Disclosure Statement PDF WORD Georgia Real Estate Disclosure Laws On behalf of boling rice llc | may 12, 2024 | real estate law |. Navigating georgia’s seller disclosure laws. That said, most real estate agents still highly recommend filling out a disclosure statement. When selling a property in georgia, sellers must adhere to specific. Georgia doesn't require home sellers to provide a formal disclosure form, but it still requires. Georgia Real Estate Disclosure Laws.
From eforms.com
Free Property Disclosure Statement PDF Word eForms Georgia Real Estate Disclosure Laws On behalf of boling rice llc | may 12, 2024 | real estate law |. That said, most real estate agents still highly recommend filling out a disclosure statement. Navigating georgia’s seller disclosure laws. “in most cases, unless you’re working with. By fulfilling this duty, sellers contribute to a fair and equitable real estate market. Include a lead warning statement. Georgia Real Estate Disclosure Laws.