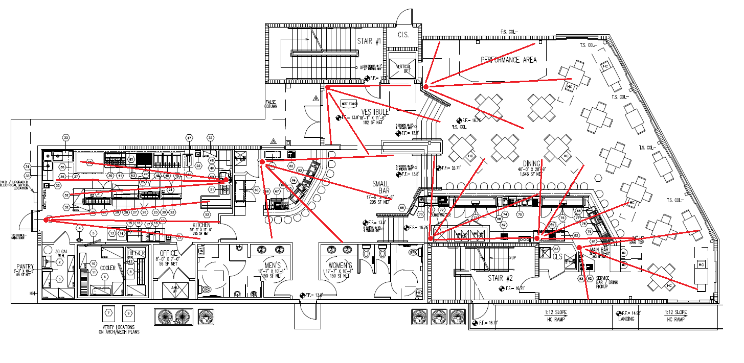
Security Camera Placement Business . discreet camera placement balances security and privacy, discouraging interference while maintaining confidence among employees and. as a business owner, you need to make the most of your investment by knowing where to place security cameras. learn how to professionally install, set up and manage surveillance cameras for your business premises. for your surveillance proposal. Security surveillance technology is valuable to any business. Surveillance floor planner is designed to facilitate surveillance project planning. if you are reassessing your business’s location strategy, implementing remote work policies or looking to enhance security with video surveillance equipment,. learn how to customize a security camera layout for your building from kirbtech. After all, each additional camera is.
from www.passsecurity.com
After all, each additional camera is. learn how to customize a security camera layout for your building from kirbtech. if you are reassessing your business’s location strategy, implementing remote work policies or looking to enhance security with video surveillance equipment,. as a business owner, you need to make the most of your investment by knowing where to place security cameras. Security surveillance technology is valuable to any business. Surveillance floor planner is designed to facilitate surveillance project planning. learn how to professionally install, set up and manage surveillance cameras for your business premises. discreet camera placement balances security and privacy, discouraging interference while maintaining confidence among employees and. for your surveillance proposal.
Best Video Surveillance Security Camera System for Commercial Businesses
Security Camera Placement Business for your surveillance proposal. as a business owner, you need to make the most of your investment by knowing where to place security cameras. learn how to customize a security camera layout for your building from kirbtech. if you are reassessing your business’s location strategy, implementing remote work policies or looking to enhance security with video surveillance equipment,. Security surveillance technology is valuable to any business. for your surveillance proposal. learn how to professionally install, set up and manage surveillance cameras for your business premises. After all, each additional camera is. Surveillance floor planner is designed to facilitate surveillance project planning. discreet camera placement balances security and privacy, discouraging interference while maintaining confidence among employees and.
From www.expertsecurityuk.co.uk
Business CCTV camera placement guidelines ES UK Security Camera Placement Business learn how to customize a security camera layout for your building from kirbtech. if you are reassessing your business’s location strategy, implementing remote work policies or looking to enhance security with video surveillance equipment,. as a business owner, you need to make the most of your investment by knowing where to place security cameras. for your. Security Camera Placement Business.
From www.cornerstoneprotection.com
Best Placement for Security Cameras Installation Security Camera Placement Business for your surveillance proposal. Security surveillance technology is valuable to any business. as a business owner, you need to make the most of your investment by knowing where to place security cameras. After all, each additional camera is. learn how to customize a security camera layout for your building from kirbtech. Surveillance floor planner is designed to. Security Camera Placement Business.
From www.dtiq.com
A Guide to Camera Placement for Surveillance and Security Security Camera Placement Business if you are reassessing your business’s location strategy, implementing remote work policies or looking to enhance security with video surveillance equipment,. Surveillance floor planner is designed to facilitate surveillance project planning. After all, each additional camera is. learn how to professionally install, set up and manage surveillance cameras for your business premises. learn how to customize a. Security Camera Placement Business.
From www.cornerstoneprotection.com
5 Tips to Install Commercial Surveillance Systems with Location Security Camera Placement Business if you are reassessing your business’s location strategy, implementing remote work policies or looking to enhance security with video surveillance equipment,. Surveillance floor planner is designed to facilitate surveillance project planning. learn how to customize a security camera layout for your building from kirbtech. After all, each additional camera is. discreet camera placement balances security and privacy,. Security Camera Placement Business.
From craftech.com
The Impact of Surveillance Camera Placement on Security and Productivity Security Camera Placement Business discreet camera placement balances security and privacy, discouraging interference while maintaining confidence among employees and. Surveillance floor planner is designed to facilitate surveillance project planning. Security surveillance technology is valuable to any business. if you are reassessing your business’s location strategy, implementing remote work policies or looking to enhance security with video surveillance equipment,. After all, each additional. Security Camera Placement Business.
From www.posteezy.com
Professional Surveillance Cameras Placement and Installation Posteezy Security Camera Placement Business learn how to customize a security camera layout for your building from kirbtech. After all, each additional camera is. discreet camera placement balances security and privacy, discouraging interference while maintaining confidence among employees and. Security surveillance technology is valuable to any business. if you are reassessing your business’s location strategy, implementing remote work policies or looking to. Security Camera Placement Business.
From www.besthomesecuritysystem.com
Security Camera Installation At Home What You Need To Know Security Camera Placement Business as a business owner, you need to make the most of your investment by knowing where to place security cameras. learn how to customize a security camera layout for your building from kirbtech. for your surveillance proposal. discreet camera placement balances security and privacy, discouraging interference while maintaining confidence among employees and. Surveillance floor planner is. Security Camera Placement Business.
From www.micro1tech.com
Security Camera Systems for Business Security Camera Placement Business if you are reassessing your business’s location strategy, implementing remote work policies or looking to enhance security with video surveillance equipment,. Security surveillance technology is valuable to any business. learn how to customize a security camera layout for your building from kirbtech. for your surveillance proposal. as a business owner, you need to make the most. Security Camera Placement Business.
From kirbtech.com
The Perfect Security Camera Placement Guide for Businesses Security Camera Placement Business Security surveillance technology is valuable to any business. learn how to customize a security camera layout for your building from kirbtech. as a business owner, you need to make the most of your investment by knowing where to place security cameras. for your surveillance proposal. learn how to professionally install, set up and manage surveillance cameras. Security Camera Placement Business.
From www.backstreet-surveillance.com
Business, Commercial & Retail CCTV Security Camera Placement Security Camera Placement Business learn how to customize a security camera layout for your building from kirbtech. After all, each additional camera is. Security surveillance technology is valuable to any business. for your surveillance proposal. discreet camera placement balances security and privacy, discouraging interference while maintaining confidence among employees and. Surveillance floor planner is designed to facilitate surveillance project planning. . Security Camera Placement Business.
From www.securitycamerahub.com
Business CCTV Installation services Toronto Security Camera Placement Business for your surveillance proposal. After all, each additional camera is. as a business owner, you need to make the most of your investment by knowing where to place security cameras. if you are reassessing your business’s location strategy, implementing remote work policies or looking to enhance security with video surveillance equipment,. Surveillance floor planner is designed to. Security Camera Placement Business.
From mytechdecisions.com
12 Advanced Commercial Surveillance Cameras for Your Business or Org Security Camera Placement Business learn how to customize a security camera layout for your building from kirbtech. learn how to professionally install, set up and manage surveillance cameras for your business premises. if you are reassessing your business’s location strategy, implementing remote work policies or looking to enhance security with video surveillance equipment,. as a business owner, you need to. Security Camera Placement Business.
From www.digital-abundance.hr
Best Security Camera System for Business Digital Abundance Security Camera Placement Business learn how to professionally install, set up and manage surveillance cameras for your business premises. discreet camera placement balances security and privacy, discouraging interference while maintaining confidence among employees and. if you are reassessing your business’s location strategy, implementing remote work policies or looking to enhance security with video surveillance equipment,. Security surveillance technology is valuable to. Security Camera Placement Business.
From inbound.usisecurity.com
Top 5 Benefits Of Installing A Commercial Security Camera System Security Camera Placement Business Surveillance floor planner is designed to facilitate surveillance project planning. as a business owner, you need to make the most of your investment by knowing where to place security cameras. After all, each additional camera is. learn how to customize a security camera layout for your building from kirbtech. Security surveillance technology is valuable to any business. . Security Camera Placement Business.
From www.business.com
Small Business Guide to Security Cameras Security Camera Placement Business if you are reassessing your business’s location strategy, implementing remote work policies or looking to enhance security with video surveillance equipment,. as a business owner, you need to make the most of your investment by knowing where to place security cameras. learn how to professionally install, set up and manage surveillance cameras for your business premises. Security. Security Camera Placement Business.
From www.secomllc.com
Security Camera Placement LLC Security Camera Placement Business discreet camera placement balances security and privacy, discouraging interference while maintaining confidence among employees and. for your surveillance proposal. After all, each additional camera is. learn how to customize a security camera layout for your building from kirbtech. Security surveillance technology is valuable to any business. learn how to professionally install, set up and manage surveillance. Security Camera Placement Business.
From securitycamsblog.com
How to Install Swann Security Camera for Maximum Security Security Camera Placement Business as a business owner, you need to make the most of your investment by knowing where to place security cameras. learn how to customize a security camera layout for your building from kirbtech. if you are reassessing your business’s location strategy, implementing remote work policies or looking to enhance security with video surveillance equipment,. learn how. Security Camera Placement Business.
From www.fsstechnologies.com
Where Should Security Camera be Installed in a Business? FSS Technologies Security Camera Placement Business if you are reassessing your business’s location strategy, implementing remote work policies or looking to enhance security with video surveillance equipment,. After all, each additional camera is. Security surveillance technology is valuable to any business. learn how to customize a security camera layout for your building from kirbtech. Surveillance floor planner is designed to facilitate surveillance project planning.. Security Camera Placement Business.
From inbound.usisecurity.com
5 Quick Security Camera Placement Tips Security Camera Placement Business discreet camera placement balances security and privacy, discouraging interference while maintaining confidence among employees and. Surveillance floor planner is designed to facilitate surveillance project planning. learn how to customize a security camera layout for your building from kirbtech. After all, each additional camera is. Security surveillance technology is valuable to any business. for your surveillance proposal. . Security Camera Placement Business.
From www.backstreet-surveillance.com
Business, Commercial & Retail CCTV Security Camera Placement Security Camera Placement Business if you are reassessing your business’s location strategy, implementing remote work policies or looking to enhance security with video surveillance equipment,. learn how to professionally install, set up and manage surveillance cameras for your business premises. learn how to customize a security camera layout for your building from kirbtech. as a business owner, you need to. Security Camera Placement Business.
From www.backstreet-surveillance.com
Business, Commercial & Retail CCTV Security Camera Placement Security Camera Placement Business discreet camera placement balances security and privacy, discouraging interference while maintaining confidence among employees and. After all, each additional camera is. if you are reassessing your business’s location strategy, implementing remote work policies or looking to enhance security with video surveillance equipment,. learn how to customize a security camera layout for your building from kirbtech. for. Security Camera Placement Business.
From www.findabusinessthat.com
A Brief Security Camera Placement Guide That Minimizes Blind Spots Security Camera Placement Business learn how to professionally install, set up and manage surveillance cameras for your business premises. learn how to customize a security camera layout for your building from kirbtech. as a business owner, you need to make the most of your investment by knowing where to place security cameras. Surveillance floor planner is designed to facilitate surveillance project. Security Camera Placement Business.
From getsafeandsound.com
Best Ways to Place Security Cameras in Your Living or Working Areas Security Camera Placement Business as a business owner, you need to make the most of your investment by knowing where to place security cameras. Surveillance floor planner is designed to facilitate surveillance project planning. After all, each additional camera is. Security surveillance technology is valuable to any business. if you are reassessing your business’s location strategy, implementing remote work policies or looking. Security Camera Placement Business.
From www.passsecurity.com
Best Video Surveillance Security Camera System for Commercial Businesses Security Camera Placement Business After all, each additional camera is. as a business owner, you need to make the most of your investment by knowing where to place security cameras. learn how to professionally install, set up and manage surveillance cameras for your business premises. if you are reassessing your business’s location strategy, implementing remote work policies or looking to enhance. Security Camera Placement Business.
From thesbb.com
Best Practices for Security Camera Placement Maximizing Coverage and Security Camera Placement Business Security surveillance technology is valuable to any business. if you are reassessing your business’s location strategy, implementing remote work policies or looking to enhance security with video surveillance equipment,. learn how to customize a security camera layout for your building from kirbtech. learn how to professionally install, set up and manage surveillance cameras for your business premises.. Security Camera Placement Business.
From www.backstreet-surveillance.com
Business, Commercial & Retail CCTV Security Camera Placement Security Camera Placement Business After all, each additional camera is. as a business owner, you need to make the most of your investment by knowing where to place security cameras. learn how to professionally install, set up and manage surveillance cameras for your business premises. for your surveillance proposal. discreet camera placement balances security and privacy, discouraging interference while maintaining. Security Camera Placement Business.
From gionqwuls.blob.core.windows.net
Video Surveillance Systems For Small Businesses at Robert Herbert blog Security Camera Placement Business for your surveillance proposal. discreet camera placement balances security and privacy, discouraging interference while maintaining confidence among employees and. After all, each additional camera is. learn how to customize a security camera layout for your building from kirbtech. Surveillance floor planner is designed to facilitate surveillance project planning. learn how to professionally install, set up and. Security Camera Placement Business.
From www.backstreet-surveillance.com
Business, Commercial & Retail CCTV Security Camera Placement Security Camera Placement Business learn how to customize a security camera layout for your building from kirbtech. Security surveillance technology is valuable to any business. discreet camera placement balances security and privacy, discouraging interference while maintaining confidence among employees and. for your surveillance proposal. if you are reassessing your business’s location strategy, implementing remote work policies or looking to enhance. Security Camera Placement Business.
From www.backstreet-surveillance.com
Business, Commercial & Retail CCTV Security Camera Placement Security Camera Placement Business Surveillance floor planner is designed to facilitate surveillance project planning. learn how to customize a security camera layout for your building from kirbtech. as a business owner, you need to make the most of your investment by knowing where to place security cameras. After all, each additional camera is. learn how to professionally install, set up and. Security Camera Placement Business.
From www.vectorsecurity.com
Business Surveillance Systems Proper Placement and Setup Vector Security Security Camera Placement Business learn how to customize a security camera layout for your building from kirbtech. Surveillance floor planner is designed to facilitate surveillance project planning. After all, each additional camera is. if you are reassessing your business’s location strategy, implementing remote work policies or looking to enhance security with video surveillance equipment,. Security surveillance technology is valuable to any business.. Security Camera Placement Business.
From www.tctechsystems.com
CCTV Placement Guidelines Where to Place Business Security Cameras Security Camera Placement Business learn how to professionally install, set up and manage surveillance cameras for your business premises. Surveillance floor planner is designed to facilitate surveillance project planning. for your surveillance proposal. After all, each additional camera is. Security surveillance technology is valuable to any business. discreet camera placement balances security and privacy, discouraging interference while maintaining confidence among employees. Security Camera Placement Business.
From kbosecurity.co.uk
Proper Placement & Setup Of Your Surveillance Systems KBO Security Camera Placement Business if you are reassessing your business’s location strategy, implementing remote work policies or looking to enhance security with video surveillance equipment,. learn how to professionally install, set up and manage surveillance cameras for your business premises. discreet camera placement balances security and privacy, discouraging interference while maintaining confidence among employees and. After all, each additional camera is.. Security Camera Placement Business.
From www.backstreet-surveillance.com
Business, Commercial & Retail CCTV Security Camera Placement Security Camera Placement Business if you are reassessing your business’s location strategy, implementing remote work policies or looking to enhance security with video surveillance equipment,. Security surveillance technology is valuable to any business. as a business owner, you need to make the most of your investment by knowing where to place security cameras. Surveillance floor planner is designed to facilitate surveillance project. Security Camera Placement Business.
From www.backstreet-surveillance.com
Business, Commercial & Retail CCTV Security Camera Placement Security Camera Placement Business Security surveillance technology is valuable to any business. learn how to professionally install, set up and manage surveillance cameras for your business premises. learn how to customize a security camera layout for your building from kirbtech. for your surveillance proposal. if you are reassessing your business’s location strategy, implementing remote work policies or looking to enhance. Security Camera Placement Business.
From www.emcsecurity.com
Top 10 Places to Put Security Cameras EMC Security Security Camera Placement Business Security surveillance technology is valuable to any business. After all, each additional camera is. learn how to professionally install, set up and manage surveillance cameras for your business premises. if you are reassessing your business’s location strategy, implementing remote work policies or looking to enhance security with video surveillance equipment,. Surveillance floor planner is designed to facilitate surveillance. Security Camera Placement Business.