Door Access Control System Checklist . It includes items such as verifying power and. the checklist covers various stages of the access control system, from installation to maintenance. • check function of all interfaces with alarms is satisfactory. Failing to keep up with access control maintenance can create a false sense of security. access control system maintenance checklist. • check operation of all door fixings and furniture is satisfactory. an access control system is only as effective as its sensors, and these devices should be checked often to ensure that they are in working order. 10k+ visitors in the past month
from www.ftq360.com
10k+ visitors in the past month access control system maintenance checklist. Failing to keep up with access control maintenance can create a false sense of security. It includes items such as verifying power and. an access control system is only as effective as its sensors, and these devices should be checked often to ensure that they are in working order. • check function of all interfaces with alarms is satisfactory. • check operation of all door fixings and furniture is satisfactory. the checklist covers various stages of the access control system, from installation to maintenance.
Doors & Frames Inspection Checklist l FTQ360
Door Access Control System Checklist 10k+ visitors in the past month 10k+ visitors in the past month Failing to keep up with access control maintenance can create a false sense of security. an access control system is only as effective as its sensors, and these devices should be checked often to ensure that they are in working order. • check function of all interfaces with alarms is satisfactory. • check operation of all door fixings and furniture is satisfactory. It includes items such as verifying power and. access control system maintenance checklist. the checklist covers various stages of the access control system, from installation to maintenance.
From www.360connect.com
Door Access Control System Uses, Options, and Pricing 360Connect Door Access Control System Checklist It includes items such as verifying power and. 10k+ visitors in the past month Failing to keep up with access control maintenance can create a false sense of security. access control system maintenance checklist. the checklist covers various stages of the access control system, from installation to maintenance. • check operation of all door fixings and furniture. Door Access Control System Checklist.
From schematicfixben.z21.web.core.windows.net
Door Access Control System Components Door Access Control System Checklist an access control system is only as effective as its sensors, and these devices should be checked often to ensure that they are in working order. It includes items such as verifying power and. 10k+ visitors in the past month Failing to keep up with access control maintenance can create a false sense of security. the checklist covers. Door Access Control System Checklist.
From douglaselectric.us
Access Control Installation (StepbyStep Guide) Douglas Electric Co., Inc. Door Access Control System Checklist the checklist covers various stages of the access control system, from installation to maintenance. Failing to keep up with access control maintenance can create a false sense of security. • check operation of all door fixings and furniture is satisfactory. It includes items such as verifying power and. access control system maintenance checklist. • check function of. Door Access Control System Checklist.
From getsafeandsound.com
Single Door Access Control Systems Complete Guide (2024) Door Access Control System Checklist Failing to keep up with access control maintenance can create a false sense of security. an access control system is only as effective as its sensors, and these devices should be checked often to ensure that they are in working order. the checklist covers various stages of the access control system, from installation to maintenance. It includes items. Door Access Control System Checklist.
From www.valsystech.com.sg
Access Control System Singapore Door Access System Door Access Control System Checklist It includes items such as verifying power and. • check operation of all door fixings and furniture is satisfactory. • check function of all interfaces with alarms is satisfactory. an access control system is only as effective as its sensors, and these devices should be checked often to ensure that they are in working order. the checklist. Door Access Control System Checklist.
From www.youtube.com
Door Access Control systemaccess control,door access YouTube Door Access Control System Checklist • check function of all interfaces with alarms is satisfactory. access control system maintenance checklist. 10k+ visitors in the past month Failing to keep up with access control maintenance can create a false sense of security. an access control system is only as effective as its sensors, and these devices should be checked often to ensure that they. Door Access Control System Checklist.
From kintronics.com
Hartmann Access Control Kintronics Door Access Control System Checklist an access control system is only as effective as its sensors, and these devices should be checked often to ensure that they are in working order. access control system maintenance checklist. the checklist covers various stages of the access control system, from installation to maintenance. • check function of all interfaces with alarms is satisfactory. Failing to. Door Access Control System Checklist.
From kintronics.com
Access Control Installation Kintronics Door Access Control System Checklist It includes items such as verifying power and. an access control system is only as effective as its sensors, and these devices should be checked often to ensure that they are in working order. access control system maintenance checklist. • check operation of all door fixings and furniture is satisfactory. the checklist covers various stages of. Door Access Control System Checklist.
From kintronics.com
IP Door Access Control Kintronics Door Access Control System Checklist • check function of all interfaces with alarms is satisfactory. access control system maintenance checklist. Failing to keep up with access control maintenance can create a false sense of security. the checklist covers various stages of the access control system, from installation to maintenance. 10k+ visitors in the past month It includes items such as verifying power and.. Door Access Control System Checklist.
From www.safetrolley.com
Office Door Access Control System with (EM) Lock SafeTrolley Door Access Control System Checklist It includes items such as verifying power and. • check function of all interfaces with alarms is satisfactory. 10k+ visitors in the past month an access control system is only as effective as its sensors, and these devices should be checked often to ensure that they are in working order. access control system maintenance checklist. • check. Door Access Control System Checklist.
From www.360connect.com
Access Control System Checklist 360Connect Door Access Control System Checklist Failing to keep up with access control maintenance can create a false sense of security. an access control system is only as effective as its sensors, and these devices should be checked often to ensure that they are in working order. access control system maintenance checklist. the checklist covers various stages of the access control system, from. Door Access Control System Checklist.
From www.doormaticgaragedoors.co.uk
Garage Door Maintenance Checklist Doormatic Garage Doors Door Access Control System Checklist Failing to keep up with access control maintenance can create a false sense of security. access control system maintenance checklist. It includes items such as verifying power and. an access control system is only as effective as its sensors, and these devices should be checked often to ensure that they are in working order. • check operation. Door Access Control System Checklist.
From kintronics.com
How to Wire Your Door Access Control System Kintronics Door Access Control System Checklist an access control system is only as effective as its sensors, and these devices should be checked often to ensure that they are in working order. • check operation of all door fixings and furniture is satisfactory. access control system maintenance checklist. the checklist covers various stages of the access control system, from installation to maintenance.. Door Access Control System Checklist.
From www.scribd.com
Door and Window Inspection Checklist Door Access Control System Checklist Failing to keep up with access control maintenance can create a false sense of security. It includes items such as verifying power and. access control system maintenance checklist. 10k+ visitors in the past month the checklist covers various stages of the access control system, from installation to maintenance. • check operation of all door fixings and furniture. Door Access Control System Checklist.
From www.slideserve.com
PPT Access Control Lists PowerPoint Presentation, free download ID6769411 Door Access Control System Checklist • check operation of all door fixings and furniture is satisfactory. It includes items such as verifying power and. access control system maintenance checklist. an access control system is only as effective as its sensors, and these devices should be checked often to ensure that they are in working order. • check function of all interfaces with. Door Access Control System Checklist.
From www.scribd.com
Network Assessment Checklist Access Control Password Door Access Control System Checklist • check function of all interfaces with alarms is satisfactory. an access control system is only as effective as its sensors, and these devices should be checked often to ensure that they are in working order. Failing to keep up with access control maintenance can create a false sense of security. 10k+ visitors in the past month the. Door Access Control System Checklist.
From www.ftq360.com
Doors & Frames Inspection Checklist l FTQ360 Door Access Control System Checklist the checklist covers various stages of the access control system, from installation to maintenance. access control system maintenance checklist. • check function of all interfaces with alarms is satisfactory. • check operation of all door fixings and furniture is satisfactory. 10k+ visitors in the past month Failing to keep up with access control maintenance can create a. Door Access Control System Checklist.
From dxomxpmtx.blob.core.windows.net
Access Control Door Diagram at Jonathan Holman blog Door Access Control System Checklist access control system maintenance checklist. the checklist covers various stages of the access control system, from installation to maintenance. 10k+ visitors in the past month • check operation of all door fixings and furniture is satisfactory. Failing to keep up with access control maintenance can create a false sense of security. It includes items such as verifying. Door Access Control System Checklist.
From kintronics.com
How to Wire Your Door Access Control System Kintronics Door Access Control System Checklist access control system maintenance checklist. • check function of all interfaces with alarms is satisfactory. It includes items such as verifying power and. an access control system is only as effective as its sensors, and these devices should be checked often to ensure that they are in working order. Failing to keep up with access control maintenance can. Door Access Control System Checklist.
From ninelastz.blogspot.com
Door Access System At the same time, door access control systems simplify entry to your Door Access Control System Checklist • check function of all interfaces with alarms is satisfactory. • check operation of all door fixings and furniture is satisfactory. an access control system is only as effective as its sensors, and these devices should be checked often to ensure that they are in working order. 10k+ visitors in the past month It includes items such as. Door Access Control System Checklist.
From schematicfochesd6.z21.web.core.windows.net
Door Access Control System Installation Door Access Control System Checklist an access control system is only as effective as its sensors, and these devices should be checked often to ensure that they are in working order. It includes items such as verifying power and. the checklist covers various stages of the access control system, from installation to maintenance. • check operation of all door fixings and furniture. Door Access Control System Checklist.
From www.slideserve.com
PPT Door Access Control System In Delhi PowerPoint Presentation, free download ID11204374 Door Access Control System Checklist It includes items such as verifying power and. the checklist covers various stages of the access control system, from installation to maintenance. 10k+ visitors in the past month • check operation of all door fixings and furniture is satisfactory. Failing to keep up with access control maintenance can create a false sense of security. an access control. Door Access Control System Checklist.
From www.vrogue.co
Best Home Maintenance Checklist Furniture Door Blog vrogue.co Door Access Control System Checklist • check function of all interfaces with alarms is satisfactory. Failing to keep up with access control maintenance can create a false sense of security. It includes items such as verifying power and. 10k+ visitors in the past month • check operation of all door fixings and furniture is satisfactory. an access control system is only as effective. Door Access Control System Checklist.
From www.scribd.com
Checklist For Access Control System Installation PDF Camera Occupational Safety And Health Door Access Control System Checklist an access control system is only as effective as its sensors, and these devices should be checked often to ensure that they are in working order. • check operation of all door fixings and furniture is satisfactory. the checklist covers various stages of the access control system, from installation to maintenance. 10k+ visitors in the past month. Door Access Control System Checklist.
From www.slideserve.com
PPT Types of Door Access Control Systems PowerPoint Presentation, free download ID11773342 Door Access Control System Checklist Failing to keep up with access control maintenance can create a false sense of security. an access control system is only as effective as its sensors, and these devices should be checked often to ensure that they are in working order. It includes items such as verifying power and. • check function of all interfaces with alarms is satisfactory.. Door Access Control System Checklist.
From www.acmelocksmith.com
Access Control System Overview Basics of Access Control Door Access Control System Checklist Failing to keep up with access control maintenance can create a false sense of security. • check function of all interfaces with alarms is satisfactory. access control system maintenance checklist. It includes items such as verifying power and. 10k+ visitors in the past month an access control system is only as effective as its sensors, and these devices. Door Access Control System Checklist.
From www.dexform.com
Access equipment preuse checklist in Word and Pdf formats Door Access Control System Checklist an access control system is only as effective as its sensors, and these devices should be checked often to ensure that they are in working order. Failing to keep up with access control maintenance can create a false sense of security. the checklist covers various stages of the access control system, from installation to maintenance. access control. Door Access Control System Checklist.
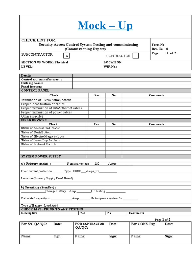
From www.scribd.com
Security Access Control System Checklist PDF Access Control Power Supply Door Access Control System Checklist • check function of all interfaces with alarms is satisfactory. • check operation of all door fixings and furniture is satisfactory. an access control system is only as effective as its sensors, and these devices should be checked often to ensure that they are in working order. Failing to keep up with access control maintenance can create a. Door Access Control System Checklist.
From www.scribd.com
Access Control Survey Form Access Control Door Door Access Control System Checklist an access control system is only as effective as its sensors, and these devices should be checked often to ensure that they are in working order. the checklist covers various stages of the access control system, from installation to maintenance. Failing to keep up with access control maintenance can create a false sense of security. • check. Door Access Control System Checklist.
From www.taylored.com
Access Control Maintenance Checklist Taylored Systems Door Access Control System Checklist 10k+ visitors in the past month the checklist covers various stages of the access control system, from installation to maintenance. It includes items such as verifying power and. • check function of all interfaces with alarms is satisfactory. access control system maintenance checklist. Failing to keep up with access control maintenance can create a false sense of security.. Door Access Control System Checklist.
From www.johnsoncontrols.co.uk
What is a Door Access Control System? Johnson Controls Door Access Control System Checklist Failing to keep up with access control maintenance can create a false sense of security. • check operation of all door fixings and furniture is satisfactory. • check function of all interfaces with alarms is satisfactory. an access control system is only as effective as its sensors, and these devices should be checked often to ensure that they. Door Access Control System Checklist.
From www.files.construction
QAQC Checklist Wood Doors Construction Documents And Templates Door Access Control System Checklist an access control system is only as effective as its sensors, and these devices should be checked often to ensure that they are in working order. access control system maintenance checklist. • check operation of all door fixings and furniture is satisfactory. Failing to keep up with access control maintenance can create a false sense of security.. Door Access Control System Checklist.
From kintronics.com
Hartmann Access Control Kintronics Door Access Control System Checklist Failing to keep up with access control maintenance can create a false sense of security. • check function of all interfaces with alarms is satisfactory. • check operation of all door fixings and furniture is satisfactory. an access control system is only as effective as its sensors, and these devices should be checked often to ensure that they. Door Access Control System Checklist.
From www.ateneodemontevideo.com
A Basic Guide To Door Access Control Systems in Accrington Ateneodemonte Video Door Access Control System Checklist Failing to keep up with access control maintenance can create a false sense of security. an access control system is only as effective as its sensors, and these devices should be checked often to ensure that they are in working order. the checklist covers various stages of the access control system, from installation to maintenance. access control. Door Access Control System Checklist.
From cashier.mijndomein.nl
User Access Audit Template Door Access Control System Checklist 10k+ visitors in the past month • check function of all interfaces with alarms is satisfactory. the checklist covers various stages of the access control system, from installation to maintenance. It includes items such as verifying power and. Failing to keep up with access control maintenance can create a false sense of security. • check operation of all. Door Access Control System Checklist.