Commercial Water Pipe Sizing . A water supply pipe line should be sized according expected demand and not the total theoretical demand. This equation can be used to determine the required pipe size based on flow rate and velocity limitations. Starting with the basics in water pipe sizing, the basic flow equation is q = va, (q = flow, v = velocity, and a = area). 47 rows explore our water pipe sizing charts. The size of water service mains, branch mains and risers shall be determined according to water supply demand [gpm (l/m)], available water pressure [psi (kpa)] and friction loss due to. Use our ansi pipe chart to determine the nominal pipe size, wall thickness, weight and schedule designations. Low use is deemed to have a. Understand wsfu, fixture branch pipe sizes, and flow rate considerations for optimal water supply. The ciphe loading units method, which differs to bs en 8558 and bs en 805, is that you have the option to choose between low, medium and high use (figure 2). Sizing of water supply pipe lines. This appendix contains information to help determine pipe sizes when designing a water distribution system.
from www.scribd.com
The ciphe loading units method, which differs to bs en 8558 and bs en 805, is that you have the option to choose between low, medium and high use (figure 2). This equation can be used to determine the required pipe size based on flow rate and velocity limitations. A water supply pipe line should be sized according expected demand and not the total theoretical demand. 47 rows explore our water pipe sizing charts. The size of water service mains, branch mains and risers shall be determined according to water supply demand [gpm (l/m)], available water pressure [psi (kpa)] and friction loss due to. Use our ansi pipe chart to determine the nominal pipe size, wall thickness, weight and schedule designations. Low use is deemed to have a. Starting with the basics in water pipe sizing, the basic flow equation is q = va, (q = flow, v = velocity, and a = area). Understand wsfu, fixture branch pipe sizes, and flow rate considerations for optimal water supply. This appendix contains information to help determine pipe sizes when designing a water distribution system.
Pipe Sizing Chart Pipe (Fluid Conveyance) Building Technology
Commercial Water Pipe Sizing Low use is deemed to have a. Sizing of water supply pipe lines. The ciphe loading units method, which differs to bs en 8558 and bs en 805, is that you have the option to choose between low, medium and high use (figure 2). This equation can be used to determine the required pipe size based on flow rate and velocity limitations. Low use is deemed to have a. Understand wsfu, fixture branch pipe sizes, and flow rate considerations for optimal water supply. Use our ansi pipe chart to determine the nominal pipe size, wall thickness, weight and schedule designations. 47 rows explore our water pipe sizing charts. The size of water service mains, branch mains and risers shall be determined according to water supply demand [gpm (l/m)], available water pressure [psi (kpa)] and friction loss due to. A water supply pipe line should be sized according expected demand and not the total theoretical demand. This appendix contains information to help determine pipe sizes when designing a water distribution system. Starting with the basics in water pipe sizing, the basic flow equation is q = va, (q = flow, v = velocity, and a = area).
From www.slideserve.com
PPT Sizing Pipes for Efficiency PowerPoint Presentation, free Commercial Water Pipe Sizing A water supply pipe line should be sized according expected demand and not the total theoretical demand. The size of water service mains, branch mains and risers shall be determined according to water supply demand [gpm (l/m)], available water pressure [psi (kpa)] and friction loss due to. Low use is deemed to have a. This appendix contains information to help. Commercial Water Pipe Sizing.
From alexmistry.z13.web.core.windows.net
Water Pipe Sizing Chart Fixture Units Commercial Water Pipe Sizing Understand wsfu, fixture branch pipe sizes, and flow rate considerations for optimal water supply. A water supply pipe line should be sized according expected demand and not the total theoretical demand. This appendix contains information to help determine pipe sizes when designing a water distribution system. The ciphe loading units method, which differs to bs en 8558 and bs en. Commercial Water Pipe Sizing.
From floridawaterstar.com
Pipe sizing Florida Water Star Commercial Water Pipe Sizing A water supply pipe line should be sized according expected demand and not the total theoretical demand. This equation can be used to determine the required pipe size based on flow rate and velocity limitations. This appendix contains information to help determine pipe sizes when designing a water distribution system. The size of water service mains, branch mains and risers. Commercial Water Pipe Sizing.
From plumbinghvacguy.com
Size Water Pipe A Guide Based on the 2021 International Plumbing Code Commercial Water Pipe Sizing Use our ansi pipe chart to determine the nominal pipe size, wall thickness, weight and schedule designations. Starting with the basics in water pipe sizing, the basic flow equation is q = va, (q = flow, v = velocity, and a = area). Sizing of water supply pipe lines. This appendix contains information to help determine pipe sizes when designing. Commercial Water Pipe Sizing.
From www.animalia-life.club
Water Pipe Sizes Commercial Water Pipe Sizing This equation can be used to determine the required pipe size based on flow rate and velocity limitations. Starting with the basics in water pipe sizing, the basic flow equation is q = va, (q = flow, v = velocity, and a = area). Use our ansi pipe chart to determine the nominal pipe size, wall thickness, weight and schedule. Commercial Water Pipe Sizing.
From www.youtube.com
Understanding International Plumbing Code Water Pipe Sizing YouTube Commercial Water Pipe Sizing Starting with the basics in water pipe sizing, the basic flow equation is q = va, (q = flow, v = velocity, and a = area). This equation can be used to determine the required pipe size based on flow rate and velocity limitations. A water supply pipe line should be sized according expected demand and not the total theoretical. Commercial Water Pipe Sizing.
From www.scribd.com
PIPE SIZE Pipe (Fluid Conveyance) Continuum Mechanics Commercial Water Pipe Sizing This appendix contains information to help determine pipe sizes when designing a water distribution system. Low use is deemed to have a. The size of water service mains, branch mains and risers shall be determined according to water supply demand [gpm (l/m)], available water pressure [psi (kpa)] and friction loss due to. Starting with the basics in water pipe sizing,. Commercial Water Pipe Sizing.
From rolandvere.weebly.com
Water pipe sizing chart R.M.V. Engineered Products & Valves. Commercial Water Pipe Sizing 47 rows explore our water pipe sizing charts. This equation can be used to determine the required pipe size based on flow rate and velocity limitations. Starting with the basics in water pipe sizing, the basic flow equation is q = va, (q = flow, v = velocity, and a = area). The size of water service mains, branch mains. Commercial Water Pipe Sizing.
From www.willplumb.com
How to Size Your Water Lines (PEX or Copper) Williams Plumbing Commercial Water Pipe Sizing 47 rows explore our water pipe sizing charts. This equation can be used to determine the required pipe size based on flow rate and velocity limitations. The ciphe loading units method, which differs to bs en 8558 and bs en 805, is that you have the option to choose between low, medium and high use (figure 2). A water supply. Commercial Water Pipe Sizing.
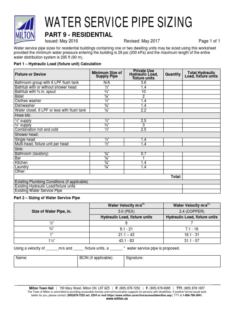
From www.scribd.com
Part 9 Water Pipe Sizing May2017 PDF PDF Plumbing Pipe (Fluid Commercial Water Pipe Sizing Starting with the basics in water pipe sizing, the basic flow equation is q = va, (q = flow, v = velocity, and a = area). Sizing of water supply pipe lines. Use our ansi pipe chart to determine the nominal pipe size, wall thickness, weight and schedule designations. This equation can be used to determine the required pipe size. Commercial Water Pipe Sizing.
From exowtlptz.blob.core.windows.net
What Are The Different Types Of Pipes Based On Diameters at Angel Commercial Water Pipe Sizing Understand wsfu, fixture branch pipe sizes, and flow rate considerations for optimal water supply. 47 rows explore our water pipe sizing charts. The ciphe loading units method, which differs to bs en 8558 and bs en 805, is that you have the option to choose between low, medium and high use (figure 2). Use our ansi pipe chart to determine. Commercial Water Pipe Sizing.
From mepacademy.com
How to Size Plumbing Water Pipes using Fixture Units MEP Academy Commercial Water Pipe Sizing This equation can be used to determine the required pipe size based on flow rate and velocity limitations. Sizing of water supply pipe lines. The ciphe loading units method, which differs to bs en 8558 and bs en 805, is that you have the option to choose between low, medium and high use (figure 2). A water supply pipe line. Commercial Water Pipe Sizing.
From www.animalia-life.club
Water Pipe Sizes Commercial Water Pipe Sizing This appendix contains information to help determine pipe sizes when designing a water distribution system. 47 rows explore our water pipe sizing charts. The ciphe loading units method, which differs to bs en 8558 and bs en 805, is that you have the option to choose between low, medium and high use (figure 2). Sizing of water supply pipe lines.. Commercial Water Pipe Sizing.
From www.youtube.com
How to size Plumbing Water pipes using Fixture Units YouTube Commercial Water Pipe Sizing A water supply pipe line should be sized according expected demand and not the total theoretical demand. Starting with the basics in water pipe sizing, the basic flow equation is q = va, (q = flow, v = velocity, and a = area). Use our ansi pipe chart to determine the nominal pipe size, wall thickness, weight and schedule designations.. Commercial Water Pipe Sizing.
From bestimagestactical.blogspot.com
Water Pipe Sizes Chart / This then sets the outside pipe diameter, the Commercial Water Pipe Sizing The ciphe loading units method, which differs to bs en 8558 and bs en 805, is that you have the option to choose between low, medium and high use (figure 2). This appendix contains information to help determine pipe sizes when designing a water distribution system. Understand wsfu, fixture branch pipe sizes, and flow rate considerations for optimal water supply.. Commercial Water Pipe Sizing.
From hvacsimplified.in
ASHRAE Chilled Water Pipe Sizing Chart hvacsimplified.in Commercial Water Pipe Sizing A water supply pipe line should be sized according expected demand and not the total theoretical demand. This equation can be used to determine the required pipe size based on flow rate and velocity limitations. Low use is deemed to have a. This appendix contains information to help determine pipe sizes when designing a water distribution system. Sizing of water. Commercial Water Pipe Sizing.
From mepacademy.com
How to Size Plumbing Water Pipes using Fixture Units MEP Academy Commercial Water Pipe Sizing Understand wsfu, fixture branch pipe sizes, and flow rate considerations for optimal water supply. Sizing of water supply pipe lines. Use our ansi pipe chart to determine the nominal pipe size, wall thickness, weight and schedule designations. A water supply pipe line should be sized according expected demand and not the total theoretical demand. This equation can be used to. Commercial Water Pipe Sizing.
From www.animalia-life.club
Water Pipe Sizes Commercial Water Pipe Sizing A water supply pipe line should be sized according expected demand and not the total theoretical demand. This equation can be used to determine the required pipe size based on flow rate and velocity limitations. Low use is deemed to have a. Understand wsfu, fixture branch pipe sizes, and flow rate considerations for optimal water supply. Use our ansi pipe. Commercial Water Pipe Sizing.
From www.brighthubengineering.com
Water Flow Rates for Pipe Sizes with Excel Formulas, Using the Hazen Commercial Water Pipe Sizing Starting with the basics in water pipe sizing, the basic flow equation is q = va, (q = flow, v = velocity, and a = area). This equation can be used to determine the required pipe size based on flow rate and velocity limitations. Sizing of water supply pipe lines. 47 rows explore our water pipe sizing charts. Low use. Commercial Water Pipe Sizing.
From www.scribd.com
Gpm and Pipe Size for Chilled Water Commercial Water Pipe Sizing Sizing of water supply pipe lines. A water supply pipe line should be sized according expected demand and not the total theoretical demand. The size of water service mains, branch mains and risers shall be determined according to water supply demand [gpm (l/m)], available water pressure [psi (kpa)] and friction loss due to. This equation can be used to determine. Commercial Water Pipe Sizing.
From www.pinterest.co.uk
PVC Pipe and PVC Fittings Dimensions Pvc pipe fittings, Pvc pipe Commercial Water Pipe Sizing 47 rows explore our water pipe sizing charts. Use our ansi pipe chart to determine the nominal pipe size, wall thickness, weight and schedule designations. This appendix contains information to help determine pipe sizes when designing a water distribution system. This equation can be used to determine the required pipe size based on flow rate and velocity limitations. Understand wsfu,. Commercial Water Pipe Sizing.
From www.scribd.com
Chilled Water Pipe Size Selection Sheet Chw Flow Rate Pipe Size (Dia Commercial Water Pipe Sizing Starting with the basics in water pipe sizing, the basic flow equation is q = va, (q = flow, v = velocity, and a = area). Low use is deemed to have a. Understand wsfu, fixture branch pipe sizes, and flow rate considerations for optimal water supply. This equation can be used to determine the required pipe size based on. Commercial Water Pipe Sizing.
From allpicturessnap.blogspot.com
Water Pipe Sizes Holding the bulk of the water volume, this pipe size Commercial Water Pipe Sizing Starting with the basics in water pipe sizing, the basic flow equation is q = va, (q = flow, v = velocity, and a = area). Sizing of water supply pipe lines. This equation can be used to determine the required pipe size based on flow rate and velocity limitations. Understand wsfu, fixture branch pipe sizes, and flow rate considerations. Commercial Water Pipe Sizing.
From joixquxnz.blob.core.windows.net
Commercial Pvc Pipe Sizes at Ronald Remaley blog Commercial Water Pipe Sizing The size of water service mains, branch mains and risers shall be determined according to water supply demand [gpm (l/m)], available water pressure [psi (kpa)] and friction loss due to. This appendix contains information to help determine pipe sizes when designing a water distribution system. A water supply pipe line should be sized according expected demand and not the total. Commercial Water Pipe Sizing.
From labbyag.es
Ashrae Chilled Water Pipe Sizing Chart Labb by AG Commercial Water Pipe Sizing 47 rows explore our water pipe sizing charts. The size of water service mains, branch mains and risers shall be determined according to water supply demand [gpm (l/m)], available water pressure [psi (kpa)] and friction loss due to. The ciphe loading units method, which differs to bs en 8558 and bs en 805, is that you have the option to. Commercial Water Pipe Sizing.
From up.codes
Appendix B Sizing the Building Water Supply and Distribution Piping Commercial Water Pipe Sizing Starting with the basics in water pipe sizing, the basic flow equation is q = va, (q = flow, v = velocity, and a = area). This appendix contains information to help determine pipe sizes when designing a water distribution system. Sizing of water supply pipe lines. 47 rows explore our water pipe sizing charts. Low use is deemed to. Commercial Water Pipe Sizing.
From www.scribd.com
Pipe Sizing Chart Pipe (Fluid Conveyance) Building Technology Commercial Water Pipe Sizing Use our ansi pipe chart to determine the nominal pipe size, wall thickness, weight and schedule designations. This equation can be used to determine the required pipe size based on flow rate and velocity limitations. The size of water service mains, branch mains and risers shall be determined according to water supply demand [gpm (l/m)], available water pressure [psi (kpa)]. Commercial Water Pipe Sizing.
From clearplastictubing.blogspot.com
Clear plastic tubing Mdpe water pipe sizing chart Commercial Water Pipe Sizing Low use is deemed to have a. Starting with the basics in water pipe sizing, the basic flow equation is q = va, (q = flow, v = velocity, and a = area). This equation can be used to determine the required pipe size based on flow rate and velocity limitations. The size of water service mains, branch mains and. Commercial Water Pipe Sizing.
From www.balkanplumbing.com
Calculating the required water supply line size Commercial Water Pipe Sizing This appendix contains information to help determine pipe sizes when designing a water distribution system. Sizing of water supply pipe lines. This equation can be used to determine the required pipe size based on flow rate and velocity limitations. Low use is deemed to have a. A water supply pipe line should be sized according expected demand and not the. Commercial Water Pipe Sizing.
From erinwhitehead.z13.web.core.windows.net
Water Pipe Sizing Chart Fixture Units Commercial Water Pipe Sizing This appendix contains information to help determine pipe sizes when designing a water distribution system. The size of water service mains, branch mains and risers shall be determined according to water supply demand [gpm (l/m)], available water pressure [psi (kpa)] and friction loss due to. Low use is deemed to have a. Understand wsfu, fixture branch pipe sizes, and flow. Commercial Water Pipe Sizing.
From elisejoyce.z13.web.core.windows.net
Water Pipe Size Chart Commercial Water Pipe Sizing Sizing of water supply pipe lines. Starting with the basics in water pipe sizing, the basic flow equation is q = va, (q = flow, v = velocity, and a = area). This equation can be used to determine the required pipe size based on flow rate and velocity limitations. This appendix contains information to help determine pipe sizes when. Commercial Water Pipe Sizing.
From finlayparkinson.z13.web.core.windows.net
Volume Of Water In Pipe Chart Commercial Water Pipe Sizing The ciphe loading units method, which differs to bs en 8558 and bs en 805, is that you have the option to choose between low, medium and high use (figure 2). 47 rows explore our water pipe sizing charts. A water supply pipe line should be sized according expected demand and not the total theoretical demand. Use our ansi pipe. Commercial Water Pipe Sizing.
From willplumb.com
How to Size Your Water Lines (PEX or Copper) Williams Plumbing Commercial Water Pipe Sizing This appendix contains information to help determine pipe sizes when designing a water distribution system. Low use is deemed to have a. The ciphe loading units method, which differs to bs en 8558 and bs en 805, is that you have the option to choose between low, medium and high use (figure 2). Use our ansi pipe chart to determine. Commercial Water Pipe Sizing.
From renellekeldon.blogspot.com
Water Pipe Sizing Chart Pdf RenelleKeldon Commercial Water Pipe Sizing The ciphe loading units method, which differs to bs en 8558 and bs en 805, is that you have the option to choose between low, medium and high use (figure 2). Use our ansi pipe chart to determine the nominal pipe size, wall thickness, weight and schedule designations. Low use is deemed to have a. The size of water service. Commercial Water Pipe Sizing.
From www.commercial-industrial-supply.com
pvc Archives CIS Blog Commercial Water Pipe Sizing Starting with the basics in water pipe sizing, the basic flow equation is q = va, (q = flow, v = velocity, and a = area). The ciphe loading units method, which differs to bs en 8558 and bs en 805, is that you have the option to choose between low, medium and high use (figure 2). This equation can. Commercial Water Pipe Sizing.