Ky Property Records Search . one click of a button and you are well on your way to an efficient land records search. attorneys, title search personnel, surveyors, and realtors have grown to depend upon the cclix system to provide the fastest. when this approach is used, the pva will usually need to work with the property owner to obtain an accurate record of the income. To find all properties on a specific road, type in the. A trip to the jefferson county clerk’s office has. This search of properties covers both owned and leased by the state and is updated on a monthly basis. To find all properties on a specific road, type. search our free property database to easily access detailed property records. Simply enter an address to find property deeds,. in an effort to assist property owners understand the administration of the property tax in kentucky, this website will provide.
from templates.legal
To find all properties on a specific road, type. when this approach is used, the pva will usually need to work with the property owner to obtain an accurate record of the income. attorneys, title search personnel, surveyors, and realtors have grown to depend upon the cclix system to provide the fastest. one click of a button and you are well on your way to an efficient land records search. This search of properties covers both owned and leased by the state and is updated on a monthly basis. in an effort to assist property owners understand the administration of the property tax in kentucky, this website will provide. To find all properties on a specific road, type in the. search our free property database to easily access detailed property records. Simply enter an address to find property deeds,. A trip to the jefferson county clerk’s office has.
Kentucky Deed Forms & Templates (Free) [Word, PDF, ODT]
Ky Property Records Search To find all properties on a specific road, type in the. attorneys, title search personnel, surveyors, and realtors have grown to depend upon the cclix system to provide the fastest. Simply enter an address to find property deeds,. This search of properties covers both owned and leased by the state and is updated on a monthly basis. search our free property database to easily access detailed property records. when this approach is used, the pva will usually need to work with the property owner to obtain an accurate record of the income. in an effort to assist property owners understand the administration of the property tax in kentucky, this website will provide. one click of a button and you are well on your way to an efficient land records search. To find all properties on a specific road, type. To find all properties on a specific road, type in the. A trip to the jefferson county clerk’s office has.
From www.sidwellco.com
Jefferson County Property Valuation Administration Office, KY Sidwell Ky Property Records Search To find all properties on a specific road, type. attorneys, title search personnel, surveyors, and realtors have grown to depend upon the cclix system to provide the fastest. Simply enter an address to find property deeds,. one click of a button and you are well on your way to an efficient land records search. in an effort. Ky Property Records Search.
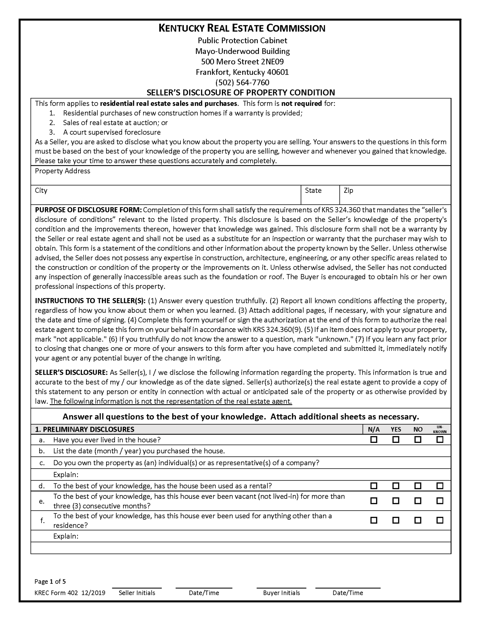
From www.bank2home.com
How To Perform A Property Deed Search By Address Or Owner Name Ky Property Records Search To find all properties on a specific road, type in the. attorneys, title search personnel, surveyors, and realtors have grown to depend upon the cclix system to provide the fastest. one click of a button and you are well on your way to an efficient land records search. Simply enter an address to find property deeds,. A trip. Ky Property Records Search.
From templates.legal
Kentucky Deed Forms & Templates (Free) [Word, PDF, ODT] Ky Property Records Search To find all properties on a specific road, type. A trip to the jefferson county clerk’s office has. attorneys, title search personnel, surveyors, and realtors have grown to depend upon the cclix system to provide the fastest. one click of a button and you are well on your way to an efficient land records search. search our. Ky Property Records Search.
From www.courthousedirect.com
Search Kentucky Public Property Records Online Ky Property Records Search A trip to the jefferson county clerk’s office has. when this approach is used, the pva will usually need to work with the property owner to obtain an accurate record of the income. one click of a button and you are well on your way to an efficient land records search. This search of properties covers both owned. Ky Property Records Search.
From www.realtor.com
Berea, KY Mobile & Manufactured Homes for Sale Ky Property Records Search This search of properties covers both owned and leased by the state and is updated on a monthly basis. search our free property database to easily access detailed property records. one click of a button and you are well on your way to an efficient land records search. To find all properties on a specific road, type. . Ky Property Records Search.
From www.pdffiller.com
kentucky affidavit Doc Template pdfFiller Ky Property Records Search To find all properties on a specific road, type. A trip to the jefferson county clerk’s office has. Simply enter an address to find property deeds,. This search of properties covers both owned and leased by the state and is updated on a monthly basis. one click of a button and you are well on your way to an. Ky Property Records Search.
From www.loopnet.com
7115 Preston Hwy, Louisville, KY 40219 Property Record Ky Property Records Search Simply enter an address to find property deeds,. search our free property database to easily access detailed property records. A trip to the jefferson county clerk’s office has. This search of properties covers both owned and leased by the state and is updated on a monthly basis. one click of a button and you are well on your. Ky Property Records Search.
From www.youtube.com
Kentucky Property Records (Search Online By Name and Address) YouTube Ky Property Records Search attorneys, title search personnel, surveyors, and realtors have grown to depend upon the cclix system to provide the fastest. To find all properties on a specific road, type. when this approach is used, the pva will usually need to work with the property owner to obtain an accurate record of the income. A trip to the jefferson county. Ky Property Records Search.
From www.signnow.com
Living Trust Property Record Kentucky Form Fill Out and Sign Ky Property Records Search This search of properties covers both owned and leased by the state and is updated on a monthly basis. To find all properties on a specific road, type in the. A trip to the jefferson county clerk’s office has. search our free property database to easily access detailed property records. Simply enter an address to find property deeds,. . Ky Property Records Search.
From www.realtor.com
Grayson, KY Real Estate Grayson Homes for Sale Ky Property Records Search search our free property database to easily access detailed property records. one click of a button and you are well on your way to an efficient land records search. Simply enter an address to find property deeds,. attorneys, title search personnel, surveyors, and realtors have grown to depend upon the cclix system to provide the fastest. To. Ky Property Records Search.
From www.zillow.com
1114 Sweetwater Rd, Berea, KY 40403 Zillow Ky Property Records Search when this approach is used, the pva will usually need to work with the property owner to obtain an accurate record of the income. A trip to the jefferson county clerk’s office has. one click of a button and you are well on your way to an efficient land records search. attorneys, title search personnel, surveyors, and. Ky Property Records Search.
From opendocs.com
Free Kentucky Quit Claim Deed Form PDF WORD RTF Ky Property Records Search A trip to the jefferson county clerk’s office has. Simply enter an address to find property deeds,. one click of a button and you are well on your way to an efficient land records search. when this approach is used, the pva will usually need to work with the property owner to obtain an accurate record of the. Ky Property Records Search.
From www.landwatch.com
Betsy Layne, Floyd County, KY House for sale Property ID 410029478 Ky Property Records Search Simply enter an address to find property deeds,. attorneys, title search personnel, surveyors, and realtors have grown to depend upon the cclix system to provide the fastest. A trip to the jefferson county clerk’s office has. search our free property database to easily access detailed property records. in an effort to assist property owners understand the administration. Ky Property Records Search.
From eforms.com
Kentucky Deed Forms eForms Ky Property Records Search To find all properties on a specific road, type in the. when this approach is used, the pva will usually need to work with the property owner to obtain an accurate record of the income. This search of properties covers both owned and leased by the state and is updated on a monthly basis. search our free property. Ky Property Records Search.
From esign.com
Free Kentucky Property Disclosure Statement PDF Ky Property Records Search search our free property database to easily access detailed property records. one click of a button and you are well on your way to an efficient land records search. This search of properties covers both owned and leased by the state and is updated on a monthly basis. A trip to the jefferson county clerk’s office has. To. Ky Property Records Search.
From www.pinterest.com
Kentucky Public Records Public records, Kentucky, Public Ky Property Records Search Simply enter an address to find property deeds,. attorneys, title search personnel, surveyors, and realtors have grown to depend upon the cclix system to provide the fastest. A trip to the jefferson county clerk’s office has. in an effort to assist property owners understand the administration of the property tax in kentucky, this website will provide. search. Ky Property Records Search.
From esign.com
Free Kentucky Deed Forms Ky Property Records Search Simply enter an address to find property deeds,. one click of a button and you are well on your way to an efficient land records search. This search of properties covers both owned and leased by the state and is updated on a monthly basis. when this approach is used, the pva will usually need to work with. Ky Property Records Search.
From allmapslibrary.blogspot.com
World Maps Library Complete Resources Kentucky Maps With Cities And Ky Property Records Search when this approach is used, the pva will usually need to work with the property owner to obtain an accurate record of the income. To find all properties on a specific road, type in the. This search of properties covers both owned and leased by the state and is updated on a monthly basis. attorneys, title search personnel,. Ky Property Records Search.
From staeti.blogspot.com
Kentucky Property Lien Search STAETI Ky Property Records Search This search of properties covers both owned and leased by the state and is updated on a monthly basis. one click of a button and you are well on your way to an efficient land records search. Simply enter an address to find property deeds,. search our free property database to easily access detailed property records. when. Ky Property Records Search.
From legaltemplates.net
Free Warranty Deed Form PDF & Word Ky Property Records Search when this approach is used, the pva will usually need to work with the property owner to obtain an accurate record of the income. search our free property database to easily access detailed property records. This search of properties covers both owned and leased by the state and is updated on a monthly basis. one click of. Ky Property Records Search.
From www.loopnet.com
3416 Bank St, Louisville, KY 40212 Property Record Ky Property Records Search one click of a button and you are well on your way to an efficient land records search. attorneys, title search personnel, surveyors, and realtors have grown to depend upon the cclix system to provide the fastest. in an effort to assist property owners understand the administration of the property tax in kentucky, this website will provide.. Ky Property Records Search.
From www.youtube.com
Kentucky Property Management Agreement EXPLAINED YouTube Ky Property Records Search one click of a button and you are well on your way to an efficient land records search. when this approach is used, the pva will usually need to work with the property owner to obtain an accurate record of the income. This search of properties covers both owned and leased by the state and is updated on. Ky Property Records Search.
From esign.com
Free Kentucky Residential Purchase and Sale Agreement PDF Word Ky Property Records Search To find all properties on a specific road, type. To find all properties on a specific road, type in the. This search of properties covers both owned and leased by the state and is updated on a monthly basis. search our free property database to easily access detailed property records. one click of a button and you are. Ky Property Records Search.
From www.realtor.com
6910 Kentucky Highway 172, Flat Gap, KY 41219 Ky Property Records Search This search of properties covers both owned and leased by the state and is updated on a monthly basis. To find all properties on a specific road, type in the. in an effort to assist property owners understand the administration of the property tax in kentucky, this website will provide. attorneys, title search personnel, surveyors, and realtors have. Ky Property Records Search.
From www.signnow.com
Partial Release of Property from Mortgage for Corporation Kentucky Form Ky Property Records Search To find all properties on a specific road, type. Simply enter an address to find property deeds,. in an effort to assist property owners understand the administration of the property tax in kentucky, this website will provide. search our free property database to easily access detailed property records. attorneys, title search personnel, surveyors, and realtors have grown. Ky Property Records Search.
From www.accesscatalog.com
Access Securepak Kentucky Property Program Ky Property Records Search search our free property database to easily access detailed property records. To find all properties on a specific road, type. A trip to the jefferson county clerk’s office has. in an effort to assist property owners understand the administration of the property tax in kentucky, this website will provide. Simply enter an address to find property deeds,. . Ky Property Records Search.
From www.youtube.com
Property title records in Pike County Kentucky AFX YouTube Ky Property Records Search Simply enter an address to find property deeds,. This search of properties covers both owned and leased by the state and is updated on a monthly basis. one click of a button and you are well on your way to an efficient land records search. A trip to the jefferson county clerk’s office has. when this approach is. Ky Property Records Search.
From germainzhannis.pages.dev
Property Owner Map Kentucky A Map Of The Usa Ky Property Records Search To find all properties on a specific road, type in the. in an effort to assist property owners understand the administration of the property tax in kentucky, this website will provide. Simply enter an address to find property deeds,. search our free property database to easily access detailed property records. when this approach is used, the pva. Ky Property Records Search.
From www.explorelexingtonky.com
Property Search Explore Lexington KY Homes for Sale and Central KY Ky Property Records Search attorneys, title search personnel, surveyors, and realtors have grown to depend upon the cclix system to provide the fastest. search our free property database to easily access detailed property records. in an effort to assist property owners understand the administration of the property tax in kentucky, this website will provide. when this approach is used, the. Ky Property Records Search.
From staeti.blogspot.com
Kentucky Property Lien Search STAETI Ky Property Records Search This search of properties covers both owned and leased by the state and is updated on a monthly basis. To find all properties on a specific road, type in the. A trip to the jefferson county clerk’s office has. Simply enter an address to find property deeds,. when this approach is used, the pva will usually need to work. Ky Property Records Search.
From www.uslegalforms.com
404 Condominium Seller's Certificate Kentucky Real Estate Fill Ky Property Records Search Simply enter an address to find property deeds,. when this approach is used, the pva will usually need to work with the property owner to obtain an accurate record of the income. To find all properties on a specific road, type in the. search our free property database to easily access detailed property records. This search of properties. Ky Property Records Search.
From esign.com
Free Kentucky Deed Forms Ky Property Records Search A trip to the jefferson county clerk’s office has. search our free property database to easily access detailed property records. when this approach is used, the pva will usually need to work with the property owner to obtain an accurate record of the income. one click of a button and you are well on your way to. Ky Property Records Search.
From templates.legal
Kentucky Deed Forms & Templates (Free) [Word, PDF, ODT] Ky Property Records Search attorneys, title search personnel, surveyors, and realtors have grown to depend upon the cclix system to provide the fastest. search our free property database to easily access detailed property records. Simply enter an address to find property deeds,. This search of properties covers both owned and leased by the state and is updated on a monthly basis. To. Ky Property Records Search.
From infotracer.com
Kentucky Property Records Search Owners, Title, Tax and Deeds Ky Property Records Search search our free property database to easily access detailed property records. Simply enter an address to find property deeds,. when this approach is used, the pva will usually need to work with the property owner to obtain an accurate record of the income. in an effort to assist property owners understand the administration of the property tax. Ky Property Records Search.
From www.zillow.com
341 Kings Trace Dr, Berea, KY 40403 Zillow Ky Property Records Search when this approach is used, the pva will usually need to work with the property owner to obtain an accurate record of the income. search our free property database to easily access detailed property records. one click of a button and you are well on your way to an efficient land records search. A trip to the. Ky Property Records Search.