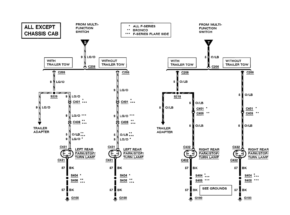
F250 Rear Running Lights Not Working . I have been calling and searching through owners manual for the fuse location for the rear tail lights on my 2019 f250. Check the running light fuses and also the trailer light fuses or anything associated. Should be the brown wire for. Learn from me before your freak out about your lights not working. The blinkers, brake lights, reverse lights and backup camera all work fine but i have no running lights. I have headlights, dash lights, blinkers. My running lights just stopped working. I'd check for voltage at the bulb sockets. Connector 465 connects the tail lights to the parking lamp circuit. I looked in the owners manual. Use your meter or test light to check. Changed the fuse but it keeps popping under. If both are unpowered, then there is likely an issue with the park lamp relay that is. On the driver side rear, check to see if connector 465 is damaged or unpluged. I would start at the tail light connector there checking for corroded pins and damaged wires.
from www.ford-trucks.com
I'd check for voltage at the bulb sockets. I have headlights, dash lights, blinkers. Learn from me before your freak out about your lights not working. Check the running light fuses and also the trailer light fuses or anything associated. Use your meter or test light to check. Changed the fuse but it keeps popping under. On the driver side rear, check to see if connector 465 is damaged or unpluged. I looked in the owners manual. Should be the brown wire for. Connector 465 connects the tail lights to the parking lamp circuit.
92 f250 Rear lights wiring Ford Truck Enthusiasts Forums
F250 Rear Running Lights Not Working Should be the brown wire for. I have headlights, dash lights, blinkers. I looked in the owners manual. The blinkers, brake lights, reverse lights and backup camera all work fine but i have no running lights. On the driver side rear, check to see if connector 465 is damaged or unpluged. Use your meter or test light to check. I have been calling and searching through owners manual for the fuse location for the rear tail lights on my 2019 f250. Connector 465 connects the tail lights to the parking lamp circuit. Check the running light fuses and also the trailer light fuses or anything associated. I'd check for voltage at the bulb sockets. My running lights just stopped working. I would start at the tail light connector there checking for corroded pins and damaged wires. Learn from me before your freak out about your lights not working. If both are unpowered, then there is likely an issue with the park lamp relay that is. Should be the brown wire for. Changed the fuse but it keeps popping under.
From wiringfixmethil.z13.web.core.windows.net
Ford F250 Tail Lights Not Working F250 Rear Running Lights Not Working The blinkers, brake lights, reverse lights and backup camera all work fine but i have no running lights. Use your meter or test light to check. Connector 465 connects the tail lights to the parking lamp circuit. If both are unpowered, then there is likely an issue with the park lamp relay that is. I have headlights, dash lights, blinkers.. F250 Rear Running Lights Not Working.
From hxenxlqjf.blob.core.windows.net
Trailer Lights Not Working On F250 at Antonio Jordan blog F250 Rear Running Lights Not Working My running lights just stopped working. Check the running light fuses and also the trailer light fuses or anything associated. Should be the brown wire for. Changed the fuse but it keeps popping under. I'd check for voltage at the bulb sockets. I have been calling and searching through owners manual for the fuse location for the rear tail lights. F250 Rear Running Lights Not Working.
From wiringfixmethil.z13.web.core.windows.net
Ford F250 Tail Lights Not Working F250 Rear Running Lights Not Working Use your meter or test light to check. Check the running light fuses and also the trailer light fuses or anything associated. I looked in the owners manual. Changed the fuse but it keeps popping under. Learn from me before your freak out about your lights not working. My running lights just stopped working. Should be the brown wire for.. F250 Rear Running Lights Not Working.
From www.2carpros.com
Running Rear Lights Not Working? Headlights, Fog Lights, Brake F250 Rear Running Lights Not Working I have headlights, dash lights, blinkers. Should be the brown wire for. Changed the fuse but it keeps popping under. I have been calling and searching through owners manual for the fuse location for the rear tail lights on my 2019 f250. Check the running light fuses and also the trailer light fuses or anything associated. I'd check for voltage. F250 Rear Running Lights Not Working.
From www.mavericktruckclub.com
Drivers rear running lights not working.... 2022 F250 Rear Running Lights Not Working My running lights just stopped working. Should be the brown wire for. Changed the fuse but it keeps popping under. Learn from me before your freak out about your lights not working. If both are unpowered, then there is likely an issue with the park lamp relay that is. Check the running light fuses and also the trailer light fuses. F250 Rear Running Lights Not Working.
From homeminimalisite.com
Running Lights On Camper Not Working F250 Rear Running Lights Not Working Check the running light fuses and also the trailer light fuses or anything associated. I have headlights, dash lights, blinkers. My running lights just stopped working. On the driver side rear, check to see if connector 465 is damaged or unpluged. I have been calling and searching through owners manual for the fuse location for the rear tail lights on. F250 Rear Running Lights Not Working.
From www.ford-trucks.com
92 f250 Rear lights wiring Ford Truck Enthusiasts Forums F250 Rear Running Lights Not Working If both are unpowered, then there is likely an issue with the park lamp relay that is. On the driver side rear, check to see if connector 465 is damaged or unpluged. My running lights just stopped working. Connector 465 connects the tail lights to the parking lamp circuit. I have headlights, dash lights, blinkers. Check the running light fuses. F250 Rear Running Lights Not Working.
From mechanicspick.com
Running Lights On Trailer Not Working Causes & Fixes F250 Rear Running Lights Not Working I have been calling and searching through owners manual for the fuse location for the rear tail lights on my 2019 f250. If both are unpowered, then there is likely an issue with the park lamp relay that is. The blinkers, brake lights, reverse lights and backup camera all work fine but i have no running lights. Connector 465 connects. F250 Rear Running Lights Not Working.
From www.justanswer.com
Rear running lights not working, no license plate light, brake and turn F250 Rear Running Lights Not Working Connector 465 connects the tail lights to the parking lamp circuit. If both are unpowered, then there is likely an issue with the park lamp relay that is. I looked in the owners manual. On the driver side rear, check to see if connector 465 is damaged or unpluged. Check the running light fuses and also the trailer light fuses. F250 Rear Running Lights Not Working.
From www.f150forum.com
Rear left running light not working Ford F150 Forum Community of F250 Rear Running Lights Not Working I looked in the owners manual. Use your meter or test light to check. The blinkers, brake lights, reverse lights and backup camera all work fine but i have no running lights. My running lights just stopped working. Changed the fuse but it keeps popping under. I'd check for voltage at the bulb sockets. Learn from me before your freak. F250 Rear Running Lights Not Working.
From www.ford-trucks.com
No rear running/park lights 2015 F250 Ford Truck Enthusiasts Forums F250 Rear Running Lights Not Working My running lights just stopped working. If both are unpowered, then there is likely an issue with the park lamp relay that is. Changed the fuse but it keeps popping under. Check the running light fuses and also the trailer light fuses or anything associated. I would start at the tail light connector there checking for corroded pins and damaged. F250 Rear Running Lights Not Working.
From circuitenginecretan.z13.web.core.windows.net
F250 Tail Light Removal F250 Rear Running Lights Not Working I looked in the owners manual. On the driver side rear, check to see if connector 465 is damaged or unpluged. The blinkers, brake lights, reverse lights and backup camera all work fine but i have no running lights. I have headlights, dash lights, blinkers. Check the running light fuses and also the trailer light fuses or anything associated. If. F250 Rear Running Lights Not Working.
From www.coloradofans.com
Rear running lights not working Page 2 Chevy Colorado & GMC Canyon F250 Rear Running Lights Not Working If both are unpowered, then there is likely an issue with the park lamp relay that is. I would start at the tail light connector there checking for corroded pins and damaged wires. I looked in the owners manual. Learn from me before your freak out about your lights not working. Should be the brown wire for. I have headlights,. F250 Rear Running Lights Not Working.
From vehicleschool.com
Ford F150 Rear Running Lights Not Working 4 Ways To Fix F250 Rear Running Lights Not Working The blinkers, brake lights, reverse lights and backup camera all work fine but i have no running lights. I have been calling and searching through owners manual for the fuse location for the rear tail lights on my 2019 f250. Use your meter or test light to check. My running lights just stopped working. Check the running light fuses and. F250 Rear Running Lights Not Working.
From www.justanswer.com
2011 Ford F350, having problems with the Rear left tail lights not F250 Rear Running Lights Not Working If both are unpowered, then there is likely an issue with the park lamp relay that is. The blinkers, brake lights, reverse lights and backup camera all work fine but i have no running lights. Changed the fuse but it keeps popping under. Connector 465 connects the tail lights to the parking lamp circuit. I looked in the owners manual.. F250 Rear Running Lights Not Working.
From carriere.autocar.blog
Ford F250 Trailer Lights Not Working Carriere's Blog F250 Rear Running Lights Not Working I'd check for voltage at the bulb sockets. The blinkers, brake lights, reverse lights and backup camera all work fine but i have no running lights. Check the running light fuses and also the trailer light fuses or anything associated. I have been calling and searching through owners manual for the fuse location for the rear tail lights on my. F250 Rear Running Lights Not Working.
From www.justanswer.com
I have a 2000 Ford F250 diesel superduty. THe taillights, parking F250 Rear Running Lights Not Working Check the running light fuses and also the trailer light fuses or anything associated. Use your meter or test light to check. Connector 465 connects the tail lights to the parking lamp circuit. Learn from me before your freak out about your lights not working. On the driver side rear, check to see if connector 465 is damaged or unpluged.. F250 Rear Running Lights Not Working.
From www.2carpros.com
Running Rear Lights Not Working? Headlights, Fog Lights, Brake F250 Rear Running Lights Not Working Learn from me before your freak out about your lights not working. Check the running light fuses and also the trailer light fuses or anything associated. Should be the brown wire for. I have headlights, dash lights, blinkers. My running lights just stopped working. On the driver side rear, check to see if connector 465 is damaged or unpluged. I. F250 Rear Running Lights Not Working.
From www.northerntool.com
Race Sport Lighting, 20112016 Ford F250F450 Hitch Bar Reverse Lights F250 Rear Running Lights Not Working Learn from me before your freak out about your lights not working. I would start at the tail light connector there checking for corroded pins and damaged wires. Connector 465 connects the tail lights to the parking lamp circuit. On the driver side rear, check to see if connector 465 is damaged or unpluged. The blinkers, brake lights, reverse lights. F250 Rear Running Lights Not Working.
From www.youtube.com
My F250 Lights Stopped Working!!! EASY FIX! YouTube F250 Rear Running Lights Not Working I have been calling and searching through owners manual for the fuse location for the rear tail lights on my 2019 f250. I would start at the tail light connector there checking for corroded pins and damaged wires. If both are unpowered, then there is likely an issue with the park lamp relay that is. The blinkers, brake lights, reverse. F250 Rear Running Lights Not Working.
From www.bluenet-26.com
【けまでに】 ACANII For 20112016 Ford F250 F350 SuperDuty Black LED Tube w F250 Rear Running Lights Not Working My running lights just stopped working. On the driver side rear, check to see if connector 465 is damaged or unpluged. I looked in the owners manual. I'd check for voltage at the bulb sockets. I would start at the tail light connector there checking for corroded pins and damaged wires. Learn from me before your freak out about your. F250 Rear Running Lights Not Working.
From www.justanswer.com
Have 2008 F250 with TBC, trailer running lights not working, everything F250 Rear Running Lights Not Working The blinkers, brake lights, reverse lights and backup camera all work fine but i have no running lights. I looked in the owners manual. Connector 465 connects the tail lights to the parking lamp circuit. On the driver side rear, check to see if connector 465 is damaged or unpluged. My running lights just stopped working. I would start at. F250 Rear Running Lights Not Working.
From www.justanswer.com
Rear running lights not working, no license plate light, brake and turn F250 Rear Running Lights Not Working If both are unpowered, then there is likely an issue with the park lamp relay that is. I'd check for voltage at the bulb sockets. Should be the brown wire for. I would start at the tail light connector there checking for corroded pins and damaged wires. I looked in the owners manual. The blinkers, brake lights, reverse lights and. F250 Rear Running Lights Not Working.
From americanwarmoms.org
Why Is My Daytime Running Lights Not Working F250 Rear Running Lights Not Working My running lights just stopped working. Learn from me before your freak out about your lights not working. Check the running light fuses and also the trailer light fuses or anything associated. If both are unpowered, then there is likely an issue with the park lamp relay that is. On the driver side rear, check to see if connector 465. F250 Rear Running Lights Not Working.
From wirepartclaudia.z19.web.core.windows.net
1997 Ford F250 Tail Light Wiring Diagram F250 Rear Running Lights Not Working The blinkers, brake lights, reverse lights and backup camera all work fine but i have no running lights. My running lights just stopped working. I'd check for voltage at the bulb sockets. Should be the brown wire for. Use your meter or test light to check. If both are unpowered, then there is likely an issue with the park lamp. F250 Rear Running Lights Not Working.
From www.ford-trucks.com
Rear Running Lights not working. Have done some testing and fixes F250 Rear Running Lights Not Working On the driver side rear, check to see if connector 465 is damaged or unpluged. I would start at the tail light connector there checking for corroded pins and damaged wires. Use your meter or test light to check. Connector 465 connects the tail lights to the parking lamp circuit. Learn from me before your freak out about your lights. F250 Rear Running Lights Not Working.
From fixwiringbeich.z19.web.core.windows.net
Ford F250 Tail Lights Not Working F250 Rear Running Lights Not Working Connector 465 connects the tail lights to the parking lamp circuit. If both are unpowered, then there is likely an issue with the park lamp relay that is. Changed the fuse but it keeps popping under. I would start at the tail light connector there checking for corroded pins and damaged wires. I have headlights, dash lights, blinkers. Should be. F250 Rear Running Lights Not Working.
From www.2carpros.com
Rear Running Lights Not Working Recently Noticed That My Rear F250 Rear Running Lights Not Working I'd check for voltage at the bulb sockets. The blinkers, brake lights, reverse lights and backup camera all work fine but i have no running lights. Should be the brown wire for. I have headlights, dash lights, blinkers. Use your meter or test light to check. Learn from me before your freak out about your lights not working. Changed the. F250 Rear Running Lights Not Working.
From www.ford-trucks.com
No rear running lights or trailer running lights Ford Truck F250 Rear Running Lights Not Working Changed the fuse but it keeps popping under. I'd check for voltage at the bulb sockets. I have been calling and searching through owners manual for the fuse location for the rear tail lights on my 2019 f250. If both are unpowered, then there is likely an issue with the park lamp relay that is. Learn from me before your. F250 Rear Running Lights Not Working.
From www.youtube.com
FORD F150 BRAKE LIGHTS SWITCH FUSE LOCATION REPLACEMENT F150 BRAKE F250 Rear Running Lights Not Working If both are unpowered, then there is likely an issue with the park lamp relay that is. Changed the fuse but it keeps popping under. The blinkers, brake lights, reverse lights and backup camera all work fine but i have no running lights. I have been calling and searching through owners manual for the fuse location for the rear tail. F250 Rear Running Lights Not Working.
From schematicentitavaf0.z22.web.core.windows.net
Ford Cab And Chassis Tail Light Wiring F250 Rear Running Lights Not Working If both are unpowered, then there is likely an issue with the park lamp relay that is. I'd check for voltage at the bulb sockets. My running lights just stopped working. On the driver side rear, check to see if connector 465 is damaged or unpluged. Use your meter or test light to check. Should be the brown wire for.. F250 Rear Running Lights Not Working.
From www.2carpros.com
Rear Running Lights Not Working Recently Noticed That My Rear F250 Rear Running Lights Not Working I'd check for voltage at the bulb sockets. Check the running light fuses and also the trailer light fuses or anything associated. My running lights just stopped working. Use your meter or test light to check. I have headlights, dash lights, blinkers. Should be the brown wire for. Changed the fuse but it keeps popping under. I would start at. F250 Rear Running Lights Not Working.
From americanwarmoms.org
Why Do My Daytime Running Lights Not Work F250 Rear Running Lights Not Working If both are unpowered, then there is likely an issue with the park lamp relay that is. I'd check for voltage at the bulb sockets. I looked in the owners manual. Learn from me before your freak out about your lights not working. Check the running light fuses and also the trailer light fuses or anything associated. Connector 465 connects. F250 Rear Running Lights Not Working.
From www.2carpros.com
Driver Rear Running Light Not Working Every Single One of My F250 Rear Running Lights Not Working I looked in the owners manual. Check the running light fuses and also the trailer light fuses or anything associated. Changed the fuse but it keeps popping under. I'd check for voltage at the bulb sockets. Should be the brown wire for. Connector 465 connects the tail lights to the parking lamp circuit. I have headlights, dash lights, blinkers. The. F250 Rear Running Lights Not Working.
From americanwarmoms.org
Why Are My Daytime Running Lights Not Working F250 Rear Running Lights Not Working If both are unpowered, then there is likely an issue with the park lamp relay that is. I looked in the owners manual. Connector 465 connects the tail lights to the parking lamp circuit. I have been calling and searching through owners manual for the fuse location for the rear tail lights on my 2019 f250. The blinkers, brake lights,. F250 Rear Running Lights Not Working.