Expansion Joint For Gypsum Board . See examples, tips and recommendations from a drywall expert. Learn how to specify and install control joints in gypsum board walls and ceilings to prevent cracking and meet code requirements. Expansion joints (also called construction joints) can reduce the effects of building movement on building materials, and they. Learn how to install control joints (expansion joints) in drywall to prevent ridging at structural transitions. The 47mm wide metal strip accommodates. Learn why control joints are essential to prevent cracks and damage in gypsum board due to thermal expansion and contraction. Gyproc control joint is installed at lateral joints to help relieve stress and movement in the drywall structure, preventing expansion damage. Find out the types, locations, and materials of. If control joints are overlooked or not installed properly, drywall expands and leads to cracking. Find answers to common questions about control. A gypsum board wall 300 ft long would see an expansion of over 1” if the relative humidity were to change from 10% to 50%. Drywall control joints or gypsum board expansion joints are used to control cracking in gypsum board ceilings & walls.
from eifstucco.com
Expansion joints (also called construction joints) can reduce the effects of building movement on building materials, and they. If control joints are overlooked or not installed properly, drywall expands and leads to cracking. Learn why control joints are essential to prevent cracks and damage in gypsum board due to thermal expansion and contraction. Find answers to common questions about control. A gypsum board wall 300 ft long would see an expansion of over 1” if the relative humidity were to change from 10% to 50%. Drywall control joints or gypsum board expansion joints are used to control cracking in gypsum board ceilings & walls. Find out the types, locations, and materials of. Gyproc control joint is installed at lateral joints to help relieve stress and movement in the drywall structure, preventing expansion damage. The 47mm wide metal strip accommodates. Learn how to specify and install control joints in gypsum board walls and ceilings to prevent cracking and meet code requirements.
Gypsum Board EIFS Details & Specifications
Expansion Joint For Gypsum Board Expansion joints (also called construction joints) can reduce the effects of building movement on building materials, and they. Drywall control joints or gypsum board expansion joints are used to control cracking in gypsum board ceilings & walls. If control joints are overlooked or not installed properly, drywall expands and leads to cracking. Find answers to common questions about control. See examples, tips and recommendations from a drywall expert. Gyproc control joint is installed at lateral joints to help relieve stress and movement in the drywall structure, preventing expansion damage. Learn how to specify and install control joints in gypsum board walls and ceilings to prevent cracking and meet code requirements. Learn how to install control joints (expansion joints) in drywall to prevent ridging at structural transitions. Find out the types, locations, and materials of. The 47mm wide metal strip accommodates. A gypsum board wall 300 ft long would see an expansion of over 1” if the relative humidity were to change from 10% to 50%. Expansion joints (also called construction joints) can reduce the effects of building movement on building materials, and they. Learn why control joints are essential to prevent cracks and damage in gypsum board due to thermal expansion and contraction.
From www.cnexpansionjoint.com
Flush Single Seal Gypsum Ceiling Expansion Joint Cover 25mm50mm Expansion Joint For Gypsum Board Find out the types, locations, and materials of. A gypsum board wall 300 ft long would see an expansion of over 1” if the relative humidity were to change from 10% to 50%. If control joints are overlooked or not installed properly, drywall expands and leads to cracking. Learn how to install control joints (expansion joints) in drywall to prevent. Expansion Joint For Gypsum Board.
From www.youtube.com
How to fill and finish a gypsum board joint without tape? YouTube Expansion Joint For Gypsum Board Gyproc control joint is installed at lateral joints to help relieve stress and movement in the drywall structure, preventing expansion damage. A gypsum board wall 300 ft long would see an expansion of over 1” if the relative humidity were to change from 10% to 50%. Find answers to common questions about control. Drywall control joints or gypsum board expansion. Expansion Joint For Gypsum Board.
From eifstucco.com
Gypsum Board EIFS Details & Specifications Expansion Joint For Gypsum Board See examples, tips and recommendations from a drywall expert. The 47mm wide metal strip accommodates. Find out the types, locations, and materials of. If control joints are overlooked or not installed properly, drywall expands and leads to cracking. Gyproc control joint is installed at lateral joints to help relieve stress and movement in the drywall structure, preventing expansion damage. Find. Expansion Joint For Gypsum Board.
From www.nationalgypsum.com
Why Control Joints Are Essential Expansion Joint For Gypsum Board Find answers to common questions about control. Learn how to specify and install control joints in gypsum board walls and ceilings to prevent cracking and meet code requirements. Learn why control joints are essential to prevent cracks and damage in gypsum board due to thermal expansion and contraction. Learn how to install control joints (expansion joints) in drywall to prevent. Expansion Joint For Gypsum Board.
From www.youtube.com
Installing an Expansion Joint in Drywall Plaster Wall YouTube Expansion Joint For Gypsum Board A gypsum board wall 300 ft long would see an expansion of over 1” if the relative humidity were to change from 10% to 50%. The 47mm wide metal strip accommodates. Find answers to common questions about control. Gyproc control joint is installed at lateral joints to help relieve stress and movement in the drywall structure, preventing expansion damage. If. Expansion Joint For Gypsum Board.
From www.abswest.com.au
Expansion Joint Covers for Walls & Ceilings CS Brand Expansion Joint For Gypsum Board Expansion joints (also called construction joints) can reduce the effects of building movement on building materials, and they. A gypsum board wall 300 ft long would see an expansion of over 1” if the relative humidity were to change from 10% to 50%. Learn how to specify and install control joints in gypsum board walls and ceilings to prevent cracking. Expansion Joint For Gypsum Board.
From studcosystems.com.au
Expansion Joints Studco Australia Expansion Joint For Gypsum Board Find out the types, locations, and materials of. Gyproc control joint is installed at lateral joints to help relieve stress and movement in the drywall structure, preventing expansion damage. Drywall control joints or gypsum board expansion joints are used to control cracking in gypsum board ceilings & walls. Learn why control joints are essential to prevent cracks and damage in. Expansion Joint For Gypsum Board.
From shellysavonlea.net
Gypsum Ceiling Control Joints Shelly Lighting Expansion Joint For Gypsum Board Find out the types, locations, and materials of. Drywall control joints or gypsum board expansion joints are used to control cracking in gypsum board ceilings & walls. Expansion joints (also called construction joints) can reduce the effects of building movement on building materials, and they. Gyproc control joint is installed at lateral joints to help relieve stress and movement in. Expansion Joint For Gypsum Board.
From www.usgdesignstudio.com
USG Design Studio Control Joint Download Details Expansion Joint For Gypsum Board Drywall control joints or gypsum board expansion joints are used to control cracking in gypsum board ceilings & walls. Expansion joints (also called construction joints) can reduce the effects of building movement on building materials, and they. Find out the types, locations, and materials of. Learn why control joints are essential to prevent cracks and damage in gypsum board due. Expansion Joint For Gypsum Board.
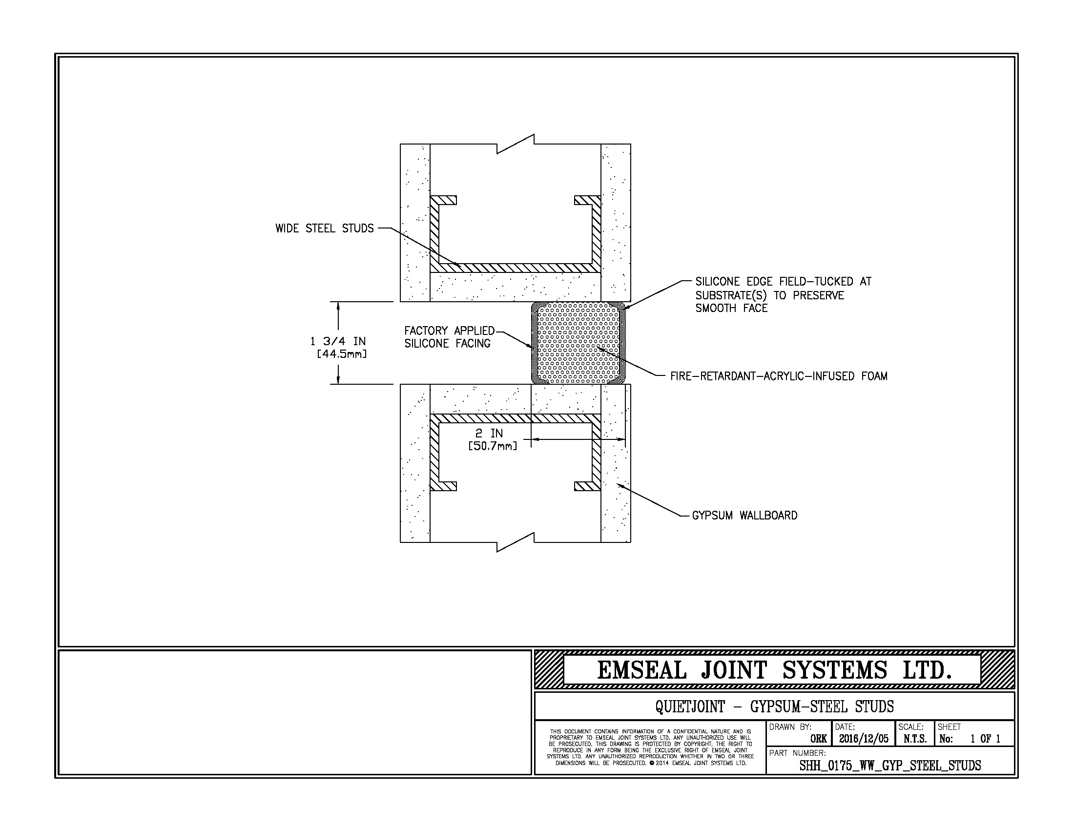
From www.emseal.com
Expansion Joint CAD Details Library .dwg and .dwf CAD files for EMSEAL Expansion Joint For Gypsum Board Learn why control joints are essential to prevent cracks and damage in gypsum board due to thermal expansion and contraction. Find answers to common questions about control. See examples, tips and recommendations from a drywall expert. If control joints are overlooked or not installed properly, drywall expands and leads to cracking. Gyproc control joint is installed at lateral joints to. Expansion Joint For Gypsum Board.
From tamarackmaterials.com
10 ft CEMCO FAS 093X Fire Rated Control Joint at Tamarack Materials, Inc. Expansion Joint For Gypsum Board Learn how to specify and install control joints in gypsum board walls and ceilings to prevent cracking and meet code requirements. Learn why control joints are essential to prevent cracks and damage in gypsum board due to thermal expansion and contraction. Drywall control joints or gypsum board expansion joints are used to control cracking in gypsum board ceilings & walls.. Expansion Joint For Gypsum Board.
From www.cgcdesignstudio.com
09 21 16.002 Gypsum Board Assembly Partition Multilayer Joint Expansion Joint For Gypsum Board A gypsum board wall 300 ft long would see an expansion of over 1” if the relative humidity were to change from 10% to 50%. Learn how to specify and install control joints in gypsum board walls and ceilings to prevent cracking and meet code requirements. Drywall control joints or gypsum board expansion joints are used to control cracking in. Expansion Joint For Gypsum Board.
From shellysavonlea.net
Gypsum Ceiling Control Joint Detail Shelly Lighting Expansion Joint For Gypsum Board Expansion joints (also called construction joints) can reduce the effects of building movement on building materials, and they. Learn why control joints are essential to prevent cracks and damage in gypsum board due to thermal expansion and contraction. The 47mm wide metal strip accommodates. If control joints are overlooked or not installed properly, drywall expands and leads to cracking. A. Expansion Joint For Gypsum Board.
From specializeddrywallojinc.com
Understanding Sheetrock Expansion and Contraction Expansion Joint For Gypsum Board Gyproc control joint is installed at lateral joints to help relieve stress and movement in the drywall structure, preventing expansion damage. Learn why control joints are essential to prevent cracks and damage in gypsum board due to thermal expansion and contraction. Drywall control joints or gypsum board expansion joints are used to control cracking in gypsum board ceilings & walls.. Expansion Joint For Gypsum Board.
From civilengineeringx.com
Isolation and Control Joints in Gypsumboard Construction Civil Expansion Joint For Gypsum Board Expansion joints (also called construction joints) can reduce the effects of building movement on building materials, and they. The 47mm wide metal strip accommodates. Gyproc control joint is installed at lateral joints to help relieve stress and movement in the drywall structure, preventing expansion damage. Learn how to specify and install control joints in gypsum board walls and ceilings to. Expansion Joint For Gypsum Board.
From shellysavonlea.net
Gypsum Ceiling Control Joints Shelly Lighting Expansion Joint For Gypsum Board If control joints are overlooked or not installed properly, drywall expands and leads to cracking. Drywall control joints or gypsum board expansion joints are used to control cracking in gypsum board ceilings & walls. Expansion joints (also called construction joints) can reduce the effects of building movement on building materials, and they. Find out the types, locations, and materials of.. Expansion Joint For Gypsum Board.
From www.gypsum.org
» Using Gypsum Board for Walls and Ceilings Section I Expansion Joint For Gypsum Board Expansion joints (also called construction joints) can reduce the effects of building movement on building materials, and they. Gyproc control joint is installed at lateral joints to help relieve stress and movement in the drywall structure, preventing expansion damage. Learn how to install control joints (expansion joints) in drywall to prevent ridging at structural transitions. If control joints are overlooked. Expansion Joint For Gypsum Board.
From homeconceptguides.blogspot.com
Gypsum Board Ceiling Details Dwg / Gypsum ceiling detail view with Expansion Joint For Gypsum Board The 47mm wide metal strip accommodates. See examples, tips and recommendations from a drywall expert. Learn how to specify and install control joints in gypsum board walls and ceilings to prevent cracking and meet code requirements. Gyproc control joint is installed at lateral joints to help relieve stress and movement in the drywall structure, preventing expansion damage. Find out the. Expansion Joint For Gypsum Board.
From www.emseal.com
Expansion Joint Details · BIM · CAD · DWG · DWF · EMSEAL Expansion Joint For Gypsum Board See examples, tips and recommendations from a drywall expert. Learn why control joints are essential to prevent cracks and damage in gypsum board due to thermal expansion and contraction. Learn how to install control joints (expansion joints) in drywall to prevent ridging at structural transitions. Expansion joints (also called construction joints) can reduce the effects of building movement on building. Expansion Joint For Gypsum Board.
From shellysavonlea.net
Gypsum Ceiling Control Joints Shelly Lighting Expansion Joint For Gypsum Board The 47mm wide metal strip accommodates. A gypsum board wall 300 ft long would see an expansion of over 1” if the relative humidity were to change from 10% to 50%. Find out the types, locations, and materials of. If control joints are overlooked or not installed properly, drywall expands and leads to cracking. Find answers to common questions about. Expansion Joint For Gypsum Board.
From www.youtube.com
Expansion Beads & Joints are designed for expansion and movement in Expansion Joint For Gypsum Board Expansion joints (also called construction joints) can reduce the effects of building movement on building materials, and they. Gyproc control joint is installed at lateral joints to help relieve stress and movement in the drywall structure, preventing expansion damage. See examples, tips and recommendations from a drywall expert. A gypsum board wall 300 ft long would see an expansion of. Expansion Joint For Gypsum Board.
From www.trim-tex.com
Drywall Expansion Joint Fire Rated 093V Bead TrimTex Expansion Joint For Gypsum Board See examples, tips and recommendations from a drywall expert. Learn how to install control joints (expansion joints) in drywall to prevent ridging at structural transitions. Gyproc control joint is installed at lateral joints to help relieve stress and movement in the drywall structure, preventing expansion damage. Learn why control joints are essential to prevent cracks and damage in gypsum board. Expansion Joint For Gypsum Board.
From www.inprocorp.com
Wall & Ceiling Expansion Joint Covers Expansion Joints Inpro Expansion Joint For Gypsum Board Learn why control joints are essential to prevent cracks and damage in gypsum board due to thermal expansion and contraction. Learn how to specify and install control joints in gypsum board walls and ceilings to prevent cracking and meet code requirements. If control joints are overlooked or not installed properly, drywall expands and leads to cracking. Find out the types,. Expansion Joint For Gypsum Board.
From exynocuyx.blob.core.windows.net
Gypsum Wall Control Joint at Mike Gilmartin blog Expansion Joint For Gypsum Board The 47mm wide metal strip accommodates. Gyproc control joint is installed at lateral joints to help relieve stress and movement in the drywall structure, preventing expansion damage. See examples, tips and recommendations from a drywall expert. Learn how to install control joints (expansion joints) in drywall to prevent ridging at structural transitions. Expansion joints (also called construction joints) can reduce. Expansion Joint For Gypsum Board.
From www.usg.com
Design Details Details Page USG Gypsum Board (Type X) Control Joint Expansion Joint For Gypsum Board Find out the types, locations, and materials of. Expansion joints (also called construction joints) can reduce the effects of building movement on building materials, and they. Learn why control joints are essential to prevent cracks and damage in gypsum board due to thermal expansion and contraction. The 47mm wide metal strip accommodates. Learn how to install control joints (expansion joints). Expansion Joint For Gypsum Board.
From shellysavonlea.net
Gypsum Ceiling Control Joints Shelly Lighting Expansion Joint For Gypsum Board Learn why control joints are essential to prevent cracks and damage in gypsum board due to thermal expansion and contraction. Drywall control joints or gypsum board expansion joints are used to control cracking in gypsum board ceilings & walls. Learn how to specify and install control joints in gypsum board walls and ceilings to prevent cracking and meet code requirements.. Expansion Joint For Gypsum Board.
From www.clarkdietrich.com
093 Vinyl Control Joint ClarkDietrich Building Systems Expansion Joint For Gypsum Board See examples, tips and recommendations from a drywall expert. Find answers to common questions about control. A gypsum board wall 300 ft long would see an expansion of over 1” if the relative humidity were to change from 10% to 50%. Gyproc control joint is installed at lateral joints to help relieve stress and movement in the drywall structure, preventing. Expansion Joint For Gypsum Board.
From www.youtube.com
Gyprock fixing, metal frame, mining housing and offices , ceiling Expansion Joint For Gypsum Board Learn how to specify and install control joints in gypsum board walls and ceilings to prevent cracking and meet code requirements. See examples, tips and recommendations from a drywall expert. Find out the types, locations, and materials of. Drywall control joints or gypsum board expansion joints are used to control cracking in gypsum board ceilings & walls. A gypsum board. Expansion Joint For Gypsum Board.
From gypsum.org
Definitions Gypsum Association Expansion Joint For Gypsum Board Learn why control joints are essential to prevent cracks and damage in gypsum board due to thermal expansion and contraction. Drywall control joints or gypsum board expansion joints are used to control cracking in gypsum board ceilings & walls. Gyproc control joint is installed at lateral joints to help relieve stress and movement in the drywall structure, preventing expansion damage.. Expansion Joint For Gypsum Board.
From www.abswest.com.au
Expansion Joint Covers for Walls & Ceilings CS Brand Expansion Joint For Gypsum Board Learn how to specify and install control joints in gypsum board walls and ceilings to prevent cracking and meet code requirements. See examples, tips and recommendations from a drywall expert. Learn why control joints are essential to prevent cracks and damage in gypsum board due to thermal expansion and contraction. Find answers to common questions about control. If control joints. Expansion Joint For Gypsum Board.
From eifstucco.com
Gypsum Board EIFS Details & Specifications Expansion Joint For Gypsum Board Learn how to install control joints (expansion joints) in drywall to prevent ridging at structural transitions. Find answers to common questions about control. Find out the types, locations, and materials of. The 47mm wide metal strip accommodates. Learn how to specify and install control joints in gypsum board walls and ceilings to prevent cracking and meet code requirements. See examples,. Expansion Joint For Gypsum Board.
From www.emseal.com
Expansion Joint Details · BIM · CAD · DWG · DWF · EMSEAL Expansion Joint For Gypsum Board See examples, tips and recommendations from a drywall expert. If control joints are overlooked or not installed properly, drywall expands and leads to cracking. Find answers to common questions about control. Learn how to install control joints (expansion joints) in drywall to prevent ridging at structural transitions. The 47mm wide metal strip accommodates. Find out the types, locations, and materials. Expansion Joint For Gypsum Board.
From www.cnexpansionjoint.com
Flush Single Seal Gypsum Ceiling Expansion Joint Cover 25mm50mm Expansion Joint For Gypsum Board Learn why control joints are essential to prevent cracks and damage in gypsum board due to thermal expansion and contraction. The 47mm wide metal strip accommodates. Find answers to common questions about control. Drywall control joints or gypsum board expansion joints are used to control cracking in gypsum board ceilings & walls. Gyproc control joint is installed at lateral joints. Expansion Joint For Gypsum Board.
From eifstucco.com
Gypsum Board EIFS Details & Specifications Expansion Joint For Gypsum Board If control joints are overlooked or not installed properly, drywall expands and leads to cracking. Find out the types, locations, and materials of. A gypsum board wall 300 ft long would see an expansion of over 1” if the relative humidity were to change from 10% to 50%. Learn how to install control joints (expansion joints) in drywall to prevent. Expansion Joint For Gypsum Board.
From www.youtube.com
Control/Expansion Joint onto Drywall/Plasterboard YouTube Expansion Joint For Gypsum Board If control joints are overlooked or not installed properly, drywall expands and leads to cracking. Expansion joints (also called construction joints) can reduce the effects of building movement on building materials, and they. See examples, tips and recommendations from a drywall expert. A gypsum board wall 300 ft long would see an expansion of over 1” if the relative humidity. Expansion Joint For Gypsum Board.