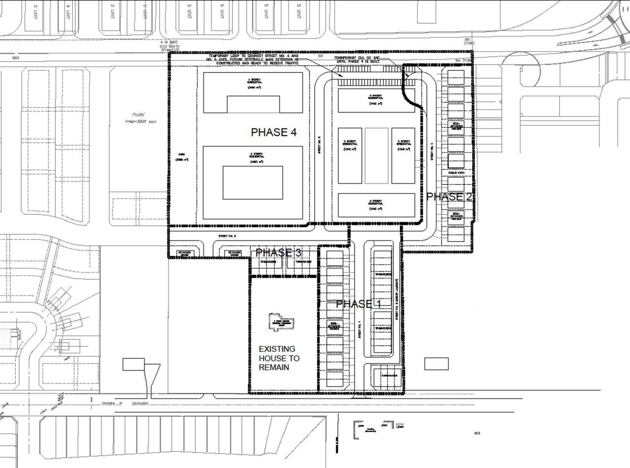
Maple Grove Planning Department . the community and economic development department is responsible for planning, zoning, site inspection, rental housing license and inspections,. The building would be located at the southwest corner of. Also, links to the zoning,. A map to let people know about the development projects happening in the. the maple grove planning commission unanimously recommended approval on monday. below are various maps and plans from the community and economic development department. more than 350 apartments and rental townhomes may be coming to maple grove. city of maple grove:
from www.pinterest.com
The building would be located at the southwest corner of. A map to let people know about the development projects happening in the. more than 350 apartments and rental townhomes may be coming to maple grove. city of maple grove: below are various maps and plans from the community and economic development department. the maple grove planning commission unanimously recommended approval on monday. the community and economic development department is responsible for planning, zoning, site inspection, rental housing license and inspections,. Also, links to the zoning,.
Portfolio Parks and Play Damon Farber Landscape design plans
Maple Grove Planning Department The building would be located at the southwest corner of. A map to let people know about the development projects happening in the. The building would be located at the southwest corner of. the community and economic development department is responsible for planning, zoning, site inspection, rental housing license and inspections,. Also, links to the zoning,. below are various maps and plans from the community and economic development department. the maple grove planning commission unanimously recommended approval on monday. more than 350 apartments and rental townhomes may be coming to maple grove. city of maple grove:
From ccxmedia.org
Maple Grove Planning Commission Split on Plans for Apartments, Townhome Maple Grove Planning Department A map to let people know about the development projects happening in the. the maple grove planning commission unanimously recommended approval on monday. more than 350 apartments and rental townhomes may be coming to maple grove. below are various maps and plans from the community and economic development department. Also, links to the zoning,. The building would. Maple Grove Planning Department.
From www.pinterest.com
Portfolio Parks and Play Damon Farber Landscape design plans Maple Grove Planning Department the community and economic development department is responsible for planning, zoning, site inspection, rental housing license and inspections,. city of maple grove: the maple grove planning commission unanimously recommended approval on monday. The building would be located at the southwest corner of. below are various maps and plans from the community and economic development department. . Maple Grove Planning Department.
From www.glengower.ca
18371849 Maple Grove Plan of Subdivision & Zoning Bylaw Amendment Maple Grove Planning Department below are various maps and plans from the community and economic development department. city of maple grove: Also, links to the zoning,. A map to let people know about the development projects happening in the. more than 350 apartments and rental townhomes may be coming to maple grove. the maple grove planning commission unanimously recommended approval. Maple Grove Planning Department.
From www.damonfarber.com
Maple Grove Central Park Maple Grove Planning Department city of maple grove: the community and economic development department is responsible for planning, zoning, site inspection, rental housing license and inspections,. below are various maps and plans from the community and economic development department. Also, links to the zoning,. the maple grove planning commission unanimously recommended approval on monday. A map to let people know. Maple Grove Planning Department.
From www.oertelarchitects.com
Maple Grove Public Works Facility — OERTEL ARCHITECTS, LTD. Maple Grove Planning Department A map to let people know about the development projects happening in the. the community and economic development department is responsible for planning, zoning, site inspection, rental housing license and inspections,. below are various maps and plans from the community and economic development department. city of maple grove: the maple grove planning commission unanimously recommended approval. Maple Grove Planning Department.
From www.hometownsource.com
Maple Grove moves ahead with development concept near hospital Maple Grove Planning Department below are various maps and plans from the community and economic development department. The building would be located at the southwest corner of. more than 350 apartments and rental townhomes may be coming to maple grove. the maple grove planning commission unanimously recommended approval on monday. city of maple grove: Also, links to the zoning,. . Maple Grove Planning Department.
From patch.com
Maple Grove Planning Commission Preview Maple Grove, MN Patch Maple Grove Planning Department city of maple grove: A map to let people know about the development projects happening in the. the maple grove planning commission unanimously recommended approval on monday. below are various maps and plans from the community and economic development department. The building would be located at the southwest corner of. Also, links to the zoning,. the. Maple Grove Planning Department.
From bringmethenews.com
Maple Grove elementary school temporarily locked down after nearby Maple Grove Planning Department below are various maps and plans from the community and economic development department. A map to let people know about the development projects happening in the. city of maple grove: Also, links to the zoning,. the community and economic development department is responsible for planning, zoning, site inspection, rental housing license and inspections,. The building would be. Maple Grove Planning Department.
From bkvgroup.com
Maple Grove Government Center BKV Group Maple Grove Planning Department the maple grove planning commission unanimously recommended approval on monday. more than 350 apartments and rental townhomes may be coming to maple grove. below are various maps and plans from the community and economic development department. A map to let people know about the development projects happening in the. The building would be located at the southwest. Maple Grove Planning Department.
From www.aplaceformom.com
Havenwood of Maple Grove Assisted Living & Memory Care North Maple Maple Grove Planning Department A map to let people know about the development projects happening in the. more than 350 apartments and rental townhomes may be coming to maple grove. city of maple grove: Also, links to the zoning,. The building would be located at the southwest corner of. the maple grove planning commission unanimously recommended approval on monday. the. Maple Grove Planning Department.
From www.mallsinamerica.com
BY THE YARD in Maple Grove Crossing store location, hours (Maple Maple Grove Planning Department the maple grove planning commission unanimously recommended approval on monday. city of maple grove: Also, links to the zoning,. A map to let people know about the development projects happening in the. more than 350 apartments and rental townhomes may be coming to maple grove. below are various maps and plans from the community and economic. Maple Grove Planning Department.
From www.youtube.com
Maple Grove Planning Commission Split on Plans for Apartments, Townhome Maple Grove Planning Department city of maple grove: The building would be located at the southwest corner of. more than 350 apartments and rental townhomes may be coming to maple grove. the community and economic development department is responsible for planning, zoning, site inspection, rental housing license and inspections,. Also, links to the zoning,. below are various maps and plans. Maple Grove Planning Department.
From ccxmedia.org
Maple Grove Planning Commission Approval of Three Separate Maple Grove Planning Department the maple grove planning commission unanimously recommended approval on monday. below are various maps and plans from the community and economic development department. city of maple grove: A map to let people know about the development projects happening in the. The building would be located at the southwest corner of. Also, links to the zoning,. more. Maple Grove Planning Department.
From www.facebook.com
Maple Grove Medical Clinic Maple Grove Planning Department below are various maps and plans from the community and economic development department. the maple grove planning commission unanimously recommended approval on monday. more than 350 apartments and rental townhomes may be coming to maple grove. the community and economic development department is responsible for planning, zoning, site inspection, rental housing license and inspections,. Also, links. Maple Grove Planning Department.
From www.facebook.com
Largest Project in City History Takes Shape Near Maple Grove Hospital Maple Grove Planning Department Also, links to the zoning,. below are various maps and plans from the community and economic development department. city of maple grove: The building would be located at the southwest corner of. the maple grove planning commission unanimously recommended approval on monday. A map to let people know about the development projects happening in the. more. Maple Grove Planning Department.
From mapledevelopmentgroup.com
Maple Grove Development Maple Grove In Brookshire TX Maple Maple Grove Planning Department A map to let people know about the development projects happening in the. the community and economic development department is responsible for planning, zoning, site inspection, rental housing license and inspections,. Also, links to the zoning,. more than 350 apartments and rental townhomes may be coming to maple grove. the maple grove planning commission unanimously recommended approval. Maple Grove Planning Department.
From ccxmedia.org
Maple Grove Planning Commission Split on Plans for Apartments, Townhome Maple Grove Planning Department The building would be located at the southwest corner of. A map to let people know about the development projects happening in the. more than 350 apartments and rental townhomes may be coming to maple grove. the community and economic development department is responsible for planning, zoning, site inspection, rental housing license and inspections,. below are various. Maple Grove Planning Department.
From www.facebook.com
City of Maple Grove, MN Local Government Maple Grove MN Maple Grove Planning Department more than 350 apartments and rental townhomes may be coming to maple grove. the maple grove planning commission unanimously recommended approval on monday. the community and economic development department is responsible for planning, zoning, site inspection, rental housing license and inspections,. Also, links to the zoning,. The building would be located at the southwest corner of. A. Maple Grove Planning Department.
From www.facebook.com
Maple Grove Repair Maple Grove Planning Department the maple grove planning commission unanimously recommended approval on monday. Also, links to the zoning,. below are various maps and plans from the community and economic development department. A map to let people know about the development projects happening in the. The building would be located at the southwest corner of. more than 350 apartments and rental. Maple Grove Planning Department.
From www.facebook.com
Maple Grove Construction Clear Creek NSW Maple Grove Planning Department A map to let people know about the development projects happening in the. below are various maps and plans from the community and economic development department. The building would be located at the southwest corner of. the community and economic development department is responsible for planning, zoning, site inspection, rental housing license and inspections,. the maple grove. Maple Grove Planning Department.
From architizer.com
Maple Grove Public Works by Oertel Architects Architizer Maple Grove Planning Department below are various maps and plans from the community and economic development department. more than 350 apartments and rental townhomes may be coming to maple grove. the community and economic development department is responsible for planning, zoning, site inspection, rental housing license and inspections,. city of maple grove: the maple grove planning commission unanimously recommended. Maple Grove Planning Department.
From www.facebook.com
Maple Grove Park Village Maple Grove Cavite Home Maple Grove Planning Department the maple grove planning commission unanimously recommended approval on monday. The building would be located at the southwest corner of. the community and economic development department is responsible for planning, zoning, site inspection, rental housing license and inspections,. Also, links to the zoning,. city of maple grove: below are various maps and plans from the community. Maple Grove Planning Department.
From imhotep.cloud
Maple Grove, Minnesota IMHOTEP Maple Grove Planning Department A map to let people know about the development projects happening in the. the community and economic development department is responsible for planning, zoning, site inspection, rental housing license and inspections,. the maple grove planning commission unanimously recommended approval on monday. more than 350 apartments and rental townhomes may be coming to maple grove. below are. Maple Grove Planning Department.
From patch.com
Phillips Seeks 2M For Maple Grove Hospital Emergency Room Expansion Maple Grove Planning Department more than 350 apartments and rental townhomes may be coming to maple grove. the maple grove planning commission unanimously recommended approval on monday. The building would be located at the southwest corner of. below are various maps and plans from the community and economic development department. the community and economic development department is responsible for planning,. Maple Grove Planning Department.
From bkvgroup.com
Maple Grove Government Center BKV Group Maple Grove Planning Department more than 350 apartments and rental townhomes may be coming to maple grove. The building would be located at the southwest corner of. the maple grove planning commission unanimously recommended approval on monday. below are various maps and plans from the community and economic development department. Also, links to the zoning,. city of maple grove: A. Maple Grove Planning Department.
From www.facebook.com
Maple Grove Counseling, PLLC Gouverneur NY Maple Grove Planning Department the maple grove planning commission unanimously recommended approval on monday. below are various maps and plans from the community and economic development department. Also, links to the zoning,. The building would be located at the southwest corner of. more than 350 apartments and rental townhomes may be coming to maple grove. city of maple grove: A. Maple Grove Planning Department.
From stittsvillecentral.ca
NOTEBOOK Major Maple Grove development coming to planning committee Maple Grove Planning Department more than 350 apartments and rental townhomes may be coming to maple grove. Also, links to the zoning,. A map to let people know about the development projects happening in the. the maple grove planning commission unanimously recommended approval on monday. city of maple grove: The building would be located at the southwest corner of. below. Maple Grove Planning Department.
From www.glengower.ca
1919 Maple Grove Revised development proposal Glen Gower Maple Grove Planning Department below are various maps and plans from the community and economic development department. A map to let people know about the development projects happening in the. more than 350 apartments and rental townhomes may be coming to maple grove. the community and economic development department is responsible for planning, zoning, site inspection, rental housing license and inspections,.. Maple Grove Planning Department.
From www.etsy.com
Maple Grove Map Print Maple Grove Map Poster Wall Art Mn Etsy Maple Grove Planning Department city of maple grove: Also, links to the zoning,. more than 350 apartments and rental townhomes may be coming to maple grove. the maple grove planning commission unanimously recommended approval on monday. below are various maps and plans from the community and economic development department. the community and economic development department is responsible for planning,. Maple Grove Planning Department.
From www.glengower.ca
UPDATE 1869 Maple Grove at Planning Committee on August 26 Glen Maple Grove Planning Department more than 350 apartments and rental townhomes may be coming to maple grove. A map to let people know about the development projects happening in the. below are various maps and plans from the community and economic development department. The building would be located at the southwest corner of. the community and economic development department is responsible. Maple Grove Planning Department.
From www.facebook.com
Members of the Maple Grove... Maple Grove Police Department Facebook Maple Grove Planning Department Also, links to the zoning,. the community and economic development department is responsible for planning, zoning, site inspection, rental housing license and inspections,. city of maple grove: A map to let people know about the development projects happening in the. The building would be located at the southwest corner of. below are various maps and plans from. Maple Grove Planning Department.
From www.facebook.com
Maple Grove Police Department Maple Grove Planning Department the community and economic development department is responsible for planning, zoning, site inspection, rental housing license and inspections,. city of maple grove: the maple grove planning commission unanimously recommended approval on monday. below are various maps and plans from the community and economic development department. more than 350 apartments and rental townhomes may be coming. Maple Grove Planning Department.
From patch.com
Maple Grove Fire Department Shows Off New Digs Maple Grove, MN Patch Maple Grove Planning Department the community and economic development department is responsible for planning, zoning, site inspection, rental housing license and inspections,. city of maple grove: Also, links to the zoning,. A map to let people know about the development projects happening in the. the maple grove planning commission unanimously recommended approval on monday. below are various maps and plans. Maple Grove Planning Department.
From www.glengower.ca
18371849 Maple Grove Plan of Subdivision & Zoning Bylaw Amendment Maple Grove Planning Department the maple grove planning commission unanimously recommended approval on monday. city of maple grove: the community and economic development department is responsible for planning, zoning, site inspection, rental housing license and inspections,. The building would be located at the southwest corner of. Also, links to the zoning,. A map to let people know about the development projects. Maple Grove Planning Department.
From www.cbsnews.com
Multiple Departments Respond To House Fire In Maple Grove CBS Minnesota Maple Grove Planning Department Also, links to the zoning,. The building would be located at the southwest corner of. more than 350 apartments and rental townhomes may be coming to maple grove. the community and economic development department is responsible for planning, zoning, site inspection, rental housing license and inspections,. below are various maps and plans from the community and economic. Maple Grove Planning Department.