Portable Toilet Regulations . For example, when there are 20 or less workers, only one is required. Keeping up to date with state and federal regulations regarding portable toilets is essential for maintaining compliance and. Every construction site must adhere to specific regulatory guidelines regarding sanitation facilities. Learn the essential osha porta potty requirements to ensure your construction site meets legal standards for worker sanitation and safety. These guidelines are often set forth by. Walls and floors should preferably be waterproof for easy cleaning. Toilet paper, soap, hand towels, and other bathroom supplies should. Portable toilet regulations require the toilets to be kept clean and tidy. Specifically, this regulation sets the minimum number of available lavatories depending on the amount of workers at the site. Osha also recommends that portable toilets be cleaned according to a servicing schedule, which is outlined in the ansi standard.
from www.viprestrooms.com
These guidelines are often set forth by. Keeping up to date with state and federal regulations regarding portable toilets is essential for maintaining compliance and. Portable toilet regulations require the toilets to be kept clean and tidy. Every construction site must adhere to specific regulatory guidelines regarding sanitation facilities. Walls and floors should preferably be waterproof for easy cleaning. Toilet paper, soap, hand towels, and other bathroom supplies should. Specifically, this regulation sets the minimum number of available lavatories depending on the amount of workers at the site. Osha also recommends that portable toilets be cleaned according to a servicing schedule, which is outlined in the ansi standard. Learn the essential osha porta potty requirements to ensure your construction site meets legal standards for worker sanitation and safety. For example, when there are 20 or less workers, only one is required.
OSHA Restrooms Sanitation Requirements VIP Restrooms
Portable Toilet Regulations Every construction site must adhere to specific regulatory guidelines regarding sanitation facilities. These guidelines are often set forth by. Specifically, this regulation sets the minimum number of available lavatories depending on the amount of workers at the site. Toilet paper, soap, hand towels, and other bathroom supplies should. Osha also recommends that portable toilets be cleaned according to a servicing schedule, which is outlined in the ansi standard. Portable toilet regulations require the toilets to be kept clean and tidy. For example, when there are 20 or less workers, only one is required. Every construction site must adhere to specific regulatory guidelines regarding sanitation facilities. Walls and floors should preferably be waterproof for easy cleaning. Learn the essential osha porta potty requirements to ensure your construction site meets legal standards for worker sanitation and safety. Keeping up to date with state and federal regulations regarding portable toilets is essential for maintaining compliance and.
From www.yankeerestrooms.com
ADA Portable Toilet Yankee Restrooms Portable Toilet Regulations Keeping up to date with state and federal regulations regarding portable toilets is essential for maintaining compliance and. Portable toilet regulations require the toilets to be kept clean and tidy. For example, when there are 20 or less workers, only one is required. These guidelines are often set forth by. Every construction site must adhere to specific regulatory guidelines regarding. Portable Toilet Regulations.
From medium.com
How Do Flushable Portable Toilets Work and Are They Worth It? by Portable Toilet Regulations Specifically, this regulation sets the minimum number of available lavatories depending on the amount of workers at the site. Osha also recommends that portable toilets be cleaned according to a servicing schedule, which is outlined in the ansi standard. Portable toilet regulations require the toilets to be kept clean and tidy. These guidelines are often set forth by. Learn the. Portable Toilet Regulations.
From www.american-sanitation.com
HandicapAccessible Portable Toilet Regulations Portable Toilet Regulations Specifically, this regulation sets the minimum number of available lavatories depending on the amount of workers at the site. Every construction site must adhere to specific regulatory guidelines regarding sanitation facilities. For example, when there are 20 or less workers, only one is required. Keeping up to date with state and federal regulations regarding portable toilets is essential for maintaining. Portable Toilet Regulations.
From www.disabilityaccessconsultants.com.au
How Big is an Accessible (Disabled) Toilet Equal Access Portable Toilet Regulations Portable toilet regulations require the toilets to be kept clean and tidy. Osha also recommends that portable toilets be cleaned according to a servicing schedule, which is outlined in the ansi standard. Specifically, this regulation sets the minimum number of available lavatories depending on the amount of workers at the site. These guidelines are often set forth by. For example,. Portable Toilet Regulations.
From www.mrjohnpit.com
Containment Tray Mr. John Portable Toilet Rental Portable Toilet Regulations Toilet paper, soap, hand towels, and other bathroom supplies should. Every construction site must adhere to specific regulatory guidelines regarding sanitation facilities. For example, when there are 20 or less workers, only one is required. Specifically, this regulation sets the minimum number of available lavatories depending on the amount of workers at the site. Learn the essential osha porta potty. Portable Toilet Regulations.
From burnssepticsc.com
Home BSI Portable Toilets & Septic Systems Portable Toilet Regulations Toilet paper, soap, hand towels, and other bathroom supplies should. Learn the essential osha porta potty requirements to ensure your construction site meets legal standards for worker sanitation and safety. These guidelines are often set forth by. For example, when there are 20 or less workers, only one is required. Keeping up to date with state and federal regulations regarding. Portable Toilet Regulations.
From fusionsiteservices.com
Your Guide to Handicap Accessible Portable Restroom Regulations Portable Toilet Regulations Walls and floors should preferably be waterproof for easy cleaning. Every construction site must adhere to specific regulatory guidelines regarding sanitation facilities. Portable toilet regulations require the toilets to be kept clean and tidy. Learn the essential osha porta potty requirements to ensure your construction site meets legal standards for worker sanitation and safety. Toilet paper, soap, hand towels, and. Portable Toilet Regulations.
From sarabias.com
Portable Toilet Regulations for El Paso Construction Projects Sarabia Portable Toilet Regulations Portable toilet regulations require the toilets to be kept clean and tidy. Toilet paper, soap, hand towels, and other bathroom supplies should. For example, when there are 20 or less workers, only one is required. These guidelines are often set forth by. Walls and floors should preferably be waterproof for easy cleaning. Every construction site must adhere to specific regulatory. Portable Toilet Regulations.
From studylib.net
Building Regulations in Practice Accessible Toilets Portable Toilet Regulations These guidelines are often set forth by. Toilet paper, soap, hand towels, and other bathroom supplies should. Portable toilet regulations require the toilets to be kept clean and tidy. For example, when there are 20 or less workers, only one is required. Learn the essential osha porta potty requirements to ensure your construction site meets legal standards for worker sanitation. Portable Toilet Regulations.
From www.fuzionfs.com
ADA Portable Restroom Regulations What to Know Fuzion Portable Toilet Regulations Every construction site must adhere to specific regulatory guidelines regarding sanitation facilities. Specifically, this regulation sets the minimum number of available lavatories depending on the amount of workers at the site. Walls and floors should preferably be waterproof for easy cleaning. Portable toilet regulations require the toilets to be kept clean and tidy. These guidelines are often set forth by.. Portable Toilet Regulations.
From www.vb-c.com.au
Are we in Australia Designing Functional Unisex Accessible Toilets Portable Toilet Regulations Learn the essential osha porta potty requirements to ensure your construction site meets legal standards for worker sanitation and safety. Specifically, this regulation sets the minimum number of available lavatories depending on the amount of workers at the site. Portable toilet regulations require the toilets to be kept clean and tidy. Keeping up to date with state and federal regulations. Portable Toilet Regulations.
From www.american-sanitation.com
HandicapAccessible Portable Toilet Regulations Portable Toilet Regulations Portable toilet regulations require the toilets to be kept clean and tidy. Specifically, this regulation sets the minimum number of available lavatories depending on the amount of workers at the site. Every construction site must adhere to specific regulatory guidelines regarding sanitation facilities. For example, when there are 20 or less workers, only one is required. Keeping up to date. Portable Toilet Regulations.
From portabletoilets.com.au
5 Benefits of Portable Site Toilets Australian Portable Toilets Portable Toilet Regulations Portable toilet regulations require the toilets to be kept clean and tidy. Specifically, this regulation sets the minimum number of available lavatories depending on the amount of workers at the site. Toilet paper, soap, hand towels, and other bathroom supplies should. Every construction site must adhere to specific regulatory guidelines regarding sanitation facilities. Keeping up to date with state and. Portable Toilet Regulations.
From www.youtube.com
Portable Toilet Regulations on the Smith River (how to use and clean Portable Toilet Regulations Keeping up to date with state and federal regulations regarding portable toilets is essential for maintaining compliance and. Specifically, this regulation sets the minimum number of available lavatories depending on the amount of workers at the site. For example, when there are 20 or less workers, only one is required. Portable toilet regulations require the toilets to be kept clean. Portable Toilet Regulations.
From www.harborcitysupply.com
Do I Need Accessible Toilet Compartments? ADA Guidelines Harbor Portable Toilet Regulations These guidelines are often set forth by. Toilet paper, soap, hand towels, and other bathroom supplies should. Every construction site must adhere to specific regulatory guidelines regarding sanitation facilities. Learn the essential osha porta potty requirements to ensure your construction site meets legal standards for worker sanitation and safety. For example, when there are 20 or less workers, only one. Portable Toilet Regulations.
From www.aroyalflush.com
Rent Standard Portable Toilets for Constuction A Royal Flush Portable Toilet Regulations For example, when there are 20 or less workers, only one is required. These guidelines are often set forth by. Osha also recommends that portable toilets be cleaned according to a servicing schedule, which is outlined in the ansi standard. Toilet paper, soap, hand towels, and other bathroom supplies should. Every construction site must adhere to specific regulatory guidelines regarding. Portable Toilet Regulations.
From floodsroyalflush.com
3 Tips on Odor Control for Your Portable Restrooms Portable Toilet Regulations Portable toilet regulations require the toilets to be kept clean and tidy. For example, when there are 20 or less workers, only one is required. Every construction site must adhere to specific regulatory guidelines regarding sanitation facilities. Keeping up to date with state and federal regulations regarding portable toilets is essential for maintaining compliance and. Osha also recommends that portable. Portable Toilet Regulations.
From www.johntalk.com
INFOGRAPHIC What to Include in a Portable Restroom Rental Service Portable Toilet Regulations These guidelines are often set forth by. Specifically, this regulation sets the minimum number of available lavatories depending on the amount of workers at the site. Keeping up to date with state and federal regulations regarding portable toilets is essential for maintaining compliance and. For example, when there are 20 or less workers, only one is required. Learn the essential. Portable Toilet Regulations.
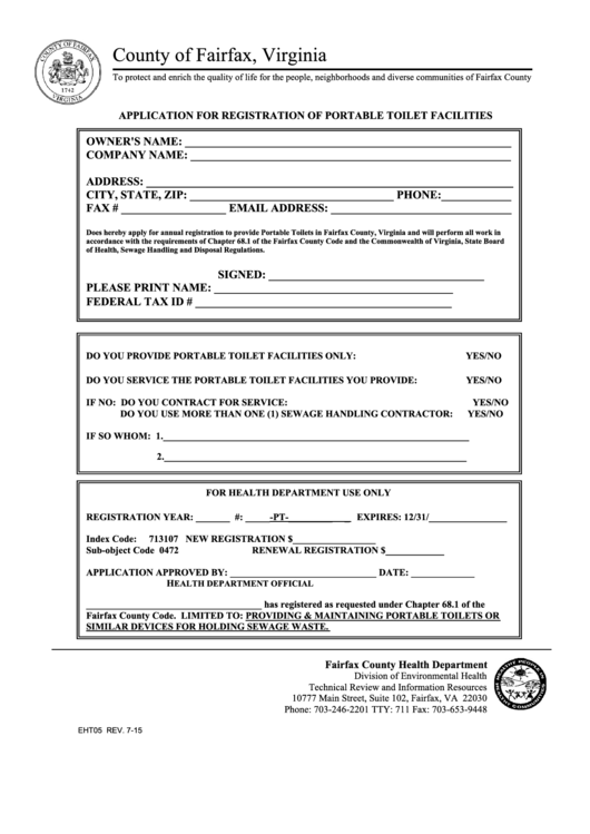
From www.formsbank.com
Form Eht05 Registration Of Portable Toilet Facilities July 2015 Portable Toilet Regulations Specifically, this regulation sets the minimum number of available lavatories depending on the amount of workers at the site. Walls and floors should preferably be waterproof for easy cleaning. Keeping up to date with state and federal regulations regarding portable toilets is essential for maintaining compliance and. Osha also recommends that portable toilets be cleaned according to a servicing schedule,. Portable Toilet Regulations.
From www.jwcraft.com
Portable toilet service procedures JW Craft Portable Toilet Regulations These guidelines are often set forth by. For example, when there are 20 or less workers, only one is required. Portable toilet regulations require the toilets to be kept clean and tidy. Keeping up to date with state and federal regulations regarding portable toilets is essential for maintaining compliance and. Every construction site must adhere to specific regulatory guidelines regarding. Portable Toilet Regulations.
From www.slideserve.com
PPT Placing Portable Toilets 7 Best Practices PowerPoint Portable Toilet Regulations These guidelines are often set forth by. Every construction site must adhere to specific regulatory guidelines regarding sanitation facilities. Toilet paper, soap, hand towels, and other bathroom supplies should. Walls and floors should preferably be waterproof for easy cleaning. Learn the essential osha porta potty requirements to ensure your construction site meets legal standards for worker sanitation and safety. Keeping. Portable Toilet Regulations.
From wheelchairtravel.org
faqhotelsadarequirementstoiletstandards Wheelchair Travel Portable Toilet Regulations Portable toilet regulations require the toilets to be kept clean and tidy. These guidelines are often set forth by. Walls and floors should preferably be waterproof for easy cleaning. Keeping up to date with state and federal regulations regarding portable toilets is essential for maintaining compliance and. For example, when there are 20 or less workers, only one is required.. Portable Toilet Regulations.
From www.viprestrooms.com
OSHA Restrooms Sanitation Requirements VIP Restrooms Portable Toilet Regulations These guidelines are often set forth by. Walls and floors should preferably be waterproof for easy cleaning. Every construction site must adhere to specific regulatory guidelines regarding sanitation facilities. Keeping up to date with state and federal regulations regarding portable toilets is essential for maintaining compliance and. Learn the essential osha porta potty requirements to ensure your construction site meets. Portable Toilet Regulations.
From floodsroyalflush.com
ADA Portable Restroom Regulations What to Know Portable Toilet Regulations Toilet paper, soap, hand towels, and other bathroom supplies should. Keeping up to date with state and federal regulations regarding portable toilets is essential for maintaining compliance and. For example, when there are 20 or less workers, only one is required. These guidelines are often set forth by. Specifically, this regulation sets the minimum number of available lavatories depending on. Portable Toilet Regulations.
From toiletroomguide.com
Handicapped Toilets Features and Regulations for Accessible Bathrooms Portable Toilet Regulations For example, when there are 20 or less workers, only one is required. Toilet paper, soap, hand towels, and other bathroom supplies should. Walls and floors should preferably be waterproof for easy cleaning. Keeping up to date with state and federal regulations regarding portable toilets is essential for maintaining compliance and. Portable toilet regulations require the toilets to be kept. Portable Toilet Regulations.
From www.fuzionfs.com
Is Your Jobsite Following OSHA's Portable Toilet Requirements? Fuzion Portable Toilet Regulations Osha also recommends that portable toilets be cleaned according to a servicing schedule, which is outlined in the ansi standard. For example, when there are 20 or less workers, only one is required. Every construction site must adhere to specific regulatory guidelines regarding sanitation facilities. Walls and floors should preferably be waterproof for easy cleaning. Specifically, this regulation sets the. Portable Toilet Regulations.
From onsiteco.com
OSHA Regulations on Portable Restrooms in Minnesota Portable Toilet Regulations Keeping up to date with state and federal regulations regarding portable toilets is essential for maintaining compliance and. Walls and floors should preferably be waterproof for easy cleaning. Toilet paper, soap, hand towels, and other bathroom supplies should. These guidelines are often set forth by. For example, when there are 20 or less workers, only one is required. Portable toilet. Portable Toilet Regulations.
From www.loosforhire.co.uk
A Guide to Safely Using a Portable Toilet With a Child Loos for Hire Portable Toilet Regulations Toilet paper, soap, hand towels, and other bathroom supplies should. Every construction site must adhere to specific regulatory guidelines regarding sanitation facilities. Osha also recommends that portable toilets be cleaned according to a servicing schedule, which is outlined in the ansi standard. Keeping up to date with state and federal regulations regarding portable toilets is essential for maintaining compliance and.. Portable Toilet Regulations.
From klawmotgb.blob.core.windows.net
Portable Toilet Requirements at Eldon Simmons blog Portable Toilet Regulations Portable toilet regulations require the toilets to be kept clean and tidy. Every construction site must adhere to specific regulatory guidelines regarding sanitation facilities. Learn the essential osha porta potty requirements to ensure your construction site meets legal standards for worker sanitation and safety. These guidelines are often set forth by. Specifically, this regulation sets the minimum number of available. Portable Toilet Regulations.
From www.poorjohnstoilets.com
Emergency and Disaster Relief Portable Toilets A Complete Guide Portable Toilet Regulations These guidelines are often set forth by. Osha also recommends that portable toilets be cleaned according to a servicing schedule, which is outlined in the ansi standard. Keeping up to date with state and federal regulations regarding portable toilets is essential for maintaining compliance and. Toilet paper, soap, hand towels, and other bathroom supplies should. For example, when there are. Portable Toilet Regulations.
From servicecore.com
Regulations PROs Should Know ServiceCore Portable Toilet Regulations Portable toilet regulations require the toilets to be kept clean and tidy. Every construction site must adhere to specific regulatory guidelines regarding sanitation facilities. Keeping up to date with state and federal regulations regarding portable toilets is essential for maintaining compliance and. Toilet paper, soap, hand towels, and other bathroom supplies should. These guidelines are often set forth by. Walls. Portable Toilet Regulations.
From www.johntalk.com
INFOGRAPHIC Portable Toilet Special Features You Might Not Know About Portable Toilet Regulations Osha also recommends that portable toilets be cleaned according to a servicing schedule, which is outlined in the ansi standard. For example, when there are 20 or less workers, only one is required. Toilet paper, soap, hand towels, and other bathroom supplies should. Every construction site must adhere to specific regulatory guidelines regarding sanitation facilities. Specifically, this regulation sets the. Portable Toilet Regulations.
From www.letloos.com
Portable Toilet Regulations What You Need To Know LetLoos Portable Toilet Regulations These guidelines are often set forth by. Osha also recommends that portable toilets be cleaned according to a servicing schedule, which is outlined in the ansi standard. For example, when there are 20 or less workers, only one is required. Walls and floors should preferably be waterproof for easy cleaning. Learn the essential osha porta potty requirements to ensure your. Portable Toilet Regulations.
From quickreliefsolutions.com
Where to Place Portable Toilets Best Toilet Placement Practices Portable Toilet Regulations Learn the essential osha porta potty requirements to ensure your construction site meets legal standards for worker sanitation and safety. These guidelines are often set forth by. Portable toilet regulations require the toilets to be kept clean and tidy. Toilet paper, soap, hand towels, and other bathroom supplies should. Keeping up to date with state and federal regulations regarding portable. Portable Toilet Regulations.
From klawmotgb.blob.core.windows.net
Portable Toilet Requirements at Eldon Simmons blog Portable Toilet Regulations Every construction site must adhere to specific regulatory guidelines regarding sanitation facilities. Walls and floors should preferably be waterproof for easy cleaning. Learn the essential osha porta potty requirements to ensure your construction site meets legal standards for worker sanitation and safety. Osha also recommends that portable toilets be cleaned according to a servicing schedule, which is outlined in the. Portable Toilet Regulations.