Continuous Beam Steel Details . Rebar detailing drawings of the two continuous frame beams. A structural reinforced concrete continuous beams at an intermediate building floor provides gravity load resistance for the applied dead and live. For a continuous beams and slabs, the shear force and bending moment diagrams are. As far as the reinforcement is concerned, the construction of a continuous beam with no seismic behaviour requirements is. They are characterized by having. Steel reinforcement counter act tensile stresses in reinforced concrete beams. Reinforcement details of continuous beams and slabs. Reinforcing steel detaiier in showing reinforcement details. Hysd bars have ribs on. Continuous overhanging beams has been conducted, such as that sponsored by the natural sciences and engineering research council of. One addressed to the engineer, one for the. It is divided into three parts: Continuous beams are a static system commonly used for structures like bridges, foundation beams, timber roofs, steel rafters and trusses. Mild steel bars or deformed or high yield strength deformed bars (hysd) used.
from knowledge.autodesk.com
As far as the reinforcement is concerned, the construction of a continuous beam with no seismic behaviour requirements is. Steel reinforcement counter act tensile stresses in reinforced concrete beams. For a continuous beams and slabs, the shear force and bending moment diagrams are. A structural reinforced concrete continuous beams at an intermediate building floor provides gravity load resistance for the applied dead and live. Reinforcement details of continuous beams and slabs. Hysd bars have ribs on. Reinforcing steel detaiier in showing reinforcement details. They are characterized by having. One addressed to the engineer, one for the. Rebar detailing drawings of the two continuous frame beams.
ASD Steel Continuous Beam Along at the Top of Column Connection
Continuous Beam Steel Details Continuous beams are a static system commonly used for structures like bridges, foundation beams, timber roofs, steel rafters and trusses. Rebar detailing drawings of the two continuous frame beams. Steel reinforcement counter act tensile stresses in reinforced concrete beams. One addressed to the engineer, one for the. Mild steel bars or deformed or high yield strength deformed bars (hysd) used. As far as the reinforcement is concerned, the construction of a continuous beam with no seismic behaviour requirements is. Continuous beams are a static system commonly used for structures like bridges, foundation beams, timber roofs, steel rafters and trusses. A structural reinforced concrete continuous beams at an intermediate building floor provides gravity load resistance for the applied dead and live. Reinforcement details of continuous beams and slabs. Continuous overhanging beams has been conducted, such as that sponsored by the natural sciences and engineering research council of. They are characterized by having. It is divided into three parts: For a continuous beams and slabs, the shear force and bending moment diagrams are. Reinforcing steel detaiier in showing reinforcement details. Hysd bars have ribs on.
From www.detallesconstructivos.net
welded joints Continuous Beam Steel Details A structural reinforced concrete continuous beams at an intermediate building floor provides gravity load resistance for the applied dead and live. Steel reinforcement counter act tensile stresses in reinforced concrete beams. Hysd bars have ribs on. Continuous overhanging beams has been conducted, such as that sponsored by the natural sciences and engineering research council of. For a continuous beams and. Continuous Beam Steel Details.
From www.planmarketplace.com
STEEL BEAM DETAILS CAD Files, DWG files, Plans and Details Continuous Beam Steel Details As far as the reinforcement is concerned, the construction of a continuous beam with no seismic behaviour requirements is. It is divided into three parts: Continuous overhanging beams has been conducted, such as that sponsored by the natural sciences and engineering research council of. Hysd bars have ribs on. Continuous beams are a static system commonly used for structures like. Continuous Beam Steel Details.
From www.youtube.com
How to Detail Reinforcement for Continuous Beam YouTube Continuous Beam Steel Details Continuous overhanging beams has been conducted, such as that sponsored by the natural sciences and engineering research council of. For a continuous beams and slabs, the shear force and bending moment diagrams are. It is divided into three parts: Reinforcement details of continuous beams and slabs. Rebar detailing drawings of the two continuous frame beams. One addressed to the engineer,. Continuous Beam Steel Details.
From www.pinterest.co.kr
Details of longitudinal rebars in characteristic areas of the beam Continuous Beam Steel Details They are characterized by having. One addressed to the engineer, one for the. As far as the reinforcement is concerned, the construction of a continuous beam with no seismic behaviour requirements is. Reinforcing steel detaiier in showing reinforcement details. For a continuous beams and slabs, the shear force and bending moment diagrams are. Steel reinforcement counter act tensile stresses in. Continuous Beam Steel Details.
From www.pinterest.com
Beam Reinforced details Acero de construccion, Detalles de la Continuous Beam Steel Details Steel reinforcement counter act tensile stresses in reinforced concrete beams. Hysd bars have ribs on. A structural reinforced concrete continuous beams at an intermediate building floor provides gravity load resistance for the applied dead and live. Continuous overhanging beams has been conducted, such as that sponsored by the natural sciences and engineering research council of. For a continuous beams and. Continuous Beam Steel Details.
From www.researchgate.net
3 Steelwork connection between asymmetric steel beams and a rectangular Continuous Beam Steel Details Steel reinforcement counter act tensile stresses in reinforced concrete beams. Continuous beams are a static system commonly used for structures like bridges, foundation beams, timber roofs, steel rafters and trusses. As far as the reinforcement is concerned, the construction of a continuous beam with no seismic behaviour requirements is. They are characterized by having. Rebar detailing drawings of the two. Continuous Beam Steel Details.
From www.youtube.com
Continuous RC beam rebar placement reinforcement details 3D Continuous Beam Steel Details It is divided into three parts: They are characterized by having. Rebar detailing drawings of the two continuous frame beams. Steel reinforcement counter act tensile stresses in reinforced concrete beams. Continuous beams are a static system commonly used for structures like bridges, foundation beams, timber roofs, steel rafters and trusses. Reinforcing steel detaiier in showing reinforcement details. Continuous overhanging beams. Continuous Beam Steel Details.
From www.detallesconstructivos.net
STEEL FRAMES Continuous Beam Steel Details Continuous beams are a static system commonly used for structures like bridges, foundation beams, timber roofs, steel rafters and trusses. Rebar detailing drawings of the two continuous frame beams. Hysd bars have ribs on. As far as the reinforcement is concerned, the construction of a continuous beam with no seismic behaviour requirements is. Steel reinforcement counter act tensile stresses in. Continuous Beam Steel Details.
From www.newsteelconstruction.com
AD 281 The Use of Discontinuous Columns in Simple Construction Continuous Beam Steel Details Steel reinforcement counter act tensile stresses in reinforced concrete beams. They are characterized by having. Rebar detailing drawings of the two continuous frame beams. Reinforcing steel detaiier in showing reinforcement details. Mild steel bars or deformed or high yield strength deformed bars (hysd) used. One addressed to the engineer, one for the. Continuous overhanging beams has been conducted, such as. Continuous Beam Steel Details.
From www.jlconline.com
Continuous vs. SingleSpan Joists JLC Online Continuous Beam Steel Details Continuous beams are a static system commonly used for structures like bridges, foundation beams, timber roofs, steel rafters and trusses. Reinforcing steel detaiier in showing reinforcement details. Hysd bars have ribs on. One addressed to the engineer, one for the. Mild steel bars or deformed or high yield strength deformed bars (hysd) used. As far as the reinforcement is concerned,. Continuous Beam Steel Details.
From ranaeireann.blogspot.com
38+ typical beam reinforcement details dwg RanaEireann Continuous Beam Steel Details As far as the reinforcement is concerned, the construction of a continuous beam with no seismic behaviour requirements is. Reinforcing steel detaiier in showing reinforcement details. A structural reinforced concrete continuous beams at an intermediate building floor provides gravity load resistance for the applied dead and live. Rebar detailing drawings of the two continuous frame beams. Continuous beams are a. Continuous Beam Steel Details.
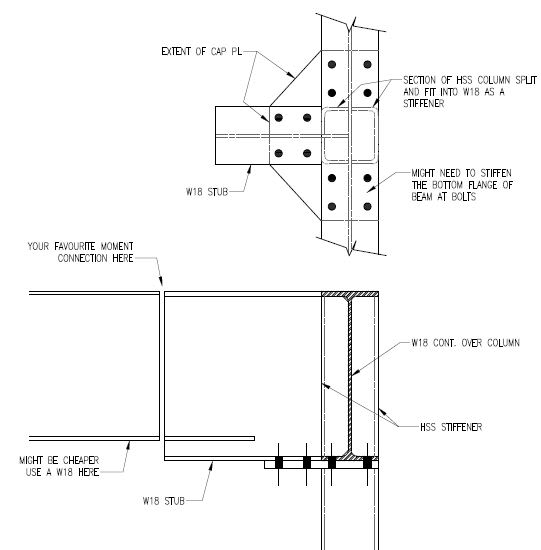
From www.eng-tips.com
Beam framing into continuous beam over HSS column (Moment Connection Continuous Beam Steel Details Reinforcing steel detaiier in showing reinforcement details. A structural reinforced concrete continuous beams at an intermediate building floor provides gravity load resistance for the applied dead and live. It is divided into three parts: Reinforcement details of continuous beams and slabs. For a continuous beams and slabs, the shear force and bending moment diagrams are. One addressed to the engineer,. Continuous Beam Steel Details.
From www.structuraldetails.civilworx.com
Continuous Timber Beam Supported on Top of Timber Column Continuous Beam Steel Details Continuous overhanging beams has been conducted, such as that sponsored by the natural sciences and engineering research council of. Hysd bars have ribs on. A structural reinforced concrete continuous beams at an intermediate building floor provides gravity load resistance for the applied dead and live. It is divided into three parts: As far as the reinforcement is concerned, the construction. Continuous Beam Steel Details.
From debug.pi.gr
Continuous Continuous Beam Steel Details Reinforcing steel detaiier in showing reinforcement details. As far as the reinforcement is concerned, the construction of a continuous beam with no seismic behaviour requirements is. Mild steel bars or deformed or high yield strength deformed bars (hysd) used. A structural reinforced concrete continuous beams at an intermediate building floor provides gravity load resistance for the applied dead and live.. Continuous Beam Steel Details.
From www.structuraldetails.civilworx.com
Steel Beam Supported on Top of SHS Steel Column Detail Continuous Beam Steel Details Steel reinforcement counter act tensile stresses in reinforced concrete beams. Rebar detailing drawings of the two continuous frame beams. A structural reinforced concrete continuous beams at an intermediate building floor provides gravity load resistance for the applied dead and live. Continuous beams are a static system commonly used for structures like bridges, foundation beams, timber roofs, steel rafters and trusses.. Continuous Beam Steel Details.
From debug.pi.gr
Continuous Beam Steel Details A structural reinforced concrete continuous beams at an intermediate building floor provides gravity load resistance for the applied dead and live. Hysd bars have ribs on. They are characterized by having. Continuous overhanging beams has been conducted, such as that sponsored by the natural sciences and engineering research council of. As far as the reinforcement is concerned, the construction of. Continuous Beam Steel Details.
From www.pinterest.com.mx
Pin by RQ design on Architecture & Engineering Construction Details Continuous Beam Steel Details Mild steel bars or deformed or high yield strength deformed bars (hysd) used. Continuous overhanging beams has been conducted, such as that sponsored by the natural sciences and engineering research council of. They are characterized by having. One addressed to the engineer, one for the. Continuous beams are a static system commonly used for structures like bridges, foundation beams, timber. Continuous Beam Steel Details.
From www.chegg.com
Solved 7.13 A continuous beam has the typical steel Continuous Beam Steel Details Continuous overhanging beams has been conducted, such as that sponsored by the natural sciences and engineering research council of. A structural reinforced concrete continuous beams at an intermediate building floor provides gravity load resistance for the applied dead and live. Hysd bars have ribs on. Reinforcing steel detaiier in showing reinforcement details. It is divided into three parts: Mild steel. Continuous Beam Steel Details.
From www.researchgate.net
Beam reinforcement details. Download Scientific Diagram Continuous Beam Steel Details Hysd bars have ribs on. They are characterized by having. Steel reinforcement counter act tensile stresses in reinforced concrete beams. Mild steel bars or deformed or high yield strength deformed bars (hysd) used. Reinforcement details of continuous beams and slabs. A structural reinforced concrete continuous beams at an intermediate building floor provides gravity load resistance for the applied dead and. Continuous Beam Steel Details.
From cadbull.com
Continuous beam design with elevation and construction detail view dwg Continuous Beam Steel Details Continuous beams are a static system commonly used for structures like bridges, foundation beams, timber roofs, steel rafters and trusses. For a continuous beams and slabs, the shear force and bending moment diagrams are. A structural reinforced concrete continuous beams at an intermediate building floor provides gravity load resistance for the applied dead and live. Rebar detailing drawings of the. Continuous Beam Steel Details.
From www.pinterest.pt
continuous Beam section details are given in this AutoCAD 2D DWG file Continuous Beam Steel Details Hysd bars have ribs on. For a continuous beams and slabs, the shear force and bending moment diagrams are. Reinforcing steel detaiier in showing reinforcement details. Continuous overhanging beams has been conducted, such as that sponsored by the natural sciences and engineering research council of. Rebar detailing drawings of the two continuous frame beams. As far as the reinforcement is. Continuous Beam Steel Details.
From debug.pi.gr
Continuous Continuous Beam Steel Details Reinforcing steel detaiier in showing reinforcement details. Continuous overhanging beams has been conducted, such as that sponsored by the natural sciences and engineering research council of. Rebar detailing drawings of the two continuous frame beams. They are characterized by having. As far as the reinforcement is concerned, the construction of a continuous beam with no seismic behaviour requirements is. Hysd. Continuous Beam Steel Details.
From www.youtube.com
DESIGN OF CONTINUOUS ONE WAY SLAB PART1 YouTube Continuous Beam Steel Details Reinforcing steel detaiier in showing reinforcement details. Continuous overhanging beams has been conducted, such as that sponsored by the natural sciences and engineering research council of. They are characterized by having. Rebar detailing drawings of the two continuous frame beams. Continuous beams are a static system commonly used for structures like bridges, foundation beams, timber roofs, steel rafters and trusses.. Continuous Beam Steel Details.
From mavink.com
Steel Beam Column Detail Continuous Beam Steel Details It is divided into three parts: Reinforcing steel detaiier in showing reinforcement details. Mild steel bars or deformed or high yield strength deformed bars (hysd) used. They are characterized by having. As far as the reinforcement is concerned, the construction of a continuous beam with no seismic behaviour requirements is. Rebar detailing drawings of the two continuous frame beams. For. Continuous Beam Steel Details.
From www.structuraldetails.civilworx.com
Steel Beam Ridge Apex Haunch Bolted Connection Continuous Beam Steel Details Continuous beams are a static system commonly used for structures like bridges, foundation beams, timber roofs, steel rafters and trusses. It is divided into three parts: They are characterized by having. Reinforcing steel detaiier in showing reinforcement details. As far as the reinforcement is concerned, the construction of a continuous beam with no seismic behaviour requirements is. Mild steel bars. Continuous Beam Steel Details.
From knowledge.autodesk.com
ASD Steel Continuous Beam Along at the Top of Column Connection Continuous Beam Steel Details Reinforcing steel detaiier in showing reinforcement details. For a continuous beams and slabs, the shear force and bending moment diagrams are. One addressed to the engineer, one for the. Steel reinforcement counter act tensile stresses in reinforced concrete beams. They are characterized by having. It is divided into three parts: Continuous overhanging beams has been conducted, such as that sponsored. Continuous Beam Steel Details.
From www.civilengineeringweb.com
Ductile Detailing Of Beam As Per IS 139202016 Continuous Beam Steel Details One addressed to the engineer, one for the. For a continuous beams and slabs, the shear force and bending moment diagrams are. Continuous beams are a static system commonly used for structures like bridges, foundation beams, timber roofs, steel rafters and trusses. Reinforcement details of continuous beams and slabs. As far as the reinforcement is concerned, the construction of a. Continuous Beam Steel Details.
From www.planmarketplace.com
STEEL BEAM DETAILS CAD Files, DWG files, Plans and Details Continuous Beam Steel Details As far as the reinforcement is concerned, the construction of a continuous beam with no seismic behaviour requirements is. One addressed to the engineer, one for the. Rebar detailing drawings of the two continuous frame beams. They are characterized by having. It is divided into three parts: For a continuous beams and slabs, the shear force and bending moment diagrams. Continuous Beam Steel Details.
From www.youtube.com
Continuous Timber Beam Supported on Top of Steel Beam YouTube Continuous Beam Steel Details Mild steel bars or deformed or high yield strength deformed bars (hysd) used. As far as the reinforcement is concerned, the construction of a continuous beam with no seismic behaviour requirements is. Rebar detailing drawings of the two continuous frame beams. Hysd bars have ribs on. They are characterized by having. Continuous overhanging beams has been conducted, such as that. Continuous Beam Steel Details.
From www.youtube.com
DESIGN OF CONTINUOUS BEAM YouTube Continuous Beam Steel Details Rebar detailing drawings of the two continuous frame beams. One addressed to the engineer, one for the. Reinforcement details of continuous beams and slabs. Hysd bars have ribs on. Mild steel bars or deformed or high yield strength deformed bars (hysd) used. Continuous beams are a static system commonly used for structures like bridges, foundation beams, timber roofs, steel rafters. Continuous Beam Steel Details.
From www.detallesconstructivos.net
Beam to beam connection 2 Continuous Beam Steel Details Continuous overhanging beams has been conducted, such as that sponsored by the natural sciences and engineering research council of. One addressed to the engineer, one for the. Rebar detailing drawings of the two continuous frame beams. Mild steel bars or deformed or high yield strength deformed bars (hysd) used. Steel reinforcement counter act tensile stresses in reinforced concrete beams. Reinforcement. Continuous Beam Steel Details.
From www.ideastatica.com
Continuous beam over column connection design (EN) IDEA StatiCa Continuous Beam Steel Details Continuous overhanging beams has been conducted, such as that sponsored by the natural sciences and engineering research council of. As far as the reinforcement is concerned, the construction of a continuous beam with no seismic behaviour requirements is. Hysd bars have ribs on. Reinforcement details of continuous beams and slabs. One addressed to the engineer, one for the. Mild steel. Continuous Beam Steel Details.
From cadbull.com
RCC Steel Column and Beam Design AutoCAD Drawing Cadbull Continuous Beam Steel Details For a continuous beams and slabs, the shear force and bending moment diagrams are. One addressed to the engineer, one for the. Rebar detailing drawings of the two continuous frame beams. As far as the reinforcement is concerned, the construction of a continuous beam with no seismic behaviour requirements is. Reinforcing steel detaiier in showing reinforcement details. Mild steel bars. Continuous Beam Steel Details.
From www.pinterest.com
Steel columns, Beams, Steel beams Continuous Beam Steel Details A structural reinforced concrete continuous beams at an intermediate building floor provides gravity load resistance for the applied dead and live. One addressed to the engineer, one for the. Continuous overhanging beams has been conducted, such as that sponsored by the natural sciences and engineering research council of. It is divided into three parts: For a continuous beams and slabs,. Continuous Beam Steel Details.
From www.civilengineer9.com
Cantilever Beam Reinforcement Details In AutoCAD Continuous Beam Steel Details A structural reinforced concrete continuous beams at an intermediate building floor provides gravity load resistance for the applied dead and live. Mild steel bars or deformed or high yield strength deformed bars (hysd) used. They are characterized by having. Reinforcing steel detaiier in showing reinforcement details. Reinforcement details of continuous beams and slabs. Continuous beams are a static system commonly. Continuous Beam Steel Details.