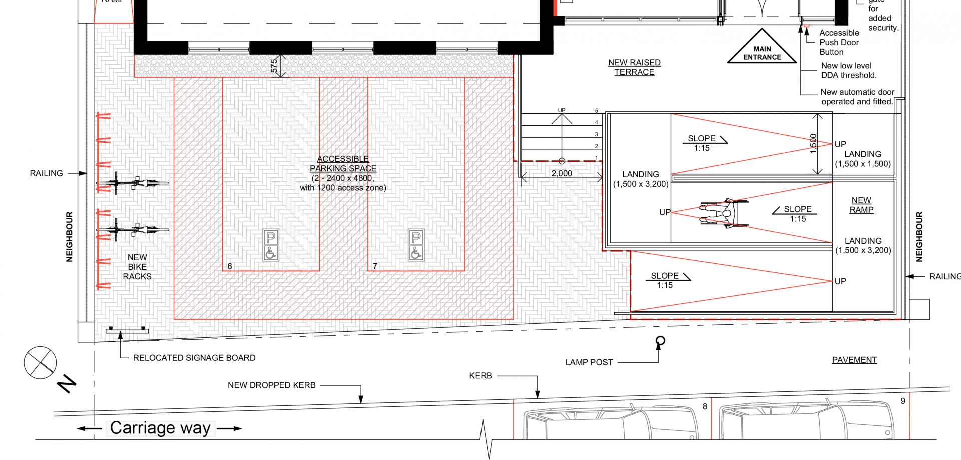
Disabled Ramp Gradient Building Regs . By including a 1.5m level platform at the mid point 25cm high the 2 sections of ramp can have a 1:13.5 gradient which means a length of 3.5m. Wheelchair ramps provide equal access for disabled people and help those with delivery or shopping trolleys to navigate kerbs. You can use a gradient between 1:12 and 1:20, if the ramp length remains within the permitted lengths. A landing is defined in common usage as “a level area at the top of a staircase or ramp or between one flight of a stair or. Please refer to the diagram below for the maximum ramp lengths corresponding to these. Approved document m provides information about the ease of access to, and use of, buildings, including facilities for disabled visitors. The total space required would be. Do landings on internal or external ramps need to be level? To calculate the length of the ramp required, use the formula: Here we discuss the uk regulations, measurements and gradients you. For example, if the threshold. The maximum (steepest) gradient for a domestic dwelling is 1:12. Threshold height × gradient = ramp length.
from buildingcodetrainer.com
By including a 1.5m level platform at the mid point 25cm high the 2 sections of ramp can have a 1:13.5 gradient which means a length of 3.5m. Threshold height × gradient = ramp length. Here we discuss the uk regulations, measurements and gradients you. A landing is defined in common usage as “a level area at the top of a staircase or ramp or between one flight of a stair or. You can use a gradient between 1:12 and 1:20, if the ramp length remains within the permitted lengths. Approved document m provides information about the ease of access to, and use of, buildings, including facilities for disabled visitors. To calculate the length of the ramp required, use the formula: The total space required would be. Please refer to the diagram below for the maximum ramp lengths corresponding to these. Do landings on internal or external ramps need to be level?
Accessible Ramp Code Requirements EXPLAINED
Disabled Ramp Gradient Building Regs Threshold height × gradient = ramp length. Please refer to the diagram below for the maximum ramp lengths corresponding to these. Do landings on internal or external ramps need to be level? The total space required would be. By including a 1.5m level platform at the mid point 25cm high the 2 sections of ramp can have a 1:13.5 gradient which means a length of 3.5m. Threshold height × gradient = ramp length. Wheelchair ramps provide equal access for disabled people and help those with delivery or shopping trolleys to navigate kerbs. Here we discuss the uk regulations, measurements and gradients you. A landing is defined in common usage as “a level area at the top of a staircase or ramp or between one flight of a stair or. The maximum (steepest) gradient for a domestic dwelling is 1:12. To calculate the length of the ramp required, use the formula: For example, if the threshold. You can use a gradient between 1:12 and 1:20, if the ramp length remains within the permitted lengths. Approved document m provides information about the ease of access to, and use of, buildings, including facilities for disabled visitors.
From www.rapidramp.co.uk
How Wide Should A Wheelchair Ramp Be? Rapid Ramp Disabled Ramp Gradient Building Regs Approved document m provides information about the ease of access to, and use of, buildings, including facilities for disabled visitors. Here we discuss the uk regulations, measurements and gradients you. To calculate the length of the ramp required, use the formula: The maximum (steepest) gradient for a domestic dwelling is 1:12. By including a 1.5m level platform at the mid. Disabled Ramp Gradient Building Regs.
From www.buildmagazine.org.nz
Ramps and paths for accessibility BRANZ Build Disabled Ramp Gradient Building Regs For example, if the threshold. A landing is defined in common usage as “a level area at the top of a staircase or ramp or between one flight of a stair or. To calculate the length of the ramp required, use the formula: The maximum (steepest) gradient for a domestic dwelling is 1:12. Threshold height × gradient = ramp length.. Disabled Ramp Gradient Building Regs.
From www.congress-intercultural.eu
Ramps, Slopes, Gradients, Inclines And Levels The Building, 58 OFF Disabled Ramp Gradient Building Regs By including a 1.5m level platform at the mid point 25cm high the 2 sections of ramp can have a 1:13.5 gradient which means a length of 3.5m. You can use a gradient between 1:12 and 1:20, if the ramp length remains within the permitted lengths. To calculate the length of the ramp required, use the formula: Do landings on. Disabled Ramp Gradient Building Regs.
From buildersvilla.com
How to build a ramp for wheelchair Builders Villa Disabled Ramp Gradient Building Regs The maximum (steepest) gradient for a domestic dwelling is 1:12. Please refer to the diagram below for the maximum ramp lengths corresponding to these. For example, if the threshold. Approved document m provides information about the ease of access to, and use of, buildings, including facilities for disabled visitors. By including a 1.5m level platform at the mid point 25cm. Disabled Ramp Gradient Building Regs.
From www.readingprecast.com
RediRamp • Our Precast Concrete ADA Ramp System • Reading Precast Disabled Ramp Gradient Building Regs Approved document m provides information about the ease of access to, and use of, buildings, including facilities for disabled visitors. For example, if the threshold. Threshold height × gradient = ramp length. To calculate the length of the ramp required, use the formula: The maximum (steepest) gradient for a domestic dwelling is 1:12. A landing is defined in common usage. Disabled Ramp Gradient Building Regs.
From buildingcodetrainer.com
Accessible Ramp Code Requirements EXPLAINED Disabled Ramp Gradient Building Regs A landing is defined in common usage as “a level area at the top of a staircase or ramp or between one flight of a stair or. Do landings on internal or external ramps need to be level? You can use a gradient between 1:12 and 1:20, if the ramp length remains within the permitted lengths. Here we discuss the. Disabled Ramp Gradient Building Regs.
From www.gov.scot
4.1 Access to buildings Building standards technical handbook 2019 Disabled Ramp Gradient Building Regs To calculate the length of the ramp required, use the formula: Approved document m provides information about the ease of access to, and use of, buildings, including facilities for disabled visitors. Please refer to the diagram below for the maximum ramp lengths corresponding to these. By including a 1.5m level platform at the mid point 25cm high the 2 sections. Disabled Ramp Gradient Building Regs.
From fixdbverylilaznboi172.z13.web.core.windows.net
Building Code For Handicap Ramps Disabled Ramp Gradient Building Regs The total space required would be. Wheelchair ramps provide equal access for disabled people and help those with delivery or shopping trolleys to navigate kerbs. Threshold height × gradient = ramp length. To calculate the length of the ramp required, use the formula: Do landings on internal or external ramps need to be level? Approved document m provides information about. Disabled Ramp Gradient Building Regs.
From adata.org
A Planning Guide for Making Temporary Events Accessible to People With Disabled Ramp Gradient Building Regs A landing is defined in common usage as “a level area at the top of a staircase or ramp or between one flight of a stair or. Threshold height × gradient = ramp length. The maximum (steepest) gradient for a domestic dwelling is 1:12. Wheelchair ramps provide equal access for disabled people and help those with delivery or shopping trolleys. Disabled Ramp Gradient Building Regs.
From www.gbu-presnenskij.ru
Ramp ADA Ramp Standards More?, 41 OFF Disabled Ramp Gradient Building Regs To calculate the length of the ramp required, use the formula: Threshold height × gradient = ramp length. Do landings on internal or external ramps need to be level? Please refer to the diagram below for the maximum ramp lengths corresponding to these. The total space required would be. For example, if the threshold. Wheelchair ramps provide equal access for. Disabled Ramp Gradient Building Regs.
From www.gov.scot
4.3 Stairs and ramps Building Standards technical handbook 2017 Disabled Ramp Gradient Building Regs For example, if the threshold. Here we discuss the uk regulations, measurements and gradients you. The total space required would be. Approved document m provides information about the ease of access to, and use of, buildings, including facilities for disabled visitors. A landing is defined in common usage as “a level area at the top of a staircase or ramp. Disabled Ramp Gradient Building Regs.
From www.iwa.ie
7 Access to the Built Environment Irish Wheelchair Association Disabled Ramp Gradient Building Regs The maximum (steepest) gradient for a domestic dwelling is 1:12. For example, if the threshold. To calculate the length of the ramp required, use the formula: By including a 1.5m level platform at the mid point 25cm high the 2 sections of ramp can have a 1:13.5 gradient which means a length of 3.5m. Approved document m provides information about. Disabled Ramp Gradient Building Regs.
From in.pinterest.com
Important Information About Ramp And Stair Design With Details Disabled Ramp Gradient Building Regs The total space required would be. Here we discuss the uk regulations, measurements and gradients you. Please refer to the diagram below for the maximum ramp lengths corresponding to these. Approved document m provides information about the ease of access to, and use of, buildings, including facilities for disabled visitors. A landing is defined in common usage as “a level. Disabled Ramp Gradient Building Regs.
From www.esl-services.co.uk
Ramp Buying Guide ESL Services Disabled Ramp Gradient Building Regs Wheelchair ramps provide equal access for disabled people and help those with delivery or shopping trolleys to navigate kerbs. You can use a gradient between 1:12 and 1:20, if the ramp length remains within the permitted lengths. Do landings on internal or external ramps need to be level? By including a 1.5m level platform at the mid point 25cm high. Disabled Ramp Gradient Building Regs.
From adatile.com
All You Need to Know About ADA Curb Ramp Requirements in 2021 ADA Disabled Ramp Gradient Building Regs By including a 1.5m level platform at the mid point 25cm high the 2 sections of ramp can have a 1:13.5 gradient which means a length of 3.5m. Threshold height × gradient = ramp length. Wheelchair ramps provide equal access for disabled people and help those with delivery or shopping trolleys to navigate kerbs. The total space required would be.. Disabled Ramp Gradient Building Regs.
From betterhomeaccess.co.uk
Disabled Ramps Wheelchair Ramp Access Solutions Disabled Ramp Gradient Building Regs Threshold height × gradient = ramp length. The maximum (steepest) gradient for a domestic dwelling is 1:12. By including a 1.5m level platform at the mid point 25cm high the 2 sections of ramp can have a 1:13.5 gradient which means a length of 3.5m. For example, if the threshold. A landing is defined in common usage as “a level. Disabled Ramp Gradient Building Regs.
From liftandaccessibilitysolutions.com
Residential Wheelchair Ramps Servicing the East Bay to Marin County Disabled Ramp Gradient Building Regs Here we discuss the uk regulations, measurements and gradients you. By including a 1.5m level platform at the mid point 25cm high the 2 sections of ramp can have a 1:13.5 gradient which means a length of 3.5m. The total space required would be. To calculate the length of the ramp required, use the formula: You can use a gradient. Disabled Ramp Gradient Building Regs.
From www.pbctoday.co.uk
Ups and downs of accessible design Disabled Ramp Gradient Building Regs Threshold height × gradient = ramp length. For example, if the threshold. Approved document m provides information about the ease of access to, and use of, buildings, including facilities for disabled visitors. Please refer to the diagram below for the maximum ramp lengths corresponding to these. Here we discuss the uk regulations, measurements and gradients you. By including a 1.5m. Disabled Ramp Gradient Building Regs.
From www.ability.co.uk
Ability Living & Mobility, Cardiff's and Barry's local mobility shop. Disabled Ramp Gradient Building Regs The maximum (steepest) gradient for a domestic dwelling is 1:12. A landing is defined in common usage as “a level area at the top of a staircase or ramp or between one flight of a stair or. To calculate the length of the ramp required, use the formula: Approved document m provides information about the ease of access to, and. Disabled Ramp Gradient Building Regs.
From www.dimensions.com
Ramps Dimensions & Drawings Disabled Ramp Gradient Building Regs To calculate the length of the ramp required, use the formula: The total space required would be. Please refer to the diagram below for the maximum ramp lengths corresponding to these. The maximum (steepest) gradient for a domestic dwelling is 1:12. For example, if the threshold. By including a 1.5m level platform at the mid point 25cm high the 2. Disabled Ramp Gradient Building Regs.
From www.rapidramp.co.uk
wheelchair ramp regulations to dwellings doc M, doc k Disabled Ramp Gradient Building Regs To calculate the length of the ramp required, use the formula: Wheelchair ramps provide equal access for disabled people and help those with delivery or shopping trolleys to navigate kerbs. A landing is defined in common usage as “a level area at the top of a staircase or ramp or between one flight of a stair or. Approved document m. Disabled Ramp Gradient Building Regs.
From www.simplifiedbuilding.com
ADA Handrail Regulations for Stairs and Ramps ADA Handrail Disabled Ramp Gradient Building Regs A landing is defined in common usage as “a level area at the top of a staircase or ramp or between one flight of a stair or. Here we discuss the uk regulations, measurements and gradients you. You can use a gradient between 1:12 and 1:20, if the ramp length remains within the permitted lengths. The total space required would. Disabled Ramp Gradient Building Regs.
From www.pinterest.com
Comprehensive Guide And Details About Ramp Slopes Design Ramp design Disabled Ramp Gradient Building Regs Here we discuss the uk regulations, measurements and gradients you. Do landings on internal or external ramps need to be level? To calculate the length of the ramp required, use the formula: For example, if the threshold. You can use a gradient between 1:12 and 1:20, if the ramp length remains within the permitted lengths. Please refer to the diagram. Disabled Ramp Gradient Building Regs.
From www.nurturegroup.co.uk
Wheelchair Ramp Regulations Nurture Group UK Disabled Ramp Gradient Building Regs For example, if the threshold. Threshold height × gradient = ramp length. The maximum (steepest) gradient for a domestic dwelling is 1:12. To calculate the length of the ramp required, use the formula: You can use a gradient between 1:12 and 1:20, if the ramp length remains within the permitted lengths. Here we discuss the uk regulations, measurements and gradients. Disabled Ramp Gradient Building Regs.
From cookinglove.com
How to build a wheelchair ramp Disabled Ramp Gradient Building Regs Please refer to the diagram below for the maximum ramp lengths corresponding to these. You can use a gradient between 1:12 and 1:20, if the ramp length remains within the permitted lengths. The total space required would be. Threshold height × gradient = ramp length. A landing is defined in common usage as “a level area at the top of. Disabled Ramp Gradient Building Regs.
From www.aussiebalustrading.com.au
Wheelchair Ramps Requirements You Should Know Aussie Balustrading Disabled Ramp Gradient Building Regs The maximum (steepest) gradient for a domestic dwelling is 1:12. You can use a gradient between 1:12 and 1:20, if the ramp length remains within the permitted lengths. Threshold height × gradient = ramp length. A landing is defined in common usage as “a level area at the top of a staircase or ramp or between one flight of a. Disabled Ramp Gradient Building Regs.
From betterhomeaccess.co.uk
completedwheelchairramps Wheelchair Ramp Access Solutions Disabled Ramp Gradient Building Regs Approved document m provides information about the ease of access to, and use of, buildings, including facilities for disabled visitors. Do landings on internal or external ramps need to be level? Wheelchair ramps provide equal access for disabled people and help those with delivery or shopping trolleys to navigate kerbs. Threshold height × gradient = ramp length. To calculate the. Disabled Ramp Gradient Building Regs.
From buildingcodetrainer.com
Accessible Ramp Code Requirements EXPLAINED Disabled Ramp Gradient Building Regs Threshold height × gradient = ramp length. Wheelchair ramps provide equal access for disabled people and help those with delivery or shopping trolleys to navigate kerbs. By including a 1.5m level platform at the mid point 25cm high the 2 sections of ramp can have a 1:13.5 gradient which means a length of 3.5m. For example, if the threshold. Please. Disabled Ramp Gradient Building Regs.
From www.rapidramp.co.uk
How Wide Should A Wheelchair Ramp Be? Rapid Ramp Disabled Ramp Gradient Building Regs By including a 1.5m level platform at the mid point 25cm high the 2 sections of ramp can have a 1:13.5 gradient which means a length of 3.5m. A landing is defined in common usage as “a level area at the top of a staircase or ramp or between one flight of a stair or. Threshold height × gradient =. Disabled Ramp Gradient Building Regs.
From originalidexprep.com
14Rampstraight1024x590 Original IDEX CA Prep Disabled Ramp Gradient Building Regs Here we discuss the uk regulations, measurements and gradients you. Approved document m provides information about the ease of access to, and use of, buildings, including facilities for disabled visitors. You can use a gradient between 1:12 and 1:20, if the ramp length remains within the permitted lengths. To calculate the length of the ramp required, use the formula: Do. Disabled Ramp Gradient Building Regs.
From quality.hutchies.com.au
3. Ramp Gradients Disabled Ramp Gradient Building Regs For example, if the threshold. Approved document m provides information about the ease of access to, and use of, buildings, including facilities for disabled visitors. Here we discuss the uk regulations, measurements and gradients you. Do landings on internal or external ramps need to be level? Wheelchair ramps provide equal access for disabled people and help those with delivery or. Disabled Ramp Gradient Building Regs.
From inspectapedia.com
Accessible Design ADA & Best Practices for Accessible Buildings Disabled Ramp Gradient Building Regs Threshold height × gradient = ramp length. To calculate the length of the ramp required, use the formula: Wheelchair ramps provide equal access for disabled people and help those with delivery or shopping trolleys to navigate kerbs. By including a 1.5m level platform at the mid point 25cm high the 2 sections of ramp can have a 1:13.5 gradient which. Disabled Ramp Gradient Building Regs.
From arasolutions.com.au
Australian Ramps and Access Solutions Disabled Ramp Gradient Building Regs Threshold height × gradient = ramp length. For example, if the threshold. The total space required would be. By including a 1.5m level platform at the mid point 25cm high the 2 sections of ramp can have a 1:13.5 gradient which means a length of 3.5m. Here we discuss the uk regulations, measurements and gradients you. The maximum (steepest) gradient. Disabled Ramp Gradient Building Regs.
From wiringfixkleefa3.z21.web.core.windows.net
Building A Handicap Ramp To Code Disabled Ramp Gradient Building Regs By including a 1.5m level platform at the mid point 25cm high the 2 sections of ramp can have a 1:13.5 gradient which means a length of 3.5m. Wheelchair ramps provide equal access for disabled people and help those with delivery or shopping trolleys to navigate kerbs. A landing is defined in common usage as “a level area at the. Disabled Ramp Gradient Building Regs.
From betterhomeaccess.co.uk
Measuring For A Ramp Wheelchair Ramp Access Solutions Disabled Ramp Gradient Building Regs The total space required would be. Do landings on internal or external ramps need to be level? For example, if the threshold. To calculate the length of the ramp required, use the formula: Threshold height × gradient = ramp length. Here we discuss the uk regulations, measurements and gradients you. By including a 1.5m level platform at the mid point. Disabled Ramp Gradient Building Regs.