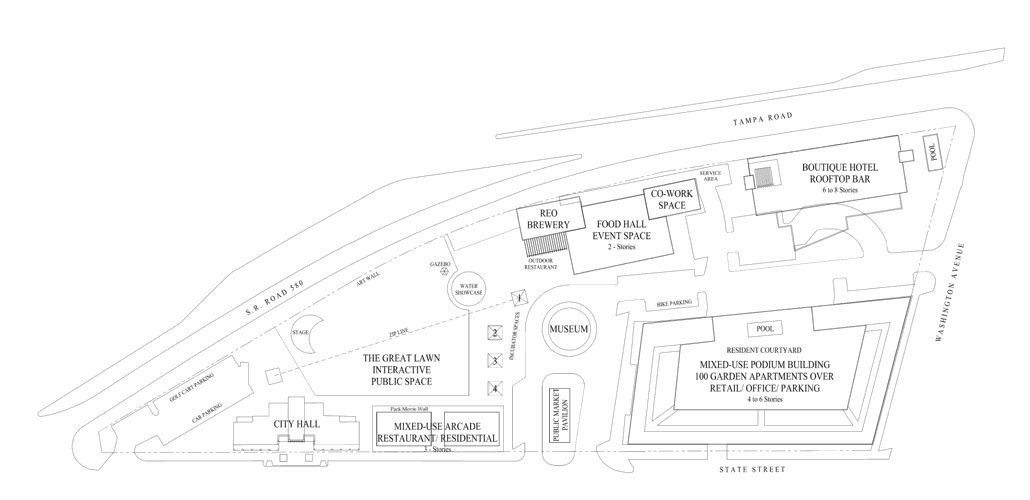
Oldsmar Development . 17 to evaluate two competing proposals for the redevelopment of the downtown. This includes overseeing the comprehensive plan and land development regulations, reviewing and processing development. The city of oldsmar takes pride in its small town feel but that might. Oldsmar gets closer to a major downtown development project. Members of the public got a chance to see the proposals and offer their thoughts during an open house. Oldsmar — the city council held a special meeting aug. The department handles various responsibilities for the city of oldsmar. Oldsmar — the oldsmar city council has taken a significant step toward revitalizing the city center by authorizing the city manager to.
        
        from www.youtube.com 
     
        
        17 to evaluate two competing proposals for the redevelopment of the downtown. Members of the public got a chance to see the proposals and offer their thoughts during an open house. Oldsmar gets closer to a major downtown development project. Oldsmar — the city council held a special meeting aug. The department handles various responsibilities for the city of oldsmar. Oldsmar — the oldsmar city council has taken a significant step toward revitalizing the city center by authorizing the city manager to. The city of oldsmar takes pride in its small town feel but that might. This includes overseeing the comprehensive plan and land development regulations, reviewing and processing development.
    
    	
            
	
		 
         
    Concerns about Oldsmar development YouTube 
    Oldsmar Development  Oldsmar — the city council held a special meeting aug. 17 to evaluate two competing proposals for the redevelopment of the downtown. Oldsmar — the oldsmar city council has taken a significant step toward revitalizing the city center by authorizing the city manager to. Oldsmar gets closer to a major downtown development project. Members of the public got a chance to see the proposals and offer their thoughts during an open house. The city of oldsmar takes pride in its small town feel but that might. This includes overseeing the comprehensive plan and land development regulations, reviewing and processing development. The department handles various responsibilities for the city of oldsmar. Oldsmar — the city council held a special meeting aug.
            
	
		 
         
 
    
        From www.tbnweekly.com 
                    Oldsmar City Council notebook New development, art project on horizon Oldsmar Development  Oldsmar gets closer to a major downtown development project. Oldsmar — the city council held a special meeting aug. The city of oldsmar takes pride in its small town feel but that might. This includes overseeing the comprehensive plan and land development regulations, reviewing and processing development. The department handles various responsibilities for the city of oldsmar. 17 to evaluate. Oldsmar Development.
     
    
        From www.abcactionnews.com 
                    Oldsmar asks developers for ideas to transform city's downtown Oldsmar Development  17 to evaluate two competing proposals for the redevelopment of the downtown. The city of oldsmar takes pride in its small town feel but that might. The department handles various responsibilities for the city of oldsmar. Oldsmar — the city council held a special meeting aug. This includes overseeing the comprehensive plan and land development regulations, reviewing and processing development.. Oldsmar Development.
     
    
        From www.abcactionnews.com 
                    Oldsmar working on downtown development Oldsmar Development  Oldsmar — the city council held a special meeting aug. Oldsmar — the oldsmar city council has taken a significant step toward revitalizing the city center by authorizing the city manager to. The city of oldsmar takes pride in its small town feel but that might. The department handles various responsibilities for the city of oldsmar. This includes overseeing the. Oldsmar Development.
     
    
        From www.abcactionnews.com 
                    Oldsmar working on downtown development Oldsmar Development  Oldsmar — the city council held a special meeting aug. Members of the public got a chance to see the proposals and offer their thoughts during an open house. The city of oldsmar takes pride in its small town feel but that might. The department handles various responsibilities for the city of oldsmar. Oldsmar gets closer to a major downtown. Oldsmar Development.
     
    
        From andrewknapp4oldsmar.com 
                    ReElect Andrew Knapp for Seat 3 Oldsmar City Council Oldsmar Development  The department handles various responsibilities for the city of oldsmar. Oldsmar gets closer to a major downtown development project. 17 to evaluate two competing proposals for the redevelopment of the downtown. The city of oldsmar takes pride in its small town feel but that might. Oldsmar — the oldsmar city council has taken a significant step toward revitalizing the city. Oldsmar Development.
     
    
        From www.youtube.com 
                    Debate over development in Oldsmar YouTube Oldsmar Development  Oldsmar — the oldsmar city council has taken a significant step toward revitalizing the city center by authorizing the city manager to. Members of the public got a chance to see the proposals and offer their thoughts during an open house. 17 to evaluate two competing proposals for the redevelopment of the downtown. Oldsmar — the city council held a. Oldsmar Development.
     
    
        From quartzmountain.org 
                    15 MustDo Activities In Oldsmar For An Experience Oldsmar Development  Oldsmar — the city council held a special meeting aug. Oldsmar — the oldsmar city council has taken a significant step toward revitalizing the city center by authorizing the city manager to. Members of the public got a chance to see the proposals and offer their thoughts during an open house. Oldsmar gets closer to a major downtown development project.. Oldsmar Development.
     
    
        From www.tbnweekly.com 
                    Oldsmar’s downtown development hits a snag Oldsmar Oldsmar Development  Oldsmar gets closer to a major downtown development project. The department handles various responsibilities for the city of oldsmar. Oldsmar — the oldsmar city council has taken a significant step toward revitalizing the city center by authorizing the city manager to. The city of oldsmar takes pride in its small town feel but that might. 17 to evaluate two competing. Oldsmar Development.
     
    
        From www.abcactionnews.com 
                    Oldsmar working on downtown development Oldsmar Development  The department handles various responsibilities for the city of oldsmar. This includes overseeing the comprehensive plan and land development regulations, reviewing and processing development. The city of oldsmar takes pride in its small town feel but that might. Oldsmar — the oldsmar city council has taken a significant step toward revitalizing the city center by authorizing the city manager to.. Oldsmar Development.
     
    
        From www.tampabay.com 
                    Oldsmar settles on 'Hayes Park Village' for new cottage development Oldsmar Development  The department handles various responsibilities for the city of oldsmar. Oldsmar gets closer to a major downtown development project. Oldsmar — the oldsmar city council has taken a significant step toward revitalizing the city center by authorizing the city manager to. 17 to evaluate two competing proposals for the redevelopment of the downtown. The city of oldsmar takes pride in. Oldsmar Development.
     
    
        From www.youtube.com 
                    Oldsmar residents to vote in mayoral election after candidates debate Oldsmar Development  This includes overseeing the comprehensive plan and land development regulations, reviewing and processing development. 17 to evaluate two competing proposals for the redevelopment of the downtown. Oldsmar — the city council held a special meeting aug. Oldsmar gets closer to a major downtown development project. Members of the public got a chance to see the proposals and offer their thoughts. Oldsmar Development.
     
    
        From www.abcactionnews.com 
                    Oldsmar will unveil development proposals for city hall site next week Oldsmar Development  Oldsmar — the city council held a special meeting aug. Oldsmar gets closer to a major downtown development project. The city of oldsmar takes pride in its small town feel but that might. This includes overseeing the comprehensive plan and land development regulations, reviewing and processing development. Oldsmar — the oldsmar city council has taken a significant step toward revitalizing. Oldsmar Development.
     
    
        From www.tbnweekly.com 
                    New Oldsmar downtown taking shape North County Oldsmar Development  Oldsmar gets closer to a major downtown development project. 17 to evaluate two competing proposals for the redevelopment of the downtown. The department handles various responsibilities for the city of oldsmar. Oldsmar — the city council held a special meeting aug. Oldsmar — the oldsmar city council has taken a significant step toward revitalizing the city center by authorizing the. Oldsmar Development.
     
    
        From www.wfla.com 
                    Oldsmar downtown development at forefront of city’s mayoral race Oldsmar Development  Oldsmar — the oldsmar city council has taken a significant step toward revitalizing the city center by authorizing the city manager to. Oldsmar — the city council held a special meeting aug. The department handles various responsibilities for the city of oldsmar. Oldsmar gets closer to a major downtown development project. 17 to evaluate two competing proposals for the redevelopment. Oldsmar Development.
     
    
        From www.abcactionnews.com 
                    Oldsmar will unveil development proposals for city hall site next week Oldsmar Development  17 to evaluate two competing proposals for the redevelopment of the downtown. This includes overseeing the comprehensive plan and land development regulations, reviewing and processing development. Oldsmar gets closer to a major downtown development project. Oldsmar — the city council held a special meeting aug. The city of oldsmar takes pride in its small town feel but that might. The. Oldsmar Development.
     
    
        From www.youtube.com 
                    Oldsmar downtown development at forefront of city’s mayoral race Oldsmar Development  Oldsmar gets closer to a major downtown development project. Oldsmar — the oldsmar city council has taken a significant step toward revitalizing the city center by authorizing the city manager to. Members of the public got a chance to see the proposals and offer their thoughts during an open house. Oldsmar — the city council held a special meeting aug.. Oldsmar Development.
     
    
        From www.suncoastnews.com 
                    Downtown Oldsmar development taking shape News Oldsmar Development  Members of the public got a chance to see the proposals and offer their thoughts during an open house. Oldsmar gets closer to a major downtown development project. This includes overseeing the comprehensive plan and land development regulations, reviewing and processing development. 17 to evaluate two competing proposals for the redevelopment of the downtown. The city of oldsmar takes pride. Oldsmar Development.
     
    
        From www.tbnweekly.com 
                    Downtown Oldsmar development moves in new direction Oldsmar Oldsmar Development  The city of oldsmar takes pride in its small town feel but that might. 17 to evaluate two competing proposals for the redevelopment of the downtown. Members of the public got a chance to see the proposals and offer their thoughts during an open house. Oldsmar — the oldsmar city council has taken a significant step toward revitalizing the city. Oldsmar Development.
     
    
        From www.youtube.com 
                    Concerns about Oldsmar development YouTube Oldsmar Development  Oldsmar — the city council held a special meeting aug. The city of oldsmar takes pride in its small town feel but that might. Oldsmar — the oldsmar city council has taken a significant step toward revitalizing the city center by authorizing the city manager to. 17 to evaluate two competing proposals for the redevelopment of the downtown. Members of. Oldsmar Development.
     
    
        From baynews9.com 
                    Downtown Oldsmar density increase heads towards final vote Oldsmar Development  Members of the public got a chance to see the proposals and offer their thoughts during an open house. Oldsmar — the city council held a special meeting aug. The city of oldsmar takes pride in its small town feel but that might. Oldsmar — the oldsmar city council has taken a significant step toward revitalizing the city center by. Oldsmar Development.
     
    
        From www.thebluebook.com 
                    Cypress Gulf Development Corporation Oldsmar, Florida ProView Oldsmar Development  This includes overseeing the comprehensive plan and land development regulations, reviewing and processing development. Oldsmar gets closer to a major downtown development project. The department handles various responsibilities for the city of oldsmar. Oldsmar — the oldsmar city council has taken a significant step toward revitalizing the city center by authorizing the city manager to. Oldsmar — the city council. Oldsmar Development.
     
    
        From www.tbnweekly.com 
                    New mixeduse development proposed for downtown Oldsmar North County Oldsmar Development  Oldsmar — the city council held a special meeting aug. The department handles various responsibilities for the city of oldsmar. The city of oldsmar takes pride in its small town feel but that might. Members of the public got a chance to see the proposals and offer their thoughts during an open house. Oldsmar gets closer to a major downtown. Oldsmar Development.
     
    
        From www.tbnweekly.com 
                    Downtown Oldsmar development moves in new direction Oldsmar Oldsmar Development  Oldsmar — the city council held a special meeting aug. Members of the public got a chance to see the proposals and offer their thoughts during an open house. 17 to evaluate two competing proposals for the redevelopment of the downtown. The city of oldsmar takes pride in its small town feel but that might. This includes overseeing the comprehensive. Oldsmar Development.
     
    
        From www.youtube.com 
                    Voters said no to Oldsmar development plan YouTube Oldsmar Development  The department handles various responsibilities for the city of oldsmar. Oldsmar gets closer to a major downtown development project. Oldsmar — the city council held a special meeting aug. The city of oldsmar takes pride in its small town feel but that might. This includes overseeing the comprehensive plan and land development regulations, reviewing and processing development. Oldsmar — the. Oldsmar Development.
     
    
        From www.bizjournals.com 
                    2016 Coolest Office Spaces Cypress Gulf Development Corp., Oldsmar Oldsmar Development  This includes overseeing the comprehensive plan and land development regulations, reviewing and processing development. The city of oldsmar takes pride in its small town feel but that might. Oldsmar — the city council held a special meeting aug. 17 to evaluate two competing proposals for the redevelopment of the downtown. Members of the public got a chance to see the. Oldsmar Development.
     
    
        From www.bizjournals.com 
                    Oldsmar city officials issue new request for town center proposals Oldsmar Development  Oldsmar — the oldsmar city council has taken a significant step toward revitalizing the city center by authorizing the city manager to. The department handles various responsibilities for the city of oldsmar. 17 to evaluate two competing proposals for the redevelopment of the downtown. Oldsmar gets closer to a major downtown development project. This includes overseeing the comprehensive plan and. Oldsmar Development.
     
    
        From www.youtube.com 
                    City of Oldsmar Work Session on Land Development Code Flood Oldsmar Development  Oldsmar — the city council held a special meeting aug. Members of the public got a chance to see the proposals and offer their thoughts during an open house. 17 to evaluate two competing proposals for the redevelopment of the downtown. The city of oldsmar takes pride in its small town feel but that might. Oldsmar gets closer to a. Oldsmar Development.
     
    
        From pridgendevelopment.com 
                    Oldsmar Flea Market Pridgen Development Oldsmar Development  Oldsmar gets closer to a major downtown development project. This includes overseeing the comprehensive plan and land development regulations, reviewing and processing development. The department handles various responsibilities for the city of oldsmar. 17 to evaluate two competing proposals for the redevelopment of the downtown. Members of the public got a chance to see the proposals and offer their thoughts. Oldsmar Development.
     
    
        From mpseng.com 
                    Oldsmar Public Library MPS Engineering Oldsmar Development  Oldsmar — the oldsmar city council has taken a significant step toward revitalizing the city center by authorizing the city manager to. The department handles various responsibilities for the city of oldsmar. Oldsmar — the city council held a special meeting aug. Members of the public got a chance to see the proposals and offer their thoughts during an open. Oldsmar Development.
     
    
        From www.tbnweekly.com 
                    Downtown Oldsmar development moves in new direction Oldsmar Oldsmar Development  Oldsmar gets closer to a major downtown development project. The department handles various responsibilities for the city of oldsmar. 17 to evaluate two competing proposals for the redevelopment of the downtown. Oldsmar — the oldsmar city council has taken a significant step toward revitalizing the city center by authorizing the city manager to. Members of the public got a chance. Oldsmar Development.
     
    
        From www.tbnweekly.com 
                    County, Oldsmar leaders celebrate completion of new industrial Oldsmar Development  Oldsmar — the city council held a special meeting aug. This includes overseeing the comprehensive plan and land development regulations, reviewing and processing development. The department handles various responsibilities for the city of oldsmar. Oldsmar — the oldsmar city council has taken a significant step toward revitalizing the city center by authorizing the city manager to. The city of oldsmar. Oldsmar Development.
     
    
        From www.tbnweekly.com 
                    Oldsmar’s downtown development hits a snag Oldsmar Oldsmar Development  Oldsmar — the oldsmar city council has taken a significant step toward revitalizing the city center by authorizing the city manager to. Oldsmar gets closer to a major downtown development project. The city of oldsmar takes pride in its small town feel but that might. Oldsmar — the city council held a special meeting aug. 17 to evaluate two competing. Oldsmar Development.
     
    
        From www.suncoastnews.com 
                    New development for Oldsmar proposed News Oldsmar Development  Oldsmar gets closer to a major downtown development project. The department handles various responsibilities for the city of oldsmar. This includes overseeing the comprehensive plan and land development regulations, reviewing and processing development. Oldsmar — the city council held a special meeting aug. The city of oldsmar takes pride in its small town feel but that might. Members of the. Oldsmar Development.
     
    
        From www.ebay.com 
                    A View Of The Oldsmar Development Offices, Oldsmar, Tampa, Florida FL Oldsmar Development  Oldsmar — the oldsmar city council has taken a significant step toward revitalizing the city center by authorizing the city manager to. The department handles various responsibilities for the city of oldsmar. This includes overseeing the comprehensive plan and land development regulations, reviewing and processing development. Members of the public got a chance to see the proposals and offer their. Oldsmar Development.
     
    
        From www.abcactionnews.com 
                    Oldsmar will unveil development proposals for city hall site next week Oldsmar Development  Members of the public got a chance to see the proposals and offer their thoughts during an open house. Oldsmar — the oldsmar city council has taken a significant step toward revitalizing the city center by authorizing the city manager to. Oldsmar gets closer to a major downtown development project. The department handles various responsibilities for the city of oldsmar.. Oldsmar Development.