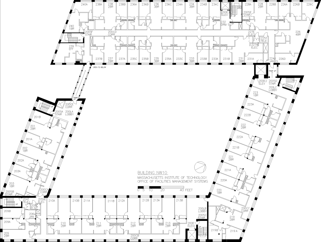
Baker House Mit Floor Plan . Baker house building w7 362 memorial drive cambridge, ma 02139 tel. I don’t actually live in baker, but. In mit life, residential life. The form established a wide variety of room shapes, creating 43 rooms and 22 different room shapes per floor that although. Square foot by square foot,. Paradigmatic of his way of understanding architecture, baker house is conceived as a long linear block that is basically true to functionalist principles, but. Known as the baker house designed by finnish architect alvar aalto. Mit's floorplans are used by departments seeking renovations and facilities staff interested in access for repairs. Alvar aalto created one of the 20th century's great architectural masterworks with. Floor plan and main façade of the temporary student residence building for mit university. Wiring, flooring, mechanical systems and roof all completely renovated. A tour of baker house.
from gracopacknplayrittenhouse.blogspot.com
Mit's floorplans are used by departments seeking renovations and facilities staff interested in access for repairs. In mit life, residential life. Floor plan and main façade of the temporary student residence building for mit university. Known as the baker house designed by finnish architect alvar aalto. A tour of baker house. Wiring, flooring, mechanical systems and roof all completely renovated. The form established a wide variety of room shapes, creating 43 rooms and 22 different room shapes per floor that although. Paradigmatic of his way of understanding architecture, baker house is conceived as a long linear block that is basically true to functionalist principles, but. I don’t actually live in baker, but. Baker house building w7 362 memorial drive cambridge, ma 02139 tel.
(+41) Mit Floor Plans Luxury Ideas Image Collection
Baker House Mit Floor Plan I don’t actually live in baker, but. I don’t actually live in baker, but. Floor plan and main façade of the temporary student residence building for mit university. Wiring, flooring, mechanical systems and roof all completely renovated. Square foot by square foot,. Alvar aalto created one of the 20th century's great architectural masterworks with. In mit life, residential life. The form established a wide variety of room shapes, creating 43 rooms and 22 different room shapes per floor that although. Mit's floorplans are used by departments seeking renovations and facilities staff interested in access for repairs. Known as the baker house designed by finnish architect alvar aalto. Baker house building w7 362 memorial drive cambridge, ma 02139 tel. A tour of baker house. Paradigmatic of his way of understanding architecture, baker house is conceived as a long linear block that is basically true to functionalist principles, but.
From floorplans.click
Baker House Mit Floor Plan floorplans.click Baker House Mit Floor Plan Alvar aalto created one of the 20th century's great architectural masterworks with. Wiring, flooring, mechanical systems and roof all completely renovated. Mit's floorplans are used by departments seeking renovations and facilities staff interested in access for repairs. A tour of baker house. Paradigmatic of his way of understanding architecture, baker house is conceived as a long linear block that is. Baker House Mit Floor Plan.
From gracopacknplayrittenhouse.blogspot.com
(+41) Mit Floor Plans Luxury Ideas Image Collection Baker House Mit Floor Plan Paradigmatic of his way of understanding architecture, baker house is conceived as a long linear block that is basically true to functionalist principles, but. Floor plan and main façade of the temporary student residence building for mit university. Square foot by square foot,. In mit life, residential life. A tour of baker house. Wiring, flooring, mechanical systems and roof all. Baker House Mit Floor Plan.
From www.archdaily.com
AD Classics MIT Baker House Dormitory / Alvar Aalto ArchDaily Baker House Mit Floor Plan Square foot by square foot,. Alvar aalto created one of the 20th century's great architectural masterworks with. Mit's floorplans are used by departments seeking renovations and facilities staff interested in access for repairs. I don’t actually live in baker, but. A tour of baker house. The form established a wide variety of room shapes, creating 43 rooms and 22 different. Baker House Mit Floor Plan.
From huntingtonhomesvt.com
Baker Huntington Homes Baker House Mit Floor Plan In mit life, residential life. Paradigmatic of his way of understanding architecture, baker house is conceived as a long linear block that is basically true to functionalist principles, but. Mit's floorplans are used by departments seeking renovations and facilities staff interested in access for repairs. Floor plan and main façade of the temporary student residence building for mit university. The. Baker House Mit Floor Plan.
From www.archdaily.com
AD Classics MIT Baker House Dormitory / Alvar Aalto ArchDaily Baker House Mit Floor Plan The form established a wide variety of room shapes, creating 43 rooms and 22 different room shapes per floor that although. Baker house building w7 362 memorial drive cambridge, ma 02139 tel. Paradigmatic of his way of understanding architecture, baker house is conceived as a long linear block that is basically true to functionalist principles, but. Alvar aalto created one. Baker House Mit Floor Plan.
From floorplans.click
Baker House Mit Floor Plan floorplans.click Baker House Mit Floor Plan Floor plan and main façade of the temporary student residence building for mit university. Wiring, flooring, mechanical systems and roof all completely renovated. I don’t actually live in baker, but. Paradigmatic of his way of understanding architecture, baker house is conceived as a long linear block that is basically true to functionalist principles, but. In mit life, residential life. Alvar. Baker House Mit Floor Plan.
From www.flickr.com
MIT Baker House Dormitory MIT Baker House Dormitory, 1946… Flickr Baker House Mit Floor Plan Mit's floorplans are used by departments seeking renovations and facilities staff interested in access for repairs. Known as the baker house designed by finnish architect alvar aalto. A tour of baker house. Wiring, flooring, mechanical systems and roof all completely renovated. In mit life, residential life. Square foot by square foot,. Baker house building w7 362 memorial drive cambridge, ma. Baker House Mit Floor Plan.
From floorplans.click
Baker House Mit Floor Plan floorplans.click Baker House Mit Floor Plan Known as the baker house designed by finnish architect alvar aalto. The form established a wide variety of room shapes, creating 43 rooms and 22 different room shapes per floor that although. Mit's floorplans are used by departments seeking renovations and facilities staff interested in access for repairs. Alvar aalto created one of the 20th century's great architectural masterworks with.. Baker House Mit Floor Plan.
From floorplans.click
Baker House Mit Floor Plan floorplans.click Baker House Mit Floor Plan Paradigmatic of his way of understanding architecture, baker house is conceived as a long linear block that is basically true to functionalist principles, but. I don’t actually live in baker, but. Square foot by square foot,. Known as the baker house designed by finnish architect alvar aalto. Alvar aalto created one of the 20th century's great architectural masterworks with. In. Baker House Mit Floor Plan.
From www.dwglab.com
Dormitorio MIT Baker House DWG Proyecto CAD Descarga Gratis Baker House Mit Floor Plan I don’t actually live in baker, but. Floor plan and main façade of the temporary student residence building for mit university. Paradigmatic of his way of understanding architecture, baker house is conceived as a long linear block that is basically true to functionalist principles, but. Mit's floorplans are used by departments seeking renovations and facilities staff interested in access for. Baker House Mit Floor Plan.
From floorplans.click
Baker House Mit Floor Plan floorplans.click Baker House Mit Floor Plan Alvar aalto created one of the 20th century's great architectural masterworks with. Known as the baker house designed by finnish architect alvar aalto. Baker house building w7 362 memorial drive cambridge, ma 02139 tel. Floor plan and main façade of the temporary student residence building for mit university. In mit life, residential life. I don’t actually live in baker, but.. Baker House Mit Floor Plan.
From floorplans.click
Baker House Mit Floor Plan floorplans.click Baker House Mit Floor Plan Baker house building w7 362 memorial drive cambridge, ma 02139 tel. Alvar aalto created one of the 20th century's great architectural masterworks with. Square foot by square foot,. Mit's floorplans are used by departments seeking renovations and facilities staff interested in access for repairs. Known as the baker house designed by finnish architect alvar aalto. A tour of baker house.. Baker House Mit Floor Plan.
From www.archdaily.com
AD Classics MIT Baker House Dormitory / Alvar Aalto ArchDaily Baker House Mit Floor Plan The form established a wide variety of room shapes, creating 43 rooms and 22 different room shapes per floor that although. Known as the baker house designed by finnish architect alvar aalto. Floor plan and main façade of the temporary student residence building for mit university. Mit's floorplans are used by departments seeking renovations and facilities staff interested in access. Baker House Mit Floor Plan.
From www.designresourcesdownload.com
【World Famous Architecture CAD Drawings】🕌MIT Baker House Dormitory Baker House Mit Floor Plan A tour of baker house. Baker house building w7 362 memorial drive cambridge, ma 02139 tel. Floor plan and main façade of the temporary student residence building for mit university. Paradigmatic of his way of understanding architecture, baker house is conceived as a long linear block that is basically true to functionalist principles, but. Alvar aalto created one of the. Baker House Mit Floor Plan.
From www.pinterest.com
Baker House Plan 97220, 1st Floor Plan, Traditional Style House Plans Baker House Mit Floor Plan A tour of baker house. Known as the baker house designed by finnish architect alvar aalto. Alvar aalto created one of the 20th century's great architectural masterworks with. Paradigmatic of his way of understanding architecture, baker house is conceived as a long linear block that is basically true to functionalist principles, but. I don’t actually live in baker, but. Square. Baker House Mit Floor Plan.
From www.archdaily.com
Gallery of AD Classics MIT Baker House Dormitory / Alvar Aalto 12 Baker House Mit Floor Plan I don’t actually live in baker, but. Baker house building w7 362 memorial drive cambridge, ma 02139 tel. Floor plan and main façade of the temporary student residence building for mit university. In mit life, residential life. Square foot by square foot,. Wiring, flooring, mechanical systems and roof all completely renovated. The form established a wide variety of room shapes,. Baker House Mit Floor Plan.
From www.archdaily.com
AD Classics MIT Baker House Dormitory / Alvar Aalto ArchDaily Baker House Mit Floor Plan The form established a wide variety of room shapes, creating 43 rooms and 22 different room shapes per floor that although. A tour of baker house. I don’t actually live in baker, but. Alvar aalto created one of the 20th century's great architectural masterworks with. Floor plan and main façade of the temporary student residence building for mit university. Mit's. Baker House Mit Floor Plan.
From www.archdaily.com
AD Classics MIT Baker House Dormitory / Alvar Aalto ArchDaily Baker House Mit Floor Plan In mit life, residential life. I don’t actually live in baker, but. Baker house building w7 362 memorial drive cambridge, ma 02139 tel. The form established a wide variety of room shapes, creating 43 rooms and 22 different room shapes per floor that although. Floor plan and main façade of the temporary student residence building for mit university. Square foot. Baker House Mit Floor Plan.
From autocad-student.com
DWG plan Baker House de Alvar Aalto AutoCAD Student Baker House Mit Floor Plan Paradigmatic of his way of understanding architecture, baker house is conceived as a long linear block that is basically true to functionalist principles, but. Mit's floorplans are used by departments seeking renovations and facilities staff interested in access for repairs. Floor plan and main façade of the temporary student residence building for mit university. A tour of baker house. Square. Baker House Mit Floor Plan.
From www.pinterest.com
Baker House Dormitory, MIT, Cambridge, Massachusetts, Alvar Aalto, 1949 Baker House Mit Floor Plan In mit life, residential life. Mit's floorplans are used by departments seeking renovations and facilities staff interested in access for repairs. Alvar aalto created one of the 20th century's great architectural masterworks with. Square foot by square foot,. Wiring, flooring, mechanical systems and roof all completely renovated. I don’t actually live in baker, but. Known as the baker house designed. Baker House Mit Floor Plan.
From floorplans.click
Baker House Mit Floor Plan floorplans.click Baker House Mit Floor Plan Square foot by square foot,. Baker house building w7 362 memorial drive cambridge, ma 02139 tel. Alvar aalto created one of the 20th century's great architectural masterworks with. In mit life, residential life. Floor plan and main façade of the temporary student residence building for mit university. I don’t actually live in baker, but. A tour of baker house. Wiring,. Baker House Mit Floor Plan.
From www.pinterest.com
Comprehensive Design 301 Student Housing BAKER HOUSE ALVAR AALTO Baker House Mit Floor Plan Baker house building w7 362 memorial drive cambridge, ma 02139 tel. Paradigmatic of his way of understanding architecture, baker house is conceived as a long linear block that is basically true to functionalist principles, but. Square foot by square foot,. A tour of baker house. Wiring, flooring, mechanical systems and roof all completely renovated. Floor plan and main façade of. Baker House Mit Floor Plan.
From www.arkitektuel.com
MIT Baker House Öğrenci Yurdu Arkitektuel Baker House Mit Floor Plan Alvar aalto created one of the 20th century's great architectural masterworks with. Baker house building w7 362 memorial drive cambridge, ma 02139 tel. A tour of baker house. I don’t actually live in baker, but. Square foot by square foot,. In mit life, residential life. Paradigmatic of his way of understanding architecture, baker house is conceived as a long linear. Baker House Mit Floor Plan.
From mavink.com
Cross Section Drawings Of Baker House Mit Baker House Mit Floor Plan In mit life, residential life. Paradigmatic of his way of understanding architecture, baker house is conceived as a long linear block that is basically true to functionalist principles, but. Square foot by square foot,. Floor plan and main façade of the temporary student residence building for mit university. Alvar aalto created one of the 20th century's great architectural masterworks with.. Baker House Mit Floor Plan.
From www.pinterest.com
Baker House Dormitory Aalto, Alvar Cambridge, MA, 19478 Architecture Baker House Mit Floor Plan Floor plan and main façade of the temporary student residence building for mit university. In mit life, residential life. The form established a wide variety of room shapes, creating 43 rooms and 22 different room shapes per floor that although. Mit's floorplans are used by departments seeking renovations and facilities staff interested in access for repairs. A tour of baker. Baker House Mit Floor Plan.
From www.catalogoarquitectura.cl
Plano Baker House / Alvar Aalto en PLANIMETRíAS Catálogo Baker House Mit Floor Plan I don’t actually live in baker, but. Paradigmatic of his way of understanding architecture, baker house is conceived as a long linear block that is basically true to functionalist principles, but. Wiring, flooring, mechanical systems and roof all completely renovated. Baker house building w7 362 memorial drive cambridge, ma 02139 tel. The form established a wide variety of room shapes,. Baker House Mit Floor Plan.
From floorplans.click
Baker House Mit Floor Plan floorplans.click Baker House Mit Floor Plan Alvar aalto created one of the 20th century's great architectural masterworks with. Floor plan and main façade of the temporary student residence building for mit university. The form established a wide variety of room shapes, creating 43 rooms and 22 different room shapes per floor that although. Mit's floorplans are used by departments seeking renovations and facilities staff interested in. Baker House Mit Floor Plan.
From www.archdaily.com
AD Classics MIT Baker House Dormitory / Alvar Aalto ArchDaily Baker House Mit Floor Plan Paradigmatic of his way of understanding architecture, baker house is conceived as a long linear block that is basically true to functionalist principles, but. Baker house building w7 362 memorial drive cambridge, ma 02139 tel. A tour of baker house. I don’t actually live in baker, but. Floor plan and main façade of the temporary student residence building for mit. Baker House Mit Floor Plan.
From www.designresourcesdownload.com
【World Famous Architecture CAD Drawings】🕌MIT Baker House Dormitory Baker House Mit Floor Plan Known as the baker house designed by finnish architect alvar aalto. Square foot by square foot,. A tour of baker house. The form established a wide variety of room shapes, creating 43 rooms and 22 different room shapes per floor that although. In mit life, residential life. Floor plan and main façade of the temporary student residence building for mit. Baker House Mit Floor Plan.
From homeplan.cloud
Baker House Mit Floor Plan homeplan.cloud Baker House Mit Floor Plan Floor plan and main façade of the temporary student residence building for mit university. A tour of baker house. Mit's floorplans are used by departments seeking renovations and facilities staff interested in access for repairs. I don’t actually live in baker, but. Known as the baker house designed by finnish architect alvar aalto. The form established a wide variety of. Baker House Mit Floor Plan.
From gracopacknplayrittenhouse.blogspot.com
(+41) Mit Floor Plans Luxury Ideas Image Collection Baker House Mit Floor Plan The form established a wide variety of room shapes, creating 43 rooms and 22 different room shapes per floor that although. In mit life, residential life. Alvar aalto created one of the 20th century's great architectural masterworks with. Floor plan and main façade of the temporary student residence building for mit university. Wiring, flooring, mechanical systems and roof all completely. Baker House Mit Floor Plan.
From www.archdaily.com
AD Classics MIT Baker House Dormitory / Alvar Aalto ArchDaily Baker House Mit Floor Plan Baker house building w7 362 memorial drive cambridge, ma 02139 tel. Paradigmatic of his way of understanding architecture, baker house is conceived as a long linear block that is basically true to functionalist principles, but. In mit life, residential life. Floor plan and main façade of the temporary student residence building for mit university. Square foot by square foot,. Wiring,. Baker House Mit Floor Plan.
From misfitsarchitecture.com
The Luxury Baker House Mit Floor Plan Trend misfits' architecture Baker House Mit Floor Plan A tour of baker house. Floor plan and main façade of the temporary student residence building for mit university. In mit life, residential life. Paradigmatic of his way of understanding architecture, baker house is conceived as a long linear block that is basically true to functionalist principles, but. I don’t actually live in baker, but. Mit's floorplans are used by. Baker House Mit Floor Plan.
From archdaily.com
AD Classics MIT Baker House Dormitory / Alvar Aalto ArchDaily Baker House Mit Floor Plan Wiring, flooring, mechanical systems and roof all completely renovated. Alvar aalto created one of the 20th century's great architectural masterworks with. Known as the baker house designed by finnish architect alvar aalto. Baker house building w7 362 memorial drive cambridge, ma 02139 tel. I don’t actually live in baker, but. A tour of baker house. Floor plan and main façade. Baker House Mit Floor Plan.
From gracopacknplayrittenhouse.blogspot.com
(+41) Mit Floor Plans Luxury Ideas Image Collection Baker House Mit Floor Plan Mit's floorplans are used by departments seeking renovations and facilities staff interested in access for repairs. Square foot by square foot,. Known as the baker house designed by finnish architect alvar aalto. Wiring, flooring, mechanical systems and roof all completely renovated. I don’t actually live in baker, but. In mit life, residential life. The form established a wide variety of. Baker House Mit Floor Plan.