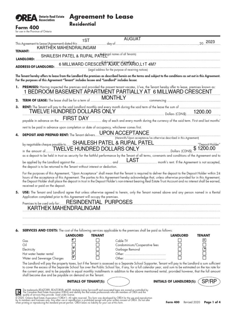
Orea Form 400 Explained . The orea standard forms team is continually reviewing and updating all member resources to ensure you have the tools you need. The agreement to lease is the document that. Also known as agreement to lease residential, it’s a contract reflecting the tenant’s plan to rent a living. Orea form 400 is an offer to lease. If you’re working with an agent, this is typically sent in with the rental application and your supporting. For use in the province of ontario. Standard orea forms and clauses, including knowledge resources, for use in ontario real estate residential and commercial transactions. What is orea form 400? Once signed by both parties you have an agreement to sign a lease. Orea form 400 is your offer to lease and precedes the full lease agreement.
from www.pdffiller.com
What is orea form 400? Standard orea forms and clauses, including knowledge resources, for use in ontario real estate residential and commercial transactions. Once signed by both parties you have an agreement to sign a lease. The orea standard forms team is continually reviewing and updating all member resources to ensure you have the tools you need. If you’re working with an agent, this is typically sent in with the rental application and your supporting. For use in the province of ontario. Orea form 400 is an offer to lease. Orea form 400 is your offer to lease and precedes the full lease agreement. The agreement to lease is the document that. Also known as agreement to lease residential, it’s a contract reflecting the tenant’s plan to rent a living.
Fillable Online Orea agreement to lease form 400. Orea agreement to
Orea Form 400 Explained The agreement to lease is the document that. Once signed by both parties you have an agreement to sign a lease. What is orea form 400? For use in the province of ontario. Standard orea forms and clauses, including knowledge resources, for use in ontario real estate residential and commercial transactions. Orea form 400 is your offer to lease and precedes the full lease agreement. If you’re working with an agent, this is typically sent in with the rental application and your supporting. The agreement to lease is the document that. Orea form 400 is an offer to lease. Also known as agreement to lease residential, it’s a contract reflecting the tenant’s plan to rent a living. The orea standard forms team is continually reviewing and updating all member resources to ensure you have the tools you need.
From form-401-schedule.com
Orea Form 401 Schedule A Fillable Fill Online, Printable, Fillable Blank Orea Form 400 Explained For use in the province of ontario. If you’re working with an agent, this is typically sent in with the rental application and your supporting. Also known as agreement to lease residential, it’s a contract reflecting the tenant’s plan to rent a living. Standard orea forms and clauses, including knowledge resources, for use in ontario real estate residential and commercial. Orea Form 400 Explained.
From www.youtube.com
OREA Form 300 explained Buyer Representation Agreement Best Realtor Orea Form 400 Explained Also known as agreement to lease residential, it’s a contract reflecting the tenant’s plan to rent a living. Orea form 400 is your offer to lease and precedes the full lease agreement. For use in the province of ontario. Standard orea forms and clauses, including knowledge resources, for use in ontario real estate residential and commercial transactions. Once signed by. Orea Form 400 Explained.
From pdfliner.com
OREA Form 400 Fillable Agreement to Lease Residential Form PDFLiner Orea Form 400 Explained Also known as agreement to lease residential, it’s a contract reflecting the tenant’s plan to rent a living. What is orea form 400? The agreement to lease is the document that. Orea form 400 is an offer to lease. Standard orea forms and clauses, including knowledge resources, for use in ontario real estate residential and commercial transactions. The orea standard. Orea Form 400 Explained.
From pdfliner.com
OREA Form 400 Ontario Lease Agreement PDF Form PDFLiner Orea Form 400 Explained Orea form 400 is an offer to lease. For use in the province of ontario. Standard orea forms and clauses, including knowledge resources, for use in ontario real estate residential and commercial transactions. Once signed by both parties you have an agreement to sign a lease. What is orea form 400? Orea form 400 is your offer to lease and. Orea Form 400 Explained.
From www.signnow.com
Orea 400 Schedule a Fillable 20162024 Form Fill Out and Sign Orea Form 400 Explained The orea standard forms team is continually reviewing and updating all member resources to ensure you have the tools you need. Also known as agreement to lease residential, it’s a contract reflecting the tenant’s plan to rent a living. Orea form 400 is an offer to lease. What is orea form 400? The agreement to lease is the document that.. Orea Form 400 Explained.
From www.scribd.com
Orea Form 400 Download Free PDF Leasehold Estate Lease Orea Form 400 Explained The agreement to lease is the document that. For use in the province of ontario. The orea standard forms team is continually reviewing and updating all member resources to ensure you have the tools you need. Orea form 400 is your offer to lease and precedes the full lease agreement. Also known as agreement to lease residential, it’s a contract. Orea Form 400 Explained.
From www.pdffiller.com
Orea Form 400 Schedule A Fillable Fill Online, Printable, Fillable Orea Form 400 Explained Also known as agreement to lease residential, it’s a contract reflecting the tenant’s plan to rent a living. If you’re working with an agent, this is typically sent in with the rental application and your supporting. Orea form 400 is your offer to lease and precedes the full lease agreement. The orea standard forms team is continually reviewing and updating. Orea Form 400 Explained.
From pdfliner.com
OREA Form 400 Ontario Lease Agreement PDF Form PDFLiner Orea Form 400 Explained Orea form 400 is an offer to lease. If you’re working with an agent, this is typically sent in with the rental application and your supporting. Also known as agreement to lease residential, it’s a contract reflecting the tenant’s plan to rent a living. For use in the province of ontario. The orea standard forms team is continually reviewing and. Orea Form 400 Explained.
From www.youtube.com
Listing Agreement Ontario OREA Form 200 Explained & Simplified 🇨🇦 Orea Form 400 Explained The agreement to lease is the document that. If you’re working with an agent, this is typically sent in with the rental application and your supporting. For use in the province of ontario. Orea form 400 is your offer to lease and precedes the full lease agreement. Orea form 400 is an offer to lease. What is orea form 400?. Orea Form 400 Explained.
From www.youtube.com
OREA Insurance Clause Explained for a Purchase and Sale Agreement YouTube Orea Form 400 Explained If you’re working with an agent, this is typically sent in with the rental application and your supporting. Orea form 400 is an offer to lease. Also known as agreement to lease residential, it’s a contract reflecting the tenant’s plan to rent a living. The orea standard forms team is continually reviewing and updating all member resources to ensure you. Orea Form 400 Explained.
From printableformsfree.com
Orea Form 400 Fillable Printable Forms Free Online Orea Form 400 Explained Also known as agreement to lease residential, it’s a contract reflecting the tenant’s plan to rent a living. What is orea form 400? Orea form 400 is your offer to lease and precedes the full lease agreement. Standard orea forms and clauses, including knowledge resources, for use in ontario real estate residential and commercial transactions. The agreement to lease is. Orea Form 400 Explained.
From issuu.com
OREA Forms by Ashley Shaw Issuu Orea Form 400 Explained The orea standard forms team is continually reviewing and updating all member resources to ensure you have the tools you need. Standard orea forms and clauses, including knowledge resources, for use in ontario real estate residential and commercial transactions. If you’re working with an agent, this is typically sent in with the rental application and your supporting. Once signed by. Orea Form 400 Explained.
From www.scribd.com
Orea Form 400 Agreement To Lease Residential PDF PDF Orea Form 400 Explained If you’re working with an agent, this is typically sent in with the rental application and your supporting. What is orea form 400? Also known as agreement to lease residential, it’s a contract reflecting the tenant’s plan to rent a living. Orea form 400 is an offer to lease. The orea standard forms team is continually reviewing and updating all. Orea Form 400 Explained.
From www.dochub.com
Orea form 300 Fill out & sign online DocHub Orea Form 400 Explained Orea form 400 is an offer to lease. The agreement to lease is the document that. The orea standard forms team is continually reviewing and updating all member resources to ensure you have the tools you need. Once signed by both parties you have an agreement to sign a lease. Also known as agreement to lease residential, it’s a contract. Orea Form 400 Explained.
From printableformsfree.com
Fillable Orea Forms Printable Forms Free Online Orea Form 400 Explained For use in the province of ontario. Orea form 400 is an offer to lease. Orea form 400 is your offer to lease and precedes the full lease agreement. Once signed by both parties you have an agreement to sign a lease. If you’re working with an agent, this is typically sent in with the rental application and your supporting.. Orea Form 400 Explained.
From www.scribd.com
OREA Form 400 PDF Orea Form 400 Explained What is orea form 400? The agreement to lease is the document that. Once signed by both parties you have an agreement to sign a lease. For use in the province of ontario. Standard orea forms and clauses, including knowledge resources, for use in ontario real estate residential and commercial transactions. If you’re working with an agent, this is typically. Orea Form 400 Explained.
From printableformsfree.com
Orea Form 400 Fillable Printable Forms Free Online Orea Form 400 Explained The orea standard forms team is continually reviewing and updating all member resources to ensure you have the tools you need. Also known as agreement to lease residential, it’s a contract reflecting the tenant’s plan to rent a living. For use in the province of ontario. The agreement to lease is the document that. Standard orea forms and clauses, including. Orea Form 400 Explained.
From www.pdffiller.com
Fillable Online Orea Rental Application Form Fill Out and Sign Orea Form 400 Explained The agreement to lease is the document that. Standard orea forms and clauses, including knowledge resources, for use in ontario real estate residential and commercial transactions. For use in the province of ontario. Also known as agreement to lease residential, it’s a contract reflecting the tenant’s plan to rent a living. Once signed by both parties you have an agreement. Orea Form 400 Explained.
From www.pdffiller.com
Fillable Online Orea agreement to lease form 400. Orea agreement to Orea Form 400 Explained Once signed by both parties you have an agreement to sign a lease. Orea form 400 is your offer to lease and precedes the full lease agreement. If you’re working with an agent, this is typically sent in with the rental application and your supporting. For use in the province of ontario. Standard orea forms and clauses, including knowledge resources,. Orea Form 400 Explained.
From www.templateroller.com
Download Instructions for Form 400V Electronic Filer Payment Voucher Orea Form 400 Explained Standard orea forms and clauses, including knowledge resources, for use in ontario real estate residential and commercial transactions. The agreement to lease is the document that. What is orea form 400? If you’re working with an agent, this is typically sent in with the rental application and your supporting. For use in the province of ontario. Orea form 400 is. Orea Form 400 Explained.
From www.templateroller.com
Download Instructions for Form 400ES Fiduciary Estimated Tax Orea Form 400 Explained Also known as agreement to lease residential, it’s a contract reflecting the tenant’s plan to rent a living. Standard orea forms and clauses, including knowledge resources, for use in ontario real estate residential and commercial transactions. The agreement to lease is the document that. The orea standard forms team is continually reviewing and updating all member resources to ensure you. Orea Form 400 Explained.
From printableformsfree.com
Orea Form 400 Fillable Printable Forms Free Online Orea Form 400 Explained Standard orea forms and clauses, including knowledge resources, for use in ontario real estate residential and commercial transactions. For use in the province of ontario. The orea standard forms team is continually reviewing and updating all member resources to ensure you have the tools you need. The agreement to lease is the document that. If you’re working with an agent,. Orea Form 400 Explained.
From www.signnow.com
Orea Form 400 Fillable 2023 with instructions airSlate SignNow Orea Form 400 Explained Standard orea forms and clauses, including knowledge resources, for use in ontario real estate residential and commercial transactions. Orea form 400 is an offer to lease. The orea standard forms team is continually reviewing and updating all member resources to ensure you have the tools you need. Once signed by both parties you have an agreement to sign a lease.. Orea Form 400 Explained.
From www.signnow.com
OREA Form 410 Next Rental Fill Out and Sign Printable PDF Template Orea Form 400 Explained Orea form 400 is your offer to lease and precedes the full lease agreement. Orea form 400 is an offer to lease. What is orea form 400? For use in the province of ontario. Once signed by both parties you have an agreement to sign a lease. Standard orea forms and clauses, including knowledge resources, for use in ontario real. Orea Form 400 Explained.
From www.signnow.com
Orea Form List Complete with ease airSlate SignNow Orea Form 400 Explained The orea standard forms team is continually reviewing and updating all member resources to ensure you have the tools you need. The agreement to lease is the document that. For use in the province of ontario. Also known as agreement to lease residential, it’s a contract reflecting the tenant’s plan to rent a living. Once signed by both parties you. Orea Form 400 Explained.
From pdfliner.com
Ontario Rental Application Fillable OREA Form 410 PDFLiner Orea Form 400 Explained The orea standard forms team is continually reviewing and updating all member resources to ensure you have the tools you need. Once signed by both parties you have an agreement to sign a lease. For use in the province of ontario. The agreement to lease is the document that. Standard orea forms and clauses, including knowledge resources, for use in. Orea Form 400 Explained.
From www.dochub.com
Orea form 500 Fill out & sign online DocHub Orea Form 400 Explained If you’re working with an agent, this is typically sent in with the rental application and your supporting. Orea form 400 is an offer to lease. Standard orea forms and clauses, including knowledge resources, for use in ontario real estate residential and commercial transactions. Once signed by both parties you have an agreement to sign a lease. What is orea. Orea Form 400 Explained.
From blog.pdfliner.com
How to Fill Out OREA Form 400 Online Orea Form 400 Explained Standard orea forms and clauses, including knowledge resources, for use in ontario real estate residential and commercial transactions. Also known as agreement to lease residential, it’s a contract reflecting the tenant’s plan to rent a living. The agreement to lease is the document that. The orea standard forms team is continually reviewing and updating all member resources to ensure you. Orea Form 400 Explained.
From findlayrealestate.ca
Ontario Real Estate Forms and Paperwork Explained [For Sellers and Orea Form 400 Explained Orea form 400 is your offer to lease and precedes the full lease agreement. The agreement to lease is the document that. The orea standard forms team is continually reviewing and updating all member resources to ensure you have the tools you need. Also known as agreement to lease residential, it’s a contract reflecting the tenant’s plan to rent a. Orea Form 400 Explained.
From www.signnow.com
Orea Form 300 Complete with ease airSlate SignNow Orea Form 400 Explained The agreement to lease is the document that. Orea form 400 is an offer to lease. Once signed by both parties you have an agreement to sign a lease. For use in the province of ontario. If you’re working with an agent, this is typically sent in with the rental application and your supporting. What is orea form 400? Standard. Orea Form 400 Explained.
From thekickassentrepreneur.com
OREA Lease Agreement Form 400 What Is OREA Form 400 & How to Fill Out Orea Form 400 Explained If you’re working with an agent, this is typically sent in with the rental application and your supporting. For use in the province of ontario. The orea standard forms team is continually reviewing and updating all member resources to ensure you have the tools you need. Standard orea forms and clauses, including knowledge resources, for use in ontario real estate. Orea Form 400 Explained.
From newlisting4u.com
Legislated Standard vs. OREA Form 400 Your OneStop Real Estate Solution Orea Form 400 Explained The agreement to lease is the document that. Orea form 400 is an offer to lease. What is orea form 400? For use in the province of ontario. If you’re working with an agent, this is typically sent in with the rental application and your supporting. Orea form 400 is your offer to lease and precedes the full lease agreement.. Orea Form 400 Explained.
From www.pdffiller.com
Fillable Online Orea Form 400 Schedule a Fillable q2f Fax Email Print Orea Form 400 Explained The agreement to lease is the document that. Orea form 400 is an offer to lease. If you’re working with an agent, this is typically sent in with the rental application and your supporting. Orea form 400 is your offer to lease and precedes the full lease agreement. What is orea form 400? The orea standard forms team is continually. Orea Form 400 Explained.
From www.youtube.com
OREA Form 300 explained Buyer Representation Agreement Best Realtor Orea Form 400 Explained Standard orea forms and clauses, including knowledge resources, for use in ontario real estate residential and commercial transactions. The orea standard forms team is continually reviewing and updating all member resources to ensure you have the tools you need. Orea form 400 is an offer to lease. If you’re working with an agent, this is typically sent in with the. Orea Form 400 Explained.
From www.signnow.com
Orea Schedule a Fillable 20132024 Form Fill Out and Sign Printable Orea Form 400 Explained Standard orea forms and clauses, including knowledge resources, for use in ontario real estate residential and commercial transactions. Once signed by both parties you have an agreement to sign a lease. If you’re working with an agent, this is typically sent in with the rental application and your supporting. What is orea form 400? Also known as agreement to lease. Orea Form 400 Explained.