Pivot Hinge Instructions . While a pivot hinge system is mortised inside the bottom of the door, the top pivot is mortised inside the top of the door, securing it and anchoring it to the ceiling. From determining weight capacity requirements to. Whether you are an architect, contractor, or homeowner, a clear understanding of pivot hinges can be highly beneficial. In this post, we will delve into the world of. Insert the pin of the ① pivot hinge located at the lower part of the door into the bore of the ② pivot hinge acceptor at the lower part of the door. These pivot hinges can also be hidden, recessed, or installed to the top and bottom of your door. Pivot doors rotate around a central pivot point at the top and bottom of the door. Pivot hinges by angutec are easy to install and available with all the technical info, instructions and installation tips you need. Learn how to install pivot door hinges in our straightforward guide.
from www.doorware.com
Whether you are an architect, contractor, or homeowner, a clear understanding of pivot hinges can be highly beneficial. Pivot hinges by angutec are easy to install and available with all the technical info, instructions and installation tips you need. Insert the pin of the ① pivot hinge located at the lower part of the door into the bore of the ② pivot hinge acceptor at the lower part of the door. Pivot doors rotate around a central pivot point at the top and bottom of the door. In this post, we will delve into the world of. These pivot hinges can also be hidden, recessed, or installed to the top and bottom of your door. While a pivot hinge system is mortised inside the bottom of the door, the top pivot is mortised inside the top of the door, securing it and anchoring it to the ceiling. Learn how to install pivot door hinges in our straightforward guide. From determining weight capacity requirements to.
Heavy Duty Fixed Pivot Hinge for Doors Up to 200 LBS
Pivot Hinge Instructions Pivot hinges by angutec are easy to install and available with all the technical info, instructions and installation tips you need. Whether you are an architect, contractor, or homeowner, a clear understanding of pivot hinges can be highly beneficial. Insert the pin of the ① pivot hinge located at the lower part of the door into the bore of the ② pivot hinge acceptor at the lower part of the door. Pivot doors rotate around a central pivot point at the top and bottom of the door. From determining weight capacity requirements to. While a pivot hinge system is mortised inside the bottom of the door, the top pivot is mortised inside the top of the door, securing it and anchoring it to the ceiling. These pivot hinges can also be hidden, recessed, or installed to the top and bottom of your door. In this post, we will delve into the world of. Pivot hinges by angutec are easy to install and available with all the technical info, instructions and installation tips you need. Learn how to install pivot door hinges in our straightforward guide.
From www.swingingcafedoors.com
Heavy Duty Stainless Steel Pivot Hinge Murphy Door Pivot Hinge Instructions From determining weight capacity requirements to. Insert the pin of the ① pivot hinge located at the lower part of the door into the bore of the ② pivot hinge acceptor at the lower part of the door. Whether you are an architect, contractor, or homeowner, a clear understanding of pivot hinges can be highly beneficial. In this post, we. Pivot Hinge Instructions.
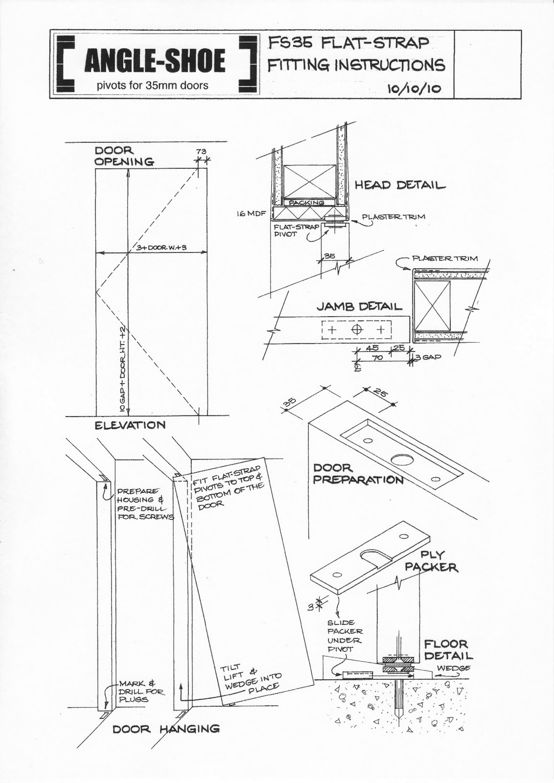
From angleshoe.blogspot.com
Simple Pivot Hinges FlatStrap FS.35 Fitting Instructions Pivot Hinge Instructions While a pivot hinge system is mortised inside the bottom of the door, the top pivot is mortised inside the top of the door, securing it and anchoring it to the ceiling. These pivot hinges can also be hidden, recessed, or installed to the top and bottom of your door. Pivot hinges by angutec are easy to install and available. Pivot Hinge Instructions.
From tambeehinge.com
PIvotHinges TamBee Pivot Hinge Instructions Learn how to install pivot door hinges in our straightforward guide. Pivot hinges by angutec are easy to install and available with all the technical info, instructions and installation tips you need. These pivot hinges can also be hidden, recessed, or installed to the top and bottom of your door. Pivot doors rotate around a central pivot point at the. Pivot Hinge Instructions.
From www.showerrods.com
Intermediate Pivot Hinges Pivot Hinge Instructions Insert the pin of the ① pivot hinge located at the lower part of the door into the bore of the ② pivot hinge acceptor at the lower part of the door. From determining weight capacity requirements to. While a pivot hinge system is mortised inside the bottom of the door, the top pivot is mortised inside the top of. Pivot Hinge Instructions.
From us.ddtech.com
Stainless Steel Regular, Plain Pivot Hinge D&D Technologies US Pivot Hinge Instructions In this post, we will delve into the world of. Whether you are an architect, contractor, or homeowner, a clear understanding of pivot hinges can be highly beneficial. Insert the pin of the ① pivot hinge located at the lower part of the door into the bore of the ② pivot hinge acceptor at the lower part of the door.. Pivot Hinge Instructions.
From www.pinterest.se
Installation instructions for pivot door slide hardware. This is from http Pivot Hinge Instructions Whether you are an architect, contractor, or homeowner, a clear understanding of pivot hinges can be highly beneficial. Pivot hinges by angutec are easy to install and available with all the technical info, instructions and installation tips you need. From determining weight capacity requirements to. Insert the pin of the ① pivot hinge located at the lower part of the. Pivot Hinge Instructions.
From www.swingingcafedoors.com
Heavy Duty Stainless Steel Pivot Hinge Murphy Door Pivot Hinge Instructions Whether you are an architect, contractor, or homeowner, a clear understanding of pivot hinges can be highly beneficial. Pivot hinges by angutec are easy to install and available with all the technical info, instructions and installation tips you need. Insert the pin of the ① pivot hinge located at the lower part of the door into the bore of the. Pivot Hinge Instructions.
From www.hardwaresource.com
Heavy Duty Pivot Hinge Pivot Hinge Set HardwareSource HardwareSource Pivot Hinge Instructions Learn how to install pivot door hinges in our straightforward guide. These pivot hinges can also be hidden, recessed, or installed to the top and bottom of your door. In this post, we will delve into the world of. Pivot doors rotate around a central pivot point at the top and bottom of the door. Pivot hinges by angutec are. Pivot Hinge Instructions.
From www.doorware.com
Heavy Duty Fixed Pivot Hinge for Doors Up to 200 LBS Pivot Hinge Instructions Learn how to install pivot door hinges in our straightforward guide. These pivot hinges can also be hidden, recessed, or installed to the top and bottom of your door. Whether you are an architect, contractor, or homeowner, a clear understanding of pivot hinges can be highly beneficial. In this post, we will delve into the world of. From determining weight. Pivot Hinge Instructions.
From metalmoulding.com
Full Range Dual Arm Pivot Hinge Pivot Hinge Instructions In this post, we will delve into the world of. From determining weight capacity requirements to. Whether you are an architect, contractor, or homeowner, a clear understanding of pivot hinges can be highly beneficial. Pivot hinges by angutec are easy to install and available with all the technical info, instructions and installation tips you need. While a pivot hinge system. Pivot Hinge Instructions.
From cabinet.matttroy.net
Offset Pivot Hinge Matttroy Pivot Hinge Instructions Learn how to install pivot door hinges in our straightforward guide. In this post, we will delve into the world of. While a pivot hinge system is mortised inside the bottom of the door, the top pivot is mortised inside the top of the door, securing it and anchoring it to the ceiling. Whether you are an architect, contractor, or. Pivot Hinge Instructions.
From www.youtube.com
How to Install a Commercial Door Pivot [1080p] YouTube Pivot Hinge Instructions These pivot hinges can also be hidden, recessed, or installed to the top and bottom of your door. Whether you are an architect, contractor, or homeowner, a clear understanding of pivot hinges can be highly beneficial. Learn how to install pivot door hinges in our straightforward guide. While a pivot hinge system is mortised inside the bottom of the door,. Pivot Hinge Instructions.
From www.allaboutdoors.com
Lawrence 4x4 Adjustable Hinge Guide Set horizontal Vertical movement Pivot Hinge Instructions Insert the pin of the ① pivot hinge located at the lower part of the door into the bore of the ② pivot hinge acceptor at the lower part of the door. From determining weight capacity requirements to. Learn how to install pivot door hinges in our straightforward guide. Whether you are an architect, contractor, or homeowner, a clear understanding. Pivot Hinge Instructions.
From www.youtube.com
Stealth Pivot hinge features YouTube Pivot Hinge Instructions Whether you are an architect, contractor, or homeowner, a clear understanding of pivot hinges can be highly beneficial. In this post, we will delve into the world of. Insert the pin of the ① pivot hinge located at the lower part of the door into the bore of the ② pivot hinge acceptor at the lower part of the door.. Pivot Hinge Instructions.
From www.infoplease.com
Anatomy and Physiology Hinges, Pivots, and Saddles … Oh My! Pivot Hinge Instructions Whether you are an architect, contractor, or homeowner, a clear understanding of pivot hinges can be highly beneficial. These pivot hinges can also be hidden, recessed, or installed to the top and bottom of your door. Pivot doors rotate around a central pivot point at the top and bottom of the door. From determining weight capacity requirements to. While a. Pivot Hinge Instructions.
From gistgear.com
Best Pivot Hinges Buying Guide GistGear Pivot Hinge Instructions While a pivot hinge system is mortised inside the bottom of the door, the top pivot is mortised inside the top of the door, securing it and anchoring it to the ceiling. Insert the pin of the ① pivot hinge located at the lower part of the door into the bore of the ② pivot hinge acceptor at the lower. Pivot Hinge Instructions.
From doorcontrolsdirect.co.uk
Door Pivot Hinges Pivot Hinges Pivot Hinge Instructions While a pivot hinge system is mortised inside the bottom of the door, the top pivot is mortised inside the top of the door, securing it and anchoring it to the ceiling. In this post, we will delve into the world of. These pivot hinges can also be hidden, recessed, or installed to the top and bottom of your door.. Pivot Hinge Instructions.
From www.youtube.com
Stealth Pivot installation & integration instructions YouTube Pivot Hinge Instructions These pivot hinges can also be hidden, recessed, or installed to the top and bottom of your door. Insert the pin of the ① pivot hinge located at the lower part of the door into the bore of the ② pivot hinge acceptor at the lower part of the door. Learn how to install pivot door hinges in our straightforward. Pivot Hinge Instructions.
From www.desertcart.com.eg
Buy Self Closing Pivot Door Hinges, Hidden Door Pivot Hinges, 360 Degree Shaft Swing Door Pivot Pivot Hinge Instructions Whether you are an architect, contractor, or homeowner, a clear understanding of pivot hinges can be highly beneficial. Pivot doors rotate around a central pivot point at the top and bottom of the door. In this post, we will delve into the world of. These pivot hinges can also be hidden, recessed, or installed to the top and bottom of. Pivot Hinge Instructions.
From www.autodoorandhardware.com
How to Install Offset Pivot Hinges on Your Commercial Glass Storefront Door Automatic Door and Pivot Hinge Instructions Pivot doors rotate around a central pivot point at the top and bottom of the door. These pivot hinges can also be hidden, recessed, or installed to the top and bottom of your door. While a pivot hinge system is mortised inside the bottom of the door, the top pivot is mortised inside the top of the door, securing it. Pivot Hinge Instructions.
From www.rockler.com
Pivot Hinges Rockler Woodworking and Hardware Pivot Hinge Instructions Learn how to install pivot door hinges in our straightforward guide. These pivot hinges can also be hidden, recessed, or installed to the top and bottom of your door. Pivot doors rotate around a central pivot point at the top and bottom of the door. While a pivot hinge system is mortised inside the bottom of the door, the top. Pivot Hinge Instructions.
From www.archdaily.com
Gallery of How to Install the Hardware of a Pivot Door? A Detailed Guide 7 Pivot Hinge Instructions Pivot doors rotate around a central pivot point at the top and bottom of the door. These pivot hinges can also be hidden, recessed, or installed to the top and bottom of your door. Learn how to install pivot door hinges in our straightforward guide. While a pivot hinge system is mortised inside the bottom of the door, the top. Pivot Hinge Instructions.
From www.showerrods.com
43/8" Pivot Door Hinge Pivot Hinge Instructions In this post, we will delve into the world of. Insert the pin of the ① pivot hinge located at the lower part of the door into the bore of the ② pivot hinge acceptor at the lower part of the door. Pivot doors rotate around a central pivot point at the top and bottom of the door. Whether you. Pivot Hinge Instructions.
From www.hardwaresource.com
Heavy Duty Pivot Hinge Pivot Hinge Set HardwareSource HardwareSource Pivot Hinge Instructions While a pivot hinge system is mortised inside the bottom of the door, the top pivot is mortised inside the top of the door, securing it and anchoring it to the ceiling. Learn how to install pivot door hinges in our straightforward guide. From determining weight capacity requirements to. Pivot hinges by angutec are easy to install and available with. Pivot Hinge Instructions.
From www.brusso.com
Pivot Hinge Documentation Pivot Hinge Instructions Insert the pin of the ① pivot hinge located at the lower part of the door into the bore of the ② pivot hinge acceptor at the lower part of the door. In this post, we will delve into the world of. Pivot doors rotate around a central pivot point at the top and bottom of the door. While a. Pivot Hinge Instructions.
From www.rajack.com
RAJACK Offset Pivot Hinges Pivot Hinge Pivot Hinge Instructions Pivot hinges by angutec are easy to install and available with all the technical info, instructions and installation tips you need. Insert the pin of the ① pivot hinge located at the lower part of the door into the bore of the ② pivot hinge acceptor at the lower part of the door. From determining weight capacity requirements to. Whether. Pivot Hinge Instructions.
From www.hardwaresource.com
Harmon Hinge Pocket Pivot Hinge HardwareSource HardwareSource Pivot Hinge Instructions Whether you are an architect, contractor, or homeowner, a clear understanding of pivot hinges can be highly beneficial. These pivot hinges can also be hidden, recessed, or installed to the top and bottom of your door. Pivot hinges by angutec are easy to install and available with all the technical info, instructions and installation tips you need. Insert the pin. Pivot Hinge Instructions.
From www.pinterest.ca
McKinney EP5J Jamb Mount Pivot Hinge Set Satin Chrome Chrome, Hinges, Wood screws Pivot Hinge Instructions Whether you are an architect, contractor, or homeowner, a clear understanding of pivot hinges can be highly beneficial. These pivot hinges can also be hidden, recessed, or installed to the top and bottom of your door. Pivot doors rotate around a central pivot point at the top and bottom of the door. From determining weight capacity requirements to. While a. Pivot Hinge Instructions.
From hardwaretree.com
Pivot Hinges Pivot Hinge Instructions Whether you are an architect, contractor, or homeowner, a clear understanding of pivot hinges can be highly beneficial. These pivot hinges can also be hidden, recessed, or installed to the top and bottom of your door. While a pivot hinge system is mortised inside the bottom of the door, the top pivot is mortised inside the top of the door,. Pivot Hinge Instructions.
From www.cookebrothers.co.uk
Pivot Sets Door Hardware Pivot Hinge Instructions In this post, we will delve into the world of. These pivot hinges can also be hidden, recessed, or installed to the top and bottom of your door. Pivot hinges by angutec are easy to install and available with all the technical info, instructions and installation tips you need. From determining weight capacity requirements to. Learn how to install pivot. Pivot Hinge Instructions.
From www.emtek.com
Pivot Hinge Stops Emtek Pivot Hinge Instructions These pivot hinges can also be hidden, recessed, or installed to the top and bottom of your door. Whether you are an architect, contractor, or homeowner, a clear understanding of pivot hinges can be highly beneficial. Pivot hinges by angutec are easy to install and available with all the technical info, instructions and installation tips you need. In this post,. Pivot Hinge Instructions.
From www.familyhandyman.com
Everything to Know About Pivot Hinges Pivot Hinge Instructions Whether you are an architect, contractor, or homeowner, a clear understanding of pivot hinges can be highly beneficial. Pivot hinges by angutec are easy to install and available with all the technical info, instructions and installation tips you need. Insert the pin of the ① pivot hinge located at the lower part of the door into the bore of the. Pivot Hinge Instructions.
From www.thelockandhandle.com
Pivot Hinges Strong & Durable Pivot Hinges for Doors Pivot Hinge Instructions Insert the pin of the ① pivot hinge located at the lower part of the door into the bore of the ② pivot hinge acceptor at the lower part of the door. Whether you are an architect, contractor, or homeowner, a clear understanding of pivot hinges can be highly beneficial. Learn how to install pivot door hinges in our straightforward. Pivot Hinge Instructions.
From www.desertcart.ae
TamBee 2Pack Door Pivot Hinges Heavy Duty Hinges for Wood Doors 360 Degree Shaft Stainless Steel Pivot Hinge Instructions These pivot hinges can also be hidden, recessed, or installed to the top and bottom of your door. Learn how to install pivot door hinges in our straightforward guide. While a pivot hinge system is mortised inside the bottom of the door, the top pivot is mortised inside the top of the door, securing it and anchoring it to the. Pivot Hinge Instructions.
From www.swingingcafedoors.com
Top 7 Best Pivot Hinges Swinging Cafe Doors Pivot Hinge Instructions In this post, we will delve into the world of. Learn how to install pivot door hinges in our straightforward guide. From determining weight capacity requirements to. While a pivot hinge system is mortised inside the bottom of the door, the top pivot is mortised inside the top of the door, securing it and anchoring it to the ceiling. Insert. Pivot Hinge Instructions.